direct naar inhoud van Toelichting
Plan: Deel zuid Gemert
Status: ontwerp
Plantype: bestemmingsplan
IMRO-idn: NL.IMRO.1652.BPDeelZuid-ON01

Toelichting

Hoofdstuk 1 Inleiding

1.1 Aanleiding en doel

Aan de Deel te Gemert liggen twee initiatieven voor woningbouwontwikkeling. Initiatiefnemers zijn voornemens om twee agrarische percelen aan de weg Deel in Gemert te ontwikkelen tot woningbouw. De te ontwikkelen percelen liggen aan een oud bebouwingslint. Ten zuiden van het gebied loopt de Molenbroekseloop.

Binnen het plangebied zijn twee woonvelden aanwezig. De beoogde ontwikkeling bestaat uit 11 woningen; 8 woningen op het oostelijke woonveld en 3 woningen op het westelijke woonveld. De tussengelegen percelen blijven agrarisch.

De beoogde ontwikkeling is in strijd met de geldende bestemmingsplannen. Om de voorgenomen ontwikkeling mogelijk te maken, wordt voor de betreffende locatie dit bestemmingsplan opgesteld.

1.2 Ligging plangebied

De ontwikkeling vindt plaats aan de Deel aan de noordzijde van Gemert. In figuur 1.1 is de ligging van de locatie in beeld gebracht. Het oostelijk deel van het plangebied is kadastraal bekend als gemeente Gemert sectie O, perceelnummer 2895. Dit deel van het plangebied heeft een oppervlakte van ruim 1,5 ha.

Het westelijk deel van het plangebied is kadastraal bekend als gemeente Gemert sectie O, perceelnummer 3155. Dit deel van het plangebied heeft een oppervlakte van 4.811 m2.

De tussengelegen percelen maken geen onderdeel uit van het plangebied. In figuur 1.2 is het plangebied inclusief kadastrale begrenzingen aangeduid.

afbeelding "i_NL.IMRO.1652.BPDeelZuid-ON01_0001.jpg"

Figuur 1.1 Ligging plangebied in omgeving (bron: basisviewer.rho)

afbeelding "i_NL.IMRO.1652.BPDeelZuid-ON01_0002.jpg"

Figuur 1.2 Begrenzing plangebied (bron: basisviewer.rho)

1.3 Geldend bestemmingsplan

Voor het oostelijke en het westelijke woonveld gelden verschillende bestemmingsplannen.

Oostelijk woonveld

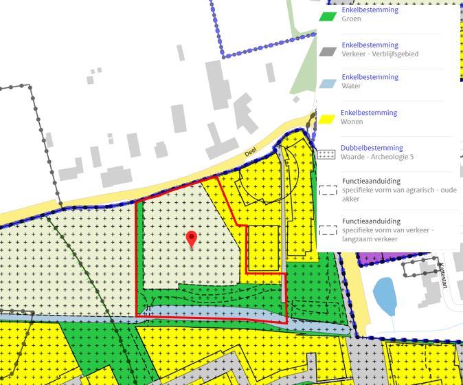
Het oostelijk woonveld is momenteel juridisch-planologisch geregeld in het bestemmingsplan 'Woongebied Gemert 2011'. Dit bestemmingsplan is door de gemeenteraad van Gemert-Bakel vastgesteld op 29 juni 2011.

Tevens is het paraplubestemmingsplan 'Parkeren' (vastgesteld op 23 januari 2018) van toepassing. Het plangebied heeft volgens het geldende bestemmingsplan de volgende bestemmingen en aanduidingen:

  • enkelbestemmingen 'Agrarisch', 'Groen', 'Verkeer - Verblijfsgebied', 'Water' en 'Wonen';
  • dubbelbestemming 'Waarde - Archeologie 5';
  • functieaanduidingen 'specifieke vorm van agrarisch - oude akker' en 'specifieke vorm van verkeer - langzaam verkeer'.

De gronden binnen de enkelbestemming 'Agrarisch' zijn bestemd voor al dan niet bedrijfsmatig agrarisch grondgebruik inclusief tijdelijke teeltondersteunende voorzieningen. Binnen de bestemming 'Wonen' zijn de gronden bestemd voor het gebruik voor wonen. De bouw van woningen is uitsluitend toegestaan binnen een bouwvlak. De gronden bestemd als 'Groen' zijn bestemd voor groenvoorzieningen en een langzaam verkeer route.

Ter plaatse van de dubbelbestemming 'Waarde - Archeologie 5' zijn de gronden mede bestemd voor de bescherming en het behoud van de op en/of in deze gronden voorkomende archeologische waarden.

afbeelding "i_NL.IMRO.1652.BPDeelZuid-ON01_0003.jpg"

Figuur 1.4. Geldend bestemmingsplan oostelijk plandeel (Bron: www.ruimtelijkeplannen.nl)

Westelijk woonveld

Het westelijk woonveld is momenteel juridisch-planologisch geregeld in het bestemmingsplan 'Stedelijke gebieden, april 2013'. Dit bestemmingsplan is door de gemeenteraad van Gemert-Bakel vastgesteld op 1 juli 2013. Daarnaast maakt een klein deel aan de zuidelijke rand onderdeel uit van het bestemmingsplan 'Stedelijke gebieden, april 2014' (vastgesteld op 10 juli 2014). Tevens is het paraplubestemmingsplannen 'Parkeren' (vastgesteld op 23 januari 2018) van toepassing.

Het plangebied heeft volgens de geldende bestemmingsplannen de volgende bestemmingen en aanduidingen:

  • enkelbestemming 'Agrarisch' en 'Groen';
  • dubbelbestemming 'Waarde - Archeologie 5';
  • functieaanduiding 'specifieke vorm van agrarisch - oude akker';
  • gebiedsaanduiding 'vrijwaringszone - bijenkorf - molenbiotoop 2'.

De gronden binnen de enkelbestemming 'Agrarisch' zijn bestemd voor al dan niet bedrijfsmatig agrarisch grondgebruik inclusief tijdelijke teeltondersteunende voorzieningen. Binnen het oude akker zijn de gronden tevens bestemd voor de cultuurhistorisch en landschappelijk waardevolle oude akkers. De gronden binnen de enkelbestemming 'Groen' zijn bestemd voor groenvoorzieningen, bermen, beplating, bomen en parken.

Ter plaatse van de dubbelbestemming 'Waarde - Archeologie 5' zijn de gronden mede bestemd voor de bescherming en het behoud van de op en/of in deze gronden voorkomende archeologische waarden.

De voor molenbiotoop aangewezen gronden zijn mede bestemd voor de bescherming van de functie als werktuig van windmolen De Bijenkorf gelet op de windvang en de bescherming van de waarde van deze molen als landschapsbepalend element.

afbeelding "i_NL.IMRO.1652.BPDeelZuid-ON01_0004.png"

Figuur 1.5 Geldende bestemmingsplannen westelijk plandeel (bron: www.ruimtelijkeplannen.nl)

De beoogde woningbouwontwikkeling is in strijd met de bouw- en gebruiksregels van de geldende bestemmingsplannen.

1.4 Leeswijzer

De toelichting op het bestemmingsplan heeft de volgende opzet.

  • In hoofdstuk 2 wordt het planvoornemen toegelicht. Direct daaropvolgend is aangegeven op welke wijze de nieuwe situatie planologisch-juridisch is geregeld in voorliggend bestemmingsplan.
  • In hoofdstuk 3 is de voorgenomen ontwikkeling getoetst aan vastgesteld en voorgenomen beleid van verschillende overheden.
  • In hoofdstuk 4 is het plan getoetst aan sectorale wetgeving en aspecten.
  • In hoofdstuk 5, 6 en 7 wordt ingegaan op de financiële, juridische en maatschappelijke uitvoerbaarheid.

Hoofdstuk 2 Planbeschrijving

2.1 Huidige situatie

De Deel in Gemert is een voormalig gehucht, dat aan de rand van het stedelijk gebied is gelegen. De bebouwing bestaat overwegend uit (monumentale) woonboerderijen, gelegen op ruime en groene percelen aan de noordzijde van de weg. Op sommige plekken wordt de bebouwing onderbroken door een agrarisch perceel, waardoor er een doorkijk ontstaat naar het achterliggende landschap. Aan de zuidzijde van de weg is slechts een enkele woning aanwezig. De overige gronden zijn agrarische percelen die aan de zuidzijde grenzen aan een waterloop.

Het plangebied is gelegen aan de noordzijde van Gemert aan de weg het Deel. Het plangebied is gelegen tussen de weg het Deel en de Molenbroekseloop. Het Deel vormt een historisch bebouwingslint met enkele tot woningen omgevormde langgevel boerderijen. Aan het Deel 88 staat nog een agrarisch bedrijf in functie.

Het plangebied bestaat uit twee woonvelden, een oostelijk en een westelijk woonveld. Aan de oostzijde grenst het plangebied aan een bebouwingscluster rond de Beverdijk. Deze bebouwing bestaat uit woningen. Tussen de twee woonvelden ligt een agrarisch perceel. Ten westen van het plangebied liggen eveneens agrarisch percelen.

afbeelding "i_NL.IMRO.1652.BPDeelZuid-ON01_0005.jpg"

Figuur 2.1.0 Ligging plangebied in directe omgeving

2.1.1 Oostelijk woonveld

Het oostelijk woonveld vormt een door groen en bebouwing ingekaderd perceel. Het plangebied is onbebouwd en bestaat uit agrarisch akkerland met diverse begroeiingen. Aan de noordzijde vormt een sloot en een rij hoog opgaand groen de grens met de weg het Deel. Aan de westzijde vormt een brede groenstrook de begrenzing met naastgelegen agrarische gronden. Deze groene zone loopt aan de zuidzijde van het perceel parallel aan de Molenbroekseloop. Langs de Molenbroekseloop en door de groenstrook op de westgrens loopt een wandelpad.

afbeelding "i_NL.IMRO.1652.BPDeelZuid-ON01_0006.jpg"Figuur 2.1.1 Zicht op het Deel vanuit het oosten (bron: streetview.google.com, maart 2019)

2.1.2 Westelijk woonveld

Het westelijk woonveld is onbebouwd en bestaat uit agrarisch perceel. Aan de noordzijde vormt een sloot met groene berm de grens met de weg het Deel. Ten noorden van het Deel ligt langgevelboerderij nummer 80 (zie links op figuur 2.1.2). Deze wordt omgeven door agrarische gronden.

Aan de westzijde is nabij deze sloot een enkele boom te vinden. Aan de zuidkant vormt de Molenbroekseloop met een brede groenstrook met bomen de grens met de woningen aan de Deelvoort.

afbeelding "i_NL.IMRO.1652.BPDeelZuid-ON01_0007.png"

Figuur 2.1.2 Zicht op het plangebied gezien vanuit het noordwesten (bron: streetview.google.com, maart 2019)

2.2 Beoogde ontwikkeling oostelijk woonveld

2.2.1 Ruimtelijke opzet

Voor de ontwikkeling van het oostelijk woonveld aan de Deel is een stedenbouwkundig plan inclusief een beeldkwaliteitsplan opgesteld, zie bijlage 1.

De beoogde ontwikkeling betreft de realisatie van maximaal 8 woningen. Elke woning wordt gesitueerd op een ruim opgezet kavel. De ruimtelijke opzet bestaat uit 4 kavels gericht op het Deel, met daarop 2 vrijstaande woning en één tweekapper, en 4 kavels gericht op de te realiseren insteek, met elk een vrijstaande woning. De vier woningen aan Deel sluiten als (langgevel)boerderijen en een schuurwoning aan bij het bestaande lint en worden direct vanaf Deel ontsloten.

De vier woningen achterop het perceel krijgen een eigen karakter als moderne landelijke woningen. Deze woningen worden ontsloten vanuit een centrale inprikker, omgeven door gras met wadi's en bomen. Aan de zuidrand wordt er een doorsteek voor voetgangers aangelegd richting het bestaande park.

De kavelgrootte varieert langs de Deel tussen de 470 en 720 m2. De woningen bestaan hier uit één bouwlaag met kap. De maximale goothoogte bedraagt 3,5 m, de maximale bouwhoogte 7,5 m, aansluitend bij de bebouwing uit de omgeving. De woningen hebben een maximaal bebouwd oppervlakte van 100 m2.

Achterop het perceel zijn vier kavels gelegen met groottes tussen 800 en 850 m2. De kavels worden ontsloten met een insteek vanaf het Deel. Deze woningen krijgen twee bouwlagen en een kap met een maximale goot- en bouwhoogte van respectievelijk 6 m en 11 m. Deze woningen hebben een maximaal bebouwd oppervlakte van 120 m2.

afbeelding "i_NL.IMRO.1652.BPDeelZuid-ON01_0008.jpg"

Figuur 2.2.1 Stedenbouwkundig plan (bron: stedenbouwkundig plan)

Vertaling naar planregels en verbeelding

De kavels worden bestemd als 'Wonen'. Voor elke woning wordt een bouwvlak opgenomen met een aanduiding dat per bouwvlak maximaal één nieuwe woning is toegestaan. Daarnaast worden maatvoeringen voor de maximale goot- en bouwhoogte opgenomen.

2.2.2 Beeldkwaliteit

Voor de beoogde beeldkwaliteit is een beeldkwaliteitsplan opgesteld, zie bijlage 1. De bebouwing en openbare ruimte in het plangebied krijgen een dorpse, groene en informele uitstraling. Het beeldkwaliteitsplan doorloopt samen met dit bestemmingsplan de ruimtelijke procedure.

2.2.3 Groen en water

Het groen omsloten karakter van de huidige situatie blijft in de nieuwe situatie behouden. Ten zuiden van het plangebied ligt de Molenbroekseloop. De gronden tussen de nieuwe kavels en de Molenbroekseloop blijven natuurlijk ingericht. Deze groene zone wordt bovendien verbreed. Ook de groenzone op de westgrens blijft behouden. Het groene karakter wordt verder versterkt door een groene inrichting langs de centrale insteek en uitbreiding van de bestaande groenzone. De zijden van de kavels die gericht zijn op de openbare ruimte worden voorzien van groene hagen van 0,7 m hoog. Op de achterliggende kavelgrenzen worden hagen van 1,7 m aangebracht.

De kavels worden omkaderd met beukenhagen, lage hagen aan de voorzijde en hoge hagen aan de zij- en achtergrenzen. Op elke kavel staan minstens twee huisbomen, waarvan één fruitboom in de voortuin. De bomen in de achtertuin zijn bestaande bomen die herverdeeld zijn over de kavels.

Aan de oostzijde van het perceel bevinden zich twee poelen. Deze en de omliggende vegetatie dienen in stand te worden gehouden, omdat ze dienen als habitat voor de alpenwatersalamander. De bomenrij aan de westzijde van het terrein wordt vervangen door een houtwal, bestaande uit inheemse boom- en struikvormers.

afbeelding "i_NL.IMRO.1652.BPDeelZuid-ON01_0009.jpg"

Figuur 2.2.3 Overzicht bomen - mogelijk effect en verplanting (bron: Boom effect analyse)

Vanwege de ligging binnen de aanwezige sterke groenstructuur is het de bedoeling om zoveel mogelijk bestaande bomen te behouden. Om dit op een verantwoorde wijze uit te kunnen voeren is een boom effect analyse uitgevoerd, zie bijlage 3.

Uit de analyse blijkt dat het effect van het bouwplan op de meeste bomen die op dezelfde locatie behouden moeten blijven minimaal is. Deze bomen kunnen dus behouden blijven op de huidige locatie. Om de structuur van een bomenrij aan de straatkant Deel te behouden dienen enkele bomen te worden gekapt en herplant. Naast het behoud van bomen dienen enkele bomen te worden verplant.

Op deze ontwikkeling is de gemeentelijke groennorm van toepassing. Hieraan wordt voldaan, zie paragraaf 3.4.6. Daarnaast worden er 18 nieuwe bomen aangeplant in de vorm van huisbomen, bomen in de wadi's en ter aanvulling van de wilgenrij langs de poelen. Daarnaast wordt ook de bomenrij aan de westzijde vervangen door een houtwal van inheemse bomen en struikvormers, welke een grotere ecologische waarde vertegenwoordigen dan de huidige inrichting. Ook de structuur van de bomenrij aan de Deel wordt weer aangevuld. Dit is nader omschreven in het stedenbouwkundig plan, zie bijlage 1.

Regenwater dat op het verhard oppervlakte valt, wordt bovengronds afgevoerd naar het openbaar groen. De groenstroken in de insteek worden als wadi ingericht. In de paragraaf 4.1 wordt nader omschreven hoe omgaan wordt met hemelwater en dat voldaan wordt aan de waterbergingsopgave.

Vertaling naar planregels en verbeelding

Het bestaande groen en de uitbreiding van de groene zone aan de zuidrand worden bestemd als 'Groen'. Wateropvang wordt binnen deze bestemming toegestaan. Binnen de bestemming 'Verkeer' zijn eveneens groenvoorzieningen, zoals bermen, toegestaan. Het deel van de Molenbroekseloop dat binnen het plangebied valt blijft bestemd als 'Water'. De poelen vallen, overeenkomstig de nu vigerende bestemming, binnen de bestemming 'Wonen'. De kwalitatieve bescherming van de poelen is opgenomen in de koopovereenkomst en middels de aanduiding 'water'. De landschappelijke inpassing in de vorm van hagen is nader geborgd in de regels.

2.2.4 Verkeer en parkeren

Het plangebied wordt ontsloten door het Deel. De vier percelen aan de Deel ontsluiten middels twee gecombineerde inritten rechtstreeks op het Deel. De overige vier percelen worden ontsloten via de insteek die uitkomt op het Deel.

Het openbare wandelpad door de groenzone en langs de Molenbroekseloop blijft behouden. Dit wandelpad wordt aangesloten op de insteek.

Parkeren voor bewoners vindt plaats op het eigen terrein. Per kavel worden aan de voorzijde van dat kavel twee parkeerplaatsen gerealiseerd. In de openbare ruimte worden vijf parkeerplaatsen voor bezoekers gerealiseerd. Deze komen als langsparkeerplaatsen in de insteek. In paragraaf 4.2 is een nadere toetsing van de parkeerbehoefte opgenomen.

afbeelding "i_NL.IMRO.1652.BPDeelZuid-ON01_0010.jpg"

Figuur 2.2.4 Doorsnede inprikker (bron: stedenbouwkundig plan)

Vertaling naar planregels en verbeelding

De insteek wordt bestemd als 'Verkeer'. Binnen de woonbestemming wordt een regeling opgenomen ten aanzien van parkeren.

2.3 Beoogde ontwikkeling westelijk woonveld

2.3.1 Ruimtelijke opzet

Voor de ontwikkeling van het westelijk woonveld van de Deel is een verkavelingsplan opgesteld, zie bijlage 2.

De beoogde ontwikkeling betreft de realisatie van drie woningen. Elke woning wordt gesitueerd op een ruim opgezet kavel. De ruimtelijke opzet bestaat uit drie kavels gericht op het Deel, met daarop elk één vrijstaande woning, zie figuur 2.2.5.

afbeelding "i_NL.IMRO.1652.BPDeelZuid-ON01_0011.jpg"

Figuur 2.2.5: Verkavelingsplan (bron: Denkkamer, Verkavelingsplan)

Vertaling naar planregels en verbeelding

De kavels worden bestemd als 'Wonen'. Voor elke woning wordt een bouwvlak opgenomen met een aanduiding dat per bouwvlak maximaal één nieuwe woning is toegestaan. Daarnaast worden maatvoeringen voor de maximale goot- en bouwhoogte opgenomen.

2.3.2 Groen en water

Door de randen van de percelen in te vullen met een groene beukenhaag ontstaat een natuurlijke afscherming van de woningen. Door het toevoegen van enkele bomen langs de Deel komen de woningen terug te liggen van de weg. Zowel de beukenhaag als de bomen zorgen voor een groene afscherming en daarbij een landschappelijke inpassing. Aan de zuidzijde en westzijde wordt een groenstrook van minimaal 340 m2 gerealiseerd. Daarnaast wordt langs de Molenbroekseloop een strook van minimaal 5 meter breed met gras ingezaaid, ten behoeve van de bereikbaarheid van deze loop.

Met de realisatie van drie woningen blijft het open, groene en luchtige karakter behouden. Daarnaast sluit dit aan op de omvang van de historische woonboerderij aan de overzijde van de Deel. De eenduidige volumes zijn gepositioneerd langs de Deel. Zo sluiten ze aan bij het historische bebouwingslint, biedt het ruimte voor ruime tuinen met een zuidelijke oriëntatie en hebben de woningen vrij zicht op de omliggende akkers.

Vertaling naar planregels en verbeelding

Het te realiseren groen aan de randen van het plangebied is bestemd als 'Groen'. De landschappelijke inpassing in de vorm van hagen is nader geborgd in de regels.

2.3.3 Verkeer en parkeren

De percelen worden direct ontsloten op de Deel. De twee westelijke percelen hebben een gezamenlijke ontsluiting aan de noordzijde, ter plaatse van de huidige ontsluiting van het agrarische perceel. Op deze manier blijft de sloot ongewijzigd.

Parkeren voor bewoners en bezoekers vindt plaats op het eigen terrein. Per kavel worden aan de voorzijde van dat kavel twee parkeerplaatsen gerealiseerd. Daarnaast kunnen bezoekers op de oprit parkeren, als derde parkeerplaats.

Vertaling naar planregels en verbeelding

Binnen de woonbestemming is een regeling opgenomen ten aanzien van parkeren.

Hoofdstuk 3 Beleidskader

3.1 Inleiding

Door de verschillende overheden is beleid geformuleerd ten aanzien van ruimtelijke ontwikkelingen. Paragraaf 3.2 behandelt het rijksbeleid. Het provinciaal beleid is opgenomen in paragraaf 3.3. Tot slot wordt in paragraaf 3.4 de beoogde ontwikkeling getoetst aan het gemeentelijk beleid.

3.2 Rijksbeleid

3.2.1 Nationale Omgevingsvisie (2020)

De Nationale Omgevingsvisie, kortweg NOVI, loopt vooruit op de inwerkingtreding van de Omgevingswet en vervangt op Rijksniveau de Structuurvisie Infrastructuur en Ruimte (SVIR). Uitgangspunt in de nieuwe aanpak is dat ingrepen in de leefomgeving niet los van elkaar plaatsvinden, maar in samenhang. Zo kunnen in gebieden betere, meer geïntegreerde keuzes worden gemaakt.

Aan de hand van een toekomstperspectief op 2050 brengt de NOVI de langetermijnvisie van het Rijk in beeld. Op nationale belangen wil het Rijk sturen en richting geven. Dit komt samen in vier prioriteiten:

  • a. Ruimte voor klimaatadaptatie en energietransitie
  • b. Duurzaam economisch groeipotentieel
  • c. Sterke en gezonde steden en regio's
  • d. Toekomstbestendige ontwikkeling van het landelijk gebied

De druk op de fysieke leefomgeving in Nederland is zo groot, dat belangen soms botsen. Het streven is combinaties te maken en win-win situaties te creëren, maar dit is niet altijd mogelijk. Soms zijn er scherpe keuzes nodig en moeten belangen worden afgewogen. Hiertoe gebruikt de NOVI drie afwegingsprincipes:

  • a. Combinaties van functies gaan voor enkelvoudige functies: in het verleden is scheiding van functies vaak te rigide gehanteerd. Met de NOVI wordt gezocht naar maximale combinatiemogelijkheden tussen functies, gericht op een efficiënt en zorgvuldig gebruik van onze ruimte;
  • b. Kenmerken en identiteit van een gebied staan centraal: wat de optimale balans is tussen bescherming en ontwikkeling, tussen concurrentiekracht en leefbaarheid, verschilt van gebied tot gebied. Sommige opgaven en belangen wegen in het ene gebied zwaarder dan in het andere;
  • c. Afwentelen wordt voorkomen: het is van belang dat onze leefomgeving zoveel mogelijk voorziet in mogelijkheden en behoeften van de huidige generatie van inwoners zonder dat dit ten koste gaat van die van toekomstige generaties.

Toetsing

De NOVI wordt gekenmerkt door een hoog abstractie- en schaalniveau. Eén van de nationale belangen die relevant is voor het voorliggende bestemmingsplan is een zorgvuldige afweging en transparante besluitvorming. Hier wordt aan voldaan. Voor het overige is geen concreet beleid op nationaal niveau geformuleerd dat van belang is voor het voorliggend bestemmingsplan. De in de NOVI genoemde nationale belangen worden door de voorgenomen ontwikkelingen niet geschaad.

3.2.2 Besluit algemene regels ruimtelijke ordening

Het Barro is de juridische vertaling van het beleid dat geschetst is in het SVIR. Dit beleidsdocument bevat regels die doorwerken naar lagere overheden. Dit betekent dat de regels uit het Barro ook geïmplementeerd moeten worden in provinciale en gemeentelijke ruimtelijke plannen. Evenals de NOVI wordt het Barro gekenmerkt door een hoog abstractie- en schaalniveau. Het Barro bevat regels voor bijvoorbeeld de mainportontwikkeling van Rotterdam, het kustfundament en defensie.

Toetsing

Op het plangebied zijn op basis van het Barro geen voorwaarden van toepassing.

3.2.3 De ladder voor duurzame verstedelijking

De ladder is als procesvereiste opgenomen in het Besluit ruimtelijke ordening (Bro). In de Ladder voor duurzame verstedelijking is opgenomen dat de toelichting van een bestemmingsplan dat een nieuwe stedelijke ontwikkeling mogelijk maakt, een beschrijving bevat van de behoefte aan de voorgenomen stedelijke ontwikkeling. Indien blijkt dat de stedelijke ontwikkeling niet binnen het bestaand stedelijk gebied kan worden voorzien, moet in de toelichting worden gemotiveerd waarom niet binnenstedelijk in de behoefte kan worden voorzien.

Toetsing

Het toevoegen van meer dan 11 woningen wordt gezien als stedelijke ontwikkeling. Het geldende bestemmingsplan is vertrekpunt bij de beoordeling of sprake is van een stedelijke ontwikkeling. In dit geval geldt er voor de locatie een agrarische bestemming. Het toevoegen van 11 woningen wordt op deze plek gezien als een stedelijke ontwikkeling. Omdat de locatie buiten het bestaand stedelijk gebied is gelegen, dient tevens de behoefte gemotiveerd te worden.

Beschrijving behoefte

De relevante regio voor wonen is De Peel binnen de regio Zuidoost-Brabant.

afbeelding "i_NL.IMRO.1652.BPDeelZuid-ON01_0012.jpg"

Figuur 3.3 Woonregio's (Bron: Brabantse Agenda Wonen, september 2017)

De woningbehoefte in de gemeente Gemert-Bakel blijkt uit diverse onderzoeken.

Bevolkings- en woningbehoefteprognose Noord-Brabant, Actualisering 2020

Doordat het aantal huishoudens de komende jaren nog sterk toeneemt, zijn er ook meer huizen nodig. Naar verwachting is in 2050 zo'n 43% van alle huishoudens een éénpersoonshuishouden. Vooral het aantal oudere alleenstaanden van 75 jaar en ouder neemt sterk toe. Vergeleken met de vorige prognose uit 2017 ligt de groei van de Brabantse bevolking duidelijk hoger. De indicatie voor de gemeente Gemert-Bakel is 1.280 woningen in de periode 2020-2030. Onderstaande tabel is richtinggevend voor het maken van nieuwe regionale afspraken. Versnelling van de woningbouw en (vervolgens) vasthouden van het bouwtempo is een belangrijke doelstelling van de Brabantse Agenda Wonen.

afbeelding "i_NL.IMRO.1652.BPDeelZuid-ON01_0013.png"

Figuur 3.4 Indicatie toename woningvoorraad

Brabantse Agenda Wonen Voortgangsrapportage 2020/2021

In de Brabantse Agenda Wonen Voortgangsrapportage staat dat er in de regio Zuidoost Brabant in de periode 2020-2030 nog 44.000 woningen nodig zijn en er slechts harde plancapaciteit is voor 25.550 woningen.

afbeelding "i_NL.IMRO.1652.BPDeelZuid-ON01_0014.png"

Figuur 3.5 Woningbouwcapaciteit en opgaven

Binnen deze regio zijn de Woonafspraken De Peel gemaakt. Deze woonafspraken zijn nu in uitvoering en vormen de leidraad waarlangs gewerkt wordt. Plannen worden onderling gedeeld en er vindt afstemming plaats over de woningbouw. De afspraken gaan o.a. over afstemming van uitbreidingslocaties, niet-traditionele woonvormen en de huisvesting van specifieke doelgroepen, waaronder arbeidsmigranten en doelgroepen die 'claims' leggen op Wmo-budget. Inmiddels zijn de woonafspraken door de colleges vastgesteld.

Gemert-Bakel kan op basis van de provinciale prognose 2020 in de periode 2020-2030 1.280 woningen bijbouwen. Dat betekent dat er noodzaak is om woningen aan de voorraad toe te voegen. De groei dient zeker 120 woningen per jaar te zijn om 'gaten' in de verkoop te voorkomen.

In het woningbouwprogramma zijn 1.795 woningen opgenomen. Van de totale plancapaciteit vallen 282 woningen onder harde plancapaciteit, deze zijn niet meer beïnvloedbaar. Overige woningen vallen onder plannen die nog beïnvloedbaar zijn, deze plannen zijn nog “zacht”.

Het plan aan het Deel is een van de bekende zachte plannen, die invulling moeten geven aan de grote kwantitatieve woningbehoefte.

Kwalitatieve behoefte

De kwalitatieve woningbehoefte is beschreven in de gemeentelijke woonvisie Gemert-Bakel 2020-2024 (vastgesteld op 9 juli 2020). Ook zijn twee verordeningen vastgesteld waarin regels zijn opgenomen voor sociale woningbouw en middenhuur.

In het plangebied worden 11 grondgebonden woningen gerealiseerd. Het toevoegen van 11 woningen geeft invulling aan de behoefte naar dure koop en betreft een woonsegment dat zorgt voor doorstroming in andere segmenten.

Conclusie

Er zijn nog onvoldoende harde plannen en er is sprake van een grote woningbehoefte. In het plan wordt ruimte geboden voor grondgebonden woningen in de categorie koop.

Motivering locatiekeuze (waarom niet binnen bestaand stedelijk gebied)

Binnen de kern Gemert is geen plek voor het toevoegen van 11 woningen op ruime kavels. Daarom is al in 2011 in de Structuurvisie+ Gemert-Bakel 2011-2021 gekozen voor locaties aansluitend aan de kern. De woningbehoefte en de woningvoorraad moeten op elkaar worden afgestemd. Er wordt naar locaties gezocht waar met minimale aanpassingen woningen gerealiseerd kunnen worden.

De locatie Deel is als stedelijke ontwikkelingslocatie aangemerkt. Hier is met minimale aanpassingen woningbouw mogelijk.

afbeelding "i_NL.IMRO.1652.BPDeelZuid-ON01_0015.png"

Figuur 3.8 Uitsnede structuurvisiekaart

Het gebied is in de Provinciale Structuurvisie 2010 - partiële herziening 2014 aangemerkt als 'zoekgebied voor stedelijke ontwikkeling, aansluitend aan een 'kern in het landelijk gebied'. Een onderbouwing van de uitbreiding is vanuit de Omgevingsverordening noodzakelijk. Het plangebied is in de Omgevingsverordening aangemerkt als 'verstedelijking afweegbaar', zie paragraaf 3.3.2.

Conclusie

In het gebied is verstedelijking afweegbaar. Binnen bestaand stedelijk gebied is geen ruimte voor 11 ruime grondgebonden woningen. In de kernen is te weinig harde plancapaciteit. De ontwikkeling past binnen de regionale verstedelijkingsafspraken. De nieuwe woningen worden gasloos en klimaatbestendig. Op veiligheid en gezondheid wordt ingegaan in hoofdstuk 4.

3.3 Provinciaal beleid

3.3.1 Omgevingsvisie Noord-Brabant

In de Omgevingsvisie Noord-Brabant is het provinciaal beleid ten aanzien van de ruimtelijke ontwikkelingen in de provincie Noord-Brabant op hoofdlijnen uiteengezet voor de periode tot 2050. Naast een beeld van het Noord-Brabant van nu is een beeld geschetst van het welvarend, verbonden, klimaatproof en vernieuwend Noord-Brabant van 2050. Hieruit zijn vier hoofdopgaven onderscheiden die nauw met elkaar samenhangen:

  • Werken aan de Brabantse energietransitie
  • Werken aan een klimaatproof Brabant
  • Werken aan de slimme netwerkstad
  • Werken aan een concurrerende, duurzame economie

Samen met andere partijen zoals gemeenten en bedrijven wil de provincie uitvoering geven aan projecten die passen binnen deze opgaven. Van belang is dat het in de toekomst ook goed wonen, werken en verblijven blijft. Werken aan een goede omgevingskwaliteit zowel in de bebouwde als in de onbebouwde omgeving is het uitgangspunt.

Toetsing

Bij ruimtelijke ontwikkelingen ligt het accent op de herstructurering en het beheer van het bestaand (cultuurhistorisch waardevol) bebouwd en onbebouwd gebied om zorgvuldig ruimtegebruik te bevorderen. De initiatiefnemers wensen 11 woningen aan de noordrand van Gemert te realiseren.

De beoogde ontwikkeling speelt in op een goede omgevingskwaliteit en een duurzame economie. Hierdoor kan gesteld worden dat de beoogde ontwikkeling in lijn is met de Omgevingsvisie Noord-Brabant.

3.3.2 Interim omgevingsverordening Noord-Brabant (geconsolideerde versie 2022)

Gedeputeerde Staten van Noord-Brabant hebben op 25 oktober 2019 de Interim omgevingsverordening Noord-Brabant (hierna: Iov N-B) vastgesteld. Deze verordening is per 5 november 2019 in werking getreden.

Op 1 januari 2023 treedt de Omgevingswet in werking. Vanwege de Omgevingswet moet de provincie haar regelsysteem aanpassen. Straks heeft de provincie nog maar één verordening waarin alle regels zijn opgenomen over de fysieke leefomgeving. De Iov N-B is een eerste stap op weg naar de definitieve omgevingsverordening. Hierin worden de bestaande verordeningen over de fysieke leefomgeving samengevoegd tot één Interim omgevingsverordening, waaronder de huidige Verordening ruimte.

De Iov N-B is beleidsneutraal van karakter. Dat betekent dat er geen nieuwe beleidswijzigingen zijn doorgevoerd, behalve als deze voortvloeien uit vastgesteld beleid, zoals de omgevingsvisie. In beginsel zijn de huidige regels met het huidige beschermingsniveau gehandhaafd.

In hoofdstuk 3 van Iov N-B zijn de instructieregels opgenomen die gemeenten moeten toepassen in hun bestemmingsplannen. Hierin staan de regels die nu nog zijn opgenomen in de Verordening ruimte. Vooruitlopend op de Omgevingswet richten de instructieregels zich op een evenwichtige toedeling van functies (in plaats van het bestemmen van ontwikkelingen). Dit betekent dat de regels ook vanuit functies (van gebieden) zijn opgebouwd. Daarnaast richten de regels zich op een goede omgevingskwaliteit, inclusief een veilige en gezonde leefomgeving (in plaats van een goede ruimtelijke kwaliteit). Tevens zijn een aantal algemene basisprincipes opgenomen.

In de Iov N-B zijn regels voor ontwikkelingen gekoppeld aan werkgebieden (structuren) en aanduidingen. Het plangebied ligt binnen het werkgebied 'verstedelijking afweegbaar', zie figuur 3.3.1. Gezien de realisatie van maximaal 11 woningen betreft de ontwikkeling een stedelijke ontwikkeling in het kader van de ladder, zie paragraaf 3.2.3.

afbeelding "i_NL.IMRO.1652.BPDeelZuid-ON01_0016.png"

Figuur 3.1 Uitsnede kaart stedelijke ontwikkeling en erfgoed (Bron: Interim omgevingsverordening Noord-Brabant)

Voor het planvoornemen zijn onderstaande regels en basisprincipes uit de Interim omgevingsverordening van toepassing. Daarnaast is vanwege het planvoornemen herbegrenzing van het stedelijk gebied noodzakelijk.

Regels voor stedelijke ontwikkeling

  • artikel 3.43 afwijkende regels verstedelijking afweegbaar;

Basisprincipes voor een evenwichtige toedeling van functies:

  • artikel 3.5 zorgplicht voor een goede omgevingskwaliteit;
  • artikel 3.6 zorgvuldig ruimtegebruik;
  • artikel 3.7 toepassing van de lagenbenadering;
  • artikel 3.8 meerwaardecreatie;
  • artikel 3.9 kwaliteitsverbetering landschap.

Regels voor herbegrenzing stedelijk gebied

  • artikel 5.3 Wijziging grenzen van werkingsgebieden.

Toetsing regels

Toetsing aan artikel 3.43 afwijkende regels verstedelijking afweegbaar

Regels

In afwijking van artikel 3.42 Duurzame stedelijke ontwikkeling, eerste lid, kan een bestemmingsplan, ter plaatse van Verstedelijking afweegbaar voorzien in de nieuwvestiging van een duurzame stedelijke ontwikkeling als:

  • a. binnen Stedelijk Gebied feitelijk of vanuit kwalitatieve overwegingen onvoldoende ruimte beschikbaar is;
  • b. transformatie van cultuurhistorisch waardevol of geschikt leegstaand vastgoed niet tot de mogelijkheden behoort;
  • c. de ontwikkeling past binnen de regionale afspraken, bedoeld in afdeling 5.4 Regionaal samenwerken;
  • d. de stedenbouwkundige- en landschappelijke inrichting rekening houdt met de omgevingskwaliteit en structuren in het gebied en de naaste omgeving waaronder een duurzame afronding van het Stedelijk Gebied.

Toetsing

Visie en ontwikkelrichting

Zoals onder paragraaf 2.1 is omschreven is de Deel in Gemert een voormalig gehucht met een traditionele uitstraling, dat aan de rand van het stedelijk gebied is gelegen. Het is echter de wens van de gemeente om in de toekomst meer woningen aan de noordzijde van Gemert te realiseren. Om te voorkomen dat het karakter van dit voormalige gehucht verloren gaat dient de ontwikkelrichting van de Deel helder omschreven te worden.

Het traditionele beeld van de directe omgeving dient daarom voortgezet te worden. Nieuwe bebouwing moet aansluiten bij de bebouwing op de omgeving. Woningen moeten niet aaneengesloten naast elkaar worden gezet, maar dienen op sommige locaties onderbroken te worden door een groen (agrarisch) perceel, waardoor er nog steeds doorzichten naar het achterliggende gebied aanwezig zijn.

Verder dienen nieuwe woningen landelijk zijn vormgegeven, zoals een schuurwoning of een boerderij. De percelen moeten een groene uitstraling hebben en de aanwezige groenstructuren moeten als uitgangspunt dienen bij nieuw aan te planten structuren. De aanwezige bebouwing aan de noordzijde van de Deel dient gerespecteerd te worden en nieuwe woningen moeten zich op natuurlijke wijze voegen bij deze reeds bestaande bebouwing.

  • a. Met de beoogde ontwikkeling worden 11 woningen gerealiseerd buiten het bestaand stedelijk gebied. Binnen het bestaand stedelijk gebied is hier onvoldoende ruimte voor, zie paragraaf 3.2.3. Daarnaast is in de kernen te weinig harde plancapaciteit aanwezig.
  • b. het realiseren van 11 ruime grondgebonden woningen is binnen bestaand leegstaand vastgoed niet mogelijk.
  • c. De ontwikkeling past binnen de regionale verstedelijkingsafspraken zoals benoemd in de Brabantse Agenda Wonen en de voortgangsrapportage 2020/2021, zie paragraaf 3.2.3 en 3.3.4.
  • d. De locatie krijgt een duurzame afronding en past binnen de landschapsstructuur (zie paragraaf 2.2). In feite is sprake van een gedeeltelijke invulling van een agrarische resthoek grenzend aan het bebouwd gebied van Gemert.

Conclusie

De beoogde ontwikkeling voldoet aan de regels voor verstedelijking afweegbaar, er wordt voldaan aan de regels van artikel 3.43 van Iov N-B.

Basisprincipes voor een evenwichtige toedeling van functies

Vooruitlopend op de Omgevingswet richten de instructieregels zich op een evenwichtige toedeling van functies. Dit betekent dat de regels ook vanuit functies (van gebieden) zijn opgebouwd. Daarnaast richten de regels zich op een goede omgevingskwaliteit, inclusief een veilige en gezonde leefomgeving (in plaats van een goede ruimtelijke kwaliteit).

Toetsing aan artikel 3.5 zorgplicht voor een goede omgevingskwaliteit

Een bestemmingsplan geeft bij de evenwichtige toedeling van functies invulling aan een goede omgevingskwaliteit met een veilige, gezonde leefomgeving. Voor een goede omgevingskwaliteit en een veilige, gezonde leefomgeving wordt rekening gehouden met:

  • zorgvuldig ruimtegebruik;
  • de waarden in een gebied door toepassing van de lagenbenadering;
  • meerwaardecreatie.

Deze aspecten worden hierna beschreven.

Toetsing aan artikel 3.6 Zorgvuldig ruimtegebruik

Hierna worden de regels van artikel 22.2 Iov N-B beschreven en vervolgens de ontwikkeling getoetst.

Regels

  • 1. Zorgvuldig ruimtegebruik houdt in dat:
    • a. de toedeling van functies in beginsel plaatsvindt binnen bestaand ruimtebeslag voor bebouwing, behalve in de gevallen dat:
      • nieuwvestiging mogelijk is op grond van de bepalingen in dit hoofdstuk;
      • er feitelijk of vanuit kwalitatieve overwegingen onvoldoende ruimte is en uitbreiding, al dan niet gelijktijdig met de vestiging van een functie, op grond van de bepalingen in dit hoofdstuk is toegestaan;
    • b. bij stedelijke ontwikkeling toepassing is gegeven aan artikel 3.1.6, tweede lid, van het Besluit ruimtelijke ordening (ladder voor duurzame verstedelijking);
    • c. gebouwen, bijbehorende bouwwerken en andere permanente voorzieningen worden geconcentreerd binnen een bouwperceel

Toetsing

  • a. Ingevolge artikel 3.6 lid 2 wordt onder bestaand ruimtebeslag verstaan: 'bestaand stedelijk gebied of een bestaand bouwperceel'. Onder nieuwvestiging verstaat de Iov N-B: 'vestiging op een locatie waar ingevolge het geldende bestemmingsplan geen bebouwing of bedrijfsfunctie is toegestaan'. Voorliggend plan voorziet in de wijziging van het gebruik van de locatie met een agrarische bestemming naar wonen ten behoeve van de realisatie van 11 woningen. Binnen het bestaand stedelijk gebied is onvoldoende ruimte beschikbaar voor het beoogd aantal en type woningen. Daarnaast is uitbreiding van het stedelijk gebied op basis van artikel 3.43 afweegbaar mogelijk. Er wordt daarmee voldaan aan deze regel.
  • b. Toetsing aan de ladder voor duurzame verstedelijking, als bedoeld in artikel 3.1.6, tweede lid van het Besluit ruimtelijke ordening, heeft plaatsgevonden in paragraaf 3.2.3. Daar wordt onderbouwd dat de woningen die met dit plan wordt mogelijk gemaakt passen binnen de behoefte en wordt de geschiktheid van deze locatie onderbouwd.
  • c. De ontwikkeling vindt plaats binnen de grenzen van de huidige agrarisch percelen.

Conclusie

De beoogde ontwikkeling voldoet aan de regels voor zorgvuldig ruimtegebruik, er wordt voldaan aan de regels van artikel 3.6 van Iov N-B.

Toetsing aan artikel 3.7 Toepassing van de lagenbenadering

Hierna worden de regels van artikel 3.7 Iov N-B beschreven en vervolgens de ontwikkeling getoetst.

Regels

  • 1. De toepassing van de lagenbenadering omvat het effect van de ontwikkeling op de lagen in onderlinge wisselwerking met elkaar en het actief benutten van de factor tijd.
  • 2. De lagenbenadering omvat de effecten op
    • a. de ondergrond, zoals de bodem, het grondwater en archeologische waarden;
    • b. de netwerklaag, zoals infrastructuur, natuurnetwerk, energienetwerk, waterwegen waaronder een goede, multimodale afwikkeling van het personen- en goederenvervoer.
    • c. de bovenste laag zoals cultuurhistorische en landschappelijke waarden, de omvang van de functie en de bebouwing, de effecten op bestaande en toekomstige functies, de effecten op volksgezondheid, veiligheid en milieu.
  • 3. Door de factor tijd actief te benutten wordt rekening gehouden met de herkomstwaarde, vanuit het verleden, de (on)omkeerbaarheid van optredende effecten en de toekomstwaarde gelet op duurzaamheid en toekomstbestendigheid.

Toetsing

De toepassing van de lagenbenadering is een hulpmiddel om de effecten van een ontwikkeling in beeld te brengen. Het gaat daarbij om het effect op de lagen in wisselwerking met elkaar waarbij de factor tijd actief wordt benut. Het is van belang om te weten hoe de omgeving in elkaar steekt en te kijken naar alle lagen: de ondergrond, de netwerklaag, de bovenlaag en de tijdsdimensie. Tussen deze lagen bestaat een wisselwerking. Iedere laag kent zijn eigen dynamiek, verschillende veranderingssnelheid en mate van omkeerbaarheid bij ingrepen. Voor een aantal aspecten die bij de lagenbenadering betrokken worden, bevat de Iov N-B specifieke regels, zoals het Natuur Netwerk, de groenblauwe mantel, cultuurhistorische- en aardkundige waarden, stiltegebied en delen van het watersysteem.

Er dient rekening gehouden te worden met de laag dynamische ondergrond, maar ook met de effecten op de andere lagen en met toekomstige effecten. Bij de afweging gaat het niet alleen om de effecten op de omliggende functies in het gebied maar ook op effecten van een ontwikkeling elders. Niet alleen de effecten nu maar ook de effecten naar de toekomst.

Met het beoogde plan worden 11 woningen gerealiseerd. Woningbouw is vanwege zijn ligging en gebruik op deze locatie voorstelbaar. De locatie betreft een agrarische 'resthoek' die deels niet meer als zodanig in gebruik is, goed bereikbaar is en ruimtelijk gezien reeds bij het stedelijk gebied behoort. De ontwikkeling is vanwege het aantal woningen volgens de ladder voor duurzame verstedelijking aan te merken als een stedelijke ontwikkeling, zie paragraaf 3.2.3.

Occupatielaag

Het occupatiepatroon van Gemert heeft zich met name in noordelijke richting ontwikkeld, met Doonheide-Noord als meest recente uitbreiding. De gemeente heeft echter de wens om in de toekomst meer woningen aan de noordzijde van Gemert te realiseren.

Volgens de Interim omgevingsverordening betreft het een locatie waarin verstedelijking afweegbaar is. In de gemeentelijke structuurvisie is de locatie aangewezen als ontwikkellocatie, zie paragraaf 3.4.1. Hier is met minimale aanpassingen woningbouw mogelijk. Uit de woonvisie en het woningbouwprogramma blijkt bovendien dat de vraag naar woningen groot is en dat deze behoefte niet binnen het bestaand stedelijk gebied gerealiseerd kan worden. In de kernen is te weinig harde plancapaciteit, zie onder andere paragraaf 3.2.3 en 3.4.5. Het plangebied maakt daarnaast reeds deel uit van het bestemmingsplan voor het bebouwde woongebied van Gemert, zie paragraaf 3.4.3. Een wijziging van het gebruik van agrarisch naar wonen is hier dan ook goed voorstelbaar.

Netwerklaag

De Boekelseweg/Vondellaan ten oosten van het plangebied vormt een belangrijke structurele drager in de noordzuid-richting. De Deel verbindt het noordwesten van Gemert met de Boekelseweg. De Molenbroekse Loop vormt een duidelijke grens van het plangebied aan de zuidzijde. De locatie is goed bereikbaar en wordt aan de noord- en zuidzijde duidelijk begrensd.

Grondlaag

De aanwezige waarden en structuren in en om het plangebied dienen met de ontwikkeling in acht te worden genomen. In het stedenbouwkundig plan voor deze ontwikkeling is rekening gehouden met de aanwezige cultuurhistorische en landschappelijke waarden binnen het plangebied, zie paragraaf 2.2. Daarbij wordt tevens aangesloten op waarden en structuren uit de directe omgeving. Het stedenbouwkundig plan is middels zorgvuldige afweging (tussen ontwikkelaar en gemeente) tot stand gekomen. Voor beide woonvelden is een cultuurhistorisch onderzoek uitgevoerd, zie paragraaf 4.4. Hieruit blijkt dat de cultuurhistorische waarde van het plangebied sterk is afgenomen. De bouw woningen maakt deel uit van een historische ontwikkeling van verdichting van de bestaande bebouwingslinten.

In hoofdstuk 4 van deze toelichting worden de effecten op onder andere de bodem, het grondwater, archeologische waarden, infrastructuur, natuurnetwerk, water, cultuurhistorische waarden en landschappelijke waarden beschreven. Hieruit blijkt dat met de beoogde ontwikkeling geen nadelige effecten aanwezig zijn.

Conclusie

De beoogde ontwikkeling voldoet aan het principe van de lagenbenadering.

Toetsing aan artikel 3.8 Meerwaardecreatie

Hierna worden de regels van artikel 3.8 Iov N-B beschreven en vervolgens de ontwikkeling getoetst.

Regels

  • 1. Meerwaardecreatie omvat een evenwichtige benadering van de economische, ecologische en sociale aspecten die in een gebied en bij een ontwikkeling zijn betrokken, waaronder:
    • a. de mogelijkheid om opgaven en ontwikkelingen te combineren waardoor er meerwaarde ontstaat;
    • b. de bijdrage van een ontwikkeling aan andere opgaven en belangen dan die rechtstreeks met de ontwikkeling gemoeid zijn.
  • 2. De fysieke verbetering van de landschappelijke kwaliteit, bedoeld in artikel 3.9 Kwaliteitsverbetering landschap kan deel uitmaken van de meerwaardecreatie.

Toetsing

Met de voorgenomen ontwikkeling wordt meerwaarde gecreëerd door het toekennen van een nieuwe functie, namelijk de woonfunctie en de realisatie van 11 woningen. De locatie wordt fysiek en beleefbaar betrokken bij de omgeving.

Conclusie

Er wordt voldaan aan het basisprincipe van meerwaardecreatie.

Toetsing aan artikel 3.9 Kwaliteitsverbetering landschap

Hierna worden de regels van artikel 3.9 Iov N-B beschreven en vervolgens de ontwikkeling getoetst.

Regels

  • 1. Een bestemmingsplan dat een ruimtelijke ontwikkeling mogelijk maakt in Landelijk gebied bepaalt dat die ruimtelijke ontwikkeling gepaard gaat met een fysieke verbetering van de landschappelijke kwaliteit van het gebied of de omgeving.
  • 2. Het bestemmingsplan motiveert dat de verbetering past binnen de gewenste ontwikkeling van het gebied én op welke wijze de uitvoering is geborgd door dat:
    • a. dit financieel, juridisch en feitelijk is geborgd in het plan; of
    • b. de afspraken uit het regionaal overleg, bedoeld in artikel 62 Regionaal Overleg, worden nagekomen.
  • 3. Een verbetering van de landschappelijke kwaliteit omvat mede:
    • a. de op grond van deze verordening verplichte landschappelijke inpassing;
    • b. het toevoegen, versterken of herstellen van landschapselementen die een bijdrage leveren aan de versterking van de landschapsstructuur of de relatie stad-land;
    • c. het behoud of herstel van cultuurhistorisch waardevolle bebouwing of terreinen;
    • d. het wegnemen van verharding;
    • e. het slopen van bebouwing;
    • f. de realisering van het Natuur Netwerk Brabant en ecologische verbindingszones;
    • g. het aanleggen van extensieve recreatieve mogelijkheden.

Toetsing

Met de ontwikkeling van 11 woningen wordt het plangebied betrokken bij het stedelijk gebied. Op basis van artikel 3.43 verstedelijking afweegbaar is dit mogelijk.

Hiervoor heeft een zorgvuldige afweging plaatsgevonden. Vanwege de uitbreiding in landelijk gebied is kwaliteitsverbetering noodzakelijk. In de 'Handreiking kwaliteitsverbetering van het landschap', de rood met groen koppeling d.d. 1 november 2011, wordt inzake kwaliteitsverbetering van het landschap ingeval van uitbreiding uitgegaan van een (minimale) basisinspanning van 1% van de uitgifte prijs.

Met de beoogde ontwikkeling van het oostelijke woonveld wordt 5.661 m² aan gronden uitgegeven. De gronduitgifteprijs (Nota grondprijzen 2021) voor woningbouw (vrije sector, > 250 m²) bedraagt € 300 per m² (ex BTW). De basisinspanning bedraagt € 16.983,- ex BTW. De kwaliteitsverbetering wordt binnen het oostelijke woonveld gerealiseerd in de vorm van landschappelijke inpassing, zoals omschreven in paragraaf 2.2. In bijlage 2 bij de regels is het landschappelijke inpassingsplan opgenomen en als zodanig geborgd. In bijlage 22 bij deze toelichting is een overzicht opgenomen van de beoogde kosten van de landschappelijke inpassing van dit deel van het terrein.

Met de beoogde ontwikkeling van het westelijk woonveld wordt 4.811 m² aan gronden uitgegeven. De gronduitgifteprijs (Nota grondprijzen 2021) voor woningbouw (vrije sector, > 250 m²) bedraagt € 300 per m² (ex BTW). De basisinspanning bedraagt € 14.433,- ex BTW. De kwaliteitsverbetering wordt binnen het westelijk woonveld gerealiseerd in de vorm van landschappelijke inpassing, zoals omschreven in paragraaf 2.3. In bijlage 3 bij de regels is het landschappelijke inpassingsplan opgenomen en als zodanig geborgd. In bijlage 23 bij deze toelichting is een overzicht opgenomen van de beoogde kosten van de landschappelijke inpassing van dit deel van het terrein.

De kosten voor de uitvoering van de landschappelijke inpassing van beide woonvelden bedraagt een veelvoud van de noodzakelijke 1% van de uitgifteprijs. Aan de 1%-eis van de kwaliteitsverbetering van het landschap wordt dan ook ruimschoots voldaan.

Conclusie

Voorgenomen ontwikkeling voldoet aan de regels voor kwaliteitsverbetering zoals is bedoeld in artikel 3.9 Iov N-B.

Toetsing aan artikel 5.3 Wijziging grenzen van werkingsgebieden

Hierna worden de regels van artikel 5.3 Iov N-B beschreven en vervolgens de ontwikkeling getoetst.

Regels

  • 1. Gedeputeerde Staten zijn bevoegd de in deze verordening opgenomen grenzen van een werkingsgebied te wijzigen als één of meer van de volgende gevallen zich voordoet:
    • a. de wijziging is nodig voor een doelmatige uitvoering;
    • b. de wijziging draagt bij aan het doel waarvoor het werkingsgebied is opgenomen;
    • c. de wijziging past binnen de uitgangspunten en basisprincipes van deze verordening;
    • d. er is sprake van kennelijke onjuistheden in de begrenzing;
    • e. de begrenzing van een gebied is niet langer in overeenstemming met een bestemmingsplan dat overeenkomstig artikel 3.8, derde lid, Wet ruimtelijke ordening is vastgesteld.
  • 2. n.v.t.
  • 3. n.v.t.
  • 4. In aanvulling op het eerste lid geldt voor een wijziging van de grenzen van Verstedelijking Afweegbaar dat:
    • a. dit past binnen de regionale afspraken als bedoeld in afdeling 5.4 Regionaal samenwerken;
    • b. dit nodig is vanwege een stedelijke ontwikkeling die tot een duidelijke verbetering van de stedenbouwkundige of landschappelijke kwaliteit leidt;
    • c. de gewenste uitbreidingsrichting aanvaardbaar is of de behoefte aan de uitbreidingsrichting is vervallen.
  • 5. n.v.t.

Toetsing

Met de ontwikkeling van 11 woningen dient het plangebied onderdeel te worden van het stedelijk bebouwd gebied. Hiervoor is een wijziging van de grens van het werkingsgebied 'landelijke kern', en daarmee tevens een wijziging van de grens van het werkingsgebied 'landelijk gebied' noodzakelijk. Het werkingsgebied 'verstedelijking afweegbaar' komt ter plaatse te vervallen. Voor ontwikkelingen gelegen binnen het nu geldende werkingsgebied 'verstedelijking afweegbaar' voert Gedeputeerde Staten de procedure voor herbegrenzing uit. Een nadere toetsing aan artikel 5.3 is niet verder noodzakelijk.

Conclusie

De procedure voor de wijziging van het werkingsgebied 'landelijke kern' ten behoeve van onderhavige ontwikkeling wordt conform de daarvoor geldende procedure uitgevoerd.

3.3.3 Ontwerp omgevingsverordening

De Ontwerp omgevingsverordening van de provincie Noord-Brabant heeft vanaf 9 april 2021 ter inzage gelegen. In de Ontwerp omgevingsverordening komt het werkingsgebied 'verstedelijking afweegbaar', zoals opgenomen in de Interim Omgevingsverordening, zie paragraaf 3.3.2, te vervallen. De vaststelling van de omgevingsverordening wacht op de inwerkingtreding van de Omgevingswet. Formeel vormt de Ontwerp omgevingsverordening nog geen toetsingskader. De gemeente krijgt meer ruimte om een eigen afweging te maken mits een afweging is gemaakt in een gebiedsvisie en de lagenbenadering is toegepast.

De gemeente stelt een omgevingsvisie op om in de toekomst ontwikkelingen nader af te kunnen wegen, zie paragraaf 3.4.2. De afweging voor de ontwikkeling aan de Deel heeft reeds plaatsgevonden en is met de provincie besproken. Het stedenbouwkundig plan is tot stand gekomen middels een zorgvuldige afweging tussen ontwikkelaar en gemeente. Hier liggen diverse onderzoeken aan ten grondslag. De lagenbenadering is in paragraaf 3.3.2 getoetst.

3.3.4 Brabantse Agenda Wonen

In het kader van een duurzaam verstedelijkingsbeleid en in lijn met (de principes van) de 'Ladder voor duurzame verstedelijking' is het van belang de mogelijkheden om het woningbouwprogramma in te zetten op binnenstedelijke (transformatie)locaties en voor het herbestemmen van leegstaand vastgoed optimaal te benutten. Of, zoals in het 'Bestuursakkoord Noord-Brabant 2015-2019' verwoord: “herbestemmen wordt meer en meer het nieuwe bouwen”. Vaak wordt in het licht van de transformatieopgaven gekeken naar wonen als nieuwe bestemming. Omdat er in veel andere vastgoedmarkten (per saldo) niet veel meer hoeft te worden toegevoegd aan vierkante meters of zelfs sprake is van krimp. Veelal zal het dan ook gaan om het transformeren van locaties naar een tweede leven, waarin wonen de boventoon voert. Hierbij zijn vooral de eerstkomende jaren (tot 2030) cruciaal. Urgentie is geboden. Samenhangend met de nog altijd flinke groei van het aantal huishoudens zal in deze periode immers het leeuwendeel van de benodigde woonruimte moeten worden gerealiseerd. Zoals uit onze actuele bevolkings- en woningbehoefteprognose blijkt, zal van de ca. 160 duizend toe te voegen woningen tot 2050, liefst driekwart (120 duizend woningen) voor 2030 moeten worden gerealiseerd. Na 2030 neemt de groei van de woningbehoefte sterk af.

Toetsing

Uit de Brabantse Agenda Wonen blijkt dat de provincie in lijn met de uitgangspunten van de ladder voor duurzame verstedelijking ruim baan wil geven bij herontwikkeling. Er moeten snel meer woningen worden gebouwd. Plannen voor herbestemming van leegstaande locaties of plannen voor inbreiding krijgen voorrang op uitbreidingslocaties. Het bouwen van 11 grondgebonden woningen op ruime kavels is echter niet mogelijk binnen bestaand stedelijk gebied of binnen bestaand vastgoed. Daarom is hier gekozen voor uitbreiding in een gebied waar verstedelijking afweegbaar is. De motivatie en afweging is nader omschreven in de ladderonderbouwing, zie paragraaf 3.2.3.

3.4 Gemeentelijk beleid

3.4.1 Structuurvisie Plus Gemert-Bakel 2011-2021

De structuurvisie is een instrument, dat door het gemeentebestuur wordt gehanteerd om veranderingen in de juiste richting te sturen. De structuurvisie is geen statisch eindbeeld, maar een beoordelingskader voor wensen en ontwikkelingen. Het doel is uiteindelijk oplossingen te creëren voor de vraagstukken die spelen in de gemeente op het gebied van wonen, werken, landbouw, recreëren, welzijn en natuur. De gewenste ontwikkelingen uit deze visie zijn als volgt samen te vatten: De gemeente streeft naar het duurzaam verbinden van mens, ruimte en middelen. Het plangebied is in de structuurvisie aangewezen als ontwikkellocatie. De locatie is gelegen binnen het stedelijk gebied, nabij een waterloop met recreatieve waarde.

De beoogde ontwikkeling raakt de volgende thema's uit de structuurvisie:

  • Wonen

Bij de planning van nieuwe (uitbreiding van) woonwijken worden zo veel mogelijk de natuurwaarden rondom de dorpen ontzien. Er wordt naar locaties gezocht waar met minimale aanpassingen woningen gerealiseerd kunnen worden.

afbeelding "i_NL.IMRO.1652.BPDeelZuid-ON01_0017.jpg"

Figuur 3.4.1 Structuurvisie Plus (plangebied globaal omcirkelt)

Toetsing

Binnen de kern Gemert is geen plek voor het toevoegen van 11 grondgebonden woningen op ruime percelen. Daarom is al in 2011 in de Structuurvisie+ Gemert-Bakel 2011-2021 gekozen voor locaties aansluitend aan de kern. De woningbehoefte en de woningvoorraad moeten op elkaar worden afgestemd. Er wordt naar locaties gezocht waar met minimale aanpassingen woningen gerealiseerd kunnen worden.

Het plangebied is in de Structuurvisie Plus gelegen binnen het stedelijk gebied. De locatie het Deel is bovendien als stedelijke ontwikkelingslocatie aangemerkt, zie rode stip op figuur 3.4.1. Hier is met minimale aanpassingen woningbouw mogelijk. Het planvoornemen sluit dan ook aan bij de uitgangspunten van het thema wonen uit de structuurvisie.

3.4.2 Omgevingsvisie Gemert-Bakel

De omgevingsvisie van de gemeente Gemert-Bakel is momenteel in voorbereiding. Op 22 april 2021 is het koersdocument door de raad vastgesteld, waarna een verdiepingsslag per kern zal worden uitgewerkt. In het koersdocument is als thematische visie voor de ontwikkeling van het grondbeleid opgenomen dat in elke kern woningen worden gebouwd. Binnen de kernen wordt zo veel mogelijk verdicht en dorpsranden worden beschermd of afgerond met nieuwe woonwijken. Lopende ontwikkelingen zoals de ontwikkeling van de Deel worden in de omgevingsvisie verankerd. Daarnaast betreft onderhavige ontwikkeling een afronding van de dorpsrand van Gemert.

3.4.3 Bestemmingsplan Woongebied Gemert 2011

Op 29 juni 2011 heeft de gemeenteraad van Gemert-Bakel het bestemmingsplan 'Woongebied Gemert 2011' vastgesteld. Het oostelijke woonveld ligt binnen dit bestemmingsplan en heeft volgens dit bestemmingsplan de bestemmingen 'Agrarisch', 'Groen', 'Water, 'Wonen' en 'Waarde - Archeologie 5', zie ook paragraaf 1.3.

Met de vaststelling van het bestemmingsplan 'Stedelijke gebieden, april 2013' op 1 juli 2013 is het bestemmingsplan 'Woongebied Gemert 2011' ter plaatse van het westelijke woonveld komen te vervallen. Het westelijk woonveld heeft volgens het geldende bestemmingsplan de bestemming 'Agrarisch', zie ook paragraaf 1.3. Tevens zijn het paraplubestemmingsplan 'Parkeren' en het paraplubestemmingsplan 'Tijdelijke huisvesting werknemers, Boerderijsplitsing, Uitbreiding oppervlak bijbehorende bouwwerken' (vastgesteld op 7 oktober 2021) van toepassing.

Toetsing

De bouw van woningen is in strijd met de bouw- en gebruiksregels van het bestemmingsplan 'Woongebied Gemert 2011' en de overige geldende bestemmingsplannen. Het toevoegen van woningen past niet binnen de geldende bestemming 'Agrarisch'. Om de beoogde ontwikkeling mogelijk te maken wordt dit bestemmingsplan opgesteld.

3.4.4 Nota Parkeernormen Gemert-Bakel 2017

Met de Nota Parkeernormen biedt de gemeente een toetsingskader voor het bepalen van de parkeerbehoefte van ruimtelijke plannen en ontwikkelingen in de gemeente Gemert-Bakel om daarmee de bereikbaarheid en leefbaarheid te waarborgen. Met behulp van dit toetsingskader moet worden voorkomen dat als gevolg van ruimtelijke ontwikkelingen of wijzigingen parkeerproblemen in de openbare ruimte ontstaan.

Om deze doelstelling te halen wordt uitgegaan van de volgende uitgangspunten:

  • 1. De parkeernormen moeten een positieve invloed hebben op de leefbaarheid en bereikbaarheid van de gemeente Gemert-Bakel;
  • 2. Elke initiatiefnemer van (bouw)plannen is verantwoordelijk voor het aanleveren van een berekening voor zijn eigen parkeeropgave en het realiseren van de eigen parkeeroplossing;
  • 3. Een bouwinitiatief of wijziging van een functie van een locatie mag geen parkeerproblemen in de openbare ruimte veroorzaken of vergroten;
  • 4. Er bestaat de mogelijkheid om maatwerk te leveren.

Op 5 juli 2018 heeft de gemeenteraad van Gemert-Bakel het bestemmingsplan 'Paraplubestemmingsplan Parkeren Gemert-Bakel' vastgesteld. De parkeernormen uit de nota zijn vertaald in dit bestemmingsplan en dienen toegepast te worden bij het verlenen van een omgevingsvergunning in afwijking van het ter plaatse geldende bestemmingsplan.

Toetsing

De toetsing aan de gemeentelijke parkeernormen vindt plaats in paragraaf 4.2. Hieruit blijkt met de beoogde ontwikkeling voldoende parkeerplaatsen gerealiseerd worden. De algemene parkeerregeling uit het paraplubestemmingsplan wordt overgenomen in de regels van dit bestemmingsplan.

3.4.5 Woonvisie Gemert-Bakel 2020 - 2024

De gemeente heeft een actuele woonvisie met bijbehorend uitvoeringsprogramma, zodat er gezorgd kan worden voor een goed functionerende woningmarkt en er prestatieafspraken gemaakt kunnen worden met Goed Wonen Gemert. De woonvisie 2020-2024 gaat vooral over de woningbouwaantallen en verdeling per doelgroepen.

Deze woonvisie dient daarmee als basis voor afspraken met Goed Wonen (prestatieafspraken) en ontwikkelaars (exploitatieovereenkomsten).

Tegelijk met de vaststelling van de woonvisie zijn ook de Verordening middenhuur en de Verordening sociale huur en koop vastgesteld. Deze instrumenten geven de gemeente de mogelijkheid om binnen een exploitatieovereenkomst de locatie en aantallen af te dwingen bij een ontwikkelaar wanneer anterieur hierover geen of onvoldoende afspraken kunnen worden gemaakt.

De verwachting is dat het aantal huishoudens de komende jaren toeneemt. Dat betekent dat er noodzaak is om woningen aan onze voorraad toe te voegen. De groei dient zeker 120 woningen per jaar te zijn om ‘gaten’ in de verkoop te voorkomen. Op dit moment is er onvoldoende harde en zachte plancapaciteit om de groei tot 2040 op te vangen. Hierbij is het wel zaak om de woningen voor de juiste doelgroepen te bouwen.

Het aantal kwetsbare groepen op de woningmarkt is de afgelopen jaren toegenomen, denk aan mensen met een zorgvraag, lage inkomens en eenoudergezinnen. Belangrijk is dat er een flexibel woonconcept wordt gecreëerd dat ook voor deze doelgroepen ingezet kan worden.

De gemeente wil betaalbare woningen voor iedere doelgroep en zet in op:

Starters/jongeren

Voor beide groepen zal meer aanbod moeten komen in de middenhuur (tussen 760 en 1000 euro /mnd) en betaalbare koop. In alle kernen wil de gemeente meer experimenteren met tijdelijke woonvormen en gemengde woonvormen, voor bijvoorbeeld jongeren en ouderen aansluitend bij de provinciale lijn nieuwe woonvormen en zelfbouw.


Ouderen

Ook onder ouderen is de behoefte het grootst naar grondgebonden koopwoningen, maar is er ook een vraag naar koopappartementen (betaalbaar en middelduur). Er is behoefte aan meer nultredenwoningen, zoals bungalows. Ook hier wordt ingezet op de segmenten middenkoop en middenhuur. En door tevens levensloopbestendig te bouwen, zodat deze woningen tegelijkertijd ook voor de jongeren beschikbaar zijn. Gemengd wonen van doelgroepen wordt niet als een belemmering gezien, maar als een kans, zeker in de kleine kernen.


Gezinnen

Op dit moment ziet de gemeente een groot aanbod in het dure segment > €370.000. Veel gezinnen zijn juist op zoek naar de middeldure huizen € 275.000 – € 370.000 Om deze groep goed te faciliteren zal ook deze categorie de komende jaren extra aandacht krijgen.

Toetsing

Met de ontwikkeling wordt in de vorm van zelfbouwkavels een aanbod van bijzondere woonvormen voor verschillende doelgroepen aangeboden. De ontwikkeling valt in de categorie dure koop. Wanneer bewoners doorstromen naar 'dure koop' biedt dit vaak ruimte in de categorie 'middelduur'. Met de beoogde ontwikkeling wordt voorzien in doorstroom.

3.4.6 Groennorm Gemert-Bakel

De gemeente Gemert-Bakel heeft de ambitie een groene gemeente te willen zijn. Het streven is om een goede balans te vinden tussen ruimte, economie en leefbaarheid. De te respecteren uitgangspunten zijn cultuurhistorie, natuurvriendelijkheid en duurzaamheid. Bij nieuwe ontwikkelingen wil de gemeente de kwaliteit en de kwantiteit van het ruimtebeslag garanderen en waarborgen. Bij initiatieven met het toevoegen van woningen wordt als tegenprestatie 75 m2 extra groen per woning verwacht. Deze groennorm van 75 m2 dient als richtgetal voor een benodigde hoeveelheid recreatief groen in stedelijk gebied. De groennorm wordt toegepast voor alle initiatieven die een uitbreiding van het bestand aan woningen en appartementen tot doel hebben. De toepassing van de groennorm is uitgewerkt in 'Uitwerking groennorm Gemert-Bakel'.

Per wooneenheid dient 'fysiek' 75 m2 groen met de eigenschap 'permanent openbaar toegankelijk' gerealiseerd te worden. Dit heeft vergaande consequenties voor de wijze van vormgeving en inrichting van het groen. Het te realiseren groen heeft door deze kwalificatie een blijvend, tenminste (semi-) openbaar karakter. Het groen hoeft niet per definitie eigendom van de gemeente te zijn (of te worden). Indien niet voorzien kan worden in de tegenprestatie is het mogelijk om een bedrag te storten in het Groenfonds. De mogelijkheid om geld te storten in het fonds dient als uitweg voor het geval dat een (gehele of gedeeltelijke) fysieke invulling van de groennorm onlogisch of onmogelijk is. Dit op basis van het beleid en afspraken tussen de gemeente en de initiatiefnemer.

Als de directe leefomgeving rondom een initiatieflocatie beschikt over voldoende groen, dan is het niet nodig om van het inbreidingsinitiatief een volwaardige fysieke invulling van de groennorm ter plekke van het initiatief te eisen. Een geschikt groen- of uitloopgebied is permanent (24/7) openbaar toegankelijk, kan bestaan uit recreatief ontsloten parken, groenzones, speelterreinen en trapveldjes. Ook het buitengebied kan geschikt zijn voor het maken van 'ommetjes' via openbare routes of zandpaden. De werkelijke loopafstand van 300 m (enkele afstand) naar omliggend groen of het buitengebied wordt als norm gehanteerd.

Toetsing

De beoogde ontwikkeling betreft de realisatie van 11 woningen, verdeeld over 8 woningen in het oostelijk woonveld en 3 woningen in het westelijk woonveld.

Oostelijk woonveld

Dit betekent dat conform de groennorm 8 x 75m2 = 600m2 extra groen gerealiseerd moet worden binnen het oostelijk woonveld. Binnen dit woonveld is voldoende groen aanwezig en daarnaast biedt het plangebied ruimte voor de realisatie van 'nieuw' groen.

Rondom de centrale insteek wordt 425 m2 aan openbaar groen gerealiseerd. Langs de zuidrand wordt 210 m2 openbaar groen gerealiseerd als uitbreiding van de bestaande groenzone. In totaal wordt er 635 m2 groencompensatie gerealiseerd. Dit is ruim boven de vereiste groencompensatie van 600 m2.

Middels een wandelpad wordt het bestaande groen direct bereikbaar vanuit de centrale insteek. De groenzone rond de Molenbroekseloop en de bereikbaarheid van deze groenzone wordt hiermee verder versterkt. Deze groenzone is in gebruik als 'park' en biedt wandelaars en de toekomstige bewoners directe recreatiemogelijkheden langs het water. De wandelpaden staan tevens in verbinding met het buitengebied. Hierdoor biedt de locatie tevens de mogelijkheid om 'ommetjes' in permanent openbaar toegankelijk gebied te maken.

afbeelding "i_NL.IMRO.1652.BPDeelZuid-ON01_0018.jpg"

Figuur 3.4.5.1 Realisatie groen oostelijk woonveld

Westelijk woonveld

De beoogde ontwikkeling binnen het westelijk woonveld betreft de realisatie van 3 woningen. Dit betekent dat conform de groennorm 3 x 75m2 = 225m2 extra groen gerealiseerd moet worden. Binnen het westelijk woonveld is voldoende groen aanwezig en daarnaast biedt het plangebied ruimte voor de realisatie van 'nieuw' groen. Er wordt een groenstrook van 377 m2 gerealiseerd. Daarnaast ligt aan de Deel een bloemrijke grasstrook van 130 m2, zie ligging in paragraaf 2.3.2.

Met de ontwikkeling wordt voldaan aan de groennorm van de gemeente Gemert-Bakel. Het groen sluit aan op omliggende groenstructuren. In dit bestemmingsplan wordt de realisatie van openbaar groen geborgd middels de bestemming 'Groen'.

afbeelding "i_NL.IMRO.1652.BPDeelZuid-ON01_0019.jpg"

Figuur 3.4.5.2 Realisatie groen westelijk woonveld

Hoofdstuk 4 Omgevingsaspecten

4.1 Waterhuishouding

Beleid

Waterschap Aa en Maas

In het gebied van het project is waterschap Aa en Maas de waterbeheerder. In het Waterbeheerplan beschrijft het waterschap haar strategische keuzes, de doelen voor het waterbeheer en de financiële consequenties daarvan. Het waterbeheer is gericht op het duurzaam beheren van het watersysteem, waarbij uitgegaan wordt van een watersysteembenadering. In het 'Waterbeheerplan 2016-2021 Werken met water, Voor nu en later' beschrijft het waterschap de hoofdlijnen van haar beleid uitgewerkt in verschillende thema's. Het huidige waterbeheerplan beschrijft de plannen voor de periode 2016 – 2021. De langetermijnstrategie uit het voorgaande beheerplan wordt voortgezet voor de verschillende thema's, zoals waterkwaliteitsverbetering, vermindering van de kans op wateroverlast en verdrogingsbestrijding.

Middels de Keur van Waterschap Aa en Maas is bepaald bij welke ontwikkelingen mitigerende maatregelen getroffen moeten worden. De Keur schrijft voor dat voor een toename van minder dan 2.000 m² verhard oppervlak geen mitigerende maatregelen nodig zijn. Deze mitigerende maatregelen zijn wel van toepassing bij elke toename van het verhard oppervlak, indien de locatie is gelegen in een keurbeschermingsgebied.

Gemeentelijk Watertakenplan

Op 14 december 2018 heeft de gemeenteraad van de gemeente Gemert-Bakel het nieuwe Gemeentelijk Watertakenplan (GWTP) vastgesteld. Dit wordt gebruikt om nu en in de toekomst aan de gemeentelijke zorgplichten te kunnen voldoen en als toetsingskader voor nieuwe ontwikkelingen. Bij ruimtelijke ontwikkelingen dient rekening te worden gehouden met dit waterbeleid.

Het veranderende klimaat en de verstedelijking brengen grote uitdagingen met zich mee. Regenbuien worden steeds extremer en komen vaker voor, met veel overlast en schade tot gevolg. Ook het vasthouden van het gewenste grondwaterpeil wordt moeilijker tijdens extreem lange droge of natte perioden. Omdat het aantal warme dagen toeneemt wordt hittestress ook een probleem, vooral in een bebouwde omgeving met weinig groen en veel verharding.

De zorg voor riolering draagt bij aan een gezonde leefomgeving. In het GWTP zijn de gemeente zorgplichten voor afvalwater, hemelwater (regenwater) en grondwater uitgewerkt. De kans op overlast dient hierbij te worden beperkt tot maatschappelijk aanvaardbare normen. Er dient rekening gehouden te worden met de verwerking van extreme neerslaghoeveelheden. Hemelwater moet zo lokaal mogelijk verwerkt worden. Dat betekent het volgende:

  • regenwater gebruiken daar waar het valt;
  • de inrichting van de openbare ruimte benutten voor de opvang van overtollig hemelwater;
  • streven naar efficiënte en robuuste (collectieve) voorzieningen;
  • communiceren met inwoners over de gezamenlijke verantwoordelijkheid die er is om wateroverlast te voorkomen.

Bij nieuwe ontwikkelingen moet rekening gehouden worden met het volgende:

  • 1. Waterbergingsvoorziening binnen een ontwikkeling;;
  • 2. Opnemen gebruiksregel waterbergingsvoorziening in bestemmingsplan;
  • 3. Aandachtspunten rondom lozing op de riolering;
  • 4. Aandachtspunten rondom aansluiting op de riolering.

Waterbergingsvoorziening binnen een ontwikkeling

Voor de waterberging die binnen een ontwikkeling wordt gerealiseerd gelden een aantal eisen. Eén van deze eisen is dat de waterbergingsvoorziening moet 60 liter met m2 verhard oppervlak probleemloos kunnen bergen. Daarnaast mag de afvoer uit een voorziening maximaal 2 l/s/ha zijn en moet binnen 5 dagen leeggelopen zijn.

Opnemen gebruiksregel waterbergingsvoorziening in bestemmingsplan

Voor (ver)nieuwbouw neemt de gemeente Gemert-Bakel bij bestemmingsplanwijzigingen een voorwaardelijke gebruiksregel in het bestemmingsplan op waarin de realisatie en instandhouding van een minimale hoeveelheid waterberging wordt voorgeschreven. Dit compenseert de versnelde afvoer van hemelwater naar de openbare ruimte of riolering vanaf verhard oppervlak. Alleen voor inbreidingslocaties is het mogelijk om af te wijken van deze gebruiksregel, als het redelijkerwijs niet mogelijk is om de vereiste waterberging binnen het plangebied te realiseren. Daarbij moet aangetoond worden dat de kans op wateroverlast niet toeneemt door het plan.

Aandachtspunten rondom lozing op de riolering

Om een doelmatige werking te kunnen garanderen hanteert de gemeente de volgende beleidsregels:

  • Al het huishoudelijk afvalwater op de vrijverval- en drukriolering wordt geaccepteerd.
  • Bestaande bedrijfsafvalwaterlozingen op de vrijvervalriolering worden geaccepteerd.
  • Bij nieuwe bedrijfsafvalwaterlozingen wordt getoetst of de voorziene nieuwe situatie de doelmatige werking van zuivering en transportsysteem belemmert (in hoeveelheid en in samenstelling).
  • Nieuwe (of bestaande) aansluitingen van bedrijven die de waterketen onevenredig zwaar belasten kunnen worden geweigerd.
  • Elk (bestaand én nieuw) bedrijf krijgt toestemming voor maximaal één aansluiting op de drukriolering.
  • Elk (bestaand én nieuw) bedrijf mag maximaal 0,5 m3 per uur afvalwater op de drukriolering lozen.
  • Bij een aanbod groter dan 0,5 m3 per uur dient het afvalwater op eigen terrein te worden gebufferd. Wanneer buffering niet mogelijk is, wordt onderzocht of de capaciteit van de drukriolering kan worden vergroot. De voortkomende uitvoeringskosten hiervan zijn voor de perceeleigenaar, van huisaansluiting tot lozingspunt in de vrijvervalriolering.
  • Lozing van hemelwater op drukriolering is niet toegestaan.

Aandachtspunten rondom aansluiting op de riolering

Voor het realiseren van de aansluiting op de gemeentelijke riolering moet rekening gehouden worden met een aantal voorwaarden. Zo dient het vuil water en (de overstort van) regenwater gescheiden te worden aangeboden op de perceelgrens. Daarnaast gelden nog een aantal technische eisen voor de rioolaansluiting.

Onderzoek

Het plangebied bevindt zich aan het Deel aan de noordzijde van Gemert. In de huidige situatie is het plangebied onbebouwd en in agrarisch gebruik. De locatie is geheel onverhard.

Bodem en grondwater

Het plangebied maakt geen deel uit van een waterwingebied of een grondwaterbeschermingsgebied. Volgens de Bodemkaart van Nederland bestaat de grond ter plaatse van het plangebied uit zwak siltig, matig fijn zand. De hoogste gemiddelde grondwaterstand (GHG) bevindt zich binnen het oostelijk woonveld op circa 75 centimeter onder het maaiveld. Het maaiveld ligt op circa 15,25 meter boven NAP. De hoogste gemiddelde grondwaterstand (GHG) binnen het westelijk woonveld bevindt zich op circa 1,20 meter onder het maaiveld. Het maaiveld ligt op circa 15,8 meter boven NAP.

Waterkwantiteit

Het plangebied wordt begrensd door een A-watergang aan de zuidzijde. De beschermingszone en profiel van vrije ruimte van deze A-watergang is te zien in figuur 4.1. Aan de noordzijde van het plangebied loopt, parallel aan de Deel een B-watergang. Conform de Keur van waterschap Aa en Maas gelden binnen de beschermingszones en profiel van vrije ruimte beperkingen voor bouwen en aanleggen ter bescherming van en om onderhoud aan de watergang mogelijk te houden.

afbeelding "i_NL.IMRO.1652.BPDeelZuid-ON01_0020.jpg"

Figuur 4.1.1 Uitsnede Legger Waterschap Aa en Maas met het plangebied rood omlijnd

Watersysteemkwaliteit en ecologie

Aan de zuidzijde van het plangebied ligt de Molenbroekseloop. Binnen het plangebied of in de nabije omgeving liggen geen oppervlaktewaterlichamen die zijn aangewezen vanuit de Kaderrichtlijn Water. Er bevinden zich ook geen natte ecologische verbindingszone zoals opgenomen in het (provinciale) Natuurnetwerk Nederland binnen of in de nabijheid van het plangebied.

Veiligheid en waterkeringen

In het plangebied lopen geen waterkeringen. Rondom keringen is een veiligheids- en beschermingszone aanwezig. Binnen deze zones gelden beperkingen voor bouwen en aanleggen om te voorkomen dat de stabiliteit, het profiel en/of de veiligheid wordt aangetast.

Afvalwaterketen en riolering

Het plangebied is momenteel onbebouwd en niet aangesloten op het rioolstelsel.

Toekomstige situatie oostelijk woonveld

In de toekomstige situatie worden in het oostelijk woonveld 8 woningen gerealiseerd. Voor de beoogde ontwikkeling is een watertoets, zie bijlage 4, en een infiltratie onderzoek, zie bijlage 5, uitgevoerd.

Bodem en grondwater

De voorgenomen ontwikkeling heeft geen gevolgen voor bodem en grondwater.

Waterkwantiteit

Om de kans op wateroverlast te verkleinen is het van belang om ervoor te zorgen dat het watersysteem optimaal functioneert en goed wordt onderhouden. Uit de watertoets blijkt dat in totaal (maximaal) 1.696 m2 verharding wordt toegevoegd. Dit betreft 1.120 m2 verharding in de vorm van woningen en bruggen en 779 m2 halfverharding in de vorm van paden, parkeerplaatsen en opritten. In het kader van de watertoets wordt 50% van de aanwezige halfverhardingen beschouwd als verhard oppervlak. Ten aanzien van het toekomstig verhard oppervlak wordt derhalve vooralsnog uitgegaan van een oppervlak van ± 1.305 m2. Uitgaande van de waterbergingsnorm van 60 liter per m2, waarbij halfverharding voor 50% wordt gerekend, dient volgens de watertoets 80 m3 waterberging te worden gerealiseerd, zie bijlage 4. Vervolgens is het infiltratieonderzoek uitgevoerd, zie bijlage 5. Op basis van het infiltratieonderzoek is het stedenbouwkundig plan aangepast. Uit het aangepaste stedenbouwkundig plan blijkt dat sprake is van een toevoeging van maximaal 2.563,5 m2 aan verhard oppervlak. Dit betekent een waterbergingsopgave van 154 m3. In het openbaar gebied wordt een bergingscapaciteit van 56 m3 in de vorm van wadi's gerealiseerd. Op de woonpercelen moet nog 154-56= 98 m3 worden geborgen. Dit betekent dat bij elke woning moet worden voldaan aan een waterbergingseis van 98 m3/8 = 12,25 m3 per kavel.

In de toekomstige situatie zal het schone hemelwater (zogenaamde hemelwaterafvoer; HWA) niet op het vuilwater (zogenaamde droogweerafvoer; DWA) worden aangesloten maar separaat binnen het plangebied worden verwerkt. Dit betekent dat bij de verdere planuitwerking water expliciet en op evenwichtige wijze in beschouwing wordt genomen en dat hemelwater op een duurzame wijze wordt verwerkt. De ontwikkeling zal daarmee hydrologisch neutraal zijn.

De woningen binnen het plangebied sluiten niet aan op een centrale voorziening. Het hemelwater van de woningen wordt volledig opgevangen op eigen terrein. In de regels van dit bestemmingsplan wordt per bouwperceel een bergingscapaciteit van 12,5 m3 geborgd. Hemelwater afkomstig van de overige verhardingen in het plan zal worden opgevangen in enkele wadi’s die zijn gelegen langs de centrale ontsluitingsweg. De verplichting van minimaal 60 mm per m2 is daarnaast in de regels geborgd. Bij het indienen van de omgevingsvergunning wordt hier nog aan getoetst.

Waterveiligheid

De in dit bestemmingsplan mogelijk gemaakte ontwikkeling heeft geen negatieve invloed op de waterveiligheid in de omgeving.

Watersysteemkwaliteit en ecologie

Ter voorkoming van diffuse verontreinigingen van water en bodem is het van belang om duurzame, niet-uitloogbare materialen te gebruiken, zowel gedurende de bouw- als de gebruiksfase.

Afvalwaterketen en riolering

Het vuilwater (zogenaamde droogweerafvoer; DWA) zal in de toekomstige situatie worden aangesloten op het bestaande rioleringsstelsel in de omgeving. De mogelijkheden en wijze van aansluiting zal in overleg met de gemeente besproken moeten worden. Voor het toekomstige aanbod wordt uitgegaan van een toename van circa 2,4 m³/dag.

Waterinfiltratie

Uit het infiltratieonderzoek blijkt dat de locatie plaatselijk net wel en plaatselijk net niet geschikt is voor de beoogde infiltratiecapaciteit. De bodem wordt indien noodzakelijk op een locatie waar deze net niet geschikt is plaatselijk vervangen. Daarmee wordt de bodem geschikt voor het infiltreren van hemelwater in een goed waterdoorlatende ondergrond.

Toekomstige situatie westelijk woonveld

In de toekomstige situatie worden binnen het westelijk woonveld 3 woningen gerealiseerd. Voor de beoogde ontwikkeling is een watertoets, zie bijlage 6 uitgevoerd.

Bodem en grondwater

De voorgenomen ontwikkeling heeft geen gevolgen voor bodem en grondwater.

Waterkwantiteit

Om de kans op wateroverlast te verkleinen is het van belang om ervoor te zorgen dat het watersysteem optimaal functioneert en goed wordt onderhouden. In totaal wordt (maximaal) 1.040 m2 verharding toegevoegd. Uitgaande van de waterbergingsnorm van 60 liter per m2 dient 63 m3 waterberging te worden gerealiseerd (21 m3 per perceel). In de regels is per bouwperceel een bergingscapaciteit van minimaal 12,5 m3 opgenomen. De verplichting van minimaal 60 mm per m2 is tevens in de regels geborgd. Bij het indienen van de omgevingsvergunning wordt hier nog aan getoetst.

In de toekomstige situatie zal het schone hemelwater (zogenaamde hemelwaterafvoer; HWA) niet op het vuilwater (zogenaamde droogweerafvoer; DWA) worden aangesloten maar separaat binnen het plangebied worden verwerkt. Dit betekent dat bij de verdere planuitwerking water expliciet en op evenwichtige wijze in beschouwing wordt genomen en dat hemelwater op een duurzame wijze wordt verwerkt. De ontwikkeling zal daarmee hydrologisch neutraal zijn.

Het hemelwater kan zowel onder- als bovengronds worden opgevangen. Om de wateropgave van 21 m3 per perceel ondergronds met kratten te kunnen bergen zijn in totaal 49 kratten benodigd. Om 49 kratten aan te leggen is een oppervlak benodigd van circa 35 m2.

Om het hemelwater op een duurzame manier te verwerken (hydrologisch neutraal) wordt geadviseerd om in het toekomstig tuinontwerp niet te veel verharding aan te brengen en bijvoorbeeld te werken met half-verhardingen. Het toepassen van half-verhardingen zorgt ervoor dat het regenwater makkelijk kan infiltreren. Op deze manier kan het grondwater worden aangevuld. Voorbeelden hiervan zijn de toepassing van waterpasserende verharding of halfverharding (grind, schelpen, steenslag).

Daarnaast kan de tuin zodanig ontworpen worden dat het regenwater gemakkelijk naar het groen kan stromen door bijvoorbeeld plantvakken lager te plaatsen en deze zonder opstaande rand aan te leggen. Door in het tuinontwerp te werken met hoogteverschillen kan tijdens zware regenbuien tijdelijk water worden vastgehouden in de onverharde lager gelegen delen. In deze delen kan het regenwater geleidelijk infiltreren in de bodem. Bij het ontwerp dient rekening gehouden te worden dat de lager gelegen delen op afstand van zowel de woning als naastgelegen percelen zijn gelegen. Afstroming van hemelwater richting gebouwen en/of aangrenzende percelen dient voorkomen te worden.

Waterveiligheid

De met dit plan mogelijk gemaakte ontwikkeling heeft geen negatieve invloed op de waterveiligheid in de omgeving.

Watersysteemkwaliteit en ecologie

Ter voorkoming van diffuse verontreinigingen van water en bodem is het van belang om duurzame, niet-uitloogbare materialen te gebruiken, zowel gedurende de bouw- als de gebruiksfase.

Afvalwaterketen en riolering

Het vuilwater (zogenaamde droogweerafvoer; DWA) zal in de toekomstige situatie worden aangesloten op het bestaande rioleringsstelsel in de omgeving. De mogelijkheden en wijze van aansluiting zal in overleg met de gemeente besproken moeten worden. Voor het toekomstige aanbod wordt uitgegaan van een toename van circa 0,9 m³/dag.

Conclusie

Het aspect waterhuishouding vormt geen belemmering voor de geplande ontwikkeling.

4.2 Verkeersaspecten

Beleid en normstelling

Op het gebied van verkeer en vervoer bestaat geen specifieke wetgeving die relevant is voor de voorgenomen activiteit. Wel dient in het kader van het ruimtelijk plan dat de activiteit mogelijk maakt, te worden onderbouwd dat het geheel voldoet aan een goede ruimtelijke ordening. Dit houdt onder meer in dat er voldoende parkeergelegenheid aanwezig dient te zijn en de eventuele verkeerstoename niet leidt tot knelpunten in de verkeersafwikkeling. De parkeerbehoefte wordt berekend op basis van de gemeentelijke parkeernormen (Nota Parkeernormen Gemert-Bakel 2017). Conform dit beleid wordt de bovenkant van de bandbreedte aangehouden. Voor het te hanteren kencijfer / parkeernorm wordt een ligging in het 'rest bebouwde kom' aangehouden, de locatie heeft een stedelijkheidsgraad van 'weinig stedelijk'.

Onderzoek

Ontsluiting

In de beoogde situatie wikkelt het verkeer van de twee woonvelden af via de Deel. Dit verkeer verdeelt zich richting het noorden en het zuiden. Richting het noorden wordt de ontwikkeling voornamelijk ontsloten via de route Deel-Boekelseweg naar de provinciale N605 en vanaf daar naar de A50 of A73 verder in noordelijke richting. Richting het zuiden wordt voornamelijk ontsloten via de route Deel-Kruiseind-Komweg-Westom naar de provinciale weg N272 in de richting van Eindhoven/Helmond. Van de totale intensiteiten zal naar verwachting 20% binnen de kern blijven. Van de overige intensiteiten zal ongeveer 50% via het noorden gaan richting de A50 en de overige 50% via het zuiden richting de N615.

afbeelding "i_NL.IMRO.1652.BPDeelZuid-ON01_0021.jpg"

Figuur 4.2.1 Verkeersafwikkeling de Deel

Het verkeer vanaf de Deel gaat op de Boekelseweg (aan de oostzijde) en op de Kruiseind (aan de zuidwestzijde) op in het heersende verkeersbeeld. Dit is het geval op het moment dat het aan- en afrijdende verkeer zich door zijn snelheid en rij- en stopgedrag nog niet, dan wel niet meer onderscheidt van het overige verkeer dat zich op de betrokken weg bevindt. Op grond van jurisprudentie worden de gevolgen voor het milieu van het af- en aanrijdend verkeer niet meer aan het in werking zijn van de inrichting toegerekend wanneer dit verkeer kan worden geacht te zijn opgenomen in het heersende verkeersbeeld.

Parkeren

Op basis van het beoogde programma is de parkeerbehoefte berekend volgens de gemeentelijke parkeernormen (Nota Parkeernormen Gemert-Bakel 2017). Binnen het plangebied worden 9 vrijstaande woningen, en één tweekapper (met 2 woningen) gerealiseerd. Voor een vrijstaande koopwoning in 'rest bebouwde kom' geldt een parkeernorm van 2,3 parkeerplaatsen per woning, inclusief 0,3 parkeerplaatsen voor bezoekers. Voor een twee-onder-één kap koopwoning in 'rest bebouwde kom' geldt een parkeernorm van 2,1 parkeerplaatsen per woning, inclusief 0,3 parkeerplaatsen voor bezoekers.

De totale parkeerbehoefte bedraagt 25 (2,3x9 + 2,1x2) parkeerplaatsen. Op de Deel zijn geen parkeervoorzieningen aanwezig. Evenmin is er ruimte beschikbaar om deze te realiseren. De parkeerplaatsen worden binnen het plangebied gerealiseerd.

In het oostelijk woonveld worden bij elke woning 2 parkeerplaatsen op eigen terrein gerealiseerd. Voor bezoekers worden daarnaast 5 parkeerplaatsen in de openbare ruimte gerealiseerd. In het oostelijk woonveld zijn in totaal 21 parkeerplaatsen aanwezig.

In het westelijk woonveld wordt per woning voorzien in ten minste 3 parkeerplaatsen op eigen erf. De opritten van de kavels bevat daartoe voldoende ruimte. In het westelijk woonveld zijn in totaal 9 parkeerplaatsen aanwezig.

Met de aanwezigheid van 30 parkeerplaatsen wordt ruimschoots voldaan aan de invulling van de parkeerbehoefte en worden geen knelpunten verwacht aangaande het parkeren. In paragraaf 2.2.4 is de wijze van parkeren binnen het plangebied nader beschreven.

Verkeersgeneratie

Met kencijfers van CROW publicatie 381 kan voor verschillende functies de verkeersgeneratie bepaald worden. De kencijfers zijn gerelateerd aan de ligging van de planontwikkeling en de mate van stedelijkheid van het gebied. De betreffende ontwikkeling is gelegen in het gebied 'rest bebouwde kom'. Deze gebiedsindeling is afkomstig van Nota Parkeernormen Gemert-Bakel 2017. Voor de mate van stedelijkheid kan het gebied op basis van de adressendichtheid gekarakteriseerd worden als 'weinig stedelijk'. Op basis van het autobezit binnen de gemeente Gemert-Bakel in vergelijking met die in andere gemeenten met eenzelfde stedelijkheidsgraad, kan worden uitgegaan van het gemiddelde van de door het CROW gegeven bandbreedte.

Voor de vrijstaande woningen geldt een verkeersgeneratie van 8,2 mvt/etmaal per woning, inclusief bezoekers. Voor twee-onder-één-kap woningen betreft dit 7,8 per woning. Dat komt voor 9 vrijstaande woningen en 2 twee-onder-één-kap woningen neer op 90 mvt/etmaal. Dit betreft de verkeersgeneratie van de volledige ontwikkeling van dit bestemmingsplan.

De omvang van de verkeersgeneratie en het feit dat het verkeer zich daarnaast over verschillende wegen verdeeld leidt op de verschillende routes tot een dusdanig lage toename van de verkeersintensiteit dat dit na realisatie van de ontwikkeling niet zal leiden tot een verslechtering van de verkeersveiligheid en/of de verkeersafwikkeling.

Conclusie

Ten aanzien van de verkeersaspecten zijn er geen belemmeringen voor de beoogde ontwikkeling.

4.3 Archeologie

Beleid en normstelling

Sinds 1 juli 2016 is de Erfgoedwet van kracht. Het doel van deze wet is te voorkomen dat archeologische waarden uit het verleden verloren gaan. In deze wet zijn de gemeenten verantwoordelijk voor het beheer van het bodemarchief binnen hun grondgebied. Voor een goed beheer van dit bodemarchief gebruikt de gemeente een archeologische beleidskaart. De archeologische beleidskaart geeft een gemeentebreed overzicht van bekende en te verwachten archeologische waarden. De kaart maakt inzichtelijk waar en bij welke ruimtelijke ingrepen een archeologisch onderzoek verplicht is en wordt als toetsingskader gebruikt voor ruimtelijke procedures.

Archeologiebeleid Gemert-Bakel

Op basis van de huidige wetgeving zijn de gemeenten in Nederland verantwoordelijk voor het behoud van het archeologisch bodemarchief. Omdat ruimtelijke ingrepen gevolgen kunnen hebben voor dit bodemarchief, moeten gemeenten bij de besluitvorming archeologie als volwaardige factor meenemen in de belangenafweging. Om dit op een verantwoorde en transparante wijze te kunnen doen is gemeentelijk archeologiebeleid wenselijk. De gemeente beschikt over een vastgestelde beleidsplan archeologie, datum vaststelling 28 januari 2016.

Onderzoek

In het voor het oostelijk woonveld geldende bestemmingsplan 'Woongebied Gemert 2011' is de dubbelbestemming 'Waarde - Archeologie 5' opgenomen. In het voor het westelijk woonveld geldende bestemmingsplan 'Stedelijke gebieden, april 2013' is eveneens de dubbelbestemming 'Waarde - Archeologie 5' opgenomen, zie paragraaf 1.3. Het beleidsplan archeologie van de gemeente is in 2016 vastgesteld, na vaststelling van deze bestemmingsplannen, en vormt daarmee het toetsingskader voor deze locatie. Op basis van het beleidsplan archeologie geldt een middelhoge archeologische verwachting. Binnen de gebieden met een middelhoge verwachting mogen alleen bouwwerken gebouwd worden tot een oppervlakte van maximaal 2.500 m2 of een oppervlakte van meer dan 2.500 m2, mits niet dieper dan 0,40 meter.

Oostelijk woonveld

Het beoogde planvoornemen in het oostelijk woonveld voorziet in bodemingrepen groter dan 2.500 m2 en dieper dan 0,40 meter. Een archeologisch onderzoek wordt noodzakelijk geacht. Het inventariserend veldonderzoek door middel van proefsleuven is als bijlage 7 bij deze toelichting opgenomen.

Tijdens het proefsleuvenonderzoek is een oppervlakte van in totaal 518 m2 onderzocht; 0,8 % van het onderzoeksgebied. Daarbij zijn vooral greppels aangetroffen. Deze greppels zullen deels perceelsgrenzen hebben gemarkeerd en deels tevens ter ontwatering van het gebied hebben gediend. Greppels/grachten die kunnen worden toegeschreven aan de omgrachting van de hoeve Beverdijk zijn niet herkend, hoewel greppel 6.003 mogelijk richting deze gracht heeft afgewaterd.

Binnen het onderzoeksgebied aangetroffen sporen worden toegeschreven aan één vindplaats, landgebruik uit de Nieuwe Tijd. Deze vindplaats is bovengronds niet zichtbaar. Op het gebied van inhoudelijke kwaliteit scoort de vindplaats laag. De gedefinieerde vindplaats scoort niet hoog genoeg om deze als behoudenswaardig te classificeren.

Westelijk woonveld

Het beoogde planvoornemen in het westelijk woonveld voorziet in bodemingrepen groter dan 2.500 m2 en dieper dan 0,40 meter. Een archeologisch onderzoek wordt noodzakelijk geacht. Het inventariserend veldonderzoek door middel van proefsleuven is als bijlage 8 bij deze toelichting opgenomen.

Uit het onderzoek blijkt dat binnen het plangebied een niet-behoudenswaardige vindplaats is aangetroffen. Het gaat om off-site sporen en subrecente greppels die geen toevoeging hebben op de cultuurhistorie van Gemert. Vervolgonderzoek wordt niet noodzakelijk geacht. Het gebied kan vrij gegeven worden en de dubbelbestemming 'Waarde - Archeologie 5' kan te plaatse komen te vervallen.

Conclusie

Uit de onderzoeken blijkt dat binnen het plangebied geen behoudenswaardige plaatsen aanwezig zijn. De beoogde ontwikkeling vormt dan ook geen belemmering voor het aspect archeologie. De dubbelbestemming 'Waarde - Archeologie 5' komt te vervallen.

4.4 Cultuurhistorie

Beleid en normstelling

Goede ruimtelijke ordening betekent dat er een integrale afweging plaatsvindt van alle belangen die effect hebben op de kwaliteit van de ruimte. Een van die belangen is de cultuurhistorie. Per 1 januari 2012 is in het kader van de modernisering van de monumentenzorg (MOMO) in het Besluit ruimtelijke ordening van het rijk opgenomen dat gemeenten bij het maken van bestemmingsplannen rekening moeten houden met cultuurhistorische waarden. Hiertoe dient middels bestudering van kaarten bepaald te worden of binnen (de invloedsfeer van het plangebied) Rijksmonumenten (historische gebouwen, sluizen, tuinbeelden en grafstenen), Archeologische Rijksmonumenten, Werelderfgoederen en beschermde stads- en dorpsgezichten aanwezig zijn. Ook het voorkomen van gebieden met landschappelijke waarden en beschermde natuurgebieden (Natura 2000-gebieden, Wetlands, Beschermde Natuurmonumenten, Nationale Parken, Nationale Landschappen en de Ecologische Hoofdstructuur dient bepaald te worden.

Onderzoek

De locatie ligt in een behoudens waardig oud akkercomplex, zie figuur 4.4.1. Deze beschermingswaardige oude akkercomplexen zijn in het bestemmingsplan aangeduid met de aanduiding Oude Akker. Met deze aanduiding worden de oude akkercomplexen beheerd en behouden. Daarbij is beheer niet alleen conservatief bedoeld, maar juist ook in termen van versterking en ontwikkeling.

afbeelding "i_NL.IMRO.1652.BPDeelZuid-ON01_0022.jpg"

Figuur 4.4.1 Oude Akkers, plangebied globaal in blauw (gemeente Gemert-Bakel, 2016)

Nabij het plangebied is de Deel, volgens de provinciale cultuurhistorische waardenkaart, aangemerkt als historische weg van hoge waarde. In de omgeving van het plangebied zijn enkele monumentale bouwwerken gelegen, zoals historische boerderijen en de molen De Bijenkorf, zie figuur 4.4.2. Het oostelijk woonveld valt volledig buiten het blikveld van de molen, het westelijk woonveld valt wel binnen dit blikveld. Binnen het plangebied zijn geen objecten of structuren van historische waarde aanwezig. De Deel blijft ongewijzigd. De nieuwe bebouwing is een aanvulling op het aanwezige bebouwingslint aan deze historische weg en het bebouwingscluster rond de Deel. Het historische karakter van de Deel wordt met de ontwikkeling versterkt.

afbeelding "i_NL.IMRO.1652.BPDeelZuid-ON01_0023.png"

Figuur 4.4.2 Cultuurhistorische waardenkaart (provincie Noord-Brabant)

Oostelijk woonveld

Vanwege de beoogde ontwikkeling binnen het oude akker is een cultuurhistorisch onderzoek uitgevoerd, ter plaatse van het oostelijk woonveld, zie bijlage 9. Uit het cultuurhistorisch onderzoek is naar voren gekomen dat het perceel eeuwenlang onderdeel is geweest van het naastgelegen boerenbedrijf, de hoeve 'Ter Beverdijk'. Alhoewel de laatste boerderij van die hoeve in 2011/2012 is vervangen door een modern woonhuis dat in vorm alleen in de verte aan de boerderijgeschiedenis refereert, kent het perceel nog enige waarde als ondergeschikt huisperceel van deze hoeve. Fysiek zijn er binnen het perceel echter nauwelijks nog cultuurhistorisch waardevolle resten aanwezig. Alleen een bomenrij op de westelijke perceelsgrens vertegenwoordigt in dat opzicht nog enige waarde, vanwege de markering van een oude perceelsgrens. Het gebied als geheel in zijn ruimtelijke context vertegenwoordigt nog een gemiddelde/middelmatige waarde vanwege zijn betekenis in het ensemble met de boerderijplaats en binnen de structuur van het gehucht. Belangrijk nog is te vermelden dat het plangebied weliswaar akkerland is geweest, maar door zijn rol ten aanzien van de naastgelegen boerderij geen onderdeel van een open akker was. Op basis van deze bevindingen wordt geconcludeerd dat de bouwplannen zoals deze nu zijn voorgelegd, nauwelijks afbreuk doen aan de aanwezige cultuurhistorische waarden. Door de gekozen bouwvolumes en de plaatsing ervan wordt rekening gehouden met een ondergeschiktheid aan het naastgelegen bouwvolume van Deel 97-99.

Uit het onderzoek blijkt verder dat door alle aantastingen in en rond het plangebied er te weinig argumenten zijn om op deze plek op basis van cultuurhistorische gronden van nieuwe bebouwing af te zien.

In het te ontwikkelen plan is op veel punten rekening gehouden met de historische structuur van het gebied en de aanwezige waarden. De verkaveling van de ontwikkeling sluit aan bij de oude structuren binnen het perceel en maakt gebruik van de huidige groene inpassing. De beoogde inrichting met hoofdvolumes aan de Deel en bijgebouwen (schuurwoningen) past binnen het landschap. In het stedenbouwkundig- en beeldkwaliteitsplan is dit nader uitgewerkt, zie bijlage 1.

Westelijk woonveld

Mede vanwege de ligging van de beoogde ontwikkeling binnen het oude akker en de historische context van de directe omgeving is in december 2021 een cultuurhistorisch onderzoek voor het westelijk woonveld uitgevoerd, zie bijlage 10. In de loop van de tijd is een groot deel van het akkercomplex waartoe het plangebied behoort onder de uitbreidingswijken van Gemert verdwenen. Hoewel het plangebied nog altijd een agrarisch gebruik (weiland of akker) kent, is de relatie met de omringende gronden hierdoor wel verdwenen. Uit het onderzoek blijkt dat de cultuurhistorische karakteristiek van het plangebied en de directe omgeving een groot aantal wijzigingen heeft ondergaan, waardoor het gebied geen bijzondere waarde meer kent. Dit wordt onderschreven door het onderzoek naar de oude akkers dat in 2016 is uitgevoerd. Er kan, meer specifiek, zeker niet meer worden gesproken van een waardevolle oude akker. De bouw van drie woningen langs de Deel maakt deel uit van een historische ontwikkeling van verdichting van de bestaande bebouwingslinten, in dit geval van Deel.

Het westelijk woonveld valt binnen het blikveld van de molen De Bijenkorf, de beoogde bebouwing vormt echter geen belemmering voor deze molen, zie paragraaf 4.7.

Als zodanig zijn er vanuit cultuurhistorisch oogpunt geen bezwaren tegen de geplande ontwikkeling. In het huidige plan wordt bovendien zorg gedragen om de ontwikkeling in te passen in de bestaande historische karakteristiek door de percelen te omgeven door een beukenhaag en langs de Deel bomen aan te planten.

Conclusie

Ten aanzien van het aspect cultuurhistorie zijn er geen belemmeringen voor de beoogde ontwikkeling.

4.5 Bodemkwaliteit

Beleid en normstelling

Op grond van artikel 3.1.6 van het Bro dient in verband met de uitvoerbaarheid van een plan rekening te worden gehouden met de bodemgesteldheid in het plangebied. Bij functiewijzigingen dient te worden bekeken of de bodemkwaliteit voldoende is voor de beoogde functie en moet worden vastgesteld of er sprake is van een saneringsnoodzaak. In de Wet bodembescherming is bepaald dat indien de desbetreffende bodemkwaliteit niet voldoet aan de norm voor de beoogde functie, de grond zodanig dient te worden gesaneerd dat zij kan worden gebruikt door de desbetreffende functie (functiegericht saneren). Voor een nieuw geval van bodemverontreiniging geldt, in tegenstelling tot oude gevallen (voor 1987), dat niet functiegericht maar in beginsel volledig moet worden gesaneerd. Nieuwe bestemmingen dienen bij voorkeur te worden gerealiseerd op bodem die geschikt is voor het beoogde gebruik.

Onderzoek

Met de beoogde ontwikkeling is er sprake van een functiewijziging van agrarisch naar wonen.

Oostelijk woonveld

Op het oostelijk woonveld is een verkennend bodemonderzoek uitgevoerd om de kwaliteit naar de bodem vast te stellen, dit onderzoek is in bijlage 11 te vinden. Uit het onderzoek blijkt dat er zintuigelijk in de bodem geen bodemvreemde materialen zijn aangetroffen. Ter plaatse is in de bovengrond lokaal een licht verhoogde gehalte aan PAK gemeten. In het grondwater zijn diverse parameters in licht verhoogde concentraties gemeten. Nikkel is sterk verhoogd gemeten. De aangetroffen verontreinigingen komen overeen met in de omgeving eerder uitgevoerde onderzoeken. Vervolgonderzoek wordt niet zinvol geacht. Op basis van de vastgestelde milieuhygiënische bodemkwaliteit wordt geacht dat geen belemmeringen aanwezig zijn voor het huidige en toekomstige gebruik van de locatie. Wel wordt geadviseerd om het grondwater niet te gebruiken als drinkwater of water voor veedrenking. Van gebruik van het grondwater is geen sprake, zie paragraaf 4.1.

Westelijk woonveld

Op het westelijk woonveld is een verkennend bodemonderzoek uitgevoerd om de kwaliteit naar de bodem vast te stellen, dit onderzoek is in bijlage 12 te vinden. Uit het onderzoek blijkt dat er zintuigelijk in de bodem geen bodemvreemde materialen zijn aangetroffen. De bovengrond is ter plaatse van het oostelijk terreindeel licht verontreinigd met minerale olie. In de ondergrond zijn geen verontreinigingen aangetoond. Het grondwater is licht verontreinigd met barium. Gelet op de aard en mate van verontreiniging, bestaat er géén reden voor een nader onderzoek en bestaan er met betrekking tot de milieuhygiënische kwaliteit van de bodem géén belemmeringen voor de functiewijziging en nieuwbouw op de onderzoekslocatie. Het grondwater is niet geschikt als drinkwater of water voor veedrenking. Van gebruik van het grondwater is geen sprake, zie paragraaf 4.1.

Conclusie

De bodemkwaliteit vormt geen belemmering voor de geplande ontwikkeling.

4.6 Wegverkeerslawaai

Beleid en normstelling

Langs alle wegen - met uitzondering van 30 km/uur-wegen en woonerven - bevinden zich op grond van de Wet geluidhinder (Wgh) geluidzones waarbinnen de geluidhinder vanwege de weg getoetst moet worden. De breedte van de geluidzone is afhankelijk van het aantal rijstroken en van binnen- of buitenstedelijke ligging. De geluidbelasting wordt berekend aan de hand van de Europese dosismaat Lden (L day evening night). Deze dosismaat wordt weergegeven in dB. Deze waarde vertegenwoordigt het gemiddelde geluidsniveau over een etmaal.

Nieuwe situaties

Voor de geluidbelasting aan de buitengevels van woningen en andere geluidgevoelige bestemmingen binnen de wettelijke geluidzone van een weg geldt een voorkeursgrenswaarde van 48 dB. In bepaalde gevallen is vaststelling van een hogere waarde mogelijk. Deze hogere grenswaarde mag de maximaal toelaatbare hogere waarde niet te boven gaan. De maximale ontheffingswaarde in onderhavige situaties bedraagt 63 dB (binnenstedelijk gelegen woning).

Aftrek ex artikel 110g Wgh

De in de Wgh genoemde grenswaarden aan de buitengevels ten aanzien van wegverkeerslawaai betreffen waarden inclusief aftrek op basis van artikel 110g Wgh. Dit artikel houdt in dat voor het wegverkeer een aftrek mag worden gehanteerd welke anticipeert op het stiller worden van het wegverkeer in de toekomst door innovatieve maatregelen aan de voertuigen. De toegestane aftrek bedraagt: 5 dB voor wegen waarvoor de representatief te achten snelheid van lichte motorvoertuigen minder dan 70 km/u bedraagt. Voor wegen met een representatief te achten snelheid van 70 km/u of meer is de hoogte van de aftrek afhankelijk van de geluidbelasting exclusief aftrek. Bij een geluidbelasting van 56 dB en 57 dB mag een aftrek toegepast worden van respectievelijk 3 dB en 4 dB. Bij overige geluidbelastingen wordt een aftrek van 2 dB toegepast. De aftrek mag alleen worden toegepast bij toetsing van de geluidbelastingen aan de normstellingen uit de Wgh. In voorliggend onderzoek is gebruik gemaakt van een aftrek van 5 dB.

Onderzoek

Met het planvoornemen worden geluidgevoelige functies, namelijk woningen, gerealiseerd.

Oostelijk woonveld

Het oostelijk woonveld is gelegen binnen de wettelijke geluidzone van wegen (Vondellaan en Boekelseweg). Vanwege de ligging van deze geluidgevoelige functies is akoestisch onderzoek naar wegverkeerslawaai uitgevoerd, zie bijlage 13.

Uit dit onderzoek blijkt dat de wettelijke voorkeursgrenswaarde ten gevolge van het wegverkeer op de Boekelseweg en de Vondellaan niet wordt overschreden. Daarnaast wordt de richtwaarde ten gevolge van het verkeer op de Deel niet overschreden. De woningen zullen in een aanvaardbaar akoestisch klimaat gerealiseerd worden.

Westelijk woonveld

Het westelijk woonveld is niet gelegen binnen de wettelijke geluidzone van wegen. De woningen zijn op korte afstand gelegen van de niet-gezoneerde wegen Deel, Louis Couperusstraat, Deelvoort, Arthur van Schendelstraat en Gorterstraat. In het kader van een goede ruimtelijke ordening is vanwege de ligging van de geluidgevoelige functies akoestisch onderzoek naar wegverkeerslawaai uitgevoerd, zie bijlage 14.

Uit het onderzoek blijkt dat de geluidsbelasting op de nieuw te bouwen woningen ten hoogste 42 dB bedraagt. Er vindt geen overschrijding van de ten hoogste toelaatbare geluidsbelasting van 48 dB plaats. De woningen zullen in een aanvaardbaar akoestisch klimaat gerealiseerd worden.

Conclusie

Het aspect wegverkeerslawaai staat de bouw van deze woningen niet in de weg.

4.7 Milieuhinder en bedrijven

Beleid en normstelling

In het kader van een goede ruimtelijke ordening is het van belang dat bij de aanwezigheid van bedrijven in de omgeving van milieugevoelige functies zoals woningen:

  • een goed woon- en leefmilieu kan worden gegarandeerd ter plaatse van de woningen;
  • rekening wordt gehouden met de bedrijfsvoering en milieuruimte van de eventueel in de omgeving aanwezige bedrijven/inrichtingen.

Om in de bestemmingsregeling de belangenafweging tussen bedrijvigheid en woningen in voldoende mate mee te nemen, wordt in dit plan gebruikgemaakt van de VNG-publicatie Bedrijven en milieuzonering (editie 2009). In deze publicatie is een lijst opgenomen waarin de meest voorkomende bedrijven en bedrijfsactiviteiten zijn gerangschikt naar mate van milieubelasting. Voor elke bedrijfsactiviteit is de maximale richtafstand ten opzichte van milieugevoelige functies aangegeven op grond waarvan de categorie-indeling heeft plaatsgevonden.

Voor de beoordeling is het van belang om te weten of het gebied getypeerd kan worden als een rustige woonwijk of een gemengd gebied. Een gemengd gebied wordt als volgt getypeerd: “Een gebied met een matige tot sterke functiemenging. Direct naast woningen komen andere functies voor, zoals winkels, horeca en kleine bedrijven".

Onderzoek

In de beoogde situatie worden 11 woningen gerealiseerd. Hiermee wordt een milieugevoelige functie opgericht en moet worden getoetst aan de richtafstanden zoals vermeld in de VNG-brochure. In het gebied zijn voornamelijk woningen en agrarische en woonbestemmingen gevestigd, waardoor de omgeving getypeerd kan worden als 'rustige woonwijk'.

Oostelijk woonveld

Verkooppunt motorbrandstoffen

Ten oosten van het plangebied bevindt zich een verkooppunt van motorbrandstoffen met lpg met een doorzet van minder dan 1.000 m3/jr. Volgens de VNG-brochure Bedrijven en milieuzonering valt dit in milieucategorie 3.1. De bijhorende richtafstand bedraagt 50 meter in een rustige woonwijk. Met een afstand van minimaal 96 m tussen het plangebied en de bedrijfsbestemming wordt hier ruim aan voldaan.

Den Elding 2 - Molen de Beijenkorf

Aan Den Elding 2 staat molen De Bijenkorf. De molenbiotoop van deze molen bedraagt 400 meter en reikt niet tot over het oostelijk woonveld. De molen vormt dan ook geen belemmering voor het planvoornemen binnen het oostelijk woonveld. Andersom vormt het planvoornemen ter plaatse geen belemmering voor de molen.

Agrarisch perceel

Ten westen van het oostelijke woonveld ligt een agrarisch perceel zonder bouwblok waar het telen van gewassen en het gebruik van chemische gewasbeschermingsmiddelen planologisch niet is uitgesloten. Fruitteelt is het type teelt met het meest intensieve gebruik van gewasbeschermingsmiddelen. Ter hoogte van het plangebied is echter geen fruitteelt aanwezig, maar wel mogelijk. Welke gewassen wel worden geteeld is onbekend, maar aanbevolen wordt om veiligheidshalve een afstand van 30 m tussen het agrarisch perceel ten westen van het plangebied en de woonbestemming in het plangebied aan te houden. Dit in verband met zowel belemmeringen in de bedrijfsvoering als een goed woon- en leefklimaat. De afstand tussen het westelijke agrarische perceel en de meest nabij beoogde woning bedraagt circa 10 meter. Tussen de woonbestemming en het agrarische perceel ligt een groenstrook van 5 meter breed. Deze strook is begroeid met hoog opgaande beplanting en bomen. Daarnaast wordt het woonperceel omgeven door een beukenhaag van 1,70 meter hoog, zie figuur 2.2.1 in paragraaf 2.2.1. De realisatie en de instandhouding van de groene beukenhagen is middels het landschappelijk inpassingsplan geborgd in de regels. Hierdoor is sprake van voldoende afscherming tussen het agrarisch perceel en de beoogde woningen.

In paragraaf 4.9 wordt nader ingegaan op de richtafstand voor geur in verband met de aanwezigheid van (pluim)veehouderijen.

Westelijk woonveld

Deel 70 - Plantenkwekerij

Aan de Deel 70 is een agrarisch bedrijf gelegen. Dit betreft een plantenkwekerij. De minimale afstand tussen het westelijk woonveld en de inrichtingsgrens van het agrarische bedrijf bedraagt circa 47 meter. Volgens de VNG-brochure Bedrijven en milieuzonering valt een tuinbouwbedrijf in milieucategorie 2. De grootste bijhorende richtafstand bedraagt 30 meter in een rustige woonwijk. Aan deze richtafstand wordt zodoende voldaan.

Diverse agrarische percelen

In de omgeving van het plangebied liggen diverse agrarische percelen zonder bouwblok waar het telen van gewassen en het gebruik van chemische gewasbeschermingsmiddelen planologisch niet is uitgesloten. Fruitteelt is het type teelt met het meest intensieve gebruik van gewasbeschermingsmiddelen. Ter hoogte van het plangebied is echter geen fruitteelt aanwezig, maar wel mogelijk. Welke gewassen wel worden geteeld is onbekend, maar aanbevolen wordt om veiligheidshalve een afstand van 30 m tussen het agrarisch perceel ten westen van het plangebied en de woonbestemming in het plangebied aan te houden. Dit in verband met zowel belemmeringen in de bedrijfsvoering als een goed woon- en leefklimaat. De afstand tussen het westelijke agrarische perceel en de meest nabij beoogde woning bedraagt circa 25 meter. Het agrarische perceel wordt begrensd met een dubbele rij bomen. Aan de zuidzijde van de Deel wordt een bomenrij gerealiseerd. Daarnaast wordt het woonperceel omgeven door een beukenhaag, zie figuur 2.2.3 in paragraaf 2.3.1. De realisatie en de instandhouding van de groene beukenhagen is middels het landschappelijk inpassingsplan geborgd in de regels. Hierdoor is sprake van voldoende afscherming tussen het agrarisch perceel en de beoogde woning.

In paragraaf 4.9 wordt nader ingegaan op de richtafstand voor geur in verband met de aanwezigheid van (pluim)veehouderijen.

Den Elding 2 - Molen de Beijenkorf

Aan Den Elding 2 staat molen De Bijenkorf. De molenbiotoop van deze molen bedraagt 400 meter en reikt tot over het plangebied. Op basis van de in het geldende bestemmingsplan opgenomen aanduiding 'vrijwaringszone – bijenkorf – molenbiotoop 2' gelden beperkingen tot de maximale bouwhoogte, zie paragraaf 1.3. De maximale bouwhoogte is de uitkomst van de volgende formule: (afstand tot de molen / 50) + (3,24).

De kortste afstand tussen het plangebied en de molen bedraagt 270 meter. Het meeste westelijke punt van het plangebied ligt op circa 360 meter van de molen. Dit betekent dat volgens de formule de maximale bouwhoogte oploopt van 8,65 meter tot 10,44 meter. De afstand van de molen tot de meest linkse woning betreft 290 meter, tot de middelste woning 308 meter en tot de meest rechtse woning 323 meter. Dit betekent een toegestane maximale bouwhoogte van respectievelijk 9,04 meter, 9,40 meter en 9,70 meter.

In figuur 4.2.2 is de situering van het plangebied ten opzichte van ligging molen De Bijenkorf weergegeven. De molen is gelegen op 16,07 meter +NAP. Het plangebied ligt op 15,61 meter +NAP. Dit betekent dat het plangebied 0,46 meter lager ligt dan de molen.

Tussen het plangebied en de molen staat diverse bebouwing. Dit betreft voornamelijk woningen. Deze woningen bestaan uit één of twee bouwlagen met een kap. Waarbij de woningen van twee bouwlagen met kap een bouwhoogte hebben van circa 10 meter. De woningen aan de Deelvoort, ten zuiden van het plangebied, hebben een maximale bouwhoogte van 11 meter. Aan de Deel staan diverse hoge bomen die, wanneer deze vol in blad staan, mogelijk van invloed zijn op de windvang van de molen.

afbeelding "i_NL.IMRO.1652.BPDeelZuid-ON01_0024.png"

Figuur 4.2.2 Situering westelijk woonveld ten opzichte van ligging molen De Bijenkorf

De beoogde bebouwing bestaat uit één bouwlaag met een hoge kap. De maximale hoogte van de nok van de kap bedraagt 9,5 meter. De beoogde bouwhoogte van 9,5 meter overschrijdt de toegestane hoogte van de twee meest westelijke woningen van respectievelijk 9,04 meter en 9,40 meter. Dit betreft echter een beperkte overschrijding in hoogte en massa aangezien het uitsluitend gaat om het hoogste deel van de kap. Daarnaast is het plangebied lager gelegen dan de molen. Het verschil in hoogteligging kan worden toegevoegd aan de toegestane bouwhoogte. Dit betekent dat een maximale bouwhoogte van respectievelijk 9,50 meter, 9,86 meter en 10,16 meter is toegestaan. Zodoende is geen sprake van een overschrijding.

Tevens is het gebied tussen de molen en het plangebied reeds bebouwd, met onder andere hogere bebouwing dan dat met deze ontwikkeling is beoogd. De beoogde bouwhoogte is dan ook dusdanig beperkt van invloed dat geen sprake is van nadelige effecten op de windvang van de molen.

Conclusie

Er wordt voldaan aan de richtafstanden. Ter plaatse van het plangebied is sprake van een aanvaardbaar woon- en leefklimaat. Er worden geen bedrijven beperkt in hun bedrijfsvoering. Het aspect bedrijven en milieuzonering vormt geen belemmering voor het planvoornemen.

4.8 Luchtkwaliteit

Beleid en normstelling

De gevolgen voor de luchtkwaliteit worden beoordeeld op basis van de Wet ruimtelijke ordening, de Wet milieubeheer luchtkwaliteitseisen (ook wel Wet luchtkwaliteit genoemd, Wlk), de AMvB 'Niet in betekenende mate' (het Besluit NIBM) en de ministeriële regeling NIBM. Er dient, ook na realisatie van het planvoornemen, sprake te zijn van een goede ruimtelijke ordening. Daarbij moet voldaan worden aan de geldende grenswaarden en luchtkwaliteitseisen.

Het toetsingskader voor luchtkwaliteit wordt gevormd door hoofdstuk 5, titel 5.2 van de Wet milieubeheer. Dit onderdeel van de Wet milieubeheer (Wm) bevat grenswaarden voor zwaveldioxide, stikstofdioxide en stikstofoxiden, fijn stof, lood, koolmonoxide en benzeen. Hierbij zijn in de ruimtelijke ordeningspraktijk langs wegen vooral de grenswaarden voor stikstofdioxide (jaargemiddelde) en fijn stof (jaar- en daggemiddelde) van belang. De grenswaarden van de laatstgenoemde stoffen zijn in tabel 4.8.1. weergegeven.

Tabel 4.8.1. Grenswaarden maatgevende stoffen Wm

stof   toetsing van   grenswaarde  
stikstofdioxide (NO2))   jaargemiddelde concentratie   40 µg/m³  
fijn stof (PM10)   jaargemiddelde concentratie   40 µg/m³  
  24-uurgemiddelde concentratie   max. 35 keer p.j. meer dan 50 µg/m³  
Fijn stof (PM2,5)   jaargemiddelde concentratie   25 µg/m³  

NIBM

In het Besluit niet in betekenende mate bijdragen (luchtkwaliteitseisen) is bepaald in welke gevallen een project vanwege de gevolgen voor de luchtkwaliteit niet aan de grenswaarden hoeft te worden getoetst. Hierbij worden 2 situaties onderscheiden:

  • een project heeft een toename van minder dan 3% van de jaargemiddelde concentratie NO2 en PM10 (= 1,2 µg/m³);
  • een project valt in een categorie die is vrijgesteld aan toetsing aan de grenswaarden; deze categorieën betreffen onder andere woningbouw met niet meer dan 1.500 woningen aan één ontsluitingsweg of kantoorlocaties met maximaal 100.000 m2 bvo bij één ontsluitingsweg.

Onderzoek

De beoogde ontwikkeling heeft betrekking op de realisatie van 11 woningen. Een dergelijke ontwikkeling valt onder het Besluit niet in betekenende mate onder de categorie woningbouw tot 1.500 woningen aan één ontsluitingsweg. Dit betekent dat de ontwikkeling niet in betekenende mate bijdraagt aan de luchtkwaliteit ter plaatse, en dat nader onderzoek niet noodzakelijk wordt geacht.

In het kader van een goede ruimtelijke ordening is een indicatie van de luchtkwaliteit ter plaatse van het plangebied gegeven. Dit is gedaan aan de hand van de NSL-monitoringstool 2021 (http://www.nsl-monitoring.nl/viewer/) die bij het Nationaal Samenwerkingsprogramma Luchtkwaliteit hoort. De dichtstbijzijnde maatgevende weg betreft de Vondellaan, ten oosten van het plangebied. Uit de NSL-monitoringstool blijkt dat in 2020 de jaargemiddelde concentraties stikstofdioxide en fijn stof langs deze weg ruimschoots onder de grenswaarden lagen. De concentraties luchtverontreinigende stoffen bedroegen in 2020; 13,8 µg/m³ voor NO2, 16,3 µg/m³ voor PM10 en 9,3 µg/m³ voor PM2,5. Het aantal overschrijdingsdagen van de 24-uur gemiddelde concentratie PM10 bedroeg 6,0 dagen. Hierdoor is er ter plaatste van het plangebied sprake van een aanvaardbaar woon- en leefklimaat.

afbeelding "i_NL.IMRO.1652.BPDeelZuid-ON01_0025.jpg"

Figuur 4.8.2 Uitsnede NSL tool, plangebied in zwart (bron: NSL-monitoring.nl)

Conclusie

Er wordt geconcludeerd dat het aspect luchtkwaliteit de uitvoering van het plan niet belemmert. Uit het oogpunt van luchtkwaliteit is sprake van een aanvaardbaar woon- en leefmilieu ter plaatse.

4.9 Gezondheid

Beleid en normstelling

De gemeente Gemert-Bakel heeft in 2017 het beleid "Toetsen Volksgezondheid bij procedures voor veehouderijen" vastgesteld. Indien er een pluimveehouderij binnen 1 kilometer van beoogde woningbouw is gelegen moet worden bepaald op welke afstand de adviesnorm van 30 EU/m3 wordt overschreden. Afhankelijk van dit onderzoek moet er advies gevraagd worden bij de GGD.

Daarnaast blijkt uit diverse studies dat in de omgeving van geitenhouderijen sprake kan zijn van verhoogde gezondheidsrisico's. Zo blijkt dat de kans op longontsteking voor omwonenden binnen een afstand van 2 km van geitenhouderijen aanzienlijk hoger ligt dan daarbuiten. Uit de beschikbare onderzoeken blijkt echter ook dat er nog veel onzekerheden zijn waar het gaat om de gezondheidsrisico's voor omwonenden en de factoren die daarbij een rol spelen. Het is overigens niet zo dat er na 2 kilometer gezondheidsrisico's kunnen worden uitgesloten, 2 kilometer is de grootste onderzochte afstand.

Verordening ruimte Noord-Brabant

Naar aanleiding van het aanvullende VGO-rapport heeft Provinciale Staten van Noord-Brabant op 7 juli 2017 besloten tot een moratorium op de geitenhouderij. Dit houdt in dat: 'Een toename van de bestaande oppervlakte dierenverblijf voor geitenhouderijen door het oprichten van gebouwen of door het in gebruik nemen van gebouwen voor het houden van geiten is niet toegestaan'.

Onderzoek

Van belang zijn de afstand van het plangebied tot de pluimveehouderij en de totale uitstoot van fijn stof van de pluimveehouderij. De afstand van de dichtstbijzijnde pluimveehouderij tot het oostelijk woonveld bedraagt circa 1,5 kilometer en tot het westelijk woonveld circa 1,3 kilometer. Op basis van de vigerende omgevingsvergunning milieu van de pluimveehouderij gelegen aan De Kampen 12 wordt 1.260 kg/jaar fijn stof (PM10) per jaar uitgestoten.

afbeelding "i_NL.IMRO.1652.BPDeelZuid-ON01_0026.png"

Figuur 4.9.1 Relatie bronsterkte fijn stof en aan te houden afstand (vleeskuikens)

Uit figuur 4.9.1 blijkt dat vanaf een afstand van 217 meter vanaf de pluimveehouderij voldaan wordt aan de adviesgrenswaarde van de Gezondheidsraad van 30 EU/m3. Er wordt ruimschoots aan deze afstand voldaan.

Binnen een straal van 2 kilometer bevinden zich geen geitenhouderijen. Gezien de afstand worden geen gezondheidsrisico's verwacht.

Conclusie

Het aspect gezondheid vormt geen belemmering voor de beoogde ontwikkeling.

4.10 Geur

Beleid en normstelling

Het toetsingskader voor het geuronderzoek wordt gevormd door de Wet geurhinder en veehouderij. Het bevoegd gezag, het college van burgemeester en wethouders van Gemert-Bakel, heeft een geurverordening opgesteld.

De Wet geurhinder en veehouderij heeft tot doel het beschermen van mens en milieu tegen de negatieve effecten van geurbelasting, onder andere als gevolg van emissies door veehouderijen. Met de in de Wet geurhinder en veehouderij opgenomen grenswaarden moet rekening gehouden worden bij nieuwe ruimtelijke ontwikkelingen. In de Wet geurhinder en veehouderij zijn in artikel 3 grenswaarden opgenomen voor de geurbelasting van die veehouderij op een geurgevoelig object. Hierbij wordt onderscheid gemaakt tussen de ligging binnen of buiten concentratiegebieden en de bebouwde kom.

Onderzoek

afbeelding "i_NL.IMRO.1652.BPDeelZuid-ON01_0027.png"

Figuur 4.10.1 Uitsnede Gemeentelijke normstelling behorende bij Geurverordening en geurbeleid 2013 met het plangebied zwart omlijnd

De geurbelasting van een individuele veehouderij wordt 'voorgrondbelasting' genoemd. De maximaal toegestane geurbelasting van veehouderijen op geurgevoelige objecten is afhankelijk van de ligging (concentratiegebied of geen concentratiegebied en binnen of buiten de bebouwde kom). Uit de Verordening geurhinder en veehouderij gemeente Gemert-Bakel 2013 blijkt dat het plangebied in 'overig buitengebied' is gelegen. In de Verordening is bepaald dat de maximale waarde voor de geurbelasting van een veehouderij op een geurgevoelig object voor 'overig buitengebied' 5,0 Ou is. Naast geurnormen stelt de Wgv ook eisen aan de (vaste) afstanden van veehouderijen tot geurgevoelige objecten. De afstanden gelden voor dieren waarvoor in de Rgv geen omrekeningsfactoren zijn vastgesteld, zoals melkrundvee, vrouwelijk jongvee en paarden. De minimaal aan te houden afstand bedraagt 50 meter tot een geurgevoelig object buiten de bebouwde kom en 100 meter tot een geurgevoelig object binnen de bebouwde kom. Deze afstanden gelden ongeacht het aantal dieren dat er gehouden wordt en worden gemeten vanaf het dichtstbijzijnde emissiepunt van een stal waarin de betreffende dieren worden gehouden. De geldende wettelijke afstanden zijn 100 meter in de bebouwde kom. Hier wordt aan voldaan. De dichtstbijzijnde veehouderij tot het oostelijk woonveld bevindt zich op circa 591 meter afstand en tot het westelijk woonveld op circa 515 meter afstand. De geurbelasting van alle veehouderijen samen op enige locatie wordt 'achtergrondbelasting' genoemd. De Wgv kent geen normen voor de achtergrondbelasting of de mogelijkheid dergelijke normen te stellen. De achtergrondbelasting die optreedt of op kan treden is dan ook een gevolg van de aanwezige veehouderijen en de individuele geurbelasting. Zoals eerder beschreven is de dichtstbijzijnde veehouderij op minimaal 591 meter gelegen van het oostelijk woonveld en minimaal 515 meter tot het westelijk woonveld. Andere veehouderijen zijn op nog grotere afstand gelegen.

afbeelding "i_NL.IMRO.1652.BPDeelZuid-ON01_0028.png"

Figuur 4.10.2 Uitsnede kaart achtergrondbelasting geur met plangebied

Bij achtergrondbelasting moet rekening worden gehouden met emissies van veehouderijen in een straal van 2 kilometer. Voor de achtergrondbelasting geldt een norm van 20 OuE/m3. In figuur 4.10.2 is een uitsnede van de achtergrondbelasting geur van Noord-Brabant weergegeven. Hieruit blijkt dat ter plaatse van het plangebied de kwaliteit van de leefomgeving zeer goed (tussen 0 en 3 OuE/m3) is. De veehouderijen in de omgeving bevinden zich op voldoende afstand.

Conclusie

Het aspect geur vormt geen belemmering voor de beoogde ontwikkeling.

4.11 Externe veiligheid

Beleid en normstelling

Bij ruimtelijke plannen wordt ten aanzien van externe veiligheid naar verschillende aspecten gekeken, namelijk:

  • bedrijven waar opslag, gebruik en/of productie van gevaarlijke stoffen plaatsvindt;
  • vervoer van gevaarlijke stoffen over wegen, spoor, water of leidingen.

Ten aanzien van deze aspecten moeten de risico's waaraan burgers in hun leefomgeving worden blootgesteld tot een aanvaardbaar minimum worden beperkt.

Voor zowel bedrijvigheid als vervoer van gevaarlijke stoffen zijn twee aspecten van belang, te weten het plaatsgebonden risico (PR) en het groepsrisico (GR). Het PR is de kans per jaar dat een persoon dodelijk wordt getroffen door een ongeval, indien hij zich onafgebroken (dat wil zeggen 24 uur per dag gedurende het hele jaar) en onbeschermd op een bepaalde plaats zou bevinden. Het PR wordt weergegeven met risicocontouren rondom een inrichting dan wel infrastructuur. Het GR drukt de kans per jaar uit dat een groep van minimaal een bepaalde omvang overlijdt als direct gevolg van een ongeval waarbij gevaarlijke stoffen betrokken zijn. De norm voor het GR is een oriëntatiewaarde. het bevoegd gezag heeft een verantwoordingsplicht als het GR toeneemt en/of de oriëntatiewaarde overschrijdt.

Risicovolle inrichtingen

Het Besluit externe veiligheid inrichtingen (hierna: Bevi) geeft een wettelijke grondslag aan het externe veiligheidsbeleid rondom risicovolle inrichtingen. Op basis van het Bevi geldt voor het PR een grenswaarde voor kwetsbare objecten en een richtwaarde voor beperkt kwetsbare objecten. Beide liggen op een niveau van 10-6 per jaar. Bij de vaststelling van een bestemmingsplan moet aan deze normen worden voldaan, ongeacht of het een bestaande of nieuwe situatie betreft.

Het Bevi bevat geen norm voor het GR; wel geldt op basis van het Bevi een verantwoordingsplicht ten aanzien van het GR in het invloedsgebied van de inrichting. De in het externe veiligheidsbeleid gehanteerde norm voor het GR geldt daarbij als oriëntatiewaarde.

Onderzoek

afbeelding "i_NL.IMRO.1652.BPDeelZuid-ON01_0029.jpg"

Figuur 4.10.1 Uitsnede professionele risicokaart met het plangebied paars omlijnd

Overeenkomstig de professionele risicokaart waarin relevante risicobronnen worden getoond, vindt er in de omgeving van het plangebied geen transport plaats van gevaarlijke stoffen via het spoor, de weg, het water of door buisleidingen. Ten zuidwesten bevindt zich een buisleiding met een grootte van 6 inch en een werkdruk van 40 bar. Dit geeft een invloedsgebied van 90 meter. Het plangebied bevindt zich op een afstand van circa minimaal 1,3 kilometer en valt niet in het invloedsgebied.

LPG-tankstation

Ten noordoosten van het plangebied bevindt zich een LPG-tankstation. Het plangebied bevindt zich niet in het invloedsgebied of de effectafstand. Ook bevindt het plangebied zich niet in de PR-contour 10-6 van het LPG-tankstation. Omdat het plangebied buiten het invloedsgebied en PR-contour 10-6 van dit LPG-tankstation valt, kan dit worden volstaan met een beknopte verantwoording waarin wordt ingegaan op de bestrijdbaarheid, bereikbaarheid en zelfredzaamheid.

Beknopte verantwoording

Bestrijdbaarheid en bereikbaarheid

Voor zowel de bereikbaarheid en bestrijdbaarheid van 'dagelijkse incidenten', zoals brand of wateroverlast, als voor calamiteiten op het gebied van externe veiligheid, is het van belang dat de bereikbaarheid voor de hulpdiensten en bluswatervoorzieningen voldoende geborgd zijn. De bestrijdbaarheid is afhankelijk van de inzetbaarheid van hulpverleningsdiensten. De brandweer moet in staat zijn om hun taken goed uit te kunnen voeren om daarmee verdere escalatie van een incident te voorkomen. Hierbij kan gedacht worden aan het voldoende/adequaat aanwezig zijn van aanvalswegen en bluswatervoorzieningen. Het plangebied wordt ontsloten via de Deel. Deze weg sluit aan op het verdere wegennetwerk van Gemert, zoals de N605 die zich aansluit op de A50 en A73. Dit wegennetwerk biedt vluchtmogelijkheden in verschillende richtingen, waardoor altijd van de bron af kan worden gevlucht. Het gedegen netwerk komt de bestrijdbaarheid ten goede.

Zelfredzaamheid

In de toekomstige situatie zullen woningen gerealiseerd worden. De aanwezige kinderen en ouderen worden gezien als verminderd zelfredzame personen. De mogelijkheden voor zelfredzaamheid bestaan globaal uit schuilen en ontvluchten. Als gevolg van een incident met toxische stoffen bij risicovolle inrichtingen geldt dat een toxische wolk zich snel kan ontwikkelen en verplaatsen. Dit effect is vaak niet zichtbaar. Zelfredzaamheid in deze scenario's is alleen mogelijk als er tijdig alarmering plaatsvindt en gebouwen geschikt zijn om enkele uren te schuilen. Denk hierbij aan het sluiten van ramen en deuren en met name het uitschakelen van (mechanische) ventilatiesystemen. Hiermee worden de aanwezigen beschermd tegen de blootstelling aan toxische gassen. Daarnaast dienen, in het kader van effectieve zelfredzaamheid, de gebruikers van de objecten door risicocommunicatie te worden geïnstrueerd over de risico's en de mogelijke maatregelen die zij kunnen nemen. De alarmering van de aanwezigen wordt momenteel nog gerealiseerd middels het waarschuwings- en alarmeringssysteem (WAS). Dit systeem wordt de komende jaren uitgefaseerd. Het waarschuwingssysteem wordt vervangen door een totaal pakket aan alarmeringsmiddelen, waaronder de calamiteitenzenders, de sirenes, crisis.nl, NL-Alert en het gebruik van sociale media.

Conclusie

Het plangebied bevindt zich in de effectafstand van een LPG tankstation. Omdat het gebied buiten het invloedsgebied en PR-contour 10-6 van het LPG-tankstation valt, kan er worden volstaan met een beknopte verantwoording. Uit de beknopte verantwoording blijkt dat de zelfredzaamheid, bestrijdbaarheid en bereikbaarheid van het plangebied als voldoende worden beschouwd. De veiligheidssituatie zal met de beoogde ontwikkeling niet significant verslechten en wordt als aanvaardbaar gezien. Het aspect externe veiligheid vormt dan geen belemmering voor de beoogde ontwikkeling.

4.12 Ecologie

Beleid en normstelling

Met de Wet natuurbescherming (hierna: Wnb) zijn alle bepalingen met betrekking tot de bescherming van natuurgebieden en dier- en plantensoorten samengebracht in één wet. De Wnb implementeert diverse Europeesrechtelijke regelgeving, zoals de Vogelrichtlijn en de Habitatrichtlijn in de Nederlandse wetgeving.

Gebiedsbescherming 

De Wnb kent diverse soorten natuurgebieden, te weten:

  • Natura-2000 gebieden;
  • Natuurnetwerk Nederland (NNN).

Natura-2000 gebieden

De Minister van Economische Zaken (EZ) wijst gebieden aan die deel uitmaken van het Europese netwerk van natuurgebieden: Natura 2000. Een dergelijk besluit bevat de instandhoudingsdoelstellingen voor de leefgebieden van vogelsoorten (Vogelrichtlijn) en de instandhoudingsdoelstellingen voor de natuurlijke habitats en habitats van soorten (Habitatrichtlijn). Een bestemmingsplan dat afzonderlijk of in combinatie met andere plannen of projecten significante gevolgen kan hebben voor een Natura 2000-gebied, kan uitsluitend vastgesteld worden indien uit een passende beoordeling de zekerheid is verkregen dat het plan, onderscheidenlijk het project de natuurlijke kenmerken van het gebied niet zal aantasten. Indien deze zekerheid niet is verkregen, kan het plan worden vastgesteld, indien wordt voldaan aan de volgende drie voorwaarden:

  • alternatieve oplossingen zijn niet voor handen;
  • het plan is nodig om dwingende redenen van groot openbaar belang, met inbegrip van redenen van sociale of economische aard, en;
  • de nodige compenserende maatregelen worden getroffen om te waarborgen dat de algehele samenhang van het Natura 2000-netwerk bewaard blijft.

De bescherming van deze gebieden heeft externe werking, zodat ook ingrepen die buiten deze gebieden plaatsvinden verstoring kunnen veroorzaken en moeten worden getoetst op het effect van de ingreep op soorten en habitats.

Natuurnetwerk Nederland (NNN)

Gebieden die deel uitmaken van het Natuurnetwerk Nederland (NNN) worden aangewezen in de provinciale verordening. Voor dit soort gebieden geldt het 'nee, tenzij' principe, wat inhoudt dat binnen deze gebieden in beginsel geen nieuwe ruimtelijke ontwikkelingen mogen plaatsvinden.

Soortenbescherming 

In de Wnb wordt een onderscheid gemaakt tussen:

  • soorten die worden beschermd in de Vogelrichtlijn;
  • soorten die worden beschermd in de Habitatrichtlijn;
  • overige soorten.

De Wnb bevat onder andere verbodsbepalingen ten aanzien van het opzettelijk vernielen of beschadigen van nesten, eieren en rustplaatsen van vogels als bedoeld in artikel 1 van de Vogelrichtlijn. Gedeputeerde Staten (hierna: GS) kunnen hiervan ontheffing verlenen en bij verordening kunnen Provinciale Staten (hierna: PS) vrijstelling verlenen van dit verbod. De voorwaarden waaraan voldaan moet worden om ontheffing of vrijstelling te kunnen verlenen zijn opgenomen in de Wnb en vloeien direct voort uit de Vogelrichtlijn. Verder is het verboden in het wild levende dieren van soorten, genoemd in bijlage IV, onderdeel a, bij de Habitatrichtlijn, bijlage II bij het Verdrag van Bern of bijlage I bij het Verdrag van Bonn, in hun natuurlijk verspreidingsgebied opzettelijk te doden of te vangen of te verstoren. GS kunnen hiervan ontheffing verlenen en bij verordening kunnen PS vrijstelling verlenen van dit verbod. De gronden voor verlening van ontheffing of vrijstelling zijn opgenomen in de Wnb en vloeien direct voort uit de Habitatrichtlijn.

Ten slotte is een verbodsbepaling opgenomen voor overige soorten. Deze soorten zijn opgenomen in de bijlage onder de onderdelen A en B bij de Wnb. De provincie kan ontheffing verlenen van deze verboden. Verder kan bij provinciale verordening vrijstelling worden verleend van de verboden. De noodzaak tot ontheffing of vrijstelling kan hierbij ook verband houden met handelingen in het kader van de ruimtelijke inrichting of ontwikkeling van gebieden.

Onderzoek

Gebiedsbescherming

Het plangebied vormt geen onderdeel van een natuur- of groengebied met een beschermde status, zoals Natura 2000. Het plangebied maakt ook geen deel uit van het Natuur Netwerk Nederland (NNN). De afstand tot het dichtstbijzijnde Natura 2000-gebied Deurnsche Peel & Mariapeel bedraagt 12,8 kilometer. In of nabij het plangebied is geen NNN-gebied gelegen. Directe effecten zoals areaalverlies en versnippering kunnen hierdoor worden uitgesloten.

afbeelding "i_NL.IMRO.1652.BPDeelZuid-ON01_0030.png"

Figuur 4.11.1 Het plangebied (rode cirkel) ten opzichte van Natura 2000-gebieden

Directe effecten zoals areaalverlies en versnippering kunnen gezien de afstand tot deze gebieden worden uitgesloten. Gezien de afstand en de geringe ontwikkeling kunnen ook verstoring, verandering van de waterhuishouding worden uitgesloten.

Op 1 januari 2020 is de Wet van 18 december 2019, houdende regels voor de aanpak van de stikstofproblematiek in relatie tot natuur (Spoedwet aanpak stikstof) (Staatsblad 2019, 517) in werking getreden. Op basis van deze wet is de Wnb op een aantal onderdelen gewijzigd.

Om stikstofdepositie binnen Natura 2000-gebieden door emissies van de gebruiksfase van de beoogde ontwikkeling uit te sluiten is hier een onderzoek voor uitgevoerd. De memo van dit onderzoek is opgenomen in bijlage 15. De achterliggende stikstofberekening voor de gebruiksfase (Aerius) is opgenomen in bijlage 16. In dit onderzoek wordt geconcludeerd dat er voor de gebruiksfase geen depositiebijdrage binnen Natura 2000-gebieden wordt berekend. Er zijn geen rekenresultaten hoger dan 0,00 mol/ha/jr.

In de Wet stikstofreductie en natuurverbetering (Wsn) is een vrijstelling geregeld van de vergunningplicht in artikel 2.7 lid 2 Wnb voor de realisatiefase van bouwwerkzaamheden. Een berekening is hierom niet noodzakelijk. In de vormvrije mer-beoordeling wordt de realisatiefase wel integraal beschouwd in relatie tot andere (milieuaspecten). Derhalve is de realisatiefase alsnog berekend, zie bijlage 17. Hieruit blijkt dat er tijdens de aanlegfase eveneens geen rekenresultaten zijn hoger dan 0,00 mol/ha/jr.

Op basis van het voorgaande kan geconcludeerd worden dat er voor de ontwikkeling geen vergunning op grond van de Wet natuurbescherming is vereist. Geconcludeerd wordt dat de mogelijke depositie van stikstof in het kader van dit bestemmingsplan geen belemmering vormt.

Soortenbescherming

De grond waarop de nieuwe bebouwing mogelijk wordt gemaakt is in gebruik als agrarisch landbouwgebied met aan de randen en op het perceel begroeiing. Het is dan ook niet uitgesloten dat deze locatie ongeschikt als verblijfsplaats voor beschermde soorten is. Aan de hand van een quickscan flora en fauna wordt bepaald of de ontwikkeling mogelijk van invloed is op beschermde plant- en diersoorten.

Oostelijk woonveld

Uit de uitgevoerde quickscan, zie bijlage 18 blijkt dat het oostelijk woonveld mogelijk gebruikt wordt door jaarrond beschermde vogels. Daarnaast kunnen er verblijfsplaatsen van alpenwatersalamander aanwezig zijn. Binnen het plangebied verdwijnt een deel van de bomen en struiken.

De te verwijderen bomen en struiken zijn als geschikt beoordeeld voor de alpenwatersalamander en marters. In deze bosschage kunnen winterverblijfplaatsen van de alpenwatersalamander en verblijfplaatsen van marters aanwezig zijn. Bij het verwijderen van de struiken kunnen deze verblijfplaatsen beschadigd of vernield worden en daarom is dat niet toegestaan zonder eerst onderzoek uit te voeren. Nader onderzoek naar marters en alpenwatersalamander wordt noodzakelijk geacht. Dit onderzoek is als bijlage 19 toegevoegd aan deze toelichting. Uit het nader onderzoek en de toetsing volgt dat er geen effect wordt verwacht op de alpenwatersalamander, hermelijn en wezel. Dit betekent dat er voor deze soorten geen vervolgstappen noodzakelijk zijn. De voorgenomen ontwikkeling is naar verwachting niet in strijd met het onderdeel soortenbescherming uit de Wet natuurbescherming.

Westelijk woonveld

Uit de uitgevoerde quickscan, zie bijlage 20, blijkt dat het westelijk woonveld mogelijk gebruikt wordt door algemene broedvogels en jaarrond beschermde vogels. Daarnaast wordt het plangebied mogelijk gebruikt voor grondgebonden zoogdieren zoals konijnen, egels en diverse muizen. Het plangebied is daarnaast matig geschikt als foerageergebied voor vleermuizen en als habitat voor amfibieën.

Op basis het onderzoek dient voor uitvoering van de voorgenomen plannen middels nader onderzoek meer informatie te worden verkregen over de essentiële functie van de onderzoekslocatie ten aanzien van steenuil, en dient er in het bladerloze seizoen een inspectie uitgevoerd te worden naar jaarrond beschermde nesten van roofvogels, ransuil en roek.

  • Ten aanzien van verstoring van algemene broedvogels kunnen overtredingen worden voorkomen door te werken buiten het broedseizoen. Globaal kan voor het broedseizoen de periode maart tot half augustus worden aangehouden.
  • Met betrekking tot mogelijke verblijfplaatsen van vleermuizen in de bebouwing en bomenrijen aan de noordzijde van de onderzoekslocatie kunnen overtredingen van de Wet natuurbescherming worden voorkomen door additionele (bouw)verlichting richting de omgeving te voorkomen.

Voor beschermde soorten behorend tot de overige soortgroepen zijn overtredingen ten aanzien van de Wet natuurbescherming wegens het ontbreken van geschikt habitat/verblijfsmogelijkheden, het ontbreken van sporen, op basis van de verspreidingsgegevens, de aanwezigheid van voldoende alternatieven en/of gezien de aard van de ingreep niet aan de orde. Ten aanzien van algemene grondgebonden zoogdieren en amfibieën is het in het kader van de zorgplicht noodzakelijk om voldoende zorg te dragen voor de aanwezige individuen en al het redelijkerwijs mogelijke dient te worden gedaan om het doden van individuen te voorkomen.

Het nader onderzoek (naar de steenuil en jaarrond beschermde nesten) is als bijlage 21 toegevoegd aan dit bestemmingsplan.

Uit het onderzoek blijkt dat 20 meter ten noorden van het plangebied een mogelijke nestlocatie van een steenuil aanwezig is. Gezien de korte afstand (binnen 300 meter) tussen de mogelijke nestlocatie en het plangebied, valt het plangebied binnen de functionele leefomgeving en is daardoor mogelijk onderdeel van het (essentieel) foerageergebied van steenuilen.

Als gevolg van de voorgenomen plannen wordt 0,46 hectare grasland bebouwd. Binnen een straal van 300 meter rondom de mogelijke nestlocatie blijft nog 6,81 hectare oppervlak aan 'zeer geschikt' of 'geschikt' foerageergebied over na de voorgenomen werkzaamheden. Vanwege voldoende alternatief foerageergebied in de directe omgeving van het plangebied (binnen 300 meter van de mogelijke nestlocatie), heeft het onderzoek uitgewezen dat de bouw van de drie woningen binnen het plangebied geen significant effect heeft op de functionele leefomgeving van steenuilen. De Wet natuurbescherming wordt zodoende niet overtreden en het aanvragen en verkrijgen van een ontheffing is niet noodzakelijk voor het uitvoeren van de werkzaamheden.

Bij de inrichting van de woningen wordt geadviseerd oog te hebben voor een landschappelijke inrichting, om effecten op de functionele leefomgeving van steenuil zoveel mogelijk te beperken.

Doordat geen nesten van roofvogels, ransuilen of roek zijn waargenomen, zullen de voorgenomen plannen geen negatief effect hebben op deze soorten. De Wet natuurbescherming wordt zodoende niet overtreden en het aanvragen en verkrijgen van een ontheffing is niet noodzakelijk voor het uitvoeren van de werkzaamheden.

Conclusie

De voorgenomen ontwikkeling leidt niet tot significante effecten op beschermde natuurgebieden of beschermde soorten. Het aspect ecologie vormt dan ook geen belemmering voor de voorliggende ontwikkeling.

4.13 Kabels en leidingen

Beleid en normstelling

Planologisch relevante leidingen en hoogspanningsverbindingen dienen te worden gewaarborgd. Tevens dient rond dergelijke leidingen rekening te worden gehouden met zones waarbinnen mogelijke beperkingen gelden. Planologisch relevante leidingen zijn leidingen waarin de navolgende producten worden vervoerd:

  • a. gas, olie, olieproducten, chemische producten, vaste stoffen/goederen;
  • b. aardgas met een diameter groter of gelijk aan 18 inch;
  • c. defensiebrandstoffen;
  • d. warmte en afvalwater, ruwwater of halffabrikaat voor de drink- en industriewatervoorziening met een diameter groter of gelijk aan 18 inch.

De Wet informatie-uitwisseling ondergrondse netten (WION) verplicht gravers (ook wel grondroerders genoemd) tot het melden van elke ‘mechanische grondroering’ bij het Kadaster. Doel van de wet is gevaar of economische schade door beschadiging van ondergrondse kabels of leidingen (water-, elektriciteit- en gasleidingen, telefoonlijnen en olie- en gasleidingen) te voorkomen. De wet heeft de (vrijblijvende) zelfregulering zoals die bestond in de vorm van het Kabels en Leidingen Informatie Centrum (KLIC) vervangen.

Onderzoek en conclusie

In en nabij het plangebied zijn geen planologisch relevante hoogspanningslijnen, buisleidingen, straalpaden of telecomverbindingen aanwezig.

De ontwikkeling vormt zodoende geen belemmering voor het aspect kabels en leidingen.

4.14 Duurzaamheid, energie en klimaatadaptatie

Beleid en normstelling

Het Bouwbesluit stelt eisen aan energiezuinigheid van nieuwe gebouwen. De maat voor energiezuinigheid heet Energie Prestatie Coëfficiënt (EPC). Hierbij kan op verschillende manieren omgegaan worden met energie zuinigheid.

Onderzoek en conclusie

Voor alle nieuwbouw geldt dat aanvragen van de omgevingsvergunning vanaf 1 januari 2021 moeten voldoen aan de eisen voor bijna energieneutrale gebouwen (BENG). Per 1 juli 2018 is het daarnaast verplicht gasloos te bouwen. De nieuwbouw zal hieraan voldoen.

4.15 Vormvrije m.e.r.-beoordeling

Beleid en normstelling
In onderdeel C en D van de bijlage bij het Besluit m.e.r. is aangegeven welke activiteiten in het kader van het omgevingsvergunning planmer-plichtig, projectmer-plichtig of mer-beoordelingsplichtig zijn. Voor deze activiteiten zijn in het Besluit m.e.r. drempelwaarden opgenomen. Daarnaast dient het bevoegd gezag bij de betreffende activiteiten die niet aan de bijbehorende drempelwaarden voldoen, na te gaan of sprake kan zijn van belangrijke nadelige gevolgen voor het milieu, gelet op de omstandigheden als bedoeld in bijlage III van de EEG-richtlijn milieueffectbeoordeling. Deze omstandigheden betreffen:

  • de kenmerken van de projecten;
  • de plaats van de projecten;
  • de kenmerken van de potentiële effecten.

Sinds 7 juli 2017 is een aanpassing van het Besluit m.e.r. in werking getreden. Hierin is geregeld dat ook voor projecten die zijn opgenomen in bijlage D, maar beneden de drempelwaarden vallen, een besluit moet worden genomen of een milieueffectrapportage nodig is. In dat kader wordt afgewogen of het plan, ondanks dat het ruim onder de drempelwaarde blijft, mogelijk toch belangrijke negatieve milieueffecten heeft, op basis van de eerder genoemde omstandigheden. Dit is een 'vormvrije' mer-beoordeling.

Toetsing en conclusie

De ontwikkeling wordt gezien als een stedelijke ontwikkelingsproject (categorie D 11.2 van de bijlage bij het Besluit m.e.r.). De drempelwaarden van deze categorie worden overschreden in gevallen waarin de activiteit betrekking heeft op een oppervlakte van 100 hectare of meer, een aangesloten gebied en 2000 of meer woningen omvat of een bedrijfsvloeroppervlakte omvat van 200.000 m2 of meer. Daarvan is met de voorgenomen ontwikkeling geen sprake. Opgemerkt dient te worden dat voor activiteiten die de genoemde drempelwaarden niet overschrijden toch dient te worden nagegaan of er sprake kan zijn van belangrijke gevolgen voor het milieu. Gelet op de kenmerken van het plan zoals het kleinschalige karakter in vergelijking met de drempelwaarden uit het Besluit m.e.r., de plaats van het plan en de kenmerken van de potentiële effecten zullen geen belangrijke negatieve milieugevolgen optreden. Dit blijkt ook uit aanmeldnotitie vormvrije m.e.r.-beoordeling die is opgesteld voor de ontwikkeling van het plangebied (bijlage 24).

Voor dit bestemmingsplan is dan ook geen uitgebreide plan- of project m.e.r.-beoordelingsprocedure noodzakelijk conform het Besluit m.e.r. Wel dient door het bevoegd gezag voorafgaand op het besluit op dit bestemmingsplan een besluit genomen moeten worden op de m.e.r.-beoordeling.

Conclusie

Uit de informatie in deze notitie blijkt dat het plangebied niet is gelegen in kwetsbaar gebied en/of gebied met een beschermde status. Verder leiden de aard en omvang van het project niet tot belangrijke nadelige milieugevolgen. Daarbij is het wel van belang dat de maatregelen worden getroffen zoals beschreven in paragraaf 'mitigerende maatregelen' van deze notities. Het doorlopen van een volledige m.e.r.-procedure is niet noodzakelijk

Hoofdstuk 5 Financiële uitvoerbaarheid

Volgens artikel 6.12 van de Wro dient tegelijk met de vaststelling van een bestemmingsplan een exploitatieplan worden vastgesteld voor de gronden waarop een bij algemene maatregel van bestuur aangewezen bouwplan is voorgenomen, tenzij het verhaal van kosten van de grondexploitatie anderszins verzekerd is.

Het plangebied is eigendom van de initiatiefnemer. De kosten van deze ontwikkeling zijn derhalve volledig voor rekening van de initiatiefnemer. Met de gemeente Gemert-Bakel is een anterieure overeenkomst gesloten. Onderdeel van deze anterieure overeenkomst is een planschadeovereenkomst waarbij het risico op eventuele planschade bij de initiatiefnemer wordt gelegd. De zakelijke samenvatting van de anterieure overeenkomst en planschadeovereenkomst is op grond van artikel 6.24 Wro gepubliceerd.

Hoofdstuk 6 Juridische uitvoerbaarheid

6.1 Wettelijk kader

In de Wro en het Besluit ruimtelijke ordening (Bro) is geregeld dat alle nieuwe ruimtelijke plannen, waaronder bestemmingsplannen, digitaal moeten worden vervaardigd, met inachtneming van de daartoe wettelijk verplicht gestelde ruimtelijke ordeningsstandaarden (thans SVBP2012, IMRO2012, STRI2012). Op die wijze zijn bestemmingsplannen onderling vergelijkbaar en ook digitaal uitwisselbaar. Ook de Wet algemene bepalingen omgevingsrecht (Wabo) is van belang voor bestemmingsplannen.

6.2 Opzet van de bestemmingsregeling

Ten aanzien van de opzet van de bestemmingsregeling is het volgende van belang.

Verbeelding

Eisen aan de verbeelding

Belangrijke eis is dat het bestemmingsplan dient te voldoen aan de eis van rechtszekerheid. Dit betekent dat een bestemmingsregeling duidelijk en voor één uitleg vatbaar dient te zijn. In aansluiting hierop en in relatie tot de digitale verplichting verdient het de voorkeur zoveel mogelijk onderdelen van de regeling op de verbeelding zichtbaar te maken en de regels zo transparant mogelijk te houden.

Op de verbeelding wordt met bestemmingen en aanduidingen aangegeven welk gebruik is toegestaan en of er ten behoeve van die bestemmingen mag worden gebouwd. De bestemmingen worden door middel van hoofdletters aangeduid, zoals 'W' voor 'Wonen'. Met aanduidingen kan het gebruik nader worden gespecificeerd en het bouwen worden gereguleerd. Een veel voorkomende bouwaanduiding is die voor de maximum goot- en bouwhoogte van hoofdgebouwen; deze worden aangegeven door middel van een matrix. Naast enkelbestemmingen die met een kleur worden aangeduid, zijn er dubbelbestemmingen die op de verbeelding herkenbaar zijn aan arceringen.

De gehanteerde bestemming

Voor het plangebied is een woonbestemming opgenomen. Daarnaast zijn de bestemmingen 'Groen', 'Verkeer-Verblijfsgebied' en 'Water' van toepassing. Voor deze bestemmingsregelingen is aangesloten bij het bestemmingsplan 'stedelijk gebied'. Naast deze enkelbestemmingen komt de dubbelbestemming 'Waarde - Archeologie 5' te vervallen, omdat er bij de onderzoeken geen behoudenswaardige vindplaats is aangetroffen binnen het onderzoeksgebied zie paragraaf 4.3.

Regels

Op grond van SVBP2012 hebben de hoofdstukken waarin de regels zijn opgenomen, de volgende vaste volgorde.

  • In Hoofdstuk 1 worden in de regels gehanteerde begrippen, voor zover nodig, gedefinieerd en wordt de wijze van meten bepaald.
  • In Hoofdstuk 2 worden in alfabetische volgorde van de naam van de bestemmingen de regels gegeven waarmee die bestemmingen zoals die op de verbeelding voorkomen, nader worden omschreven.
  • Hoofdstuk 3 bevat een aantal regels die voor alle bestemmingen gelden, zoals een anti-dubbeltelbepaling.
  • Hoofdstuk 4 bevat het overgangsrecht voor bestaand gebruik en bestaande bebouwing en de titel van het plan.

Ook bij de opstelling van een bestemmingsbepaling (hoofdstuk 2 van de regels) moet een vaste volgorde gebruikt worden: Een bestemmingsregel behoeft niet alle voorgeschreven elementen te bevatten. Dit is afhankelijk van de aard van de bestemming. Alle bestemmingen bevatten wel een bestemmingsomschrijving en bouwregels.

Voorts is in het Bro een aantal bepalingen opgenomen waaraan de regels van het bestemmingsplan moeten voldoen. Het gaat hierbij om een aantal begrippen, regels ten aanzien van het overgangsrecht en de anti-dubbeltelbepaling.

6.3 Toelichting op de gehanteerde bestemmingen

Groen (Artikel 3)

De voor 'Groen' aangewezen gronden zijn bestemd voor groenvoorzieningen, bermen, beplanting, bomen en parken.

Verkeer - Verblijfsgebied (Artikel 4)

De hoofdinfrastructuur is bestemd als 'Verkeer - Verblijfsgebied'. Deze gronden zijn tevens bestemd voor groen- en watervoorzieningen.

Water (Artikel 5)

De voor 'Water' aangewezen gronden zijn bestemd voor open water zoals waterlopen.

Wonen (Artikel 6)

De voor 'Wonen' aangewezen gronden zijn bestemd voor het wonen met aan-huis-gebonden beroepen, kleinschalige beroeps- en bedrijfsmatige activiteiten. Nieuwe woningen zijn uitsluitend toegestaan binnen het bouwvlak, de aangegeven bouwaanduidingen en de aangeven maatvoeringen.

6.4 Toelichting op de algemene regels

Deze algemene regels bestaan uit een aantal algemene, niet aan specifieke bestemmingen gekoppelde, bepalingen.

Anti-dubbeltelregel (Artikel 7)

Deze bepaling is ingevolge artikel 3.2.4 van het Bro vast voorgeschreven. Doel van deze bepaling is te voorkomen dat er meer wordt gebouwd dan het bestemmingsplan beoogt, bijvoorbeeld als (onderdelen van) percelen van eigenaar wisselen. De anti-dubbeltelbepaling voorkomt dat het overgedragen erf nog eens in de beoordeling van de bouwmogelijkheden op het oorspronkelijk deel erf kan worden betrokken.

Algemene bouwregels (Artikel 9)

Dit artikel bevat één lid, namelijk 'overschrijding bouwgrenzen' (lid : Dit is een regeling voor beperkte en ondergeschikte overschrijding van de grenzen van bouwvlakken. Deze bouwvlakken zijn op de verbeelding aangeduid met een dikke lijn.

Algemene afwijkingsregels (Artikel 8)

Voor ondergeschikte afwijkingen van de bestemmingsplanbepalingen (de bouwregels) is een algemene afwijkingsregel opgenomen.

Overige regels (Artikel 14)

Dit artikel bevat twee bepalingen, namelijk een parkeerregeling en een regeling voor waterberging. In een (toenemend) aantal gevallen wordt in de regels van bestemmingsplannen verwezen naar een (andere) wettelijke regeling of wordt een procedure, begrip en/of functie uit die andere regeling van toepassing verklaard. Ook in de begripsbepalingen komen die verwijzingen voor. Op grond van jurisprudentie mag een bestemmingsplan slechts volgens de vereiste procedure van de Wro worden gewijzigd. Het impliciet wijzigen van een bestemmingsplan door wijzigingen in wetgeving in de bepalingen waarnaar wordt verwezen is niet toegestaan. Het is dan ook nodig dat verwijzingen naar toepasbare wettelijke regelingen worden gefixeerd, namelijk naar de tekst ervan zoals die op het moment van vaststelling van het plan gold. Uit praktische overwegingen is er voor gekozen in dit hoofdstuk van de regels een artikel hiervoor op te nemen, waarin is bepaald dat alle wettelijke regelingen waarnaar in de regels wordt verwezen, gelden zoals deze luidden op het moment van vaststelling van het plan. Hierdoor hoeft niet meer telkens te worden verwezen naar publicaties in het Staatsblad. De parkeerregeling is gelijk aan degene opgenomen in de Parapluherziening Parkeren Gemert-Bakel zoals vastgesteld op 23 januari 2018.

6.5 Toelichting op de overgangs- en slotbepalingen

In artikel 15 is het overgangsrecht ten aanzien van het gebruik en het bouwen in strijd met het plan geregeld. In lid 15.1 is de in artikel 3.2.1 Bro voorgeschreven bepaling omtrent het overgangsrecht voor bouwwerken opgenomen. In lid 15.2 is de in artikel 3.2.2 Bro voorgeschreven bepaling omtrent het overgangsrecht voor gebruik opgenomen. Artikel 16 bevat de slotregel.

Hoofdstuk 7 Maatschappelijke uitvoerbaarheid

7.1 Vooroverleg ex artikel 3.1.1 Bro

Op grond van artikel 3.1.1. van het Besluit op de ruimtelijke ordening (Bro) dient bij de voorbereiding van een bestemmingsplan overleg plaats te vinden met de besturen van betrokken gemeenten en waterschappen en met die diensten van provincie en Rijk die betrokken zijn bij de zorg voor de ruimtelijke ordening of belast zijn met de behartiging van belangen welke in het plan in het geding zijn. De resultaten van het vooroverleg worden verwerkt in onderstaande paragraaf.

Provincie Noord Brabant

Reactie: De provincie adviseert beide ontwikkelingen in samenhang met elkaar te bezien en verder als één ruimtelijke ontwikkeling in één bestemmingsplan verder vorm te geven. Het is daarbij van belang aan te tonen dat de ontwikkeling passend is in zijn omgeving. Bij een gedegen uitwerking kan de ontwikkeling als duurzame stedelijke ontwikkeling aangemerkt worden en zijn de afwijkende regels voor verstedelijking afweegbaar, zoals opgenomen in artikel 3.43 IOV, van toepassing.

Verwerking: Middels dit bestemmingsplan zijn beide ontwikkelingen als één plan onderbouwd, met tevens één toetsing aan de ladder voor duurzame verstedelijking en één visie op het gehele plangebied.

Waterschap Aa en Maas

Reactie: In het plan wordt goed rekening met de A-watergang en de bijbehorende beschermingszone gehouden. Op de verbeelding en in de regels is de beschermingszone niet opgenomen. In het aansluitende bestemmingsplan buitengebied wordt deze wel op de verbeelding en in de regels aangegeven als.

Verwerking: De gebiedsaanduiding 'vrijwaringszone-waterloop' is opgenomen op de verbeelding en in de regels.

Reactie: Hoe de toename van verharding is berekend is niet geheeld duidelijk.

Verwerking: De berekening van de toename van verhardingen is verduidelijkt in zowel de watertoets als in de toelichting van dit bestemmingsplan.

7.2 Omgevingsdialoog

De gemeente Gemert-Bakel stelt de omgevingsdialoog verplicht. In dat kader hebben voor de ontwikkeling van het oostelijk woonveld op 5 januari 2021 en op 8 januari 2021 gesprekken met direct omwonenden plaatsgevonden. Tijdens deze gesprekken hebben bewoners de mogelijkheid gehad te reageren op de ontwikkeling. Dit betrof de adressen Beverdijk 26, 28, 30 en 32, Deel 84, 84a, 88 en 95.

Omwonenden hebben het 'Formulier zorgvuldige dialoog' ingevuld. Over het algemeen is door de meeste omwonenden het plan positief ontvangen. Het verslag is als bijlage 25 toegevoegd.

Voor de ontwikkeling van het westelijk woonveld is gebruik gemaakt van het 'Formulier zorgvuldige dialoog'. Deze formulieren zijn afgegeven op 29 december 2021. De ontvangers waren alle adressen van de Deelvoort en Deel 70, 80, 82, 84, 84a en 89. Dit maakt een totaal van 31 adressen waarvan de ontwikkelaar 18 reacties heeft ontvangen. Slechts twee daarvan hebben bezwaar, waarvan de bewoners van Deelvoort 12 inmiddels heeft aangegeven de ontwikkeling ook wel begrijpt en ook graag op de hoogte gehouden wil worden.

7.3 Zienswijzen

Met de terinzagelegging van het ontwerpbestemmingsplan (voor de duur van zes weken) wordt de formele vaststellingsprocedure gestart. Gedurende deze periode kan iedereen op het ontwerp bestemmingsplan een schriftelijke of mondelinge zienswijze indienen. De zienswijzen worden samengevat en voorzien van beantwoording. Deze zienswijzen zullen worden beoordeeld op het feit of, en zo ja, in hoeverre het ontwerp aanpassing behoeft. Vervolgens zal het college van B&W de gemeenteraad voorstellen het bestemmingsplan al dan niet gewijzigd vast te stellen.

7.4 Beroep

Na vaststelling wordt het bestemmingsplan voor de tweede maal zes weken ter visie gelegd. Gedurende deze periode kunnen belanghebbenden tegen het vaststellingsbesluit beroep instellen bij de Afdeling Bestuursrechtspraak van de Raad van State. Indien geen beroep wordt ingesteld, is het plan na deze beroepstermijn onherroepelijk en treedt het plan in werking.