direct naar inhoud van Toelichting
Plan: Proeftuin Elsendorp
Status: voorontwerp
Plantype: bestemmingsplan
IMRO-idn: NL.IMRO.1652.BPElsendorp-VO01

Toelichting

Hoofdstuk 1 Inleiding

1.1 Wat is dit voor plan?

Een bijzonder plan voor Proeftuin Elsendorp

Dit is het bestemmingsplan met verbrede reikwijdte voor het buitengebied van Elsendorp van de gemeente Gemert-Bakel. Aanleiding voor dit bestemmingsplan is de 'visie Proeftuin Elsendorp' die door de dorpsgemeenschap zelf is opgesteld. De visie verbeeldt de door de inwoners van Elsendorp gewenste ontwikkelingen voor het gebied. Inwoners, (agrarische) ondernemers, de gemeente en de provincie hebben de handen ineen geslagen om samen nieuwe initiatieven te ontwikkelen en op elkaar af te stemmen om de leefbaarheid op het platteland te versterken, verpaupering door leegstand tegen te gaan en op de juiste plekken ruimte te maken voor kleinschalige en duurzame bedrijvigheid, wonen en recreatie.

Het idee van de Proeftuin Elsendorp is ontstaan als gevolg van de Brabantse aanpak voor de leegstand van agrarische bebouwing. Omdat er in het buitengebied van Elsendorp ook problemen zijn op het gebied van asbest, wateroverlast en modernisering van de energie-infrastructuur is besloten te onderzoeken of door samenwerking tussen burgers, ondernemers en overheden niet alleen problemen kunnen worden opgelost, maar er ook nieuwe kansen kunnen ontstaan.

Door het dorp, ondersteund door provincie, gemeente en waterschap, is de visie Proeftuin Elsendorp opgesteld in combinatie met een meerwaardeplan. De gedachte is niet alleen per individueel initiatief een meerwaarde te leveren aan de kwaliteit en leefbaarheid van Elsendorp op basis van het provinciaal en gemeentelijk beleid voor kwaliteitsverbetering landschap, maar ook de activiteiten op zich en de daaruit voortvloeiende meerwaarde op gebiedsniveau te benaderen.

Bij een zich voordoend initiatief moet deze combinatie er bijvoorbeeld voor zorgen dat er op basis van de richtlijnen van de gebiedsvisie door het initiatief voldoende meerwaarde ontstaat. Dat kan doordat het initiatief op zichzelf een meerwaarde levert voor Elsendorp en/of door een meerwaarde te leveren om de doelen op gebiedsniveau te bereiken. Het uitgangspunt is dat zo'n tweedeling niet alleen gunstig is voor de initiatiefnemer van het betreffende initiatief maar uiteindelijk ook voor de kwaliteit en leefbaarheid van het hele dorp.

Die impuls wordt onder andere gegeven door (extra) ruimte te bieden aan nieuwe initiatieven in het buitengebied. Initiatiefnemers creëren met hun initiatief dynamiek in het buitengebied. Die dynamiek houdt het buitengebied vitaal, maar moet tegelijkertijd ervoor zorgen dat er een bijdrage wordt geleverd aan de het saneren van ongewenste situaties, leefbaarheid, ruimte voor bedrijvigheid en innovatie, waterbeheer, landschappelijke kwaliteit en recreatie-ontwikkeling.

Het huidige bestemmingsplan staat een aantal op basis van de visie gewenste ontwikkelingen niet toe. Daarvoor wordt het bestemmingsplan herzien. Met dit plan moet het eenvoudiger worden om een omgevingsvergunning te verlenen voor initiatieven die van meerwaarde zijn voor Elsendorp.

De visie 'Proeftuin Elsendorp, het meerwaardeplan en dit bestemmingsplan zijn gemaakt in nauw overleg met het dorpsoverleg, de gemeente, het waterschap en de provincie Noord Brabant en hebben tot doel de fysieke leefomgeving van Elsendorp in de vorm van ruimtelijke kwaliteit, leefbaarheid en vitaliteit een impuls te geven.

Wat het gebiedsproces in Elsendorp uniek maakt is dat ook het proces op basis waarvan afspraken worden gemaakt over maatschappelijke meerwaarde afwijkend vorm gegeven wordt ten opzichte van het 'reguliere' proces van gebiedsontwikkeling. In het voorgestelde proces speelt het dorpsoverleg (en dus bewoners zelf) een prominente rol. De betrokken overheden (provincie, gemeente en waterschap) faciliteren het gebiedsproces ieder vanuit de eigen overheidsrol als adviseur.

Bestemmingsplan met verbrede reikwijdte

Voor Elsendorp wordt vanwege het bijzondere gebiedsproces en de bijzondere inhoud niet zomaar een bestemmingsplan opgesteld, maar een 'bestemmingsplan met verbrede reikwijdte'. De naam verklapt de betekenis al. Waar een bestemmingsplan normaal gesproken alleen regels over de ruimtelijke ordening mag bevatten, mag een 'bestemmingsplan met verbrede reikwijdte' meer bevatten, namelijk regels die betrekking hebben op de fysieke leefomgeving. Daarnaast mag een dergelijk plan ook andere typen instrumenten gebruiken dan een 'gewoon' bestemmingsplan. Het gaat dan bijvoorbeeld om een 'meldingsplicht' of een 'omgevingsvergunning voor een bestemmingsplanactiviteit'. Dit plan is daarmee een omgevingsplan vooruitlopend op de Omgevingswet maar nog niet een omgevingsplan conform de Omgevingswet. Om vooruit te kunnen lopen op de omgevingswet hebben wij een pilot status onder de Crisis- en herstelwet.

Er kan hiermee al gebruik worden gemaakt van de in de toekomstige Omgevingswet gepresenteerde reeks maatregelen om de flexibiliteit te vergroten, die onder andere voor het gebiedsproces gewenste verkorte procedures oplevert.

De Crisis- en herstelwet zet de provinciale Interim Omgevingsverordening ruimte niet opzij. Ontwikkelingen worden nog steeds getoetst aan deze verordening. Ook bepalingen voor uitbreidingen van intensieve veehouderijen op basis van de Interim Omgevingsverordening ruimte zijn onverkort van toepassing. In het systeem van visie, meerwaardeplan en bestemmingsplan is hiermee rekening gehouden.

Hoe maken we gebruik van de Crisis- en herstelwet?

De pilotstatus biedt voor Elsendorp de volgende mogelijkheden om een bestemmingsplan te maken met een verbrede reikwijdte om:

  • uitvoering te geven aan de gebiedsgerichte aanpak van initiatieven van ondernemers op basis van de visie 'Proeftuin Elsendorp' wat leidt tot meerwaarde voor ondernemers en inwoners van Elsendorp, zowel op korte termijn als lange termijn;
  • dit meerwaarde beginsel toe te passen bij het verlenen van vergunningen;
  • een flexibeler plan te maken om ontwikkelingen die passen binnen de koers, ambities en kwaliteit van de fysieke leefomgeving op basis van de visie Proeftuin Elsendorp via een snellere procedure mogelijk te maken.

Het bestemmingsplan moet daarbij ruimte bieden voor ontwikkeling en daarvoor als integraal toetsingskader dienen. Bij een regulier bestemmingsplan gelden daarbij een aantal beperkingen. Ontwikkelingen moeten uitvoerbaar en voldoende concreet en uitgewerkt zijn om ze in een bestemmingsplan te kunnen vastleggen. Voor de ontwikkelingen in dit bestemmingsplan is dit nog niet het geval, omdat zij organisch en niet-planmatig tot stand zullen komen. Dit bestemmingsplan is dan ook een vorm van uitnodigingsplanologie.

De Crisis- en herstelwet (Chw) bevat een regeling die voor een belangrijk deel tegemoet komt aan deze wens om een bredere, integrale regeling te maken waarbij ook meer ruimte is voor uitnodigingsplanologie en organische ontwikkeling. Dit is een zogenoemd Chw bestemmingsplan met verbrede reikwijdte (artikel 2.4 Chw en artikel 7c en 7w Besluit uitvoering Chw). Op grond van deze regeling geldt onder andere een verlengde planperiode van 20 jaar, kunnen regels worden opgesteld over het gehele domein van de fysieke leefomgeving en kan een verzoek om vergoeding van schade pas worden ingediend nadat een omgevingsvergunning voor bouwen is verleend of wanneer een omgevingsvergunning voor een bestemmingsplanactiviteit wordt verleend . Daarmee wordt dus de omgevingsvergunning het schadeveroorzakend besluit in plaats van het bestemmingsplan.

Deze regeling biedt daarmee ook de mogelijkheid om voor te sorteren op de nieuwe Omgevingswet.

In Bijlage 2 is een overzicht opgenomen van de wijze waarop de gemeente met dit bijzondere bestemmingsplan gebruik maakt van de mogelijkheden die de Crisis- en herstelwet de gemeente biedt.

1.2 Waarom een bestemmingsplan met verbrede reikwijdte?

Planologische borging van visie Proeftuin Elsendorp

Zoals aangegeven is dit nog geen omgevingsplan op basis van de Omgevingswet. Binnen de ruimte die de Chw ons biedt is het plan al zoveel mogelijk opgesteld 'in de geest van de Omgevingswet'. Er zijn keuzes gemaakt welke regels voor de fysieke leefomgeving in het ontwerp zijn opgenomen, welke onderwerpen later aan dit plan kunnen worden toegevoegd en welke thema's pas aan de orde (kunnen) komen wanneer sprake is van een formeel omgevingsplan onder de Omgevingswet.

In dit ontwerp zijn op basis van de Chw verschillende regelingen samengevoegd in één plan.

De basis bestaat uit het vastleggen van de toegestane activiteiten en bouwmogelijkheden die grotendeels gebaseerd zijn op de vigerende bestemmingsplannen.

Verschillende onderdelen die in de toekomst onder de Omgevingswet mogelijk worden, maar onder de Crisis- en herstelwet nog niet aan de orde zijn, kunnen logischerwijs nog niet verwerkt worden in dit plan.

met name regels die nu nog landelijk geregeld zijn in bijvoorbeeld het Activiteitenbesluit, komen onder de nieuwe wet te vallen onder het nieuwe Besluit kwaliteit leefomgeving (Bkl) of het Besluit activiteiten leefomgeving (Bal). Daarbij ontstaat ook ruimte voor gemeenten om binnen landelijke kaders eigen speelruimte te bepalen. Totdat een omgevingsplan onder de omgevingswet is vastgesteld, geldt voor deze regels de bruidsschat die de gemeente van rechtswege mee krijgt van het rijk. Na het van kracht worden van de Omgevingswet zal hiervoor een verdere afweging en uitwerking worden gemaakt.

1.3 Voor welk gebied wordt het bestemmingsplan met verbrede reikwijdte vastgesteld?

Het proeftuin gebied is gelegen in oost-Brabant in de gemeente Gemert-Bakel, grenzend aan de gemeenten Sint Anthonis en Boekel. Elsendorp is een typische plattelandskern, ontstaan tijdens de veenontginningen begin 1900. De noord-zuid verbinding is de van oudsher bekende Middenpeelweg N277, de verbinding tussen Nijmegen en Roermond. Van west naar oost wordt het gebied doorsneden door de verbindingsweg Gemert – Boxmeer N272.

Het gebied is divers van aard:

  • In het noorden wordt de grens van het gebied bepaald door de gemeentegrens. Hier is sprake van een voormalig LOG-gebied, met veel intensieve veehouderijen en omvangrijke glastuinbouw. Grootschalige bedrijvigheid voert hier de boventoon. Het Paradijs is de noordelijk gelegen ontsluitingsweg van het gebied. Tussen Gerele Peel en Elsendorpseweg is sprake van een extensief agrarisch gebied.
  • Ten zuiden van de Elsendorpseweg ligt het natuurgebied landgoed Cleefs Wit / De Sijp, ontstaan in de 18e eeuw, en dat voor de helft bestaat uit bossen 75 ha en 70 ha agrarische grond.
  • Het zuidelijk deel van het proeftuingebied wordt begrensd door een extensief agrarisch en wederom bosrijk gebied met Langs de Palen als grensweg, tevens de grens met het dorp De Rips.
  • Westelijk wordt het gebied begrensd door Oude Domptweg, Diepertseweg en Sijpseweg, oostelijk door de Middenpeelweg (in Elsendorp ook wel Ripseweg genaamd).
  • Aan de oostzijde wordt het plangebied begrensd door de Stootershutweg en de Brunthortsteweg. Het naturistenpark te midden van dit gebied is buiten het plangebied gelaten.

afbeelding "i_NL.IMRO.1652.BPElsendorp-VO01_0001.jpg"

Figuur 1.1: Plangebied

1.4 Welke plannen en overige regels worden in dit plan opgenomen

Dit plan is in eerste instantie gebaseerd op de bestemmingsplannen die nu vigeren in het gekozen plangebied. Dat is in eerste instantie het bestemmingsplan Gemert-Bakel Buitengebied 2017 (2018) en de herzieningen hierop. Ook is een aantal postzegelplannen in dit gebied van kracht. Tot slot zijn wijzigingsbevoegdheden toegepast en zijn er vergunningen verleend.

Van deze plannen en de verleende vergunningen is de bestaande situatie overgenomen in de enkelbestemmingen in Hoofdstuk 2 van de regels (Regels voor bestaand gebied) zodat de bestaande rechten gehandhaafd blijven.

Toekomstige ontwikkelingsmogelijkheden die via een afwijkingsbevoegdheid mogelijk gemaakt konden worden, zijn in dit plan eveneens mogelijk. Wijzigingsbevoegheden uit het oude bestemmingsplan zijn vervallen. Ontwikkelingsmogelijkheden die eerst via wijzigingsbevoegdheden geboden werden, worden nu geboden via de regels zoals opgenomen in Hoofdstuk 3 van de regels (Regels voor ontwikkelingen). Daaraan zijn randvoorwaarden verbonden die voort komen uit de doelen die we in dit bestemmingsplan met verbrede reikwijdte hanteren. Die doelen zijn afgeleid van de visie Proeftuin Elsendorp.

1.5 Wat kunt u lezen in deze toelichting?

In deze toelichting gaan wij in de verschillende hoofdstukken in op:

Hoofdstuk 2   Structuurvisie Proeftuin Elsendorp  
Hoofdstuk 3   Ontwikkelingen  
Hoofdstuk 4   Gezonde fysieke leefomgeving en goede omgevingskwaliteit  
Hoofdstuk 5   Toelichting op de regels  
Hoofdstuk 6   Uitvoerbaarheid  

Hoofdstuk 2 Structuurvisie Proeftuin Elsendorp

2.1 Inleiding

Het buitengebied van Elsendorp is sterk aan het veranderen. Leegstand, een veranderende landbouwsector, ondernemers met ideeën, de komst van de Omgevingswet en een goed georganiseerde dorpsgemeenschap: allemaal factoren die een grote impact hebben. Om deze redenen besloten het dorpsoverleg, initiatiefnemers, gemeente, waterschap en provincie om samen vorm te geven aan het buitengebied van Elsendorp. Dit heeft handen en voeten gekregen in de Proeftuin Elsendorp.

Een belangrijke aanleiding van de proeftuin is de hoeveelheid leegstand in het buitengebied van Elsendorp. Een probleem dat in heel Brabant speelt en de komende jaren alleen maar groter wordt (Alterra WUR onderzoek 2016 en 2019). De oorzaak is te vinden in de transitie van de landbouw, maar ook demografische en economische ontwikkelingen (zoals geen opvolger hebben) spelen een rol. De gemeente Gemert-Bakel heeft een groot aantal agrarische bedrijven en heeft zorgen over wat deze trend sociaal, economisch en voor de leefbaarheid betekent voor het platteland. Hoe ziet het landgebruik er de komende jaren uit als volgens de prognose in Elsendorp tot 2030 minimaal 7 hectare aan bedrijfsgebouwen vrijkomt?

Dit levert niet alleen vraagstukken op voor de omgeving; het lokt ook gebruik van gebouwen uit dat strijdig is met het bestemmingsplan (66% van de locaties, zoals blijkt uit een steekproef van de Omgevingsdienst Zuidoost-Brabant). Deze autonome ontwikkeling en de toename van de omvang waren voor de gemeente in 2015 aanleiding om met de provincie afspraken te maken over de aanpak leegstand agrarische bedrijven. Door de mogelijkheden van de Crisis en Herstelwet hierbij te benutten, kunnen de verschillende partijen meteen oefenen met de manier van werken van de nieuwe Omgevingswet.

Leegstand heeft niet alleen ruimtelijke impact, maar heeft ook gevolgen voor de voorzieningen en daarmee voor de leefbaarheid van Elsendorp. Deze kunnen alleen blijven bestaan wanneer voldoende mensen in Elsendorp kunnen wonen en werken. Gelukkig is er veel ondernemerschap in het dorp. Wanneer deze gekoppeld wordt aan opgaven, zoals leegstand, ontstaan er kansen om niet alleen voor nu, maar ook voor ondernemers en het buitengebied van de toekomst ruimte te creëren.

2.2 Missie en uitdagingen proeftuin

Missie van de Proeftuin

Een gebiedsgerichte aanpak van initiatieven van ondernemers in het buitengebied leidt tot meer kwaliteit voor ondernemers en inwoners van Elsendorp, zowel op korte termijn als lange termijn. Het draagt bij aan een duurzaam en toekomstbestendige ontwikkeling van het dorp en haar inwoners, waardoor voorzieningen behouden kunnen blijven.

Vanuit het dorp wordt ingezet op samenhang van ontwikkelingen, meerwaarde van het dorp en saamhorigheid. Daarbij past een sterke stimulering van initiatieven van onderop en regie op ontwikkelingen.

De gemeente en provincie zetten in op tegengaan van verrommeling buitengebied, ondermijning, versterken economie en leefbaarheid, verduurzaming. Zij trekken samen op, ondersteunen proactief de ontwikkeling en gebiedsgerichte aanpak van het dorp en spreken met één taal en één mond.

Uitdagingen

In de proeftuin liggen een aantal uitdagingen, mede door het aantal agrarische bedrijven dat reeds is gestopt en nog gaat stoppen. De uitdagingen vormen het uitgangspunt voor de proeftuin. De uitdagingen zijn geformuleerd tijdens de gebiedstour in april 2016 en aanvullende workshops met vertegenwoordigers uit het dorp.

Sociaal:

Uitdaging is om agrarisch ondernemers die vervroegd moeten stoppen omdat zij geen perspectief meer hebben (kosten hoger dan inkomsten) toch een mogelijkheid te bieden in bedrijfsomschakeling en daarmee bedrijfsgebouwen anders in te zetten. In stand houden en versterken hechte samenleving en betrokkenheid. Voor diegene die al gestopt zijn is de vraag of het blijven wonen op die locatie kan, mag, verantwoord is.

Concreet:

  • ‘Oplossen doe je samen!’
  • Meer samenwerking tussen dorp en buitengebied, tussen ondernemers onderling

Economisch:

Door de transitie in de landbouw is er sprake van verandering in bedrijvigheid (o.a. van IV naar tuinbouw), maar ook het stoppen van de nertsenhouderij in 2024 en veranderende (scherpere) regels rondom geur en uitstoot ammoniak) maken dat veel agrariërs zich oriënteren op een nieuwe toekomst of definitief stoppen. Voor het dorp is er de zorg dat er voldoende bedrijvigheid is en blijft. Het is een van de pijlers voor een aantrekkelijk woon-, werk- en leefklimaat.

Concreet:

  • Elsendorp is in 2026 een zelfvoorzienend dorp!
  • Waardecreatie door herbestemmen, ruilen en her ontwikkelen.

Maatschappelijk:

Jongeren trekken naar de stad. Concentratie van activiteiten en bedrijvigheid vinden vooral daar plaats. Hechte samenleving bestaat bij een goede spreiding van jong en oud, van ondernemers en inwoners, bij gezamenlijke binding bij het gebied en initiatieven. Maar vooral inzet en betrokkenheid van initiatiefnemers naar elkaar en naar de gemeenschap.

In Elsendorp geven we vorm aan een andere manier van ‘maatschappelijk verantwoord ondernemen’. Niets doen betekent leegloop, verloedering en verarming van het platteland.

Concreet:

  • ‘Oplossen doe je samen!’
  • Meer samenwerking tussen dorp en buitengebied, tussen ondernemers onderling
  • Milieuoverlast van intensieve veehouderij terugdringen

Ruimtelijk:

Daar waar bedrijven stoppen komt er ruimte vrij voor nieuwe ontwikkeling. Die nieuwe ruimte ligt versnipperd over meerdere locaties. De vraag is of deze ruimte geschikt is voor herbestemming of dat door herschikking ruimte geconcentreerd moet en kan worden voor nieuwe functies. Ook is denkbaar dat er veel gesloopt wordt waarbij vooral de vraag moet worden beantwoord wie dit betaalt. Het uitgangspunt dat de vervuiler betaalt, gaat helaas bij vastgoed niet op. Niet bij bedrijventerreinen, niet in winkelcentra en kantoren en zeker niet bij agrarische bedrijven. Waar bedrijven stoppen rest vaak een bedrijfswoning. Cruciale vraag is of het wonen op deze locatie nog verantwoord is.

Concreet:

  • ‘Leegstand’ geeft ‘ruimte voor ontwikkeling’
  • Herbestemmen van vrijkomende (agrarische) bebouwing
  • Verkrotting tot staan brengen
  • Reduceren en concentreren van intensieve veehouderij

2.3 Uitwerking in visie

In de structuurvisie Proeftuin Elsendorp is de huidige situatie van het plangebied beschreven en de uitdagingen die er zijn in de huidige situatie zoals beschreven in 2.2. Daarnaast zijn de doelen beschreven die de proeftuin nastreeft en het gebiedsproces waarmee wordt gewerkt om de doelen te bereiken.

De structuurvisie schetst een toekomst voor het buitengebied. In het buitengebied is namelijk voldoende ondernemerschap en zijn voldoende ideeën voor initiatieven. Door deze nieuwe initiatieven te koppelen aan de opgaven van het gebied ontstaan kansen om:

  • een goede en functionerende gemengde plattelandseconomie te realiseren;
  • toe te werken naar een aantrekkelijk buitengebied waar goed gewoond, gewerkt en geleefd kan worden voor iedereen;
  • en de verrommeling en verstening van het buitengebied tegen te gaan.

Vanuit de doelen en kansen is een globale structuurvisiekaart uitgewerkt. Daarin is aangeven wat de hoofdkoers voor de verschillende delen van het buitengebied is.

afbeelding "i_NL.IMRO.1652.BPElsendorp-VO01_0002.png"

Figuur 2.1: visiekaart Proeftuin Elsendorp (bron: Proeftuin Elsendorp 2019)

De uitgangspunten uit de structuurvisie moeten worden geborgd in dit bestemmingsplan en initiatieven die passen binnen de doelen en ambities van de visie zoveel vergunbaar gemaakt.

2.4 Meerwaardeplan

In de visie zijn de doelen van Elsendorp weergegeven. Met een gebiedsproces zijn de betrokken partijen aan de slag om met de dorpsgemeenschap deze doelen en ambities te realiseren. Bewoners en ondernemers worden uitgedaagd om met initiatieven te komen die invulling geven aan deze ambities. Deelname in de proeftuin is vrijwillig, niet vrijblijvend. Er zijn principes en spelregels geformuleerd.

Belangrijk principe is dat initiatieven in de proeftuin een meerwaarde moeten hebben voor zowel de ondernemers als voor het dorp. Om concreet te maken wat een meerwaarde is zijn in de proeftuin de kansen in het gebied vertaald naar doelen waaraan initiatieven van deelnemers kunnen bijdragen.

afbeelding "i_NL.IMRO.1652.BPElsendorp-VO01_0003.jpg"

Figuur 2.2: kansenkaart Proeftuin (bron: Proeftuin Elsendorp 2019)

De wijze waarop de doelstellingen die in de visie 'Proeftuin Elsendorp' zijn geformuleerd gerealiseerd worden is uitgewerkt in het 'Meerwaardeplan Proeftuin Elsendorp'. Bij deze beleidsuitwerking staat centraal: een gedetailleerde uitwerking van de koppelingen tussen nieuwe initiatieven in het buitengebied en het aanpakken van de verschillende opgaven in het gebied en daarmee een meerwaarde creëren voor de kwaliteit en leefbaarheid van Elsendorp.

De gedeelde doelstelling van de betrokken partijen is om de kwaliteit en leefbaarheid van de fysieke leefomgeving van Elsendorp een impuls te geven. Die impuls wordt gegeven door nieuwe initiatieven in het buitengebied. Initiatiefnemers creëren met hun initiatief maatschappelijke meerwaarde voor Elsendorp door een bijdrage te leveren op het gebied van leefbaarheid, ruimte voor bedrijvigheid en innovatie, waterbeheer, landschappelijke kwaliteit en recreatie-aanbod. Als initiatiefnemers deze meerwaarde niet zelf kunnen realiseren leveren zij op basis van de financiële meerwaarde door een bestemmingsverandering een financiële bijdrage aan het gebiedsfonds. Vanuit dit gebiedsfonds worden projecten (gedeeltelijk) gefinancierd die bijdragen aan de ruimtelijke kwaliteit en vitaliteit van de fysieke leefomgeving van Elsendorp.

Het meerwaardeplan beschrijft de meerwaarde die wordt nagestreefd en de manier waarop initiatieven door middel van maatschappelijke meerwaarde gaan bijdragen aan de doelstellingen voor Elsendorp. Onderdeel van het meerwaardeplan is ook de Landschappelijke inspiratiekaart en bouwstenen landschappelijke meerwaarde. Deze moet initiatiefnemers inspireren om (gezamelijk) te komen tot meerwaarde op gebiedsniveau).

Het meerwaardeplan bevat de criteria om te beoordelen of een initiatief een (significante) meerwaarde heeft voor het in stand houden van een veilige en gezonde fysieke leefomgeving en een goede omgevingskwaliteit van Elsendorp. Dit is een voorwaarde om een vergunning te kunnen verlenen voor initiatieven op basis van dit plan.

2.5 Vertaling visie en meerwaardeplan in bestemmingsplan

De initiatieven in het buitengebied vormen de aanjagers voor het aanpakken van de verschillende gebiedsopgaven.

Om uitvoering te geven aan de visie en het meerwaardeplan is in dit plan gekozen voor een basislaag met bouw- en gebruiksmogelijkheden uit het vorige bestemmingsplan 'Gemert-Bakel Buitengebied 2017': Hoofdstuk 2 Regels voor bestaand gebied (enkelbestemmingen). Daarna is een extra laag toegevoegd (ontwikkellaag): Hoofdstuk 3 Regels voor ontwikkelingen (gebiedsbestemmingen).

Deze ontwikkellaag met bouw- en gebruiksmogelijkheden biedt initiatiefnemers de ruimte om binnen de doelen en ambities van de visie 'Proeftuin Elsendorp' nieuwe initiatieven te ontplooien in het buitengebied.

Onderscheid in deelgebieden

In de verschillende beleidsdocumenten die relevant zijn voor Elsendorp is een tweedeling in het gebied te onderscheiden (zie bijlage 1 van de toelicht, Beleidskaders). Er wordt een beleidsmatig onderscheid gemaakt tussen het gebied aan de noord- en de zuidzijde van de Elsendorperweg. Dit onderscheid komt ook terug in de visie 'Proeftuin Elsendorp'.

Daarom is in dit plan gekozen voor een indeling van de ontwikkellaag in twee deelgebieden: 'Dynamisch buitengebied' en 'Rustig Buitengebied. De grens tussen beide gebieden ligt op de Elsendorpseweg. De inhoud en begrenzing van activiteiten in de ontwikkellaag is gebaseerd op de visie 'Proeftuin Elsendorp' en de interim Omgevingsverordening van de provincie Noord-Brabant.

afbeelding "i_NL.IMRO.1652.BPElsendorp-VO01_0004.jpg"

Figuur 2.3: gebiedsindeling ontwikkellaag bestemmingsplan

Dynamisch buitengebied

Beleidscontext:

  • Vrijwel volledig gemengd landelijk gebied
  • Een deel is aangeduid als ‘Glastuinbouw-doorgroeigebied’
  • Ontwikkelingsmogelijkheden voor de landbouw

Op basis van de visie en de beleidscontext worden in het 'dynamisch buitengebied' de volgende ambities nagestreefd:

In het algemeen:

  • een vitaal en evenwichtig buitengebied waar gewoond, gewerkt en geleefd kan worden door iedereen;
  • als primaat een sterke agrarische economie met innovatieve en duurzame agrarische- en agrarisch gerelateerde bedrijven;
  • de transformatie van bestaande (agrarische) bedrijven naar een nieuwe (neven)functie met een nieuwe economische drager voor locaties:
    • 1. gelegen op een niet duurzame locatie;
    • 2. zonder ontwikkelperspectief;
    • 3. waar de agrarische functie is gestaakt of gaat staken;
    • 4. En bijdraagt aan de karakteristiek van een dynamisch buitengebied.
  • het tegengaan van leegstand van- en verrommeling door- vastgoed;
  • volledig zelfvoorzienend zijn in de energiebehoefte;
  • Een gezond buitengebied, wat in ieder geval het volgende inhoud:
    • 1. Geen milieuhinder
    • 2. Een duurzaam bodem- en watersysteem
    • 3. Een robuuste landschapsstructuur
    • 4. Energie opwekken uit natuurlijke bronnen

Aanvullende ambities specifiek voor de lokaal ondernemerschap:

  • Ontwikkeling van (neven)functies ter bevordering van de relatie dorp en platteland;
  • De transformatie van bestaande (agrarische) bedrijven naar een wooncluster op locaties
    • 1. gelegen op een niet duurzame locatie;
    • 2. zonder ontwikkelperspectief;
    • 3. waar de agrarische functie is gestaakt of gaat staken.

Aanvullende ambities specifiek voor de zone wonen en bedrijvigheid:

  • In de zone zone wonen en bedrijvigheid wordt extra ruimte geboden om een bedrijf aan huis uit te oefenen;
  • Ruimte voor niet-agrarische bedrijven.

Rustig buitengebied

Beleidscontext:

  • Veel gebieden aangeduid als Natuurnetwerk Brabant (NNB)
  • Bijna volledig cultuurhistorisch waardevol gebied
  • Bijna volledig aangeduid als ‘beperkingen veehouderij’
  • Gemengde functies buitengebied
  • Behoud en ontwikkelen natuur
  • Landgoederenzone – Recreatieve zone

Op basis van de visie en de beleidscontext worden in het 'rustig buitengebied' de volgende ambities nagestreefd:

In het algemeen:

  • een vitaal en evenwichtig buitengebied waar gewoond, gewerkt en geleefd kan worden voor iedereen;
  • als primaat een extensief agrarisch gebied met natuur en recreatie;
  • de transformatie van bestaande (agrarische) bedrijven naar een nieuwe (neven)functie met een nieuwe economische drager voor locaties:
    • 1. gelegen op een niet duurzame locatie;
    • 2. zonder ontwikkelperspectief;
    • 3. waar de agrarische functie is gestaakt of gaat staken;

En bijdraagt aan de karakteristiek van en rustig buitengebied.

  • het tegengaan van leegstand van- en verrommeling door- vastgoed;
  • volledig zelfvoorzienend zijn in de energiebehoefte;
  • Een gezond buitengebied, wat in ieder geval het volgende inhoud:
    • 1. Geen milieuhinder
    • 2. Een duurzaam bodem- en watersysteem
    • 3. Een robuuste landschapsstructuur
    • 4. Energie opwekken uit natuurlijke bronnen

Aanvullende ambities specifiek voor de lokaal ondernemerschap:

  • Ontwikkeling van (neven)functies ter bevordering van de relatie dorp en platteland;
  • De transformatie van bestaande (agrarische) bedrijven naar een wooncluster op locaties:
  • gelegen op een niet duurzame locatie;
  • zonder ontwikkelperspectief;
  • waar de agrarische functie is gestaakt of gaat staken.

Aanvullende ambities specifiek voor de zone wonen en bedrijvigheid:

  • In de zone wonen en bedrijvigheid: wordt extra ruimte geboden om een bedrijf aan huis uit te oefenen;
  • Ruimte voor niet-agrarische bedrijven.

Begrenzing activiteiten in ontwikkellaag

Er wordt in het meerwaardeplan onderscheid gemaakt in verschillende categorieën van initiatieven met een oplopende ruimtelijke impact:

  • initiatieven met een beperkte ruimtelijke impact: deze zijn over het algemeen gekoppeld aan de bestaande functie. Deze worden mogelijk gemaakt via de enkelbestemmingen, rechtstreeks of via een afwijking van gebruik- of bouwregels.

Initiatieven die niet passen in de huidige (enkel)bestemming:

  • initiatieven die niet passen binnen de enkelbestemmingen en met nieuw ruimtebeslag met een grotere impact op de omgeving. Deze initiatieven moeten passen binnen de doelen en ambities en een maatschappelijke meerwaarde leveren. Deze worden via de ontwikkellaag (de twee gebiedsbestemmingen mogelijk gemaakt). De maximale begrenzing van deze mogelijkheden is per activiteit in de voorwaarden opgenomen en op de provinciale interim verordening afgestemd.
  • Initiatieven die niet passen binnen de voorwaarden van de ontwikkellaag. Deze vragen specifiek maatwerk en mogelijk ook een afwijking van de provinciale verordening. Deze initiatieven worden niet via dit plan mogelijk gemaakt, maar kunnen als een initiatief meerwaarde heeft op basis van de doelen van de visie en het meerwaardeplan via een aparte procedure worden mogelijk gemaakt.

Samenhang (Structuur-)visie proeftuin Elsendorp, meerwaardeplan en chw-bestemmingsplan,

Dit bestemmingsplan is opgesteld in nauwe samenhang met de visie Proeftuin Elsendorp en het meerwaardeplan. In de visie Proeftuin Elsendorp en het meerwaardeplan zijn verschillende doelen benoemd waar een nieuwe ontwikkeling aan kan bijdragen.

De ontwikkelingen die middels dit bestemmingsplan mogelijk worden gemaakt moeten een meerwaarde hebben voor het in stand houden van een veilige en gezonde fysieke leefomgeving en een goede omgevingskwaliteit. De wijze waarop deze meerwaarde wordt vormgegeven is maatwerk per initiatief. Met de beleidsregel 'Meerwaardeplan proeftuin Elsendorp' wordt beoordeeld of een initiatief aan voldoende meerwaarde levert voor de fysieke leefomgeving. Indien het initiatief zelf niet voldoende meerwaarde levert kan deze geleverd worden door een financiele bijdrage aan het gebiedsfonds. Via het gebiedsfonds worden vervolgens projecten gerealiseerd In Elsendorp die van meerwaarde zijn voor Elsendorp doordat ze bijdragen aan de doelen van van de visie en die de kwaliteit van de fysieke leefomgeving van Elsendorp versterken.

Het meerwaardeplan heeft tot doel de kwaliteit van de fysieke leefomgeving in de vorm van ruimtelijke kwaliteit, leefbaarheid en vitaliteit van Elsendorp een impuls te geven ( deze beleidsregel is gericht op de fysieke leefomgeving op basis van artikel 7c lid 6 in samenhang bezien met artikel 7c lid 1 BuChw). Het meerwaardeplan, in de vorm van een beleidsregel, geeft de wijze aan waarop de doelen uit de visiedocumenten concreet worden gemaakt, benoemt een aantal maatregelen/regels om deze doelen te realiseren en het vormt een belangrijk kader bij de uitwerking/uitvoering van het Chw-bestemmingsplan.

Die impuls wordt onder andere gegeven door (extra) ruimte te bieden aan nieuwe initiatieven in het buitengebied. Initiatiefnemers creëren met hun initiatief dynamiek in het buitengebied. Die dynamiek houdt het buitengebied vitaal, maar moet er tegelijkertijd voor zorgen dat er een bijdrage wordt geleverd aan het saneren van ongewenste situaties, aan de leefbaarheid, de ruimte voor bedrijvigheid en innovatie, het waterbeheer, de landschappelijke kwaliteit en de recreatie-ontwikkeling.

Initiatieven worden getoetst aan hun bijdrage aan de doelen uit de visie en het meerwaardeplan. De gedachte hiervan is om niet alleen per individueel initiatief een meerwaarde te leveren aan de kwaliteit en leefbaarheid van Elsendorp (o.a. op basis van het provinciaal en gemeentelijk beleid voor kwaliteitsverbetering landschap), maar juist te streven naar het verbinden van initiatieven aan elkaar en naar het samen creëren van meerwaarde op gebiedsniveau.

Het meerwaardeplan beschrijft de manier waarop initiatieven met een maatschappelijke meerwaarde gaan bijdragen aan de doelstellingen voor het buitengebied van Elsendorp. Bij dit meerwaardeplan hoort een rekentool om de meerwaarde van een initiatief op eenduidige wijze te bepalen. Uit het samenspel van de regels van het meerwaardeplan en de rekentool volgt of een initiatief zelf voldoende meerwaarde levert of een afdracht doet aan het gebiedsfonds, dat speciaal daarvoor wordt opgericht. Vanuit dat gebiedsfonds worden op basis van afdrachten vanuit initiatieven investeringen in de kwaliteit van het buitengebied (mede)gefinancierd en wordt een bijdrage geleverd aan de ruimtelijke kwaliteit en vitaliteit van Elsendorp. Denk aan nieuwe recreatieplekken of wandelroutes.

De maatschappelijke meerwaarde van een initiatief is van invloed op de hoogte van een eventuele afdracht aan het gebiedsfonds. Hoe groter de maatschappelijke meerwaarde, hoe lager de afdracht aan het gebiedsfonds. Dit systeem stimuleert grote maatschappelijke initiatieven.

Hoofdstuk 3 Ontwikkelingen

3.1 Inleiding

Door het dorp, ondersteund door provincie, gemeente en waterschap, is de visie Proeftuin Elsendorp opgesteld in combinatie met een meerwaardeplan. De gedachte is niet alleen per individueel initiatief een meerwaarde te leveren aan de kwaliteit en leefbaarheid van Elsendorp op basis van het provinciaal en gemeentelijk beleid voor kwaliteitsverbetering landschap, maar de activiteiten en de daaruit voortvloeiende meerwaarde op gebiedsniveau te benaderen.

Bij een zich voordoend initiatief moet deze combinatie er bijvoorbeeld voor zorgen dat er op basis van de richtlijnen van de structuurvisie door het initiatief voldoende meerwaarde ontstaat. Dat kan doordat het initiatief op zichzelf een meerwaarde levert voor Elsendorp en/of door een meerwaarde te leveren om de doelen op gebiedsniveau te bereiken. Het uitgangspunt is dat zo'n tweedeling niet alleen gunstig is voor de initiatiefnemer van het betreffende initiatief maar uiteindelijk ook voor de kwaliteit en leefbaarheid van het hele dorp.

De visie Proeftuin Elsendorp wordt vertaald naar het in voorbereiding zijnde bestemmingsplan met verbrede reikwijdte en het meerwaardeplan. Beide instrumenten vormen in de toekomst het nieuwe afwegingskader voor nieuwe initiatieven in het proeftuingebied.

Het traject van de proeftuin loopt al een aantal jaren. In de voorbereiding hebben initiatiefnemers zich als deelnemer aan de proeftuin kunnen aanmelden, zodat vroegtijdig een beeld zou ontstaan van de wensen van initiatiefnemers maar ook van de toekomst van Elsendorp. Een aantal van de deelnemers hebben een dusdanig concreet initiatief dat deze reeds (planologisch) mogelijk gemaakt kunnen worden middels het nieuwe bestemmingsplan met verbrede reikwijdte. Deze initiatieven moeten passend zijn binnen de beleidskaders die gelden vanaf vaststelling van dit bestemmingsplan.

Koplopers

Vooruitlopen op dit bestemmingsplan zijn de eerste initiatieven van deelnemers aan de Proeftuin mogelijk gemaakt. Met deze zogenoemde koplopers werden de eerste resulaten van de proeftuin zichtbaar, konden de betreffende ondernemers aan de slag en is ook waardevolle ervaring opgedaan voor het met initiatiefnemers te doorlopen proces.

Locatie:   Korte beschrijving initiatief:  
Keizersberg 45   Omzetting van een intensieve veerhouderij ( kalverhouderij) naar een niet agrarische bedrijfsbestemming ten behoeve van een betonmortel- en vloerenbedrijf  
Gerele Peel 31   Vergroting ban een glastuinbouwbedrijf, verplaatsing van de bestaande bedrijfswoning  

Deelnemers in dit plan

Hieronder zijn de locaties van de initiatieven in een lijst weergegeven en kort omschreven wat het initiatief inhoud. De initiatieven die gaan meelopen met het nieuwe bestemmingsplan zijn:

Locatie:   Korte beschrijving van het initiatief:  
Zeelandsedijk 82   Omschakeling van intensieve veehouderij naar (mest)transportbedrijf en mestopslag  
Paradijs 66   Omschakeling van intensieve veehouderij naar bedrijfsbestemming t.b.v. cat. 2-bedrijf  
Elsendorpseweg 28a   Omschakeling van intensieve veehouderij naar bedrijfsverzamelgebouw  
Elsendorpseweg 96a   Verruiming van mogelijkheden bedrijf aan huis t.b.v. uitbreiding horecabedrijf  
Keizersven 34   Omschakeling van een agrarisch bedrijf naar een bedrijfsbestemming t.b.v. een loonwerk- en grondverzetbedrijf  
Zeelandsedijk 35   Ontwikkeling van agrarisch bestemmingsvlak naar woningbouwlocatie (nader uit te werken)  
Elsendorpseweg 73   Omschakeling agrarisch bedrijf naar woningbouwlocatie (nader uit te werken)  
Elsendorpseweg 86   Omschakeling van intensieve veehouderij naar bedrijfsverzamelgebouw  
Gerele Peel 53   Uitbreiding van een bestaand kraanverhuurbedrijf  

De initiatieven zijn integraal en in samenhang gebiedsgericht benadert volgens de geachte van de proeftuin: de initiatieven moeten samen leiden tot een meerwaarde voor de fysieke leefomgeving van Elsendorp. Bij het ene initiatief neemt bijvoorbeeld de oppervlakte en bebouwing toe, maar daar staat tegenover dat op verschillende andere locaties bebouwing en bouwmogelijkheden verdwijnen.

In paragraaf 3.2 is de meerwaarde van de initiatieven in samenhang in relatie tot de visie Proeftuin Elsendorp en het provinciaal- en gemeentelijk beleid beschreven.

In paragraaf 3.10 t/m 3.7 worden de initiatieven specifieker beschreven en tot welke wijziging in het bestemmingsplan dit leidt.

In Hoofdstuk 4 en Bijlage 1 is de ruimtelijke aanvaardbaarheid van de initiatieven in relatie tot een gezonde fysieke leefomgeving en een goede omgevingskwaliteit onderzocht.

In samenhang vormt dit de beoordeling dat de ontwikkelingen aanvaardbaar en uitvoerbaar zijn.

3.2 De meerwaarde voor de fysieke leefomgeving van de initiatieven

  • 1. Visie 'Proeftuin Elsendorp'

Inleiding

In 2019 is de visie 'Proeftuin Elsendorp' opgesteld vanuit een samenwerking van het dorpsoverleg, de initiatiefnemers in het gebied, de gemeente, het waterschap en de provincie Noord-Brabant. Deze partijen willen samen vorm geven aan de kwaliteit en leefbaarheid van Elsendorp. De belangrijke aanleiding voor deze structuurvisie is de huidige en nog te verwachten hoeveelheid leegstand in het buitengebied van Elsendorp, inclusief de ruimtelijke, sociale en maatschappelijke gevolgen van deze leegstand. Volgens de prognose komt er in Elsendorp tot 2030 minimaal 7 hectare aan bedrijfsgebouwen vrij.

Leegstand heeft niet alleen ruimtelijke impact, maar heeft ook gevolgen voor de voorzieningen en daarmee voor de leefbaarheid van Elsendorp. Deze kunnen alleen blijven bestaan wanneer voldoende mensen in Elsendorp kunnen wonen en werken. Gelukkig is er veel ondernemerschap in het dorp. Wanneer deze gekoppeld wordt aan opgaven, zoals het aanpakken van leegstand, ontstaan er kansen om niet alleen voor nu, maar ook voor ondernemers en het buitengebied van de toekomst ruimte te creëren.

De Proeftuin is mede geïnitieerd om gezamenlijk te werken aan de toekomst van Elsendorp. Die samenwerking heeft zowel betrekking op toekomstige functies in en om Elsendorp maar als op samenspraak en overleg. Juist door samen te werken, ontstaan er betere en eenvoudigere oplossingen, die mogelijk zelfs goedkoper zijn door de collectiviteit die ontstaat.

Daarnaast geeft de proeftuin gelegenheid om te oefenen/experimenteren met de nieuwe aanstaande Omgevingswet.

Uitdagingen

Met een gebiedsgerichte aanpak van initiatieven van ondernemers in het buitengebied wordt meer kwaliteit voor ondernemers en inwoners bereikt. Zowel op korte termijn als lange termijn. De doelstelling is een duurzaam en toekomstbestendige ontwikkeling van het dorp en haar inwoners, waardoor voorzieningen behouden kunnen blijven. Er wordt ingezet op samenhang van ontwikkelingen, meerwaarde voor het dorp en saamhorigheid. Daarbij past een sterke stimulering van initiatieven van onderop en regie op ontwikkelingen.

De proeftuin heeft haar uitdagingen geformuleerd. Deze zijn mede ingegeven door het aantal agrarische bedrijven dat reeds is gestopt en nog gaan stoppen. De uitdagingen zijn:

Sociaal-maatschappelijk

Een hechte samenleving bestaat bij een goede spreiding van jong en oud, van ondernemers en inwoners, bij gezamenlijke binding bij het gebied en initiatieven. Maar vooral inzet en betrokkenheid van initiatiefnemers naar elkaar en naar de gemeenschap. In Elsendorp wordt vorm gegeven aan een andere manier van 'maatschappelijk verantwoord ondernemen'. Niets doen betekent leegloop (van jongeren uit het dorp, talent, bedrijvigheid, enz.), verloedering en verarming van het platteland.

De hechte samenleving en betrokkenheid van Elsendorp moet in stand worden gehouden en versterkt. Dit wordt bereikt door samen tot een oplossing te komen. Daarnaast moet meer samenwerking plaatsvinden tussen dorp en buitengebied en tussen ondernemers onderling.

Economisch

Voor het dorp is er de zorg dat er voldoende bedrijvigheid is en blijft. Het is één van de pijlers voor een aantrekkelijk woon-, werk- en leefklimaat. Dit wordt bereikt middels waardecreatie door herbestemmen, ruilen en herontwikkelen. Daarnaast heeft het dorp de ambitie om in 2026 zelfvoorzienend te zijn in haar energiebehoefte.

Ruimtelijk

Daar waar bedrijven stoppen komt er ruimte vrij voor een nieuwe ontwikkeling. Die nieuwe ruimte ligt versnipperd over meerdere locaties. Per locatie moet worden afgewogen of deze geschikt is voor herbestemming of dat door herschikking ruimte geconcentreerd moet en kan worden voor nieuwe functies. Ook is denkbaar dat er veel gesloopt wordt. Bij bedrijven die stoppen rest vaak een bedrijfswoning, afgewogen moet worden of het wonen op deze locatie nog verantwoord is.

Doelen en uitgangspunten

In de visie zijn doelen en uitgangspunten beschreven. Nieuwe ontwikkelingen moeten in meer of mindere mate invulling geven aan de volgende doelen:

  • Duurzame energie: het dorp zelfvoorzienend maken in energie opwek en gebruik, bedrijven minimaal zelfvoorzienend;
  • Leefbaarheid: bieden van aantrekkelijk woon-, werk- en leefklimaat door voldoende ruimte te bieden aan jonge ondernemers, sociale veerkracht versterken, enzovoorts.
  • Milieu: sanering van asbest, terugdringen geurhinder, uitstoot fijnstof en ammoniak
  • Water / klimaat: een robuust en klimaatbestending bodem- en watersysteem van goede kwaliteit;
  • Landbouw: herbestemmen en transformeren
  • Natuur: versterken zones en gebruik door recreatieve ontwikkeling
  • Economie: andere bedrijvigheid, lees legaliseren van bestaande bedrijfsfuncties, is niet vanzelfsprekend. Stimuleren van nieuwe bedrijvigheid op vrijkomende locaties is een goede zaak, maar de locatie alleen, het eigenaarschap is niet bepalend. Door ruilen kan op een andere locatie een beter voorstel ontstaan;
  • Wonen: blijven wonen op een bedrijfslocatie is niet vanzelfsprekend, voldoende woningen bieden op juiste kwaliteit, slopen wat weg kan.
  • Bedrijvigheid, werklocaties: niet alles kan op elke locatie, grote veranderingen maken dat er nieuwe inzichten ontstaan.
  • Ondermijning en criminaliteit: verpaupering en illegaal gebruik tegengaan, sociale controle versterken, enzovoorts.

Deelnemers in de proeftuin worden uitgedaagd om (bij voorkeur samen) met initiatieven te komen die invulling geven aan deze doelen.

  • 2. Provinciale doelen

In de visie 'Proeftuin Elsendorp' worden de provinciale doelstellingen overgenomen. Deze doelstellingen zijn opgenomen in de Omgevingsvisie Noord-Brabant en (concept) Omgevingsverordening Noord-Brabant. Deze worden hierna beschreven.

Omgevingsvisie Noord-Brabant (2018)

Op 14 december 2018 is de Omgevingsvisie Noord-Brabant vastgesteld. Met de visie geeft de provincie aan wat zij belangrijk vinden voor de verbetering en duurzame ontwikkeling van de leefomgeving van de inwoners van Brabant. In de omgevingsvisie heeft Brabant vier hoofdopgaven benoemd om Brabant welvarend, verbonden en klimaatproof te laten zijn. Deze vier hoofdopgaven stellen doelen voor Brabant in 2030 en Brabant in 2050. Aan de basis van de hoofdopgaven liggen veiligheid, gezondheid en een goede omgevingskwaliteit. Hieraan werkt Brabant samen met anderen.

De vier hoofdopgaven:

  • Werken aan de Brabantse energietransitie
  • Werken aan een klimaatproof Brabant
  • Werken aan de slimme netwerkstad
  • Werken aan een concurrerende, duurzame economie

De vier hoofdopgaven hebben een grote ruimtelijke impact. Brabant is te klein als alles naast elkaar plaatsvindt. Het wordt dus passen en meten, met opgaven naast, onder, boven en met elkaar. Meerwaardecreatie en meervoudig slim ruimtegebruik is noodzaak. De opgaven moeten daarom altijd in onderlinge samenhang worden gezien.

Het handelen van de provincie richt zich op het verknopen en verweven van opgaven en het zoeken naar synergie en meerwaarde. Bij het zoeken naar oplossingen voor maatschappelijke opgaven vindt de provincie het belangrijk om vanuit meerdere richtingen naar een ontwikkeling te kijken. Dit wordt het 'diep, rond en breed' kijken genoemd.

  • Diep - niet alleen kijken naar effecten op de bovenste laag in het hier en nu, maar betrekken hierin de dynamiek en randvoorwaarden die de onderste lagen meegeven. Daarbij kijken we op verschillende schaalniveaus naar gelang een vraagstuk daarom vraagt en benutten we de factor tijd actief. Hierbij kijken we ook naar het verleden, de geschiedenis van de lagen op een plek.
  • Rond - niet sectoraal maar combineren opgaven en kansen zodat ontwikkelingen optimaal bijdragen aan een circulair, sterk en sociaal Brabant, waarin alle Brabanders zich prettig voelen. Vanuit een gebiedsgerichte insteek. Een nieuwe ronde manier van kijken naar een balans tussen people, planet en profit.
  • Breed – niet kijken vanuit één gezichtspunt maar betrek daar veel partijen bij, met al hun gezichtspunten, meningen, wensen, ideeën en belangen.

Concept Omgevingsverordening Noord-Brabant (21 september 2020)

De provincie wil de omgevingskwaliteit van Brabant bevorderen, in combinatie met een veilige en gezonde leefomgeving. Bij omgevingskwaliteit gaat het om de kwaliteit van een plek of gebied, die bepaald wordt door een goed samenspel van herkomstwaarde, belevingswaarde, gebruikswaarde en toekomstwaarde. De karakteristiek van een plek of gebied bestaat uit herkomst- en belevingswaarden. Onderling zijn deze nauw verbonden en geworteld in een lang historisch ontwikkelingsproces.

In de verordening is een zorgplicht opgenomen voor een goede omgevingskwaliteit. Daarmee wordt een bijdrage geleverd aan een juiste balans tussen beschermen en benutten. Bij de evenwichtige toedeling van functies speelt de balans tussen beschermen en benutten een belangrijke rol.

De zorgplicht voor een goede omgevingskwaliteit omvat een aantal basisprincipes in combinatie met een diepe en ronde manier van kijken, die afkomstig zijn uit de Brabantse omgevingsvisie:

zorgvuldig ruimtegebruik – doel is om bestaand bebouwd gebied zo goed mogelijk te benutten. Het optimaal benutten van de bestaande bebouwde omgeving draagt bij aan het behoud van de openheid en kwaliteit van het buitengebied en aan hergebruik van leegkomende of bebouwingslocaties in zowel stedelijk als landelijk gebied;

toepassing van de lagenbenadering - het is van belang om te weten hoe de omgeving in elkaar steekt en te kijken naar alle lagen: de ondergrond, de netwerklaag, de bovenlaag en de tijdsdimensie en naar de wisselwerking tussen deze lagen. Iedere laag kent zijn eigen dynamiek, verschillende veranderingssnelheid en mate van omkeerbaarheid bij ingrepen. Hierbij gaat het ook om de effecten van een ontwikkeling elders, nu en in de toekomst;

meerwaardecreatie – door vanuit meerdere kanten (people, planet, profit) naar een initiatief te kijken, wordt het initiatief en daarmee Brabant, er beter van.

In de verordening zijn geen regels opgenomen voor de brede manier van kijken. Participatie en samenwerking zijn in de Brabantse praktijk een vanzelfsprekendheid. Vanuit provinciaal belang zijn er naast de basisprincipes ook specifieke regels voor onderwerpen opgenomen in deze verordening.

De provincie hecht veel waarde aan het versterken van de omgevingskwaliteit in het landelijk gebied. Een ontwikkeling moet gepaard gaan met een fysieke verbetering van de landschappelijke kwaliteit van het gebied of de omgeving. Daarnaast geldt een grote opgave in het landelijk gebied om leegstaande bebouwing tegen te gaan. Veel agrarische ondernemers stoppen met de bedrijfsvoering. Om leegstand, verpaupering, criminaliteit en verstening van het buitengebied tegen te gaan is een bouw-sloop regeling opgenomen in de verordening. Hier wordt het principe van zorgvuldig ruimtegebruik gehanteerd. Wanneer hergebruik niet mogelijk is kan er gesloopt worden en eenzelfde hoeveelheid bebouwing terug worden gebouwd.

Indien er in een gebied ontwikkelingen mogelijk worden gemaakt dan dienen deze te passen binnen de gestelde ontwikkelingsrichting voor dit gebied waarin de basisprincipes zijn toegepast. Hierbij moet rekening worden gehouden met de kwaliteitsverbetering landschap en de bouw-sloop regeling.

De verordening maakt daarnaast een aantal rood-voor-groen ontwikkelingen mogelijk buiten bestaand ruimtebeslag. Hierdoor ontstaan meer mogelijkheden voor ontwikkelingen in het landelijk gebied met als voorwaarde dat de rode ontwikkeling volledig wordt ingezet om de groene doelen te behalen.

  • 3. Diepe, ronde en brede meerwaarde op basis van doelen van de proeftuin

Bij het zoeken naar oplossingen voor maatschappelijke opgaven dient vanuit meerdere richtingen naar een ontwikkeling gekeken te worden. Dit wordt het 'diep, rond en breed' kijken genoemd. De provincie hoopt met deze manier van kijken verschillende doelen met elkaar te verweven en slimme combinaties te maken. Zo ontstaat een grotere meerwaarde voor een gebied.

Hieronder wordt ingegaan op dit diep, rond en breed kijken voor de 'Proeftuin Elsendorp'.

Diep

De provincie kijkt niet alleen naar de bovenste laag (het hier en nu), maar neemt ook de dynamiek en randvoorwaarden mee die voortkomen uit de onderste lagen.

afbeelding "i_NL.IMRO.1652.BPElsendorp-VO01_0005.png"

Figuur 3.21 - diepe manier van kijken (bron: provincie Noord-Brabant)

Ondergrond

Het gebied rond Elsendorp is grotendeels gevormd door de Peelrandbreuk. Dit is bepalend geweest voor de locaties waar mensen zich zijn gaan vestigen. De Peelrandbreuk levert natte hoge gronden op en droge lage gronden. Het hoogveen dat ontstond op de hogere delen resulteerde in een moerassig gebied dat slecht toegankelijk was. Dit gebied staat bekend als 'De Peel'. Geleidelijk aan vormden zich dorpen rond De Peel op de overgangen tussen de drogere dekzandruggen en lagere beekdalen.

Elsendorp en De Rips is pas in de 2e helft van de 19e op grote schaal ontgonnen. Door het gebied droger te maken werd het mogelijk om er te gaan wonen. Elsendorp vindt zijn oorsprong in het proefbedrijf 'de Annahoeve' op het landgoed de Dompt die in 1910 werd gebouwd. De Rips is een bosontginningsdorp dat begin 20e eeuw is ontgonnen. Bij De Rips zijn bomen aangeplant. In de jaren '50 van de 20e eeuw is de natte heide bijna geheel verdwenen en vervangen door een omvangrijk bosgebied.

Netwerklaag

De veranderingen en keuzes in de netwerklaag (infrastructuur, waterwegen, spoorlijnen, rioleringen, natuurnetwerk, energienetwerken) vergen vaak grote investeringen en werken lang door. Door de ontoegankelijkheid van de Peel is het gebied van Elsendorp heeft het dorp een karakteristieke noord-zuid en oost-west ontsluiting. De verschillende kleine nederzettingen in het gebied zijn maar via één of twee wegen bereikbaar. Aan de netwerklaag, zoals deze aanwezig is worden middels de initiatieven maar beperkt veranderingen doorgevoerd. Zo wordt voornamelijk de omgeving groen ingepast en worden in enkele gevallen stukken natuur bij bestaande natuur gevoegd. Verder is het dorp van plan een wandelroute en fietsroutes aan te leggen met de gelden verkregen uit het meerwaardeplan.

Occupatielaag

De bovenlaag kent de hoogste veranderingssnelheid. De tijdsspanne die daarvoor staat is zo'n 10 á 40 jaar. Deze laag omvat veel zaken die met dit bestemmingsplan ook worden gewijzigd. Het gaat dan om zaken als wonen, werken en recreëren. Ook invloeden op lucht en atmosfeer zijn onderdeel van deze ontwikkelingen.

De transitie waar de landbouw door gaat heeft veel invloed op deze laag, maar ook demografische en economische ontwikkelingen spelen een rol. Zo is er niet voor alle veehouderijen een opvolger. Vertrekken veel mensen naar grotere steden en dorpen en vergrijst de overgebleven groep. Het stoppen van veehouderijen verbeterd de luchtkwaliteit enorm. Dit is indirect ook erg belangrijk voor de atmosfeer. Invloeden op de atmosfeer zijn moeilijk te repareren. Veehouderijen hebben nu eenmaal een negatieve impact op de atmosfeer.

Belangrijk aan deze laag is dat de ontwikkelingen die nu mogelijk worden gemaakt voor (tientallen) jaren kunnen blijven bestaan. In deze laag wordt de leefbaarheid van Elsendorp voor nu en in de toekomst bepaald. De intensieve veehouderijen die de omgeving jaren hebben bepaald wijzigen nu van functie. Dit is nodig om leegstand en ondermijning tegen te gaan. Bovendien kan met een andere invulling van deze gebouwen ook weer werkgelegenheid worden geboden voor nu en in de toekomst. Middels een groot deel van de ontwikkelingen wordt een nieuwe invulling gevonden voor de locaties met (leegstaande) intensieve veehouderijen. Dit bevordert de werkgelegenheid in Elsendorp. Een goede werkgelegenheid draagt weer bij aan de leefbaarheid van Elsendorp.

In de nabije toekomst komen nog meer landbouwbedrijven vrij voor ander gebruik. Denk alleen al aan het aantal nertsenfokkerijen dat gedwongen is vervroegd te stoppen als gevolg van de corona crisis.

Middels dit bestemmingsplan en de nauwe samenhang met de visie Proeftuin Elsendorp en het meerwaardeplan wordt een structuur geboden waarin richting wordt gegeven aan hoe Elsendorp er in de komende decennia uit gaat zien. Er wordt voor verschillende deelgebieden gekozen waarmee het dorp invulling geeft aan de woon- en leefbaarheid van Elsendorp en omgeving. Daarom moeten initiatieven meerwaarde bieden. Initiatieven moeten een verbetering aan het landschap doorvoeren.

Tijd

De factor tijd gaat over het verleden en de toekomst. Welke zaken zijn er in het verleden geleerd? Wat brengt de toekomst? Het is zaak deze factor optimaal te benutten. Kijkend naar het verleden dringt het besef door dat zoveel intensieve veehouderijen op zo'n klein oppervlakte veel invloed hebben op de kwaliteit van de woon- en leefomgeving van de mens. De provincie biedt dan ook subsidieregelingen aan voor veehouders om te kunnen stoppen. In Elsendorp stoppen door de transitie van de landbouw en het niet beschikbaar hebben van een opvolger vele boerenbedrijven en komen deze boerderijen leeg te staan. Andere boeren die doorgaan gaan de bedrijfsvoering steeds meer verduurzamen en innoveren. Het dorp kiest ervoor om deze locaties te clusteren om de invloed op het woon- en leefklimaat verder te beperken.

De toekomst brengt ook de Omgevingswet. Om bestaande problemen te tackelen en in te kunnen spelen op nieuwe problemen is het dorp van mening dat er zo snel mogelijk moet kunnen worden ingespeeld op nieuwe behoeftes. Daarom wordt dit bestemmingsplan met verbrede reikwijdte opgesteld. Met dit bestemmingsplan wordt de afwegingsruimte bvan een goede ruimtelijke ordening verbreed naar een meerwaarde voor de fysieke leefomgevingen en worden initiatieven mogelijk gemaakt die in samenhang en gebiedsgericht een meerwaarde voor de fysieke leefomgeving van Elsendorp handen en voeten te geven aan haar toekomst.

Samenhang in de lagenbenadering

Door diep te kijken wordt getracht rekening te houden met de laag-dynamische ondergrond, maar ook met de effecten op de andere lagen en toekomstige effecten. Het gaat er daarbij om met de initiatieven die nu spelen de levenskwaliteit in economisch, sociaal en ecologisch opzicht te behouden en de levenskwaliteit elders niet te schaden.

De benoemde ontwikkelingen hebben een beperkte tot geen invloed op de ondergrond en netwerklaag. In de occupatielaag verandert er des te meer. Er wordt volop ingezet om het woon- en leefklimaat in Elsendorp te verbeteren. Er wordt nieuwe invulling gevonden voor leegstaande boerderijen en ontwikkelingen dragen zelf bij aan de kwaliteit van de fysieke leefomgeving of door een bijdrage aan het gebiedsfonds waardoor ontwikkelingen met eem meerwaarde voor de gemeenschap van Elsendorp mogelijk worden gemaakt.

Rond

Bij het rond kijken probeert de opgaven en kansen te combineren, zodat ontwikkelingen optimaal bijdragen aan een circulair, sterk en sociaal Brabant. Het gaat er daarbij om niet alleen vanuit een ecologische, sociale of economische hoek naar de ontwikkelingen te kijken, maar deze integraal op te behandelen. Dat gebeurt vanuit het people, planet, profit principe:

  • People: wat betekent het initiatief voor de gemeenschap in termen van veiligheid en gezondheid, sociale samenhang (sociale inclusiviteit) en kwaliteit van de leefomgeving? Hebben mensen profijt van het initiatief in hun omgeving?
  • Planet: hoe draagt het initiatief bij aan meer circulariteit en daarmee volhoudbaarheid van onze leefomgeving (minder energie- grondstofverspilling, minder klimaatbelasting)?
  • Profit: wat levert het op voor een economisch sterke (top)positie van Brabant?

De provincie hanteert hiervoor een gebiedsgerichte aanpak.

afbeelding "i_NL.IMRO.1652.BPElsendorp-VO01_0006.png"

Figuur 3.22 - ronde manier van kijken (bron: provincie Noord-Brabant)

Voor Elsendorp zijn diverse doelen geformuleerd in de visie 'Proeftuin Elsendorp'. Deze visie is gestoeld op een gebiedsgerichte aanpak van initiatieven. Met die gebiedsgerichte aanpak willen ze meer kwaliteit bieden aan de inwoners en ondernemers van Elsendorp. In de tabel hieronder is uiteengezet welke meerwaarde de initiatieven (inclusief de koplopers) samen bieden voor Elsendorp en omgeving vormen.

#   Wijzigingen als gevolg van initiatieven   Meerwaarde voor de fysieke leefomgeving van Elsendorp  
1   Er verdwijnen  7 agrarische bouwvlakken van 1,5 ha met mogelijkheden voor de ontwikkeling van (intensieve) veehouderijen.   - Verdwijnen bouwvlakken: wegnemen bouwmogelijkheden.
- Vermindering leegstand, verpaupering tegengaan.
- Minder (potentiële) milieubelasting
- Minder geurhinder  
2   Er komen 7 nieuwe niet agrarische bedrijven bij.   - Nieuwe economische dragers
- Bijdrage aan werkgelegenheid van Elsendorp
- Diversificatie van bedrijvigheid in Elsendorp  
4   Uitbreiding van 2 kleinschalige bedrijven aan huis   - Bepaald voorzieningsniveau blijft gehandhaafd/verbeterd.
- Bevordert de levendigheid in het buitengebied.  
5   Uitbreiding van een bestaand agrarisch bedrijf (glastuinbouw)   - versterking van de plattelandseconomie
- Bijdrage aan werkgelegenheid van Elsendorp  
6   Realisatie van nieuwe natuur   - Er wordt ongeveer 15 ha nieuwe (openbare) natuur gerealiseerd.
- Deels wordt er aangesloten bij de ontwikkeling rond de Peelse loop: ontwikkeling natuur en verbeteren watersysteem.  
7   Realisatie van groene inpassing   - Er wordt ruim 16 ha nieuw groen gerealiseerd.
- Verbetering ruimtelijke kwaliteit.  
8   Sloop van bestaande bebouwing bij 3 initiatieven   - De sloop van overtollige (agrarische) bedrijfsgebouwen levert direct een verbetering van de ruimtelijke kwaliteit op.
- In een van de sloopgevallen wordt asbest gesaneerd.
- afname van verhard oppervlak heeft een positieve invloed op het watersysteem.  
9   Verkeer en parkeren   - Een van de initiatieven stelt zijn parkeerplaats openbaar, zodat recreanten voor het natuurgebied hier ook kunnen parkeren.
- Een van de initiatieven kent nu nog meerdere bedrijfslocaties door het gebied heen en bundelt deze. Dit zorgt voor minder verkeer tussen de bedrijfslocaties.  
10   Bijdrage aan duurzaamheid   - Een van de initiatieven stelt zijn daken beschikbaar aan een zonnepanelenbedrijf. Er wordt zodoende stroom teruggeleverd aan het net.
- Het kraanbedrijf gaat zijn wagenpark op termijn volledig elektrisch maken.  
11   Komst van een speelschuur   - Meer recreatieve mogelijkheden binnen Elsendorp
- Bevordert de levendigheid in het buitengebied.  
12   Bijdrage in het gebiedsfonds per initiatief   Ieder initiatief moet bijdrage aan de kwaliteit van de fysieke leefomgeving leveren. Indien de bijdrage van de ontwikkeling zelf onvoldoende is wordt een bijdrage geleverd aan het gebiedsfonds. Uit deze gelden worden projecten die bijdragen aan de doelen van de visie Proeftuin en zo voor maatschappelijke meerwaarde zorgen gerealiseerd, zoals de aanleg van een wandelroute.  

De initiatieven in samenhang bezien dragen bij aan de realisatie van de doelen van de visie Proeftuin (zie ook hieronder breed kijken).

Breed

Het breed kijken betekent letterlijk het betrekken van meerdere partijen, zodat niet vanuit één gezichtspunt wordt gekeken naar de ontwikkelingen. In de Proeftuin Elsendorp is dit goed terug te zien. Deze visie is van onderuit (het dorp) opgesteld. Hierbij zijn bewoners, bezoekers, ondernemers, gemeente, provincie en waterschap betrokken geraakt. In de visie staat omschreven op welke manier een gebiedsgerichte aanpak kan worden bereikt waarmee initiatieven van ondernemers in het buitengebied kunnen leiden tot meer kwaliteit voor ondernemers en inwoners van Elsendorp.

afbeelding "i_NL.IMRO.1652.BPElsendorp-VO01_0007.png"

Figuur 3.23 - breed kijken zinspeelt op een samenwerking tussen overheid, initiatiefnemer en omgeving (bron: provincie Noord-Brabant)

Vanuit Elsendorp wordt ingezet op samenhang van ontwikkelingen, meerwaarde voor het dorp en saamhorigheid. Daarbij worden initiatieven van onderop gestimuleerd en wordt regie gevoerd op deze ontwikkelingen.

De gemeente, provincie en waterschap zijn als adviseur betrokken in de zin dat zij verrommeling van het buitengebied tegen willen gaan, ondermijning, de economie en leefbaarheid versterken en verduurzaming stimuleren. Gemeente, Provincie en waterschap trekken op als één overheid, ondersteunen de ontwikkelingen en gebiedsgerichte aanpak proactief.

  • 4. Initiatieven en het waterbelang

In hoofdstuk 7 (bodem en water) van Bijlage 3 planMER en passende beoordeling is omschreven hoe om wordt gegaan met het waterbelang binnen het plangebied. De watertoets is een proces waarmee in ruimtelijke plannen de mogelijke risico's (zoals waterveiligheid, wateroverlast, waterkwaliteit, verdroging en verzilting van grond- en oppervlaktewater) en kansen van water vroegtijdig in beeld worden gebracht in overleg met de waterbeheerders. In dit geval is het waterschap Aa en Maas als waterbeheerder een van de betrokken partijen binnen de Proeftuin Elsendorp.

Voor ieder initiatief wordt een seperate watertoets uitgevoerd om de effecten op de waterhuishouding in kaart te brengen.

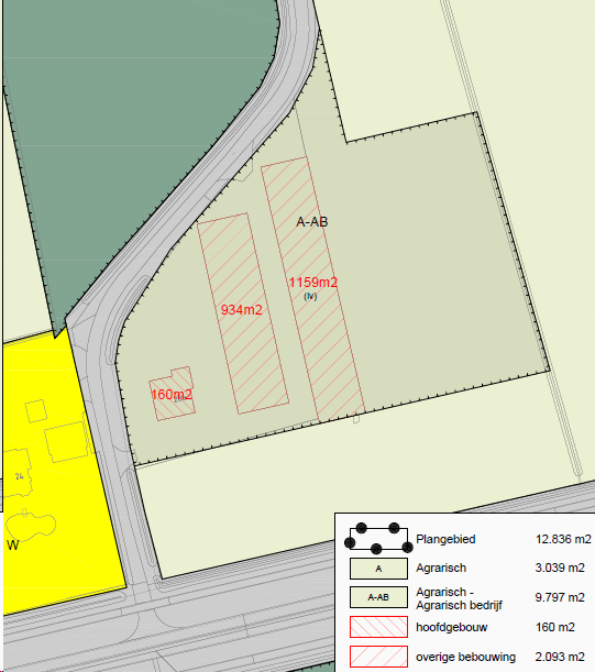
3.3 Zeelandsedijk 82 te Elsendorp

Huidige situatie

Aan de Zeelandsedijk 82 te Elsendorp is een voormalige intensieve veehouderij gevestigd. De huidige bestemmingslegging is dan ook 'Agrarisch - Agrarisch bedrijf' met de aanduiding 'intensieve veehouderij'. De varkenshouderij die is gevestigd op deze locatie is beëindigd. Op de locatie is één bedrijfswoning gevestigd. Naast de varkenshouderij is een woning gevestigd en ten zuiden is een andere intensieve veehouderij gevestigd die ook reeds is beëindigd. In het noorden grenst het perceel aan de gronden van de gemeente Boekel en aan de Landmeersche loop.

De voormalige varkenshouderij deelt de inrit met de woning aan de Zeelandsedijk 82.

afbeelding "i_NL.IMRO.1652.BPElsendorp-VO01_0008.png"

Figuur 3.6 - huidige situatie met de inrit aan de Zeelandsedijk 82 (bron: Google maps)

afbeelding "i_NL.IMRO.1652.BPElsendorp-VO01_0009.png"

Figuur 3.7 - huidige situatie Zeelandsedijk 82

Gewenste ontwikkeling

De initiatiefnemer heeft zelf een transport- en mestverwerkingsbedrijf en is van plan de voormalige varkenshouderij om schakelen tot opslagplaats waar de mest tijdelijk wordt opgeslagen tot er een definitieve afzetlocatie is gevonden. Dit moet plaatsvinden in de kelders van twee nieuw te bouwen loodsen. De huidige bedrijfswoning en het bijgebouw blijft behouden. In vierkante meters uitgedrukt blijft het bebouwd oppervlakte gelijk of minder dan de huidige situatie.

De huidige inrit wordt gedeeld met de woning aan de Zeelandsedijk 82. Ook voor de toekomstige situatie is dit een afdoende situatie, hoewel de inrit aan de kleine kant is. Er wordt dan ook nog gezocht naar een structurele oplossing voor deze situatie. Complicerende factor is dat de inrit is gelegen langs een watergang en langs de gronden van de gemeente Boekel.

Op het terrein vindt enige landschappelijke inpassing plaats in de vorm van een bomenrij om de ruimtelijke kwaliteit op het perceel te versterken. De initiatiefnemer wil verder de landschappelijke inpassing vorm geven op andere gronden aan de Zeelandsedijk. Daarmee wordt afdoende ruimtelijke kwaliteitsverbetering geleverd.

Het initiatief past binnen de ontwikkelrichting van het gebied zoals beschreven in de visie 'Proeftuin Elsendorp'. De locatie ligt binnen het deelgebied 'agrarisch ondernemen' waar ruimte is voor niet agrarische bedrijvigheid op VAB-locaties. Met de omschakeling naar een agrarisch-verwant bedrijf wordt leegstand tegengegaan van deze voormalige varkenshouderij.

Toetsing aan Visie proeftuin

Binnen de visie 'Proeftuin Elsendorp' is het bedrijf gelegen in de zone dynamisch buitengebied in het deelgebied 'agrarisch ondernemen'. Hier is tevens ruimte voor niet-agrarische bedrijvigheid op VAB-locaties.

Dit initiatief draagt daarmee bij aan de volgende doelen uit de visie proeftuin:

  • Tegengaan leegstand/verpaupering;
  • Terugdringen geurhinder, uitstoot fijnstof en ammoniak;
  • Verkleining bouwmogelijkheden/ verstening door verkleinen bouwvlak en begrenzing oppervlakte aan gebouwen tot bestaande omvang;
  • Afkoppelen Regenwater;
  • Natuur: uitbreiding van het groen;
  • Economie: behouden bedrijvigheid. Stimuleren groei;
  • Duurzame energie: het bedrijf wil op termijn een volledig elektrisch wagenpark realiseren.

Motivatie in relatie tot het meerwaardeplan

De beoogde ontwikkeling valt in categorie 2 uit het meerwaardeplan. Het initiatief maakt gebruik van van de bouw en gebruiksmogelijkheden uit de ontwikkellaag van het Chw-bestemmingsplan. 20% van de bruto meerwaarde van de ontwikkeling wordt in het gebiedsfonds gestort. Hiermee kan de gemeenschap zelfstandig eigen projecten financiëren die bijdragen aan de leefbaarheid van Elsendorp. De meerwaarde die op eigen perceel wordt gerealiseerd wordt in mindering gebracht met het bedrag dat gestort moet worden in het gebiedsfonds.

Op deze locatie wordt de bedrijfsbebouwing herbouwd. Tevens wordt er landschappelijk ingepast in de vorm van een bomenrij om de ruimtelijke kwaliteit op het perceel te versterken. De initiatiefnemer wil verder de landschappelijke inpassing vorm geven op andere gronden aan de Zeelandsedijk. De kosten hiervoor worden afgetrokken van het bedrag dat naar het gebiedsfonds wordt gestort.

Toetsing aan provinciale verordening

De intensieve veehouderij schakelt om naar een agrarisch-verwant bedrijf. In de Interim Omgevingsverordening wordt daarom getoetst aan Artikel 3.61 voor de Vestiging van een agrarisch-verwant bedrijf in Gemengd gebied. De ontsluiting van het perceel loopt via de inrit langs de woning aan de Zeelandsedijk 82. Deze ontsluiting is voor vrachtwagens aan de smalle kant maar afdoende. Op termijn wordt nog naar een structurele oplossing gezocht.

De overtollige bebouwing wordt gesloopt en vervangen voor nieuwe loodsen met daaronder een kelder voor de opslag van mest. Op het perceel vindt geen mestbewerking plaats.

Het bedrijf is minder dan 1,5 hectare groot en voldoet daarmee aan de eisen voor omvang uit de verordening.

Het waterschap heeft de opgave voor het realiseren van natuurvriendelijke oevers aan de landmeersche loop. De beoogde ontwikkeling staat dit niet in de weg.

Vertaling in bestemmingsplan

Wijziging regels

Op het perceel wordt de bestemming 'Bedrijf' toegekend met de aanduiding 'specifieke vorm van bedrijf - agrarisch verwant' en een maatvoeringsaanduiding 'maximum oppervlakte bebouwing'. Het totale oppervlak Bedrijf bedraagt zo'n 11.500 m². De randen van het perceel worden bestemd als 'Groen'.

Wijziging Verbeelding

afbeelding "i_NL.IMRO.1652.BPElsendorp-VO01_0010.png"

Figuur 3.8 - verbeelding nieuwe situatie Zeelandsedijk 82

3.4 Paradijs 66 te Elsendorp

Huidige situatie

Aan de Paradijs 66 te Elsendorp is een voormalige varkenshouderij gevestigd met een grootte van 1,5 hectare. De voormalig stal/schuur wordt momenteel gebruikt voor het eigen kleinschalige aannemingsbedrijf, waarbij de voormalige stal dient als opslagruimte. Het perceel is bestemd als 'Agrarisch - Agrarisch Bedrijf' met de aanduiding 'intensieve veehouderij'.

afbeelding "i_NL.IMRO.1652.BPElsendorp-VO01_0011.png"

Figuur 3.9 - huidige situatie Paradijs 66

Gewenste ontwikkeling

De initiatiefnemer zet graag zijn aannemingsbedrijf voort en wil daarom de bestemming wijzigen naar een bedrijfsbestemming bedrijf. Het bouwvlak wordt hierbij verkleind tot 5.000 m². De bestaande bebouwing blijft gehandhaafd in het kader van de bedrijfsactiviteiten van de aannemer. Om ruimtelijke kwaliteit toe te voegen is gekozen een groenstrook om de bedrijfslocatie heen te leggen.

Het overige deel van de bestemming (het westelijk deel) wordt omgezet naar 'Agrarisch'. Hierin ligt onder andere een paardenbak die behouden blijft.

Toetsing aan Visie proeftuin

Binnen de visie proeftuin is dit initiatief gelegen in het dynamisch buitengebied binnen het deelgebied 'agrarisch ondernemen/food'. Hier is tevens ruimte voor niet-agrarische bedrijvigheid op VAB-locaties.

Met dit initiatief wordt bijgedragen aan de volgende doelen uit de visie Proeftuin Elsendorp:

  • Transformeren naar een nieuwe economische drager voor vrijkomende agrarische bebouwing en daarmee tegengaan leegstand;
  • Bouwmogelijkheden worden verkleind door verkleinen bouwvlak en begrenzing oppervlakte aan gebouwen tot bestaande omvang;
  • Het bedrijfsperceel wordt landschappelijk ingepast.

Motivatie in relatie tot het meerwaardeplan

De beoogde ontwikkeling valt in categorie 2 uit het meerwaardeplan. Het initiatief maakt gebruik van van de bouw en gebruiksmogelijkheden uit de ontwikkellaag van het Chw-bestemmingsplan. 20% van de bruto meerwaarde van de ontwikkeling wordt in het gebiedsfonds gestort. Hiermee kan de gemeenschap zelfstandig eigen projecten financiëren die bijdragen aan de leefbaarheid van Elsendorp. De meerwaarde die op eigen perceel wordt gerealiseerd wordt in mindering gebracht met het bedrag dat gestort moet worden in het gebiedsfonds.

Op deze locatie wordt landschappelijk ingepast in de vorm van een groenstrook om de bedrijfslocatie heen. De kosten hiervoor worden afgetrokken van het bedrag dat naar het gebiedsfonds wordt gestort.

Toetsing aan provinciale verordening

In de Interim Omgevingsverordening is de locatie aan de Paradijs 66 aangegeven als 'Sanerings- en verplaatsingslocatie agrarisch bedrijf'. Indien een van de volgende regelingen is toegepast voorziet een bestemmingsplan in een passende herbestemming. Regeling Beëindiging Veehouderijtakken (RBV), Subsidieregeling Beëindiging Intensieve Veehouderijen (BIV), Subsidieregeling sanering glastuinbouwbedrijven in kwetsbare gebieden (GTB), Verplaatsingsregeling Intensieve Veehouderij (VIV) en/of Subsidieregeling urgentiegebieden Noord-Brabant 2016 (SUN).

Daarnaast is er tevens sprake van vestiging van een niet-agrarische functie in landelijk gebied binnen de bestaande bebouwing. De vestiging van een aannemingsbedrijf past goed binnen de in de visie 'Proeftuin Elsendorp' beschreven ontwikkelingsrichting van dit gebied. De locatie ligt in de zone wonen en bedrijvigheid en daar is ruimte voor bedrijven met een milieucategorie tot 3.2. Met de ingebruikname van een voormalige stallen wordt leegstand van dit gebouw voorkomen. Middels een zoom van groen om het bedrijfsperceel heen wordt ook gewerkt aan een versterking van de omgevingskwaliteit. De omvang van het bouwvlak wordt verkleind tot een grootte van 5.000 m², zodat er alleen kleinschalige bedrijvigheid zich kan vestigen. In het kader van zuinig ruimtegebruik (algemene regels van de verordening) moet een bouwvlak aansluiten bij de gebouwen In het gebied liggen veel grote (voormalig) agrarisch intensieve veehouderijen. In het bestemmingsplan wordt geregeld dat opslag en stalling plaats vindt in de gebouwen

Vertaling in bestemmingsplan

Wijziging regels

Het perceel krijgt de bestemming 'Bedrijf' en functieaanduiding 'specifieke vorm van bedrijf – aannemersbedrijf'. Om het bedrijfsperceel komt een groenbestemming te liggen. Het westelijk deel krijgt een agrarische bestemming zonder bouwmogelijkheden. De paardenbak blijft gehandhaafd en krijgt een aanduiding binnen de regels verbeelding

Wijziging Verbeelding

afbeelding "i_NL.IMRO.1652.BPElsendorp-VO01_0012.png"

Figuur 3.10 - verbeelding nieuwe situatie Paradijs 66

3.5 Elsendorpseweg 28a te Elsendorp

Huidige situatie

Aan de Elsendorpseweg 28a te Elsendorp is een voormalig intensieve veehouderij gevestigd. Op locatie is een vergunning voor geitenhouderij afgegeven. Momenteel zit er een aantal kleinschalige bedrijven in de meest oostelijke stal. Het bedrijf wordt in het noorden en zuiden omgeven door natuur/bos. Aan weerszijden van de veehouderij zijn woningen gevestigd. Iets noordelijker is nog een andere (inmiddels beëindigde) intensieve veehouderij gevestigd.

afbeelding "i_NL.IMRO.1652.BPElsendorp-VO01_0013.png"

Figuur 3.11 - huidige situatie Elsendorpseweg 28a

Gewenste ontwikkeling

De initiatiefnemer wenst het perceel aan de Elsendorpseweg 28a om te schakelen naar een bedrijfslocatie met een bedrijfsverzamelgebouw en tevens recreatiebedrijf. De oostelijke stal wordt daarbij gesloopt en herbouwd naar een kinderspeelhal. De andere stal wordt ingericht als bedrijfsverzamelgebouw.

Het terrein tussen het agrarisch bouwvlak en de weg wordt omgezet naar een openbare parkeervoorziening voor zowel het bedrijf als voor recreanten die het natuurgebied willen ontdekken. Op deze manier wordt invulling gegeven aan het leveren van een maatschappelijke meerwaarde door dit bedrijf.

Toetsing aan visie proeftuin

Binnen de visie proeftuin is dit initiatief gelegen in het dynamisch buitengebied binnen het deelgebied 'agrarisch ondernemen/food'. Hier is tevens ruimte voor niet-agrarische bedrijvigheid op VAB-locaties.

Met dit initiatief wordt bijgedragen aan de volgende doelen uit de visie Proeftuin Elsendorp:

  • Transformeren naar een nieuwe economische drager voor vrijkomende agrarische bebouwing en daarmee tegengaan leegstand;
  • Bouwmogelijkheden worden verkleind door verkleinen bouwvlak en begrenzing oppervlakte aan gebouwen tot bestaande omvang;
  • Het bedrijfsperceel wordt landschappelijk ingepast;
  • Leefbaarheid: vernieuwing bedrijfspanden;
  • Recreatie: ruimte bieden voor bezoekers van het naastgelegen natuurgebied.

Motivatie in relatie tot het meerwaardeplan

De beoogde ontwikkeling valt in categorie 2 uit het meerwaardeplan. Het initiatief maakt gebruik van van de bouw en gebruiksmogelijkheden uit de ontwikkellaag van het Chw-bestemmingsplan. 20% van de bruto meerwaarde van de ontwikkeling wordt in het gebiedsfonds gestort. Hiermee kan de gemeenschap zelfstandig eigen projecten financiëren die bijdragen aan de leefbaarheid van Elsendorp. De meerwaarde die op eigen perceel wordt gerealiseerd wordt in mindering gebracht met het bedrag dat gestort moet worden in het gebiedsfonds.

Op deze locatie wordt kwaliteitsverbetering geleverd in de vorm van herbouw van bestaande bebouwing en in de vorm van een openbaar parkeerterrein voor recreanten van het nabijgelegen natuurgebied. De kosten hiervoor worden afgetrokken van het bedrag dat naar het gebiedsfonds wordt gestort.

Toetsing aan provinciale verordening

Ook is er sprake van vestiging van een niet-agrarische functie in landelijk gebied binnen de bestaande bebouwing. De vestiging van een bedrijfsverzamelgebouw en speelschuur dienen hiervoor getoetst te worden aan de ontwikkelrichting van het gebied, zoals omschreven in de visie 'Proeftuin Elsendorp'. De locatie is gelegen in de zone wonen en bedrijvigheid. In dit deelgebied wordt ruimte geboden aan bedrijvigheid voor niet-agrarische bedrijven tot milieucategorie 3.2. Tegelijkertijd wordt leegstand of illegaal gebruik van de stallen tegengegaan. Door de parkeerplaats openbaar te stellen wordt direct een maatschappelijke meerwaarde aan de omgeving geboden. Daarnaast wordt het perceel omzoomd door een landschappelijke inpassing.

De bedrijfsbestemming voor het bedrijfsverzamelgebouw is kleinschalig te noemen gezien het oppervlakte van 3.000 m². Ook de oppervlakte voor de speelhal is kleinschalig met 2.500 m². Opslag en stalling vindt plaats in de gebouwen.

Voor de speelhal wordt in de verordening gesteld dat de omvang van bebouwing maximaal 1 hectare groot mag zijn, Hieraan wordt met een bebouwing van ongeveer 1.150 m² ruim aan voldaan.

Vertaling in bestemmingsplan

Wijziging regels

Het perceel krijgt een bestemming 'Bedrijf' met de aanduidingen 'specifieke vorm van bedrijf - recreatiebedrijf' voor de speelschuur en 'specifieke vorm van bedrijf - bedrijfsverzamelgebouw' voor het bedrijfsverzamelgebouw. Verder wordt een deel van de gronden bestemd als Groen en Agrarisch. Op de bestemming agrarisch komt voor de openbare parkeerplaats de aanduiding 'specifieke vorm van agrarisch - openbare parkeerterrein'. Voor het parkeerterrein uitsluitend behorende het recreatiebedrijf is een aanduiding 'specifieke vorm van bedrijf - parkeerterrein uitsluitend ten behoeve van recreatiebedrijf' opgenomen.

Wijziging Verbeelding

afbeelding "i_NL.IMRO.1652.BPElsendorp-VO01_0014.png"

Figuur 3.12 - verbeelding nieuwe situatie Elsendorpseweg 28a

3.6 Elsendorpseweg 96a te Elsendorp

Huidige situatie

In de huidige situatie is aan de Elsendorpseweg 96a een bedrijf aan huis gevestigd, een cateringbedrijf in Grieks eten. Ook is er winkel in delicatesse, worden er kookworkshops gegeven en worden er een beperkt aantal gasten ontvangen. Er mag maximaal 100 m² aan gebouwen worden ingericht voor beroep aan huis, maximaal milieucategorie 2.

afbeelding "i_NL.IMRO.1652.BPElsendorp-VO01_0015.png"

Figuur 3.15 - huidige situatie Elsendorpseweg 96a

Gewenste ontwikkeling

De initiatiefnemer heeft de wens om de mogelijkheden van het bedrijf aan huis uit te breiden ten bate van horeca, zodat er maximaal 130 m² aan bebouwing mogelijk wordt voor het bedrijf aan huis. Dit is voor o.a. de keuken, opslag, koelingen, klein restaurantje en praktijkruimte voor kookworkshops. Ze willen daarbij ook een boerderijterras beginnen om passerende recreanten te kunnen ontvangen.

Er is reeds een landschappelijke inpassing aanwezig op het perceel. Deze is echter nog niet bestemd. In deze ontwikkeling wordt de landschappelijke inpassing ook bestemd.

Toetsing aan visie proeftuin

Binnen de visie proeftuin is dit initiatief gelegen in het dynamisch buitengebied binnen het deelgebied 'lokaal ondernemerschap'. Hier is tevens ruimte voor de ontwikkeling van nevenfuncties ter bevordering van de relatie dorp en platteland door bijvoorbeeld recreatief medegebruik of kleinschalige bedrijvigheid.

Het initiatief draagt bij aan de volgende doelstellingen van de proeftuin:

  • Leefbaarheid: ruimte voor nevenfuncties, bieden aantrekkelijk woon- en leefklimaat;
  • Economie: stimulering nevenfuncties/bedrijvigheid;
  • Natuur: uitbreiding van het groen.

Motivatie in relatie tot het meerwaardeplan

De beoogde ontwikkeling valt in categorie 2 uit het meerwaardeplan. Het initiatief maakt gebruik van van de bouw en gebruiksmogelijkheden uit de ontwikkellaag van het Chw-bestemmingsplan. 20% van de bruto meerwaarde van de ontwikkeling wordt in het gebiedsfonds gestort. Hiermee kan de gemeenschap zelfstandig eigen projecten financiëren die bijdragen aan de leefbaarheid van Elsendorp. De meerwaarde die op eigen perceel wordt gerealiseerd wordt in mindering gebracht met het bedrag dat gestort moet worden in het gebiedsfonds.

Op deze locatie wordt landschappelijk ingepast in de vorm van een groenstrook bij de woonbestemming. De kosten hiervoor worden afgetrokken van het bedrag dat naar het gebiedsfonds wordt gestort.

Toetsing aan provinciale verordening

Het gaat hier om het (beperkt) uitbreiden van een bestaande niet-agrarische functie in het landelijk gebied. Dit gebeurt in het in de visie 'Proeftuin Elsendorp' benoemde deelgebied wonen en bedrijvigheid of lokaal ondernemerschap. Deze zone is hier enigzins diffuus door het ligging van de woning ver van de straat. Toch kan gesteld worden dat de locatie behoort tot de zone wonen en bedrijvigheid gezien de ontsluiting aan de Elsendorpseweg. De zone wonen en bedrijvigheid voorziet in extra uitbreidingsruimte van bedrijvigheid aan huis. De beperkt uitbreiding heeft geen verdere beperkende werking op omliggende bedrijven of woningen. Doordat er in een eerdere fase reeds is geïnvesteerd in een landschappelijke inpassing is deze al gerealiseerd voordat deze ontwikkeling afgerond is. De inpassing wordt in dit bestemmingsplan wel bestemd en daarmee is de instandhouding en onderhoud geborgd.

Vertaling in bestemmingsplan

Wijziging regels

De woonbestemming blijft behouden. De bouwmogelijkheden (max 130 m² aan bedrijvigheid aan huis) en horecabestemming worden specifiek aangeduid op de verbeelding en in de regels.

Wijziging Verbeelding

afbeelding "i_NL.IMRO.1652.BPElsendorp-VO01_0016.png"

Figuur 3.16 - verbeelding nieuwe situatie Elsendorpseweg 96a

3.7 Keizersven 34 te Elsendorp

Huidige situatie

Aan de Keizersven 34 te Elsendorp is een voormalige intensieve veehouderij gelegen. Op de bebouwing is asbest aanwezig.

afbeelding "i_NL.IMRO.1652.BPElsendorp-VO01_0017.png"

Figuur 3.19 - huidige situatie Keizersven 34

Gewenste ontwikkeling

Elsendorp en de gemeente Gemert-Bakel, gaan concentreren aan de Keizersven 34. De huidige bebouwing wordt daarbij gesloopt. Op locatie wil de initiatiefnemer tevens buitenopslag van grond en puin afkomstig van agrarische bedrijven opslaan.

De visie 'proeftuin Elsendorp' is de locatie gelegen binnen de deelbestemming 'agrarisch ondernemen'. Op VAB-locaties kan ruimte gemaakt worden voor niet-agrarische bedrijvigheid. Dit agrarisch-verwante bedrijf past binnen deze terminologie.

Om het geheel landschappelijk in te passen is gekozen een aarden wal met beplanting om het gehele bedrijf heen aan te leggen.

Toetsing aan Visie proeftuin

Binnen de visie proeftuin is dit initiatief gelegen in het dynamisch buitengebied binnen het deelgebied 'agrarisch ondernemen/food'.

Het initiatief draagt bij aan de volgende doelstellingen van de proeftuin:

  • Nieuwe invulling leegstaande locatie;
  • Verwijderen asbest;
  • Afkoppelen regenwater;
  • Zonnepanelen op het dak;
  • Bouwvlak wordt verkleind.

Motivatie in relatie tot het meerwaardeplan

De beoogde ontwikkeling valt in categorie 2 uit het meerwaardeplan. Het initiatief maakt gebruik van van de bouw en gebruiksmogelijkheden uit de ontwikkellaag van het Chw-bestemmingsplan. 20% van de bruto meerwaarde van de ontwikkeling wordt in het gebiedsfonds gestort. Hiermee kan de gemeenschap zelfstandig eigen projecten financiëren die bijdragen aan de leefbaarheid van Elsendorp. De meerwaarde die op eigen perceel wordt gerealiseerd wordt in mindering gebracht met het bedrag dat gestort moet worden in het gebiedsfonds.

Op deze locatie wordt landschappelijk ingepast in de vorm van een groenstrook om de bedrijfslocatie heen. De kosten hiervoor worden afgetrokken van het bedrag dat naar het gebiedsfonds wordt gestort.

Toetsing aan provinciale verordening

De locatie is gelegen aan de Keizersven 34. Het perceel is gelegen tussen een aantal agrarische erven met relatief grote bedrijfspercelen. De omvang van het resterende bedrijfsperceel past bij de schaal en maat van de bedrijfspercelen in deze omgeving.

De vestiging van een agrarisch-verwant bedrijf in gemengd landelijk gebied is mogelijk mits de omvang van het bouwperceel maximaal 1,5 hectare bedraagt. De ontwikkeling moet leiden tot een goede omgevingskwaliteit met een veilige, gezonde leefomgeving qua omvang, effect op omliggende functies en de ontsluiting past in de omgeving. De ontwikkeling bedraagt iets meer dan één hectare en past daarmee binnen de omvang van de andere bedrijvigheid in de omgeving. Bovendien worden kleinere locaties van het loonwerkbedrijf gebundeld op één locatie waardoor er gelijk geen verkeersbewegingen meer noodzakelijk zijn tussen de locaties. Ook wordt intrek genomen in een leegstaande intensieve veehouderij wat leegstand tegengaat. De sloop van de bebouwing saneert direct ook de aanwezige asbest.

Het geheel wordt landschappelijk versterkt door de aanleg van een beplante aarden wal om het perceel.

Vertaling in bestemmingsplan

Wijziging regels

De locatie krijgt een bedrijfsbestemming met de aanduidingen 'specifieke vorm van bedrijf - agrarisch verwant' en 'specifieke vorm van bedrijf - buitenopslag'. Om het perceel heen wordt de landschappelijke inpassing bestemd als 'Groen'.

Wijziging Verbeelding

afbeelding "i_NL.IMRO.1652.BPElsendorp-VO01_0018.png"

Figuur 3.20 - verbeelding nieuwe situatie Keizersven 34

3.8 Zeelandsedijk 35

Huidige situatie

In de huidige situatie is er een agrarisch bouwvlak met de bestemming 'Agrarisch - Agrarisch bedrijf' gevestigd aan de Zeelandsedijk 35.

afbeelding "i_NL.IMRO.1652.BPElsendorp-VO01_0019.png"

Figuur 3.21 - huidige situatie Zeelandsedijk 35

Gewenste ontwikkeling

De initiatiefnemer is voornemens woningbouw te realiseren op zijn terrein aansluitend aan het agrarisch bouwvlak. Het agrarisch bouwvlak blijft hierbij echter behouden. De woningbouwlocatie heeft dan ook betrekking op een deel van het agrarisch bestemmingsvlak ten oosten van het bouwvlak.

Toetsing aan visie proeftuin

Binnen de visie proeftuin is dit initiatief gelegen in het dynamisch buitengebied binnen het deelgebied 'lokaal ondernemerschap'. Binnen dit deelgebied wordt ruimte geboden aan de transformatie van agrarische bedrijven naar een wooncluster op niet duurzame locaties of zonder ontwikkelperspectief of waar de agrarische functie gestaakt is of gaat worden.

Het initiatief draagt daarmee bij aan de volgende doelen:

  • Leefbaarheid: door de creatie van nieuwe woningen wordt het woon- en leefklimaat in het dorp verbeterd. Het voorzieningenniveau kan blijven;
  • Landbouw: transformatie van landbouwgebied;
  • Milieu: terugdringen uitstoot fijnstof;
  • Wonen: voldoende woningen bieden.

Motivatie in relatie tot het meerwaardeplan

De beoogde ontwikkeling valt in categorie 2 uit het meerwaardeplan. Het initiatief maakt gebruik van van de bouw en gebruiksmogelijkheden uit de ontwikkellaag van het Chw-bestemmingsplan. 20% van de bruto meerwaarde van de ontwikkeling wordt in het gebiedsfonds gestort. Hiermee kan de gemeenschap zelfstandig eigen projecten financiëren die bijdragen aan de leefbaarheid van Elsendorp. De meerwaarde die op eigen perceel wordt gerealiseerd wordt in mindering gebracht met het bedrag dat gestort moet worden in het gebiedsfonds.

De beoogde ontwikkeling valt in categorie 2 uit het meerwaardeplan. Het initiatief maakt gebruik van van de bouw en gebruiksmogelijkheden uit de ontwikkellaag van het Chw-bestemmingsplan. 20% van de bruto meerwaarde van de ontwikkeling wordt in het gebiedsfonds gestort. Hiermee kan de gemeenschap zelfstandig eigen projecten financiëren die bijdragen aan de leefbaarheid van Elsendorp. De meerwaarde die op eigen perceel wordt gerealiseerd wordt in mindering gebracht met het bedrag dat gestort moet worden in het gebiedsfonds. De wijze waarop de zelf te realiseren meerwaarde wordt ingevuld wordt nog nader bepaald. In het ontwerpbestemmingsplan wordt dit definitief ingevuld.

Toetsing aan provinciale verordening

De gronden zijn in beeld om woningbouw op te gaan plegen als aanvulling op het dorp. Aansluitend op de structuurvisie proeftuin Elsendorp past het om meer woningen te realiseren. In de kern zelf is geen ruimte meer voor woningbouw en om de groei van het dorp en daarmee het voorzieningenniveau op peil te houden is het noodzakelijk aan de rand van het dorp uit te breiden.

De wijze waarop dit invullen krijgt wordt aan de hand van de milieucontouren van de omliggende bedrijven nog uitgewerkt.

Vertaling in bestemmingsplan

Wijziging regels

Omdat de uitwerking nog niet eenduidig is wordt voorlopig de bestemming 'Wonen - nader uit te werken' opgenomen in de planregels.

Wijziging Verbeelding

afbeelding "i_NL.IMRO.1652.BPElsendorp-VO01_0020.png"

Figuur 3.22 - nieuwe situatie Zeelandsedijk 35

3.9 Elsendorpseweg 73

Huidige situatie

Aan de Elsendorpseweg 73 is een bloemenkwekerij voor zomerbloemen gevestigd. Vanwege een gewijzigde privé situatie is de initiatiefnemer voornemens het bedrijf naar een kleinere locatie te verhuizen en daar voort te zetten. De locatie is bestemd als 'Agrarisch - Agrarisch bedrijf'. Er is één bedrijfswoning aanwezig.

afbeelding "i_NL.IMRO.1652.BPElsendorp-VO01_0021.png"

Figuur 3.23 - huidige situatie Elsendorpseweg 73

Gewenste ontwikkeling

De initiatiefnemer is voornemens op de locatie de bedrijfsbebouwing en kassen te saneren en een woonlocatie te ontwikkelen met een maximum van vijf woningen. De bedrijfswoning wordt omgezet naar een woonbestemming. Daarnaast worden dan nog vier andere burgerwoningen gerealiseerd.

De exacte situering van de planlocatie wordt nader bepaald in relatie tot de naastgelegen bedrijven.

Toetsing aan visie proeftuin

Binnen de visie proeftuin is dit initiatief gelegen in het rustig buitengebied binnen het deelgebied 'wonen bedrijvigheid'. Binnen dit deelgebied wordt ruimte geboden aan nieuwe woonmogelijkheden eventueel met extra ruimte voor bedrijvigheid aan huis of aan huis gebonden beroepen.

Dit initiatief draagt daarmee bij aan de volgende doelen uit de visie proeftuin:

  • Herbestemming en transformatie van voormalig agrarische bedrijven;
  • Water: minder verhard oppervlak/sloop bebouwing;
  • Wonen: voldoende woningen bieden;
  • Tegengaan leegstand/verpaupering.

Motivatie in relatie tot het meerwaardeplan

De beoogde ontwikkeling valt in categorie 2 uit het meerwaardeplan. Het initiatief maakt gebruik van van de bouw en gebruiksmogelijkheden uit de ontwikkellaag van het Chw-bestemmingsplan. 20% van de bruto meerwaarde van de ontwikkeling wordt in het gebiedsfonds gestort. Hiermee kan de gemeenschap zelfstandig eigen projecten financiëren die bijdragen aan de leefbaarheid van Elsendorp. De meerwaarde die op eigen perceel wordt gerealiseerd wordt in mindering gebracht met het bedrag dat gestort moet worden in het gebiedsfonds.

De maatschappelijke meerwaarde van dit initiatief zit in het mogelijk maken van extra woningen rond de kern van Elsendorp. Daarmee wordt bijgedragen een de groei van Elsendorp naar 1500 inwoners om het dorp leefbaar te houden en voorzieningen te behouden.

Toetsing aan provinciale verordening

Voor deze ontwikkeling wordt nog uitgezocht welke optie om tot realisatie van de vier woningen te komen wordt gebruikt. Aan de ene kant is er de optie om ruimte-voor-ruimte titels aan te kopen en de andere optie betreft het verplaatsen van bouwtitels van elders uit Elsendorp.

Het omzetten van de bedrijfswoning naar een burgerwoning is passend binnen de verordening.

Vertaling in bestemmingsplan

Wijziging regels

Omdat de uitwerking nog niet eenduidig is wordt voorlopig de bestemming 'Wonen - nader uit te werken' opgenomen in de planregels. Er geldt een maximum van vijf toegestane woningen.

Wijziging Verbeelding

afbeelding "i_NL.IMRO.1652.BPElsendorp-VO01_0022.png"

Figuur 3.24 - verbeelding nieuwe situatie Elsendorpseweg 73

3.10 Elsendorpseweg 86 te Elsendorp

Huidige situatie

Aan de Elsendorpseweg 86 te Elsendorp was in het verleden een agrarisch bedrijf in de vorm van een intensieve veehouderij (varkenshouderij) gevestigd. De veehouderij activiteiten zijn gestaakt. De voormalige stallen zijn voor een deel verbouwd om ruimten te kunnen verhuren aan kleine of startende ondernemers en particulieren. Een ander deel wordt op dit moment verbouwd voor een zelfde functie.

Op dit moment kent het perceel de bestemming 'Agrarisch - Agrarisch bedrijf' met de functieaanduiding 'intensieve veehouderij', de functieaanduiding 'specifieke bouwaanduiding - beeldbepalend pand' en een maximum bebouwingspercentage van maximaal 60%. Er is een bedrijfswoning met bijgebouw en de voormalige stallen op het perceel aanwezig. De mestsilo is verwijderd.

In de omgeving van de varkenshouderij liggen meerdere intensieve veehouderijen en enkele woningen.

afbeelding "i_NL.IMRO.1652.BPElsendorp-VO01_0023.png"

Figuur 3.1 - huidige situatie Elsendorpseweg 86

Gewenste ontwikkeling

De initiatiefnemer is gestopt met de varkenshouderij en is voornemens in zijn bedrijfsgebouwen een bedrijfsverzamelgebouw te vestigen. De ontwikkeling vindt plaats in 'dynamisch buitengebied'.

Om de ontwikkeling mogelijk te maken wordt onder andere het bouwvlak verkleind en wordt het perceel landschappelijk ingepast. De landschappelijke inpassing bestaat uit bossingels aan de rand van het bedrijfsperceel om gebouwen aan het zicht te onttrekken en daarnaast uit een landschap speciaal ingericht voor bijen. Ook zijn de daken van de voormalige stallen van zonnepanelen voorzien. Deels voor het voorzien van de eigen energiebehoefte, maar voor het overgrote deel wordt zonne-energie geleverd aan het net. De nieuwe bestemming wordt dan 'Bedrijf' en krijgt een oppervlakte van 9.779 m². In totaal wordt er 5.671 m² aan landschappelijke inpassing gerealiseerd.

afbeelding "i_NL.IMRO.1652.BPElsendorp-VO01_0024.png"

Figuur 3.2 - oude en nieuwe situatie Elsendorpseweg 86

Toetsing aan visie proeftuin

Binnen de visie proeftuin is dit initiatief gelegen in het dynamisch buitengebied binnen het deelgebied 'Wonen en bedrijvigheid'. In dit deelgebied is ruimte voor niet-agrarische bedrijvigheid tot milieucategorie 3.2.

Met dit initiatief wordt bijgedragen aan de volgende doelen uit de visie Proeftuin Elsendorp:

  • Transformeren naar een nieuwe economische drager voor vrijkomende agrarische bebouwing en daarmee tegengaan leegstand;
  • Bouwmogelijkheden worden verkleind door verkleinen bouwvlak en begrenzing oppervlakte aan gebouwen tot bestaande omvang;
  • Minder oppervlakteverharding door sloop mestsilo;
  • Regenwater wordt afgekoppeld;
  • Verwijderen asbest;
  • Het bedrijfsperceel wordt landschappelijk ingepast waarbij het landschap ingericht wordt speciaal voor bijen. Dit bevordert de biodiversiteit;
  • Er wordt een bijdrage geleverd aan verduurzaming en de energietransitie doordat daken van de voormalige stallen voorzien zijn van zonnepanelen (voor eigen gebruik en gebruik derden).

Motivatie in relatie tot het meerwaardeplan

De beoogde ontwikkeling valt in categorie 2 uit het meerwaardeplan. Het initiatief maakt gebruik van van de bouw en gebruiksmogelijkheden uit de ontwikkellaag van het Chw-bestemmingsplan. 20% van de bruto meerwaarde van de ontwikkeling wordt in het gebiedsfonds gestort. Hiermee kan de gemeenschap zelfstandig eigen projecten financiëren die bijdragen aan de leefbaarheid van Elsendorp. De meerwaarde die op eigen perceel wordt gerealiseerd wordt in mindering gebracht met het bedrag dat gestort moet worden in het gebiedsfonds.

Op deze locatie wordt de mestsilo gesaneerd en wordt een deel van het perceel landschappelijk ingepast. De kosten hiervoor worden afgetrokken van het bedrag dat naar het gebiedsfonds wordt gestort.

Toetsing aan provinciale verordening

De niet-agrarische functie wordt gevestigd in 'landelijk gebied'. Deze ontwikkeling wordt daarom getoetst aan Artikel 3.73 Vestiging niet-agrarische functie in Landelijk gebied. Iedere ruimtelijke ontwikkeling die hier mogelijk wordt gemaakt moet gepaard gaan met een verbetering van de landschappelijke kwaliteit van het gebied of de omgeving. Hiervoor is de mestsilo gesloopt en een groot deel van het perceel landschappelijk ingepast. Hiermee wordt bijgedragen aan de verbetering van de omgevingskwaliteit in het gebied. Ook moet de vestiging van een niet agrarische functie passen binnen de gewenste ontwikkelingsrichting van het gebied. Dit staat beschreven in de visie 'Proeftuin Elsendorp'. Deze locatie ligt binnen de visie binnen de zone wonen en bedrijvigheid van Elsendorp. In de zone wonen en bedrijvigheid is ruimte voor omvorming van voormalige agrarisch bedrijven in het geval dit leegstand voorkomt. Vanuit de provinciale verordening dient het bedrijf te worden gevestigd op een bestaand bouwperceel. Ook aan deze eis wordt voldaan.

Naast deze eis stelt de provincie dat bedrijvigheid kleinschalig moet zijn en moet passen binnen een gemende omgeving waardoor het niet doelmatig is om deze op een bedrijventerrein te vestigen. De omvang van het bedrijf moet worden bezien in relatie tot de korrelgrotte van de erven aan de Elsendorpseweg in het landschap. In de omgeving zijn een aantal grote intensieve veehouderijen gevestigd. Deze zijn zelfs gelijk of groter in omvang en bouwhoogte dan dit initiatief. De omvang van het bedrijfsperceel is passend bij de schaal en maat van de overige bedrijfspercelen in deze omgeving en in relatie tot de omliggende percelen kleinschalig.

In de Visie Proeftuin Elsendorp is voor de wegassen Elsendorpseweg (N272) en Zeelandsedijk (N277) specifiek beleid opgenomen. Deze wegassen zijn kenmerkend in het landschap van Elsendorp en vormen de verkeersontsluiting van het dorp en regio. Aan deze wegassen wordt ruimte geboden voor wonen en bedrijvigheid die qua maat en schaal hierbij passend zijn.

De omvang van het beoogde bedrijfsperceel bedraagt 9.779 m2. De drie voormalige stallen blijven behouden en krijgen een nieuwe bedrijfsfunctie bedrijfsverzamelgebouw. De maximale omvang aan gebouwen bedraagt 4.254 m2. Deze maximale omvang aan gebouwen wordt geborgd in de regels van het bestemmingsplan. Gezien het maximum oppervlakte aan gebouwen (onder de 5.000 m2) en de ligging aan de wegassen waar ruimte geboden wordt voor bedrijvigheid conform Visie Proeftuin Elsendorp, is deze ontwikkeling hier passend.

Tevens ligt het niet in de rede dat dit bedrijf zich kan vestigen op een bedrijventerrein. De bedrijfsvoering is voornamelijk gericht aan het verhuren van ruimten aan kleine en startende ondernemers. Dit type ondernemers huurt graag ruimten tegen een relatief lage huurprijs. Op (regionale) bedrijventerreinen is dat vaak onmogelijk. Wel kunnen startende ondernemers doorgroeien en vervolgens wel de stap maken om nieuwe ruimte te huren op een (regionale) bedrijventerrein. Dit type bedrijfsverzamelgebouwen zijn daarom ook voor de regio belangrijk voor het ontstaan van nieuwe bedrijvigheid.

Vertaling in bestemmingsplan

Wijziging regels

De functie 'Bedrijf' wordt toegekend aan de locatie waar de bedrijfsgebouwen staan. Rondom het bedrijfsvlak wordt een groenbestemming gelegd om de landschappelijke inpassing in te passen. De specifieke bouwaanduiding 'beeldbepalend pand' blijft behouden. Verder worden de functieaanduidingen 'statische opslag' en 'specifieke vorm van bedrijf - bedrijfsverzamelgebouw' toegevoegd aan de locatie. Ook geldt de aanduiding 'caravanstalling' om caravans te mogen stallen.

Wijziging Verbeelding

afbeelding "i_NL.IMRO.1652.BPElsendorp-VO01_0025.png"

Figuur 3.3 - verbeelding nieuwe situatie Elsendorpseweg 86

3.11 Gerele Peel 53 te Elsendorp

Huidige situatie

Aan de Gerele Peel 53 zit een kraanverhuurbedrijf. Op dit moment kent het perceel de bestemming 'Bedrijf' met de functieaanduiding 'specifieke vorm van bedrijf - niet agrarisch'. Het bedrijfsperceel bestaat uit twee bedrijfsvlakken met een koppelteken. Op het terrein vindt de stalling en opslag van werktuigen voor civieltechnische projecten plaats. Op de locatie zit ook een kantoor en een werkplaats voor onderhoud en reparatie.

In de omgeving liggen enkele woningen, een intensieve veehouderij aan de overkant en agrarische gronden. Direct aansluitend in het oosten ligt een paardenbak. Ten zuiden ligt een natuurbestemming met de functieaanduiding bos die weer grenst aan de Peelse loop.

afbeelding "i_NL.IMRO.1652.BPElsendorp-VO01_0026.png"

Figuur 3.4 - huidige situatie Gerele Peel 53

Gewenste ontwikkeling

Het bestaande kraanverhuurbedrijf is groeiende en wil uitbreiden met circa 2 hectare. De wens is om het bouw- en bestemmingsvlak uit te breiden naar het oosten. Hier worden nieuwe loodsen gerealiseerd voor de opslag van materiaal en voertuigen. Ook willen ze een hogere goothoogte hanteren, zodat de kranen in het gebouw passen. De nieuwe goothoogte bedraagt 11 meter. Tevens is er op termijn de wens het kantoor de verplaatsen naar de hoek bij de Zeelandsedijk.

Het bedrijf wil ook het perceel met de bestemming 'Natuur' uitbreiden naar het oosten om invulling te geven aan landschappelijke inpassing. Er wordt bijna 15.000 m² natuur gerealiseerd. Door het aanleggen van extra natuur wordt het natuuroppervlak groter en robuuster. Bovendien haakt dit qua ligging goed aan op de natuurzone langs de Peelse loop waar ook plannen liggen voor de ontwikkeling van een wandelroute.

De voorgestelde ontwikkelingsrichting valt buiten de in dit bestemmingsplan gestelde 'ontwikkellagen'. Het bedrijf valt dan ook in categorie 3 uit het meerwaardeplan, een initiatief dat niet direct past binnen de voorwaarden die gelden in dit chw-bestemmingsplan. Aangetoond moet worden dat de activiteit een (significante) meerwaarde heeft voor het in stand houden van een veilige en gezonde fysieke leefomgeving en een goede omgevingskwaliteit. Of hieraan wordt voldaan wordt getoetst aan de hand de beleidsregel 'Meerwaardeplan proeftuin Elsendorp'.

Toetsing aan visie proeftuin

Binnen de visie 'Proeftuin Elsendorp' is het bedrijf gelegen in de zone dynamisch buitengebied in het deelgebied 'agrarisch ondernemen'. Hier is tevens ruimte voor niet-agrarische bedrijvigheid.

Dit initiatief draagt daarmee bij aan de volgende doelen uit de visie proeftuin:

  • Leefbaarheid: bieden van voldoende werkgelegenheid in het gebied;
  • Natuur: uitbreiding van het groen en versterking zones;
  • Economie: behouden bedrijvigheid. Stimuleren groei;
  • Duurzame energie: het bedrijf wil op termijn een volledig elektrisch wagenpark realiseren.

Motivatie in relatie tot het meerwaardeplan

De beoogde ontwikkeling valt in categorie 3 uit het meerwaardeplan. 85% van de bruto meerwaarde van de ontwikkeling wordt in het gebiedsfonds gestort. Hiermee kan de gemeenschap zelfstandig eigen projecten financiëren die bijdragen aan de leefbaarheid van Elsendorp. De meerwaarde die op eigen perceel wordt gerealiseerd wordt in mindering gebracht met het bedrag dat gestort moet worden in het gebiedsfonds.

Op deze locatie wordt de bedrijfsbestemming uitgebreid en wordt het perceel naast het natuurgebied landschappelijk ingepast. De kosten hiervoor worden afgetrokken van het bedrag dat naar het gebiedsfonds wordt gestort.

Toetsing aan provinciale verordening

De niet-agrarische functie wordt uitgebreid in 'landelijk gebied'. Deze ontwikkeling wordt daarom getoetst aan Artikel 3.72, sub c, Bestaande niet-agrarische functie in Landelijk gebied en Artikel 3.73 Vestiging niet-agrarische functie in Landelijk gebied. In dit artikel is vermeld dat het is toegestaan om te voorzien in een redelijke uitbreiding als dat past binnen de gewenste ontwikkelingsrichting van het gebied. Binnen de visie 'Proeftuin Elsendorp' is het bedrijf gevestigd in het deelgebied 'agrarisch ondernemen'. Hier is tevens ruimte voor niet-agrarische bedrijvigheid. Bij voorkeur wel op VAB-locaties. Daarmee past deze ontwikkeling binnen de visie. De ontwikkeling levert tevens een belangrijke aan de directe en indirecte werkgelegenheid voor Elsendorp is het wenselijk het bedrijf op deze locatie te behouden en uit te breiden.

Het bedrijf heeft een grote omvang. De provinciale verordening stelt dat een bedrijf een binnen de omgeving passende omvang heeft. De omvang van de op zichzelf staande beoogde ontwikkeling is groter dan wat de provincie een 'passende omvang' vindt. Door diep, rond en breed naar te situatie te kijken is de nieuwe omvang van het bedrijf passend te maken binnen de omgeving. Daarvoor dient dit initiatief bekeken te worden in het licht van de andere initiatieven die mogelijk worden gemaakt (zie de integrale, gebiedsgerichte benadering zoals beschreven in paragraaf 3.2. Bij de andere initiatieven neemt het bouwvlak in omvang af en/of wordt bedrijfsbebouwing gesloopt.

Deze ontwikkeling kent als enige initiatief samen met de Zeelandsedijk 35 een uitbreiding van het bouwvlak. Aan de Zeelandsedijk 35 wordt bouwvlak toegevoegd voor wonen. Wanneer naar de totale omvang van bouwvlak voor bedrijvigheid wordt gekeken blijft het saldo bouwvlak ten behoeven van bedrijvigheid min of meer gelijk.

Conform het provinciaal ruimtelijk beleid is het wenselijk dat een bedrijf met dergelijke omvang zich vestigt op een regionaal bedrijventerrein. Dat betekent dat dit bedrijf niet meer in Elsendorp is gevestigd en mogelijk ook niet meer binnen de gemeente Gemert-Bakel.

Met deze ontwikkeling wordt deze locatie in samenhang van de ontwikkeling van naastgelegen percelen en aansluitend aan glastuinbouwbedrijven bedrijvigheid en bebouwing geconcentreerd op een locatie die goed ontsloten is op de provinciale weg. In de Visie Proeftuin Elsendorp is het belang van het behoud van bedrijvigheid beschreven. Voldoende bedrijven en werkgelegenheid is één van de schakels om de leefbaarheid van het dorp te behouden. Het dorp heeft de ambitie om te groeien naar 1.500 inwoners. Met dit aantal inwoners kunnen bepaalde (basis)voorzieningen zoals een basisschool, sportvereniging en (kleine) winkels behouden blijven. Er zijn allerlei schakels die kunnen bijdrage aan deze ambitie, zorgen voor voldoen werkgelegenheid is er daar één van. Het dorp heeft het belang van het behouden van dit bedrijf uitgesproken. Dit bedrijf zorgt voor veel directe werkgelegenheid (werknemers in loondienst), maar ook voor indirecte werkgelegenheid (onderaannemers uit Elsendorp en de regio).

Daarnaast draagt ontwikkeling van dit bedrijf bij aan de kwaliteitsverbetering van het landschap en de biodiversiteit. Er wordt voor circa 15.000 m2 landschappelijke inpassing en nieuwe natuur aangelegd. De nieuwe natuur sluit aan bij de beoogde ontwikkeling van de Peelse Loop. In het meerwaardeplan en de landschapsvisie is de ambitie opgenomen om de Peelse Loop te herinrichten met natuur en een recreatief pad. De bedrijfsontwikkeling draagt daarmee bij aan de realisatie de natuurinrichting van de Peelse Loop.

Het bedrijf draagt ook bij aan de duurzaamheidsdoelstellingen uit de Visie Proeftuin Elsendorp. Het bedrijf heeft haar wagenpark al deels elektrisch. In de toekomst wordt dit verder uitgebreid. Dat zal ook een ander ruimtebeslag met zich meebrengen dan nu traditioneel aanwezig is. Werktuigen zullen langer op het bedrijf gestald staan om op te kunnen laden en onderhouden te worden. Het onderhoud van de werktuigen vind op eigen bedrijf plaats. Ook zal extra ruimte gereserveerd moeten worden voor opslag van accu's en andere toebehoren. Op de daken van de bedrijfsgebouwen worden zonnepanelen gelegd die voor een deel voorzien in de eigen energiebehoefte.

Bovenstaande omschrijft dat dit bijdraagt aan de visie uit de doelen van de proeftuin. Daarnaast is deze ontwikkeling ook in combinatie met andere initiatieven beschouwd, zie paragraaf 3.13. Waarbij de initiatieven in samenhang met elkaar de doelen uit de structuurvisie proeftuin verwezenlijken. Daarmee draagt deze ontwikkeling bij aan de verwezenlijking van het gemeentelijk beleid.

Vertaling in bestemmingsplan

Wijziging regels

De functie Bedrijf wordt toegekend aan de gronden met bestemming 'Agrarisch' tussen het huidige bedrijfsperceel en de Zeelandsedijk. De agrarische gronden ten oosten van de huidige bestemming 'Natuur' worden in oostelijke richting uitgebreid door de bestemming 'Groen' te realiseren.

Wijziging Verbeelding

afbeelding "i_NL.IMRO.1652.BPElsendorp-VO01_0027.png"

Figuur 3.5 - verbeelding nieuwe situatie Gerele Peel 53

Hoofdstuk 4 Gezonde fysieke leefomgeving en goede omgevingskwaliteit

4.1 Algemeen

De pilot status onder de Crisis- en herstelwet biedt mogelijkheden om in het omgevingsplan (feitelijk een bestemmingsplan met verbrede reikwijdte) voorwaarden te stellen ten behoeve van het bereiken en in stand houden van een veilige en gezonde fysieke leefomgeving en een goede omgevingskwaliteit. Dit biedt ruimere mogelijkheden dan het begrip 'goede ruimtelijke ordening' uit de Wro. Daarnaast wordt de mogelijkheid geboden om af te wijken van bepaalde wettelijke normen en grenswaarden. Dit hoofdstuk bevat een toelichting op de wijze waarop in het omgevingsplan de relevante omgevingsaspecten zijn meegewogen.

4.2 planMER en passende beoordeling

Aanleiding

Ten behoeve van de besluitvorming van het omgevingsplan is een milieueffectrapportage (planMER) opgesteld. De formele aanleiding daarvoor is tweeledig. Enerzijds omdat het omgevingsplan mogelijkheden biedt voor (veehouderij) initiatieven waarbij sprake kan zijn van een overschrijding van de drempelwaarden uit de C- en D-lijst bij het Besluit milieueffectrapportage. Anderzijds omdat een passende beoordeling noodzakelijk is, aangezien significante negatieve effecten binnen Natura 2000 (als gevolg van een toename van stikstofdepositie) niet op voorhand kunnen worden uitgesloten. PlanMER en passende beoordeling zijn opgenomen in Bijlage 3.

Procedure

Milieueffectrapportage (m.e.r.) is wettelijk verankerd in hoofdstuk 7 van de Wet milieubeheer. Doel van een planMER is het integreren van milieuoverwegingen in de voorbereiding van (in dit geval) een bestemmingsplan met verbrede reikwijdte. De mer-procedure bestaat uit verschillende stappen die geïntegreerd zijn in de omgevingsplanprocedure. Met een Notitie reikwijdte en detailniveau zijn overlegpartners en bestuursorganen geraadpleegd over de reikwijdte en het detailniveau van het planMER. De Notitie reikwijdte en detailniveau heeft ook ter inzage gelegen. Om in een zo vroeg tijdig stadium inzicht te hebben in de mogelijke consequenties van het planMER voor het omgevingsplan en hieraan ook een doorvertaling te kunnen geven, is in het voorontwerp-omgevingsplan een concept-planMER opgenomen. Op een aantal punten zal het planMER nog worden aangevuld, onder andere waar het gaat om de milieuonderzoeken ten behoeve van de concrete initiatieven die in het omgevingsplan worden mogelijk gemaakt. Het definitieve planMER wordt gelijktijdig met het ontwerp-omgevingsplan formeel in procedure gebracht. Op dat moment vindt ook de wettelijk verplichte toetsing door de Commissie voor de m.e.r. plaats.

Reikwijdte en detailniveau

Het omgevingsplan bevat ontwikkelingsruimte en flexibiliteit waarbij het in veel gevallen onduidelijk of, op welke wijze en op welk moment gebruik zal worden gemaakt van de geboden planologische mogelijkheden. Op grond van jurisprudentie dient een planMER inzicht te geven in de maximale milieugevolgen die binnenplans (niet alleen bij recht, maar ook via binnenplanse afwijkingsmogelijkheden) worden geboden. Het detailniveau van de effectbeoordeling in het planMER sluit aan bij de scope van het omgevingsplan. Dat betekent dat de (potentiële) milieugevolgen op het niveau van het hele plangebied, cumulatief in beeld worden gebracht. In het kader van toekomstige initiatieven binnen de kaders van het plan zal in veel gevallen meer gedetailleerd, locatiespecifiek onderzoek noodzakelijk zijn. Voor de concrete initiatieven die nu worden meegenomen en mogelijk gemaakt in het omgevingsplan is in de plantoelichting een onderbouwing met onderliggende onderzoeken opgenomen.

Eerst is in het planMER per milieuthema de referentiesituatie in beeld gebracht (de huidige milieusituatie en eventuele autonome ontwikkelingen). Het planMER beschrijft vervolgens de mogelijke milieugevolgen van het omgevingsplan. Daarbij komen alle functies en activiteiten met een (potentieel) relevante milieu-impact aan de orde. Het betreft niet alleen de ontwikkelingsmogelijkheden voor agrarische bedrijven, zoals veehouderijbedrijven en glastuinbouwbedrijven. Ook niet-agrarische nevenfuncties en vervolgfuncties, recreatieve ontwikkelingsmogelijkheden en mogelijkheden voor duurzame energie zullen worden meegenomen in het planMER. Om de totale bandbreedte aan mogelijke milieugevolgen in beeld te brengen wordt een tweetal ontwikkelingsscenario's onderzocht: een maximaal ontwikkelingsscenario agrarische bedrijven/activiteiten en een maximaal ontwikkelingsscenario niet-agrarische bedrijven/activiteiten. In eerste instantie zijn de effecten van het omgevingsplan beoordeeld zonder rekening te houden met maatregelen of randvoorwaarden. Vervolgens wordt bekeken welke kaders in het omgevingsplan dienen te worden opgenomen om te voldoen aan de geldende kaders en te zorgen dat nieuwe initiatieven een bijdrage leveren aan de beoogde gezonde fysieke leefomgeving en het realiseren van de gemeentelijke doelstellingen en ambities. Tot slot besteedt het planMER ook aandacht aan de wijze waarop de milieugevolgen kunnen worden gemonitord om zo nodig bij te kunnen sturen.

Resultaten en conclusies

Op basis van de sectorale boordelingen van de (potentiële) effecten zoals opgenomen in het planMER en de passende beoordeling kunnen op hoofdlijnen de volgende conclusies worden getrokken.

Maximale ontwikkeling agrarische bedrijven

Uit de resultaten van de effectbeoordeling voor het maximale ontwikkelingsscenario voor de agrarische bedrijven blijkt dat met name de ontwikkelingsmogelijkheden voor de veehouderijsector bepalend zijn voor de optredende milieugevolgen. Hoewel binnen het plangebied geen Natura 2000 zijn gelegen, kan door een maximale groei van de veestapel een grote toename van stikstofdepositie optreden binnen Natura 2000-gebieden in de wijde omgeving. Deze toename vindt plaats in situaties waar reeds sprake is van een overbelasting. Daarnaast zijn de ontwikkelingsmogelijkheden voor veehouderijen sterk bepalend voor het woon- en leefklimaat binnen de gemeente en de daaraan gerelateerde gezondheidseffecten. Ook kan een groei van de veestapel leiden tot een grotere belasting van het oppervlaktewater.

Niet alleen de veehouderijsector is bepalend voor de mogelijke milieugevolgen van het omgevingsplan. Ook ontwikkelingsmogelijkheden voor andere agrarische activiteiten kunnen effecten met zich meebrengen. Daarbij zijn onder andere name de landschappelijke effecten van teeltondersteunende voorzieningen en opgaande teelten van belang. Agrarische ontwikkelingen kunnen daarnaast gevolgen hebben voor natuurwaarden, zoals de aanwezige flora en fauna binnen en aansluitend aan bouwvlakken.

Tot slot kunnen agrarische activiteiten leiden tot een toename van verkeer op de ontsluitingsroutes binnen het buitengebied en door de kernen. Dit zal in het maximale ontwikkelingsscenario leiden tot een verslechtering van de verkeersveiligheidssituatie.

Gezien de doelstellingen en ambities voor het plangebied is het wenselijk om in bepaalde gevallen nadere randvoorwaarden en maatregelen te verbinden aan toekomstige initiatieven om op die manier te sturen op de beoogde omgevingskwaliteit. Hierop wordt ingegaan in paragraaf 4.3.

Maximale ontwikkeling niet-agrarische bedrijven

Dit maximale ontwikkelingsscenario scoort op een aantal thema's en criteria beter dan het ontwikkelingsscenario voor agrarische bedrijven. Dat is met name het gevolg van het beëindigen van agrarische activiteiten en de functiewijziging naar een niet-agrarische functies. In sommige gevallen kan het daarbij gaan om wijziging naar functies met een relevante milieubelasting zoals niet-agrarische bedrijven, maar het gaat ook om wijziging naar functies met een heel beperkte milieubelasting zoals wonen, kleinschalige maatschappelijke of recreatieve functies. Toch blijkt uit de effectbeoordeling dat er ook in dit scenario situaties kunnen optreden waarbij zonder nadere randvoorwaarden ongewenste situaties ontstaan. Bijvoorbeeld waar het gaat om de gevolgen voor natuurwaarden, landschappelijke waarden of een toename van het aantal (potentieel) gehinderden / blootgestelden binnen de invloedsfeer van veehouderijen. Hierop wordt ingegaan in paragraaf 4.3.

4.3 Omgevingsaspecten in het omgevingsplan

Om ongewenste effecten te voorkomen en te borgen dat toekomstige ontwikkelingen een bijdrage leveren aan de gewenste omgevingskwaliteit worden in veel gevallen voorwaarden verbonden aan nieuwe initiatieven. Uitgangspunt voor het omgevingsplan is het vastleggen van de kaders waarbinnen toekomstige ontwikkelingen kunnen plaatsvinden. De verschillende omgevingsaspecten spelen een belangrijke rol bij de uitwerking van de voorwaarden, regels en onderzoeksverplichtingen. Toetsing vindt plaats op het moment dat sprake is van een concreet initiatief en gebruik wordt gemaakt van de flexibiliteitsbepalingen. In het planMER in Bijlage 3 is voor alle relevante omgevingsaspecten een overzicht opgenomen van de geldende beoordelingskaders.

Algemene voorwaarden

In de regels is een set van 'standaard' voorwaarden opgenomen die vooral gericht zijn op het voorkomen van ongewenste effecten en onaanvaardbare situaties. Daarbij wordt onder andere getoetst aan de ambities voor (afhankelijk van de locatie) het dynamisch buitengebied en het rustig buitengebied zoals die in de visie zijn geformuleerd. Tevens is aan de verschillende ontwikkelingsmogelijkheden in de planregels een groot aantal voorwaarden opgenomen die vooral zijn gericht op het voorkomen van ongewenste effecten en onaanvaardbare situaties.

In de planregels worden aan de verschillende mogelijke ontwikkelingen eisen gesteld ten aanzien van de landschappelijke inpassing. De wijze waarop landschappelijk wordt ingepast wordt beoordeeld op basis van het Beeldkwaliteitsplan buitengebied. In de planregels is daar waar (mogelijk) relevant aan ontwikkelingsmogelijkheden de voorwaarde gekoppeld dat cultuurhistorische waarden niet onevenredig worden geschaad. Ook zijn regels opgenomen ter bescherming van aardkundige en archeologische waarden. Daarnaast gaat het om voorwaarden zoals:

  • de capaciteit van de omliggende wegen is voldoende voor een veilige afwikkeling van de verkeerstoename;
  • er vindt geen onevenredige aantasting van natuurwaarden plaats;
  • de bodemkwaliteit is geschikt voor de beoogde functie;
  • de waterkwaliteit wordt niet nadelig beïnvloed;
  • de ontwikkeling vindt hydrologisch neutraal plaats;
  • er worden geen nieuwe kwetsbare objecten of beperkt kwetsbare objecten binnen 10-6-contouren van inrichtingen of leidingen gerealiseerd;
  • voor ontwikkelingen binnen het invloedsgebied voor het groepsrisico vindt een verantwoording van het groepsrisico plaats.

Met deze algemene voorwaarden wordt voor diverse thema's en criteria geborgd dat geen relevante negatieve effecten zullen optreden en kan op sommige criteria spraken zijn van positieve effecten. Ook via het meerwaarde plan kunnen initiatieven positieve milieugevolgen hebben.

Specifieke kaders agrarische bedrijven

De provinciale omgevingsverordening is sterk bepalend voor de voorwaarden waaronder ontwikkelingsmogelijkheden kunnen worden geboden aan agrarische bedrijven. Waar relevant zijn de voorwaarden overgenomen in het omgevingsplan. In sommige gevallen gaat het daarbij om het uitsluiten van functies binnen bepaalde gebieden waaronder bijvoorbeeld de groenblauwe mantel en het Natuurnetwerk Noord-Brabant. In andere gevallen gaat het om het overnemen van voorwaarden, bijvoorbeeld waar het gaat om de eisen die worden gesteld aan nieuwe veehouderij initiatieven. Zo dient te worden voldaan aan de Brabantse Zorgvuldigheidsscore Veehouderij. Daarnaast dient ter plaatse van omliggende gevoelige objecten te worden voldaan aan de normen voor de achtergrondbelasting (geurhinder) en jaargemiddelde fijnstofconcentratie.

Deze kaders vanuit de provinciale omgevingsverordening leiden tot een beperking van de potentiële negatieve milieugevolgen van het omgevingsplan. Daarnaast dragen bepaalde voorwaarden bij aan een kwaliteitsverbetering als het gaat om landschappelijke en natuurwaarden, en een verduurzaming van de agrarische sector.

Aanvullende maatregelen planMER en passende beoordeling

Uit de effectbeschrijvingen in het planMER blijkt dat er op onderdelen aanvullende maatregelen wenselijk en/of noodzakelijk zijn om nadelige effecten door de ontwikkelingsmogelijkheden voor (met name de) veehouderijen te voorkomen. Zo zijn in de planregels voorwaarden opgenomen om een toename van stikstofdepositie binnen Natura 2000-gebieden uit te kunnen sluiten. Dit betekent niet dat alle veehouderijen 'op slot' worden gezet. Uitbreiding is mogelijk door het treffen van voldoende stikstofreducerende maatregelen (toepassen van emissie-arme stalsystemen). Op deze wijze is in het omgevingsplan geborgd dat geen verdere verslechtering zal optreden.

Tevens zijn aanvullende voorwaarden opgenomen om een relevante toename van fijn stofconcentraties te voorkomen/beperken en is een afweging van de gezondheidseffecten en de mogelijke maatregelen die in dat kader kunnen worden getroffen noodzakelijk. Voor fijn stof kan geen drempelwaarde worden aangegeven waaronder er geen effecten meer zullen optreden. Om deze reden wordt een relevante toename van de concentraties fijn stof in alle gevallen onwenselijk geacht. Voor veehouderij initiatieven wordt (in aanvulling op de norm van 31,2ìg / m³ uit de Vr vastgelegd dat nieuwe ontwikkelingen niet 'in betekende mate' mogen bijdragen aan de concentraties fijn stof. Uit de informatie uit het planMER blijkt dat de specifieke bedrijfskenmerken en al dan niet getroffen maatregelen sterk bepalend zijn voor de optredende gezondheidseffecten. Om te komen tot een beperking van de gezondheidseffecten en verbetering van de gezondheidssituatie is het wenselijk om in het omgevingsplan aanvullende voorwaarden te verbinden aan toekomstige veehouderij initiatieven die zijn gericht op het treffen van alle maatregelen met betrekking tot gezondheid (die redelijkerwijs mogelijk zijn) toe te passen. Daarbij kan onder andere aansluiting worden gezocht bij de Handreiking veehouderij en volksgezondheid en de Notitie Handelingsperspectieven Veehouderij en Volksgezondheid. Hierin is een breed scala van mogelijke maatregelen opgenomen.

Monitoring en evaluatie

Het omgevingsplan biedt op onderdelen meer flexibiliteit en ontwikkelingsmogelijkheden dan een 'regulier' bestemmingsplan. Daarnaast is de looptijd van een bestemmingsplan met verbrede reikwijdte onder de crisis- en herstelwet 20 jaar (voor een 'regulier' bestemmingsplan 10 jaar). Voor verschillende milieuthema's en criteria is er sprake van een relatief grote onzekerheidsmarge als het gaat om de optredende effecten. Deze worden ook beïnvloed door allerlei ontwikkelingen buiten de scope van het omgevingsplan, zoals ontwikkelingen in wet- en regelgeving, economische ontwikkelingen en technologische ontwikkelingen. Het is daarom noodzakelijk om tijdens de looptijd van het omgevingsplan vinger aan de pols te houden en te monitoren hoe de milieusituatie binnen het studiegebied zich ontwikkelt en of de optredende milieugevolgen vragen om een bijsturing door aanpassing van de kaders in het omgevingsplan.

Voor de monitoring en evaluatie zijn zowel de gevolgen van agrarische initiatieven als de gevolgen van de niet-agrarische functies van belang. Gezien de potentiële effecten en de daarmee samenhangende onzekerheden wordt voorgesteld om iedere 5 jaar een integrale monitoring uit te voeren, waarbij voor de maatgevende thema's eventuele wijzigingen in de milieusituatie in beeld worden gebracht.

Bij de monitoringsrondes wordt het volgende in beeld gebracht:

  • overzicht van de initiatieven binnen de monitoringsperiode: belangrijke vraag daarbij is of het aantal, de locaties en de aard en omvang van de initiatieven aansluit bij de visie op het buitengebied. Eventuele ongewenste ontwikkelingen of juist het uitblijven van nieuwe initiatieven, kunnen aanleiding geven om het omgevingsplan op onderdelen aan te passen.
  • overzicht van de actuele milieusituatie (leefomgevingsfoto): daarbij ligt de focus op het woon- en leefklimaat en de landschappelijke/ruimtelijke kwaliteit.
  • overzicht van relevante ontwikkelingen (wet- en regelgeving, technologisch, economisch) die van belang zijn voor de kaders in het omgevingsplan. Zo is het niet uitgesloten dat de komende jaren wijzigingen zullen worden doorgevoerd in de wet- en regelgeving op bijvoorbeeld het vlak van geurhinder en/of gezondheid. Ook kan sprake zijn van nieuwe ruimtelijke ontwikkelingen en initiatieven die op dit moment nog niet kunnen worden voorzien en die vragen om aanvullende of andere kaders;
  • toets van de initiatieven en ontwikkelingen in de omgevingskwaliteit aan de doelstellingen en ambities en de beschikbare milieugebruiksruimte: dragen de kaders zoals vastgelegd in het omgevingsplan voldoende bij aan het realiseren van de beoogde omgevingskwaliteit en worden nieuwe knelpunten of ongewenste situaties voorkomen.
  • integrale beoordeling op basis van de voorgaande onderdelen of aanpassing in het omgevingsplan noodzakelijk is: het toevoegen, schrappen of aanpassen van de gestelde kaders.

 

Hoofdstuk 5 Toelichting op de regels

5.1 Opzet van het omgevingsplan

Er is gekozen voor een op onderdelen ontwikkelingsgericht en op onderdelen conserverend plan.

In de enkelbestemmingenen en dubbelbestemmingen zoals opgenomen in respectievelijk hoofdstuk 2 en 4 van de planregels zijn de bestaande rechten uit de vigerende bestemmingsplannen opgenomen voor wat betreft de bouw- en gebruiksregels die rechtstreeks zijn toegestaan. Daarnaast zijn nog enkele specifieke afwijkingsbevoegdheden opgenomen.

In hoofdstuk 3 zijn de regels voor ontwikkelingen opgenomen. Deze regels omschrijven de ambities, uitgangspunten en randvoorwaarden voor de initiatieven op basis van de visie Proeftuin Elsendorp. Op deze manier wordt een afwegingskader gesteld voor welke gebruiks- en bouwmogelijkheden passen binnen de koers en ambities van het deelgebied.

In dit hoofdstuk wordt de bestemmingsregeling nader toegelicht. Voor de onderscheiden hoofdfuncties zijn afzonderlijke bestemmingsregelingen opgesteld die zijn gebaseerd op de overwegingen die in de voorafgaande hoofdstukken zijn verwoord. Op welke wijze een en ander in de bestemmingsregeling concreet verwerkt is wordt hierna beschreven.

Op basis van de Crisis- en herstelwet mag worden afgeweken van de wettelijke standaarden. Voor Proeftuin Elsendorp is wel zoveel mogelijk gebruik gemaakt van de SVBP2012 voor de planregels en de verbeelding.

5.2 Opzet

Alle gronden in het gebied zijn voorzien van een bestemming. De bestemming geeft de functie aan van de gronden. Bij de bestemming horen regels. Het gaat hier dan om bijvoorbeeld regels voor bouwen, werken en werkzaamheden, slopen en het gebruik van grond en de opstallen voor bepaalde activiteiten. De bestemming en de regels vormen samen het raamwerk waar binnen bepaalde handelingen en activiteiten mogelijk zijn. Het gevolg van het leggen van een bestemming is, dat de gronden alleen op de bestemde wijze mogen worden gebruikt. In die zin houdt een bestemming dus een inperking in van het eigendomsrecht.

De artikelen 2.1 en 2.2 Wabo en enkele andere wetten verbieden het handelen in strijd met het bestemmingsplan. Om misverstanden te voorkomen wordt bij de verschillende bestemmingen aangegeven wat in ieder geval beschouwd moet worden als in strijd met het bestemmingsplan. Dit is nadrukkelijk geen uitputtende lijst.

De planregels zijn als volgt opgebouwd:

  • In hoofdstuk 1 komen de 'Inleidende regels' aan bod. Het betreft hier de Begrippen en de Wijze van meten.
  • In hoofdstuk 2 zijn de 'Regels voor bestaand gebruik' opgenomen. Hierin staan de regels die per bestemming gelden. Per hoofdfunctie is een bestemmingsregeling opgenomen. Deze zijn als volgt opgebouwd:
    • 1. Bestemmingsomschrijving: waarvoor mogen de gebouwen en gronden worden gebruikt;
    • 2. Bouwregels: een beschrijving van de toelaatbare bouwwerken;
    • 3. en indien van toepassing:
      • a. afwijken van de bouwregels: bevoegdheid van burgemeester en wethouders;
      • b. nadere eisen: de nadere eisen die aan het bouwen gesteld worden; ;
      • c. specifieke gebruiksregels: verbod op bepaald gebruik van gronden;
      • d. afwijken van de gebruiksregels: bevoegdheid van burgemeester en wethouders;
      • e. Omgevingsvergunning voor het uitvoeren van een werk, geen bouwwerk zijnde, of van werkzaamheden
      • f. Omgevingsvergunning voor het slopen van een bouwwerk
  • In hoofdstuk 3 worden de 'regels voor ontwikkelingen' beschreven. Deze omschrijven welke ontwikkelingen in het gebied mogelijk/gewenst zijn en onder welke voorwaarden hiervoor een omgevingsvergunning verleend kan worden.
  • Hoofdstuk 4 bevat de regels voor alle dubbelbestemmingen in het hele plangebied. Deze dubbelbestemmingen gelden naast de enkelbestemmingen als omschreven in hoofdstuk 2. Deze dubbelbestemmingen zijn hetzelfde opgebouwd als de enkelbestemmingen, uitgezonderd de voorrangsbepaling voor de dubbelbestemming Leiding.
  • Hoofdstuk 5 omschrijft de 'Algemene regels', en bevat verschillende algemene bepalingen die van toepassing zijn op elke bestemming uit de hoofdstukken 2, 3 en 4.
  • Tot slot zijn de 'Overgangs- en slotregels' opgenomen in hoofdstuk 6.

5.3 Objectgerichte toelichting op de juridische regeling

5.3.1 Inleidende regels

Artikel 1 - begrippen

In dit artikel is omschreven wat in onderhavig plan onder een aantal van de in de regels gebruikte begrippen wordt verstaan.

Artikel 2 - wijze van meten

Dit artikel geeft aan hoe hoogte- en andere maten die bij het bouwen in acht genomen dienen te worden, gemeten moeten worden.

5.3.2 Bestemmingen

Voor de enkelbestemmingen zijn de regels uit het vigerende bestemmingsplan letterlijk overgenomen en toegesneden op het betreffende plangebied. Binnen het plangebied is sprake van een aantal hoofdbestemmingen; Agrarisch, Agrarisch bedrijf, Bedrijf, Groen, Maatschappelijk, Natuur, recreatie, Verkeer, Water, Wonen en Wonen - Woon-werkgebied. Binnen het plan wordt rekening gehouden met een bestemming voor de gronden en een bestemming voor de bouwvlakken.

Agrarisch

De gronden met bestemming Agrarisch zijn bestemd voor (bedrijfsmatig) agrarisch grondgebruik inclusief tijdelijke teeltondersteunende voorzieningen. Als mede voor het behoud en/of herstel van natuurlijke, aardkundige waarden en beeldkwaliteit en ontwikkeling en instandhouding van natuur en landschap. Er mogen geen gebouwen worden opgericht op deze gronden.

Agrarisch - Agrarisch bedrijf

Op de voor agrarisch - agrarische bedrijf bestemde gronden zijn de volgende bedrijfsactiviteiten toegestaan: (vollegronds)teeltbedrijf, overig agrarisch bedrijf, bestaande veehouderij of een (intensieve) veehouderij, met uitzondering van een pluimveebedrijf of geitenhouderij tenzij reeds aanwezig.

Bedrijf

Binnen deze bestemming zijn alle bedrijfsmatige functies opgenomen die niet agrarisch zijn. Deze zijn alleen aangeduid met een aparte definitie. Per bestemmingsvlak is één bedrijf toegestaan. De toegestane oppervlakte voor bedrijfsbebouwing is gelijk aan de bestaande of reeds vergunde bebouwingsoppervlakte, tenzij anders aangegeven in de verbeelding.

Groen

De gronden met bestemming groen zijn bestemd voor de realisatie en instandhouding van landschappelijke inpassing van een bestemmingsvlak en groenvoorzieningen. Op deze gronden mag niet worden gebouwd.

Maatschappelijk

Binnen deze bestemming zijn alle bestaande maatschappelijke functies opgenomen die voorkomen in het plangebied.

Natuur

De met Natuur bestemde gronden zijn bestemd behoud, herstel en/of ontwikkeling van de aanwezige landschappelijke waarden, cultuurhistorische waarden en natuurwaarden in de vorm van heiden, ruigten, bloemrijk grasland, poelen en bosjes of een combinatie hiervan. Tevens zijn deze gronden bestemd voor waterlopen en waterpartijen. Er mogen geen bouwwerken worden opgericht op deze gronden.

Recreatie

Op de voor recreatie bestemden gronden is het toegestaan één recreatiebedrijf voor dag- en/of nachtverblijf te hebben. Er is één bedrijfswoning toegestaan en waar aangeduid ook recreatiewoningen. Er gelden bepaalde maatvoeringen in de bouw.

Uitbreiden van het bedrijf kan middels een omgevingsvergunning.

Verkeer

Alle wegen in het plangebied zijn bestemd tot Verkeer.

Water

Binnen deze bestemming zijn de gronden bedoeld voor waterhuishoudkundige doeleinden, in het bijzonder de aan- en afvoer van water, als mede voor natuurontwikkeling en daar waar aangeduid, als ecologische verbindingszones.

Wonen

Bestaande burgerwoningen zijn bestemd als 'Wonen'. Daarbij is het toegestaan een aan huis verbonden beroep uit te oefenen. Het is toegestaan zonder omgevingsvergunning met maximaal 50m² uit te breiden. Daarnaast gelden maatvoeringen.

Wonen - Woon-werkgebied

Deze bestemming is bestemd als wonen, in combinatie met de uitoefening van een bedrijf aan huis van milieucategorie 1 of 2 op bouwpercelen met een minimale oppervlakte van 1.000 m2 en een maximale oppervlakte van 5.000 m2. Binnen dit plangebied mogen maximaal 19 woningen staan. Het perceel mag voor maximaal 80% bebouwd worden. Er mag bedrijfsbebouwing worden gebouwd ten behoeve van een beroep aan huis.

Middels een omgevingsvergunning kan ook bedrijvigheid zonder woning worden gerealiseerd.

5.3.3 Regels voor ontwikkelingen

In dit plan bestaan twee gebiedstypen die beide een eigen ontwikkelingsrichting kennen;

  • Overige zone - Dynamisch buitengebied
  • Overige zone - Rustig buitengebied

Deze gebieden zijn samengebiedsdekkend voor het plan. De geformuleerde ambities en uitgangspunten scheppen de voorwaarden voor de ontwikkelingsrichting per gebied. Het noorden van het plangebied, het dynamische buitengebied, is daarbij meer gericht op ontwikkelingen. Het zuidelijke deel van het plangebied heeft een meer behoudend karakter. Uiteindelijk leveren deze gebiedstypen de randvoorwaarden waarmee een bijdrage wordt geleverd aan de ruimtelijke kwaliteit en vitaliteit van het buitengebied van Elsendorp.

5.3.4 Dubbelbestemmingen

5.3.4.1 Leiding

De dubbelbestemming Leiding dient ten behoeve van de bescherming voor leidingen met vloeibare stoffen of aardgas. De hartlijn van de leiding is aangeduid met een aanduiding 'hartlijn leiding - stof X' (brandstof, gas, riool of water). In deze dubbelbestemming is tevens een voorrangsbepaling opgenomen.

5.3.4.2 Waarde - Archeologie 4

De voor Archeologie 4 aangewezen gronden zijn mede bestemd voor de bescherming en het behoud van de op en/of in deze gronden voorkomende en te verwachten archeologische waarden. Op de gronden geldt een bouwverbod, met uitzondering van het vervangen van bestaande gebouwen waarbij de diepte en oppervlakte niet groter dan wel dieper wordt dan de bestaande fundering én met uitzondering van het bouwen van gebouwen en/of bouwwerken waarbij de bodemverstoring niet dieper is dan 40 cm onder maaiveld, of indien dieper dan 40cm de bodemingreep niet groter is dan 500m². Ook geldt een voorrangsbepaling voor deze dubbelbestemming. Onder voorwaarden is het mogelijk om af te wijken van de bouwregels. In het gebied is tevens een omgevingsvergunningenstelsel opgenomen voor wat betreft het uitvoeren van bepaalde werken en werkzaamheden, waarvoor de genoemde ondergrenzen bodemverstoring van toepassing zijn.

5.3.4.3 Waarde - Archeologie 5

De voor Archeologie 5 aangewezen gronden zijn mede bestemd voor de bescherming en het behoud van de op en/of in deze gronden voorkomende en te verwachten archeologische waarden. Op de gronden geldt een bouwverbod, met uitzondering van het vervangen van bestaande gebouwen waarbij de diepte en oppervlakte niet groter dan wel dieper wordt dan de bestaande fundering én met uitzondering van het bouwen van gebouwen en/of bouwwerken waarbij de bodemverstoring niet dieper is dan 40 cm onder maaiveld, of indien dieper dan 40cm de bodemingreep niet groter is dan 2.500m². Ook geldt een voorrangsbepaling voor deze dubbelbestemming. Onder voorwaarden is het mogelijk om af te wijken van de bouwregels. In het gebied is tevens een omgevingsvergunningenstelsel opgenomen voor wat betreft het uitvoeren van bepaalde werken en werkzaamheden, waarvoor de genoemde ondergrenzen bodemverstoring van toepassing zijn.

5.3.5 Algemene regels

5.3.5.1 Anti-dubbeltelregel

Deze bepaling wordt opgenomen om te voorkomen dat, wanneer volgens een bestemmingsplan bepaalde gebouwen en bouwwerken niet meer dan een bepaald deel van een bouwperceel mogen beslaan, het opengebleven terrein niet nog eens meetelt bij het toestaan van een ander gebouw of bouwwerk, waaraan een soortgelijke eis wordt gesteld.

5.3.5.2 Algemene bouwregels

In de algemene bouwregels zijn bepalingen opgenomen ten aanzien:

  • van bestaande afstanden, hoogten, inhoud, etc;
  • ondergronds bouwen
  • relatietekens;
  • beeldkwaliteitseisen;
  • (algemene) bouwverboden;
  • voorwaardelijke verplichtingen ten aanzien van realisatie en instandhouding van groen- en parkeervoorzieningen en ruimtelijke kwaliteitsverbetering.

5.3.5.3 Algemene gebruiksregels

In dit artikel zijn bepaalde specifieke gebruiksregels opgenomen voor het gebruik van de gronden en bouwwerken binnen het gehele plangebied. Het betreft zowel strijdig als toegelaten gebruiksvormen. Tevens is een regeling opgenomen voor bestaande afwijkingen qua omvang van het gebruik.

5.3.5.4 Algemene aanduidingsregels

In dit artikel zijn de inhoudelijke regels opgenomen voor de binnen het plangebied voorkomende gebiedsaanduidingen. Deze dienen ter bescherming of waarborging van bepaalde belangen. Per gebiedsaanduiding is aangegeven wat het doel is van het opnemen van de gebiedsaanduiding en welke regels voor de gebiedsaanduiding gelden (bijvoorbeeld een omgevingsvergunning voor het aanleggen). Het betreft de volgende gebiedsaanduidingen:

  • veiligheidszones ten aanzien van risicovolle inrichtingen en LPG-installaties;
  • geluid- en geurzones;
  • beperkingen veehouderij;
  • doorgroeigebied glastuinbouw;
  • vrijwaringszones (waterlopen).

5.3.5.5 Algemene afwijkingsregels

In dit artikel wordt aan het bevoegd gezag de bevoegdheid gegeven om afwijking te verlenen van bepaalde, in het bestemmingsplan geregelde, onderwerpen. Hierbij gaat het om afwijkingsregels die gelden voor alle bestemmingen in het plan. Dit betreft onder meer geringe afwijkingen van bestemmings- of bouwgrenzen en maatvoeringen, de aanleg van zwembaden, het uitoefenen van aan huis verbonden bedrijven, het houden van meerdaagse evenementen en het gebruik voor enkele kleinschalige recreatieve (neven)activiteiten.

5.3.5.6 Algemene wijzigingsregels

In dit artikel worden enkele bevoegdheden aan burgemeester en wethouders gegeven om het plan te wijzigen. Dit betreft bevoegdheden die in het gehele plangebied gelden. Onder meer wordt mogelijk gemaakt om de Handreiking kwaliteitsverbetering van het landschap en het beeldkwaliteitsplan te wijzigen. Tevens wordt de mogelijkheid geboden om de dubbelbestemming ‘Leiding’ op te nemen ten behoeve de aanleg of het verplaatsen van leidingen.

5.3.5.7 Nadere eisen

Burgemeester en wethouders zijn bevoegd om, bij de toepassing van de algemene bouwregels nadere eisen te stellen met betrekking tot de situering van bouwwerken en de landschappelijke inpassing.Burgemeester en wethouders zijn bevoegd om, bij de toepassing van de algemene bouwregels nadere eisen te stellen met betrekking tot de situering van bouwwerken en de landschappelijke inpassing.

5.3.6 Overgangs- en slotregels

Overgangsrecht

In deze bepaling wordt vorm en inhoud gegeven aan het overgangsrecht. Deze regeling is op grond van de Wro verplicht.

Slotregel

Als laatste wordt de slotregel opgenomen. Deze bepaling bevat de titel van het plan.

Hoofdstuk 6 Uitvoerbaarheid

6.1 Financiële uitvoerbaarheid

In de Wro is de verplichting opgenomen om bij het realiseren van nieuwe ontwikkelingen een eerlijke verdeling van kosten en opbrengsten voor publieke voorzieningen af te dwingen. Dit vindt plaats door het opstellen van een exploitatieplan, waarin deze verdeelsleutel vastligt. Een exploitatieplan is niet noodzakelijk als de overheid en de ontwikkelende partij, de initiatiefnemer, voorafgaand privaatrechtelijk tot overeenstemming komen in de vorm van een anterieure overeenkomst.

De Wro stelt eisen aan het exploitatieplan en in het Bro is geregeld voor welke type bouwplannen een exploitatieplan noodzakelijk is, indien het kostenverhaal niet anderszins is verzekerd. Het gaat om nieuwbouwplannen (woningen of andere hoofdgebouwen), forse uitbreidingen van bestaande gebouwen of kassen (met ten minste 1.000 m²) of forse verbouwingen, bijvoorbeeld als bedrijfsruimten worden omgezet in (ten minste 10) woningen.

Het plan maakt geen nieuwe bouwplannen, zoals in het Bro benoemd, mogelijk. Hieruit volgt dat het opstellen van een exploitatieplan niet noodzakelijk is. Mocht een initiatief toch exploitatieplichtig zijn, dan wordt een anterieure overeenkomst gesloten.

6.2 Maatschappelijke uitvoerbaarheid

Door het dorp, ondersteund door gemeente, provincie en waterschap, heeft de visie Proeftuin Elsendorp opgesteld die in combinatie met het meerwaardeplan de basis vormt voor dit bestemmingsplan verbrede reikwijdte. Om de doelen van Elsendorp te realiseren en de kwaliteit van de fysieke leefomgeving te realiseren en te komen tot maatschappelijke meerwaarde is voor de Proeftuin vernieuwend instrumentarium uitgewerkt in de vorm van de beleidsregel meerwaardeplan en dit plan dat onder de Crisis- en herstelwet is opgesteld. In de afgelopen 4 jaar is met meer dan 30 ondernemers intensief gesproken en mede op basis van hun inbreng tot deze inhoud en werkwijze zijn gekomen

Er is gestreefd naar een zo volledig mogelijk voorontwerp plan. Tegelijkertijd zijn er bij het voorontwerp een aantal aandachtspunten:

  • voor het westelijk deel van het plangebied is een intensieve participatie doorlopen, mede door de coronapandemie is dat voor het oostelijk deel gedeeltelijk gedaan. In de periode van voorontwerp tot ontwerp zal de participatie voor het oostelijk deel, in het bijzondier de gebiedsvisie, het meerwaardeplan en dit bestemmingsplan met verbrede reikwijdte als nog worden opgepakt;
  • coronapandemie heeft ook effect op de economie en heeft geleid tot het uitstellen van investeringen en initiatieven.
  • de afspraken met de deelnemers over de ontwikkelingen zoals beschreven in hoofdstuk 3 zijn nog niet op alle punten definitief en de onderbouwing van de initiatieven en de onderzoeken die daarvoor moeten worden uitgevoerd moet nog aangevuld worden. . In het ontwerp plan zijn die trajecten afgerond.

Wij willen het voorontwerp gebruiken om met alle betrokkenen te communiceren over het plan en daarmee ook invulling te geven aan de uitgangspunten van de Proeftuin: Oplossen doe je samen en ontwikkelingen leiden tot een meerwaarde voor Elsendorp.

Met de reacties op het voorontwerp wordt het plan samen met alle betrokken nog beter gemaakt en wordt het een plan van en voor Elsendorp.

Vooroverleg

Over het concept ontwerpbestemmingsplan heeft vooroverleg met provincie en waterschap plaatsgevonden. De provincie en het waterschap zijn direct betrokken bij het opstellen van de visie Proeftuin Elsendorp, het programma meerwaardeplan die mede de basis vormen voor dit plan.

Ontwerp

Het ontwerpomgevingsplan wordt in het kader van artikel 3.8 Wro gedurende 6 weken ter inzage gelegd. Het resultaat hiervan wordt t.z.t. in deze paragraaf opgenomen.

6.3 Handhaving

Met dit plan wordt beoogd een voor de burgers duidelijk en herkenbaar beleid voor de fysieke leefomgeving te formuleren. Het omgevingsplan is zodanig opgezet dat het ruimte biedt voor ontwikkelingen binnen de randvoorwaarden die volgen uit 'een veilige en gezonde fysieke leefomgeving en een goede omgevingskwaliteit' en die uitvoering geven aan de visie Proeftuin Elsendorp.

Het plan biedt daarmee meer flexibiliteit en ruimte dan het traditionele bestemmingsplan. Het is daarmee de verwachting dat activiteiten die niet passen binnen het omgevingsplan of op grond van in het omgevingsplan opgenomen bevoegdheden kunnen worden toegestaan, in beginsel vanuit het belang van 'een veilige en gezonde fysieke leefomgeving en een goede omgevingskwaliteit' en vanwege het gemeentelijke omgevingsbeleid ongewenst zullen zijn. Bij het opstarten van een handhavingstraject zal altijd nog een check plaatsvinden of in het concrete geval toch een legalisatie van de activiteit mogelijk is, maar de verwachting is dat dit in de meeste gevallen niet aan de orde zal zijn. Dit betekent dat in de meeste gevallen sprake is van de beginselplicht tot handhaving.

Het uitgangspunt is dat er handhavend wordt opgetreden wanneer de regels van het plan niet worden nageleefd. Het achterwege laten van handhaving kan ertoe leiden dat zich ongewenste ruimtelijke ontwikkelingen voordoen, die negatieve gevolgen hebben voor de ruimtelijke kwaliteit van het plangebied Proeftuin Elsendorp. Het omgevingsplan in combinatie met een goede handhaving van de vastgestelde regels beschermen de kwaliteiten en leefbaarheid van Elsendorp en geven beter sturing aan ontwikkelingen.