direct naar inhoud van Toelichting
Plan: Gemert-Bakel Buitengebied, herziening december 2023
Status: ontwerp
Plantype: bestemmingsplan
IMRO-idn: NL.IMRO.1652.Buitengebied122023-ON01

Toelichting

Hoofdstuk 1 Achtergrond en opzet

1.1 Aanleiding

Sinds het verschijnen van het integrale bestemmingsplan "Gemert-Bakel Buitengebied 2017", hebben in het afgelopen jaar in het buitengebied weer meerdere planologische ontwikkelingen plaatsgevonden. Na de integrale herziening van genoemd bestemmingsplan in 2017-2018, behoeft het plan wederom een herziening vanwege ontwikkelingen die niet rechtstreeks mogelijk zijn in het bestemmingsplan. Voorliggend bestemmingsplan voorziet in regeling van deze ontwikkelingen. Het beleid en de planregels uit het 'moederplan' voor het buitengebied vormen het uitgangspunt bij de ontwikkelingen.

In dit bestemmingsplan gaat het om de volgende locaties:

  • 1. Dr. de Quayweg 75-79, De Mortel

Ontkoppeling van de gekoppelde agrarische bedrijfslocatie aan Dr. de Quayweg 75 en 79, waarna de locatie Dr. de Quayweg 79 doorgaat als melkveebedrijf met één bedrijfswoning en de locatie Dr. de Quayweg 75 als burgerwoning wordt, waarbij vervolgens die burgerwoning verplaatst wordt naar een locatie op een beperkt grotere afstand van de Dr. de Quayweg.

  • 2. Dr. de Quayweg 80, De Mortel

Omzetting van een agrarisch verwant bedrijf naar een stalhouderij/ paardenhouderij, met huisvesting voor grooms en ruiters.

  • 3. Dr. de Quayweg 84, De Mortel

Omzetting van een agrarisch bedrijf in de vorm van een productiegerichte paardenhouderij naar een niet-agrarisch bedrijf in de vorm van een stal-/ paardenhouderij, inclusief het aanleggen van extra rijbakken en paddocks, het bouwen van een houtopslag, het aanleggen van een vijver en het aanleggen van een noordelijke ontsluiting.

  • 4. Fuik 24, Handel

Omzetting van een agrarisch bedrijf (VAB) naar niet-agrarisch bedrijf, met uitbreiding van de bedrijfsbebouwing aan de achterzijde, vervanging van de bestaande inpandige bedrijfswoning door een vrijstaande bedrijfswoning en herbegrenzing van het Natuur Netwerk Brabant (NNB).

  • 5. Kapelweg ong., Handel

Toevoeging van een ruimte voor ruimtewoning, in een bebouwingsconcentratie (lintkernrand oostzijde kern Handel), met sloop van de bestaande bebouwing (schuurtjes en dierenverblijven).

  • 6. Koksedijk 6-10, Gemert

Omzetting van een agrarisch bedrijf (VAB, nertsen) naar een niet-agrarisch bedrijf (opslag en ondergeschikte handel in vrachtwagens) met een bedrijfswoning (met schoonheidssalon aan huis) en naar een burgerwoning (met opslag ten behoeve van personal training aan huis).

  • 7. Pandelaar 75, Gemert

Toevoeging van een woning binnen de grens van het bestaand stedelijk gebied van de kern Gemert (locatie maakt wel geheel deel uit van het bestemmingsplan Gemert-Bakel Buitengebied 2017).

  • 8. Peeldijk 43, Handel

Vergroting van een agrarische bouwkavel, waarbij de aanduiding 'intensieve veehouderij' wordt verwijderd, ten behoeve van de bouw van een nieuwe bedrijfshal (waarbij de bestaande bedrijfsgebouwen worden gesloopt) en een nieuwe bedrijfswoning (waarbij de bestaande bedrijfswoning wordt omgezet naar kantoor), en toevoeging van de aanduiding 'teelt ondersteunende voorzieningen' aan de omliggende agrarische gronden.

  • 9. Stippelbergseweg 55, De Mortel

Verschuiving van een woonperceel, gelegen binnen het NNB, om een bestaande uitbreiding van de woning en een bestaand bijbehorend bouwwerk daarbinnen te laten vallen, en herbegrenzing van het NNB.

  • 10. Weijer 3-5 en Bocht 20, Milheeze

Vergroting van twee woonpercelen, bij Weijer 3 om het bestaande bijbehorende bouwwerk en zwembad binnen het woonperceel te laten vallen en bij Weijer 5 om de bouw van een bijbehorend bouwwerk mogelijk te maken, en vergroting van een agrarisch bouwperceel ten behoeve van de bouw van een extra loods bij het agrarisch bedrijf aan Bocht 20.

  • 11. Zand ong., Bakel

Toevoeging van een ruimte voor ruimtewoning, in de bebouwingsconcentratie 't Zand (lint in nevelkernrand Bakel-noord).

Daarnaast moet het bestemmingsplan op vier locaties hersteld worden:

  • 12. Snelle Loop - Serisweg/ Koksedijk, Gemert

Vervangen van de in het bestemmingsplan "Gemert-Bakel Buitengebied 2017" vastgelegde bestemming 'Leiding' door de bestemming 'Leiding - Hoogspanningsleiding', passend bij de hier aanwezige bovengrondse hoogspanningsverbinding.

  • 13. Geluidzone De Peel

De zone voor grondgebonden geluid rond De Peel (de 50 dBA contour), zoals die is vastgelegd in het bestemmingsplan "Gemert-Bakel Buitengebied 2017", komt niet overeen met de daadwerkelijke contour zoals die in de Rarro is vastgelegd. Gemeenten worden geacht aanwijzingen uit de Rarro in hun bestemmingsplannen te verwerken. Derhalve wordt de zone afgestemd op de daadwerkelijke ligging van de contour conform de Rarro.

  • 14. Esdonk 32, Gemert

Onbedoeld is in het wijzigingsplan Esdonk 32, Gemert de grens van de bestemming 'Agrarisch - Agrarisch bedrijf' niet om een bestaand en beoogd bijbehorend bouwwerk gelegd. Deze zijn daardoor gelegen binnen de bestemming 'Agrarisch', waarbinnen dergelijke bouwwerken niet zijn toegestaan. De grens tussen beide bestemmingen wordt aangepast zodat de bijbehorende bouwwerken binnen de bestemming 'Agrarisch - Agrarisch bedrijf' vallen.

  • 15. Kreijtenberg 4a, Milheeze

Onbedoeld is voor de op de locatie Kreijtenberg 4a te realiseren woning, bij achtereenvolgende bestemmingsplanherzieningen, de mogelijkheid vervallen om de woning als 'bio-woning' met een grotere maximale inhoud te realiseren. Voor de locatie wordt wederom de aanduiding 'bio-woning' opgenomen, die het mogelijk maakt een woning te realiseren met een maximale inhoud van 1.050 m3, zoals ook aanvankelijk toegestaan.

1.2 Planopzet

In het volgende hoofdstuk (2) is in het kort algemeen beleid verwoord dat voor alle plannen geldend is. Hierbij dient gedacht te worden aan het algemene rijksbeleid en provinciaal beleid. In een separate bijlage is dit beleid nader uitgewerkt. Specifieke aspecten van dit beleid worden bij het project zelf benoemd.

Voor de planontwikkelingen is in hoofdstuk 3 een korte toelichting opgenomen. De situatie wordt kort omschreven en aangegeven wordt wat de plannen zijn. De uitgebreide ruimtelijke onderbouwing, eventueel bijbehorende adviezen, (aanvullende) onderzoeken et cetera zijn separaat als bijlagen bij dit bestemmingsplan gevoegd. Deze documenten zijn onlosmakelijk verbonden met onderliggend bestemmingsplan. Uit deze documenten blijkt dat de plannen voldoen aan een goede ruimtelijke ordening. In deze documenten wordt ook het beleid uitvoeriger, in relatie tot de plannen, besproken.

Hoofdstuk 4 van deze toelichting gaat in op de algemene haalbaarheid van dit bestemmingsplan.

In hoofdstuk 5 is ten slotte ruimte opgenomen voor het vooroverleg, de resultaten en verwerking van zienswijzen en eventuele ambtshalve aanpassingen.

Hoofdstuk 2 Beleid

Bij het opstellen van het bestemmingsplan moet worden voldaan aan de van toepassing zijnde wet- en regelgeving op Rijks-, provinciaal en gemeentelijk niveau. In dit hoofdstuk worden de van toepassing zijnde beleidsstukken benoemd en wordt een samenvatting gegeven van de belangrijkste beleidskaders. Een uitgebreide beschrijving van deze en overige beleidsstukken is opgenomen in bijlage 1.

2.1 Rijksbeleid

2.1.1 Nationale Omgevingsvisie

Met de Nationale Omgevingsvisie (NOVI) geeft het Rijk richting aan de grote opgaven die de inrichting van Nederland de komende dertig jaar ingrijpend zullen veranderen. Denk aan het bouwen van ongeveer 1 miljoen nieuwe woningen, ruimte voor opwekking van duurzame energie, aanpassing aan een veranderend klimaat, ontwikkeling van een circulaire economie en omschakeling naar kringlooplandbouw. Alles met zorg voor een gezonde bodem, schoon water, behoud van biodiversiteit en een aantrekkelijke leefomgeving.
De NOVI richt zich op die ontwikkelingen waarin meerdere nationale belangen bij elkaar komen en keuzes in samenhang moeten worden gemaakt tussen die nationale belangen, zoals:

  • bevorderen van een duurzame ontwikkeling van Nederland als geheel en van alle onderdelen van de fysieke leefomgeving
  • realiseren van een goede leefomgevingskwaliteit
  • waarborgen en bevorderen van een gezonde en veilige fysieke leefomgeving
  • zorgdragen voor een woningvoorraad die aansluit op de woonbehoeften
  • beperken van klimaatverandering
  • realiseren van een betrouwbare, betaalbare en veilige energievoorziening
  • waarborgen van de waterveiligheid en de klimaatbestendigheid
  • waarborgen en versterken van een aantrekkelijk ruimtelijk-economisch vestigingsklimaat
  • ontwikkelen van een duurzame voedsel- en agroproductie
  • behouden en versterken van cultureel erfgoed en landschappelijke en natuurlijke kwaliteiten van (inter)nationaal belang
  • verbeteren en beschermen van natuur en biodiversiteit

De NOVI biedt een duurzaam perspectief voor de leefomgeving. Hiermee wordt ingespeeld op de grote uitdagingen in de komende jaren. Allerlei trends en ontwikkelingen hebben invloed op de leefomgeving. Veranderende en groeiende steden, de overgang naar een duurzame en circulaire economie en het aanpassen aan de gevolgen van de klimaatverandering vormen slechts een deel van de opgave. Dit biedt kansen, maar vraagt wel om zorgvuldige keuzes, want de ruimte, zowel boven-, als ondergronds, is een schaars goed. Het combineren van al die opgaven vraagt een nieuwe manier van werken: niet van bovenaf opgelegd, maar in goede samenwerking tussen overheden, bedrijven, kennisinstellingen, maatschappelijke organisaties en burgers. De NOVI biedt een kader, geeft richting en maakt keuzes waar dat kan. Tegelijkertijd is er ruimte voor regionaal maatwerk en gebiedsgerichte uitwerking. Omdat de verantwoordelijkheid voor het omgevingsbeleid voor een groot deel bij provincies, gemeenten en waterschappen ligt, kunnen inhoudelijke keuzes in veel gevallen het beste regionaal worden gemaakt.

Aan de hand van een toekomstperspectief op 2050 brengt de NOVI de langetermijnvisie in beeld. Op nationale belangen wil het Rijk sturen en richting geven. Die komen samen in vier prioriteiten:

  • 1. Ruimte voor klimaatadaptatie en energietransitie
  • 2. Duurzaam economisch groeipotentieel
  • 3. Sterke en gezonde steden en regio's
  • 4. Toekomstbestendige ontwikkeling van het landelijk gebied

De NOVI dient op regionaal niveau uitgewerkt te worden, zodat een gebiedsgerichte aanpak en maatwerk mogelijk is. Deze uitwerking heeft nog niet plaatsgevonden. Deze ontbrekende regionale uitwerking samen met het hoge schaalniveau van de NOVI maken dat concrete aanwijzingen voor de diverse planonderdelen van deze bestemmingsplanherziening ontbreken.


Tevens zijn op rijksniveau de volgende wettelijke- en beleidskaders van belang voor dit bestemmingsplan:

  • Barro/AMvB Ruimte:

de nationale belangen, die juridische borging vragen, zijn uitgewerkt in het Besluit algemene regels ruimtelijke ordening (Barro). Het Barro is ook wel bekend als de AMvB Ruimte. Het Besluit geeft de juridische kaders die nodig zijn om het vigerend ruimtelijk rijksbeleid te borgen. De Regeling algemene regels ruimtelijke ordening (Rarro) is gebaseerd op het Barro;

  • Bro (ladder voor duurzame verstedelijking):

Het Besluit ruimtelijke ordening (Bro) bevat de uitwerking van bepalingen uit de Wet ruimtelijke ordening (Wro). Op 1 oktober 2012 is het Besluit ruimtelijke ordening (Bro) gewijzigd en is ‘de ladder voor duurzame verstedelijking’ daaraan toegevoegd. Doel van de ladder voor duurzame verstedelijking is een goede ruimtelijke ordening door een optimale benutting van de ruimte in stedelijke gebieden.

Deze beleidskaders zijn nader beschreven in bijlage 1.

2.2 Provinciaal beleid

2.2.1 Omgevingsvisie Noord-Brabant

Op 14 december 2018 heeft de provincie Noord-Brabant de Omgevingsvisie Noord-Brabant "De kwaliteit van Brabant" vastgesteld. De omgevingsvisie bevat de belangrijkste ambities voor de fysieke leefomgeving voor de komende jaren. Dat gaat om ambities op gebied van de energietransitie, een klimaatproof Brabant, Brabant als slimme netwerkstad en een concurrerende, duurzame economie. De omgevingsvisie geeft ook aan op welke nieuwe manieren de provincie met betrokkenen wil samenwerken aan omgevingsvraagstukken en welke waarden daarbij centraal staan.

Met de omgevingsvisie wil de provincie vast aansluiten bij en gaan werken volgens de uitgangspunten van de nieuwe Omgevingswet. Samen met andere overheden, initiatiefnemers en andere betrokken partijen wordt actief gezocht naar een praktijk waarin deze nieuwe manier van werken centraal staat.

De Omgevingsvisie gaat over twee vragen:

  • 1. Hoe moet de Brabantse leefomgeving er in 2050 uit zien?
  • 2. Wat moet in 2030 voor elkaar zijn om dat toekomstperspectief te verwezenlijken?

De doelstelling die Noord-Brabant heeft voor 2050 is dat zij in dat jaar welvarend, verbonden en klimaatproof is. De welvaart wil de provincie bereiken door te investeren in een gezonde en sterke concurrentiepositie door het goede vestigingsklimaat voor bedrijven en kenniswerkers, maar ook door de voortrekkersrol in de transitie naar een innovatieve en duurzame economie. De provincie ziet welvaart niet alleen als economische bestaanszekerheid, maar ook als geluk, gezondheid en veiligheid van mensen. In dat kader stelt de provincie dat in 2050 bestaande problemen in de fysieke leefomgeving zijn opgelost en dat het robuuste natuurnetwerk uitstekend functioneert.

Dankzij investeringen in natuur, verdrogingsbestrijding, bodem, waterkwaliteit, een groene (natuurrijke) inrichting van woon- en werkgebieden en het terugdringen van emissies uit landbouw en industrie wil de provincie zowel de menselijke leefomgeving als die voor flora en fauna verbeteren. Dit leidt tot een goed welbevinden en een grote soortenrijkdom.

Voor wat betreft de verbondenheid is het streven van de provincie dat Brabant de centrale ligging uitstekend weet te benutten door goede verbindingen op zowel fysiek als op sociaal-maatschappelijk (digitaal) gebied. Daarbij is een van de doelen dat de logistieke bedrijvigheid nog steeds een top sector is, maar dan op een schonere en slimmere manier.

Daarnaast bieden nog zichtbare historische waarden, erfgoed en landschappelijke verscheidenheid een verbinding met het verleden. Deze elementen dienen te blijven behouden voor een aantrekkelijke omgeving als uitloopgebied voor de inwoners van steden en dorpen en voor recreatie. Met betrekking tot het streven klimaatproof te zijn wil de provincie in 2050 geheel energieneutraal zijn. Dit willen zij bereiken door alleen nog duurzame energie te gebruiken. Daarnaast wil de provincie verdere klimaatverandering tegengaan door de uitstoot van koolstofdioxide en de uitstoot van methaan uit de landbouw fors terug te dringen. Daarnaast wil de provincie goed om kunnen gaan met de klimaatverandering en de effecten daarvan. Hierbij staat duurzaam, gezond en klimaatbestendig bouwen centraal. Daarnaast dient voldoende ruimte beschikbaar te zijn om water op te vangen en vast te houden in tijden van droogte en om wateroverlast te voorkomen.

Op basis van deze doelstellingen heeft de provincie vier hoofdopgaven geformuleerd:

  • Werken aan de Brabantse energietransitie;
  • Werken aan een klimaatproof Brabant;
  • Werken aan de slimme netwerkstad;
  • Werken aan een concurrerende, duurzame economie.

Deze opgaven worden niet los van elkaar gezien, maar zijn vanuit de basis met elkaar verbonden. Hierbij wordt gekeken vanuit een gebied specifieke benadering om de kansen en bedreigingen van de opgaven te benoemen en rekening te houden met de kansen vanuit andere hoofdopgaven.

2.2.2 Interim omgevingsverordening Noord-Brabant

Provinciale Staten van Noord-Brabant hebben op 25 oktober 2019 de Interim omgevingsverordening Noord-Brabant (planidn: NL.IMRO.9930.InterimOvr.va01) vastgesteld.

De Interim omgevingsverordening is een eerste stap op weg naar de definitieve omgevingsverordening. Hierin worden de bestaande verordeningen over de fysieke leefomgeving samengevoegd tot één Interim omgevingsverordening. Dit zijn de:

  • Provinciale milieuverordening, gebaseerd op artikel 1.2. Wet milieubeheer
  • Verordening natuurbescherming, gebaseerd op diverse artikelen uit de Wet natuurbescherming
  • Verordening Ontgrondingen, gebaseerd op artikel 5, tweede lid, en artikel 7, tweede lid, Ontgrondingenwet
  • Verordening ruimte, gebaseerd op artikel 4.1. Wet ruimtelijke ordening
  • Verordening water, gebaseerd op diverse artikelen in de Waterwet
  • Verordening wegen, gebaseerd op artikel 57 Wegenwet en artikel 2A Wegenverkeerswet

De Interim omgevingsverordening is beleidsneutraal van karakter. Dat betekent dat er geen nieuwe beleidswijzigingen zijn doorgevoerd, behalve als deze voortvloeien uit vastgesteld beleid, zoals de omgevingsvisie. Er heeft daarom ook geen expliciete afweging plaatsgevonden of de inzet van de verordening voor een bepaald onderwerp gecontinueerd moet worden. In beginsel zijn de huidige regels met het huidige beschermingsniveau gehandhaafd. In bijlage 1 is de Verordening Ruimte Noord-Brabant uitgebreid beschreven. De hierin genoemde structuren, aanduidingen, algemene regels en functies zijn veelal ongewijzigd teruggekomen in de Interim omgevingsverordening.

Deze beleidsneutrale omzetting betekent overigens niet dat er helemaal geen wijzigingen ten opzichte van de huidige verordeningen zijn verwerkt. De wijzigingen zijn in de toelichting van de verordening toegelicht. Op hoofdlijnen gaat het om:

  • een meer gebruikersvriendelijke opbouw met regels die per gebruikersgroep (burgers en bedrijven, gemeenten, waterschap) bij elkaar staan en minder losse bijlagen;
  • aanpassingen waardoor de regels straks beter passen in het systeem van de Omgevingswet, bijvoorbeeld voor de grondwaterbeschermingsgebieden;
  • aanpassingen vanwege de vastgestelde omgevingsvisie, zoals de nieuwe manier van samenwerken en meer inzet op omgevingskwaliteit.

2.3 Regionaal beleid

2.3.1 Regionale afstemming Peelgemeenten

De 21 gemeenten in Zuidoost-Brabant vormen samen de Woningmarktregio Metropoolregio Eindhoven. In deze regio worden jaarlijks afspraken gemaakt over de regionale, subregionale of lokale woningmarkt. In de 'Regionale begrippenlijst wonen' staan de definities van die begrippen die nodig zijn om die afspraken af te bakenen en/of toe te lichten. Voor de begrippen en prijsgrenzen worden de actuele regionale afspraken gehanteerd, zoals afgesproken in de 'Regionale begrippenlijst wonen'.

Binnen de woonregio De Peel zijn regionale woningbouwafspraken gemaakt. Deze afspraken zijn vastgelegd in 'Woonafspraken De Peel'. Mochten de regionale woonafspraken wijzigen dan worden deze gehanteerd.

Plannen worden onderling gedeeld en er vindt afstemming plaats over de woningbouw. De afspraken gaan onder andere over afstemming van uitbreidingslocaties, niet-traditionele woonvormen en de huisvesting van specifieke doelgroepen, waaronder arbeidsmigranten en doelgroepen die 'claims' leggen op Wmo-budget. In 2023 zijn de woonafspraken De Peel geactualiseerd en bekrachtigd. Dit gelet op de woningbehoeften en de wens om goede plannen binnen bestaand stedelijk gebied te kunnen blijven faciliteren. Voor uitbreidingslocaties zijn nadere afspraken gemaakt. Deze woonafspraken zijn nu in uitvoering en vormen de leidraad waarlangs gewerkt wordt.

Afgesproken is dat voor plannen buiten bestaand stedelijk gebied, waarbij de harde plancapaciteit lager blijft dan de gemeentelijke bruto nieuwbouwopgave zoals opgenomen in de 'Woondeal Zuidoost-Brabant' (maximaal 100% harde plancapaciteit), goed gemotiveerd wordt waarom het binnenstedelijk niet kan. De ontwikkeling past dan binnen de regionale afspraken.

2.3.2 Regionale afspraken Zuidoost Brabant

In de 'Woondeal Zuidoost-Brabant' en de 'Regionale Ontwikkelstrategie Zuidoost-Brabant' zijn woningbouwafspraken uitgewerkt. Deze worden gehanteerd. In de 'Woondeal Zuidoost-Brabant' zijn regionale afspraken gemaakt met de rijksoverheid, provincie Noord-Brabant, gemeenten en corporaties. Hierin is concreet vastgelegd hoeveel woningen erbij komen in deze regio en gemeente. Streven is om de grote woningopgave, het realiseren van voldoende betaalbare woningen en de versnelling voor elkaar te krijgen. In de 'Regionale Ontwikkelstrategie Zuidoost-Brabant' is een gezamenlijke ontwikkelstrategie beschreven om tot een evenwichtige schaalsprong te komen, met een focus op wonen, werken en mobiliteit.

2.4 Gemeentelijk beleid

De volgende beleidskaders waren van belang bij het opstellen van het bestemmingsplan “Gemert-Bakel Buitengebied 2017”:

- Structuurvisie+ Gemert-Bakel 2010-2020;

- Beleidskader plattelandswoningen;

- Beleidsnotitie Boerderijsplitsing

- Woonvisie 2016 - 2020;

- Watertakenplan 2013-2016;

- Gemeentelijk geurbeleid;

- Gemeentelijk archeologisch beleid;

- Gemeentelijk cultuurhistorisch beleid [Oude akkers];

- Gemeentelijk VAB-beleid;

- Beleidsnota Bed & Breakfast;

- Beeldkwaliteitsplan Buitengebied Gemert-Bakel;

- Handreiking Kwaliteitsverbetering van het landschap Gemert-Bakel;

- Beleidsnotitie pluimvee;

- Memo Duurzaamheid - Duurzaamheid in bestemmingsplan Buitengebied.

Een korte beschrijving van de genoemde beleidsdocumenten en de relevantie voor en de borging daarvan in het onderliggende bestemmingsplan (moederplan) is weergegeven in bijlage 1. Inmiddels zijn enkele kaders geactualiseerd. Een korte beschrijving van deze kaders volgt hierna.

Woonvisie Gemert-Bakel 2020 - 2024

De ambitie van de gemeente Gemert-Bakel is een woningmarkt die aan de woningvraag en woonbehoefte voldoet. De huidige woonvisie 2020 - 2024 wordt naar verwachting op onderdelen aangepast. Ook zijn twee verordeningen vastgesteld waarin regels zijn opgenomen, dit zijn de Verordening middenhuur en de Verordening sociale huur en koop.

De gemeente Gemert-Bakel heeft de ambitie om te groeien naar 35.000 inwoners, waardoor het aantal huishoudens toeneemt. Groei biedt kansen om een aantrekkelijk woon- en leefklimaat te blijven bieden. De woningbehoefte voor eigen inwoners is groot. Ook in de regio Zuidoost Brabant staat de gemeente voor de uitdaging van de schaalsprong. Met de groei van kennisintensieve- en maakindustrie op komst is de vraag naar arbeidsplaatsen en woningen enorm. De gemeente Gemert-Bakel levert een belangrijke bijdrage aan de maatschappelijke uitdagingen om de aantrekkelijkheid van de gemeente en de regio te vergroten. Om dit in balans te houden worden op provinciaal, regionaal en lokaal niveau woningbouwafspraken gemaakt.

In de periode 2022-2032 wordt ernaar gestreefd om in Gemert-Bakel 2400 nieuwe woningen te bouwen voor de eigen inwoners, voor werknemers én voor de regio. De ambitie van de gemeente Gemert-Bakel is een woningmarkt die aan de woningvraag en woonbehoefte voldoet. Er is vooral behoefte aan betaalbare huur- en koopwoningen voor starters, senioren en kleine huishoudens, naast andere aandachtsgroepen. Dit is daarom het soort woningen waarvoor de komende 10 jaar de bouw gestimuleerd wordt.

Gemeentelijk watertakenplan 2019 – 2023

Het gemeentelijk waterbeleid is opgenomen in het watertakenplan 2019 – 2023 van de gemeente Gemert-Bakel d.d. 25 oktober 2018. De gemeente Gemert-Bakel hanteert bij ontwikkelingen een norm van 60 mm berging van regenwater per m2 verhard oppervlak. Deze eis geldt voor elke toename of wijziging van afvoerend verhard oppervlak, ongeacht de lozingssituatie.

Door klimaatverandering wordt het steeds belangrijker om de omgeving klimaatadaptief in te richten. Dat betekent onder meer dat we in staat moeten zijn om extreme neerslag hoeveelheden te verwerken. Het is vanuit economisch oogpunt niet haalbaar om deze doelstelling (alleen) te behalen door het ondergrondse systeem te verzwaren. De aanleg van waterberging op eigen terrein ontlast de regenwatervoorziening op openbaar terrein en levert een bijdrage aan het verminderen van wateroverlast. Daarom wordt in dit plan de aanleg van waterberging bij nieuwe ontwikkelingen voorgeschreven.

2.5 Waterschap Aa en Maas

Uitgangspunten Watertoets

In december 2004 heeft het Dagelijks Bestuur van waterschap Aa en Maas de beleidsnota 'uitgangspunten watertoets Aa en Maas’ vastgesteld. De uitgangspunten zorgen ervoor dat de ‘watersysteembelangen’ een plek hebben in het watertoetsproces. Daarnaast is er nog een aantal ‘waterschapsbelangen’ die vanwege de directe ruimteclaims ook een plek in de ruimtelijke ordening moet krijgen. Daarmee wordt gekomen tot de volgende lijst van onderwerpen die uitgewerkt worden in het watertoetsproces:

  • Wateroverlastvrij bestemmen;
  • Hydrologisch neutraal ontwikkelen;
  • Voorkomen van vervuiling;
  • Gescheiden houden van schoon en vuil water;
  • Doorlopen van de afwegingsstappen ‘hergebruik-infiltratie-buffering-afvoer’;
  • Meervoudig ruimtegebruik;
  • Water als kans;
  • Waterschapsbelangen:
    • 1. Ruimteclaims voor waterberging;
    • 2. Ruimteclaims voor de aanleg van natte EVZ’s en beekherstel;
    • 3. Aanwezigheid en ligging watersysteem;
    • 4. Aanwezigheid en ligging waterkeringen;
    • 5. Aanwezigheid en ligging van infrastructuur en ruimteclaims t.b.v. de afvalwaterketen in beheer van het waterschap.

Beleid waterschap Aa en Maas

Het beleid van waterschap Aa en Maas is er op gericht om bij nieuwbouw geen vermenging te laten optreden van schoon en vuil water en hanteert zij de stappen hergebruik - infiltratie - bufferen - afvoer als zijnde gewenst.

Beleidsuitgangspunten:

  • Wateroverlastvrij bestemmen: bij de locatiekeuze voor een nieuwe ruimtelijke ontwikkeling dient rekening te worden gehouden met een plek die ‘hoog en droog genoeg is’;
  • Gescheiden houden van vuil water en schoon regenwater: het streefbeeld is het afvoeren van het vuile water via de riolering en het binnen het plangebied verwerken van het schone regenwater;
  • Doorlopen van de afwegingsstappen “hergebruik – infiltratie – buffering – afvoer”: het beleid van het waterschap is dat altijd onderzocht dient te worden hoe het meest efficiënt / volgens deze methode omgegaan kan worden met het schone hemelwater;
  • Hydrologisch neutraal bouwen: bij nieuwe ontwikkelingen dient te worden voldaan aan het principe van hydrologisch neutraal bouwen, waarbij de nieuwe hydrologische situatie minimaal gelijk moet blijven aan de uitgangssituatie;
  • Water als kans: water kan een meerwaarde bieden aan het plan, bijvoorbeeld door gebruik te maken van de belevingswaarde van water;
  • Meervoudig ruimtegebruik: in de plannen moet ruimte worden vrijgemaakt voor water. Door bij de inrichting van een plangebied de ruimte voor meerdere doeleinden te gebruiken, is het verlies van ruimte aan water te beperken;
  • Voorkomen van verontreiniging: het streven van het waterschap is om nieuwe (bronnen van) verontreiniging zoveel mogelijk te voorkomen.

Waterbeheerplan 2022-2027 Waterschap Aa en Maas

In het Waterbeheerplan 2022 – 2027 zijn de doelen van het waterschap en de strategie om deze doelen te bereiken voor de genoemde periode vastgelegd. Ook wordt beschreven hoe wordt ingespeeld op veranderende omstandigheden, zoals het klimaat en stoffen in het oppervlaktewater. Bij het waterbeheer is de missie van het waterschap leidend. Deze luidt: het ontwikkelen, beheren en in stand houden van gezonde, robuuste en veerkrachtige watersystemen, die ruimte bieden aan een duurzaam gebruik voor mens, dier en plant in het gebied, waarbij de veiligheid is gewaarborgd en met oog voor economische aspecten. Onderdeel van het beheerplan zijn drie programma's.

Programma Waterveiligheid

Dit programma is erop gericht Oost-Brabant beter te beschermen tegen overstromingen vanuit de Maas. Voor de gemeente Gemert-Bakel heeft dit niet direct betekenis.

Programma Klimaatbestendig en gezond watersysteem

Dit programma is gericht op een goede waterkwaliteit en -kwantiteit voor mens en natuur. Het is belangrijk dat het watersysteem goed werkt in normale en in extreem droge en natte situaties. Het watersysteem moet klimaatbestendig en stuurbaar zijn, qua hoeveelheid (goede waterpeilen, het vasthouden van water en het omgaan met wateroverlast en droogte) en kwaliteit van het water (chemisch en ecologisch). Daarnaast richt het programma zich ook op gezond en natuurlijk water. Voor het creëren van goede omstandigheden voor planten en dieren in en om het water moeten de doelstellingen uit de Europese Kaderrichtlijn Water gehaald worden.

Programma Schoon water

In dit programma staan goede zuiveringsresultaten voor gezond water in sloten en beken centraal. Het streven is het rioolwater nog schoner te maken en om ervoor te zorgen dat het water in de sloten en beken nog gezonder wordt. Daarbij wil het waterschap de voor zuivering benodigde energie zelf duurzaam opwekken en komen tot circulair waterbeheer.

Keur Waterschap Aa en Maas

Op 1 maart 2015 is de keur van waterschap Aa en Maas gewijzigd. De ‘oude’ keur is daarbij
vervangen door een nieuwe keur die geldt voor alle drie de Brabantse waterschappen.

Bij een toename en afkoppelen van het verhard oppervlak geldt het uitgangspunt dat plannen zoveel mogelijk hydrologisch neutraal worden uitgevoerd. Het doel van dit uitgangspunt is om te voorkomen dat hemelwater als gevolg van uitbreiding van het verhard oppervlak versneld op het watersysteem wordt geloosd. Voor lozingen op een oppervlaktewater eist het Waterschap daarom een vervangende berging, die de extra afvoer van het nieuwe verharde oppervlak als het ware neutraliseert. Gemeenten stellen vanuit hun eigen verantwoordelijkheid voorwaarden aan de afvoer via een rioleringsstelsel. Bij het invullen van de compensatieopgave wordt tevens gekeken naar de mogelijke realisering van andere waterdoelen. Het gaat hierbij dus om een optimale inpassing van een plan in zijn omgeving, waarbij ook gekeken moet worden naar het huidig en toekomstig functioneren van het totale (deel)stroomgebied waar de ontwikkeling onderdeel van uitmaakt. Naast het behoud van voldoende systeemrobuustheid, kan hiermee beter invulling worden gegeven aan de gewenste doelmatigheid. Bovendien biedt dit mogelijkheden voor waterschappen en gemeenten om ook andere dan hydrologische aspecten mee te nemen in de afweging. Het gaat hierbij bijvoorbeeld om het oplossen van waterkwaliteitsknelpunten of het tegengaan van verdroging.

De waterschappen maken bij het beoordelen van plannen met een toegenomen verhard oppervlak onderscheid tussen grote en kleine plannen. Hoewel er relatief veel kleine plannen zijn veroorzaken deze op deelstroomgebiedsniveau nauwelijks een toename van de maatgevende afvoer. Dit heeft er toe geleid dat voor kleine plannen kan worden volstaan met het toepassen van een eenvoudige rekenregel voor het bepalen van de compensatieopgave. Deze rekenregel is onderdeel van de algemene regel. Voor grotere plannen volstaat de rekenregel niet voor het bepalen van de compensatie-opgave, omdat de impact van dergelijke plannen op het watersysteem (veel) groter is. Voor grote plannen is daarom altijd een waterhuishoudkundig onderzoek door de initiatiefnemer noodzakelijk en dient het waterschap vroegtijdig te worden betrokken. Het document ‘Hydrologische uitgangspunten bij de Keurregels voor afvoeren van hemelwater, Brabantse waterschappen’ bevat de richtlijnen voor het waterhuishoudkundig onderzoek en kan zowel worden gebruikt door initiatiefnemer of adviesbureau voor het uitvoeren van het waterhuishoudkundig onderzoek, als door het waterschap voor het beoordelen ervan.

Voor een optimale inpassing van plannen met een uitbreiding van het verhard oppervlak is het noodzakelijk het waterschap in een vroeg stadium te betrekken. Dit geldt zowel voor kleine als grote plannen en vormt onderdeel van de watertoets. Alleen op deze wijze kunnen waterbeheerder en initiatiefnemer gezamenlijk zorgen voor het behoud van de robuustheid van het watersysteem en kan wateroverlast in de toekomst zoveel mogelijk worden beperkt.

Hoofdstuk 3 Planontwikkelingen en herstelwijzigingen

3.1 Dr. de Quayweg 75-79, De Mortel

3.1.1 Aanleiding en situatie

De locatie Dr. de Quayweg 75-79 (hierna: het plangebied) betreft een melkveebedrijf met twee bedrijfswoningen, bestaande uit een gekoppeld bouwvlak. Initiatiefnemers wensen de twee locaties te ontkoppelen, waarna de locatie Dr. de Quayweg 79 doorgaat als melkveebedrijf met één bedrijfswoning en de locatie Dr. de Quayweg 75 een burgerwoning wordt. Vervolgens wil initiatiefnemer de woning op de locatie Dr. de Quayweg 75 slopen en op een andere plaats op de locatie een nieuwe woning bouwen. Daarbij wordt de woonbestemming van vorm veranderd.

De gewenste ontwikkelingen zijn in strijd met de regels van het bestemmingsplan. Het relatieteken tussen beide locaties dient te worden verwijderd. Op de locatie Dr. de Quayweg 79 dient de maatvoering 'maximumaantal wooneenheden' te worden teruggebracht tot één. Op de locatie Dr. de Quayweg 75 dient de agrarische bestemming te worden gewijzigd in ‘Wonen’ en wordt het bestemmingsvlak van vorm veranderd.

3.1.2 Locatie

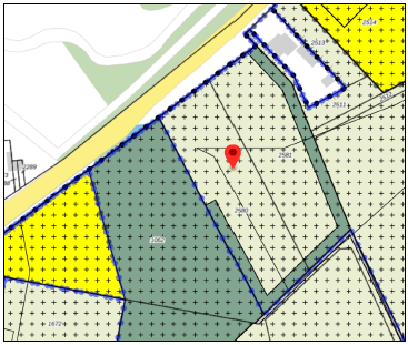
Het plangebied ligt binnen de grenzen van de gemeente Gemert-Bakel, op een afstand van circa 2,2 kilometer ten oosten van de kern Gemert en 2,7 kilometer ten noordoosten van de kern De Mortel. Het plangebied maakt deel uit van een perceel dat kadastraal bekend is als gemeente Gemert, sectie G, nummer 1216. Aan de noordzijde wordt het plangebied begrensd door de weg Dr. de Quayweg. Aan de overzijde van de Dr. de Quayweg ligt een gesaneerde nertsenhouderij (Dr. de Quayweg 76). Aan de overige zijden wordt het plangebied begrenst door eigen landbouwgronden.

De directe omgeving van het plangebied heeft een agrarisch karakter en wordt gekenmerkt door verspreid liggende agrarische bedrijven, niet-agrarische bedrijven en burgerwoningen.

afbeelding "i_NL.IMRO.1652.Buitengebied122023-ON01_0001.png"

Figuur 3.1.1 Luchtfoto ligging plangebied (bron: Agron Advies)

Op het plangebied is het bestemmingsplan ‘Gemert-Bakel Buitengebied 2017’ (vastgesteld op 5 juli 2018) van toepassing. Het plangebied heeft hierin de bestemming ‘Agrarisch- Agrarisch bedrijf’ met als maatvoeringsaanduiding ‘maximaal wooneenheden: 2’. De locatie Dr. de Quayweg 79 heeft tevens de bouwaanduiding ‘specifieke bouwaanduiding – beeldbepalend pand’. De gewenste ontwikkelingen zijn in strijd met de regels van het bestemmingsplan. Derhalve dient een ruimtelijke procedure te worden doorlopen.

afbeelding "i_NL.IMRO.1652.Buitengebied122023-ON01_0002.png"

Figuur 3.1.2 Uitsnede geldend bestemmingsplan (bron: Agron Advies)

3.1.3 Huidige situatie

De locatie Dr. de Quayweg 75-79 betreft een melkveebedrijf met twee bedrijfswoningen, bestaande uit een gekoppeld bouwvlak. Het melkveebedrijf met één bedrijfswoning is gelegen op de locatie Dr. de Quayweg 79. Op het deel van het agrarisch bestemmingsvlak op de locatie Dr. de Quayweg 75 (1.074 m²) is de tweede bedrijfswoning gelegen. Dit betreft een landarbeiderswoning oorspronkelijk gebouwd om het personeel dat op het land werkte te huisvesten. De twee locaties worden ontsloten door een eigen weg, die ter hoogte van nr. 75 aansluiting vindt op de Dr. de Quayweg. De huidige woning nr. 75 is georiënteerd op de Dr. de Quayweg.

afbeelding "i_NL.IMRO.1652.Buitengebied122023-ON01_0003.png"

Figuur 3.1.3 Bestaande situatie Dr. de Quayweg 75 en 79 (bron: Agron Advies)

3.1.4 Het plan

Initiatiefnemers wensen de twee locaties te ontkoppelen, waarna de locatie Dr. de Quayweg 79 doorgaat als melkveebedrijf met één bedrijfswoning en de locatie Dr. de Quayweg 75 een burgerwoning wordt. Vervolgens wil initiatiefnemer de woning op de locatie Dr. de Quayweg 75 slopen en op een andere plaats een nieuwe woning bouwen. Daarbij wordt de woonbestemming van vorm veranderd.

Om stedenbouwkundig aansluiting te zoeken bij de boerderij Dr. De Quayweg 79 is de woning gesitueerd aan de eigen weg naar de boerderij. De woning is losgekoppeld van de doorgaande weg, het lint. De woning oriënteert zich met de voorgevel naar de boerderij en zijn landerijen. Ook de ontsluiting is aan de eigen weg. Op deze manier vormt de woning meer een eenheid met de boerderij.

De nieuwe woning wordt elders op het perceel herbouwd, op grotere afstand van de Dr. de Quayweg, in verband met eventuele geluidhinder en de nabije ligging van het agrarisch bedrijf Dr. de Quayweg 76. Hierbij wordt in tegenstelling tot de huidige situatie, waarin de woning op de Dr. de Quayweg is georiënteerd, de woning georiënteerd op de eigen weg die het melkveebedrijf op nr. 79 ontsluit. De ontsluiting van de woning vindt ook plaats op deze eigen weg.

Door de wijzigende positionering van de woning dient het bestemmingsvlak van vorm te worden veranderd (verschoven). De oppervlakte van het bestemmingsvlak blijft hierbij ongewijzigd (1.074 m2). De verschuiving van het bestemmingsvlak in zuidelijke richting zorgt er voor dat er een ruimtelijke relatie blijft met nr. 79, zoals deze er altijd is geweest als landarbeiderswoning bij het agrarisch perceel. De situering van het bijbehorend bouwwerk wordt zo gekozen, dat deze een bufferende werking heeft tussen de woning en de Dr. de Quayweg.

Het initiatief is in strijd met de regels van het vigerende bestemmingsplan. De gronden binnen de huidige agrarische bestemming zijn bestemd voor de exploitatie van een agrarisch bedrijf. Het relatieteken tussen beide locaties dient te worden verwijderd. Op de locatie Dr. de Quayweg 79 dient de maatvoering maximumaantal wooneenheden te worden teruggebracht tot één. Op de locatie Dr. de Quayweg 75 dient de agrarische bestemming te worden gewijzigd in ‘Wonen’ en het bestemmingsvlak van vorm te worden veranderd zodat de woonbestemming op grotere afstand van de Dr. de Quayweg af komt te liggen.

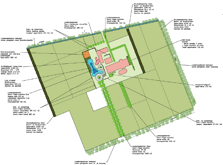
Landschappelijke inpassing

Verder vindt er landschappelijke inpassing van het plangebied plaats overeenkomstig de uitgangspunten van de Handreiking Kwaliteitsverbetering van het landschap. Haaks op de Dr. De Quayweg wordt aan de westzijde van de locatie een nieuwe houtsingel gerealiseerd. Deze houtsingel fungeert als landschappelijk inpassingselement voor de nieuwe bebouwing. Ook wordt hier een natuurlijke vijver gerealiseerd, die tegelijkertijd een ecologische functie kan vervullen. De gronden rondom de vijver worden voorzien van een kruidenrijk grasland. Aan de noordzijde van het nieuwe bijbehorend bouwwerk wordt een viertal beuken geplant, zodat ook deze zijde landschappelijk wordt ingepast. De tuin rondom de woning wordt in de nieuwe situatie omzoomd door een lage beukenhaag. De nieuwe bewoners van de woning (die nu nog woonachtig zijn in de boerderij nr. 79) willen vanuit de woning het zicht op het omliggende open landschap en de boerderij (waar zij een groot deel van hun leven hebben gewoond) behouden. In totaal bedraagt de oppervlakte van zowel de bestaande als nieuwe beplanting in de beoogde situatie circa 515 m².

afbeelding "i_NL.IMRO.1652.Buitengebied122023-ON01_0004.png"

Figuur 3.1.4 Toekomstige situatie en landschappelijke inpassing (bron: Agron Advies)

Bodemonderzoek en -sanering

Op de locatie Dr. de Quayweg 75 is een verontreiniging met minerale olie ter plaatse van het vulpunt van een ondergrondse olietank geconstateerd. Nader bodemonderzoek en sanering van de tank zijn noodzakelijk. Onderzoek en sanering worden momenteel voorbereid en zullen geheel zijn uitgevoerd voor de vaststelling van het bestemmingsplan. Het uitvoeren van de sanering voor de vaststelling van het plan is als voorwaardelijke verplichting in de planregels opgenomen.

3.2 Dr. de Quayweg 80, De Mortel

3.2.1 Aanleiding en situatie

De locatie Dr. de Quayweg 80 betreft in de huidige situatie een niet-agrarisch bedrijf in de vorm van een agrarisch verwant bedrijf. Initiatiefnemer wenst deze locatie te ontwikkelen tot een paardenhouderij. Binnen de paardenhouderij worden bedrijfsmatig paarden gehouden, hieronder begrepen activiteiten als africhten, trainen, berijden ervan. De bestaande schuur wordt hiervoor gesloopt en vervangen door nieuwe paardenstallen met bijbehorende voorzieningen en huisvesting van grooms (paardenverzorgers).

De gewenste ontwikkeling is in strijd met de regels van het bestemmingsplan. Binnen de huidige regels van het bestemmingsplan is de ontwikkeling van een paardenhouderij niet mogelijk. Het plangebied heeft de bestemming ‘Bedrijf’ met de functieaanduiding ‘specifieke vorm van bedrijf – agrarisch verwant’. De functieaanduiding ‘agrarisch verwant' dient gewijzigd te worden om de beoogde ontwikkeling mogelijk te maken. Tevens dient het bestemmingsvlak van vorm te worden veranderd om zo de beoogde bebouwing binnen het bestemmingsvlak te kunnen situeren.

3.2.2 Locatie

Het plangebied ligt binnen de grenzen van de gemeente Gemert-Bakel, op een afstand van circa 2,8 kilometer ten noordoosten van de kern De Mortel. Het plangebied maakt deel uit van een perceel dat kadastraal bekend is als gemeente Gemert, sectie G, nummer 1483. Aan de oostzijde wordt het plangebied begrensd door de weg Dr. de Quayweg. Aan de overzijde van de Dr. de Quayweg ligt een paardenhouderij. Aan de overige zijden wordt het plangebied begrensd door eigen landbouwgronden.

De directe omgeving van het plangebied heeft een agrarisch karakter en wordt gekenmerkt door verspreid liggende agrarische bedrijven, niet-agrarische bedrijven en burgerwoningen.

afbeelding "i_NL.IMRO.1652.Buitengebied122023-ON01_0005.png"

Figuur 3.2.1 Luchtfoto ligging plangebied (rood omkaderd) (bron: Agron Advies)

Op het plangebied is het bestemmingsplan ‘Gemert-Bakel Buitengebied 2017’ (vastgesteld op 5 juli 2018) van toepassing inclusief reparaties en herzieningen hiervan. Het plangebied heeft hierin deels de bestemming ‘Bedrijf’ met de functieaanduiding ‘specifieke vorm van bedrijf – agrarisch verwant’ en deels de bestemming ‘Agrarisch’.

afbeelding "i_NL.IMRO.1652.Buitengebied122023-ON01_0006.png"

Figuur 3.2.2 Uitsnede verbeelding bestemmingsplan ‘Gemert-Bakel Buitengebied 2017’ (plangebied rood omkaderd) (bron: Agron Advies)

3.2.3 Huidige situatie

De locatie Dr. de Quayweg 80 betreft een agrarisch verwant bedrijf waar in de bestaande planologische situatie een bedrijf in cultuurtechnische werken gevestigd is. Deze bedrijfsactiviteiten zijn in de feitelijke situatie reeds beëindigd. In de bestaande situatie zijn binnen het plangebied een bedrijfswoning aanwezig en een tweetal bedrijfsgebouwen met een oppervlakte van in totaal circa 575 m². Het huidige bestemmingsvlak heeft een oppervlakte van 5.711 m².

afbeelding "i_NL.IMRO.1652.Buitengebied122023-ON01_0007.png"

Figuur 3.2.3 Bestaande situatie (bron: Agron Advies)

3.2.4 Het plan

Het initiatief betreft het realiseren van een paardenhouderij binnen het plangebied. De paardenhouderij is hierbij in hoofdzaak gericht op het africhten, het opleiden en het trainen van paarden. Tevens wordt ruimte geboden voor het verblijven van grooms binnen het bedrijf.

De paardenhouderij richt zich op het stallen, africhten en trainen van paarden, met name voor de springsport. In de laatste decennia is de springsport en de daarmee samenhangende handel in toppaarden enorm geïnternationaliseerd (topsport) binnen Nederland. Het opleidings- en trainingsniveau van zowel ruiter als paard is in Nederland zeer hoog. De paardenhouderij / hippische sector heeft zicht de laatste jaren enorm ontwikkeld in het gebied Brussel – Eindhoven – Aken.

Het bedrijf is een zelfstandige eenheid. Binnen het bedrijf worden paarden van derden gehuisvest met daarbij de groom welke de paarden verzorgt. Dit betreffen paarden veelal uit het buitenland. Het is van belang dat deze paarden separaat worden gehuisvest in verband met onder andere ziekten.

Door de bedrijfsvoering van deze gespecialiseerde bedrijven is het noodzakelijk om ruiters en de paardenverzorgers (grooms) voor langere periodes te huisvesten op het bedrijf. Dit zodat jaarrond de paarden binnen het bedrijf getraind en verzorgd kunnen worden. Zowel ruiters als grooms hebben onregelmatige werktijden en door de verantwoordelijkheid voor levende have (van hoge economische waarde) in combinatie met de onregelmatige werktijden is een verblijf voor ruiters en grooms op de locatie een vereiste.

Binnen de paardenhouderij wordt iedere ruiter ondersteund door een groom. Een groom is noodzakelijk en onmisbaar voor zowel ruiter als paard. Een groom draagt gedurende de gehele dag (24 uur) de verzorging van de paarden. Daarnaast ondersteunen ze de ruiter in de training en ook de logistiek. Ze zorgen dat de paarden klaarstaan en gereed zijn voor trainingen en wedstrijden. Op de dagen dat paarden niet bereden worden, worden ze getraind middels longeerwerk en/of conditietraining in de stapmolen. De tijdsduur dat de grooms aanwezig zijn is wisselend van een periode van een week tot een aantal maanden. Ook het aantal grooms dat huisvesting wordt geboden varieert. In totaal worden zes studio’s gerealiseerd.

In verband met de paardenhouderij wil de initiatiefnemer een longeercirkel en tweetal gebouwen oprichten voor de huisvesting van de paarden en huisvesting van de grooms. De schuur noordelijk van de bedrijfswoning blijft behouden.

Deze gebouwen worden gebruikt ten behoeve van de volgende activiteiten:

  • Huisvesting paarden;
  • Wasplaats voor de paarden;
  • Solarium voor paarden;
  • Opslag van paardenrijtuig;
  • Opslag van hooi en stro;
  • Realiseren van een zestal studio’s ten behoeve van de huisvesting van grooms.

De studio’s voor de huisvesting van de grooms worden direct aansluitend aan de stal voor de huisvesting van paarden gerealiseerd. Dit zodat de grooms altijd in de nabijheid van de paarden zijn en zo ook in de nacht zorg kunnen verlenen aan de paarden indien dat noodzakelijk is.

De stal en de studio’s worden westelijk van de bestaande bedrijfswoning gesitueerd zodat het zicht op de bestaande bedrijfswoning vanuit De Quayweg behouden blijft en vanuit de woning zicht behouden blijft op de zuidelijk en oostelijk gelegen gronden.

afbeelding "i_NL.IMRO.1652.Buitengebied122023-ON01_0008.png"

Figuur 3.2.4 Beoogde situatie (bron: Agron Advies)

In de huidige situatie is sprake van de bestemming ‘Bedrijf’ met de functieaanduiding ‘specifieke vorm van bedrijf - agrarisch verwant’. In de beoogde situatie blijft de bestemming ‘Bedrijf’ onveranderd en wordt de functieaanduiding gewijzigd naar ‘specifieke vorm van bedrijf – stalhouderij’. Daarnaast wordt het bestemmingsvlak vergroot. Op basis van deze uitgangspunten en de grondwaarden uit de Handreiking kwaliteitsverbetering van het landschap is een berekening gemaakt van de waardevermeerdering. De resultaten van de berekening laten zien dat er voor het totale plangebied sprake is van een waardevermeerdering van circa € 14.120- als gevolg van de ontwikkeling. Dit betekent dat er een extra investering van € 2.824,- in de kwaliteitsverbetering van het landschap noodzakelijk is.

Landschappelijke inpassing

In het kader van het planvoornemen vindt er landschappelijke inpassing van het plangebied plaats. De landschappelijke inpassing bestaat uit een robuuste houtsingel aan de noordzijde van het plangebied. De oost-, zuid- en westzijde wordt omzoomd door een beukenhaag met landschapsbomen. In het landschappelijk inpassingsplan is door middel van berekening aangetoond dat met het plan voldoende in de noodzakelijke investering voor kwaliteitsverbetering wordt voldaan.

afbeelding "i_NL.IMRO.1652.Buitengebied122023-ON01_0009.png"

Figuur 3.2.5 Landschappelijk inpassingsplan (bron: Agron Advies)

De functieaanduiding ‘agrarisch verwant’ dient gewijzigd te worden in de aanduiding ‘stalhouderij’ zodat de ontwikkeling van een stal-/ paardenhouderij mogelijk is. Tevens dient het bestemmingsvlak vergroot te worden, zodat alle beoogde voorzieningen binnen de bestemming ‘Bedrijf’ komen te liggen. Vergroting van het bestemmingsvlak is noodzakelijk om benodigde voorzieningen voor de stal-/ paardenhouderij compact te situeren en voor de bedrijfsvoering op de meest ideale plek.

3.3 Dr. de Quayweg 84, De Mortel

3.3.1 Aanleiding en situatie

De locatie Dr. de Quayweg 84 betreft in de huidige situatie een agrarisch bedrijf in de vorm van een productiegerichte paardenhouderij (paardenfokbedrijf). Initiatiefnemer wenst deze locatie verder te ontwikkelen tot een volwaardige stalhouderij/ paardenhouderij, waar naast de fokkerij ook diverse andere activiteiten met paarden worden verricht, zoals trainen en africhten, en een veterinair station aanwezig is. Hiertoe worden een aantal extra voorzieningen gerealiseerd, zoals een aantal extra paddocks en een rijbak.

De gewenste ontwikkeling is in strijd met de regels van het bestemmingsplan. Binnen de huidige regels van het bestemmingsplan is de ontwikkeling van een paardenhouderij in de gewenste vorm niet mogelijk. De enkelbestemming ‘Agrarisch – Agrarisch bedrijf’ dient gewijzigd te worden om de beoogde ontwikkeling mogelijk te maken. Tevens dient het bestemmingsvlak vergroot te worden om zo de beoogde bebouwing binnen het bestemmingsvlak te kunnen situeren.

3.3.2 Locatie

Het plangebied ligt binnen de grenzen van de gemeente Gemert-Bakel, op een afstand van circa 2,9 km ten noordoosten van de kern De Mortel. Het plangebied maakt deel uit van de percelen die kadastraal bekend zijn als gemeente Gemert, sectie G, nummer 1479 (gedeeltelijk), 1588, 1589, 1590 en 1690. Aan de westzijde wordt het plangebied begrensd door een zijtak van de weg Dr. de Quayweg. Aan de overige zijden wordt het plangebied begrensd door eigen landbouwgronden.

In onderhavige situatie bestaat het plangebied uit het beoogde bouwvlak en de omliggende gronden waarop de realisering is voorzien van de bijbehorende voorzieningen, zoals de te realiseren natuurlijke vijver, rijbak, paddocks en ontsluiting van het perceel aan de noordzijde op de Breemhorstsedijk.

De directe omgeving van het plangebied heeft een agrarisch karakter en wordt gekenmerkt door verspreid liggende agrarische bedrijven, niet-agrarische bedrijven en burgerwoningen.

afbeelding "i_NL.IMRO.1652.Buitengebied122023-ON01_0010.png"

Figuur 3.3.1 Luchtfoto ligging plangebied (rood omkaderd) (bron: Agron Advies)

Op het plangebied is het bestemmingsplan ‘Gemert-Bakel Buitengebied 2017’ (vastgesteld op 5 juli 2018) van toepassing inclusief herzieningen en parapluplannen. Het plangebied heeft hierin deels de enkelbestemming ‘Agrarisch-Agrarisch bedrijf’ en deels de enkelbestemming ‘Agrarisch’. Tevens is een deel van het plangebied gelegen binnen de gebiedsaanduiding ‘overige zone – beperkingen veehouderij’ en is een deel van het plangebied gelegen binnen de bestemming ‘Verkeer’.

afbeelding "i_NL.IMRO.1652.Buitengebied122023-ON01_0011.png"

Figuur 3.3.2 Uitsnede verbeelding bestemmingsplan ‘Gemert-Bakel Buitengebied 2017’ (plangebied rood omkaderd) (bron: Agron Advies)

3.3.3 Huidige situatie

De locatie Dr. de Quayweg 84 betreft een agrarisch bedrijf waar in de bestaande situatie een paardenfokkerij gevestigd is. In de bestaande situatie is binnen het plangebied de volgende bebouwing aanwezig:

  • Paardenstallen;
  • Rij- en trainingshal;
  • Hooiopslag;
  • Stapmolen;
  • Longeerpiste;
  • Mestopslag;
  • Spuitplaats;
  • Werktuigenberging;
  • Bijbehorende voorzieningen zoals zadelkamer, kantoor en kantine;
  • Verblijf voor stagiaires;
  • Bedrijfswoning.

Op het buitenterrein zijn een rijbak c.q. piste aanwezig en een aantal paddocks (omheind perceel voor het buiten huisvesten van paarden). Voor onderhavig bedrijf is een melding Activiteitenbesluit van toepassing voor de huisvesting van 99 paarden. Het huidige bestemmingsvlak heeft een oppervlakte van 17.287 m².

afbeelding "i_NL.IMRO.1652.Buitengebied122023-ON01_0012.png"

Figuur 3.3.3 Bestaande situatie (bron: Agron Advies)

3.3.4 Het plan

Onderhavige ontwikkeling ziet op het verder uitbreiden van de activiteiten en optimaliseren van de huidige bedrijfsvoering. Dit betreft de afronding van de bestaande stalhouderij/ paardenhouderij. Verdere uitbreidingen in de toekomst zijn niet aan de orde. In het bestemmingsplan zijn regels opgenomen met betrekking tot onder andere oppervlakte aan bedrijfsgebouwen en bijbehorende voorzieningen zoals paddocks.

In de beoogde situatie richt het bedrijf zich niet meer enkel op het fokken van paarden. De stalhouderiji/ paardenhouderij is in de beoogde situatie in hoofdzaak gericht op het stallen, africhten, het opleiden en het trainen van paarden, met name voor de springsport. In de laatste decennia is de springsport en de daarmee samenhangende handel in toppaarden enorm geïnternationaliseerd (topsport) binnen Nederland. Het opleidings- en trainingsniveau van zowel ruiter als paard is in Nederland zeer hoog. De paardenhouderij/ hippische sector heeft zicht de laatste jaren enorm ontwikkeld in het gebied Brussel – Eindhoven – Aken.

Het aantal te huisvesten paarden blijft gelijk aan de huidige situatie, te weten 99 stuks paarden. Naast het fokken, opleiden en trainen van paarden gaat het bedrijf zich verder ontwikkelen c.q.. specialiseren in de volgende activiteiten:

  • Veterinaire merriebegeleiding;
  • Hengstenhouderij.

Bij veterinaire merriebegeleiding wordt de merrie binnen het bedrijf aan de Dr. De Quayweg 84 gehuisvest. De veterinaire handelingen met betrekking tot de te insemineren merrie op het bedrijf worden uitgevoerd door een dierenarts. De merrie wordt verder begeleid gedurende het dekseizoen. Deze begeleiding bestaat uit het bepalen van de beste tijd voor kunstmatige inseminatie/ natuurlijk dekking en begeleiding hiervan tot de merrie drachtig is en de hartslag van het veulen in beeld is gebracht. De begeleiding kan variëren van een eicontrole tot bacteriologisch onderzoek en low-dose inseminatie. Bij deze merriebegeleiding wordt gebruik gemaakt van de eigen hengsten binnen het bedrijf.

Daarnaast wordt het bedrijf verder geoptimaliseerd op het gebied van dierwelzijn en op het gebied van trainingsfaciliteiten. Er worden een aantal extra paddocks gerealiseerd voor het buiten kunnen huisvesten van de paarden waarmee de paarden meer bewegingsvrijheid krijgen en meer natuurlijk gedrag vertonen. De paddocks zijn voorzien van een hekwerk met een hoogte van 2,0 m, de weiden rondom het bedrijf zijn voorzien van een hekwerk met een hoogte van 1,5 m. De hoogte van 2,0 m is noodzakelijk, omdat binnen deze paddocks ook springpaarden en hengsten worden gehuisvest. Voor hengsten dient de hoogte extra hoog te zijn ten opzichte van de normale, reguliere hoogte van een paddock.

Ook worden twee extra rijbakken/ pistes gerealiseerd waardoor de trainings- en sportfaciliteiten verder worden uitgebreid en er meer ruimte ontstaat voor het trainen van de springpaarden. Een rijbak is de belangrijkste voorziening voor het africhten en/of trainen van paarden. Om deze reden is binnen het bedrijf behoefte aan extra rijbakken. Hierdoor kunnen de trainingsfaciliteiten verder worden uitgebreid. Een van de twee nieuw op te richten rijbakken wordt voorzien van lichtmasten zodat deze ook in de winterperiode in de avond gebruikt kan worden. Deze rijbak wordt binnen het beoogde bestemmingsvlak gesitueerd.

Gezien de huidige omvang van het bedrijf in relatie tot het aantal te huisvesten paarden en de activiteiten die worden verricht is het voor het bedrijf van belang om over meer ruimte te beschikken voor het huisvesten en trainen van de paarden. De paddocks worden gerealiseerd, zoals reeds beschreven, om de paarden meer buitenruimte te kunnen bieden. De rijbakken worden gerealiseerd om de trainingsfaciliteiten verder uit te kunnen breiden.

Tevens wordt middels onderhavige procedure de ontsluiting aan de noordzijde van het bedrijf, naar de Breemhorstsedijk, planologisch vastgelegd middels een functieaanduiding. Deze ontsluiting wordt gebruikt door het bedrijf om op veilige wijze het natuurgebied Stippelberg en het daarin aanwezige ruiternetwerk te kunnen bereiken.

Verder vindt er landschappelijke inpassing van het plangebied plaats overeenkomstig de uitgangspunten van de Handreiking Kwaliteitsverbetering van het landschap. Ten westen van de bedrijfslocatie wordt een natuurvijver aangelegd. De natuurlijk ingerichte vijver heeft een multifunctionele functie. Ten eerste, doet de natuurvijver dienst als thuis voor bijvoorbeeld amfibieën, vogels en reptielen. Ten tweede wordt deze gebruikt ten behoeve van infiltratie van het hemelwater. Ten derde heeft de vijver ook een representatieve functie voor de uitstraling van het bedrijf.

Ten behoeve van het planologisch vast leggen van deze activiteiten en bouwwerkzaamheden dient de bestemming gewijzigd te worden naar stalhouderij en het bestemmingsvlak vergroot te worden tot een oppervlakte van 26.936 m².

Een stalhouderij betreft in deze een bedrijf in hoofdzaak gericht op het, al dan niet in combinatie met het fokken van paarden en/of pony's, (productiegericht en/of gebruiksgericht) houden, africhten, trainen, stallen en verzorgen van paarden, het beoefenen van paardensport, het geven van lessen ten behoeve van de paardensport, het bieden van veterinaire merriebegeleiding, inclusief inseminatie en het daarvoor houden van hengsten.

De ontsluiting van het plangebied aan de noordzijde, de paddocks en de natuurlijke vijver blijven bestemd als ‘agrarisch’. Een deel van de natuurlijke vijver wordt gerealiseerd binnen de huidige bestemming ‘verkeer’. Deze bestemming dient gewijzigd te worden naar de bestemming ‘agrarisch’. De natuurlijke vijver in de vorm van een amfibieënpoel is passend binnen de bestemming ‘agrarisch’. De voor ‘agrarisch’ aangewezen gronden zijn namelijk mede bestemd voor waterhuishoudkundig voorzieningen en ontwikkeling en instandhouding van natuur en landschap. Deze voorzieningen krijgen op de verbeelding behorende bij het bestemmingsplan een specifieke aanduiding. In de regels van het bestemmingsplan wordt opgenomen dat het hekwerk van de paddocks maximaal 2,0 meter hoog mag zijn.

Daarnaast wordt een binnen het beoogde bestemmingsvlak een houtopslag opgericht. Wat betreft beeldkwaliteit dient dit bouwwerk te voldoen aan de randvoorwaarden zoals beschreven in het beeldkwaliteitsplan buitengebied.

afbeelding "i_NL.IMRO.1652.Buitengebied122023-ON01_0013.png" afbeelding "i_NL.IMRO.1652.Buitengebied122023-ON01_0014.png"

Figuur 3.3.4 Beoogde situatie (bron: Agron Advies)

afbeelding "i_NL.IMRO.1652.Buitengebied122023-ON01_0015.png"

Figuur 3.3.5 Huidig bestemmingsvlak (zwarte stippellijn) en beoogde bestemmingsregeling (bron: Agron Advies)

De beoogde bestemming ‘Bedrijf’ met functieaanduiding ‘specifieke vorm van bedrijf – stalhouderij’ is specifiek gericht op bedrijven waar sprake is van een combinatie van een productiegerichte en gebruiksgerichte paardenhouderij. In de praktijk is er namelijk veelal sprake van een mengvorm. Dit betreffen paardenhouderijen die zich richten op het africhten, het opleiden, het trainen alsmede het opvangen en stallen van paarden al dan niet combinatie met het fokken van paarden en/of pony's. Onder deze vorm van paardenhouderij wordt geen manege verstaan.

Landschappelijke inpassing

De ontwikkeling dient te voldoen aan de eis van een omvang van landschappelijke inpassing van 20% van de omvang van het bestemmingsvlak waarbij de landschappelijke inpassing dient te voldoen aan het beeldkwaliteitsplan. Het bestemmingsvlak heeft in de beoogde situatie een oppervlakte van 26.937m². Dit betekent dat een oppervlakte van circa 5.390 m² aan beplanting aanwezig dient te zijn. Op basis hiervan en de randvoorwaarden uit het beeldkwaliteitsplan is een landschappelijk inpassingsplan opgesteld voor de locatie Dr. de Quayweg 84.

Onderhavige ontwikkeling, vormverandering van het bestemmingsvlak en de vestiging van een paardenhouderij betreft een categorie 2-ontwikkeling (‘Ruimtelijke ontwikkelingen waarbij een investering in de kwaliteitsverbetering van het landschap wordt verlangd’). Dit betekent dat naast de vereiste basisinspanning, bestaande uit een landschappelijke inpassing met een omvang van 20% van de omvang van het bestemmingsvlak, een aanvullende kwaliteitsverbetering van het landschap is vereist. Dit houdt in dat 20% van de waardevermeerdering van de gronden dient te worden geïnvesteerd in de kwaliteitsverbetering van het landschap. In de huidige situatie is sprake van de bestemming ‘Agrarisch – Agrarisch bedrijf’. In de beoogde situatie wordt bestemming gewijzigd naar de bestemming ‘Bedrijf’ met de functieaanduiding ‘specifieke vorm van bedrijf – paardenhouderij’. Daarnaast wordt het bestemmingsvlak vergroot. Op basis van deze uitgangspunten en de grondwaarden uit de Handreiking kwaliteitsverbetering van het landschap is een berekening gemaakt van de waardevermeerdering. De resultaten van de berekening laten zien dat er voor het totale plangebied sprake is van een waardevermeerdering van circa € 192.980,- als gevolg van de ontwikkeling. Dit betekent dat er een extra investering van € 38.596,- in de kwaliteitsverbetering van het landschap noodzakelijk is. Met de beoogde landschappelijke inpassing wordt hierin voorzien.

afbeelding "i_NL.IMRO.1652.Buitengebied122023-ON01_0016.png"

Figuur 3.3.6 Landschappelijk inpassingsplan (bron: Agron Advies)

3.4 Fuik 24, Handel

3.4.1 Aanleiding en situatie

Initiatiefnemer is eigenaar van het agrarische bouwperceel op de locatie Fuik 24 te Handel. Op deze locatie was in het verleden sprake van een champignonkwekerij. De champignonkwekerij is echter reeds gestaakt. Ter plaatse wordt al sinds circa 20 jaar een niet-agrarisch bedrijf gevoerd in de vorm van een handelsonderneming gespecialiseerd in de ontwikkeling en installatie van roer- en mengsystemen voor met name de agrarische industrie. Beoogd wordt dan ook om de agrarische bestemming te herbestemmen naar een bedrijfsbestemming ten behoeve van het ter plaatse gevestigde niet-agrarisch bedrijf. Bij dit bedrijf vindt bovendien buitenopslag van producten van het bedrijf plaats. Uitbreiding van de bedrijfsbebouwing is noodzakelijk ten behoeve van de opslag van deze veelal volumineuze goederen. Deze uitbreiding is voorzien aan de achterzijde van het bedrijf. Daarnaast wordt beoogd een nieuwe bedrijfswoning te realiseren ten noordwesten van de bestaande bebouwing, ter vervanging van de nu nog inpandige bedrijfswoning.

Met onderhavige ontwikkeling wordt tevens gemotiveerd verzocht om herbegrenzing van de provinciale aanduiding als Natuurnetwerk Brabant (NNB) op grond van artikel 3.21 van de Interim omgevingsverordening Noord-Brabant (Iov). De in de Iov opgenomen begrenzing komt niet overeen met de feitelijke grens tussen het bedrijfsperceel en de omliggende natuurgronden. Herbegrenzing is daarnaast noodzakelijk om de gewenste uitbreiding aan de achterzijde mogelijk te kunnen maken. Per saldo zal hierdoor een deel van de aanduiding NNB komen te vervallen. Daar in de directe nabijheid geen compensatiegronden zijn gelegen, wordt een financiële compensatie geleverd met gebruikmaking van artikel 3.24 Iov.

Om de beoogde herontwikkeling mogelijk te maken, is een bestemmingsplanherziening noodzakelijk.

3.4.2 Locatie

De planlocatie is gelegen aan Fuik 24, in het gebied bekend als De Fuik. De Fuik is gelegen tussen de kernen Handel en Elsendorp, in het buitengebied van de gemeente Gemert-Bakel. De planlocatie bestaat uit een gedeelte van het perceel kadastraal bekend als gemeente Gemert, sectie G, nummer 133. Het kadastraal perceel kent een oppervlakte van 28.490 m². De planlocatie omvat echter niet het gehele kadastrale perceel, maar enkel dat gedeelte waarvan de bestemming wijzigt.

afbeelding "i_NL.IMRO.1652.Buitengebied122023-ON01_0017.png"

Figuur 3.4.1 Ligging plangebied (bron: Crijns Rentmeesters BV)

Ter plaatse van de planlocatie is het bestemmingsplan ‘Buitengebied 1998’ van de gemeente Gemert-Bakel het vigerende bestemmingsplan. De gemeente Gemert-Bakel heeft voor De Fuik in 2013 de ‘Ruimtelijke visie De Fuik’ opgesteld. Beoogd werd om naar aanleiding daarvan een bestemmingsplan op te stellen, waarin de bestaande bedrijvigheid, binnen de mogelijkheden van het provinciale beleid, juridisch planologisch zou worden verankerd. Gezien de diversiteit van de belangen van de verschillende eigenaren is geen algehele bestemmingsplanherziening doorlopen, maar is gekozen voor een afzonderlijke bestemmingsplanprocedure per locatie. Derhalve is het bestemmingsplan ‘Buitengebied 1998’ nog steeds vigerend.

afbeelding "i_NL.IMRO.1652.Buitengebied122023-ON01_0018.png"

Figuur 3.4.2 Uitsnede geldend bestemmingsplan "Buitengebied 1998" (bron: Crijns Rentmeesters BV)

De planlocatie is in het vigerende bestemmingsplan grotendeels bestemd als ‘agrarisch bouwblok’. De omliggende gronden kennen de bestemming ‘agrarisch gebied’. De planlocatie is bestemd voor de uitoefening van één agrarisch bedrijf met bijbehorende voorzieningen, binnen het bouwblok. Herbestemming van het agrarisch bouwblok naar een bedrijfsbestemming met tevens de uitbreiding van het bestemmingsvlak en uitbreiding van het bedrijfsgebouw behoort niet rechtstreeks tot de mogelijkheden binnen de regels van het vigerende bestemmingsplan.

3.4.3 Huidige situatie

Ter plaatse van de planlocatie is sprake van één bouwvolume, bestaande uit verschillende compartimenten. De bestaande bebouwing kent een oppervlakte van circa 2.850 m². Voorheen was de bebouwing in gebruik als champignonkwekerij. Aan de voorzijde van de bedrijfsbebouwing, in het noorden van de planlocatie, is sprake van een kantoor en tevens een inpandige bedrijfswoning. Deze bedrijfswoning is omstreeks 1995 gerealiseerd met als doel als tijdelijke woning te fungeren. Een bedrijfswoning wordt op grond van het vigerende bestemmingsplan Buitengebied 1998 rechtstreeks mogelijk gemaakt.

In het verleden is wel nog een vergunning verleend voor een uitbreiding met 2 champignoncellen aan de achterzijde van de bedrijfsbebouwing. Deze vergunning is niet geëffectueerd maar nog wel overeind. Vergunning-technisch is de bebouwing dan ook circa 600 m² groter.

Met uitzondering van het kantoor, de kantine en de bedrijfswoning, is de bedrijfsbebouwing volledig in gebruik voor het bedrijf van initiatiefnemer. Daarbij is voornamelijk sprake van opslag, maar ook van bewerking en reparatie van onderdelen van roer- en mengsystemen ten behoeve van de agrarische sector, zoals voerfabrieken maar ook intensieve veehouderijen.

Voornamelijk vanwege de schaalvergroting in de agrarische sector maar ook de sanering van veehouderijen is het bedrijf van initiatiefnemer de afgelopen jaren flink gegroeid. De bestaande bebouwing biedt dan ook niet voldoende ruimte voor de huidige bedrijfsvoering. Dit heeft geleid tot buitenopslag rondom de bebouwing, bestaande uit veelal volumineuze goederen.

3.4.4 Het plan

Niet-agrarisch bedrijf

Beoogd wordt een passende herbestemming toe te kennen aan de voormalige agrarische bedrijfslocatie Fuik 24 te Handel. Initiatiefnemer voert ter plaatse al sinds circa 20 jaar een niet-agrarisch bedrijf in de vorm van een handelsonderneming gespecialiseerd in de ontwikkeling en installatie van roer- en mengsystemen voor met name de agrarische industrie. Ter plaatse is sprake van buitenopslag van producten van het bedrijf. Uitbreiding van de bedrijfsbebouwing is dan ook noodzakelijk ten behoeve van de opslag van deze veelal volumineuze goederen.

Beoogd wordt om de agrarische bestemming te herbestemmen naar bedrijfsbestemming ten behoeve van het ter plaatse gevestigde niet-agrarisch bedrijf met een uitbreiding van het bestemmingsvlak en de bedrijfsbebouwing aan de achterzijde van het bedrijf. In de huidige situatie is sprake van circa 2.850 m² aan bedrijfsbebouwing, met een uitbreidingsmogelijkheid van nog eens 600 m². Beoogd wordt om effectief circa 2.000 m² bedrijfsbebouwing toe te voegen tot in totaal circa 4.850 m². Juridisch gezien betreft dit dan ook een uitbreiding van circa 1.400 m² aan bedrijfsbebouwing.

Tevens wordt beoogd een nieuwe bedrijfswoning te realiseren ten noordwesten van de bestaande bebouwing, ter vervanging van de nu nog inpandige bedrijfswoning. Deze bedrijfswoning is reeds bestemmingsplanmatig toegestaan dus juridisch wordt hiermee geen wijziging beoogd.

Met de beoogde uitbreiding van het bedrijfsgebouw wordt een oplossing geboden voor de huidige buitenopslag waarmee de bestaande verrommeling ter plaatse wordt opgelost. Met de beoogde bedrijfsbestemming wordt een passende herbestemming gegeven aan de voormalige agrarische bedrijfslocatie ter plaatse. Ter plaatse worden al vele jaren geen agrarische bedrijfsactiviteiten meer gevoerd. Herbestemming is dan ook een logische stap.

Het agrarisch bouwvlak ter plaatse van de planlocatie kan komen te vervallen. Een passende andere bestemming wordt toegekend in de vorm van een bedrijfsbestemming. De beoogde bedrijfsbestemming zal een oppervlakte kennen van circa 9.820 m² met circa 4.850 m² aan bedrijfsbebouwing en een vrijstaande bedrijfswoning. De bedrijvigheid valt binnen de milieucategorie 3.1, dit zal bestemmingsplanmatig worden verankerd. De gronden rondom de bebouwing worden bestemd naar ‘Natuur’, overeenkomstig het ter plaatse gevestigde NNB. Deze gronden krijgen tevens de functieaanduiding ‘bos’. Ten oosten van de bebouwing is reeds sprake van landschappelijke inpassing. Deze wordt onder de bestemming ‘Groen’ gebracht. Vastgelegd wordt ook dat de aanduiding NNB ter plaatse van de beoogde bedrijfsbestemming in de Interim omgevingsverordening komt te vervallen.

Landschappelijke inpassing

Voor wat betreft de landschappelijke inpassing dient te worden aangesloten op het gemeentelijke "Beeldkwaliteitsplan Buitengebied" van oktober 2016. De planlocatie is gelegen binnen het ‘kampenlandschap met oude akkers’. Het beleid van de gemeente is er dan ook op gericht om het oorspronkelijke aaneengesloten groene en kleinschalige karakter van het kampenlandschap te behouden en te versterken. Dit betekent het toevoegen van lijnvormige landschapselementen, zoals houtwallen en -singels, aan de nog aanwezige landschapselementen in het landschap.

Met de beoogde herontwikkeling wordt de planlocatie verder landschappelijk ingepast. Het westen grenst aan een recreatiepark. Deze zijde zal worden ingepast met een houtwal over een breedte van 10 meter aan de voorzijde en 26 meter richting het zuiden, bestaande uit streekeigen beplanting als zomereik, ruwe berk, haagbeuk en beuk als boomvormers en bijvoorbeeld krentenboompje, hazelaar, hulst, braam, hondsroos, gewone vlier en Gelderse roos als struikvormers. Het noorden van de planlocatie wordt ingepast met een knip- en scheerhaag bestaande uit veldesdoorn, beuk en/of haagbeuk. Het oosten van de planlocatie is reeds van het buurperceel afgescheiden middels streekeigen bomen met kluit. Dit in de vorm van voornamelijk appel en kers. Indien deze bomenrij wordt uitgebreid wordt aangesloten bij de toe te passen soorten voor het ‘Kampenlandschap met oude akkers’. Gedacht wordt dan aan bijvoorbeeld zwarte els en zomereik. De gronden binnen de bestemming ‘Natuur’ zullen niet worden gebruikt als ‘tuin’. Ook zal in overleg met de provincie Noord-Brabant een bosbeheerplan worden opgesteld, waarmee de duurzaamheid van het bos wordt gewaarborgd.

afbeelding "i_NL.IMRO.1652.Buitengebied122023-ON01_0019.png"

Figuur 3.4.3 Beoogde landschappelijke inpassing en herontwikkeling (bron: Crijns Rentmeesters BV)

Ontsluiting en parkeren

De planlocatie is gelegen aan het einde van een doodlopende weg. Als gevolg van de beoogde herontwikkeling zullen de vervoersbewegingen niet toenemen. De beoogde herontwikkeling heeft dan ook geen effect op de verkeersbewegingen in de omgeving.

De planlocatie is op drie plekken ontsloten op de Fuik. De meest linker ontsluiting kent een breedte van circa 6 meter en dient ten behoeve van het in- en uitrijden van grotere voertuigen. De middelste ontsluiting dient ten behoeve van parkeren en manoeuvreren van personeel, bezoekers en leveranciers. De meest rechtse ontsluiting wordt in de huidige situatie voor meerdere doeleinden gebruikt, maar wordt in de beoogde situatie enkel voorzien voor privé gebruik naar de beoogde bedrijfswoning.

Parkeren dient plaats te vinden op eigen terrein. Hiervoor wordt de Nota Parkeernormen 2017 van de gemeente Gemert-Bakel in acht genomen. Voor een vrijstaande woning in het buitengebied geldt een parkeernorm van 2,4 parkeerplaatsen per woning. Hiervoor is ter plaatse van de bedrijfswoning voldoende ruimte.

Voor een arbeidsextensief bedrijf in het buitengebied geldt een parkeernorm van 0,8 parkeerplaatsen per 100 m² bedrijfsvloeroppervlakte. Voor een totale oppervlakte van 4.850 m² in de beoogde situatie zou derhalve voorzien moeten worden in 38,8 (39) parkeerplaatsen. Echter, kan hier maatwerk worden geleverd, daar ter plaatse voornamelijk sprake is van opslag van veelal volumineuze goederen en ter plaatse niet over de volle oppervlakte bedrijfsgebouwen arbeid wordt verricht. Initiatiefnemer is zelf werkzaam bij het bedrijf, met daarnaast nog maximaal 5 werknemers. Ruimte wordt daarnaast geboden voor 2 parkeerplaatsen voor bezoekers zoals vertegenwoordigers. Derhalve kan worden volstaan met 7 parkeerplaatsen ten behoeve van de bedrijfsvoering. De planlocatie biedt hiertoe ruim voldoende ruimte.

3.4.5 Kleinschalige herbegrenzing NNB

Vastgelegd wordt ook dat de aanduiding NNB ter plaatse van de beoogde bedrijfsbestemming in de Iov komt te vervallen. Ter plaatse van de planlocatie is het aangeduide NNB gelegen rondom de bestaande bebouwing. Binnen deze aanduiding is echter geen sprake van natuurwaarden. Ter plaatse wordt beoogd de huidige bedrijfsbebouwing uit te breiden en daarmee ook de agrarische bestemming om te zetten naar een bedrijfsbestemming. Deze mogelijkheid wordt geboden op grond van artikel 3.21 van de Iov. Door de herbegrenzing komt 3.865 m² aan NNB te vervallen. Daarbij is getoetst dat aan de voorwaarden voor kleinschalige herbegrenzing van het NNB wordt voldaan.

afbeelding "i_NL.IMRO.1652.Buitengebied122023-ON01_0020.png"

Figuur 3.4.4 Beoogde planologische situatie, met daarop het te herbegrenzen gedeelte van het NNB aangeduid (bron: Crijns Rentmeesters BV)

Artikel 3.21 Kleinschalige herbegrenzing

Lid 1 Een bestemmingsplan kan een ontwikkeling binnen Natuur Netwerk Brabant mogelijk maken in het geval dat:

a. de aantasting van areaal Natuur Netwerk Brabant kleinschalig is

Het op de kaart aangeduide NNB is direct rondom de bestaande bebouwing gelegen. Ter plaatse is echter geen sprake van natuurwaarden, maar de gronden zijn thans in gebruik voor de bedrijfsactiviteiten van initiatiefnemer. Ter plaatse is enkel sprake van buitenopslag, waarbij natuurwaarden niet aanwezig zijn. De aantasting van het areaal NNB is hier nihil.

b. de ontwikkeling slechts leidt tot een beperkte aantasting van de ecologische waarden en kenmerken van het Natuur Netwerk Brabant

De herbegrenzing leidt niet tot een aantasting van de ecologische waarden en kenmerken van het NNB. Geen sprake is van ecologische waarden of kenmerken van het NNB.

c. de ontwikkeling leidt tot een kwalitatieve of kwantitatieve versterking van de ecologische waarden en kenmerken van het Natuur Netwerk Brabant als geheel

In samenhang met de herbegrenzing wordt de planlocatie verder landschappelijk ingepast en ter plaatse bestemd naar ‘Natuur’. In de huidige situatie is er geen sprake van natuurwaarden op het perceel. Daarnaast vindt financiële compensatie plaats, waarmee op een passende locatie geïnvesteerd wordt in het NNB. Met financiële compensatie wordt elders hoogwaardige natuur ontwikkeld en beheerd.

d. er een afweging van alternatieven heeft plaatsgevonden

De herbegrenzing is een logisch gevolg van het oplossen van de bestaande buitenopslag waarmee de verrommeling ter plaatse wordt opgelost. Als gevolg van de beoogde herontwikkeling zal geen sprake meer zijn van buitenopslag, waarmee de planlocatie wordt opgeruimd. De noodzaak voor uitbreiding van de bedrijfsbebouwing is groot. Gewerkt wordt met volumineuze producten, welke de ruimte voor opslag en verwerking nodig hebben. Dit soort bedrijvigheid heeft ook een zodanige link met de agrarische sector, dat verplaatsing naar een bedrijventerrein niet passend zou zijn. Deze bedrijfsvorm, in een voormalig agrarisch gebied is een passende ontwikkeling in de omgeving.

e. er sprake is van een goede landschappelijke en natuurlijke inpassing

Met deze herbestemming is sprake van een goede landschappelijke en natuurlijke inpassing. Dit is in deze toelichting nader toegelicht. Eén en ander is ook vastgelegd in de gesloten anterieure overeenkomst tussen initiatiefnemer en gemeente. De landschappelijke inpassing kan eveneens gekoppeld worden aan de regels behorende bij het bestemmingsplan waar deze onderbouwing onderdeel van uit maakt.

f. er bij verlies van ecologische waarden en kenmerken wordt voldaan aan artikel 3.22 Compensatie

Er is geen sprake van verlies van ecologische waarden en kenmerken, daar ter plaatse geen enkele sprake is van waarden. Zo ver als de geschiedenis van initiatiefnemer ter plaatse van de planlocatie reikt, hebben zich ter plaatse geen ecologische waarden en kenmerken bevonden. Desondanks vindt compensatie plaats conform artikel 3.22 van de Interim omgevingsverordening.

g. op welke wijze de uitvoering en monitoring zijn verzekerd.

De gemeente Gemert-Bakel voert de procedure voor de herbegrenzing uit in samenhang met de bestemmingsplanprocedure waarvan deze ontwikkeling onderdeel uitmaakt. Aanleg en instandhouding van de robuuste landschappelijke inpassing is als voorwaardelijke verplichting verankerd in het bestemmingsplan. Hiermee is wijze van uitvoering en monitoring duurzaam verzekerd.

Lid 2

Voor een bestemmingsplan als bedoeld in het eerste lid doen burgemeester en wethouders een verzoek als bedoeld in artikel 6.2 Procedure grenswijziging werkingsgebied op verzoek.

De procedure vindt gelijktijdig met de bestemmingsplanherziening plaats. Na de zienswijzentermijn zal het college een verzoek tot herbegrenzing doen bij Gedeputeerde Staten van Noord-Brabant.

Artikel 3.22 Compensatie

Omdat het artikel 3.21 niet bedoeld is voor het omzeiling van het beschermingsregime van de NNB dient compensatie plaats te vinden bij kleinschalige ontwikkelingen binnen de NNB. Dit kan plaatsvinden door fysieke of financiële compensatie. Deze compensatie wordt verder uitgewerkt in artikel 3.23 (Fysieke compensatie) en artikel 3.24 (Financiële compensatie).

Conform artikel 3.22, tweede lid, is de omvang van de compensatie bepaald door de omvang van het vernietigde of verstoorde areaal en de ontwikkeltijd van de aangetaste natuur. Daartoe wordt gekeken naar de natuurbeheertype dat ter plaatse verloren gaat. Het NNB ter plaatse van de planlocatie bestaat conform het Natuurbeheerplan uit ‘Droog bos met productie’ (N16.03).

Er is geen sprake van natuur binnen de planlocatie. Er is nooit subsidie verleend voor aanleg of instandhouding. De planlocatie is niet aangelegd of beheerd als bos. Voor een dergelijk natuurbeheertype geldt niettemin een ontwikkeltijd van 10 tot 25 jaar. Op basis van artikel 3.22, tweede lid onder b geldt hier een toeslag voor compensatie van 1/3 in oppervlak.

Er is geen sprake van verlies van ecologische waarden en kenmerken, daar ter plaatse geen enkele sprake is van waarden. Zo ver als de geschiedenis van initiatiefnemer ter plaatse van de planlocatie reikt, hebben zich ter plaatse geen ecologische waarden en kenmerken bevonden. Desondanks vindt compensatie plaats conform artikel 3.22 van de Interim omgevingsverordening.

Artikel 3.24 Financiële compensatie

In samenhang met herbestemming van het plangebied vindt financiële compensatie plaats conform artikel 3.24 Interim omgevingsverordening Noord-Brabant. De berekening dient onderdeel uit te maken van de toelichting op het bestemmingsplan. De verplichting om financieel te compenseren vloeit rechtstreeks voort uit de Iov en ontstaat zodra het bestemmingsplan is vastgesteld door de gemeenteraad. De financiële compensatie wordt gestort in de provinciale compensatievoorziening.

Binnen de planlocatie komt 3.865 m² aan NNB te vervallen. Binnen de gemeente is door initiatiefnemer reeds 1.500 m² gecompenseerd, waarvoor geen subsidie is verkregen. Daarmee resteert nog 2.365 m² te compenseren NNB. De planlocatie is aangeduid als ‘bestaande natuur door derden’. Als natuurbeheertype is opgenomen ‘Droog bos met productie’ (N16.03)’. Er is geen sprake van natuur binnen het plangebied. Er is nooit subsidie verleend voor aanleg of instandhouding. De planlocatie is niet aangelegd of beheerd als bos. De ontwikkeltijd van de natuur bedraagt 10 tot 25 jaar. Met een toeslag van 1/3 dient financiële compensatie plaats te vinden met een omvang van 3.153 m². De berekende financiële compensatie bij herbegrenzing van de planlocatie bedraagt € 31.763,-.

Conform artikel 3.24, tweede lid van de Interim omgevingsverordening wordt dit bedrag uiterlijk zes weken na vaststelling van het bestemmingsplan gestort in het provinciale compensatievoorzieningfonds, waarmee de provincie elders zorg kan dragen voor compensatie van het NNB. Afspraken hierover worden vastgelegd tussen initiatiefnemer, gemeente en/of provincie. Eén en ander wordt contractueel vastgelegd waarmee de afspraken vastliggen.

3.5 Kapelweg ong., Handel

3.5.1 Aanleiding en situatie

Initiatiefnemers zijn eigenaar van een agrarisch perceel aan de Kapelweg in Handel. Zij hebben het plan opgevat om op dit perceel in het buitengebied een nieuwe vrijstaande woning te bouwen. Om de woning te kunnen bouwen is een herziening van het bestemmingsplan nodig. In een ruimtelijke onderbouwing dient te worden aangetoond dat voldaan wordt aan de vereiste van een goede ruimtelijke ordening.

3.5.2 Locatie

De locatie is gelegen direct ten oosten van de kern Handel, ten zuiden van het processiepark. De locatie is kadastraal bekend gemeente Gemert, nummer B.2580. Het perceel heeft een oppervlakte van ongeveer 5.100 m2. Op het perceel zijn enkele schuurtjes en dierenverblijven aanwezig. Ten westen van de planlocatie is in het recente verleden een nieuwe woning gebouwd en ook ten oosten van de planlocatie is in recente jaren een woning gebouwd.

afbeelding "i_NL.IMRO.1652.Buitengebied122023-ON01_0021.png"

Figuur 3.5.1 Kadastrale aanduiding en luchtfoto (bron: kadastralekaart.com). In geel het plangebied.

Toetsingskader is het bestemmingsplan ‘Buitengebied Gemert-Bakel 2017’. Daarin heeft de locatie de bestemming ‘Agrarisch’ met een dubbelbestemming ‘Waarde – oude akker’ en deels ‘Waarde – archeologie 5’. Het realiseren van een nieuwe woning is niet toegestaan binnen de planregels van dit bestemmingsplan. Om de woning te kunnen realiseren is een herziening van het bestemmingsplan nodig. Om te beoordelen of het plan voldoet aan de vereiste van een goede ruimtelijke ordening dient het getoetst te worden aan het bestaand ruimtelijk beleid en aan enkele planologische en milieuhygiënische uitvoeringsaspecten om aan te tonen dat sprake is van een goed woon- en leefklimaat en dat het plan uitvoerbaar is.

afbeelding "i_NL.IMRO.1652.Buitengebied122023-ON01_0022.png"

Figuur 3.5.2 Verbeelding geldend bestemmingsplan ‘Buitengebied Gemert-Bakel 2017’ (bron: ruimtelijkeplannen.nl)

3.5.3 Huidige situatie

Historische structuur

Het landschap in en om Handel wordt bepaald door breuken in de ondergrond. Een zone met breuken in oostelijk Brabant scheidt de Peelhorst in het oosten van de Roerdalslenk in het westen. Langs de breuklijnen bewegen de aardlagen ten opzichte van elkaar. De Peelhorst komt langzaam hoger te liggen en de Roerdalslenk daalt tegelijkertijd. De breukzone bestaat niet uit één enkele breuk, maar uit meerdere min of meer parallelle breuklijnen. De belangrijkste breuklijn is de Peelrandbreuk en die loopt aan de westkant van Handel. Oostelijk daarvan is de Breuk van Handel actief. De dorpskom van Handel ligt tussen deze twee breuklijnen, midden in de breukzone. De horst ten oosten van de Breuk van Handel ligt hoger dan Handel zelf. Aan de rand van de dorpskom loopt de weg omhoog.

De planmatige uitbreiding van Handel heeft zich vooral voltrokken in westelijke richting. Aan de oostelijke zijde van Handel is vooral lintbebouwing aan de Kapelweg ontwikkeld.

Stedenbouwkundige en functionele structuur

Vanuit de kern Handel vormt de Kapelweg een bebouwingslint dat met name in westelijke richting behoorlijk is verdicht in de loop der jaren. Het betreft voornamelijk burgerwoonbestemmingen. Tegen de kern Handel valt het ‘kasteeltje’ op dat in recente jaren is gebouwd en aan de noordzijde van de Kapelweg ligt de bosrijke zone van het Processiepark. Ter plaatse van de planlocatie staan enkele verrommelde schuurtjes, enig doorzicht naar het achtergelegen landelijk gebied wordt ook bemoeilijkt door een houtwal en ligusterhaag.

3.5.4 Het plan

Het plan behelst de bouw van een vrijstaande woning met bijgebouw op het perceel. Teneinde de zichtlijnen en groene ruimte nog meer te versterken wordt de ligusterhaag die nu het zicht blokkeert, verwijderd, ook bij het naburige perceel. Er ontstaat zo een landschapsvenster van tenminste 50 meter. Aangezien de grond waar deze haag (en het hekwerk) op staat, eigendom is van de gemeente maar al jaren in gebruik is door de particuliere eigenaren van de gronden onder wie initiatiefnemer, wordt overleg gevoerd over gebruik en eigendom van deze strook. Het voorterrein en het terrein oostelijk van de nieuwe woning krijgt een relatief open karakter, met lage hagen of een houten hekwerk.

afbeelding "i_NL.IMRO.1652.Buitengebied122023-ON01_0023.png"

Figuur 3.5.3 Planschets (bron: Projectaandrijving)

Het plangebied is in de Interim omgevingsverordening aangemerkt als ‘Verstedelijking afweegbaar’. Ook geldt de aanduiding ‘Aardkundig waardevol gebied’ vanwege de ligging nabij de Breuk van Handel. De zone Verstedelijking afweegbaar is bedoeld voor een duurzame afronding van het Stedelijk gebied, oftewel een dorpsuitbreiding. Daarvan is hier geen sprake. Maar aangezien de aanduiding ‘Verstedelijking afweegbaar’ tot stand is gekomen na toepassing van de lagenbenadering is destijds, bij de aanwijzing ervan, geconcludeerd dat op hoofdlijnen de cultuurhistorische, aardkundige en landschappelijke kwaliteiten verstedelijking van deze zone niet in de weg staan. Dan geldt dat ook voor de bouw van slechts één woning.

Verdere verstedelijking oftewel dorpse uitbreiding ligt overigens niet in de rede, juist doordat op het naburige perceel een landgoedachtige ontwikkeling is gerealiseerd, waardoor aansluiting van een eventuele planmatige uitbreiding op het dorp niet logisch meer is. De bouw van een woning past veel meer in de ontwikkelingsrichting van dit gebied dan planmatige uitbreiding.

In de Omgevingsverordening Noord-Brabant, die inmiddels is vastgesteld maar pas in werking treedt zodra de Omgevingswet in werking treedt, komt het begrip ‘Verstedelijking afweegbaar’ niet meer terug. In plaats daarvan worden duurzame stedelijke ontwikkelingen afhankelijk gesteld van de gewenste ontwikkelingsrichting voor het gebied en de mate waarin aantoonbaar een bijdrage wordt geleverd aan de omgevingskwaliteit.

Aangezien planmatige dorpsuitbreiding ter plaatse niet (meer) aan de orde is, wordt het regime van het Landelijk gebied aangehouden. Het bouwen van een nieuwe burgerwoning is ten principale niet toegestaan, tenzij sprake is van een Ruimte-voor-Ruimte ontwikkeling. De regels hiervoor zijn opgenomen in de Iov. De woning kan alleen gebouwd worden op een planologisch aanvaardbare locatie in een bebouwingsconcentratie. Daarvan is in dit geval met de ligging in de lintkernrand aan de zuidkant van de Kapelweg sprake. Er wordt een bouwtitel Ruimte-voor-Ruimte aangekocht.

3.6 Koksedijk 6-10

3.6.1 Aanleiding en situatie

Vanwege het verbod op het houden van nertsen is initiatiefnemer genoodzaakt om te stoppen met de nertsenhouderij. Initiatiefnemer is zich aan het oriënteren op de toekomst en is voornemens om een bedrijf op te richten met betrekking tot opslag voor derden en handel in vrachtwagens aan de Koksedijk 10. In de woning aan de Koksedijk 10 is initiatiefnemer voornemens om een schoonheidssalon te starten als beroep aan huis. De 2e bedrijfswoning (Koksedijk 6) zal in de beoogde situatie worden bewoond door de broer van initiatiefnemer en wordt losgekoppeld van het bedrijf aan de Koksedijk 10. Hij is voornemens in een bijgebouw van circa 300 m2 een beroep aan huis, als personal trainer uit te oefenen. Om de beoogde ontwikkeling te realiseren is herziening van het bestemmingsplan noodzakelijk.

3.6.2 Locatie

De projectlocatie is gelegen aan de Koksedijk 6 en 10 te Gemert. Het betreft (delen van) de kadastrale percelen gemeente Gemert, sectie H, nummers 2440, 2441, 2624, 2824, 2825, 2826 en 2827.

Het bestemmingsplan 'Gemert-Bakel Buitengebied 2017', vastgesteld op 5-07-2018, is van toepassing op de planlocatie. De volgende bestemming en aanduidingen zijn van toepassing op de planlocatie.

  • Enkelbestemming: 'Agrarisch – Agrarisch bedrijf'
  • Functieaanduiding: 'intensieve veehouderij'
  • Maatvoering: 'maximum aantal wooneenheden: 2'
  • Figuur: 'relatie'
  • Gebiedsaanduiding: 'vrijwaringszone – waterloop'

afbeelding "i_NL.IMRO.1652.Buitengebied122023-ON01_0024.png"

Figuur 3.6.1 Geldende bestemmingsregeling (bron: ruimtelijkeplannen.nl)

Met de beoogde ontwikkeling wordt het agrarisch bedrijf beëindigd. Er wordt een bedrijf met betrekking tot opslag van derden, handel in vrachtwagens als beperkte nevenactiviteit en een schoonheidssalon als beroep aan huis opgericht aan de Koksedijk 10. Daarnaast wordt de woning aan de Koksedijk 6 losgekoppeld van het bestemmingsvlak. Er zal hier een woonbestemming met een beroep aan huis als personal trainer worden gerealiseerd.

3.6.3 Huidige situatie

Initiatiefnemer exploiteerde aan de Koksedijk 6 en 10 een nertsenhouderij waar 5.100 fokteven werden gehouden. Op de projectlocatie zijn 2 bedrijfswoningen aanwezig. Direct achter de meest westelijke woning zijn enkele bedrijfsgebouwen gelegen die in gebruik zijn geweest voor het agrarische bedrijf. Achter deze bedrijfsgebouwen zijn de nertsensheds (circa 12.500m2) gelegen. De projectlocatie ligt op circa 1 kilometer ten noordwesten van de kern van Gemert aan de N616. Verder wordt de locatie aan de Koksedijk 6 en 10 voornamelijk omringd door landbouwgronden.

afbeelding "i_NL.IMRO.1652.Buitengebied122023-ON01_0025.png"

Figuur 3.6.2 Luchtfoto planlocatie (bron: Van Dun Advies)

3.6.4 Het plan

Koksedijk 10

Zoals eerder benoemd heeft initiatiefnemer de nertsenhouderij op de planlocatie moeten beëindigen. Initiatiefnemer is voornemens om de volgende bedrijvigheden te starten aan de Koksedijk 10:

  • Een bedrijf voor opslag van derden (hoofdactiviteit)
  • Handel in vrachtwagens (nevenactiviteit)
  • Een schoonheidssalon (beroep aan huis)

Vanwege de verschillende soorten bedrijvigheid zal er in de beoogde situatie aan de Koksedijk 10 een bedrijfsbestemming worden gerealiseerd. Het bedrijf heeft als hoofdtak het verhuren van opslagruimte aan derden. Het bedrijf heeft als neventak een kleinschalige handel in vrachtwagens (voornamelijk showtrucks) en als aparte activiteit vanuit de woning een schoonheidssalon. De vrachtwagens zullen enkel worden opgeslagen op de planlocatie. Er zullen geen onderhouds- of reparatiewerkzaamheden aan de vrachtwagens worden uitgevoerd binnen de planlocatie. Het betreft enkel de opslag en doorverkoop van vrachtwagens als nevenactiviteit. De opslag en stalling van vrachtwagens vindt uitsluitend inpandig plaats, binnen de te handhaven en de nieuw te bouwen bedrijfsgebouwen. De verhuur van opslagruimte is de hoofdtak van het bedrijf.

Aan de Koksedijk 10 wordt dus een bedrijfsbestemming gerealiseerd. Op de planlocatie zal achter de bedrijfswoning, een bedrijfsgebouw (circa 850 m2) worden gerealiseerd voor het bedrijf m.b.t. opslag van derden en handel in vrachtwagens. De bestaande bedrijfsbebouwing zal voor een deel gesloopt worden. De bestaande loods direct achter de woning (580 m2) zal behouden blijven. Alle nertsensheds zullen worden gesloopt met de beoogde ontwikkeling.

In de beoogde situatie wordt er een bedrijfsbestemming gerealiseerd. Het is belangrijk dat er ook een volwaardig bedrijf kan worden geëxploiteerd op deze bedrijfsbestemming. Bij nieuwbouw bij een bedrijfsbestemming geldt een maximale oppervlakte van bedrijfsbebouwing van 600 m2. Het is niet mogelijk om met 600 m2 aan bedrijfsbebouwing een rendabele en volwaardige bedrijfsvoering te exploiteren. Voor enkel de neventakken zou dit nauwelijks voldoende ruimte zijn. Indien er geen bedrijf kan worden geëxploiteerd op de planlocatie, zou dit in strijd zijn met het bestemmingsplan. Het is daarom noodzakelijk om voldoende bedrijfsbebouwing (zijnde 1.430 m2) in gebruik te hebben. Daarnaast gaat de ontwikkeling gepaard met een sloop van circa 1.050 m2 aan bedrijfsbebouwing en circa 13.450 m2 aan nertsensheds. Er wordt in totaal dus 14.500 m2 aan bedrijfsbebouwing gesloopt van de in totaal aanwezige 15.080 m2. Dit betreft een sloop van circa 96% van de bedrijfsbebouwing. Er wordt daarbij wel nog 850 m2 aan nieuwe bedrijfsgebouwen gerealiseerd. In totaal blijft er dus maar (van 15.080 m2 naar 1.430 m2) circa 9% van de bedrijfsbebouwing bestaan. Hoewel er niet wordt voldaan aan de grenswaarden van 600 m2 die is opgenomen in de wijzigingsbevoegdheid, is het wel aanvaardbaar om het beoogde areaal aan bedrijfsbebouwing te realiseren.

Het huidige bestemmingsvlak is groter dan 1 hectare (circa 3,6 hectare). Het bestemmingsvlak zal verkleind worden tot 6.460 m2. Voor de beoogde bedrijfsvoering met betrekking tot de opslag van derden en de handel in vrachtwagens is een groter areaal aan bedrijfsbebouwing nodig. De bedrijfsbebouwing dient binnen het bouwvlak te worden gesitueerd. Echter dient ook de inrit en voortuin binnen de bedrijfsbestemming te worden gerealiseerd zodat de planlocatie ontsloten kan worden. De planlocatie ligt relatief ver van de weg waardoor eerder genoemden ook veel oppervlakte beslaan. Er wordt niet meer dan 5.000 m2 functioneel voor het bedrijf gebruikt. Het is van belang dat de bedrijfsbebouwing kan worden gerealiseerd binnen de bedrijfsbestemming. Indien dit niet gebeurt, zal de beoogde situatie in strijd zijn met het bestemmingsplan. Het is van belang dat de beoogde bedrijfsbebouwing kan worden gerealiseerd, zodat er een rendabele bedrijfsvoering geëxploiteerd kan worden. Zonder rendabele bedrijfsvoering zal de beoogde situatie ook in strijd zijn met het bestemmingsplan. Om deze reden wordt de grenswaarde uit de wijzigingsbevoegdheid van 5.000 m2 niet gehaald.

Koksedijk 6

Het bestemmingsvlak aan de Koksedijk 6 zal worden losgekoppeld van het bestemmingsvlak aan de Koksedijk 10. Ook zal de agrarische bestemming worden gewijzigd in een woonbestemming. De broer van initiatiefnemer zal gaan wonen in de woning aan de Koksedijk 6. Hij heeft een bedrijf als personal trainer. Hij wenst dit bedrijf te kunnen voortzetten op de locatie aan de Koksedijk 6. Om deze reden is initiatiefnemer voornemens om een bijgebouw van 300 m2 te plaatsen. In dit gebouw zullen sportapparaten worden opgeslagen. Het gebouw zal niet gebruikt worden als trainingsruimte. Klanten zullen wel naar de planlocatie kunnen komen om te overleggen over bijvoorbeeld trainingsschema's en oefeningen. Hier zal het bijgebouw onder andere voor worden gebruikt.

Bij de schoonheidssalon en het bedrijf als personal trainer blijft de hoofdfunctie van de woningen de woonfunctie. De werkzaamheden in de woningen zijn aan te merken als beroepen aan huis. De planlocatie zal landschappelijk worden ingepast.

afbeelding "i_NL.IMRO.1652.Buitengebied122023-ON01_0026.png"

Figuur 3.6.3 Beoogde situatie met landschapelijke inpassing (bron: Van Dun Advies)

Landschappelijke inpassing

Op basis van de 'Handreiking Kwaliteitsverbetering van het landschap' is de beoogde ontwikkeling een categorie 2 ontwikkeling. Dit houdt in dat er een landschappelijke inpassing dient te worden gerealiseerd welke minimaal 20% van het bestemmingsvlak voorziet van een landschappelijke inpassing. Ook dient er een aanvullende berekening te worden gerealiseerd in het kader van de kwaliteitsverbetering. Uit de gemaakte berekening blijkt dat de beoogde ontwikkeling niet leidt tot een toename van de waarden van de gronden. Een extra investering is daarom niet noodzakelijk. Wel dient er een landschappelijke inpassing van de planlocatie te worden gerealiseerd bij onderhavige ontwikkeling. In het Beeldkwaliteitplan landelijk gebied Gemert-Bakel is de projectlocatie gelegen in de aanduiding 'Het kampenlandschap met oude akkers'. Kenmerkende landschapselementen betreffen houtwallen- en singels die een aaneengesloten geheel vormen waartussen de erven gelegen waren. Hierdoor kenmerkt het kampenlandschap zich van oudsher door een groen en kleinschalig karakter.

Met de beoogde ontwikkeling wordt een landschappelijk inpassingsplan gerealiseerd. Het landschappelijke inpassingsplan sluit aan bij het kleinschalige en groene karakter in de omgeving. Door beplanting rondom de planlocatie te realiseren wordt de kleinschaligheid benadrukt. Middels de regels wordt geborgd dat het beoogde landschappelijke inpassing wordt gerealiseerd en duurzaam in stand wordt gehouden.

Bodemonderzoek

Op de locatie Koksedijk 10 dient de grond onder de te saneren nertsensheds nog onderzocht te worden. Dit terreindeel dient als verdacht op de aanwezigheid van bodemverontreiniging te worden aangemerkt. Voor de terreindeel dient aanvullend een verkennend bodem- en asbest in grond onderzoek te worden uitgevoerd. Dit onderzoek wordt momenteel voorbereid en zal geheel zijn uitgevoerd voor de vaststelling van het bestemmingsplan. Het uitvoeren van het onderzoek voor de vaststelling van het plan is als voorwaardelijke verplichting in de planregels opgenomen.

3.7 Pandelaar 75, Gemert

3.7.1 Aanleiding en situatie

Initiatiefnemer is eigenaar en bewoner van een woonperceel aan de Pandelaar 75 in Gemert. Hij heeft het plan opgevat om op zijn erf, aan de zuidkant van de bestaande woonboerderij, een nieuwe vrijstaande woning te bouwen. Om de woning te kunnen bouwen is een herziening van het bestemmingsplan nodig.

3.7.2 Locatie

De planlocatie is gelegen aan de noordkant van Gemert, aan de uitvalsweg Pandelaar. Het betreft het kadastraal perceel gemeente Gemert, sectie O nummer 931. Het perceel is 2.900 m2 groot.

afbeelding "i_NL.IMRO.1652.Buitengebied122023-ON01_0027.png"

Figuur 3.7.1 Kadastrale aanduiding en plangebied (bron: kadastralekaart.com)

Toetsingskader is het bestemmingsplan ‘Buitengebied Gemert-Bakel 2017. Daarin heeft het perceel deels de bestemming Wonen en deels de bestemming Agrarisch. Verder zijn van toepassing de dubbelbestemming ‘Waarde-oude akker’ en de gebiedsaanduidingen ‘vrijwaringszone - invloedzone Peelrandbreuk’, ‘vrijwaringszone – molenbiotoop -3’ en (deels) ‘overige zone – beperkingen veehouderij’. Het realiseren van een nieuwe woning is niet toegestaan binnen de planregels van dit bestemmingsplan. Om de woning te kunnen realiseren is een herziening van het bestemmingsplan nodig.

3.7.3 Huidige situatie

Historische structuur

De Pandelaar is een van de oudst bekende namen in Gemert. De weg vormt onderdeel van het prehistorische wegtracé Bakel-Gemert-Erp. Wat bebouwing betreft een karakteristieke uitloper van het dorp Gemert in noordwestelijke richting, met voornamelijk agrarisch gerelateerde bebouwing aan weerszijden van de weg met daarachter het agrarisch achterland. Er kwamen en komen ook een aantal paden vanuit dat achterland uit op de Pandelaar. Direct ten zuiden van de planlocatie is de woonwijk Den Elding gelegen. Er is enige afstand tussen die woningen en de boerderij op Pandelaar 75, maar er is niet of nauwelijks zicht op het open achterland vanwege een houtwal die de planlocatie omringt en de aanwezigheid van een grote schuur die aan het perceel van de buren toebehoort.

Stedenbouwkundige en functionele structuur

De stedenbouwkundige structuur van de Pandelaar is aan de westzijde nog steeds geënt op de historische structuur van het oude dorpslint: een enkelvoudige bebouwingslijn, met daarachter het open landschap. In functioneel opzicht is de oude agrarische functie in de loop der tijd meer en meer naar de achtergrond verdreven. Het merendeel van de gebouwen wordt nu als woning gebruikt, maar er zijn ook andere functies aanwezig, zoals horeca (’t Wevershuisje), een school (Jenaplanschool De Pandelaar), bedrijvigheid (Autoschade Van Houtert) of recreatie (Boerenbondsmuseum). In de loop der jaren heeft op diverse plekken in het bebouwingslint verdichting plaatsgevonden.

3.7.4 Het plan

Namens initiatiefnemer is een plan uitgewerkt voor realisatie van de nieuwe woning, met als startpunt de gemeentelijke randvoorwaarden en aandachtspunten die ten tijde van het principebesluit zijn vastgelegd. Daarmee is een schetsontwerp tot stand gekomen dat als basis kan dienen voor de uitwerking van het bestemmingsplan. Het woonhuis kent een enkelvoudige bouwmassa, waarin een bijgebouw is geïntegreerd. De voorgevel ligt iets terug ten opzichte van de bestaande woning, zodat het een ondergeschikte positie inneemt op het erf. De ruimte tussen de woning en de bebouwing aan Den Elding wordt ingericht als dierenweide en landschappelijke inpassing. Deze zone blijft onbebouwd.

afbeelding "i_NL.IMRO.1652.Buitengebied122023-ON01_0028.png"

Figuur 3.7.2 Ontwerpschets, rood omcirkeld de nieuwe woning (bron: Denkkamer Architectuur en Onderzoek)

Het plangebied is in de Interim omgevingsverordening (Iov) aangemerkt als deels Stedelijk en deels Landelijk gebied. De woning kan worden opgericht binnen de begrenzing van het Stedelijk gebied, zonder ruimtelijk gezien het contact met het bestaande erf te verliezen. Voor de woning binnen het bestaand Stedelijk gebied geldt, dat de gemeente hierbij een hoge mate van beleidsvrijheid heeft. Door de landschappelijke inpassing en de relatie van het nieuwe bouwvolume met het bestaande (compacte) erf wordt invulling gegeven aan de principes van zorgvuldig ruimtegebruik. Door een opnemen van een bouwvlak op de verbeelding wordt bewerkstelligd dat gebouwen binnen de contour van de begrenzing stedelijk gebied worden gebouwd. De buitenste bouwgrens loopt gelijk met deze contour.

afbeelding "i_NL.IMRO.1652.Buitengebied122023-ON01_0029.png"

Figuur 3.7.3 Begrenzing Stedelijk en Landelijk gebied in Iov (bron: ruimtelijkeplannen.nl)

Op de bij het gemeentelijke Afwegingskader bebouwingsconcentraties behorende kaart is te zien dat de planlocatie is gelegen op het snijvlak tussen het bestaand stedelijk gebied en het gehucht/de bebouwingsconcentratie Pandelaar. Dit correspondeert ook met de begrenzing van de werkingsgebieden in de Interim omgevingsverordening. Beide aanduidingen impliceren dat een ‘rode ontwikkeling’ hier is toegestaan, in dit geval het bouwen van een woning.

3.8 Peeldijk 43, Handel

3.8.1 Aanleiding en situatie

Op Peeldijk 43 is een bedrijf gevestigd ten behoeve van de teelt van aardbeien. Voorheen was hier een gemengd bedrijf gevestigd met rundvee en vleesvarkens. In 2018 is het gehele veebestand ingetrokken ten behoeve van omschakeling naar tuinbouwbedrijf. De agrarische gronden op dit perceel zijn in gebruik met teeltondersteunende voorzieningen. De permanente teeltondersteunende voorzieningen zijn noodzakelijk voor de bedrijfsvoering van initiatiefneemster, maar zijn in strijd met de geldende bestemmingsregeling. Initiatiefneemster is voornemens om de permanente teeltondersteunende voorzieningen te legaliseren middels een bestemmingsplanherziening. Waarbij tevens de bestemming van het bouwvlak wordt gewijzigd, waarbij de functieaanduiding ‘intensieve veehouderij’ komt te vervallen.

Verder wil initiatiefneemster de bestaande bebouwing amoveren, met uitzondering van de huidige bedrijfswoning. Aan de westelijke zijde wil initiatiefneemster een nieuwe bedrijfswoning realiseren aan de Heideweg. De voormalige bedrijfswoning zal dienst gaan doen als kantoor. Deze kantoorfunctie zal altijd ten dienste staan van het agrarische bedrijf van initiatiefneemster. De kantoorfunctie is ondergeschikt aan het agrarische bedrijf. Daarnaast wil initiatiefneemster nog een nieuw bedrijfsgebouw realiseren.

3.8.2 Locatie

De planlocatie is gelegen in het buitengebied van de gemeente Gemert-Bakel. Ten zuidoosten van de kern Handel, aan de doorgaande weg (N272) tussen Gemert en Elsendorp. De locatie is kadastraal bekend als gemeente Gemert, sectie P, nummer 518.

afbeelding "i_NL.IMRO.1652.Buitengebied122023-ON01_0030.png"

Figuur 3.8.1 Luchtfoto met rood omlijnd plangebied (bron: app.pdok.nl)

In het vigerende bestemmingsplan is op de planlocatie, Peeldijk 43 te Handel, de enkelbestemming ‘Agrarisch – Agrarisch bedrijf’ (gedeeltelijk) en ‘Agrarisch’ (gedeeltelijk) van toepassing. Ter plaatse van de enkelbestemming ‘Agrarisch – Agrarisch bedrijf’ zijn bedrijfsgebouwen toegestaan. Deze bestemming kan worden aangemerkt als bouwvlak. Tevens is de dubbelbestemming ‘Waarde – Archeologie 5’ van toepassing op een klein deel van het plangebied. Tevens is de gebiedsaanduiding ‘Overige zone – beperkingen veehouderij’ in werking voor het gehele plangebied.

Aan de zuidzijde van het perceel, grenzend aan de watergang is binnen het plangebied een strook van 5 meter opgenomen ten behoeve van de gebiedsaanduiding 'Vrijwaringszone – waterloop'. De gronden met deze aanduiding zijn, behalve voor de andere daar voorkomende bestemmingen, mede bestemd voor het beheer en onderhoud van de waterloop. Op deze gronden is het verboden enig bouwwerk te bouwen.

Aan de oostelijke zijde van het perceel is op de perceelsgrens de bestemming 'Natuur' opgenomen met de functieaanduiding 'Specifieke vorm van natuur – landschapselement'. Deze bestemming zal ongewijzigd behouden blijven. Deze gronden zijn bestemd voor het behoud, herstel en/of ontwikkeling van kleinere, beeldbepalende landschapselementen in de vorm van opgaand groen als houtwallen, houtsingels en bomenrijen.

afbeelding "i_NL.IMRO.1652.Buitengebied122023-ON01_0031.png"

Figuur 3.8.2 Uitsnede vigerend bestemmingsplan (bron: ruimtelijkeplannen.nl)

3.8.3 Huidige situatie

Het plangebied is gelegen aan de Peeldijk, de verbindingsweg tussen Gemert en Elsendorp, ten oosten van industrieterrein Wolfsveld, in het buitengebied van gemeente Gemert-Bakel.

Het landschap rondom het plangebied is door de jaren heen gevormd door menselijk handelen. In de 19e eeuw werden de woeste heide gronden ontgonnen. De droge gebieden werden gebruikt voor agrarische doeleinden en de nattere gebieden werden aangeplant met bebossing. Tijdens de ontginningen is het landschap verkaveld in een blokvormig patroon met erven aan ontginningslinten. Dit is ook terug te zien in de directe omgeving van het plangebied. Erven zijn gesitueerd aan de oost-west geörienteerde infrastructuur met daartussen blokvormige kavels en bebossing. Hierdoor ontstaat een afwisseling van een open landschap met grote agrarische percelen tot meer gesloten landschap met grote percelen bebossing.

Het plangebied heeft in totaal een oppervlakte van 81.525 m2 (8,2 ha) en is momenteel in gebruik als teeltondersteunende voorziening (6,3 ha), voormalig intensieve veehouderij (1,1 ha) en overige agrarische doeleinden (0,8 ha).

In het noorden wordt het plangbied begrensd door de Peeldijk, in het oosten door een houtsingel van eiken, in het zuiden door een brede waterloop en de Heideweg snijdt het plangebied aan de westzijde.

afbeelding "i_NL.IMRO.1652.Buitengebied122023-ON01_0032.png"

Figuur 3.8.3 Luchtfoto met bestaande, deels gesloopte bebouwing (bron: Drieweg Advies)

3.8.4 Het plan

Initiatiefneemster is voornemens om de permanente teeltondersteunende voorzieningen te legaliseren middels een bestemmingsplanherziening. Van een in het geldende bestemmingsplan daartoe opgenomen afwijkingsbevoegdheid kan geen gebruik worden gemaakt, omdat de gewenste oppervlakte aan teeltondersteunende voorzieningen de via afwijking toegestane 4 hectare overschrijdt. Bij de bestemmingsplanherziening wordt tevens de bestemming van het bouwvlak gewijzigd, waarbij de functieaanduiding ‘intensieve veehouderij’ komt te vervallen.

Doel van de bestemmingsplanherziening is de bestemming te wijzigen ten behoeve van het feitelijke gebruik. Met uitzondering van de huidige bedrijfswoning wil initiatiefneemster de bestaande bebouwing amoveren. Aan de westelijke zijde wil initiatiefneemster een nieuwe bedrijfswoning realiseren aan de Heideweg. De voormalige bedrijfswoning zal dienst gaan doen als kantoor. Voor het slopen van de oude bedrijfsgebouwen komt een nieuwe bedrijfshal in de plaats binnen het huidige bouwvlak. De nieuwe bedrijfsgebouwen en bedrijfswoning zullen binnen het bouwvlak worden gerealiseerd. Deze gebouwen zullen op een grotere afstand dan 15 meter van elkaar worden gerealiseerd. In het vigerende bestemmingsplan is een maximale onderlinge afstand van 15 meter tussen bouwwerken voorgeschreven. Van deze regel kan worden afgeweken wanneer een inrichtingsplan uitwijst dat de grotere afstand blijft passen binnen de uitgangspunten van het beeldkwaliteitsplan en daarmee ruimtelijk aanvaardbaar is.

De grotere afstand heeft een eenvoudige reden. Binnen het perceel van initiatiefneemster zijn enkele bomen aanwezig welke op de Groene Kaart staan van de gemeente Gemert-Bakel. De situering van de Aesculus hippocastanum (paardenkastanje) leidt ertoe dat de huidige bedrijfswoning op een grotere afstand zal komen van het te realiseren bedrijfsgebouw en de te realiseren bedrijfswoning. Uit het inrichtingsplan blijkt dat de paardenkastanje met de voorgenomen situering van de bouwwerken, behouden kan blijven, evenals de overige waardevolle bomen binnen de planlocatie.

Voor het slopen van de bedrijfsgebouwen, het bouwen van een nieuw bedrijfsgebouw en een nieuwe bedrijfswoning zal een separate procedure worden doorlopen. Het bedrijf is voornemens binnen het plangebied permanente teelt ondersteunende voorzieningen in de vorm van stellingen te realiseren om in eigen beheer te kunnen kweken voor de aardbeienteelt.

Landschappelijke inpassing

Daarnaast wordt een landschappelijke inpassing gerealiseerd. De ontwikkeling valt onder categorie 2 in de Handreiking Kwaliteitsverbetering van het landschap; Ruimtelijke ontwikkelingen waarbij een investering in de kwaliteitsverbetering van het landschap wordt verlangd. Voor ontwikkelingen behorende in categorie 2 is een landschappelijke inpassing van de ontwikkellocatie nodig bestaande uit:

  • De landschappelijke inpassing dient te voldoen aan het beeldkwaliteitsplan
  • 20% van de omvang van het bestemmingsvlak dient voor landschappelijke inpassing ingezet te worden.

De inpassing is opgedeeld in een landschappelijk inpassingsplan voor de teeltondersteunende voorzieningen en een erfinrichtingsplan voor de nieuwe ontwikkeling op het bestaande erf. Met de daarin opgenomen maatregelen wordt voorzien in de benodigde 20% omvang landschappelijke inpassing en de benodigde kwaliteitsverbetering ten gevolge van de optredende waardevermeerdering.

De huidige functie van het perceel is agrarisch en deze wordt omgezet tot agrarisch met teeltondersteunende voorzieningen. Deze voorzieningen worden landschappelijk ingepast door middel van een gemengde haag aan de zijde van de Peeldijk, zodat het zicht op de teeltondersteunende voorzieningen afgeschermd wordt door groen. In zowel de gemengde haag als de teeltondersteunende voorzieningen is een opening gecreëerd, waardoor een zichtlijn ontstaat naar het achterliggende landschap. Hierdoor wordt het perceel opgesplitst in een deel van 3,6 ha en 2,2 ha aan teeltondersteunende voorzieningen. Deze zichtlijn wordt geaccentueerd door middel van groepen van bes-dragende struiken. Deze groepen, van ieder 20 m lang, worden onderbroken door bloemrijk grasland om doorkijk naar het achterland te garanderen.

Aan de oostzijde van het perceel is een bestaande rij van eiken aanwezig, deze wordt versterkt tot houtsingel door struweel als onderbeplanting aan te planten. Aan westzijde van het perceel is ruimte gecreëerd voor een klein boscomplex wat aansluit op het bestaande bos aan de overzijde van de Heideweg. Rondom het kleine boscomplexje zijn nog voldoende open zichten naar het omliggende landschap aanwezig. Aan de zijde van de Cleefwitseloop en rondom de teeltondersteunende voorzieningen wordt een berm van bloemrijk grasland gerealiseerd om de Cleefwitseloop een natuurlijke oever te geven en leefgebied en voedselvoorziening te creëren voor verschillende vogel- en insectensoorten.

Deze ontwikkeling creëert niet alleen nieuwe natuur, waardoor de biodiversiteit van het perceel versterkt wordt en ecologische verbindingen ontstaan, maar het sluit ook aan op het omliggende landschap wat een wens is vanuit zowel de provincie als de gemeente.

afbeelding "i_NL.IMRO.1652.Buitengebied122023-ON01_0033.png"

Figuur 3.8.4 Landschappelijke inpassing Peeldijk 43 (bron: Studio Siebers)

Het erf wordt gesplitst met een nieuwe bedrijfswoning en bedrijfshal. Om deze nieuwe ontwikkeling in te passen is een erfinrichtingsplan uitgewerkt.

De erfafscheiding bestaat aan de oostzijde van het perceel uit een houtsingel haaks op de Peeldijk. Deze houtsingel vormt een groene scheiding tussen het erf en het agrarisch perceel. Aan de zijde van de Peeldijk en de Heideweg bestaat de erfafscheiding uit een aaneengesloten beukenhaag en aan de zuidzijde wordt een gemengde haag aangeplant om aan te sluiten bij de sfeer rondom het agrarisch perceel.

De ontsluiting van het erf vind plaats via de bestaande inrit, waarna de oprit zich splitst richting de bestaande woning en de nieuw te ontwikkelen bedrijfswoning. Iedere woning heeft een achtertuin omringd door een beukenhaag, waardoor een structuur van hagen ontstaat wat voor een rustige en landelijke sfeer zorgt op het erf. Daarnaast worden er fruitboomgaarden ontwikkeld aan de voorzijde zowel aan de Peeldijk als aan de Heideweg. Een tweede oprit bevindt zich aan de zuidzijde van het perceel aan de Heideweg. Door deze tweede inrit kan het agrarisch verkeer gescheiden worden. De inrit wordt versterkt door de gemengde haag aan de zuidzijde en een beukenhaag met bomenrij aan de noordzijde van de oprit.

Centraal op het perceel wordt een wadi ontwikkeld met een oppervlakte van 190 m2 om de gewenste 60 mm per m2 verharding op te vangen. De wadi wordt aangekleed door twee bestaande waardevolle bomen, een acacia en paardenkastanje. Daarnaast wordt er een solitaire sierappel toegevoegd om het ensemble van bomen te versterken.

Om aan de gewenste compensatie van 20% van het perceeloppervlak te komen, wordt op een agrarisch perceel aan de overzijde van de Heideweg een extra strook bosplantsoen ontwikkeld dat zal dienen als zoom voor de bestaande bebossing. Hierbij wordt rekening gehouden met zicht op de Peeldijk vanuit de nieuw te ontwikkelen woning en andersom.

afbeelding "i_NL.IMRO.1652.Buitengebied122023-ON01_0034.png"

Figuur 3.8.5 Erfinrichtingsplan Peeldijk 43 (bron: Studio Siebers)

3.9 Stippelbergseweg 55, De Mortel

3.9.1 Aanleiding en situatie

Initiatiefnemer is sinds kort eigenaar en toekomstig bewoner van het perceel Stippelbergseweg 55, in de bossen ten zuidoosten van De Mortel. De woning heeft de bestemming Wonen. De nieuwe eigenaar heeft tot doel de natuurlijke omgeving rondom de woning te herstellen en de woning te verduurzamen, zodat de ecologische footprint van de nieuwe bewoners wordt verkleind.

In november 2019 heeft een controle plaatsgevonden door de gemeente, waarbij de toezichthouder heeft geconstateerd dat er een aantal strijdigheden zijn met de planologische regelgeving. Het betreft een aantal gebouwde bijgebouwen en aangelegde verharding binnen de bestemming ‘Natuur’ alsmede een aantal zonder omgevingsvergunning uitgevoerde vergrotingen van de woning. Naar aanleiding van die constatering hebben verschillende overleggen plaatsgevonden tussen de (toenmalige) eigenaar en de gemeente om te bezien in hoeverre legalisatie mogelijk is. Dat heeft geleid tot een aanvraag tot vergroting van het bestemmingsvlak Wonen.

3.9.2 Locatie

De planlocatie is gelegen in het buitengebied van De Mortel, in de bossen aan de rand van natuurgebied De Stippelberg. Kadastraal is het perceel bekend als gemeente Gemert, sectie G. nummer 1203.

afbeelding "i_NL.IMRO.1652.Buitengebied122023-ON01_0035.png"

Figuur 3.9.1 Kadastrale ondergrond (bron: pdok.nl)

Het gedeelte van het perceel buiten het huidige bestemmingsvlak Wonen heeft in het geldende bestemmingsplan “Buitengebied 2017” de bestemming Natuur, met de dubbelbestemming ‘Waarde – Archeologie 5’. Deze bestemming zou gewijzigd moeten worden in de bestemming Wonen.

Het bestemmingsplan Buitengebied 2017 kent de optie van wijziging van het bestemmingsplan ten behoeve van een vergroting van het bestemmingsvlak. Deze wijzigingsbevoegdheid kan hier echter niet worden toegepast, omdat de locatie gelegen is in het Natuur Netwerk Brabant en dat is een van de uitsluitende voorwaarden. Dit betekent dat een herziening van het bestemmingsplan nodig is en een afzonderlijke afweging moet worden gemaakt door gemeente en provincie.

afbeelding "i_NL.IMRO.1652.Buitengebied122023-ON01_0036.png"

Figuur 3.9.2 Verbeelding bestemmingsplan (bron: ruimtelijkeplannen.nl)

3.9.3 Huidige situatie

Historische structuur

De projectlocatie is gelegen in de bossen, aan de rand van de ontginningsbossen. Het terrein is - evenals de omgeving - gaandeweg veranderd van een heidegebied in een uitgestrekt bosgebied. Vanaf 1967 verschijnt op de historische kaarten de woning.

Het perceel wordt aan de zuidzijde begrensd door het pad “Langs de Palen”, een op historische gronden gegeven nieuwe benaming voor een deel van de in vroeger eeuwen met palen bebakende “grensweg” tussen de gemeenten Gemert en Bakel.

afbeelding "i_NL.IMRO.1652.Buitengebied122023-ON01_0037.png"

Figuur 3.9.3 Historische topografische kaarten van 1900 en 1967

Stedenbouwkundige en functionele structuur

Het betreft een solitair gelegen woning op een zeer ruim bosperceel van 2,86 ha. De woning wordt in hoofdzaak ontsloten via de onverharde Stippelbergseweg, waarop ook de voorzijde van de woning is georiënteerd. In het bosgebied is de meest dichtbij gelegen bebouwing die van de recreatiewoningen op meer dan 600 meter in westelijke richting. Aan de oostzijde is de eerstvolgende bebouwing op ruim 300 meter gelegen aan de Venraysedijk. De woning wordt in zijn volledigheid door bos omsloten.

Planologische geschiedenis

In de loop der jaren is de woning verbouwd en zijn een aantal bijgebouwen geplaatst. Tijdens een controle in november 2019 is geconstateerd dat al die bijgebouwen buiten het bouwvlak zijn gelegen en derhalve verwijderd zouden moeten worden. Dat geldt ook voor de stenen penanten bij de poort. Daarnaast is de woning vergroot aan de westelijke zijkant (waardoor de woning buiten het bouwvlak komt) en aan de achterzijde, zonder omgevingsvergunning, en is de kap van de woning verhoogd. Bovendien zijn er verhardingen gelegen binnen de bestemming ‘Natuur’, hetgeen niet is toegestaan.

De vergroting van de woning aan de achterzijde en de verhoging van de kap zijn binnen het bestemmingsplan te vergunnen, waarvoor dan ook een omgevingsvergunning aangevraagd wordt. Voor het overige zijn geen legalisatiemogelijkheden aanwezig, anders dan een herziening van het bestemmingsplan.

Na bestuurlijk en ambtelijk overleg heeft de eigenaar-bewoner de wens uitgesproken dat de woning zoals die nu is in zijn geheel binnen het bestemmingsvlak wordt gebracht én dat een van de bijgebouwen kan worden gehandhaafd. Dit betekent dat ook dit bijgebouw binnen het bestemmingsvlak moet worden gebracht, waarna vergunning zou kunnen worden verleend. De overige bijgebouwen worden dan gesloopt.

3.9.4 Het plan

Verzoeker wil een van de bijgebouwen behouden, omwille van zijn woon- en leefgenot. Binnen de woning is geen gelegenheid tot het stallen van de auto, fietsen of materialen die nodig zijn voor het onderhoud van het terrein (zoals bijvoorbeeld bosmaaiers, kruiwagen) en zaken die te maken hebben met verduurzaming van de woning (accupakket voor de zonnepanelen, luchtwarmtepomp en de oplader voor de elektrische auto). Omwille van duurzaamheid van de materialen en de veiligheid is het noodzakelijk dat bij de woning een bijgebouw aanwezig is en dit past ook bij een reguliere woonbestemming. De huidige garage aan de westzijde is hiervoor het meest geschikt en bouwkundig ook in de beste staat.

De overige bebouwing kan verwijderd worden en dat is inmiddels ook gebeurd. De oppervlakte van de bijgebouwen is daarmee ruim passend binnen het beleid ten aanzien van bijbehorende bouwwerken binnen woonbestemmingen in het buitengebied (maximaal 150 m2).

afbeelding "i_NL.IMRO.1652.Buitengebied122023-ON01_0038.png"

Figuur 3.9.4 Functionele situatieschets, rood = slopen, grijs = behouden (bron: Projectaandrijving)

In figuur 3.9.4 is ter plaatse van het woonhuis een gele stippellijn ingetekend. Dit is de geldende begrenzing van het bestemmingsvlak. Een deel van de aanbouw is nu buiten het bestemmingsvlak gelegen. Door het bestemmingsvlak aan deze zijde te vergroten kan een vergunning voor dit deel van de aanbouw worden verleend en wordt deze strijdigheid hersteld.

Omdat de begrenzing van een bestemmingsvlak zo eenvoudig mogelijk en handhaafbaar moet zijn ontstaat – om zowel de volledige woning als de garage binnen het bestemmingsvlak te krijgen – een vergroting van 315 m2. Het totale bestemmingsvlak wordt dan 540 m2.

Teneinde meer waarborgen op te nemen dat legalisering van bijgebouwen buiten het bouwvlak alleen de garage betreft, is op de verbeelding een aanduiding opgenomen dat op de overige gronden van het uitgebreide bestemmingsvlak, tussen de woning en de garage, geen bebouwing is toegestaan. Dit deel van het perceel wordt ook niet aangemerkt als erf in de zin van het Besluit omgevingsrecht, zodat vergunningsvrije bouwwerken er zijn uitgesloten. De maximum oppervlakte van de garage is vastgelegd op 60 m2. Dat is meer dan de huidige oppervlakte van de garage, maar dit maakt een aanpassing mogelijk om de dak-gevelverhouding middels een overstek in overeenstemming te brengen met het beeldkwaliteitsplan Buitengebied.

afbeelding "i_NL.IMRO.1652.Buitengebied122023-ON01_0039.png"

Figuur 3.9.5 Gewenst bestemmingsvlak (bron: Projectaandrijving)

3.9.5 Aanpassen begrenzing NNB

De vergroting van het bestemmingsvlak grijpt in op het provinciale Natuur Netwerk Brabant (NNB). Wel is hier het volgende aan de hand: globaal is de locatie van de woning wel buiten het Natuur Netwerk Brabant gehouden, getuige de anders gekleurde vlek op de kaart. Dit is als het ware een ‘gat’ in het NNB. Op enig moment is dus de analyse gemaakt dat de natuurwaarde van de locatie hier toch al is verstoord, waardoor opname in het NNB niet logisch was. Daarbij valt het ook op dat de begrenzing van het huidige bestemmingsvlak ‘Wonen’ niet overeenkomt met de begrenzing van het Natuur Netwerk Brabant. Het bestemmingsvlak ‘Wonen’ ligt dus deels in het NNB. De woning zelf ligt voor een deel in het Natuurnetwerk, voor een ander deel niet.

afbeelding "i_NL.IMRO.1652.Buitengebied122023-ON01_0040.png"

Figuur 3.9.6 In geel de begrenzing van het huidige bestemmingsvlak ‘Wonen’ in relatie tot het 'gat' in de NNB (bron: Projectaandrijving)

Het lijkt evident dat bij de vaststelling van de grenzen niet zorgvuldig genoeg is gemeten. Het ‘gat’ in de NNB heeft een oppervlakte van circa 735 m2. Deze situatie vraagt om aanpassing, omdat er duidelijk geen aansluiting is tussen de werkelijke (woon)situatie, de ecologische waarden en de wijze waarop het planologisch is vastgelegd. Met één herziening van het bestemmingsplan kan de planologische situatie duurzaam worden hersteld, waarbij de doelstellingen zijn:

  • 1. Woon- en leefgenot van de eigenaar-bewoners handhaven;
  • 2. Ecologische en natuurwaarden behouden en waar mogelijk versterken;
  • 3. Duidelijk onderscheid (planologisch en feitelijk) tussen het deel dat voor woondoeleinden wordt gebruikt en het deel waar het primaire gebruik natuur is.

Daartoe wordt het ‘gat’ in de NNB verlegd naar de oppervlakte van het nieuwe, uitgebreide bestemmingsvlak en het huidige ‘gat’ wordt toegevoegd aan het Natuur Netwerk Brabant. Een uitruil, als het ware. Daarbij zal per saldo 195 m2 worden toegevoegd aan het Natuur Netwerk Brabant.

afbeelding "i_NL.IMRO.1652.Buitengebied122023-ON01_0041.png"

Figuur 3.9.7 Verbeelding van de oude en nieuwe uitsnede uit het NNB (bron: Projectaandrijving)

Artikel 5.3 Wijziging grenzen van werkingsgebieden

Artikel 5.3 van de Iov bepaalt dat Gedeputeerde Staten bevoegd zijn de in de verordening opgenomen grenzen van een werkingsgebied te wijzigen als er sprake is van kennelijke onjuistheden in de begrenzing (lid 1, onder d.). Daarvan is hier sprake. Lid 2. van datzelfde artikel stelt, dat als daarbij sprake is van een wijziging van de grenzen van het Natuur Netwerk Brabant (en dat is hier het geval) de voorwaarden gelden dat:

  • a. een wijziging van de grens van Natura2000 niet is toegestaan; Dit is hier niet aan de orde, het betreft geen Natura2000.
  • b. de wijziging tot doel heeft de ecologische samenhang van het Natuur Netwerk Brabant te verbeteren; Het deel van het perceel dat nu wordt toegevoegd aan het Natuur Netwerk Brabant (het ‘gat’ in de NNB) was tot voor kort ingericht als siertuin, als gevolg van deze ontwikkeling en de gekoppelde voorwaarden ten behoeve van landschappelijke inpassing wordt hier bos aangeplant, wat de ecologische samenhang van het gebied versterkt. Het deel dat nu woonbestemming wordt, wordt ook nu al gebruikt voor die functie en er is bebouwing aanwezig. De ecologische kwaliteit is daar reeds lange tijd niet meer of minimaal aanwezig.
  • c. de kwalitatieve en kwantitatieve ambities van het Natuur Netwerk Brabant worden behouden of versterkt. De initiatiefnemers hebben tot doel om hun ecologische footprint te verkleinen en hebben de woning gekocht om een meer duurzaam bestaan te kunnen leiden. Daartoe zal ook de omgeving van de woning worden heringericht met bos en bloemrijk grasland (dit is inmiddels uitgevoerd). Dat leidt tot een toename van de biodiversiteit en ecologische waarden van het terrein. Het landschappelijk inpassingsplan in bijlage 1 toont aan dat de situatie drastisch zal veranderen met een positieve uitwerking voor de ecologische waarden en kenmerken van het NNB ter plaatse. Ook de gronden die betrokken zijn bij de ‘uitruil’ en die nu het gat in de NNB vormen (het huidig gazon aan de voorzijde van de woning) zijn ingericht met het doel de ecologische waarde en biodiversiteit te versterken.

Deze ontwikkeling is de meest geëigende oplossing voor de historisch gegroeide situatie. Het betreft een uitbreiding van een bestaand bestemmingsvlak. De woning is vergund en niet strijdig met de bestemming. De garage is het meest courante bijgebouw op het erf, bovendien staat het er al en de woning ergens anders positioneren is niet duurzaam en kapitaalsvernietiging.

Artikel 3.22 Compensatie

In artikel 3.22 van de Iov zijn de regels vastgelegd voor compensatie van de ecologische waarden en kenmerken die verloren gaan als gevolg van de ontwikkeling. Omdat de uitbreiding van het bestemmingsvlak ten koste gaat van Natuur Netwerk Brabant (zij het niet cumulatief door de wijziging van het werkingsgebied), is deze regeling wel aan de orde. Lid 1 bepaalt dat gekozen kan worden voor een fysieke compensatie of een financiële compensatie en lid 2 bepaalt wat de omvang van de compensatie moet zijn. Dit wordt bepaald aan de hand van de omvang van het vernietigde of verstoorde areaal en de ontwikkeltijd van de aangetaste natuur. In deze situatie is met name dat laatste moeilijk vast te stellen omdat de natuur ter plaatse van het te vergroten bestemmingsvlak vele jaren geleden al aangetast is. Het verkennend onderzoek naar de natuurwaarden wijst ook uit dat er op dit moment geen ecologische waarden aanwezig zijn.

Op basis van de omgeving waarin de planlocatie is gelegen en het voornemen van initiatiefnemers om de locatie een ecologische impuls te geven is het aannemelijk te veronderstellen dat de natuurwaarden die hier verloren zijn gegaan binnen 5 jaar weer hersteld kunnen worden. Vandaar dat categorie a. van lid 2. aan de orde is en geen toeslag wordt berekend op de compensatie-oppervlakte. De oppervlakte natuur die gecompenseerd moet worden is het verschil tussen het nieuwe bestemmingsvlak en het huidige bestemmingsvlak en dat verschil is 315 m2.

De keuze voor een fysieke dan wel financiële compensatie is aan de initiatiefnemer. Echter fysieke compensatie op een oppervlak van 315 m² levert nauwelijks een robuuste bijdrage aan de natuurdoelen. Vandaar dat initiatiefnemer kiest voor een financiële compensatie. Die kan benut worden voor inrichting en beheer van een groter, robuuster compensatiegebied.

Artikel 3.24 Financiële compensatie

De financiële compensatie omvat de volgende kostenelementen:

  • a. kosten voor de planontwikkeling en planuitvoering; deze kosten zijn bij een dergelijke omvang verwaarloosbaar en gaan op in de plankosten voor het grotere compensatiegebied.
  • b. kosten van de aanschaf van vervangende grond; hierbij wordt aangesloten bij de systematiek van Stika voor de bepaling van de waardedaling van agrarische grond (€ 62.188 per hectare voor De Peel).
  • c. kosten van de basisinrichting; Op basis van gegevens van Stichting Probos worden de totale gemiddelde kosten voor de aanleg van nieuw bos ingeschat op € 13.750,- per hectare.
  • d. kosten van ontwikkelingsbeheer gedurende de ontwikkelingstijd. De kosten voor het beheer worden geschat op € 270,- per jaar (Stichting Probos), het is gebruikelijk hiervoor een ontwikkeltijd van 6 jaar mee te nemen.

De kostenberekening komt daarmee uit op een investering van € 2.443,-. Deze zal worden gestort in de provinciale compensatievoorziening ter uitvoering van de geformuleerde compensatietaakstelling.

3.10 Weijer 3 - 5 en Bocht 20, Milheeze

3.10.1 Aanleiding en situatie

De initiatiefnemer is voornemens de bestemmingsvlakken ‘Wonen’ op de locaties Weijer 3 en 5 te Milheeze te vergroten om de oprichting van een bijgebouw bij de bestaande woning Weijer 5 mogelijk te maken en het bestaande bijgebouw en het zwembad bij de woning Weijer 3 binnen de bestemming ‘Wonen’ te situeren. Daarnaast wil initiatiefnemer het bestemmingsvlak van het agrarisch bedrijf op de locatie Bocht 20 te Milheeze te worden vergroot. De drie locaties die in de ontwikkeling worden meegenomen vormen samen het plangebied.

De locaties Weijer 3 en 5 betreffen voormalige veehouderijen die zijn beëindigd en gesaneerd in het kader van de ontwikkeling van Milheeze-Noord. De locaties zijn herbestemd naar ‘Wonen’ in het bestemmingsplan ‘Milheeze-Noord’. In het vigerend bestemmingsplan ‘Gemert-Bakel Buitengebied 2017’ zijn de woonbestemmingen één op één overgenomen uit het bestemmingsplan ‘Milheeze-Noord’. Binnen de vigerende woonbestemmingen is te weinig ruimte voor de bouw van een bijgebouw. Op de locatie Bocht 20 is een extra loods voorzien, voor de stalling en het onderhoud van akkerbouwmachines. Binnen de vigerende agrarische bedrijfsbestemming ontbreekt hiervoor de ruimte.

3.10.2 Locatie

Het plangebied ligt binnen de grenzen van de gemeente Gemert-Bakel ten noordoosten van de kern Milheeze, tussen de wegen Weijer en Bocht. Het bestaat uit een aantal percelen, waaronder de bouwpercelen Weijer 3 en 5 en Bocht 20. De percelen staan kadastraal bekend als gemeente Bakel en Milheeze, sectie B, nummers 1142, 1143 (gedeeltelijk), 1195, 1630 (gedeeltelijk), 1631, 1632 (gedeeltelijk) en 1633.

Aan de oostzijde grenst het plangebied aan de weg Weijer, de doorgaande weg tussen Deurne en De Rips; aan de westzijde aan de weg Bocht. Aan de noordzijde worden de gronden begrensd door agrarische gronden. Het plangebied grenst in het zuiden aan het bedrijventerrein van Milheeze en aan de nieuwe uitbreiding van de kern Milheeze (Egelmeer). Het plangebied is gelegen aan weerszijden van de Esperloop.

De omgeving is overwegend agrarisch van karakter en wordt gekenmerkt door verspreid liggende agrarische en niet-agrarische bedrijven en burgerwoningen en de ligging van de Esperloop.

afbeelding "i_NL.IMRO.1652.Buitengebied122023-ON01_0042.png"

Figuur 3.10.1 Luchtfoto ligging percelen plangebied (bron: Agron advies)

3.10.3 Huidige situatie

Weijer 3 en 5 (locatie 1 en 2)

De locaties Weijer 3 en 5 betreft een tweetal voormalige veehouderijen die zijn beëindigd en gesaneerd in het kader van de ontwikkeling van Milheeze-Noord. De oppervlakte van het bouwvlak Weijer 3 bedraagt circa 700 m2. De woonbestemming Weijer 5 ligt strak om de woning en heeft een oppervlakte van circa 300 m2.

Op beide locaties zijn de dubbelbestemmingen ‘Waarde – Archeologie 4’ en ‘Waarde – Archeologie 5’, de bouwaanduiding ‘vrijstaand’ en de gebiedsaanduiding ‘luchtvaartverkeerzone – ihcs’ van toepassing. De gronden rondom de locatie hebben de bestemming ‘Agrarisch’. De locatie Weijer 3 heeft bovendien de functieaanduiding ‘specifieke vorm van wonen – ruimte voor ruimtewoningen’, een maatvoeringsaanduiding voor bebouwingspercentage, maximale bouw- en goothoogte en de gebiedsaanduiding ‘overige zone – beperkingen veehouderij’.

Bocht 20 (locatie 3)

De locatie Bocht 20 betreft een voormalige varkenshouderij, waarvan in 2017 het gehele veebestand is ingetrokken. Ook deze veehouderij is gesaneerd in het kader van de ontwikkeling van Milheeze-Noord. Het resterende akkerbouwbedrijf heeft een bouwvlak op maat met een oppervlakte van circa 1.450 m2. Verder zijn de dubbelbestemmingen ‘Waarde – Archeologie 4’ en ‘Waarde – Archeologie 5’ van toepassing en de gebiedsaanduiding ‘luchtvaartverkeerzone – ihcs’. De gronden rondom de locatie hebben de bestemming ‘Agrarisch’. Binnen het agrarisch bestemmingsvlak is een bedrijfswoning aanwezig en een loods van circa 370 m². De locatie wordt momenteel gebruikt voor het akkerbouwbedrijf van de initiatiefnemer. Het bedrijf heeft circa 35 hectare in gebruik waarop verschillende gewassen worden geteeld (bieten, maïs, aardappelen, wortelen en klein deel graszoden). De loods wordt gebruikt voor stalling en onderhoud van landbouwmachines.

afbeelding "i_NL.IMRO.1652.Buitengebied122023-ON01_0043.png"

Figuur 3.10.2 Ligging plangebieden binnen geldend bestemmingsplan (bron: Agron advies)

3.10.4 Het plan

Weijer 3 en 5

De woonbestemming Weijer 3 wordt vergroot tot 2.030 m2 om het bestaande zwembad en bijgebouw die momenteel buiten het bestemmingsvlak liggen binnen het bestemmingsvlak ‘wonen’ te brengen. Binnen het beoogde bestemmingsvlak ‘wonen’ worden binnen de beoogde omvang de woning, bijgebouwen, ontsluiting en bijbehorende tuin gesitueerd.

De woonbestemming Weijer 5 wordt vergroot tot 1.568 m2 om de oprichting van een bijgebouw van maximaal 150 m² bij de woning mogelijk te maken. Binnen het beoogde bestemmingsvlak ‘wonen’ worden binnen de beoogde omvang de woning, bijgebouwen, ontsluiting en bijbehorende tuin gesitueerd.

Bocht 20

Het agrarisch bestemmingsvlak wordt uitgebreid tot 3.660 m² om de oprichting van een nieuwe loods van 500 m² mogelijk te maken. De nieuwe loods is noodzakelijk voor de stalling van akkerbouwmachines en ander materieel (onder andere gewasbeschermingsspuit, tractoren, ploegen) en het onderhoud van landbouwmachines. Daarnaast zal een gedeelte worden gebruikt ten behoeve van de opslag en het sorteren van aardappelproducten. Tevens wordt binnen het beoogde bestemmingsvlak voorzien in ruimte voor het manoeuvreren van vrachtwagens en landbouwvoertuigen en wordt ruimte gereserveerd voor het realiseren van bijgebouwen bij de bedrijfswoning. Het agrarisch bedrijf aan Bocht 20 betreft een grondgebonden teeltbedrijf, dit wordt zo vastgelegd in het bestemmingsplan. Omschakeling naar een veehouderij en overig agrarisch bedrijf wordt uitgesloten in de regels van het bestemmingsplan.

Kwaliteitsverbetering van het landschap

Het provinciale beleid is doorvertaald in de gemeentelijke ‘Handreiking Kwaliteitsverbetering van het landschap Gemert-Bakel’ (geactualiseerd op 20 februari 2018). Dit beleid vormt een vertaling van het regionale afsprakenkader (10 januari 2013) waarin het toepassingsbereik van kwaliteitsverbetering, de hoogte van de basisinspanning en aanvullende kwaliteitsverbetering zijn vastgelegd.

Ruimtelijke ontwikkelingen zijn hierin in twee categorieën ingedeeld, beoordeeld op impact op de omgeving en het landschap. Onderhavige ontwikkeling ziet op de vergroting van de bestaande woonbestemmingen Weijer 3 en 5 en vergroting van het agrarisch bouwvlak Bocht 20. Het betreft hier een categorie 2-ontwikkeling (‘Ruimtelijke ontwikkelingen waarbij een investering in de kwaliteitsverbetering van het landschap wordt verlangd’).

Dit betekent dat een basisinspanning is vereist bestaande uit een landschappelijke inpassing met een omvang van 20% van de omvang van het bestemmingsvlak waarbij de landschappelijke inpassing dient te voldoen aan het beeldkwaliteitsplan. Daarnaast is een aanvullende kwaliteitsverbetering van het landschap vereist. Dit houdt in dat 20% van de waardevermeerdering van de gronden dient te worden geïnvesteerd in de kwaliteitsverbetering van het landschap.

In dit kader is de waardevermeerdering berekend als gevolg van de vergrotingen van de bestemmingsvlakken. In totaal is er sprake van een waardevermeerdering van € 264.725,00, wat neerkomt op een totale verplichte investering van circa € 52.945,00 (20%). Daarnaast dient voor het grotere bijgebouw bij de woning (300 m²) een aanvullende investering te worden gedaan van € 380,-. Dit betekent dat de totale verplichte investering € 53.325,- bedraagt.

Er wordt geïnvesteerd in het aanbrengen en onderhoud van beplanting om de locaties landschappelijk in te passen en om de gronden in te richten als natuur. Hiertoe is een landschappelijk inpassingsplan opgesteld. De omvang van de investering bedraagt € 63.573,-. Hiermee wordt voldaan aan de minimale investeringsplicht.

afbeelding "i_NL.IMRO.1652.Buitengebied122023-ON01_0044.png"

Figuur 3.10.3 Landschappelijk inpassingsplan Weijer 3

afbeelding "i_NL.IMRO.1652.Buitengebied122023-ON01_0045.png"

Figuur 3.10.4 Landschappelijk inpassingsplan Weijer 5

afbeelding "i_NL.IMRO.1652.Buitengebied122023-ON01_0046.png"

Figuur 3.10.5 Landschappelijk inpassingsplan Bocht 20

3.11 Zand ong., Bakel

3.11.1 Aanleiding en situatie

De initiatiefnemers zijn eigenaar van een perceel, welk kadastraal bekend staat als gemeente Bakel en Milheeze, sectie U, nummer 353, aan de straat 'Zand'. Het perceel wordt gebruikt als volkstuin. De initiatiefnemers wensen op deze locatie voor hun zoon een woning te ontwikkelen met toepassing van de ruimte-voor-ruimte regeling (hierna: RvR). Er wordt ter plaatse geen bedrijfsbebouwing gesaneerd, dus de RvR-titel wordt door de initiatiefnemers aangekocht. Naast de woning wordt tevens een bijgebouw gerealiseerd dat gebruikt gaat worden als garage/privé-opslag/hobby-werkplaats.

De vigerende planologisch-juridische regeling maakt geen woningbouw mogelijk op deze locatie. Het plangebied heeft de enkelbestemming 'Agrarisch'. Ook zijn in het bestemmingsplan geen directe mogelijkheden opgenomen om de vigerende enkelbestemming 'Agrarisch' te wijzigen in de bestemming 'Wonen'. Realisatie van de woning is mogelijk met toepassing van de RvR-regeling en middels een herziening van het bestemmingsplan.

3.11.2 Locatie

Het plangebied, kadastraal bekend als Gemeente Bakel-Milheeze, sectie U, nummer 353, is gelegen in het buitengebied van de Gemeente Gemert-Bakel, ten noordoosten van de kern Bakel en heeft een totaaloppervlak van 1570 m2.

afbeelding "i_NL.IMRO.1652.Buitengebied122023-ON01_0047.png"

Figuur 3.11.1 Kadastrale situatie van het plangebied (bron: Reland locatieontwikkeling)

Voor het plangebied is het bestemmingsplan 'Gemert-Bakel Buitengebied 2017' (vastgesteld 5 juli 2018) vigerend. Conform het vigerende bestemmingsplan rust er op het plangebied de enkelbestemming 'Agrarisch' en de gebiedsaanduiding 'overige zone – beperkingen veehouderij'. In het bestemmingsplan zijn geen mogelijkheden opgenomen om de realisatie van een woning mogelijk te maken. Ook ontbreken hiervoor wijzigingsbevoegdheden. Een herziening van het bestemmingsplan is noodzakelijk om de realisatie van een de RvR-woning op deze locatie mogelijk te maken.

afbeelding "i_NL.IMRO.1652.Buitengebied122023-ON01_0048.png"

Figuur 3.11.2 Uitsnede vigerend bestemmingsplan (bron: ruimtelijkeplannen.nl)

3.11.3 Huidige situatie

Ruimtelijke en functionele structuur

Het plangebied is gelegen in het buitengebied van de gemeente Gemert-Bakel, nabij de kern van Bakel. In de directe omgeving wisselen bebouwing, natuur en bossen en agrarische percelen zich af. Ten westen zijn de sportvelden van Bakel te vinden. Ten zuidoosten ligt Hospice ‘de Populier’. Ten noorden en oosten van het plangebied liggen de zandwinning, de Bakelse Plassen en Golfbaan "Stippelberg". Het dichtstbij gelegen agrarisch bedrijf betreft een varkenshouderij en ligt op circa 100 meter ten zuiden van het plangebied. In de directe omgeving liggen daarnaast enkele burgerwoningen.

Het plangebied wordt in de huidige situatie gebruikt als volkstuin. De initiatiefnemer wenst de huidige activiteiten ten behoeve van de volkstuin te staken om het perceel geschikt te maken voor de woningbouwontwikkeling. Rondom de volkstuin zijn enkele houtopstanden en struwelen aanwezig.

Bebouwingscluster 'Zand'

De realisatie van een RvR-woning is volgens het provinciaal beleid alleen mogelijk in een bebouwingsconcentratie. Op het moment dat kan worden onderbouwd dat de omgeving de kenmerken heeft van een bebouwingsconcentratie is realisatie van een RvR-woning mogelijk.

De bebouwing aan Zand maakt deel uit van het bestaande oude lintgehucht 't Zand aan de noordzijde van de kern Bakel. De bebouwing is op deze locatie geclusterd en vormt in de omgeving een concentratie van bebouwing. Ondanks dat de omgeving niet direct is aangemerkt als 'bebouwingsconcentratie' heeft het hier wel alle ruimtelijke, stedenbouwkundige en visuele kenmerken van.

Het gehucht wordt beschreven als een lintgehucht maar heeft eerder de eigenschappen van een lintgehucht aan of nabij wegenkruisingen. Aan Zand bevinden zich namelijk veel doodlopende weggetjes waaraan bebouwing is gelegen met een verschillende oriëntatie en een geclusterde ligging ten opzichte van elkaar. De planlocatie ligt aan de oostelijke rand van het gehucht 'Zand'. Het gebied maakt daarbij deel uit van het kampenlandschap met karakteristieke houtwallen en -singels.

Op kaarten van het beeldkwaliteitsplan als historische kaarten is te zien dat 't Zand (1850) later Zand wordt genoemd. Het gehucht bestaat uit een clustering van bebouwing aan Zand. Deze clustering van bebouwing is herkenbaar en aan te merken als een bebouwingsconcentratie.

Aan de noordzijde van het gehucht is verdichting nog wel wenselijk en is een RvR-kavel goed voorstelbaar. Op deze locatie draagt een RvR-kavel namelijk positief bij aan de karakteristieken van het bebouwingscluster en het Kampenlandschap met gegroepeerde bebouwing en doorzichten.

De toevoeging van een nieuwe RvR-woning binnen de bestaande bebouwingsconcentratie is hiermee voorstelbaar en draagt bij aan de verdere herkenbaarheid van het bebouwingscluster in zijn geheel.

afbeelding "i_NL.IMRO.1652.Buitengebied122023-ON01_0049.png"

Figuur 3.11.3 Bebouwingscluster Zand (bron: Reland locatieontwikkeling)

3.11.4 Het plan

Ontwikkeling

De initiatiefnemer wenst de activiteiten ten behoeve van het onderhouden en gebruiken van de volkstuin ter plaatse van het plangebied te beëindigen. Door de beëindiging wordt het gebruik van het plangebied omgezet naar wonen. De vigerende planologisch-juridische regeling maakt geen realisatie van een woning mogelijk.

Door middel van het inzetten van een RvR-titel, welke is verkregen via de ontwikkelingsmaatschappij ruimte-voor-ruimte van de provincie Noord-Brabant wordt de realisatie van een woning op deze locatie mogelijk gemaakt. Daarnaast is een herziening van het bestemmingsplan noodzakelijk om in planologisch-juridische de realisatie van een woning mogelijk te maken. Ter plaatse zal een woning gerealiseerd worden met een bijgebouw.

Het plangebied ligt in een oud Kampenlandschap. In de ontwikkeling van deze nieuwe RvR-woning is rekening gehouden met het behoud en de versterking van de waarden van dit kampenlandschap. In de Kampenlandschappen is de verhouding tussen bebouwing en landschap scheef komen te liggen en is er te weinig beplanting aanwezig. Hiermee is de kleinschaligheid van het landschap steeds meer verdwenen.

Om de kleinschaligheid van het plangebied en het kampenlandschap te versterken is een 5 meter brede inpassing aan de westzijde van het perceel verplicht. Om deze kleinschaligheid nog verder te versterken wordt in de zuidelijke punt tevens een vogelbosje aangeplant. Dit vogelbosje heeft niet alleen natuurlijke en landschappelijke waarden maar bevordert tevens de uitstraling van de kleinschaligheid van het plangebied en de directe omgeving. Alle bestaande bebouwing op het perceel wordt gesloopt.

De op te richten woning wordt met de lange gevel parallel aan de weg gesitueerd op een afstand van 5 meter van de weg en mag maximaal de afmetingen van 8 x 18 meter hebben. Omdat de oppervlakte van het perceel relatief beperkt is kan de woning niet nog verder van de weg af worden gesitueerd. Het bijgebouw wordt gebouwd op een afstand van 2 meter van het woonhuis. De afstand van het bijgebouw tot de noordelijke perceelsgrens mag 3 meter bedragen. Het bijgebouw wordt vanwege bezonning aan de noordzijde van de woning geplaatst. Aan de voorzijde van het bijgebouw worden achter de voorgevel van het hoofdgebouw twee parkeerplaatsen gerealiseerd. Op deze wijze ontstaat een compact boerenerf tussen de landschappelijke inpassing aan de zuid- en westzijde en het hoofd- en bijgebouw. Deze ruimte wordt gebruikt als tuin.

De bebouwing wordt vanwege de beperkte grootte van het perceel geclusterd aan de noordzijde van het plangebied. De te realiseren RvR-woning wordt gebouwd volgens het concept van een 'schuurwoning'. De woning heeft de uitstraling van een schuur en heeft een enigszins bescheiden uitstraling in de directe omgeving.

afbeelding "i_NL.IMRO.1652.Buitengebied122023-ON01_0050.png"

Figuur 3.11.4 Stedenbouwkundige en landschappelijke inpassing (bron: Reland locatieontwikkeling)

Landschappelijke inpassing

De landschappelijke inpassing gaat uit van een gemengde haag aan de straatzijde bestaande uit diverse soorten inheemse beplanting. Aan de westzijde wordt een (minimaal) 5 meter brede inpassingsstrook voorzien met een mix van heesterbeplanting en bomen. Deze inpassingsstrook vormt een duidelijke grens tussen de bebouwing en het open gebied. Door de beplanting rondom de bebouwing te concentreren wordt het visuele en ruimtelijke beeld van het kampenlandschap verbeterd en versterkt. Alle bestaande bebouwing wordt verwijderd.

In de zuidelijke punt wordt daarnaast een vogelbosje aangeplant. Dit vogelbosje bestaat uit diverse inheemse soorten en zorgt voor een natuurlijke afscherming van de bebouwing vanuit zuidelijke richting gezien. Daarnaast kan het vogelbosje op termijn een natuurlijke functie verrichten voor diverse diersoorten in de directe omgeving.

3.12 Hoogspanningsverbinding tussen Snelle Loop - Serisweg/ Koksedijk, Gemert (herstelwijziging)

3.12.1 Aanleiding en situatie

In de zones tussen Snelle Loop en Serisweg en tussen Snelle Loop en Koksedijk is een bovengrondse hoogspanningsverbinding aanwezig. Abusievelijk is aan deze hoogspanningsverbinding in het bestemmingsplan "Gemert-Bakel Buitengebied 2017" de dubbelbestemming 'Leiding' toegekend. Deze dubbelbestemming regelt echter het vervoer van vloeibare stoffen of aardgas. Voor de aanleg, instandhouding en/of bescherming van een bovengrondse hoogspanningsleiding is in genoemd bestemmingsplan de dubbelbestemming 'Leiding - Hoogspanningsleiding' opgenomen. De eveneens opgenomen aanduiding 'hartlijn leiding - hoogspanningsverbinding' is wel correct en geeft al aan dat sprake had moeten zijn van de dubbelbestemming 'Leiding - Hoogspanningsleiding'.

3.12.2 Locatie

De locatie van deze herstelwijziging is gelegen in de noordwestelijke deel van de gemeente Gemert-Bakel, tussen de Snelle Loop en de Serisweg/ Koksedijk. Het betreft een strook door het grotendeels onbebouwde agrarisch gebied ten westen van het agrarisch bedrijf Serisweg 30-36 en ten zuidwesten van het agrarisch bedrijf Koksedijk 16.

afbeelding "i_NL.IMRO.1652.Buitengebied122023-ON01_0051.png"

Figuur 3.12.1 Locatie herstelwijziging Snelle Loop - Serisweg/ Koksedijk (leidingtracé ter plaatse van en in verlengde van 'rode pin') (www.ruimtelijkeplannen.nl, 2023)

3.12.3 Geldende bestemmingsregeling

De bovengrondse hoogspanningsverbinding is inclusief een beschermingszone aan weerszijden met een breedte van 25 m onder de dubbelbestemming 'Leiding' gebracht. Binnen deze bestemming is echter de aanwezigheid van een bovengrondse hoogspanningsverbinding niet toegestaan.

3.12.4 Planherziening

Om de onbedoelde bestemmingswijziging voor de locatie Snelle Loop - Serisweg/ Koksedijk ongedaan te maken, wordt aan de betreffende gronden de dubbelbestemming 'Leiding - Hoogspanningsleiding' toegekend. De aanduiding 'hartlijn leiding - hoogspanningsverbinding' blijft daarbij ongewijzigd van kracht.

Geconcludeerd wordt dat, vanwege het feit dat het niet gaat om een inhoudelijke wijziging, maar enkel om het herstellen van een omissie, er geen gemeentelijke en/of provinciale belangen in het geding zijn.

3.13 Geluidzone De Peel

3.13.1 Aanleiding en situatie

Door de 'Omgevingsmanager/ Belangenbehartiger Defensie' is geconstateerd dat de op de verbeelding van het bestemmingsplan "Gemert-Bakel Buitengebied 2017" opgenomen 'geluidzone - grondgebonden geluidzonering' rond vliegbasis De Peel (de 50 dBA-contour) niet overeenkomt met de daadwerkelijke zonering, zoals die in de "Regeling algemene regels ruimtelijke ordening" (Rarro) is vastgelegd. De zone op de verbeelding is kleiner dan de daadwerkelijke zone. De Rarro bevat ministeriële regels die door gemeentebesturen in acht moeten worden genomen. De gemeente Gemert-Bakel is daarom verplicht de zone uit de Rarro in haar bestemmingsplannen op te nemen.

Voor het opstellen van het bestemmingsplan "Gemert-Bakel Buitengebied 2017" is de betreffende zone overgenomen van het bestemmingsplan "Gemert-Bakel Buitengebied 2010". Daarbij is niet opgemerkt dat tussentijds de Rarro is gewijzigd (wijziging van de regeling algemene regels ruimtelijke ordening (ministeriële regeling) (eerste aanvulling), vastgesteld 1 oktober 2012) en daardoor deze zone niet meer juist was. Destijds (2016) is deze omissie ook door het Ministerie van Binnenlandse Zaken en Koninkrijksrelaties bij het opstellen van de vooroverleg reactie bij het bestemmingsplan "Gemert-Bakel Buitengebied 2017" niet opgemerkt.

3.13.2 Locatie

De locatie van deze herstelwijziging is gelegen in de zuidoostelijke hoek van de gemeente Gemert-Bakel, rond vliegbasis De Peel. Het betreft het gedeelte van het buitengebied dat is gelegen tussen de contour van de in het bestemmingsplan opgenomen geluidszone en de contour van de geluidszonering overeenkomstig de Rarro.

afbeelding "i_NL.IMRO.1652.Buitengebied122023-ON01_0052.png"

Figuur 3.13.1 Contour geluidzone De Peel zoals vastgelegd in de Rarro (www.ruimtelijkeplannen.nl, 2023)

3.13.3 Geldende bestemmingsregeling

In het bestemmingsplan "Gemert-Bakel Buitengebied 2017" is de geluidzone De Peel geregeld door middel van de gebiedsaanduiding 'geluidzone - grondgebonden geluidzonering'. De contour van deze zone komt echter niet overeen met de contour van de geluidzone, zoals vastgelegd in de Rarro. In de regels bij het bestemmingsplan is een regeling voor de geluidzone opgenomen, die bepaalt dat ter plaatse van de aanduiding geen nieuwe geluidsgevoelige functies mogen worden gerealiseerd. Deze regeling is correct, echter het gebied waar deze op van toepassing is, is te beperkt weergegeven.

afbeelding "i_NL.IMRO.1652.Buitengebied122023-ON01_0053.png"

Figuur 3.13.2 Contour geluidzone De Peel zoals vastgelegd in het geldende bestemmingsplan "Gemert-Bakel Buitengebied 2017" (www.ruimtelijkeplannen.nl, 2023)

3.13.4 Planherziening

Om de geluidzone De Peel correct in het gemeentelijke bestemmingsplan te regelen, moet de gebiedsaanduiding 'geluidzone - grondgebonden geluidzonering' uitgebreid worden. Het gebied gelegen tussen de contour uit het bestemmingsplan en de contour uit het Rarro moet alsnog van de betreffende aanduiding worden voorzien. Voor dit gebied gaat dan ook gelden dat geen nieuwe geluidsgevoelige functies mogen worden gerealiseerd.

afbeelding "i_NL.IMRO.1652.Buitengebied122023-ON01_0054.png"

Figuur 3.13.3 Uitbreiding gebiedsaanduiding 'geluidzone - grondgebonden geluidzonering' (www.ruimtelijkeplannen.nl, 2023)

3.14 Esdonk 32, Gemert

3.14.1 Aanleiding en situatie

Op de locatie aan de Esdonk 32 te Gemert is een agrarische bedrijf gelegen. Er is sprake van een bloemkwekerij en een voormalige varkenshouderij. Het bedrijf heeft deelgenomen aan de landelijke stoppersregeling voor de varkenshouderij. De varkens zijn weg en de stallen zijn gesloopt. Op 10 mei 2022 is een wijzigingsplan voor de locatie vastgesteld waarbij het bouwvlak is verkleind en de mogelijkheid voor intensieve veehouderij is komen te vervallen. De voor de bloemkwekerij te behouden bebouwing en de bedrijfswoning liggen binnen het bouwvlak. Het landschappelijke inpassingsplan, dat deel uitmaakt van het plan (zie figuur 3.14.1), is de juiste weergave van de begrenzing van het bouwvlak. De grens van het bouwvlak is niet op de juiste wijze in de verbeelding (zie figuur 3.14.2) opgenomen, waardoor een deel van de bestaande bebouwing en een inmiddels nieuw gerealiseerd bijgebouw bij de woning buiten het bestemmingsvlak zijn gelegen. Ligging van deze bebouwing binnen het bouwvlak is wel steeds het oogmerk bij het wijzigingsplan geweest. In het bestemmingsplan dient dit alsnog hersteld te worden.

afbeelding "i_NL.IMRO.1652.Buitengebied122023-ON01_0055.png"

Figuur 3.14.1 Landschappelijk inpassingsplan behorende bij wijzigingsplan

afbeelding "i_NL.IMRO.1652.Buitengebied122023-ON01_0056.png"

Figuur 3.14.2 Verbeelding bij wijzigingsplan

In figuur 3.14.3 wordt de verbeelding weergegeven zoals deze had moeten zijn volgens de landschappelijk inpassing. De vierkante dierenschuilplaats die al aanwezig was valt dan binnen het bouwblok, net zoals het nieuw gebouwde tuinhuis. De geplande notenboom is daarmee wel vervallen. Maar hiervoor zijn 3 bomen terug gekomen tussen de woning en het tuinhuis (zie figuur 3.14.5).

afbeelding "i_NL.IMRO.1652.Buitengebied122023-ON01_0057.png"

Figuur 3.14.3 Verbeelding volgens landschappelijke inpassing

afbeelding "i_NL.IMRO.1652.Buitengebied122023-ON01_0058.png"

Figuur 3.14.4 Luchtfoto gerealiseerde situatie met begrenzing conform wijzigingsplan

afbeelding "i_NL.IMRO.1652.Buitengebied122023-ON01_0059.png"

Figuur 3.14.5 Foto gerealiseerde situatie

3.14.2 Locatie

De locatie is gelegen ten noordwesten van de dorpskern Gemert en bevindt zich op de grens tussen de gemeenten Gemert-Bakel en Boekel. De gebouwen liggen in Gemert-Bakel. Kadastraal is de locatie bekend als gemeente Gemert, sectie O, nummer 21. Op onderstaande figuur is de ligging van de initiatieflocatie weergegeven.

afbeelding "i_NL.IMRO.1652.Buitengebied122023-ON01_0060.png"

Figuur 3.14.6 Ligging locatie (kadastralekaart.com)

3.14.3 Geldende bestemmingsregeling

De locatie Esdonk 32 heeft de bestemming ‘Agrarisch – Agrarisch bedrijf’. Binnen deze bestemming is een agrarisch bedrijf in de vorm van een (vollegronds)teeltbedrijf met bijbehorende bedrijfswoning en bedrijfsgebouwen toegestaan. Het overige deel van het plangebied, met daarin de bijgebouwen bij de bedrijfswoning, heeft de bestemming ‘Agrarisch’. Binnen deze bestemming is agrarisch grondgebruik toegestaan. Binnen deze bestemming zijn echter geen gebouwen toegestaan.

afbeelding "i_NL.IMRO.1652.Buitengebied122023-ON01_0061.png"

Figuur 3.14.7 Vigerende bestemmingsregeling (www.ruimtelijkeplannen.nl)

3.14.4 Planherziening

In het wijzigingsplan ‘Esdonk 32, Gemert’ is in de verbeelding de vorm van het bestemmingsvlak ‘Agrarisch – Agrarisch bedrijf’ niet in overeenstemming met de bij wijziging van de bestemmingen beoogde situatie. Om te voorzien in deze omissie, ontstaan door een foutief ingetekend bestemmingsvlak op de verbeelding, en daarmee de bebouwing die buiten het bestemmings- en bouwvlak is gelegen te legaliseren, wordt de grens van het bestemmingsvlak ‘Agrarisch – Agrarisch bedrijf’ met de aanduiding ‘specifieke vorm van agrarisch – ruimte voor ruimte’ aangepast. Op onderstaande figuur is met rood de juiste vorm van het bestemmingsvlak weergegeven.

afbeelding "i_NL.IMRO.1652.Buitengebied122023-ON01_0062.png"

Figuur 3.14.8 Beoogde bestemmingsregeling Esdonk 32, Gemert (bron: Arvalis)

Geconcludeerd wordt dat vanwege het feit dat het niet gaat om een inhoudelijke wijziging, maar enkel om het herstellen van een omissie, er geen gemeentelijke en/of provinciale belangen in het geding zijn. Zoals in de onderstaande luchtfoto's duidelijk zichtbaar is, is de bestaande dierenschuilplaats en het nieuwe tuinhuis niet op de plaats van de gesloopte varkensstallen gebouwd. De lijn achter de stal is aangehouden voor het tuinhuis, zoals ook in het landschappelijke inpassingsplan is weergegeven.

afbeelding "i_NL.IMRO.1652.Buitengebied122023-ON01_0063.png"

Figuur 3.14.9 Luchtfoto topotijdreis uit 2021

afbeelding "i_NL.IMRO.1652.Buitengebied122023-ON01_0064.png"

Figuur 3.14.10 Luchtfoto topotijdreis 2022

3.15 Kreijtenberg 4a, Milheeze

3.15.1 Aanleiding en situatie

Bestemmingsplan Milheeze Noord

De woning aan de Kreijtenberg 4a in Milheeze is in 2010 als BIO-woning (Buitengebied in Ontwikkeling) toegewezen als onderdeel van het bredere plan Milheeze-Noord. In het bestemmingsplan "Milheeze-Noord", dat voor het eerst de mogelijkheid tot de bouw van de woning (BIO-woning) op de locatie Kreijtenberg 4a juridisch vastlegde, zijn de bouwmogelijkheden door middel van een bouwvlak met bouwaanduiding 'vrijstaand' en goot- en bouwhoogte bepaald. Het oppervlak van de binnen het bouwvlak ingetekende bouwaanduiding bedroeg 156 m². De in de regels vastgelegde goot- en bouwhoogte bedroegen 3,5 m respectievelijk 10 m. Uitgaande van een zadeldak is binnen deze grenzen de bouw van een woning mogelijk ,met een maximum inhoud van circa 1.050 m3. In de planregels van het bestemmingsplan "Milheeze-Noord" is geen exacte inhoudsmaat voor de betreffende woning vastgelegd. Deze volgde echter wel uit de oppervlakte van de bouwaanduiding waarbinnen moest worden gebouwd, in combinatie met een maximale goothoogte en bouwhoogte.

Bestemmingsplan Gemert-Bakel Buitengebied Herziening April 2013

Het partiële herzieningsplan Buitengebied Herziening april 2013 bevat de eerste wijziging die van toepassing is op de Kreijtenberg 4a. Doel was uitsluitend de vorm van het bestemmingsvlak te wijzigen, waarbij de oppervlakte ervan behouden bleef. De bouwaanduiding 'vrijstaand' werd gehandhaafd. Anders in de systematiek van het bestemmingsplan ten opzichte van Milheeze-Noord, is dat voor reguliere woningen een maximale inhoudsmaat van 600 m³ was opgenomen, in lijn met de algemene wijze van bestemmen zoals in het integrale bestemmingsplan Buitengebied 2010. Echter gold in 2013 voor woningen met de aanduiding 'vrijstaand' nog een afwijkende maatvoering. Hieruit volgde nog dezelfde inhoudsmaat als was gegeven in 2010.

Bestemmingsplan Gemert-Bakel Buitengebied herziening juli 2016

In de planherziening van juli 2016 is de situatie voor de Kreijtenberg 4a gewijzigd. Doel van de wijziging was allereerst het bestemmingsvlak voor Kreijtenberg 4a te vergroten. Daarvoor zijn op verzoek de naast- en bovengelegen percelen met de bestemmingen 'Agrarisch' respectievelijk 'Groen' gewijzigd naar de bestemming 'Wonen'. Hiervoor heeft conform het beleid natuurcompensatie plaatsgevonden . Daarnaast werd beoogd de woning anders te kunnen situeren dan alleen binnen de in 2010 aangegeven aanduiding 'vrijstaand'. Daartoe is de aanduiding 'vrijstaand' verruimd tot het gehele bestemmingsvlak. In de vastgestelde planregels voor Buitengebied herziening juli 2016 bleven de regels voor de omvang van de te realiseren bebouwing gelijk. Echter is er niet langer een artikel opgenomen met een afwijkende inhoudsmaat voor de bouwaanduiding 'vrijstaand'. Dit betekent dat de woning nog maar een maximale inhoud mag hebben van 600 m³.

Bestemmingsplan Gemert-Bakel Buitengebied 2017
In 2017-2018 is de locatie opgenomen in de totale herziening Buitengebied 2017. Hierin is de planologische situatie overgenomen uit het plan Buitengebied herziening juli 2016, waardoor er ook nu geen sprake is van een afwijkende maatvoering voor woningen met een aanduiding 'vrijstaand'. Wel is de algemeen toegestane inhoudsmaat in dit plan verruimd van 600 m³ naar 750 m³, geldend voor alle woonbestemmingen zonder functieaanduiding als bio-woning of ruimte voor ruimte-woning. Daardoor geldt nu voor de woning een maximale inhoudsmaat van 750 m3. In plaats van de oorspronkelijk toegestane circa 1.050 m3.

3.15.2 Locatie

De locatie Kreijtenberg 4a is gelegen in het buitengebied ten noorden van de kern Milheeze. Het betreft (delen van) de kadastrale percelen gemeente Bakel en Milheeze, sectie B, nummers 1518, 1546, 1547, 1548, 1549 en 1550. De locatie grenst aan het recreatieve bedrijf (bed & breakfast) Kreijtenberg 4. Voor het overige is de locatie omgeven door onbebouwd buitengebied, met daarin de Berkenseloop.

afbeelding "i_NL.IMRO.1652.Buitengebied122023-ON01_0065.png"

Figuur 3.15.1 Luchtfoto omgeving plangebied Kreijtenberg 4a (bron: ruimtelijkeplannen.nl)

3.15.3 Geldende bestemmingsregeling

In het bestemmingsplan Gemert-Bakel Buitengebied 2017 is aan de locatie Kreijtenberg 4a de bestemming 'Wonen' toegekend. Binnen deze bestemming is de bouw van één vrijstaande woning toegestaan, met een inhoud van maximaal 750 m3. De maximum goot- en bouwhoogte bedragen 3,5 respectievelijk 10 m.

afbeelding "i_NL.IMRO.1652.Buitengebied122023-ON01_0066.png"

Figuur 3.15.2 Uitsnede geldend bestemmingsplan (bron: ruimtelijkeplannen.nl)

3.15.4 Planherziening

Bij de achtereenvolgende vertalingen van deze bouwregelingen in de bestemmingsplannen "Buitengebied Gemert-Bakel 2013", "Buitengebied juli 2016" en "Gemert-Bakel Buitengebied 2017" is nagelaten de omvang van de bouwmogelijkheden, zoals beoogd in het bestemmingsplan "Milheeze-Noord", adequaat over te nemen en wederom vast te leggen. Hiervoor is in de diverse toelichtingen bij genoemde bestemmingsplannen geen onderbouwing en/of motivering opgenomen.

De wijzigingen zijn dan ook niet bewust doorgevoerd, maar het gevolg van het niet juist en/of niet volledig toepassen van de wijze van bestemmen in het buitengebied. Om in de daardoor ontstane omissie te kunnen voorzien, wordt aan de woning de aanduiding 'specifieke vorm van wonen - bio 2' toegevoegd. In de regels wordt toegevoegd dat ter plaatse van deze aanduiding voor de inhoud van de woning, in afwijking van de algemene regel, een maximum geldt van 1.050 m3.

Hoofdstuk 4 Economische haalbaarheid

4.1 Exploitatieplan

Hoofdstuk 5 van de Wro bevat een aantal financiële bepalingen, waaronder een regeling voor grondexploitatie (afdeling 6.4 Wro) en een regeling voor tegemoetkoming in planschade (afdeling 6.1 Wro).

In afdeling 6.4. zijn de mogelijkheden aangegeven die een gemeente heeft om kosten te verhalen en om eisen te stellen met betrekking tot de inrichting, kwaliteit en uitvoerbaarheid van bouwlocaties. In artikel 6.12 is bepaald dat bij de vaststelling van verschillende gemeentelijke plannen die mogelijkheden bieden voor het ontwikkelen van bepaalde in het Besluit ruimtelijke ordening aangewezen bouwplannen, tevens een exploitatieplan wordt vastgesteld op grond waarvan de gemeente de kosten van grondexploitatie kan verhalen. Dit is een verplichting die geldt voor bestemmingsplannen, wijzigingsplannen en beheersverordeningen. Artikel 6.2.1. van het Besluit ruimtelijke ordening bevat een opsomming van de bouwplannen waarvoor een exploitatieplan in principe verplicht is. Er zijn nogal wat bouwplannen waarvoor dit geldt:

  • de bouw van een of meer woningen
  • de bouw van een of meer andere hoofdgebouwen
  • de uitbreiding van een gebouw met tenminste 1000 m² of met een of meer woningen
  • de verbouwing van een of meer aaneengesloten gebouwen die voor andere doeleinden in gebruik of ingericht waren, voor detailhandel, dienstverlening, kantoor of horecadoeleinden, mits de cumulatieve oppervlakte van de nieuwe functies tenminste 1000 m² bedraagt
  • de bouw van kassen met een oppervlakte van tenminste 1000 m²

Het onderhavige bestemmingsplan biedt mogelijkheden voor bouwplannen die in deze opsomming zijn genoemd. In principe dient er dus een exploitatieplan te worden vastgesteld. Echter voor de diverse plannen wordt met de eigenaren een exploitatieovereenkomst gesloten waarin de gemeentelijke kosten zullen worden verankerd. De kosten zijn dus anderszins verzekerd en hierdoor is een exploitatieplan niet vereist bij het bestemmingsplan.

Het bestemmingsplan kent ook enkele afwijkings- en wijzigingsmogelijkheden. Als hiervoor een aanvraag wordt ingediend, is dat een particulier initiatief dat geheel voor rekening komt van de aanvrager en waaraan voor de gemeente geen kosten zijn verbonden. De ambtelijke kosten zijn verdisconteerd in de leges. Als er onverhoopt toch andere kosten zijn, dan dient ter zake een exploitatieovereenkomst te worden afgesloten voordat de afwijkings- of wijzigingsprocedure wordt gestart. Het kostenverhaal is dus ook hier anderszins verzekerd.

4.2 Planschade

Daar waar nieuwe ontwikkelingen door middel van dit bestemmingsplan worden mogelijk gemaakt, is er een risico op planschade. Als het een particulier initiatief betreft dan zullen dit risico en de kosten die daarmee gemoeid zijn, verhaald worden op de initiatiefnemer. Hiervoor wordt voor elk particulier initiatief een planschadeovereenkomst afgesloten.

Hoofdstuk 5 Overleg, zienswijzen, ambtshalve aanpassingen

5.1 Omgevingsdialoog

Nogal wat zienswijzen komen voort uit het feit dat een planontwikkeling niet met de buren is besproken. De gemeente raadt een initiatiefnemer dan ook dringend aan om zijn/ haar planinitiatief in een vroeg stadium te bespreken met de eigenaren van de omliggende percelen. Daartoe heeft de gemeente Gemert-Bakel de 'spelregels voor het voeren van een zorgvuldige dialoog' vastgesteld. Hiermee dient de initiatiefnemer de direct omwonenden/ belanghebbenden te informeren over de voorgenomen planontwikkeling. Onderstaand een korte weerslag van de voor de diverse ontwikkelingen gevoerde omgevingsdialogen.

Dr. de Quayweg 75-79, De Mortel

Ten behoeve van de ontwikkeling is een zorgvuldige dialoog gevoerd. Uit deze gevoerde dialoog blijkt dat de omwonenden geen bezwaren hebben tegen de ontwikkeling.

Dr. de Quayweg 80, De Mortel

Ten behoeve van de ontwikkeling is een zorgvuldige dialoog gevoerd. Uit deze gevoerde dialoog blijkt dat de omwonenden geen bezwaren hebben tegen de ontwikkeling.

Dr. de Quayweg 84, De Mortel

Ten behoeve van de ontwikkeling is een zorgvuldige dialoog gevoerd. Uit deze gevoerde dialoog blijkt dat de omwonenden geen bezwaren hebben tegen de ontwikkeling.

Fuik 24, Handel

De voor deze ontwikkeling noodzakelijke omgevingsdialoog zal op korte termijn gevoerd worden.

Kapelweg ong., Handel

Ten behoeve van de ontwikkeling is een zorgvuldige dialoog gevoerd. Uit deze gevoerde dialoog blijkt dat de omwonenden geen bezwaren hebben tegen de ontwikkeling.

Koksedijk 6-10, Gemert

Ten behoeve van de ontwikkeling is een zorgvuldige dialoog gevoerd. Uit deze gevoerde dialoog blijkt dat de omwonenden geen bezwaren hebben tegen de ontwikkeling.

Pandelaar 75, Gemert

Ten behoeve van de ontwikkeling is een zorgvuldige dialoog gevoerd. Uit deze gevoerde dialoog blijkt dat de omwonenden geen bezwaren hebben tegen de ontwikkeling.

Peeldijk 43, Handel

Ten behoeve van de ontwikkeling is een zorgvuldige dialoog gevoerd. Uit deze gevoerde dialoog blijkt dat de omwonenden geen bezwaren hebben tegen de ontwikkeling.

Stippelbergseweg 55, De Mortel

De dichtst bij gelegen bebouwing ligt op een afstand van 350 m. Vanuit die bebouwing is geen zicht op de planlocatie. Het planvoornemen heeft ook geen enkel effect op omliggende percelen of omwonenden. Vandaar dat een omgevingsdialoog achterwege is gebleven.

Weijer 3-5 en Bocht 20, Milheeze

Ten behoeve van de ontwikkeling is een zorgvuldige dialoog gevoerd. Uit deze gevoerde dialoog blijkt dat de omwonenden geen bezwaren hebben tegen de ontwikkeling.

Zand ong., Bakel

Ten behoeve van de ontwikkeling is een zorgvuldige dialoog gevoerd. Uit deze gevoerde dialoog blijkt dat enkele omwonenden verwachten mogelijk gehinderd te worden in de bedrijfsvoering en ontwikkeling van hun bedrijf. Door initiatiefnemer is de ontwikkeling zodanig vorm gegeven, dat van hinder geen sprake zal zijn.

5.2 Vooroverleg

5.2.1 Provincie Noord-Brabant, reactie 12 oktober 2023

Op 12 oktober 2023 is in het kader van het wettelijk vooroverleg een reactie ontvangen van de provincie Noord-Brabant op het voorontwerp bestemmingsplan Gemert-Bakel Buitengebied, herziening december 2023. Het provinciaal ruimtelijk beleid is vastgelegd in de Brabantse Omgevingsvisie en de Interim omgevingsverordening Noord-Brabant (Iov). Op 11 maart 2022 hebben Provinciale Staten de Omgevingsverordening Noord-Brabant vastgesteld die gelijktijdig met de Omgevingswet inwerking zal treden. Daarnaast is op 15 april 2022 de wijziging Interim omgevingsverordening – actualisatie april 2022 in werking getreden. Hierin zijn een aantal thema’s opgenomen en wijzigingen aangebracht ten opzichte van de geldende Interim omgevingsverordening.

Het plangebied bestaat uit verschillende locaties en diverse van aard verschillende ontwikkelingen. Hierom zijn verschillende werkingsgebieden en uiteenlopende artikelen van toepassing op voorliggend plan. Elke ontwikkeling dient zich in ieder geval te verhouden tot de basisprincipes van een evenwichtige toedeling van functies en het vereiste van kwaliteitsverbetering van het landschap.

Hierna volgen per ontwikkellocatie opmerkingen en aandachtspunten over de wijze waarop de afzonderlijke ontwikkelingen zich verhouden tot het provinciale ruimtelijke beleid.

Dr. de Quayweg 75-79, De Mortel

Deze ontwikkellocatie verhoudt zich in voldoende mate tot de provinciale ruimtelijke belangen, zodra voldoende wordt gemotiveerd dat de tweede bedrijfswoning niet langer benodigd is voor de bedrijfsvoering van de melkveehouderij en waarom geen sprake is van overtollige bebouwing. Voorts is de provincie met het oog op de zorgplicht voor een goede omgevingskwaliteit nog niet overtuigd waarom de woning buiten het vigerende bouwperceel gesitueerd moet worden. De provincie verzoekt de vormverandering van het bouwperceel met ruimtelijke motieven te onderbouwen.

Reactie

In de ruimtelijke onderbouwing voor deze ontwikkellocatie is in paragraaf 3.2.2 onder 'Afwijkende regels wonen' een nadere toelichting gegeven over het niet langer noodzakelijk zijn van een tweede bedrijfswoning bij de melkveehouderij. In paragraaf 2.2. is aan de hand van ruimtelijke motieven de vormverandering van het bouwperceel onderbouwd.

Dr. de Quayweg 80, De Mortel

Deze ontwikkellocatie verhoudt zich in voldoende mate tot de provinciale ruimtelijke belangen. Wel vraagt de provincie met het oog op het principe van zorgvuldig ruimtegebruik deze ontwikkeling ook in samenhang te bezien met de ontwikkeling op de tegenover gelegen planlocatie Dr. de Quayweg 84 en erop toe te zien dat in zijn totaliteit sprake is en blijft van een aanvaardbare schaal.

Reactie

In het bestemmingsplan wordt geborgd dat sprake is en blijft van een aanvaardbare schaal door het opnemen van afzonderlijke bestemmingsvlakken voor beide locaties, door het daarbinnen opnemen van regels met betrekking tot de maximum oppervlakte bedrijfsbebouwing en door het eisen van een robuuste landschappelijke inpassing rond beide locaties. De aanleg daarvan is als voorwaardelijke verplichting in de regels opgenomen. De landschappelijke inpassingen gaan daarmee als contramallen, die het maximale ruimtebeslag van beide bedrijven bepalen, fungeren.

Dr. de Quayweg 84, De Mortel

Er is sprake van de vestiging van een niet-agrarische functie in de vorm van een paardenhouderij. Daarbij wordt tevens diverse gerelateerde voorzieningen, zoals bijvoorbeeld rijbakken en paddocks. Het bouwperceel wordt hiermee aanzienlijk vergroot. De provincie vraagt zich af of sprake is van een aanvaardbare schaal en of de functie qua aard en schaal passend is in het gebied. De provincie verzoekt de schaal van de ontwikkeling vanuit een goede omgevingskwaliteit met een veilige, gezonde leefomgeving nader in ogenschouw te nemen en te bezien of de ontwikkeling qua omvang, effect op omliggende functies en ontsluiting past in de omgeving. De wijze van bestemmen kan ook specifieker qua functiedifferentiatie en qua plek binnen het bouwperceel.

Los daarvan heeft de provincie opmerkingen over de uitwerking van de kwaliteitsverbetering van het landschap. De provincie vindt de motivering van de hoogte van de investering van de fysieke maatregelen onjuist en niet in overeenstemming met de gemeentelijke regeling. Bij de motivering van de hoogte van de te investeren maatregelen is in de beoogde situatie namelijk uitgegaan van de agrarische bestemmingswaarde, terwijl sprake is van een bedrijfsbestemming. De provincie verzoekt dit aan te passen. Daarbij merkt de provincie op dat de landschappelijke inpassing zoals bij voorliggend plan gevoegd ruimtelijk kwalitatief volstaat, maar dus niet substantieel genoeg is ter uitvoering van de regeling kwaliteitsverbetering van het landschap.

Zoals gezegd verzoekt de provincie deze ontwikkeling in samenhang te bezien met de ontwikkeling aan de De Quayweg 80. De provincie vraagt zich af of sprake is van samenwerking. Er is in ieder geval sprake van een flinke toename in de paardenbranche. De provincie vraagt toe te zien, ook richting toekomst op scheiding van de locaties en de met de paardenhouderijen gepaard gaande voorzieningen.

Reactie

In de toelichting is uitgebreid beschreven dat de ontwikkeling passend is binnen het gebied qua aard en omvang. Het effect op omliggende functies is uitgebreid besproken in de toelichting, evenals de ontsluiting van het plangebied. De wijze van bestemmen is meer specifiek opgenomen in de regels en verbeelding. Er is een bouwvlak toegevoegd, om de aanwezige geconcentreerde ligging van de bebouwing ook richting de toekomst te waarborgen. Daarnaast is een aanduiding opgenomen, die bepaalt dat ter plaatse van de bestaande bedrijfswoning ook enkel de bedrijfswoning is toegestaan.

Bij het waarderen van de gronden is aansluiting gezocht bij de gemeentelijke regeling. In paragraaf 3.2.2 is dit nader gemotiveerd. Bij de wijziging van de bestemming dient gerekend te worden met de bedragen zoals opgenomen in de gemeentelijke 'Handreiking Kwaliteitsverbetering van het landschap Gemert-Bakel. Voor de bestemming 'agrarisch verwant bedrijf' geldt een waarde van € 25,00 /m². Voor een niet agrarisch bedrijf dient beoordeeld te worden of de bedrijfsfunctie passend is op een bedrijventerrein. Hierover is in de handreiking het navolgende opgenomen:

'Bij de ontwikkeling van niet-agrarische functies speelt een rol dat er door het toelaten van deze functies in het buitengebied concurrentievervalsing optreedt ten opzichte van de speciaal voor deze functie ontwikkelde bedrijventerreinen of duurdere grond in de kernen van het stedelijk gebied. Daarom wordt voorgesteld om voor niet-agrarische functies aansluiting te zoeken bij de prijzen van de kavels op bedrijventerreinen in de landelijk regio. De grondprijs van een bedrijfskavel op een bedrijventerrein in Gemert-Bakel = € 125,- per m². Een nuancering van deze prijs naar circa 50 % van deze grondprijs is redelijk omdat de gebruiksmogelijkheden van een perceel in het buitengebied beperkter zijn omdat het alleen om lichte bedrijvigheid mag gaan en de bebouwingsmogelijkheden beperkt(er) zijn.'

Een paardenhouderij is geen functie welke passend is binnen een bedrijventerrein of kern van het stedelijk gebied. Om deze reden wordt voor de waarde van de bestemming 'overige bestemmingen' genomen. De uitstraling van een paardenhouderij is vergelijkbaar met die van een agrarisch bedrijf of agrarisch verwant bedrijf. Met de omzetting van de bestemming en daarmee het van kracht worden van andere bestemmingsregels worden de bouwmogelijkheden ingeperkt van 13.828 m² (80% x van het bestemmingsvlak van de agrarische bedrijfsbestemming van 17.285 m²) naar 7.050 m²(vastgelegd binnen de bedrijfsbestemming).

In het bestemmingsplan wordt geborgd dat sprake is en blijft van een aanvaardbare schaal door het opnemen van afzonderlijke bestemmingsvlakken voor beide locaties, door het daarbinnen opnemen van regels met betrekking tot de maximum oppervlakte bedrijfsbebouwing en door het eisen van een robuuste landschappelijke inpassing rond beide locaties. De aanleg daarvan is als voorwaardelijke verplichting in de regels opgenomen. De landschappelijke inpassingen gaan daarmee als contramallen, die het maximale ruimtebeslag van beide bedrijven bepalen, fungeren.

Fuik 24, Handel

Over deze locatie en het omliggende gebied rondom de Fuik is meermaals overleg met de gemeente gevoerd. Hierbij is de gemeente er -kortweg- op gewezen ontwikkelingen in het gebied in samenhang met elkaar te bezien, een ontwikkelingsrichting te bepalen voor het gebied en zorg te dragen voor een goede balans in ruimtebeslag en landschappelijke inpassing. Met dit plan wordt vooruitlopend hierop alsnog enkel voor deze locatie een bestemmingswijziging doorgevoerd. De provincie attendeert de gemeente erop dat hiermee afbreuk wordt gedaan aan integrale ontwikkelmogelijkheden van het gebied en eventuele speelruimte om knelpunten op locaties elders in het gebied op te lossen wordt beperkt. Specifiek ten aanzien van deze locatie heeft de provincie eerder in de ambtelijke overleggen aangegeven dat de uitbreiding in het NNB plaatsvindt en dat ontwikkelingen in NNB op grond van de Iov zijn uitgesloten. Hierbij merkt de provincie op dat de bouw- en gebruiksactiviteiten in het NNB reeds hebben plaatsgevonden. Hierdoor is een onomkeerbare situatie ontstaan waarbij de aantasting van de ecologische waarden van het NNB niet meer is terug te draaien. De provincie betreurt deze situatie en vindt de handelingswijze onaanvaardbaar.

Gelet op de zorgplicht voor een goede omgevingskwaliteit en gezien de verrommeling ter plaatse door onder meer buitenopslag, is de provincie ervan overtuigd dat een ruimtelijke kwaliteitsslag nodig is. De provincie is er echter nog niet van overtuigd dat dat via de in voorliggend plan beoogde wijze gestalte dient te krijgen en dat hiervoor inbreuk op het NNB dient te worden gemaakt. Hierbij speelt mee dat de provincie geen inzicht heeft in de ontwikkelingsrichting van het gebied. De provincie vindt dat deze ontwikkeling nog niet de juiste balans bevat tussen ruimtebeslag en de omgevingswaarden. De provincie verzoekt tenminste oplossingen te vinden binnen het vigerend bouwperceel en in de ontwikkelingsrichting te onderbouwen aan de hand van een gebiedsgerichte benadering dat de beoogde functie qua aard en omvang en gelet op de effecten passend is in zijn omgeving. De vestiging op een functioneel daartoe ingericht bedrijventerrein acht de provincie meer voor de hand liggen.

Gelet op het vorenstaande zal de provincie vooralsnog niet positief adviseren ten aanzien van een eventueel in te dienen verzoek om wijziging van de grenzen van NNB.

Los hiervan kan de provincie niet instemmen met de uitwerking van de kwaliteitsverbetering van het landschap, aangezien een deel van fysieke maatregelen noodgedwongen in NNB plaatsvindt en de provincie dat in deze situatie niet als kwaliteitsverbetering van het landschap aanmerkt. Bovendien wordt voor een deel via een passende financiële bijdrage in het gemeentelijk landschapsfonds in de fysieke tegenprestatie voorzien. Deze bijdrage is niet verzekerd.

Tot slot wordt voorzien in de nieuwbouw van een bedrijfswoning. De provincie verzoekt de noodzaak van deze bedrijfswoning gelet op de aard van de bedrijfsvoering te onderbouwen, dan wel aan te tonen dat sprake is van een bestaand recht.

De provincie raadt aan deze ontwikkeling in de huidige vorm niet verder in procedure te brengen.

Reactie

De gemeente onderschrijft dat een gebiedsgerichte ontwikkeling van het gebied De Fuik de voorkeur heeft. Echter hebben pogingen daartoe, mede gelet op het grote aantal betrokkenen, tot op heden niet tot het gewenste resultaat geleid. Initiatiefnemer wil ondertussen toch verder met de plannen voor zijn locatie, mede om te voorkomen dat de komende jaren de buitenopslag, zoals deze nu plaatsvindt, moet worden gecontinueerd. De gemeente kiest er daarom voor het voorstel tot uitbreiden van de bedrijfsbebouwing, om alles inpandig te kunnen brengen, en daarmee ook het uitbreiden van de bedrijfsbestemming verder voort te zetten.

Naar aanleiding van de vooroverlegreactie zijn paragraaf 3.2.2.6, 3.2.2.7 en 3.2.2.8 van de ruimtelijke onderbouwing nader aangevuld. De beoogde herbegrenzing vindt plaats op een plek waar nu geen sprake is van gerealiseerd NNB. Feitelijk gaan hier dan ook geen waarden verloren. Niet duidelijk te herleiden is waar de huidige begrenzing vandaan komt, daar ter plaatse geen sprake is of is geweest van natuurwaarden, en dit ook geen verbinding kent met nabijgelegen natuur. Daadwerkelijke inrichting van dit perceel rondom de bestaande bebouwing als NNB, ligt dan ook niet in de logische lijn der verwachting. Om de strijdige situatie ter plaatse, voornamelijk de huidige buitenopslag, op te lossen wordt voorgesteld om de bedrijfsbebouwing te vergroten. Dit tezamen met de beoogde forse landschappelijke inpassing van de locatie zelf, zorgt voor een aanzienlijke kwaliteitsverbetering ter plaatse, wat enkel ten goede komt aan de omgeving.

Voorgesteld wordt daartoe dan ook het niet-gerealiseerde NNB ter plaatse te compenseren. Daar in de directe omgeving geen zogenoemde ‘compensatiegronden’ zijn gelegen waarop kan worden gecompenseerd, wordt voorgesteld om een forse financiële compensatie te leveren. Op deze manier kan GS deze bijdrage zelf elders investeren om het NNB elders in te richten. Feitelijk gaan hiermee geen waarden verloren en kan elders het NNB worden ingericht. Afspraken hierover worden vastgelegd tussen initiatiefnemer en gemeente en/of provincie. Op de Verbeelding is de aanduiding ‘te verwijderen NNB’ inzichtelijk. Na het ontwerpbestemmingsplan zal een formele aanvraag voor herbegrenzing worden gedaan. Gemotiveerd zal zijn dat voldaan wordt aan de voorwaarden voor herbegrenzing.

Voor wat betreft de realisatie van de bedrijfswoning is gemotiveerd dat in de huidige situatie reeds sprake is van een bedrijfswoning. Deze bedrijfswoning is ook bestemmingsplanmatig toegestaan, waarmee planologisch geen extra bedrijfswoning wordt toegestaan. Feitelijk wordt deze verplaatst van
inpandig naar vrijstaand, maar bestemmingsplanmatig wijzigt hier niets. Tekstueel is dit in de ruimtelijke onderbouwing verduidelijkt ten opzichte van het voorontwerp.

Over de vooroverlegreactie is contact gezocht met de provincie. De provincie heeft toegezegd om samen met de gemeente in overleg te gaan met de initiatiefnemer over de verschillende aspecten van de vooroverlegreactie. Een belangrijk onderdeel hierbij is de compensatie van de NNB. Initiatiefnemer zou hiervoor gronden op het oog hebben die aangekocht kunnen worden. Met de initiatiefnemer is daarop de volgende afspraak gemaakt: het plan Fuik 24 gaat met een verbeterde onderbouwing mee in het ontwerpbestemmingsplan Buitengebied, herziening december 2023. Wanneer de provincie een zienswijze tegen dit ontwerpbestemmingsplan indient, en er niet tegemoet gekomen kan worden aan deze zienswijze, dan zal het bestemmingsplan voor de locatie Fuik 24 niet worden vastgesteld.

Kapelweg ong., Handel

Op grond van artikel 3.79 Iov dient de ontwikkeling van een ruimte-voor-ruimte kavel door of vanwege de Ontwikkelingsmaatschappij ruimte voor ruimte plaats te vinden, gelet op de in het verleden behaalde aanzienlijke winst van omgevingskwaliteit. In verband hiermee merkt de provincie op dat het bewijsstuk van de aanschaf van een ruimte voor ruimte titel nog ontbreekt en daarmee nog niet wordt voorzien in de winst voor de omgevingskwaliteit.

Reactie

De bewijsstukken voor de ruimte-voor-ruimte woning worden aan het bestemmingsplan toegevoegd.

Koksedijk 6-10, Gemert

Deze ontwikkeling verhoudt zich in voldoende mate tot de provinciale ruimtelijke belangen, zodra voldoende wordt gemotiveerd dat de tweede bedrijfswoning niet langer benodigd is voor de bedrijfsvoering van de beoogde niet-agrarische functie.

Reactie

In de toelichting is onderbouwd dat een tweede bedrijfswoning niet langer benodigd is voor de bedrijfsvoering.

Pandelaar 75, Gemert

Deze ontwikkeling verhoudt zich in voldoende mate tot de provinciale ruimtelijke belangen, mede gezien de ligging van de planlocatie in bestaand Stedelijk gebied.

Reactie

De mededeling wordt voor kennisgeving aangenomen.

Peeldijk 43, Handel

Het plan voorziet ter hoogte van deze planlocatie in de mogelijkheden van permanente teeltondersteunende voorzieningen met een omvang van 6,3 ha. Een ruimere oppervlakte dan 3 ha ten behoeve van teeltondersteunende voorzieningen is bij uitzondering onder voorwaarden mogelijk. Deze voorwaarden zijn benoemd in artikel 3.54, lid 2 Iov. Een onderbouwing aan de hand van de in dat artikel genoemde voorwaarden ontbreekt in het geheel. Verder wijst de provincie erop om aangaande deze ontwikkeling expliciet advies aan te vragen, dan wel in overleg te treden met het waterschap onder verwijzing van de onder artikel 3.54, lid 2 Iov genoemde aspecten.

Reactie

Een onderbouwing aan de hand van artikel 3.54, lid 2 Iov is aan de toelichting toegevoegd.

Voor deze ontwikkeling is ook advies gevraagd bij het waterschap Aa en Maas (zie volgende paragraaf). Het waterschap heeft geen opmerkingen bij het grotere oppervlak aan teeltondersteunende voorzieningen.

Stippelbergseweg 55, De Mortel

Eerder heeft de provincie bij brief van 28 april 2022 gereageerd op het voorontwerp bestemmingsplan ‘Gemert-Bakel Buitengebied, herziening juni 2022’. In dat plan was de ontwikkeling aan de Stippelbergseweg 55 ook reeds opgenomen. In het nu voorliggende plan wordt voorzien in enige landschappelijke inpassing, maar ook in een groter oppervlak van de buiten het bouwperceel in Natuur Netwerk Brabant(NNB) gerealiseerde garage. Daarnaast vindt een beschrijving plaats over de wijze waarop beoogd wordt te voorzien in het vereiste van compensatie. Verder blijft de ontwikkeling nagenoeg gelijk. Aangezien de belangen van de bescherming van het NNB in het geding zijn en met name voor de garage redelijkerwijs alternatieven buiten het NNB (en binnen het vigerend bouwperceel) aanwezig zijn, blijft vooralsnog de eerder toegestuurde reactie gestand en dient deze hier als aangehaald te worden beschouwd. De provincie acht nader overleg over deze ontwikkeling wenselijk voordat deze ontwikkeling verder in procedure wordt gebracht.

Reactie

De opmerking dat sprake is van een onomkeerbare situatie, die de provincie liever niet had gezien, wordt voor kennisgeving aangenomen. Ook de gemeente had dit liever anders gezien.

De voor de herbegrenzing noodzakelijke compensatie, fysiek of financieel, is uitgewerkt in paragraaf 3.2.2 van de ruimtelijke onderbouwing voor deze locatie. Daarbij is van belang dat sprake is van een herbegrenzing om een kennelijke onjuistheid op de verbeelding van de Iov te repareren. De in de Iov opgenomen uitsparing in het NNB komt niet overeen met de feitelijke ligging van de woning en het woonperceel. De uitsparing wordt verplaatst naar het eigenlijke woonperceel, waarbij de woning en de bijbehorende garage binnen de uitsparing worden gebracht. De overige aanwezige bebouwing wordt gesloopt. De omvang van de uitsparing neemt daarbij af. De verschuiving heeft echter als consequentie dat een deel van het bestaande NNB komt te vervallen. Daarvoor is compensatie noodzakelijk. Gelet op de beperkte omvang van het te compenseren gebied NNB, heeft initiatiefnemer voor een financiële compensatie gekozen. Fysieke compensatie zou in dit geval nauwelijks een robuuste bijdrage leveren aan de natuurdoelen van het betreffende onderdeel van het NNB. De financiële compensatie is berekend op € 2.443,-. De financiële compensatie wordt geborgd door een tussen de initiatiefnemer en de provincie te sluiten overeenkomst. Op de gronden die aan het NNB worden toegevoegd, vindt een passende herinrichting plaats, die recht doet aan de natuurdoelen van het NNB ter plaatse. In paragraaf 3.2.2 van de ruimtelijke onderbouwing voor deze locatie is uitgewerkt op welke wijze de uitruil van de NNB plaatsvindt. Daarbij is ook duidelijk gemaakt dat niet alleen sprake is van uitruil, maar ook van uitbreiding van het NNB.

De voorgestelde landschappelijke inpassing acht de provincie passend. Ook deze opmerking wordt voor kennisgeving aangenomen. De landschappelijke inpassing blijft onderdeel uitmaken van het plan.

Over de locatie Stippelbergseweg 55 heeft het gevraagde nader overleg met de provincie plaatsgevonden. Bovenstaande reactie is op de uitkomsten van dat overleg gebaseerd.

Weijer 3-5 en Bocht 20, Milheeze

Ten aanzien van de omvang van bouwpercelen ten behoeve burgerwoningen zijn geen concrete bepalingen opgenomen. Wel is uiteraard het principe van zorgvuldig ruimtegebruik aan de orde. Met het oog daarop attendeert de provincie erop de ontwikkelingen kritisch te beschouwen voor wat betreft de concentratie van gebouwen en voorzieningen, waar mogelijk binnen de vigerende bouwpercelen.

Ten aanzien van de ontwikkeling aan de Bocht 20 verzoekt de provincie op te nemen dat ter plaatse enkel een grondgebonden teeltbedrijf is toegestaan en de mogelijkheid voor een veehouderij en overig agrarisch bedrijf in de Regels expliciet uit te sluiten.

Reactie

Bij de situering van de nieuw op te richten bebouwing is als uitgangspunt genomen dat het ruimtebeslag zo compact mogelijk is. Daarbij is wel van belang dat deels sprake is van bestaande bebouwing en een bestaand zwembad, die binnen het bestemmingsvlak moeten worden gebracht. De ligging daarvan is mede bepalend voor de vorm van het bestemmingsvlak. Daarnaast is bepalend de ligging van de bestaande inritten, in verband met de bereikbaarheid van de bijbehorende bouwwerken. De omvang van de bestemmingsvlakken die hiervan het gevolg zijn, zijn vergelijkbaar met de omvang van andere bestemmingsvlakken voor burgerwoningen in het buitengebied.

De mogelijkheid voor een veehouderij en overig agrarisch bedrijf op de locatie Bocht 20 wordt uitgesloten, waardoor voor deze locatie enkel de mogelijkheid voor een (vollegronds) teeltbedrijf resteert.

Zand ong., Bakel

Op grond van artikel 3.79 Iov dient de ontwikkeling van een ruimte-voor-ruimte kavel door of vanwege de Ontwikkelingsmaatschappij ruimte voor ruimte plaats te vinden, gelet op de in het verleden behaalde aanzienlijke winst van omgevingskwaliteit. In verband hiermee merkt de provincie op dat het bewijsstuk van de aanschaf van een ruimte voor ruimte titel nog ontbreekt en daarmee nog niet wordt voorzien in de winst voor de omgevingskwaliteit.

De provincie heeft geconstateerd dat landschappelijke inpassing plaatsvindt en dat daartoe op de daarvoor beoogde gronden de aanduiding ‘Tuin’ wordt toegekend. In verband met evenwichtige toedeling van functies en de borging van de inpassing oppert de provincie een passender bestemming.

Reactie

De bewijsstukken voor de ruimte-voor-ruimte woning worden aan het bestemmingsplan toegevoegd.

Aan de gronden met de landschappelijke inpassing wordt de bestemming 'Groen' toegekend, met de aanduiding 'specifieke vorm van groen – landschappelijke inpassing'.

Snelle Loop - Serisweg, Gemert

Het betreft het herstellen van een omissie. De provinciale belangen zijn niet in het geding.

Geluidzone De Peel

Het betreft het herstellen van een omissie. De provinciale belangen zijn niet in het geding.

Esdonk 32, Gemert

De provincie is niet overtuigd dat er sprake is van een omissie. De Toelichting van het wijzigingsplan ‘Esdonk 32, Gemert’ in combinatie met het daarbij gevoegde landschappelijk inpassingsplan tonen juist aan dat het bouwperceel correct is opgenomen. Op basis van luchtfoto’s constateert de provincie dat bebouwing is gerealiseerd daar waar de landschappelijke inpassing plaats had moeten vinden. Gelet op het vorenstaande is de provincie van mening dat deze ontwikkeling als uitbreiding van een overig-agrarisch bedrijf aangemerkt en als zodanig onderbouwd moet worden. In dat geval merkt de provincie, vooruitlopend op nadere toelichting op dit planonderdeel, op dat de uitwerking, nadere motivatie en borging van de kwaliteitsverbetering van het landschap ontbreekt. De provincie verzoekt dit planonderdeel als volwaardige ruimtelijke ontwikkeling te onderbouwen en uit te werken.

Reactie

In de toelichting van het plan is met een nadere onderbouwing aangetoond, dat wel sprake is van een omissie. Daarmee is kwaliteitsverbetering van het landschap niet aan de orde.

Kreijtenberg 4a, Milheeze

Ook ten aanzien van dit planonderdeel is de provincie niet overtuigd dat het gaat om een omissie. In het vigerende en de drie daarvoor geldende bestemmingsplannen is nimmer een regeling opgenomen die een dergelijke inhoudsmaat toestond. Het betreft dus wat de provincie betreft de vergroting van de inhoudsmaat van de woning. In de Iov zijn geen bepalingen opgenomen ten aanzien van de inhoudsmaat van burgerwoningen. De provincie vertrouwt erop dat de gemeente daarmee bij een evenwichtige toedeling van functies zorgvuldig mee omgaat. Wel verzoekt de provincie deze ontwikkeling te onderbouwen aan de hand van het gemeentelijke kader ter uitwerking van de kwaliteitsverbetering van het landschap.

Reactie

De constatering van de provincie is niet correct. In het bestemmingsplan "Milheeze-Noord", dat voor het eerst de mogelijkheid tot de bouw van de woning (BIO-woning) op de locatie Kreijtenberg 4a juridisch vastlegde, zijn de bouwmogelijkheden door middel van een bouwvlak met bouwaanduiding 'vrijstaand' en goot- en bouwhoogte bepaald. Het oppervlak van de binnen het bouwvlak ingetekende bouwaanduiding bedroeg 156 m². De in de regels vastgelegde goot- en bouwhoogte bedroegen 3,5 m respectievelijk 10 m. Uitgaande van een zadeldak is binnen deze grenzen de bouw van een woning mogelijk ,met een maximum inhoud van circa 1.050 m3. Bij de achtereenvolgende vertalingen van deze bouwregelingen in de bestemmingsplannen "Buitengebied Gemert-Bakel 2013", "Buitengebied juli 2016" en "Gemert-Bakel Buitengebied 2017" is nagelaten deze omvang van de bouwmogelijkheden adequaat over te nemen en wederom vast te leggen. Hiervoor is in de diverse toelichtingen bij genoemde bestemmingsplannen geen onderbouwing en/of motivering opgenomen. Op basis daarvan blijft de gemeente van mening dat sprake is van een omissie en dat onbedoeld de bouwmogelijkheden zijn verkleind. Deze omissie wordt met deze bestemmingsplanherziening ongedaan gemaakt. Het vragen van kwaliteitsverbetering van het landschap is daarbij niet aan de orde.

5.2.2 Waterschap Aa en Maas, reactie 14 september 2023

Op 14 september 2023 heeft het waterschap Aa en Maas geregeerd op het voorontwerp bestemmingsplan Gemert-Bakel Buitengebied, herziening december 2023. Bij een aantal van de opgenomen ontwikkelingen heeft het waterschap opmerkingen gemaakt en vragen gesteld. Deze zijn hierna weergegeven.

Fuik 24, Handel

Op basis van gemeentelijk beleid wordt voorzien in een waterberging van circa 138 m3. In de toelichting wordt aangegeven dat gedacht wordt aan een wadi achter op het perceel, binnen het NNB. Op de verbeelding en het landschappelijk inrichtingsplan is de NNB aangeduid als bos. Hoe verhoudt zich dit met een wadi? Hoe diep kan de wadi/waterberging dan zijn? Hoeveel ruimtebeslag heeft de waterberging dan? En hoe wordt voorkomen dat de waterberging capaciteit verliest door bijvoorbeeld opeenhoping van afvallende bladeren?

Het waterschap viel nog op dat  in de legenda van de verbeelding de aanduiding 'overige zone – in interim omgevingsverordening te verwijderen NNB' is opgenomen. Deze aanduiding is echter niet terug te vinden op de kaart. (op figuur 13 van de ruimtelijke onderbouwing staat de aanduiding wel).

Reactie

In paragraaf 5.2 van de ruimtelijke onderbouwing voor deze locatie is de wijze van waterberging nader beschreven. De benodigde capaciteit is daarbij bepaald, alsmede de wijze waarop daarin kan worden voorzien. Daarbij wordt gedacht aan een combinatie van een infiltratieriool en een wadi (als overloopvoorziening).

Pandelaar 75, Gemert

De beoogde woning is gelegen in een gebied dat in het bestemmingsplan is aangeduid als “Vrijwaringszone - invloedszone Peelrandbreuk”. Bouwen in deze zone is alleen toegestaan als van te voren advies is ingewonnen bij de provincie en het waterschap. Gezien de al aanwezige bebouwing, de ondiepe ontgraving die benodigd is voor de fundering van de woning en de aanleg van de wadi boven GHG zullen de hydrologische omstandigheden ter plaatse niet worden aangetast en is er vanuit hydrologisch oogpunt geen bezwaar tegen de voorgenomen ontwikkeling.

Reactie

Het voorontwerp bestemmingsplan is voor advies voorgelegd aan provincie en waterschap. Zowel provincie als waterschap geven aan met de ontwikkeling in te kunnen stemmen.

Peeldijk 43, Handel

Toename verhard oppervlak

Uit de toelichting komt niet duidelijk naar voren of er een toename van het verhard oppervlak is en hoe er om wordt gegaan met het hemelwater. Enerzijds wordt gesteld dat: opvang van het hemelwater dat valt op de daken van de dierenverblijven (zowel in situatie 1 als situatie 2), zal worden opgevangen in een watersilo aan de achterzijde van de bedrijfsgebouwen. Dit water zal worden ingezet ten behoeve van de aardbeienteelt. Er wordt echter aangegeven dat de bedrijfsgebouwen worden gesloopt, dit is onduidelijk. Daarnaast staat in hoofdstuk 3 van het landschappelijk inpassingsplan: centraal op het perceel wordt een wadi ontwikkeld met een oppervlakte van 190 m2 m de gewenste 60 mm per m2 verharding op te vangen. Waarop is deze 190 m2 op gebaseerd?

Gevraagd wordt dan ook om een nadere toelichting van het verhard oppervlak in de bestaande en toekomstige situatie, de waterbergingsopgave die hierdoor mogelijk ontstaat op basis van de Keur of gemeentelijk beleid en hoe deze ingevuld kan worden.

A-watergang.

In de waterparagraaf mist een beschrijving van het oppervlaktewatersysteem. Het perceel grenst in het zuiden aan een A-watergang. Ten behoeve van beheer- en onderhoud geldt aan weerszijde van de A-watergang een beschermingszone van  5 meter waar regels vanuit de Keur gelden.  Deze zone is op de verbeelding aangegeven als  'vrijwaringszone – waterloop'. Graag zou het waterschap dit ook in de toelichting terug zien.

Regionaal waterbergingsgebied

In paragraaf 4.8 wordt onder het kopje 'Waterkwantiteit' verwezen naar de consequenties voor het regionale waterbergingsgebied. Peeldijk 43 is niet gelegen in een regionaal waterbergingsgebied zoals aangewezen in de interim-omgevingsverordening Noord-Brabant.

GHG

Onder het kopje grondwaterstanden staat aangegeven dat de GHG niet relevant is. Omdat er in het landschappelijke inpassingsplan een wadi is opgenomen kan dit wel relevant zijn aangezien de bodem van een waterbergingsvoorziening boven GHG dient te worden aangelegd.

Reactie

Er kan sprake zijn van een toename in verhard oppervlak, binnen het bouwvlak zal een nieuw bedrijfsgebouw worden gebouwd. Bij de vergunningaanvraag zal worden geborgd dat deze hydrologisch neutraal wordt ontwikkeld, bovendien wordt het water zoveel mogelijk opgevangen zodat dit hergebruikt kan worden voor de aardbeienteelt. Dit is toegevoegd in paragraaf 4.8 van de ruimtelijke onderbouwing voor deze locatie.

Rekening gehouden dient te worden met de A-watergang en de bijbehorende ‘vrijwaringszone – waterloop’ ten zuiden van de planlocatie. De planlocatie is niet gelegen binnen de provinciale aanduiding ‘Regionaal waterbergingsgebied. Paragraaf 4.8 van de ruimtelijke onderbouwing is naar aanleiding van deze opmerkingen aangepast.

Vanwege het opnemen van een wadi in het planvoornemen voor de opvang en infiltratie van overtollig hemelwater dient de GHG beschouwd te worden. Een wadi dient immers boven de GHG te worden aangelegd. De GHG wordt eveneens behandeld in paragraaf 4.8 van de ruimtelijke onderbouwing.

Stippelbergseweg 55, De Mortel

Er nog wordt verwezen naar het oude waterbeheerplan. Inmiddels is het waterbeheerplan 2022-2027 vastgesteld.

Reactie

In de toelichting wordt verwezen naar het nieuwe waterbeheerplan.

Weijer 3-5 en Bocht 20, Milheeze

A-watergang

In figuur 24 van de ROB is de ligging van de oppervlaktewateren aangegeven. Hierop is de A-watergang met beschermingszones te zien. Aangegeven wordt dat deze watergang inclusief beschermgingszone op voldoende afstand is gelegen. Het waterschap wijst erop dat in de beschermingszone regels vanuit de Keur gelden die er op gericht zijn de zone vrij te houden van obstakels ten behoeve van het beheer en onderhoud van de watergang. In het landschappelijk inpassingsplan van Weijer 5 worden een aantal landschapsbomen en knotwilgen gepland in de buurt van de watergang.  In het landschappelijk inpassingsplan van Bocht 20 wordt aan de zuidzijde een struweelbeplanting ingetekend. Bij beiden is niet duidelijk of die beplanting is gelegen in de 5 meter zone. Het waterschap vraagt de beplanting buiten de 5 meter te plaatsen. Indien de beplanting wel binnen de 5 meter zone zal komen te liggen dan moet hier een vergunning voor worden aangevraagd. De regels hiervoor zijn opgenomen in beleidsregel 3 van de Keur: “werken en objecten in de watergang en beschermingszone”. In het kort komt het erop neer dat beplanting alleen wordt toegestaan als het onderhoud er niet door wordt belemmerd of als het onderhoud van één zijde kan worden uitgevoerd en dit middels zakelijk recht wordt vastgelegd.

Profiel van vrije ruimte

In figuur 24 is aansluitend aan de watergang ook het 'profiel van vrije ruimte” aangegeven. In het voorontwerp is een nieuw bijgebouw ingetekend binnen het profiel van vrije ruimte. Het profiel van vrije ruimte is bedoeld om ruimte vrij te houden voor toekomstige ontwikkeling, bijvoorbeeld beekherstel van de nabijgelegen A-watergang. Voor het oprichten van een bijgebouw binnen het profiel van vrije ruimte is een watervergunning nodig. Vandaar het verzoek om deze vergunningplicht te benoemen in de plantoelichting en het advies om tijdig het vergunningverleningsproces op te starten.

Oppervlakte waterberging

De berekening van de oppervlakte van de benodigde waterberging lijkt niet helemaal te kloppen. Zo wordt voor de Weijer 5 uitgegaan van 300 m2 terwijl in een eerdere tabel wordt aangegeven dat de toename 150 m2 is. Voor Bocht 20 wordt een oppervlakte van 102 m2 met een capaciteit van 51 m3 berekend. (In het LIP 130 m2 met een capaciteit van 65 m3). Dit houdt in dat de waterschijf (boven GHG)  dan 50 cm zou zijn. Eerder wordt aangegeven dat de GHG 40 cm is en dat er met een waking van 10 cm rekening wordt gehouden. De benodigde oppervlak is dan groter. Overigens zie het waterschap dat voor het inschatten van de GHG en GLG de kaarten uit de bodematlas van de provincie zijn gebruikt. Actuelere en gedetailleerdere gegevens zijn te vinden via de ondergrondmodellen van de wettelijke Basis Registratie Ondergrond.

Reactie

Naar aanleiding van de reactie is het landschappelijk inpassingsplan aangepast. Bij de locatie Bocht 20 wordt beplanting gerealiseerd binnen de 5 meter zone. In de ruimtelijke onderbouwing voor deze locatie is gemotiveerd dat het onderhoud van de A-watergang hierdoor niet belemmerd wordt. Tevens is beschreven dat dit middels zakelijk recht wordt vastgelegd.

In de ruimtelijke onderbouwing is beschreven dat een watervergunning dient te worden aangevraagd voor het oprichten van bijgebouwen binnen het profiel van vrije ruimte.

Naar aanleiding van de reactie is de berekening aangepast. Tevens zijn de ondergrondmodellen geraadpleegd van de wettelijke Basis Registratie Ondergrond.

Zand ong., Bakel

In paragraaf 5.2.1 wordt het beleid van het waterschap toegelicht, er wordt daarbij nog uitgegaan van het oude waterbeheerplan (2016-2021 in plaats van 2022-2027) en een oude norm voor toename verhard oppervlak (2000 m2 in plaats van 500 m2).

Reactie

In de toelichting wordt verwezen naar het nieuwe waterbeheerplan en de nieuwe norm.

5.2.3 Ambtshalve aanpassingen

Aerius-berekeningen

Het is wettelijk verplicht om bij vergunningverlening uit te gaan van de actuele versie van AERIUS. Vanaf 5 oktober 2023 is het wettelijk verplicht om AERIUS Calculator versie 2023 te gebruiken voor toestemmingverlening. De uitgevoerde berekeningen zijn hierop aangepast.

Tekstuele/redactionele aanpassingen

In de toelichting en regels is een aantal tekstuele en/of redactionele verbeteringen doorgevoerd teneinde de leesbaarheid te vergroten en onduidelijkheden te verhelpen.

5.3 Zienswijzen

5.4 Ambtshalve aanpassingen