direct naar inhoud van Toelichting
Plan: Gemert-Bakel Buitengebied, herziening oktober 2020
Status: ontwerp
Plantype: bestemmingsplan
IMRO-idn: NL.IMRO.1652.Buitengebied102020-ON01

Toelichting

Hoofdstuk 1 Achtergrond en opzet

1.1 Aanleiding

Sinds het verschijnen van het integrale bestemmingsplan "Gemert-Bakel Buitengebied 2017", hebben in ons buitengebied al weer planologische ontwikkelingen plaatsgevonden. Na de integrale herziening op dit bestemmingsplan, behoeft het plan wederom een herziening vanwege ontwikkelingen die niet rechtstreeks mogelijk zijn in het bestemmingsplan. Dit bestemmingsplan voorziet in deze ontwikkelingen.Het beleid en de planregels uit het 'moederplan' voor het buitengebied vormen het uitgangspunt bij de ontwikkelingen.

In dit bestemmingsplan gaat het om de volgende locaties:

  • 1. Burgemeester van de Wildenberglaan 46a in De Rips (ontwikkeling):

Uitbreiden van een bestaand bedrijfsperceel;

  • 2. Dakworm ong. in Bakel (ontwikkeling):

Ontwikkeling van één Ruimte-voor-Ruimte woning;

  • 3. Leemskuilendijk 4 in Bakel (ontwikkeling):

Extra kwaliteitsverbetering in het buitengebied bij Geneneind 6 te Bakel ten behoeve van ontwikkeling Leemskuilendijk 4 in Bakel. Ter plaatse worden enkele bedrijfsgebouwen gesloopt en wordt de intensieve veehouderij functie uitgesloten;

  • 4. Rootvlaas 2 in Bakel (ontwikkeling):

Beëindigen en saneren intensieve veehouderij en omschakelen naar fourage(handels)bedrijf met behoud van de akkerbouwtak als nevenactiviteit;

  • 5. Wijnboomlaan 14 in Gemert (ontwikkeling):

Beëindigen en saneren intensieve veehouderij en bouwen van drie ruimte-voor-ruimte woningen.

  • 6. Kaweide 10 in Milheeze (ontwikkeling):

Uitbreiden van het bedrijfsperceel en de bouwmogelijkheden daarbinnen van een loonbedrijf;

  • 7. Pandelaar 30 in Gemert (ontwikkeling):

De bedrijfsvorm voor gehele locatie omschakelen naar recreatie en de veehouderijtak definitief te beëindigen;

Daarnaast moet het bestemmingsplan op enkele locaties hersteld worden. Abusievelijk zijn bij het opstellen van het bestemmingsplan "Gemert-Bakel Buitengebied 2017" bestemmingen en/of aanduidingen uit de voorheen geldende bestemmingsregeling niet overgenomen.

In dit bestemmingsplan gaat het om de volgende locaties:

  • 8. Aarlesche vijver in Bakel (herstelactie);

Terugbrengen abusievelijk vervallen bestemming 'Water' voor bestaande vijver;

  • 9. Geerdenhof ongenummerd in Milheeze (herstelactie):

Terugbrengen abusievelijk vervallen woningbouwmogelijkheid en aanpassen ligging groenvoorzieningen in verband met de beleefbaarheid daarvan;

  • 10. Hoberg 2a in Milheeze (herstelactie):

Terugbrengen abusievelijk vervallen aanduiding 'monument' voor Molen Laurentia;

  • 11. Sparrenweg ong. in Gemert (herstelactie):

Bestemmen bestaand landschapselement met natuurlijke waarde;

  • 12. Ven 3 in Bakel;

Terugbrengen abusievelijk vervallen aanduiding '2 woningen'.

1.2 Planopzet

In het volgende hoofdstuk (2) is in het kort algemeen beleid verwoord dat voor alle plannen geldend is. Hierbij dient gedacht te worden aan het algemene rijksbeleid en provinciaal beleid. In een separate bijlage is dit beleid nader uitgewerkt. Specifieke aspecten van dit beleid worden bij het project zelf benoemd.

Voor de planontwikkelingen is in hoofdstuk 3 een korte toelichting opgenomen. De situatie wordt kort omschreven en aangegeven wordt wat de plannen zijn. De uitgebreide ruimtelijke onderbouwing, eventueel bijbehorende adviezen, (aanvullende) onderzoeken etc. zijn separaat als bijlagen bij dit bestemmingsplan gevoegd. Deze documenten zijn onlosmakelijk verbonden met onderliggend bestemmingsplan. Uit deze documenten blijkt dat de plannen voldoen aan een goede ruimtelijke ordening. In deze documenten wordt ook het beleid uitvoeriger, in relatie tot de plannen, besproken.

Hoofdstuk 4 van deze toelichting gaat in op de algemene haalbaarheid van dit bestemmingsplan.

In hoofdstuk 5 is ten slotte ruimte opgenomen voor het vooroverleg; de resultaten en verwerking van zienswijzen; en eventuele ambtshalve aanpassingen.

Hoofdstuk 2 Beleid

Bij het opstellen van het bestemmingsplan moet worden voldaan aan de van toepassing zijnde wet- en regelgeving op Rijks-, provinciaal en gemeentelijk niveau. In dit hoofdstuk worden de van toepassing zijnde beleidsstukken benoemd en wordt een samenvatting gegeven van de belangrijkste beleidskaders. Een uitgebreide beschrijving van deze en overige beleidsstukken is opgenomen in bijlage 1.

2.1 Rijksbeleid

2.1.1 Structuurvisie Infrastructuur en Ruimte (SVIR) 2012

Op 13 maart 2012 is de Structuurvisie Infrastructuur en Ruimte (SVIR) van kracht geworden. De aanleiding voor het opstellen van deze structuurvisie was gelegen in het feit dat er nieuwe politieke accenten waren gelegd en dat er sprake was veranderende omstandigheden, zoals de economische crisis, klimaatverandering en toenemende regionale verschillen. Dit laatste onder andere omdat groei, stagnatie en krimp gelijktijdig plaatsvinden.

Enkele doelen uit de SVIR hebben een directe doorwerking op het buitengebied van Gemert-Bakel:

  • verbeteren van de milieukwaliteit (lucht, bodem, water) en bescherming tegen geluidsoverlast en externe veiligheidsrisico’s;
  • ruimte voor behoud en versterking van (inter)nationale unieke cultuurhistorische en natuurlijke kwaliteiten;
  • ruimte voor een nationaal netwerk van natuur voor het overleven en ontwikkelen van flora en faunasoorten.

In dit bestemmingsplan zijn geen ontwikkelingen voorzien die de Rijksbelangen op milieugebied of natuurgebied kunnen aantasten. De natuurlijke en cultuurhistorische waarden in dit plan zijn in voldoende mate verzekerd door de verschillende gebiedsbestemmingen en gebiedsaanduidingen.

Tevens zijn op rijksniveau de volgende wettelijke- en beleidskaders van belang voor dit bestemmingsplan:

  • Barro/AMvB Ruimte:

de nationale belangen uit SVIR die juridische borging vragen, zijn uitgewerkt in het Besluit algemene regels ruimtelijke ordening (Barro). Het Barro is ook wel bekend als de AMvB Ruimte. Het Besluit geeft de juridische kaders die nodig zijn om het vigerend ruimtelijk rijksbeleid te borgen. De Regeling algemene regels ruimtelijke ordening (Rarro) is gebaseerd op het Barro;

  • Bro (ladder voor duurzame verstedelijking):

Het Besluit ruimtelijke ordening (Bro) bevat de uitwerking van bepalingen uit de Wet ruimtelijke ordening (Wro). Op 1 oktober 2012 is het Besluit ruimtelijke ordening (Bro) gewijzigd en is ‘de ladder voor duurzame verstedelijking’ daaraan toegevoegd. Doel van de ladder voor duurzame verstedelijking is een goede ruimtelijke ordening door een optimale benutting van de ruimte in stedelijke gebieden.

Deze beleidskaders zijn nader beschreven in bijlage 1.

2.2 Provinciaal beleid

2.2.1 Omgevingsvisie Noord-Brabant

Op 14 december 2018 heeft de provincie Noord-Brabant de Omgevingsvisie Noord-Brabant "De kwaliteit van Brabant" vastgesteld. De omgevingsvisie bevat de belangrijkste ambities voor de fysieke leefomgeving voor de komende jaren. Dat gaat om ambities op gebied van de energietransitie, een klimaatproof Brabant, Brabant als slimme netwerkstad en een concurrerende, duurzame economie. De omgevingsvisie geeft ook aan op welke nieuwe manieren de provincie met betrokkenen wil samenwerken aan omgevingsvraagstukken en welke waarden daarbij centraal staan.


Met de omgevingsvisie wil de provincie vast aansluiten bij en gaan werken volgens de uitgangspunten van de nieuwe Omgevingswet. Samen met andere overheden, initiatiefnemers en andere betrokken partijen wordt actief gezocht naar een praktijk waarin deze nieuwe manier van werken centraal staat.


De Omgevingsvisie gaat over twee vragen:

  • 1. Hoe moet de Brabantse leefomgeving er in 2050 uit zien?
  • 2. Wat moet in 2030 voor elkaar zijn om dat toekomstperspectief te verwezenlijken?


De doelstelling die Noord-Brabant heeft voor 2050 is dat zij in dat jaar welvarend, verbonden en klimaatproof is. De welvaart wil de provincie bereiken door te investeren in een gezonde en sterke concurrentiepositie door het goede vestigingsklimaat voor bedrijven en kenniswerkers, maar ook door de voortrekkersrol in de transitie naar een innovatieve en duurzame economie. De provincie ziet welvaart niet alleen als economische bestaanszekerheid, maar ook als geluk, gezondheid en veiligheid van mensen. In dat kader stelt de provincie dat in 2050 bestaande problemen in de fysieke leefomgeving zijn opgelost en dat het robuuste natuurnetwerk uitstekend functioneert.

Dankzij investeringen in natuur, verdrogingsbestrijding, bodem, waterkwaliteit, een groene (natuurrijke) inrichting van woon- en werkgebieden en het terugdringen van emissies uit landbouw en industrie wil de provincie zowel de menselijke leefomgeving als die voor flora en fauna verbeteren. Dit leidt tot een goed welbevinden en een grote soortenrijkdom.

Voor wat betreft de verbondenheid is het streven van de provincie dat Brabant de centrale ligging uitstekend weet te benutten door goede verbindingen op zowel fysiek als op sociaalmaatschappelijk (digitaal) gebied. Daarbij is een van de doelen dat de logistieke bedrijvigheid nog steeds een topsector is, maar dan op een schonere en slimmere manier.

Daarnaast bieden nog zichtbare historische waarden, erfgoed en landschappelijke verscheidenheid een verbinding met het verleden. Deze elementen dienen te blijven behouden voor een aantrekkelijke omgeving als uitloopgebied voor de inwoners van steden en dorpen en voor recreatie. Met betrekking tot het streven klimaatproof te zijn wil de provincie in 2050 geheel energieneutraal zijn. Dit willen zij bereiken door alleen nog duurzame energie te gebruiken. Daarnaast wil de provincie verdere klimaatverandering tegengaan door de uitstoot van koolstofdioxide en de uitstoot van methaan uit de landbouw fors terug te dringen. Daarnaast wil de provincie goed om kunnen gaan met de klimaatverandering en de effecten daarvan. Hierbij staat duurzaam, gezond en klimaatbestendig bouwen centraal. Daarnaast dient voldoende ruimte beschikbaar te zijn om water op te vangen en vast te houden in tijden van droogte en om wateroverlast te voorkomen.


Op basis van deze doelstellingen heeft de provincie vier hoofdopgaven geformuleerd:

  • Werken aan de Brabantse energietransitie;
  • Werken aan een klimaatproof Brabant;
  • Werken aan de slimme netwerkstad;
  • Werken aan een concurrerende, duurzame economie.

Deze opgaven worden niet los van elkaar gezien, maar zijn vanuit de basis met elkaar verbonden. Hierbij wordt gekeken vanuit een gebiedspecifieke benadering om de kansen en bedreigingen van de opgaven te benoemen en rekening te houden met de kansen vanuit andere hoofdopgaven.

2.2.2 Interim omgevingsverordening Noord-Brabant

Provinciale Staten van Noord-Brabant hebben op 25 oktober 2019 de Interim omgevingsverordening Noord-Brabant (planidn: NL.IMRO.9930.InterimOvr.va01) vastgesteld.

De Interim omgevingsverordening is een eerste stap op weg naar de definitieve omgevingsverordening. Hierin worden de bestaande verordeningen over de fysieke leefomgeving samengevoegd tot één Interim omgevingsverordening. Dit zijn de:

  • Provinciale milieuverordening, gebaseerd op artikel 1.2. Wet milieubeheer
  • Verordening natuurbescherming, gebaseerd op diverse artikelen uit de Wet natuurbescherming
  • Verordening Ontgrondingen, gebaseerd op artikel 5, tweede lid, en artikel 7, tweede lid, Ontgrondingenwet
  • Verordening ruimte, gebaseerd op artikel 4.1. Wet ruimtelijke ordening
  • Verordening water, gebaseerd op diverse artikelen in de Waterwet
  • Verordening wegen, gebaseerd op artikel 57 Wegenwet en artikel 2A Wegenverkeerswet

De Interim omgevingsverordening is beleidsneutraal van karakter. Dat betekent dat er geen nieuwe beleidswijzigingen zijn doorgevoerd, behalve als deze voortvloeien uit vastgesteld beleid, zoals de omgevingsvisie. Er heeft daarom ook geen expliciete afweging plaatsgevonden of de inzet van de verordening voor een bepaald onderwerp gecontinueerd moet worden. In beginsel zijn de huidige regels met het huidige beschermingsniveau gehandhaafd.

Deze beleidsneutrale omzetting betekent overigens niet dat er helemaal geen wijzigingen ten opzichte van de huidige verordeningen zijn verwerkt. De wijzigingen zijn in de toelichting van de verordening toegelicht. Op hoofdlijnen gaat het om:

  • een meer gebruikersvriendelijke opbouw met regels die per gebruikersgroep (burgers en bedrijven, gemeenten, waterschap) bij elkaar staan en minder losse bijlagen;
  • aanpassingen waardoor de regels straks beter passen in het systeem van de omgevingswet, bijvoorbeeld voor de grondwaterbeschermingsgebieden;
  • aanpassingen vanwege de vastgestelde omgevingsvisie, zoals de nieuwe manier van samenwerken en meer inzet op omgevingskwaliteit.

2.3 Gemeentelijk beleid

De volgende beleidskaders waren van belang bij het opstellen van het bestemmingsplan “Gemert-Bakel Buitengebied 2017”:

- Structuurvisie Gemert-Bakel 2011-2021;

- Visie Plattelandsontwikkeling Gemert – Bakel;

- Uitvoeringsprogramma 2013-2020;

- Beleidskader plattelandswoningen;

- Woonvisie 2009 – 2015;

- Watertakenplan gemeente Gemert- Bakel;

- Gemeentelijk geurbeleid;

- Gemeentelijk archeologisch beleid;

- Gemeentelijk cultuurhistorisch beleid [Oude akkers];

- Gemeentelijk VAB-beleid;

- Beleidsnota Bed & Breakfast;

- Beeldkwaliteitsplan Buitengebied Gemert-Bakel;

- Handreiking Kwaliteitsverbetering van het landschap Gemert-Bakel;

- Notitie Duurzaamheid in bestemmingsplan Buitengebied;

- Beleidsnotitie pluimvee.

Een korte beschrijving van de genoemde beleidsdocumenten en de relevantie voor en de borging daarvan in het onderliggende bestemmingsplan (moederplan) is weergegeven in bijlage 1.


Gemeentelijk watertakenplan 2019 – 2023

Het gemeentelijk waterbeleid is opgenomen in het watertakeplan 2019 – 2023 van de gemeente Gemert-Bakel d.d. 25 oktober 2018. De gemeente Gemert-Bakel hanteert bij ontwikkelingen een norm van 60 mm berging van regenwater per m2 verhard oppervlak. Deze eis geldt voor elke toename of wijziging van afvoerend verhard oppervlak, ongeacht de lozingssituatie.

Door klimaatverandering wordt het steeds belangrijker om de omgeving klimaatadaptief in te richten. Dat betekent onder meer dat we in staat moeten zijn om extreme neerslaghoeveelheden te verwerken. Het is vanuit economisch oogpunt niet haalbaar om deze doelstelling (alleen) te behalen door het ondergrondse systeem te verzwaren. De aanleg van waterberging op eigen terrein ontlast de regenwatervoorziening op openbaar terrein en levert een bijdrage aan het verminderen van wateroverlast. Daarom wordt in dit plan de aanleg van waterberging bij nieuwe ontwikkelingen voorgeschreven.

2.4 Waterschap Aa en Maas

Uitgangspunten Watertoets

In december 2004 heeft het Dagelijks Bestuur van waterschap Aa en Maas de beleidsnota 'uitgangspunten watertoets Aa en Maas’ vastgesteld. De uitgangspunten zorgen ervoor dat de ‘watersysteembelangen’ een plek hebben in het watertoetsproces. Daarnaast is er nog een aantal ‘waterschapsbelangen’ die vanwege de directe ruimteclaims ook een plek in de ruimtelijke ordening moet krijgen. Daarmee wordt gekomen tot de volgende lijst van onderwerpen die uitgewerkt worden in het watertoetsproces:

  • Wateroverlastvrij bestemmen;
  • Hydrologisch neutraal ontwikkelen;
  • Voorkomen van vervuiling;
  • Gescheiden houden van schoon en vuil water;
  • Doorlopen van de afwegingsstappen ‘hergebruik-infiltratie-buffering-afvoer’;
  • Meervoudig ruimtegebruik;
  • Water als kans;
  • Waterschapsbelangen:
    • 1. Ruimteclaims voor waterberging;
    • 2. Ruimteclaims voor de aanleg van natte EVZ’s en beekherstel;
    • 3. Aanwezigheid en ligging watersysteem;
    • 4. Aanwezigheid en ligging waterkeringen;
    • 5. Aanwezigheid en ligging van infrastructuur en ruimteclaims t.b.v. de afvalwaterketen in beheer van het waterschap.


Beleid waterschap Aa en Maas

Het beleid van waterschap Aa en Maas is er op gericht om bij nieuwbouw geen vermenging te laten optreden van schoon en vuil water en hanteert zij de stappen hergebruik - infiltratie - bufferen - afvoer als zijnde gewenst.

Beleidsuitgangspunten:

  • Wateroverlastvrij bestemmen: bij de locatiekeuze voor een nieuwe ruimtelijke ontwikkeling dient rekening te worden gehouden met een plek die ‘hoog en droog genoeg is’;
  • Gescheiden houden van vuil water en schoon regenwater: het streefbeeld is het afvoeren van het vuile water via de riolering en het binnen het plangebied verwerken van het schone regenwater;
  • Doorlopen van de afwegingsstappen “hergebruik – infiltratie – buffering – afvoer”: het beleid van het waterschap is dat altijd onderzocht dient te worden hoe het meest efficiënt / volgens deze methode omgegaan kan worden met het schone hemelwater;
  • Hydrologisch neutraal bouwen: bij nieuwe ontwikkelingen dient te worden voldaan aan het principe van hydrologisch neutraal bouwen, waarbij de nieuwe hydrologische situatie minimaal gelijk moet blijven aan de uitgangssituatie;
  • Water als kans: water kan een meerwaarde bieden aan het plan, bijvoorbeeld door gebruik te maken van de belevingswaarde van water;
  • Meervoudig ruimtegebruik: in de plannen moet ruimte worden vrijgemaakt voor water. Door bij de inrichting van een plangebied de ruimte voor meerdere doeleinden te gebruiken, is het verlies van ruimte aan water te beperken;
  • Voorkomen van verontreiniging: het streven van het waterschap is om nieuwe (bronnen van) verontreiniging zoveel mogelijk te voorkomen.


Waterbeheerplan 2016-2021 Waterschap Aa en Maas

In het Waterbeheerplan 2016 – 2021 is de strategie voor de genoemde periode vastgelegd. Er wordt voor gekozen om de lijn uit het WBP 2010 – 2015 door te zetten met nieuwe accenten.

De doelen op hoofdlijnen voor 2016-2021 zijn:

  • 1. Via optimaal beheer en onderhoud de huidige dienstverlening in stand houden;
  • 2. Veilig en Bewoonbaar beheergebied;
  • 3. Voldoende water en robuust watersysteem;
  • 4. Schoon water;
  • 5. Gezond en natuurlijk water.

Naast de directe bijdrage aan een duurzame leefomgeving met de aanwezigheid van een goed functionerend watersysteem, draagt het waterschap via water ook bij aan bredere maatschappelijke thema’s:

  • Water in bebouwd gebied
  • Kennisontwikkeling en innovatie
  • Energiegebruik en grondstofvoorziening
  • Internationale samenwerking
  • Water en ruimte


Keur Waterschap Aa en Maas

Op 3 maart 2015 is de keur van waterschap Aa en Maas gewijzigd. De ‘oude’ keur is daarbij
vervangen door een nieuwe keur die geldt voor alle drie de Brabantse waterschappen. In deze keur zijn de regels beter op elkaar afgestemd en een eenvoudiger gemaakt (In Brabant één keur). Bij de nieuwe Keur ligt de nadruk meer op wat wél mag in plaats van wat niet mag. Er is minder vaak een vergunning nodig dan voorheen en vaak volstaat een melding. Zo werken de Brabantse waterschappen samen aan minder regels en administratieve rompslomp en lasten en aan meer helderheid voor de inwoners en bedrijven in Brabant. Meer info over de nieuwe keur is te vinden op www.brabantkeur.nl.

Bij een toename en afkoppelen van het verhard oppervlak geldt het uitgangspunt dat plannen zoveel mogelijk hydrologisch neutraal worden uitgevoerd. Het doel van dit uitgangspunt is om te voorkomen dat hemelwater als gevolg van uitbreiding van het verhard oppervlak versneld op het watersysteem wordt geloosd. Voor lozingen op een oppervlaktewater eist het Waterschap daarom een vervangende berging, die de extra afvoer van het nieuwe verharde oppervlak als het ware neutraliseert. Gemeenten stellen vanuit hun eigen verantwoordelijkheid voorwaarden aan de afvoer via een rioleringsstelsel. Bij het invullen van de compensatieopgave wordt tevens gekeken naar de mogelijke realisering van andere waterdoelen. Het gaat hierbij dus om een optimale inpassing van een plan in zijn omgeving, waarbij ook gekeken moet worden naar het huidig en toekomstig functioneren van het totale (deel)stroomgebied waar de ontwikkeling onderdeel van uitmaakt. Naast het behoud van voldoende systeemrobuustheid, kan hiermee beter invulling worden gegeven aan de gewenste doelmatigheid. Bovendien biedt dit mogelijkheden voor waterschappen en gemeenten om ook andere dan hydrologische aspecten mee te nemen in de afweging. Het gaat hierbij bijvoorbeeld om het oplossen van waterkwaliteitsknelpunten of het tegengaan van verdroging.

De waterschappen maken bij het beoordelen van plannen met een toegenomen verhard oppervlak onderscheid tussen grote en kleine plannen. Hoewel er relatief veel kleine plannen zijn veroorzaken deze op deelstroomgebiedsniveau nauwelijks een toename van de maatgevende afvoer. Dit heeft er toe geleid dat voor kleine plannen kan worden volstaan met het toepassen van een eenvoudige rekenregel voor het bepalen van de compensatieopgave. Deze rekenregel is onderdeel van de algemene regel. Voor grotere plannen volstaat de rekenregel niet voor het bepalen van de compensatie-opgave, omdat de impact van dergelijke plannen op het watersysteem (veel) groter is. Voor grote plannen is daarom altijd een waterhuishoudkundig onderzoek door de initiatiefnemer noodzakelijk en dient het waterschap vroegtijdig te worden betrokken. Het document ‘Hydrologische uitgangspunten bij de Keurregels voor afvoeren van hemelwater, Brabantse waterschappen’ bevat de richtlijnen voor het waterhuishoudkundig onderzoek en kan zowel worden gebruikt door initiatiefnemer of adviesbureau voor het uitvoeren van het waterhuishoudkundig onderzoek, als door het waterschap voor het beoordelen ervan.

Voor een optimale inpassing van plannen met een uitbreiding van het verhard oppervlak is het noodzakelijk het waterschap in een vroeg stadium te betrekken. Dit geldt zowel voor kleine als grote plannen en vormt onderdeel van de watertoets. Alleen op deze wijze kunnen waterbeheerder en initiatiefnemer gezamenlijk zorgen voor het behoud van de robuustheid van het watersysteem en kan wateroverlast in de toekomst zoveel mogelijk worden beperkt.

Vervallen HNO-tool (HNO)

In de nieuwe keur is er nogal wat gewijzigd in het HNO beleid. Tot nu toe werd de wateropgave bepaald met de HNO tool.

Algemene (reken)regel voor verhardingstoename tussen 2000 en 10.000 m2

In de nieuwe keur is een eenvoudige rekenregel opgenomen voor plannen met een verhardingstoename tussen 2000 en 10.000 m2:

Benodigde compensatie (in m3) = Toename verhard oppervlak (m2) * Gevoeligheidsfactor * 0,06 (in m).

De gevoeligheidsfactor is af te lezen van bijgevoegde kaart bij de Keur. De onderbouwing voor de factor 0,06 staat in het document ‘Hydrologische uitgangspunten bij de Keurregels voor afvoeren van hemelwater, Brabantse waterschappen’.

Plannen met een verhardingstoename tot 2000 m2 zijn onder de nieuwe keur vrijgesteld van compensatie. Vanuit het watersysteem geredeneerd bestaat er geen aanleiding om onder deze oppervlaktemaat compenserende maatregelen te eisen. Het zal wel regelmatig voorkomen dat op basis van gemeentelijke eisen in deze gevallen toch een hemelwatervoorziening verlangd wordt. Bovendien kan zo’n voorziening vanuit de (omgeving van) initiatiefnemers wenselijk zijn om eventuele wateroverlast ter plaatse te voorkomen.

Waterhuishoudkundig (model)onderzoek voor verhardingstoename groter dan 10.000 m2 Voor plannen met een verhardingstoename boven 10.000 m2 gelden geen algemene regels, maar de beleidsregels. De te treffen compenserende maatregelen dienen in deze gevallen onderbouwd te worden met een waterhuishoudkundig (model)onderzoek. In de beleidsregels wordt hiervoor inhoudelijk verwezen naar het stuk ‘Hydrologische uitgangspunten bij de Keurregels voor afvoeren van hemelwater, Brabantse waterschappen’.

Hoofdstuk 3 Planontwikkelingen en herstelwijzigingen

3.1 Burgemeester v.d Wildenberglaan 46a in De Rips (ontwikkeling)

3.1.1 Aanleiding en situatie

Het gevolg van de flexibele en organische ontwikkeling van de Ploegmakers Groep is het doorlopen van verschillende procedures (bestemmingsplan, omgevingsvergunning). Soms gelijktijdig en soms opeenvolgend aan elkaar. Daarnaast heeft de praktijk bewezen dat de eerder vastgestelde mogelijkheden, misschien niet altijd de juiste waren of te strak waren. Gevolg hiervan is dat de grondbank, die onderdeel van de bedrijfsvoering van de Ploegmakers Groep is, buiten het bouwvlak achter de bestaande bebouwing werd uitgevoerd. De activiteiten van de grondbank zijn vergund en daarmee legaal aanwezig. Het bedrijf is in het bezit van een beschikking om een grondbank te mogen exploiteren. De huidige plek van de grondbank was onderdeel van het totale uitbreidingsplan van Ploegmakers Groep, maar tot op heden geen onderdeel van een procedure vorm, waardoor sprake is van een strijdige situatie. Om eenduidigheid te creëren en de strijdige situatie op te heffen is besloten om een herziening van het bestemmingsplan op te stellen en een bestemmingsplanprocedure te doorlopen. Doel daarvan is om Ploegmakers (fysieke) ruimte te geven om hun activiteiten volledig en zonder overlast uit te kunnen voeren. Op 23 december 2019 heeft het college van Burgemeester en wethouders van de gemeente Gemert-Bakel besloten om in principe medewerking te verlenen aan de uitbreiding van Ploegmakers Groep aan Burgemeester Wildenberglaan 46a te De Rips.

 

3.1.2 Locatie

Het plangebied is aan de Burgemeester van de Wildenberglaan 46a in de Rips gelegen. In figuur 3.1.1 is het plangebied indicatief op de luchtfoto aangeduid. Het plangebied staat kadastraal bekend als gemeente Bakel en Milheeze, sectie A, nummers 3910, 4041, 4042, 4534, 4753 en 4754 (gedeeltelijk).

afbeelding "i_NL.IMRO.1652.Buitengebied102020-ON01_0001.png"

Figuur 3.1.1 Luchtfoto met ligging plangebied ten opzichte van De Rips (Bron: Reland)

3.1.3 Huidige situatie

Het plangebied ligt aan Burgemeester van de Wildenberglaan 46a te De Rips. Het plangebied heeft een oppervlakte van circa 35.000 m² (3,5 hectare). Ter plaatse wordt het bedrijf Ploegmakers Groep geëxploiteerd. Het bedrijf bestaat uit drie onderdelen, namelijk:

  • Ploegmakers Agro B.V. (Akkerbouwbedrijf);
  • Ploegmakers Loonwerk B.V. (Agrarisch Loonwerkbedrijf);
  • Ploegmakers GGI B.V. (Grondverzet bedrijf, specialisten in Groen, Grond en Infra).

Met daarnaast nog wat dubbelfuncties zoals het opwekken van duurzame energie ten behoeve van de energievoorziening voor de bewoners van De Rips. Eén gebouw heeft als hoofdfunctie aardappelbewaarplaats, daarbij is er één gebouw dat als hoofdfunctie werkplaats heeft. Overige hallen worden ingezet als machine opslag. Daarbij heeft 1 van deze hallen een dubbelfunctie voor evenementen en bijeenkomsten van bewoners van De Rips.

De familie Ploegmakers is sinds 1922 woonachtig in De Rips en sinds 1934 begonnen met de loonwerkactiviteiten (dorsen). Sindsdien is het bedrijf gegroeid, gespecialiseerd en uitgebreid. Onder andere de plek waar Ploegmakers momenteel is gehuisvest is hier debet aan. Er is sprake van jonge ontginningen en ruimte voor grootschalige (agrarische) activiteiten/bedrijvigheid. De ontginningen hebben niet alleen een aantrekkingskracht en ontwikkelruimte voor de agrarische bedrijven (groot opgezette en ruime verkaveling), maar voor aanverwante diensten. Niet alleen is de Ploegmakers Groep daar een voorbeeld van, de mengvoederfabrikant die een prominente plek heeft in De Rips bevestigt dit. Men zou zelfs kunnen stellen dat de agrarische ontwikkeling en bijbehorende diensten in het DNA van De Rips zit.

In de loop der tijd heeft de familie Ploegmakers een aantal andere grondverzetbedrijven overgenomen of hun activiteiten overgenomen, waaronder Geurts Bakel B.V., die oorspronkelijk gevestigd was aan de Hoberg in Bakel en middels een gedoogsituatie aan Kaak 3-5 Milheeze was gevestigd. Op deze locatie was een grondverzetbedrijf actief waarbij een zanddepot van 3 hectare onderdeel was en waar grond, grind en zandhandel een belangrijk onderdeel was. In 2015-2016 zijn de bedrijfsonderdelen verhuisd van Kaak 3-5 te Bakel naar Burgemeester van de Wildenberglaan 46a in De Rips. De activiteiten gingen daardoor van een locatie met een oppervlakte van 3 hectare naar een bedrijfslocatie met in totaal 2,15 hectare met een veelheid aan functies. Door efficiënte bedrijfsvoering en combineren van aspecten kon zorgvuldig worden omgegaan met de beschikbare ruimte. Echter is desondanks sprake van een ruimtebehoefte op de locatie Burgemeester van den Wildenberglaan 46a.

Meermalen is met de gemeente overleg gevoerd omtrent de gefaseerde groei van Ploegmakers Groep en uiteindelijk is tot dit bestemmingsplan gekomen waarin fase 3, de uitbreiding en juridische borging van de vergunde situatie van Ploegmakers groep, geregeld kan worden

3.1.4 Het plan

De noodzaak tot uitbreiding heeft ertoe geleid dat zorgvuldig is gekeken naar de mogelijkheden die de omgeving hiertoe biedt. De uitbreiding mag bijvoorbeeld geen belemmeringen opleveren voor omliggende functies. Daarbij is gekeken of het bestemmingsvlak in oostelijke, westelijke of zuidelijke richting uitgebreid kan worden en geen of zo min mogelijk beperkingen oplevert voor omliggende functies (figuur 3.1.2). De doelgroep van de grondbank betreft met name agrarische bedrijven. Daarmee is de grondbank aan te merken als een agrarisch verwante functie en voorstelbaar in het buitengebied.

De grond ten oosten van het plangebied en voor een groot deel ten zuiden van de bedrijfslocatie is in eigendom van de buurman. De buurman is niet bereid om (een deel van) de grond te verkopen, waardoor de uitbreiding in oostelijke en deels zuidelijke richting niet mogelijk is. Bij een uitbreiding van het bestemmingsvlak en bouwvlak in westelijke richting bestaat de kans dat er hinder ontstaat ten opzichte van de burgerwoningen welke gelegen zijn aan de Burgemeester van de Wildenberglaan. Door het bedrijf in deze richting uit te breiden bestaat de kans dat het woon- en leefklimaat verslechterd, waardoor uitbreiding in westelijke richting tevens niet gewenst zijn.

afbeelding "i_NL.IMRO.1652.Buitengebied102020-ON01_0002.png"

Figuur 3.1.2 Mogelijke uitbreidingsmodelijkheden (Bron: Reland)

Ten slotte is de optie bekeken om het bedrijf in zuidelijke richting uit te breiden achter het meest westelijk gelegen bedrijfsgebouw. Deze grond is in eigendom van de familie Ploegmakers en zal minder belemmeringen opleveren voor de woningen aan de Burgemeester van de Wildenberglaan dan de uitbreiding in westelijke richting. Uitbreiding in zuidelijke richting blijkt dan ook de beste optie.

In figuur 3.1.3 is de gewenste situatie weergegeven. Het bouwvlak is aangepast op basis van de huidige juridische en vergunde situatie. Daarnaast is de achterzijde van het perceel uitgebreid zodat de grondbank binnen de bestemming bedrijf komt te vervallen. Tot slot is de bestemmingsgrens aan de westzijde haaks op de Burgemeester van de Wildenberglaan getrokken zodat er een logische en werkbaar vlak ontstaat. In totaal betreft de oppervlakte van de bestemming bedrijf 29.322 m² (circa 3 hectare).

afbeelding "i_NL.IMRO.1652.Buitengebied102020-ON01_0003.png"

Figuur 3.1.3 Nieuwe ruimtelijke en functionele situatie (Bron: Reland)

Bron: Bestemmingsplan Burgemeester Van den Wildenberglaan 46a De Rips, Reland Locatieontwikkeling, 2020)

3.2 Dakworm ong. in Bakel (ontwikkeling)

3.2.1 Aanleiding en situatie

Per besluit d.d. 15 oktober 2019 heeft het college van burgemeester en wethouders besloten in principe, onder voorwaarden, medewerking te verlenen aan de beoogde ontwikkeling Dakworm te Bakel. Het betreft de ontwikkeling van één Ruimte voor Ruimte woning aan de Dakworm ongenummerd (ong.). Om de beoogde herontwikkeling mogelijk te maken, is een bestemmingsplanherziening noodzakelijk.

3.2.2 Locatie

De planlocatie is gelegen ten zuiden van de kern Bakel in het buitengebied van de gemeente Gemert-Bakel. Navolgende figuur geeft een beeld van de ligging van de planlocatie ten opzichte van de omgeving waarbij de planlocatie is uitgelicht.

Figuur 3.2.1 Ligging planlocatie in omgeving, ten zuiden van de kern Bakel (Bron: Crijns Rentmeesters)

De planlocatie bestaat uit een gedeelte van het perceel kadastraal bekend als gemeente Bakel en Milheeze, sectie N, nummer 2245. De planlocatie heeft een oppervlakte van 3.650 m². Navolgende figuur geeft een kadastraal overzicht weer, geprojecteerd op luchtfoto. De planlocatie is aangeduid met een bolletjeslijn.

afbeelding "i_NL.IMRO.1652.Buitengebied102020-ON01_0004.png"

Figuur 3.2.2 Kadastraal overzicht planlocatie (Bron: Crijns Rentmeesters)

3.2.3 Huidige situatie

De planlocatie is gelegen aan Dakworm ong. De locatie is ten zuiden van de kern Bakel gelegen. Dakworm is een doorgaande weg tussen het buurtschap 'Ravensgat' en de kern Bakel. Aan Dakworm is van oudsher al bebouwing aanwezig. De planlocatie is onbebouwd en in agrarisch gebruik. Recent zijn direct ten noorden van de planlocatie al twee Ruimte voor Ruimte kavels ontwikkeld.

3.2.4 Het plan

Beoogd wordt om op de planlocatie één vrijstaande Ruimte voor Ruimte woning te ontwikkelen. De nieuwe ruimte-voor-ruimte woning is zorgvuldig gesitueerd ten opzichte van de recent gerealiseerde ruimte-voor-ruimte woningen. Daarbij wordt qua ligging van de bebouwing gerefereerd aan de traditionele opzet van het boerenerf. Tevens wordt met de situering van de nieuwe ruimte-voor-ruimte woning aangesloten bij de oorspronkelijke situatie in de bebouwingsconcentratie Dakworm, waarbij ten zuiden van de insteekweg aan Dakworm ook een woning aanwezig was. De realisering van een wandelpad in het verlengde van de insteek naar Neerakker/Overschot (eveneens onderdeel van de ontwikkeling) refereert ook aan de historische bebouwingssituatie.

Bij de situering van de woning is ook rekening gehouden met een open (groene) corridor ten oosten van de planlocatie. De nieuwe woning wordt opgericht achter de voorgevelrooilijn van de noordelijk gelegen woningen en de voorgevel zal iets worden gedraaid ten opzichte van de wegas. Het perceel wordt landschappelijk ingepast met streekeigen beplanting.

afbeelding "i_NL.IMRO.1652.Buitengebied102020-ON01_0005.png"

Figuur 3.2.3 Beoogde landschappelijke inpassing na herontwikkeling (Bron: Crijns Rentmeesters)

afbeelding "i_NL.IMRO.1652.Buitengebied102020-ON01_0006.png"

Figuur 3.2.4 Indicatie landschappelijke inpassing (Bron: Crijns Rentmeesters)

Bron: Voorontwerp - Ruimtelijke Onderbouwing Ruimte voor Ruimte Dakworm ong. Crent Rentmeesters, 2020

3.3 Leemskuilendijk 4 in Bakel (ontwikkeling)

3.3.1 Aanleiding en situatie

Op de locatie Leemskuilendijk 4 te Bakel is het bedrijf Frank Verhoeven Mechanisatie V.O.F gevestigd. Dit bedrijf betreft een agrarisch technisch bedrijf ten behoeve van de reparatie en het onderhoud van agrarische werktuigen en machines. Het bedrijf richt zich voornamelijk op werktuigen en machines in de tuinbouw, boomteelt, akkerbouw, cultuurtechniek en andere open teelten.

De eigenaar is voornemens om een efficiencyslag op zijn bedrijf toe te passen en het toekomstperspectief van het bedrijf te vergroten. Om dit mogelijk te maken dient er een fysieke uitbreiding plaats te vinden. In 2011 is reeds een wijzigingsprocedure doorlopen ten behoeve van deze uitbreidingswens. De vergunningsprocedure is ten tijde van de crisis (2011) doorlopen, waardoor sprake was van veel onzekerheid . De ondernemer heeft vervolgens besloten om de uitbereiding conform vergunning niet te realiseren. Zaak was om te overleven.

Tijden zijn veranderd en de noodzaak tot uitbreiding is gebleven. Het initiatief is echter wel in de loop der tijd veranderd. Dat heeft deels te maken met de wens/noodzaak van de ondernemer en deels vanwege externe factoren, waaronder de aanwezigheid van een gasdrukregelstation. Conform het geldende bestemmingsplan 'Gemert-Bakel Buitengebied 2017' is het planvoornemen niet rechtstreeks toegestaan. Om de gewenste bedrijfsuitbreiding mogelijk te maken dient een bestemmingsplanprocedure te worden doorlopen. Voordat een dergelijke procedure kan worden opgestart, dient het college van burgemeester en wethouders een besluit tot medewerking te geven.

Op 11 maart 2019 is ten behoeve van de gewenste bedrijfsuitbreiding een principeverzoek ingediend bij het college van burgemeester en wethouders van de gemeente Gemert-Bakel om medewerking te verlenen aan het planvoornemen van de initiatiefnemer. Na enkele aanpassingen en verduidelijking heeft het college van burgemeester en wethouders van de gemeente Gemert-Bakel op 26 november 2019 besloten om onder voorwaarden medewerking te verlenen aan voorgestane ontwikkeling. Eén van deze voorwaarden had betrekking op een extra kwaliteitsverbetering in het buitengebied. Om die reden is de locatie Geneneind 6 te Bakel onderdeel van het plangebied geworden. Ter plaatse worden enkele bedrijfsgebouwen gesloopt en wordt de intensieve veehouderij functie uitgesloten.

3.3.2 Locatie

Het plangebied bestaat uit twee plandelen, namelijk Leemskuilendijk 4 te Bakel en Geneneind 6 te Bakel (figuur 3.3.1).

afbeelding "i_NL.IMRO.1652.Buitengebied102020-ON01_0007.png"

Figuur 3.3.1 Situering twee planlocatie ten opzichte van de kern Bakel (Bron: Crijns Rentmeesters)

Leemskuilendijk 4 Bakel

Dit plandeel is ten oosten van de kern Bakel gelegen, binnen de kadastrale percelen welke bekend staan als gemeente Bakel en Milheeze, sectie N, nummers 1850 (deels) en 1851 (figuur 3.3.2).

afbeelding "i_NL.IMRO.1652.Buitengebied102020-ON01_0008.png"

Figuur 3.3.2 Planlocatie Leemskuilendijk 4 te Bakel (Bron: Crijns Rentmeesters)

Geneneind 6 te Bakel

Dit plandeel is ten noorden van de kern Bakel (tegen het sportpark van de kern Bakel) gelegen. Het plandeel Geneneind 6 te Bakel staat kadastraal bekend als gemeente Bakel en Milheeze, sectie U, nummers 206 en 576 (deels). In figuur 3.3.3 is dit plandeel weergegeven.

afbeelding "i_NL.IMRO.1652.Buitengebied102020-ON01_0009.png"

Figuur 3.3.3 Planlocatie Geneneind 6 te Bakel (Bron: Crijns Rentmeesters)

3.3.3 Huidige situatie

Leemskuilendijk 4

Op dit plandeel is het bedrijf Frank Verhoeven Mechanisatie V.O.F. gevestigd. Naast de woning is er een bedrijfsgebouw aanwezig en een bijgebouw voor de woning. Het bedrijf en de woning zijn apart ontsloten. De woning wordt direct aan de Leemskuilendijk ontsloten en voor het bedrijf wordt aangesloten bij het weggetje dat de ontsluiting vormt voor het gasdrukregelstation. Het bedrijf beschikt over een vergunning om extra bebouwing te realiseren. In figuur 3.3.4 is de huidige situatie in beeld gebracht. Tabel 3.3.1 correspondeert met de cijfers die op de afbeelding staan.

afbeelding "i_NL.IMRO.1652.Buitengebied102020-ON01_0010.png"

Figuur 3.3.4 Bebouwing huidige situatie (Bron: Crijns Rentmeesters)

afbeelding "i_NL.IMRO.1652.Buitengebied102020-ON01_0011.png"

Tabel 3.3.1 Overzicht bebouwing locatie Leemskuilendijk 4 Bakel (Bron: Crijns Rentmeesters)

Geneneind

Het agrarisch bouwvlak heeft een oppervlakte van circa 1,2 hectare. Naast de woning en het bijgebouw is op het perceel circa 2.315 m² aan bedrijfsbebouwing aanwezig. De bebouwing bestaat onder andere uit een oude varkensstal, een melkveestal, een veldschuur, een paardenstal en een rijbak. Aan de zuidzijde van het perceel is een onverharde inrit aanwezig. De grond ten oosten van de bedrijfsbebouwing is ingericht als landbouwgrond en de grond ten noorden van de bebouwing betreffen paardenweides. In figuur 3.3.5 is het bouwvlak en de bebouwing te zien. In de tabel is de bebouwing en de bijbehorende oppervlakte opgenomen. De nummers in tabel 3.3.2 corresponderen met de nummers in de figuur.

afbeelding "i_NL.IMRO.1652.Buitengebied102020-ON01_0012.png"

Figuur 3.3.5 Bebouwing huidige situatie (Bron: Crijns Rentmeesters)

Tabel 3.3.2 Bebouwing huidige situatie met te slopen bebouwing rood gearceerd (Bron: Crijns Rentmeesters)

afbeelding "i_NL.IMRO.1652.Buitengebied102020-ON01_0013.png"

3.3.4 Het plan

De initiatiefnemer heeft het plan om een nieuwe bedrijfsloods te realiseren. Een loods die meer ruimte biedt voor de ondernemer, zorgt voor een praktische en efficiëntere aanpak van zijn bedrijfsactiviteiten. Bovendien moet er een oplossing worden gevonden voor opslag, stalling (nu veelal buiten en soms zelfs naast de ontsluitingsweg) en ontsluiting. Nu wordt de halve berm soms gebruikt van de ontsluitingsweg van het gasdrukregelstation. Voor het keren en draaien is zelfs een stuk van het perceel van de buren nodig. Het bedrijf heeft een ruimte nodig met een oppervlakte van 1.375 m2. Vanwege de aanwezigheid van het gasdrukregelstation geldt voor verblijfplaatsen een verplichting om afstand te bewaren ten opzichte van het gasdrukregelstation. Dat niet alleen, er gelden zelfs restricties ten aanzien van de realisatie van aanplant (worteldiepte etc). Om een goede nieuwe situatie te creëren is gekeken naar een logische nieuwe plek die een aantal zaken en uitgangspunten combineert en verbindt. Met deze nieuwe situatie is rekening gehouden met ontsluiting, scheiding “privé – bedrijf”, uitstraling, landschappelijke inpassing en verbinding met naastgelegen perceel (testen van machines).

afbeelding "i_NL.IMRO.1652.Buitengebied102020-ON01_0014.png"

Figuur 3.3.6 Planvoornemen bedrijfslocatie Leemskuilendijk 4 (Bron: Crijns Rentmeesters)

Tabel 3.3.3. Nummers op figuur 3.3.6 (Bron: Crijns Rentmeesters)

afbeelding "i_NL.IMRO.1652.Buitengebied102020-ON01_0015.png"

Om te kunnen voorzien in de behoefte van het bedrijf is gekeken welke alternatieven voor handen zijn. Volgens het bestemmingsplan zijn er wel uitbreidingsmogelijkheden voor een bedrijf in het buitengebied, maar zijn deze beperkt. In ieder geval te beperkt voor onderhavige ontwikkeling. Alternatieven zijn verplaatsing van het hele bedrijf, een satellietvestiging openen of een agrarisch bedrijf opkopen en daar een transitie toepassen. Dit bleek echter onrealistisch, onhaalbaar en niet te financieren. Zeker niet omdat de locatie aan Leemskuilendijk 4 blijft bestaan en de locatie in de huidige situatie goed past in de omgeving en geen overlast tot gevolg heeft. Daarom zijn afspraken gemaakt met de initiatiefnemer omtrent kwaliteitsverbetering. Wanneer het initiatief fysiek kan bijdragen aan de kwaliteit van de omgeving, vergelijkbaar met de transitie van een agrarisch bedrijf, dan worden er twee vliegen in één klap geslagen.

Deze kwaliteitsverbetering is gevonden aan Geneneind 6 te Bakel. Op deze locatie is een gemengd bedrijf aanwezig welke zich richtte op het houden van melkrundvee, varkens en paarden. Opfok van jongvee en paarden vindt nog steeds plaats, maar het houden van varkens en melkrundvee is inmiddels gestopt. De stallen zijn daardoor overbodig geraakt en kunnen worden gesloopt. Echter kan niet worden deelgenomen aan een sloopregeling, waardoor het aan de financiële middelen ontbreekt om de sloop te financieren. De eigenaar is voornemens om een aantal bedrijfsgebouwen te slopen en de intensieve veehouderij uit te sluiten. Gezien de ligging ten opzichte van het sportpark, past dit niet alleen in fysieke zin bij de ambities van de gemeente Gemert-Bakel, maar draagt het ook bij aan een verbetering van het woon- en leefklimaat ter plaatse. De bedrijfsbebouwing voor de paardenhouderij blijft gehandhaafd, waaronder machineberging/garage (bijgebouw) en een nog te realiseren stapmolen. In figuur 3.3.7 is een luchtfoto weergegeven waarop te zien is welke gebouwen worden gesloopt.

In tabel 3.3.4 is de toekomstige oppervlakte aan bebouwing op de locatie Geneneind 6 te Bakel weergegeven.

Tabel 3.3.4 Bebouwing nieuwe situatie (Bron: Crijns Rentmeesters)

afbeelding "i_NL.IMRO.1652.Buitengebied102020-ON01_0016.png"

afbeelding "i_NL.IMRO.1652.Buitengebied102020-ON01_0017.png"

Figuur 3.3.7 Locatie aan Geneneind 6 met te slopen bebouwing rood omkaderd (Bron: Crijns Rentmeesters)

Conform het principebesluit was het noodzakelijk om elders een oppervlakte van 548,75 m² te slopen. In dit geval wordt daar niet geheel aan voldaan. Het verschil is ongeveer 65 m², waardoor op de locatie aan Leemskuilendijk nog extra kwaliteitsverbetering (ter waarde van € 1.645,-) uitgevoerd dient te worden. Dit gebeurt in de vorm van een bijdrage aan de ecologische zone ten westen van de locatie aan Leemskuilendijk 4. Door die zone robuuster te maken wordt niet alleen geïnvesteerd in landschap, maar ook in natuur en biodiversiteit. Hierdoor vindt zowel op Geneneind 6 een flinke kwaliteitsverbetering plaats (beëindiging varkens en melkrundvee, sloop van bebouwing) en nabij het plangebied aan Leemskuilendijk 4 te Bakel in de vorm van natuur en landschap.

Bron: Bestemmingsplan Leemskuilendijk 4 te Bakel, Reland Locatieontwikkeling, 2020

3.4 Rootvlaas 2 in Bakel (ontwikkeling)

3.4.1 Aanleiding en situatie

De initiatiefnemer heeft de wens zijn varkenshouderij te beëindigen. Hij heeft zich ingeschreven voor de deadline van 15 januari 2020 voor de 'Warme saneringsregeling; beëindiging varkenshouderijlocatie' (SRV). Meedoen aan de subsidieregeling heeft als gevolg dat de milieuvergunning voor deze locatie wordt ingeleverd en de varkensstallen op het perceel moeten worden gesloopt (ca. 2160 m2). De omgeving heeft, ook gezien de korte afstand tot het stedelijk gebied vanaf het plangebied, baat bij deze ontwikkeling. Zo zal de milieusituatie binnen het plangebied en in de omgeving van het plangebied verbeteren door afnemende milieu emissies.

Het beëindigen van de veehouderij staat niet op zichzelf aangezien het perceel een geschikte herbestemming moet krijgen zonder intensieve veehouderij. Initiatiefnemer zou het bedrijfsperceel graag willen overdragen aan zijn dochter en schoonzoon. Zijn schoonzoon heeft een fouragehandelbedrijf dat zich richt op het verhandelen en (internationaal) transporteren van agrarische producten, hoofdzakelijk bestaande uit of resulterend in hooi, stro, strooisels, kuilgras, ruwvoeders en organische mineralen. Het gaat uitsluitend om kant-en-klaar producten die geen verdere bewerking hoeven te ondergaan. Daarnaast wenst de initiatiefnemer ondergeschikt aan het fouragehandelbedrijf akkerbouwactiviteiten uit te voeren.

Op 11 februari 2020 heeft het College van Burgemeester en Wethouders besloten om medewerking te verlenen aan de realisatie van bovenstaande beoogde situatie. De gemeente heeft enkele aanvullende randvoorwaarden opgesteld voor de ontwikkeling van de beoogde situatie. De beoogde situatie dient uiteindelijk te leiden tot een bestemmingswijziging waarbij een goede ruimtelijke ordening wordt gewaarborgd.

3.4.2 Locatie

Het plangebied Rootvlaas 2 te Bakel ligt in het buitengebied van de gemeente Gemert-Bakel op een afstand van circa 300 meter van de kern Bakel. Het plangebied betreft de percelen kadastraal bekend als gemeente Bakel en Milheeze, sectie N, nummers 2868, 2869 en 2870. In figuur 3.4.1 is de topografische ligging van het plangebied weergeven met een rode cirkel.

afbeelding "i_NL.IMRO.1652.Buitengebied102020-ON01_0018.png"

Figuur 3.4.1 Plangebied van de Rootvlaas 2 (Bron: Roba Advies)

3.4.3 Huidige situatie

Het plangebied is gedeeltelijk bebouwd. Binnen het plangebied is een varkenshouderij en akkerbouwbedrijf aanwezig. Naast de bedrijfswoning is tevens een mantelzorgwoning gerealiseerd binnen het plangebied. Navolgend zijn in figuur 3.5.2 en 3.5.3 foto's van de locatie in de huidige situatie weergeven.

afbeelding "i_NL.IMRO.1652.Buitengebied102020-ON01_0019.png"

Figuur 3.4.2 Huidige situatie plangebied gezien vanaf hoek noordoost (Bron: Roba Advies)

afbeelding "i_NL.IMRO.1652.Buitengebied102020-ON01_0020.png"

Figuur 3.4.3 Huidige situatie plangebied vanaf zuidzijde plangebied (Bron: Roba Advies)

3.4.4 Het plan

Zoals in de aanleiding is aangegeven wenst de initiatiefnemer het huidige agrarische bedrijf te staken en het fouragehandelbedrijf van zijn schoonzoon te vestigen binnen het plangebied. Daarnaast wenst de initiatiefnemer ondergeschikt aan het fouragehandelbedrijf akkerbouwactiviteiten uit te voeren. Het fouragehandelbedrijf is actief in het vervoeren van compost/bodemverbeteraars naar Frankrijk en Duitsland. Deze compost en bodemverbeteraars worden opgehaald bij verschillende bedrijven in de regio (o.a. in Helmond, Asten, Deurne en Ysselsteyn). Het is niet toevallig dat deze bedrijven in de omgeving gevestigd zijn; een deel van de productie bestaat namelijk uit veenproducten die van oorsprong in de omgeving werden gewonnen. Naast veenproducten gaat het om compostproducten. De bedrijven waar het fouragehandelbedrijf mag laden, verwerken zelf hun producten tot compost en bodemverbeteraars. De schoonzoon van de initiatiefnemer verzorgt vervolgens het transport naar met name Frankrijk en Duitsland. Daar worden de compost en bodemverbeteraars vooral gebruikt in de wijnbouw en andere land- en tuinbouw. Om niet met een lege vrachtauto huiswaarts te keren wordt in Frankrijk en Duitsland hooi en stro ingekocht. In de streken waar de heenvracht gelost mag worden is dit type product namelijk wat ruimer voor handen dan in Nederland. De schoonzoon van de initiatiefnemer verzorgt vervolgens het transport van dit product richting Nederland en verhandelt het product zelf aan vooral agrariërs in de regio rondom Bakel. Daarbij moet worden opgemerkt dat vraag en aanbod van beide producten (compost/ bodemverbeteraars en hooi/stro) in de verschillende seizoenen niet helemaal op elkaar zijn afgestemd. Vooral in de zomer is bijvoorbeeld het aanbod aan hooi en stro hoog, terwijl de afzet minimaal is. Voor de bedrijfsvoering zou het efficiënter zijn om in die perioden fourageproducten (hooi en stro) op te slaan in een eigen loods, zodat de producten op een gunstiger moment kunnen worden afgezet (wanneer de vraag weer groter is). Ten behoeve van het fouragehandelbedrijf wordt een nieuwe loods beoogd van ca. 1000 m2 (50 meter lang bij 20 meter breed). Op die manier kunnen de producten droog worden opgeslagen. Hierbij wordt aan de noordzijde een kantoor/ spreekruimte beoogd (5 meter lang bij 20 meter breed), vervolgens wordt een dichte werkplaats beoogd (15 meter lang bij 20 meter breed). De overige oppervlakte (30 meter lang bij 20 meter breed) wordt een open loods voor het opslaan van fourageproducten en overige machines /voertuigen zoals de vrachtwagens. Er zal geen sprake zijn van buitenopslag van machines, voertuigen, goederen en/of producten. Daarnaast wordt een wasplaats voorzien (10 meter bij 20 meter) t.b.v. het wassen van de voertuigen. Verder heeft het agrarisch bedrijf in de huidige situatie een akkerbouwtak met 15 ha grond. Het is de wens van initiatiefnemer om deze akkerbouwtak nog een aantal jaren voort te zetten. Daarbij is er behoefte aan ruimte voor het stallen van werktuigen, machines en dergelijke. Hiervoor kunnen de bestaande werktuigenloods en open loods (weliswaar na verplaatsing naar een plaats binnen het bouwvlak) gebruikt worden. De activiteiten van het akkerbouwbedrijf vinden hoofdzakelijk plaats ter plaatse van de agrarische cultuurgrond, in de zin van het bewerken van akkers en verbouwen van gewassen. De enige activiteiten van het akkerbouwbedrijf die binnen het toekomstige bouwvlak zullen plaatsvinden, is de opslag van landbouwmaterieel (tractor(en), machines en werktuigen). Gelet op de omvang van akkerbouwbedrijf (slechts circa 15 ha cultuurgrond) en de activiteiten die binnen het bouwvlak zullen plaatsvinden, gaat het om een kleinschalige activiteit met een zeer beperkte impact op de omgeving. De akkerbouwtak is in die zin dan ook passend als nevenactiviteit bij het agrarisch verwante bedrijf (hoofdactiviteit).

afbeelding "i_NL.IMRO.1652.Buitengebied102020-ON01_0021.png"

Figuur 3.4.4 Impressie landschappelijke inpassing (Borgo Tuin- en landschapsarchitectuur)

Bron: Toelichting Rootvlaas 2, Roba Advies, 2020

3.5 Wijnboomlaan 14 in Gemert (ontwikkeling)

3.5.1 Aanleiding en situatie

Op de locatie Wijnboomlaan 12-14 is een varkenshouderij gevestigd. Het bestemmingsplan 'Gemert-Bakel Buitengebied 2017' (vastgesteld op 5 juli 2018) is hier van toepassing. De locatie heeft de enkelbestemming 'Agrarisch – Agrarisch bedrijf' met de functieaanduiding 'intensieve veehouderij'. Daarnaast zijn de dubbelbestemmingen 'Waarde – Archeologie 5' en 'Waarde – Oude akker' en de maatvoeringsaanduiding 'maximum aantal wooneenheden: 2' van toepassing. De locatie Wijnboomlaan 12 betreft de tweede bedrijfswoning die in het bestemmingsplan is aangeduid als plattelandswoning.

De initiatiefnemer is voornemens de varkenshouderij te beëindigen en de agrarische bestemming te wijzigen in de bestemming 'Wonen' (voor de bedrijfswoningen Wijnboomlaan 12 en 14). Daarnaast wordt een drietal Ruimte-voor-ruimtewoningen opgericht ten westen van de woning Wijnboomlaan 14.

Deze ontwikkeling is in strijd met de regels van het vigerend bestemmingsplan; er wordt een drietal woningen gerealiseerd binnen een agrarische bestemming. Daarnaast dient de agrarische bedrijfsbestemming te worden gewijzigd in de bestemming 'Wonen'. Derhalve dient een bestemmingsplan te worden opgesteld.

3.5.2 Locatie

Het plangebied is gelegen in een bebouwingscluster rondom de Wijnboomlaan in het buitengebied van Gemert, op een afstand van circa 750 meter van de kern Gemert. De percelen waaruit het plangebied bestaat, staan kadastraal bekend als gemeente Gemert, sectie H, nummers 2400 (ged.) en 2790.

Het gebied wordt aan de noordzijde begrensd door de Wijnboomlaan. Aan de overige zijden grenst het aan omliggende landbouwgronden. De omgeving is overwegend agrarisch van karakter met enkele agrarische bedrijven en burgerwoningen. Het volgende figuur geeft een weergave van de ligging van het plangebied.

afbeelding "i_NL.IMRO.1652.Buitengebied102020-ON01_0022.png"

Figuur 3.5.1 Ligging plangebied (Bron: Agron Advies)

3.5.3 Huidige situatie

Binnen het plangebied is een varkenshouderij gevestigd. Hierop is het bestemmingsplan 'Gemert-Bakel Buitengebied 2017' (vastgesteld op 5 juli 2018) van toepassing. De locatie heeft de enkelbestemming 'Agrarisch – Agrarisch bedrijf' met de functieaanduiding 'intensieve veehouderij'. Daarnaast zijn de dubbelbestemmingen 'Waarde – Archeologie 5' en 'Waarde – Oude akker' en de maatvoeringsaanduiding 'maximum aantal wooneenheden: 2' van toepassing. De locatie Wijnboomlaan 12 betreft de tweede bedrijfswoning die in het bestemmingsplan is aangeduid als plattelandswoning.

Het agrarisch bestemmingsvlak heeft een oppervlakte van circa 1,37 hectare. Binnen het plangebied bevindt zich de volgende bebouwing:

  • Bedrijfswoning Wijnboomlaan 14: oppervlakte circa 150 m²;
  • Plattelandswoning Wijnboomlaan 12: oppervlakte circa 130 m²;
  • Bijbehorende bouwwerken bij woningen: oppervlakte circa 50 m²;
  • Veldschuur: oppervlakte circa 50 m².
  • Varkensstallen: oppervlakte circa 2.540 m².

De volgende figuur toont de huidige situatie.

afbeelding "i_NL.IMRO.1652.Buitengebied102020-ON01_0023.png"

Figuur 3.5.2 Gewenste situatie (Bron: Agron Advies)

3.5.4 Het plan

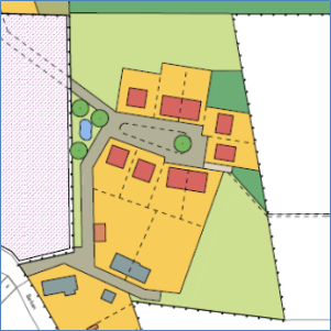
De initiatiefnemer is voornemens de varkenshouderij te beëindigen en de agrarische bestemming te wijzigen in de bestemming 'Wonen' (voor de bedrijfswoningen Wijnboomlaan 12 en 14). Daarnaast wordt een drietal Ruimte-voor-ruimtewoningen opgericht ten westen van de woning Wijnboomlaan 14. De volgende figuur toont de gewenste situatie.

afbeelding "i_NL.IMRO.1652.Buitengebied102020-ON01_0024.png"

Figuur 3.5.3 Beoogde situatieschets (Bron: Agron Advies)

Alle voormalige bedrijfsbebouwing wordt gesloopt en ingezet in het kader van de Ruimte-voorruimteregeling.

Er ontstaan op deze wijze een vijftal woonbestemmingen met de volgende oppervlaktes:

  • Ruimte-voor-ruimtekavel 1 (westelijke): circa 2.100 m²;
  • Ruimte-voor-ruimtekavel 1 (middelste): circa 1.200 m²;
  • Ruimte-voor-ruimtekavel 1 (oostelijke): circa 1.200 m²;
  • Woonbestemming Wijnboomlaan 14: circa 2.075 m²;
  • Woonbestemming Wijnboomlaan 12: circa 2.095 m².

Deze ontwikkeling is in strijd met de regels van het vigerend bestemmingsplan. Er wordt een drietal woningen gerealiseerd binnen een agrarische bestemming. Daarnaast dient de agrarische bedrijfsbestemming te worden gewijzigd in de bestemming 'Wonen'. Derhalve dient een bestemmingsplan te worden opgesteld. De ontwikkeling wordt meegenomen in de halfjaarlijkse herziening van het bestemmingsplan buitengebied.

Bron: Ruimtelijke onderbouwing Wijnboomlaan 12-14 Gemert, Agron Advies, 2020

3.6 Kaweide 10 in Milheeze (ontwikkeling)

3.6.1 Aanleiding en situatie

Initiatiefnemer is voornemens om de bedrijfsbebouwing van het loonbedrijf ter plaatse van het adres Kaweide 10 uit te breiden. Enerzijds door een beperkte uitbouw van de huidige schuur te realiseren en anderzijds door een nieuwe vrijstaande werktuigberging op te richten. Hiermee kan de huidige onwenselijke buitenopslag voortaan inpandig plaatsvinden. Aangezien het vigerende bestemmingsplan enkel het bestaande oppervlak aan bedrijfsbebouwing toestaat en de uitbreiding bovendien hoofdzakelijk op agrarische grond geprojecteerd is, treedt strijdigheid met de bestemmingsplankaders op. Verder stemt de planologische situatie niet overeen met de feitelijke situatie. Zo is een eerder vergunde uitbreiding en herinrichting van het bedrijfsperceel niet doorvertaald op de verbeelding van het geldende bestemmingsplan. Tevens is gebleken dat de naastgelegen waterloop onjuist gesitueerd is binnen dit bestemmingsplan.

 

3.6.2 Locatie

Het plangebied is gelegen op en nabij het adres Kaweide 10 in Milheeze. De locatie bevindt zich daarmee ten zuidwesten van de kern Milheeze. In figuur 3.6.1 is de indicatieve locatie weergegeven.

afbeelding "i_NL.IMRO.1652.Buitengebied102020-ON01_0025.png"

Figuur 3.6.1 Luchtfoto indicatieve locatie plangebied (Bron: www.cyclomedia.nl)

Meer concreet betreft het de percelen kadastraal bekend als gemeente Bakel, sectie C, nummers 1770, 1932, 2032, 2033, 2034 (ged.), 2112 (ged.) en 2115 (ged.). De globale afbakening is opgenomen in figuur 3.6.2.

afbeelding "i_NL.IMRO.1652.Buitengebied102020-ON01_0026.png"

Figuur 3.6.2 Globale afbakening plangebied (Bron: www.cyclomedia.nl)

3.6.3 Huidige situatie

Het plangebied is in de huidige situatie in gebruik door een loonbedrijf. Vanwege een tekort aan inpandige mogelijkheden worden diverse werktuigen en machines momenteel in de buitenlucht rondom de bestaande bedrijfsbebouwing geplaatst (zie 3.6.3)

afbeelding "i_NL.IMRO.1652.Buitengebied102020-ON01_0027.png"

Figuur 3.6.3 Vogelvluchtperspectief plangebied vanuit noordelijke richting (Bron: www.cyclomedia.nl)

3.6.4 Het plan

De wens bestaat om de betreffende buitenopslag in een nieuwe werktuigberging met een oppervlak van 1.220 m2 te stallen. Deze werktuigberging is aan de achterzijde van het perceel beoogd. Tevens is een beperkte uitbreiding (95 m2) van de huidige bedrijfsbebouwing voorzien. In figuur 3.6.4 is de beoogde planologische situatie weergegeven. Het totale maximum oppervlak aan bedrijfsbebouwing neemt aan de hand van de ontwikkeling toe van 1.740 m2 naar 3.055 m2. Hiervoor zal een specifieke aanduiding (maximale bebouwingsoppervlakte voor bedrijfsbebouwing) op de verbeelding opgenomen worden, waarmee de ontwikkelruimte voor de beoogde uitbreiding juridisch verankerd wordt.

Tevens zal een en vergroting van het bestemmingsvlak 'Bedrijf' plaatsvinden. In de huidige situatie omvat dit vlak circa 6.000 m2, terwijl in de beoogde situatie sprake is van 7.925 m2. Van de toename geldt 1.550 m2 ten behoeve van uitbreiding van de bedrijfsbebouwing (waarvan 330 m2 dient als terreinverharding) en 375 m2 als doorvertaling van de reeds vergunde situatie.

afbeelding "i_NL.IMRO.1652.Buitengebied102020-ON01_0028.png"

Figuur 3.6.4 : beoogde planologische situatie (Bron: Accent adviseurs)

afbeelding "i_NL.IMRO.1652.Buitengebied102020-ON01_0029.png"

Figuur 3.6.5 Landschappelijk inpassingsplan (Bron: Accent adviseurs)

Bron: Ruimtelijke onderbouwing Uitbreiding loonbedrijf Kaweide 10, Accent Adviseurs, 2020

3.7 Pandelaar 30 in Gemert (ontwikkeling)

3.7.1 Aanleiding en situatie

Initiatiefnemer is de eigenaar van locatie Pandelaar 30 in Gemert, een voormalige veehouderij met als nevenactiviteit een dorpscamping. Gezien de positieve ontwikkeling ten aanzien van de dorpscamping heeft de ondernemer besloten de bedrijfsvorm voor de gehele locatie om te schakelen naar recreatie en de veehouderijtak definitief te beëindigen. De gemeente heeft hieraan in principe haar medewerking verbonden door een positief besluit op het principeverzoek.

3.7.2 Locatie

Het projectgebied is gelegen aan de Pandelaar, aan de noordzijde van de kern Gemert. Het perceel is kadastraal bekend gemeente Gemert sectie N, nummer 1845. De oppervlakte is 16.358 m2.

afbeelding "i_NL.IMRO.1652.Buitengebied102020-ON01_0030.png"

Figuur 3.7.1 De planlocatie (Bron: Pdok.nl)

afbeelding "i_NL.IMRO.1652.Buitengebied102020-ON01_0031.png"

Figuur 3.7.2 Luchtfoto planlocatie, met kadastrale ondergrond. Perceel 1575 is een gemeentelijk pad (Bron: Projectaandrijving).

3.7.3 Huidige situatie

De Pandelaar is een van de oudst bekende namen in Gemert. De weg vormt onderdeel van het prehistorische wegtracé Bakel-Gemert-Erp. Wat bebouwing betreft een karakteristieke uitloper van het dorp Gemert in noordwestelijke richting, met voornamelijk agrarisch gerelateerde bebouwing aan weerszijden van de weg met daarachter het agrarisch achterland. Er kwamen en komen ook een aantal paden vanuit dat achterland uit op de Pandelaar. Aan de westzijde van de straat is deze historische structuur nog steeds intact. Ter plaatse van de planlocatie heeft men een open zicht op het kampenlandschap.

3.7.4 Het plan

Het agrarisch bedrijf ter plaatse wordt definitief beëindigd en in plaats daarvan krijgt de locatie in zijn geheel een recreatieve functie. Het doel van de ondernemer is om op zijn locatie diverse vormen van recreatief dag- en nachtverblijf aan te bieden, al naar gelang de behoefte van de klant. Binnen deze functie worden de volgende (recreatieve) activiteiten ontplooid:

1. Camping ten behoeve van 35 kampeerplekken, bestaande uit:

  • 10 ruime trekkershutten
  • 25 kampeerplaatsen voor caravans/tenten/campers

De kampeerfaciliteiten vormen het hart van het recreatieve bedrijf. Sinds 2019 is de kleinschalige camping als nevenactiviteit bij het agrarisch bedrijf open en de belangstelling is zeer groot. Ook de 4 aanwezige trekkershutten zijn in trek, omdat het een stukje extra comfort geeft ten opzichte van een tent of caravan en dat is wat de hedendaagse recreant aantrekkelijk vindt. Vandaar dat een uitbreiding van het aantal trekkershutten onderdeel is van het plan. De trekkershutten hebben geen eigen sanitaire voorzieningen en worden maximaal 20 m2 groot. Zij staan per seizoen op een vaste plek, maar kunnen per jaar binnen het bouwvlak ook verplaatst worden, zodat ook de ondergrond weer kan herstellen.

2. Twee vakantie-appartementen

Voor een haalbare exploitatie van het recreatiebedrijf is enkel het realiseren van een uitbreiding met trekkershutten niet voldoende. Daarom worden ook andere recreatieve verblijfsmogelijkheden aangeboden. Voor klanten die nog meer comfort en privacy wensen, worden 2 vakantie-appartementen gerealiseerd in het voorste deel van de oude stal, in de bestaande bebouwing dus.

3. Binnen-accommodatie

De binnen-accommodatie is bestaand en bedoeld voor alle gasten van het recreatiebedrijf. Er is een bar aanwezig en men kan er spellen spelen of op andere wijze ontspannen. Met name bij slecht weer is dit een onmisbaar onderdeel van het recreatiebedrijf.

4. Recreatieverblijf

Op termijn is het de bedoeling om op de eerste verdieping van de binnenaccommodatie een recreatieverblijf in te richten, waar ook één huishouden kan verblijven. Door het grote raam aan de achterzijde levert het zicht op de totale camping en het buitengebied een extra meerwaarde.

5. Winteropslag en werkplaats

Voor reparaties en opslag is een deel van de bestaande stal aangewezen.

6. Sanitaire voorzieningen

WC's en douches ten behoeve van de campinggasten

7. Stalling voertuigen

Deze stalling is nu al aanwezig en blijft onveranderd. Hier staan een aantal voertuigen in van de ondernemer.

8. Bedrijfswoning

De bedrijfswoning staat aan de voorzijde van de locatie. Een deel van dit gebouw zal gebruikt worden voor bewoning door de ondernemer. Er vindt geen splitsing van de woning plaats.

9. Vakantiehuis

Het resterende deel van het gebouw waar de bedrijfswoning in is gerealiseerd, wordt ook ingericht ten behoeve van recreatief verblijf. Hier kan bijvoorbeeld een grotere familie logeren, maar ook stellen die op doorreis zijn of ouderen die het gemak van een woning willen ondervinden. Er zijn 5 kamers beschikbaar voor maximaal 10 gasten. In die zin kan het ook als bed & breakfast worden aangemerkt. Er kan dan gebruik gemaakt worden van de ontbijtservice. Er vindt geen splitsing van de woning plaats, de woning blijft een ruimtelijke eenheid met een gezamenlijke toegang. De gasten betreden de woning normaliter aan de achterzijde.

10. Kleinschalige horeca (koffieterras en ontbijtservice)

Er is, uiteraard voor de campinggasten maar ook voor passanten, gelegenheid om een kopje koffie of een glaasje te drinken op een koffieterras. Tevens wil de ondernemer een ontbijtservice aanbieden. Deze functie is duidelijk ondergeschikt aan de hoofdfunctie.

11. Parkeerplaatsen

Ten behoeve van het parkeren door de gasten en bezoekers zal een (informele) parkeervoorziening worden ingericht. De bovenstaande onderdelen zijn op afbeelding 3.7.3 aangeduid.

afbeelding "i_NL.IMRO.1652.Buitengebied102020-ON01_0032.png"

Figuur 3.7.3 Situatietekening (Bron: Projectaandrijving)

Bron: Voorontwerp – Bestemmingsplan Buitengebied, Pandelaar 30 Gemert,Projectaandrijving, 2020

3.8 Aarlesche vijver, Bakel (herstelwijziging)

3.8.1 Aanleiding en situatie

In het bosgebied ten noorden van de Heikantseweg is de Aarlesche vijver gelegen. Voorheen is deze vijver als openbaar viswater gebruikt. Daarbij was het viswater verpacht aan de plaatselijke hengelsportvereniging. In het kader van de ontgrondingen op een aansluitend terrein is deze pacht beëindigd.

In 2020 zijn de ontgrondingen ter plaatse afgerond. Daarna wordt de visvijver weer geschikt gemaakt voor het vissen en het nieuw ontgronde gedeelte gereed gemaakt als zwemwater. De eigenaar van de Aarlese visvijver wil de vijver daarom weer in gebruik (laten) nemen als openbaar viswater.

In het bestemmingsplan Gemert-Bakel Buitengebied 2017 heeft de betreffende vijver de bestemming Natuur. Op basis van deze bestemming is het gebruik als visvijver niet toegestaan. Echter is het voorheen geldende bestemmingsplan Gemert-Bakel Buitengebied 2010 had de vijver de bestemming Water. Binnen deze bestemming was het gebruik als vijver als viswater, onder de noemer van extensief recreatief medegebruik, wel toegestaan.

afbeelding "i_NL.IMRO.1652.Buitengebied102020-ON01_0033.png"

bestemmingsplan Gemert-Bakel Buitengebied 2017

afbeelding "i_NL.IMRO.1652.Buitengebied102020-ON01_0034.png"

bestemmingsplan Gemert-Bakel Buitengebied 2010

Bij het opstellen van het bestemmingsplan Gemert-Bakel Buitengebied 2017 is de bestemming Water niet langer aan de vijver toegekend, maar is deze met het omliggende bosgebied onder de bestemming Natuur gebracht. Een expliciete motivering daarvoor is niet gegeven, de bestemmingswijziging is derhalve abusievelijk doorgevoerd. Nu de feitelijke situatie ter plaatse nauwelijks is gewijzigd, ligt herstel van de oorspronkelijk bestemde situatie in de rede om ter plaatse het gebruik als visvijver weer mogelijk te maken.

3.8.2 Locatie

De gronden zijn kadastraal bekend, als gemeente Bakel, sectie K, nummer 924 (gedeeltelijk). De vijver is bereikbaar vanaf de Heikantseweg en de Grotelseheide, via een onverharde weg.

afbeelding "i_NL.IMRO.1652.Buitengebied102020-ON01_0035.png"

3.8.3 Herstelwijziging

Om het gebruik van de vijver als viswater weer mogelijk te maken wordt aan de vijver de bestemming Water toegekend, conform het voorheen geldende bestemmingsplan Gemert-Bakel Buitengebied 2010. In de regels van de bestemming Water wordt daarbij opgenomen dat het gebruik voor 'waterrecreatieve doeleinden 4' is toegestaan. Op basis daarvan is het gebruik van de vijver voor de hengelsport toegestaan.

De herstelwijziging past binnen het gemeentelijk beleid. Gelet op de status van natuurpoort van de omgeving is vissen als passend aan te merken voor het gebied. Het waterschap heeft eerder al aangegeven geen bezwaren te hebben tegen het hernieuwd gebruik als visvijver.

Geconcludeerd wordt dat vanwege het feit dat het niet gaat om een inhoudelijke wijziging, maar enkel om het herstellen van een omissie, er geen gemeentelijke en/of provinciale belangen in het gedrang zijn.

3.9 Geerdenhof ong., Milheeze (herstelwijziging)

3.9.1 Aanleiding en situatie

De Geerdenhof is onderdeel van het plan Milheeze-Noord, dat voorziet in de omzetting van (intensieve) agrarische bedrijfscomplexen in bijzondere woonvormen. Uitgangspunt daarbij is het versterken van de bestaande cultuurhistorische patronen, maar dan wel met een eigentijdse invulling. De nieuwe woningen zijn volgens een 'hoevetypologie' gegroepeerd rond binnenplaatsen. Één van die binnenplaatsen is de Geerdenhof.

afbeelding "i_NL.IMRO.1652.Buitengebied102020-ON01_0036.png" afbeelding "i_NL.IMRO.1652.Buitengebied102020-ON01_0037.png"

bestemmingsplan Milheeze-Noord

De verkavelingsopzet voor de Geerdenhof voorzag in de bouw van 9 (half)vrijstaande woningen rond de binnenplaats. In het bestemmingsplan Milheeze-Noord (vastgesteld op 30 september 2010) is de ligging van deze woningen vastgelegd door middel van bouwvlakken en bouwaanduidingen. Zowel de verkavelingsopzet, als de verbeelding bij het bestemmingsplan laten aan de oostzijde van de binnenplaats 2 vrijstaande woningen zien.

afbeelding "i_NL.IMRO.1652.Buitengebied102020-ON01_0038.png"

bestemmingsplan Gemert-Bakel Buitengebied 2017

Voor de Geerdenhof geldt inmiddels het bestemmingsplan Gemert-Bakel Buitengebied 2017 (vastgesteld op 5 juli 2018). In dit plan zijn de woningbouwmogelijkheden uit het bestemmingsplan Milheeze-Noord overgenomen. Echter is daarbij voor de Geerdenhof een fout gemaakt. Aan de oostzijde van de binnenplaats zijn de beide woonpercelen onder één bestemmingsvlak gebracht, waardoor daar op basis van de bijbehorende bestemmingsregels slechts de bouw van 1 woning is toegestaan. De vorm van het bestemmingsvlak laat daarbij in aanzet nog wel de beoogde onderverdeling in 2 bouwpercelen zien, de feitelijke onderverdeling ontbreekt. De eigenaar van de gronden heeft verzocht de oorspronkelijke bouwmogelijkheden te herstellen.

Onderdeel van de planvorming voor de Geerdenhof zijn ook aanvullende groenvoorzieningen. Één van deze groenvoorzieningen is gesitueerd in de noordoosthoek tussen de woningen aan de noord- en de oostzijde van de binnenplaats. Door de beoogde ligging van de woonpercelen is deze groenvoorziening vanaf de binnenplaats niet bereikbaar en daarmee nauwelijks of niet beleefbaar.

afbeelding "i_NL.IMRO.1652.Buitengebied102020-ON01_0039.png"

Teneinde de beleefbaarheid van de betreffende groenvoorzieningen te vergroten, zal de aanleg hiervan op een andere locatie gaan plaatsvinden. Door deze groenvoorzieningen aansluitend aan de houtwal/-singel langs de noordzijde van het omliggende agrarische perceel te realiseren, wordt deze beleefbaar vanaf de Geerdenhof en bereikbaar vanaf de toekomstige verbinding tussen de Geerdenhof en de noordelijker daarvan gelegen Fransenhof.

3.9.2 Locatie

De gronden zijn kadastraal bekend, als gemeente Bakel, sectie B, nummers 1488 en 1490, zijnde de beide woonpercelen, en 1495 (gedeeltelijk), zijnde het perceel waarbinnen de groenbestemmingen zijn gelegen. De omvang van de diverse onderdelen van het plangebied bedraagt samen ca. 2.100 m².

3.9.3 Huidige situatie

Aan de Geerdenhof zijn aan de zuidzijde inmiddels 4 woningen gebouwd. De bouw van de 5 overige woningen moet nog opgestart worden. Ten behoeve van de ontsluiting van de woningen is de weg Geerdenhof als een lus vanaf de Berken aangelegd. De dwarsverbindingen met de Frankenhof en het evenemententerrein zijn nog niet gerealiseerd. De aanvullende groenvoorziening met wateropvang aan de westzijde van de Geerdenhof is ook al aangelegd. Echter zijn de aanvullende groenvoorzieningen aan de oostzijde nog niet gerealiseerd. De bestaande houtwal/-singel langs de noord- en oostzijde van het omliggende agrarische perceel en de bestaande laanbeplanting aan de westzijde daarvan zijn nog steeds aanwezig.

3.9.4 Herstelwijziging

In het bestemmingsplan Buitengebied 2017 zijn de 2 beoogde woonpercelen aan de oostzijde van de Geerdenhof al onder de bestemming Wonen gebracht. Om ook daadwerkelijk de bouw van 2 woningen mogelijk te maken wordt aan het betreffende bestemmingsvlak de maatvoeringsaanduiding 'maximum aantal wooneenheden: 2' toegevoegd.

afbeelding "i_NL.IMRO.1652.Buitengebied102020-ON01_0040.png"

Ter vervanging van de niet bereikbare en nauwelijks waarneembare en daarmee ook nauwelijks beleefbare toekomstige groenvoorziening aan de noordoostzijde van de Geerdenhof wordt het bestaande bestemmingsvlak Groen verlegd naar de noordelijke rand van het omliggende agrarische perceel. De oppervlakte van de aldus te verplaatsen bestemming Groen blijft daarbij gelijk(ca. 400 m²). Ook op de nieuwe locatie sluit de hier te realiseren groenvoorzieningen aan bij de al bestaande houtwallen/-singels en laanbeplanting rondom het omliggende agrarische perceel. De groenvoorzieningen worden door de verplaatsing beter bereikbaar en hebben daardoor niet alleen een functie voor aanwonenden, maar ook voor passanten.

Geconcludeerd wordt dat vanwege het feit dat het niet gaat om een inhoudelijke wijziging, maar enkel om het herstellen van een omissie en het verbeteren van de beleefbaarheid van de groenvoorzieningen, er geen gemeentelijke en/of provinciale belangen in het gedrang zijn.

3.10 Hoberg 2a, Milheeze (herstelwijziging)

3.10.1 Aanleiding en situatie

Aan de Hoberg 2a In Milheeze is de windmolen Laurentia gelegen. Deze molen is al sedert 5 mei 1967 ingeschreven in het Rijksmonumentenregister (onder nummer 8595) en heeft sindsdien de status van Rijksmonument.

In tegenstelling echter tot andere Rijks- en gemeentelijke monumenten in het buitengebied is de molen niet als zodanig aangeduid in het bestemmingsplan Gemert-Bakel Buitengebied 2017. Ook is de molen niet opgenomen in 'Monumentelijst buitengebied', die als bijlage aan de regels bij genoemd bestemmingsplan is opgenomen. Door deze omissie valt de molen niet onder de extra beschermende bepalingen, zoals die voor monumenten in het bestemmingsplan zijn opgenomen.

3.10.2 Locatie

De locatie, waarop de molen is gelegen, is kadastraal bekend als gemeente Bakel, sectie B, nummer 1111. De molen is gelegen aan de Hoberg, nabij de overgang van deze straat in de Schutboomsestraat en de aansluiting van de Leemskuilendijk.

afbeelding "i_NL.IMRO.1652.Buitengebied102020-ON01_0041.png"

3.10.3 Herstelwijziging

Om de molen onder dezelfde beschermende werking te brengen als de overige monumenten in het buitengebied. Dit betekent dat aan het bestemmingsvlak 'Maatschappelijk', waarbinnen de woning is gelegen, de aanduiding 'specifieke bouwaanduiding - monument' wordt toegevoegd. In de regels van de bestemming 'Maatschappelijk' is vervolgens geregeld dat het is verboden om zonder of in afwijking van een omgevingsvergunning (omgevingsvergunning activiteit monumenten) overeenkomstig het bepaalde in de Erfgoedwet over te gaan tot het geheel of gedeeltelijk veranderen van het rijksmonument.


Geconcludeerd wordt dat vanwege het feit dat het niet gaat om een inhoudelijke wijziging, maar enkel om het herstellen van een omissie, er geen gemeentelijke en/of provinciale belangen in het gedrang zijn.

3.11 Sparrenweg ong., Gemert (herstelwijziging)

3.11.1 Aanleiding en situatie

Aan de Sparrenweg in Gemert, meer specifiek aan de hierop uitkomende onverharde Grietsteeg, is een waardevol landschapselement gelegen. Het landschapselement bestaat uit een wal met houtopstand. Met name de cultuurhistorische waarde van het landschapselement is hoog. Allereerst omdat de houtopstand al meer dan 150 jaar ter plaatse aanwezig is. Op kaarten van 1850 is de houtopstand al zichtbaar. Het betreft daarmee één van de oudste houtopstanden binnen de gemeente Gemert-Bakel. Daarnaast is de waarde hoog omdat het een houtopstand op een wal betreft. Houtopstanden op wallen (houtwallen) zijn zeer zeldzaam. De meeste houtwallen zijn in de loop van de tijd weggezakt. Voor de houtwal aan de Grietsteeg is dit niet het geval.

afbeelding "i_NL.IMRO.1652.Buitengebied102020-ON01_0042.png"

De waardevolle landschapselementen binnen het buitengebied van de gemeent Gemert-Bakel zijn in het bestemmingsplan Gemert-Bakel Buitengebied 2017 van een beschermende regeling voorzien. Abusievelijk is de houtwal aan de Grietsteeg daarbij niet meegenomen. Door deze omissie geniet dit landschapselement niet de bescherming, die het op basis van de aanwezige waarden wel verdient. Het landschapselement is enkel agrarisch bestemd. Een aangrenzend bosperceel en een bosperceel aan de overzijde van de Grietsteeg kennen wel de bestemming 'Natuur'.

3.11.2 Locatie

De betreffende houtwal is gelegen langs de Grietsteeg, op circa 65 m van de Sparrenweg. De Grietsteeg sluit aan op de Sparrenweg direct ten noorden van de woning Sparrenweg 11. De houtwal is gelegen binnen twee kadastrale percelen, bekend als gemeente Gemert, sectie O, nummers 436 (gedeeltelijk) en 437 (gedeeltelijk).

afbeelding "i_NL.IMRO.1652.Buitengebied102020-ON01_0043.png"

3.11.3 Herstelwijziging

In deze omissie kan worden voorzien door aan de houtwal alsnog de bestemming 'Natuur" toe te kennen met de aanduiding 'specifieke vorm van natuur - landschapselement'. In de regels is vastgelegd dat de gronden met deze aanduiding specifiek bestemd zijn voor behoud, herstel en/of ontwikkeling van het aangeduide, beeldbepalende landschapselement.

Geconcludeerd wordt dat vanwege het feit dat het niet gaat om een inhoudelijke wijziging, maar enkel om het herstellen van een omissie, er geen gemeentelijke en/of provinciale belangen in het gedrang zijn.

3.12 Ven 3, Bakel (herstelwijziging)

3.12.1 Aanleiding en situatie

In het kader van de ontwikkelingen rond de Bakelse Plassen is het agrarisch bedrijf Ven 3 beëindigd. De agrarische bedrijfsbebouwing is daarbij deels gesloopt en de agrarische bedrijfsbestemming is daarbij omgezet in een woonbestemming. In ruil daarvoor is de bouw van een tweede woning toegestaan. De bouwvergunning voor het bouwen van deze tweede woning dateert van 19 oktober 1977. De vergunning maakt het bouwen van een nieuw woonhuis mogelijk, zonder dat daarbij sprake is van vervanging van de bestaande woning Ven 3.

Echter is bij het opstellen van het voorheen geldende bestemmingsplan Bakelse Plassen al de fout gemaakt om de agrarische bestemming om te zetten in een woonbestemming, zonder daarbij de aanwezigheid van een tweede burgerwoningen mogelijk te maken. Bij het opstellen van het nu geldende bestemmingsplan Gemert-Bakel Buitengebied 2017 is de regeling uit het bestemmingsplan Bakelse Plassen voor de locatie Ven 3 integraal overgenomen, dus zonder de mogelijkheid voor die tweede burgerwoning.

afbeelding "i_NL.IMRO.1652.Buitengebied102020-ON01_0044.png"

Conform de eerder verleende vergunning en vooruitlopend op de regeling in het bestemmingsplan is de betreffende tweede burgerwoning al wel gebouwd, zijnde de woning Ven 3a. Echter doordat deze woning niet in een bestemmingsplan is geregeld, kan geen medewerking worden verleend aan vergunningaanvragen die zien op wijziging van de gebruiks- en/of bebouwingssituatie ter plaatse.

afbeelding "i_NL.IMRO.1652.Buitengebied102020-ON01_0045.png"

3.12.2 Locatie

De gronden zijn kadastraal bekend, als gemeente Bakel, sectie U, nummers 439, 546 (gedeeltelijk), 670 (gedeeltelijk) en 671, zijnde de beide woonpercelen. De omvang van het plangebied bedraagt ca. 8.000 m². De beide woningen zijn gelegen aan een zijtak van het Ven, die bij de ontwikkeling van de Bakelse Vennen grotendeels is komen te vervallen.

3.12.3 Herstelwijziging

In het bestemmingsplan Buitengebied 2017 zijn de 2 beide woonpercelen aan het Ven al onder de bestemming Wonen gebracht. Om ook daadwerkelijk de aanwezigheid van 2 woningen mogelijk te maken wordt aan het betreffende bestemmingsvlak de maatvoeringsaanduiding 'maximum aantal wooneenheden: 2' toegevoegd.

Geconcludeerd wordt dat vanwege het feit dat het niet gaat om een inhoudelijke wijziging, maar enkel om het herstellen van een omissie, er geen gemeentelijke en/of provinciale belangen in het gedrang zijn.

Hoofdstuk 4 Economische haalbaarheid

4.1 Exploitatieplan

Hoofdstuk 5 van de Wro bevat een aantal financiële bepalingen, waaronder een regeling voor grondexploitatie ( afdeling 6.4 Wro) en een regeling voor tegemoetkoming in planschade ( afdeling 6.1 Wro).

In afdeling 6.4. zijn de mogelijkheden aangegeven die een gemeente heeft om kosten te verhalen en om eisen te stellen met betrekking tot de inrichting, kwaliteit en uitvoerbaarheid van bouwlocaties. In artikel 6.12 is bepaald dat bij de vaststelling van verschillende gemeentelijke plannen die mogelijkheden bieden voor het ontwikkelen van bepaalde in het Besluit ruimtelijke ordening aangewezen bouwplannen, tevens een exploitatieplan wordt vastgesteld op grond waarvan de gemeente de kosten van grondexploitatie kan verhalen. Dit is een verplichting die geldt voor bestemmingsplannen, wijzigingsplannen en beheersverordeningen. Artikel 6.2.1. van het Besluit ruimtelijke ordening bevat een opsomming van de bouwplannen waarvoor een exploitatieplan in principe verplicht is. Er zijn nogal wat bouwplannen waarvoor dit geldt:

  • de bouw van een of meer woningen
  • de bouw van een of meer andere hoofdgebouwen
  • de uitbreiding van een gebouw met tenminste 1000m² of met een of meer woningen
  • de verbouwing van een of meer aaneengesloten gebouwen die voor andere doeleinden in gebruik of ingericht waren, voor detailhandel, dienstverlening, kantoor of horecadoeleinden, mits de cumulatieve oppervlakte van de nieuwe functies tenminste 1000m² bedraagt
  • de bouw van kassen met een oppervlakte van tenminste 1000m²


Het onderhavige bestemmingsplan biedt mogelijkheden voor bouwplannen die in deze opsomming zijn genoemd. In principe dient er dus een exploitatieplan te worden vastgesteld. Echter voor de diverse plannen wordt met de eigenaren een exploitatieovereenkomst gesloten waarin de gemeentelijke kosten zullen worden verankerd. De kosten zijn dus anderszins verzekerd en hierdoor is een exploitatieplan niet vereist bij het bestemmingsplan.


Het bestemmingsplan kent ook enkele afwijkings- en wijzigingsmogelijkheden. Als hiervoor een aanvraag wordt ingediend, is dat een particulier initiatief dat geheel voor rekening komt van de aanvrager en waaraan voor de gemeente geen kosten zijn verbonden. De ambtelijke kosten zijn verdisconteerd in de leges. Als er onverhoopt toch andere kosten zijn, dan dient ter zake een exploitatieovereenkomst te worden afgesloten voordat de afwijkings- of wijzigingsprocedure wordt gestart. Het kostenverhaal is dus ook hier anderszins verzekerd.

4.2 Planschade

Daar waar nieuwe ontwikkelingen middels dit bestemmingsplan worden mogelijk gemaakt, is er een risico op planschade. Als het een particulier initiatief betreft dan zal dit risico en de kosten die daarmee gemoeid zijn, verhaald worden op de initiatiefnemer. Hiervoor wordt voor elk particulier initiatief een planschadeovereenkomst afgesloten.

Hoofdstuk 5 Overleg, zienswijzen, ambtshalve aanpassingen

5.1 Vooroverleg

5.1.1 Provincie Noord-Brabant

Op 12 augustus 2020 is in het kader van het wettelijk vooroverleg een reactie ontvangen van de provincie Noord-Brabant op het voorontwerp bestemmingsplan. Hierin wordt enkel ingegaan op onderwerpen die vanuit het provinciaal ruimtelijk beleid relevant zijn. Over het algemeen is het provinciaal beleid goed in het bestemmingsplan vertaald. Met betrekking tot een aantal locaties is het plan echter nog in strijd met het provinciale beleid. Ook de planregeling is op een aantal punten nog in strijd met het provinciale beleid.

Het provinciaal ruimtelijk beleid is vastgelegd in de Brabantse Omgevingsvisie. De te beschermen provinciaal ruimtelijke belangen zijn vertaald in de Interim omgevingsverordening Noord-Brabant (IOV) die op 5 november 2019 in werking is getreden. De reactie van de provincie is op deze documenten gebaseerd.

Reacties vooroverleg

  • 1. Burgemeester van de Wildenberglaan 46a De Rips

Betreft een uitbreiding van een bestaand agrarisch verwant bedrijf tot een omvang van ca. 2,9 ha. Aan de ene kant betreft het een uitbreiding die al vergund is maar nu in het bestemmingsplan vastgelegd wordt (wasplaats voor machines). Maar het betreft ook uitbreiding ten behoeve van een grondbank.

Onduidelijk is of de grondbank al legaal aanwezig is (vergund) en alleen uitgebreid wordt of dat deze als nieuwe functie wordt toegevoegd. Daarbij is het de vraag af of de grondbank een agrarisch verwant bedrijf is. Voor de aanvaardbaarheid ter plaatse is het van belang dat de doelgroep van de grondbank met name betreft agrarische bedrijven.


Reactie:

De grondbank is vergund en daarmee legaal aanwezig. Het bedrijf is in het bezit van een beschikking om een grondbank te mogen exploiteren. De doelgroep van de grondbank betreft met name agrarische bedrijven. Daarmee is de grondbank niet alleen legaal aanwezig, maar ook een agrarisch verwante functie. In de ruimtelijke onderbouwing (toelichting) voor deze ontwikkeling is dit verwerkt.

  • 2. Dakworm ong. Bakel


Betreft de ontwikkeling van een ruimte-voor-ruimte woning. Door de Raad van State is in het verleden geoordeeld dat Dakworm gezien kan worden als een bebouwingsconcentratie. Dit is een van de voorwaarden voor het kunnen oprichten van een ruimte-voor-ruimte woning. Daarvoor moet echter ook sprake zijn van een planologisch aanvaardbare locatie binnen een bebouwingsconcentratie. De woning wordt vrij ver van de Dakworm en in het open gebied gesitueerd, in tegenstelling tot de woningen net ten noorden van het plangebied. Deze woningen sluiten aan op de weg en bij de bestaande structuur van het gebied. Gevraagd wordt om een nadere onderbouwing van de situering van de woning ten opzichte van de bebouwingsconcentratie.

Tot slot wordt nog het bewijsstuk van de aankoop van de ruimte-voor-ruimte titel gemist.

Reactie:

De nieuwe ruimte-voor-ruimte woning is zorgvuldig gesitueerd ten opzichte van de recent gerealiseerde ruimte-voor-ruimte woningen. Daarbij wordt qua ligging van de bebouwing gerefereerd aan de traditionele opzet van het boerenerf. Tevens wordt met de situering van de nieuwe ruimte-voor-ruimte woning aangesloten bij de oorspronkelijke situatie in de bebouwingsconcentratie Dakworm, waarbij ten zuiden van de insteekweg aan Dakworm ook een woning aanwezig was. De realisering van een wandelpad in het verlengde van de insteek naar Neerakker/Overschot (eveneens onderdeel van de ontwikkeling) refereert ook aan de historische bebouwingssituatie. In de ruimtelijke onderbouwing (toelichting) voor deze ontwikkeling is een en ander nader toegelicht.

De bewijsstukken voor de ruimte-voor-ruimte woning worden bij de vaststelling van het bestemmingsplan door initiatiefnemer overlegd.

  • 3.
    Leemskuilendijk 4 Bakel

Op de locatie Leemskuilendijk 4 te Bakel is een mechanisatiebedrijf gevestigd. De voorziene ontwikkeling betreft de uitbreiding van het bedrijf. In dat kader wordt de bedrijfsbestemming vergroot. In het kader van de kwaliteitsverbetering van het landschap wordt de locatie zelf landschappelijk ingepast en wordt op een andere locatie (Geneneind 6 te Bakel) bedrijfsbebouwing in de vorm van een varkensstal en melkveestal gesloopt. De landschappelijke inpassing is voldoende geborgd door een voorwaardelijke gebruiksbepaling in de planregels en een daaraan gekoppelde bijlage. De bijlage met betrekking tot de sloop ontbreekt nog. Verzocht wordt deze bijlage bij de planregels toe te voegen zodat ook de sloop voldoende geborgd is.

Reactie:

De bijlage met betrekking tot de sloop van de stallen op de locatie Geneneind 6 wordt aan het bestemmingsplan toegevoegd.

  • 4.
    Rootvlaas 2 Bakel

De voorliggende ontwikkeling betreft de sanering van de varkenshouderij en omschakeling naar een fouragehandelbedrijf. Daarnaast blijft de akkerbouwtak als nevenfunctie bestaan. Het beëindigen van de varkenshouderij gebeurt middels de regeling 'Warme saneringsregeling; beëindiging varkenshouderijlocatie' (SRV). De milieuvergunning wordt ingeleverd en de stallen worden gesloopt (ca. 2160 m²). Voor de nieuwe activiteit wordt een loods van ca. 1000 m² opgericht. Verzocht wordt om voor definitieve vaststelling van het bestemmingsplan aan te tonen dat de milieurechten van de varkenshouderij ingeleverd zijn.


Reactie:

De intrekking van de milieuvergunning moet binnen 8 maanden na de beschikking van de SRV-regeling gebeuren. Dit wordt op korte termijn in gang gezet, zodat bij de vaststelling van het bestemmingsplan de vergunning zal zijn ingetrokken.

  • 5.
    Wijnboomlaan 12 - 14 Gemert

De ontwikkeling voorziet in de sanering van de varkenshouderij ten behoeve van de oprichting van 3 ruimte-voor-ruimte kavels. De aanwezige bedrijfswoning en de plattelandswoning worden beiden omgezet in een burgerwoning. Gevraagd wordt om nadere stukken ter onderbouwing dat de sanering van de varkenshouderij inderdaad voldoet aan de voorwaarden voor het oprichten van 3 ruimte-voor-ruimte kavels.


Reactie:

De bewijsstukken voor de ruimte-voor-ruimte woningen worden bij de vaststelling van het bestemmingsplan door initiatiefnemer overlegd.

  • 6.
    De Kampen 18 en Kleikampen ong. Gemert

Betreft de sanering van de varkenshouderij die gevestigd is op de locatie De Kampen 18. Op deze locatie wordt de bedrijfswoning omgezet in een burgerwoning. Daarnaast wordt een ruimte-voor-ruimte kavel opgericht op de locatie Kleikampen ong. De landschappelijke inpassing op beide locaties is nog onvoldoende geborgd vanwege het ontbreken van de landschappelijke inpassingsplannen als bijlagen bij de planregels. Verzocht wordt om deze bijlagen nog toe te voegen bij het plan. Daarnaast wordt verzocht om nadere stukken ter onderbouwing dat de sanering van de varkenshouderij inderdaad voldoet aan de voorwaarden voor het oprichten van ruimte-voor-ruimte kavels.


Reactie:

De landschappelijke inpassingsplannen worden als bijlage bij de regels toegevoegd. De bewijsstukken voor de ruimte-voor-ruimte woning worden bij de vaststelling van het bestemmingsplan door initiatiefnemer overlegd.

Omdat de noodzakelijke overeenkomsten voor deze ontwikkeling niet tijdig zijn ondertekend, maakt deze ontwikkeling niet langer deel uit van de voorliggende bestemmingsplanherziening. Na ondertekening van de overeenkomsten, wordt bekeken hoe voor deze locatie alsnog tot herziening van het bestemmingsplan kan worden gekomen.

  • 7.
    Milheesestraat 16 Milheeze

De ontwikkeling voorziet in de sanering van de paardenhouderij, de omzetting van de bedrijfswoning naar een burgerwoning en de oprichting van 3 ruimte-voor-ruimte kavels. Om de ruimte-voor-ruimte kavels te kunnen oprichten zullen titels gekocht worden. Gevraagd wordt om de bewijsstukken met betrekking tot de aankoop van de titels ten behoeve van de ruimte-voor-ruimte kavels. Daarnaast is de landschappelijke inpassing en de sloop van de agrarische bedrijfsbebouwing onvoldoende geborgd omdat de benodigde bijlagen nog bij de planregels ontbreken. Gevraagd wordt deze bijlagen en bewijsstukken toe te voegen.


Reactie:

De bewijsstukken voor de ruimte-voor-ruimte woningen worden bij de vaststelling van het bestemmingsplan door initiatiefnemer overlegd. De bijlagen voor de landschappelijke inpassing en de sloop worden bij de regels toegevoegd.

Omdat de noodzakelijke onderzoeken voor deze ontwikkeling niet tijdig zijn uitgevoerd, maakt deze ontwikkeling niet langer deel uit van de voorliggende bestemmingsplanherziening. Nadat alle onderzoeken volledig zijn uitgevoerd, wordt bekeken hoe voor deze locatie alsnog tot herziening van het bestemmingsplan kan worden gekomen.

  • 8.
    Aarlesche Vijver

Blijkens de toelichting bij het plan was voorheen bij deze vijver in gebruik als openbaar viswater en was dit ook toegestaan op grond van het bestemmingsplan 'Gemert-Bakel buitengebied 2010'. Met het bestemmingsplan 'Gemert-Bakel buitengebied 2017' heeft de vijver de bestemming 'Natuur' gekregen. Volgens de toelichting is dit zonder motivering gedaan en daarom een omissie. Met het voorliggende bestemmingsplan wordt deze omissie hersteld door de vijver weer de bestemming 'Water' te geven zodat de eigenaar van de vijver weer als visvijver in gebruik kan laten nemen.

Binnen de bestemming 'Water' wordt opgenomen dat het gebruik voor 'waterrecreatieve doeleinden 2' is toegestaan. Op basis van de begripsomschrijving van 'waterrecreatieve doeleinden 2' is echter meer mogelijk dan alleen extensief recreatief vissen. Hiervoor ontbreekt een motivering. De vijver behoort binnen het NNB en op grond van het provinciale beleid strekt een bestemmingsplan tot het behoud, herstel of de duurzame ontwikkeling van de ecologische waarden en kenmerken en bevat regels ter bescherming hiervan. De nu voorliggende bestemmingsregeling voldoet hier onvoldoende aan. Verzocht wordt het plan hierop aan te scherpen.


Reactie:

De regels van het bestemmingsplan worden aangescherpt, zodat bij de vijver alleen extensief recreatief vissen is toegestaan.

  • 9.
    Ven 3 Bakel

Blijkens de toelichting bij het plan betreft dit het herstel van een omissie. Aangegeven wordt dat in het kader van de ontwikkelingen rond de Bakelse Plassen het agrarisch bedrijf op de locatie Ven 3 is beëindigd. De agrarische bedrijfsbebouwing is daarbij deels gesloopt en de agrarische bedrijfsbestemming is daarbij omgezet in een woonbestemming. In ruil daarvoor is blijkens de toelichting de bouw van een tweede woning toegestaan. Echter is bij het opstellen van het voorheen geldende bestemmingsplan Bakelse Plassen al de fout gemaakt om de agrarische bestemming om te zetten in een woonbestemming, zonder daarbij de aanwezigheid van een tweede burgerwoningen mogelijk te maken. Bij het opstellen van het nu geldende bestemmingsplan 'Gemert-Bakel Buitengebied 2017' is de regeling uit het bestemmingsplan Bakelse Plassen voor de locatie Ven 3 integraal overgenomen, dus zonder de mogelijkheid voor die tweede burgerwoning. Met het nu voorliggende plan wordt deze omissie hersteld. Verzocht wordt om nadere informatie met betrekking tot deze herstelactie.


Reactie:

Voor de betreffende tweede woning is reeds in 1977 door burgemeester en wethouders van de toenmalige gemeente Bakel en Milheeze bouwvergunning verleend. Daarbij is niet de voorwaarde gesteld dat, omdat het zou gaan om vervanging van de bestaande woning, die bestaande woning gesloopt zou moeten worden. Met de bouwvergunning is derhalve toestemming verleend voor de bouw van een extra woning. Abusievelijk is dit door de jaren heen nooit in een bestemmingsplan vastgelegd. Steeds is de voorheen geldende regeling overgenomen, zonder acht te slaan op de verleende vergunning. In de toelichting zal dit nader worden toegelicht.

  • 10.
    Planregels

In de planregeling wordt op verschillende plekken verwezen naar de Verordening ruimte Noord-Brabant. Op moment is echter de Interim Omgevingsverordening (IOV) van kracht. Verzocht wordt dit in de planregeling aan te passen;

Artikel 3.6.2 onder d van de planregels benoemt de voorwaarden waaraan voldaan moet worden voor vormverandering ten behoeve van de uitbreiding van de oppervlakte dierenverblijf bij een veehouderij. Er missen echter nog een aantal voorwaarden zoals verplicht op grond van de IOV. Als gevolg daarvan is deze bepaling nog in strijd met het provinciale beleid (idem 3.6.3 onder h, 4.7.1onder c, 4.7.2 onder h);

Artikel 4.3.3 (uitbreiding dierenverblijf) mist nog het vereist zoals bepaald in artikel 3.50 lid 1 sub b;

Artikel 4.3.5 is gebaseerd op een verouderde regeling. De nu geldende regeling met betrekking tot staldering staat in artikel 3.52 IOV. Verzocht wordt de bepaling aan te passen naar de nu geldende regeling (idem 4.5.2);

Artikel 4.7.7 mist nog het vereiste zoals bepaald in artikel 3.76 lid 1 sub b (idem 5.7.2, 9.3.3, 9.5.1, 9.6.1);

Artikel 5.7.1 mist nog de vereisten zoals bepaald in artikel 3.71 IOV.

Reactie:

De planregels worden conform de gemaakte opmerkingen aangepast en aangevuld.

5.1.2 Waterschap Aa en Maas

Op 16 juli 2020 is het advies van Waterschap Aa en Maas ontvangen. Het betreft de volgende opmerkingen en/of aandachtspunten.

  • 1.
    Burgemeester v.d Wildenberglaan 46a in De Rips

Aan de oostzijde van het perceel is een sloot gelegen. Op de perceelsgrens wordt een nieuwe groene rand van 8 meter breed voorzien. In bijlage 4: Landschappelijke inpassing en kwaliteitsinvesteringverbetering is in figuur 2 getekend hoe deze groene rand er uit kan gaan zien. Niet duidelijk is hoe met de sloot wordt omgegaan. De sloot is aangemerkt als een B-watergang. Het verleggen, vergraven of dempen van een B-watergang is niet zonder meer toegestaan en kan alleen als er een vergunning voor wordt aangevraagd. Gevraagd wordt hierover de initiatiefnemer te informeren zodat hier rekening mee gehouden wordt bij het uitvoeren van de landschappelijke inpassing.


Reactie:

De opmerking van het waterschap is doorgegeven aan de initiatiefnemer. Door de initiatiefnemer is aangegeven dat de betreffende sloot ongemoeid blijft. In de ruimtelijke onderbouwing (toelichting) voor deze ontwikkeling is dit toegevoegd.

  • 2.
    Leemskuilendijk 4 in Bakel

Op pagina 38 van de ruimtelijke onderbouwing staat opgenomen dat op basis van het gemeentelijke watertakenplan een waterberging wordt voorzien van 115,2 m3 en dat deze wordt opgenomen in de landschappelijke inpassing. Ik zie deze waterberging echter niet terug in de landschappelijke inpassing.

In het landschapsplan staat dat de overkluizing van de waterloop wordt verwijderd. Deze loop is een A-watergang. Het verwijderen van duikers in A-watergangen moet worden gemeld bij het waterschap en zal in overleg met de eigenaar van het aangrenzende perceel moeten plaatsvinden.


Reactie:

In het landschappelijk inpassingsplan is de wijze waarop in de benodigde waterberging wordt voorzien toegevoegd.

De opmerking over het verwijderen van de overkluizing is doorgegeven aan de initiatiefnemer, met het verzoek hiermee bij de uitvoering rekening te houden.

  • 3.
    Rootvlaas 2 in Bakel

In de beoogde situatie wordt een nieuwe loods voorzien (1000 m2). Daarnaast wordt 2620 m2 bebouwing gesloopt. In het plan staat aangegeven dat het hemelwater afkomstig van het plangebied kan afstromen en worden geïnfiltreerd op de (in eigendom zijnde) omliggende gronden, die in agrarisch gebruik zullen blijven. In het gemeentelijke watertakenplan worden ook bij vervangende nieuwbouw eisen gesteld aan waterberging. In de ruimtelijke onderbouwing wordt niet duidelijk gemaakt hoe aan deze eisen voldaan wordt (of dat infiltratie op de omliggende gronden voldoet aan het Gemeentelijk Watertakenplan). Geadviseerd wordt dit verder uit te laten werken.


Reactie:

De minimale bergingscapaciteit dient, bij een verhard oppervlak van 6330 m2, 380 m3 te bedragen. Daarvoor wordt gebruik gemaakt van de omliggende, agrarisch in gebruik zijnde gronden. De omliggende gronden zijn in een 'komvorm' gesitueerd, waardoor deze fungeren als wadi, waarin het hemelwater afkomstig van het plangebied kan infiltreren. Ten behoeve van deze opvang- en infiltratiefunctie wordt de rand van de akker minimaal 5 tot 10 cm verhoogd. In de ruimtelijke onderbouwing (toelichting) voor deze ontwikkeling is dit nader toegelicht.

  • 4.
    Kaweide 10 in Milheeze

De bestemming 'water' staat in het vigerende bestemmingsplan fout op de kaart en dit wordt met deze herziening gecorrigeerd. Op de verbeelding is de ligging van de A-watergang nu correct aangegeven, deze is echter nog niet aangeduid/ingekleurd met bestemming water


Reactie:

Op de verbeelding wordt de betreffende watergang alsnog bestemd tot 'Water'.

  • 5.
    De Kampen 18 - Kleikampen ong. in Gemert (ontwikkeling)

De waterparagraaf in de toelichting is met name voor Kleikampen ong. nog niet geheel uitgewerkt. Maar omdat de ontwikkeling niet leidt tot een toename van verhard oppervlak > 2000 m2 en er geen andere wateraspecten spelen zijn hierover geen inhoudelijke opmerkingen.


Reactie:

De waterparagraaf is voor de locatie Kleikampen ong. inmiddels verder uitgewerkt. De weerslag daarvan is te vinden in de Toelichting Herontwikkeling De Kampen 18 en Kleikampen ongen. Gemert.

Inmiddels maakt deze locatie niet langer deel uit van voorliggende bestemmingsplanherziening (zie ambtshalve aanpassingen). De reactie zal verwerkt worden in een volgende bestemmingsplanherziening.

5.1.3 Ambtshalve aanpassingen
  • 1. Rootvlaas 2 in Bakel

In het kader van een goede landschappelijke inpassing is het landschappelijk inrichtingsplan op onderdelen aangepast en uitgebreid. Een actuele versie van het plan is als bijlage bij het plan opgenomen. Consequentie van de aanpassingen is een beperkte uitbreiding van de bestemming Groen op de verbeelding.

  • 2. Kaweide 10 in Milheeze

Een deel van de beoogde kwaliteitsverbetering van het landschap bestaat uit het realiseren van bloemrijk grasland. On de daarmee te realiseren natuurwaarden beter te kunnen beschermen wordt over dit deel van het plangebied de bestemming 'Natuur' gelegd.

  • 3. Nokrichting bij ruimte voor ruimte-woningen

Teneinde de conform de planvorming beoogde nokrichting bij de te realiseren ruimte voor ruimte-woningen in het bestemmingsplan vast te leggen wordt op de verbeelding de aanduiding 'nokrichting' toegevoegd. De nokrichting van deze woningen moet uitgevoerd worden conform de daarmee vastgelegde richting.

  • 4. Voorgevelrooilijn bij ruimte voor ruimte-woningen

Teneinde de conform de planvorming beoogde voorgevelrooilijn bij een aantal van de te realiseren ruimte voor ruimte-woningen in het bestemmingsplan vast te leggen wordt op de verbeelding de aanduiding 'gevellijn' toegevoegd. De voorgevel van deze woningen moet gesitueerd worden in de aangeduide gevellijn.

  • 5. Milheesestraat 16 in Milheeze

Omdat de noodzakelijke onderzoeken voor deze ruimte-voor-ruimte ontwikkeling niet tijdig zijn uitgevoerd, maakt deze ontwikkeling niet langer deel uit van de voorliggende bestemmingsplanherziening. Nadat alle onderzoeken volledig zijn uitgevoerd, wordt bekeken hoe voor deze locatie alsnog tot herziening van het bestemmingsplan kan worden gekomen.

  • 6. De Kampen 18 en Kleikampen ong. in Gemert

Omdat de voor deze ontwikkeling noodzakelijke anterieure overeenkomst niet op tijd is ondertekend en ondertekening nog op zich laat wachten, maakt deze ontwikkeling niet langer deel uit van de voorliggende bestemmingsplanherziening. Na ondertekening van de anterieure overeenkomst, wordt bekeken hoe voor deze locatie alsnog tot herziening van het bestemmingsplan kan worden gekomen.

5.2 Zienswijzen

5.3 Ambtshalve aanpassingen