direct naar inhoud van Toelichting
Plan: Paterslaan De Rips
Status: ontwerp
Plantype: bestemmingsplan
IMRO-idn: NL.IMRO.1652.BPPaterslaan-ON01

Toelichting

Hoofdstuk 1 Inleiding

1.1 Aanleiding

In het dorp De Rips heeft de gemeente Gemert-Bakel circa 1,9 ha grond in eigendom. Het betreft de gronden gelegen direct ten oosten van de Paterslaan. De locatie is op de gemeentelijke structuurvisiekaart aangeduid als 'stedelijke ontwikkeling'. De gemeente is voornemens de gronden te gebruiken voor de ontwikkeling van circa 40 woningen. Hiertoe is door de gemeente een Programma van Eisen (PvE) opgesteld met randvoorwaarden waaraan het beoogde nieuwe woongebied dient te voldoen. Het plangebied is in eerste instantie geïnventariseerd en geanalyseerd. Vervolgens is op basis van de resultaten daarvan en aan de hand van het PvE een stedenbouwkundig plan is vervaardigd, dat op 2 juni 2020 door het college van burgemeester en wethouders is geaccordeerd.

Op grond van het vigerende bestemmingsplan “Bakel, Milheeze en de Rips” is het niet mogelijk om het planvoornemen te realiseren. Binnen het plangebied vigeert overwegend de bestemming 'Agrarisch', waarbinnen geen woningen kunnen worden ontwikkeld. Het opstellen van een nieuw bestemmingsplan is dan ook noodzakelijk om ter plaatse in woningbouw met bijbehorende voorzieningen (verkeer, groen, water) te kunnen voorzien. Het onderhavige bestemmingsplan "Paterslaan De Rips" voorziet in de juridisch-planologische basis voor de voorgenomen ontwikkeling en is passend binnen het PvE.

1.2 Ligging en begrenzing plangebied

Het onderhavige plangebied is gelegen ten oosten van de bestaande kern De Rips en wordt aan de westzijde begrensd door de Paterslaan. De noordelijke plangrens wordt gevormd door de sportvelden van sportpark De Blaarpeel. Een deel van de bestaande groenzone van het sportpark maakt daarbij deel uit van het plangebied. Aan de zuidzijde wordt de plangrens gevormd door de zuidgrens van de bestaande woonkavel van Paterslaan 12. Deze woning blijft behouden, een deel van het achtererf wordt samen met de rest van het plangebied herontwikkeld. De oostelijke plangrens ten slotte wordt gevormd door het landelijk gebied.

afbeelding "i_NL.IMRO.1652.BPPaterslaan-ON01_0001.png"

Satellietfoto plangebied en omgeving. Het plangebied is weergegeven met een rode contour. Bron: StreetSmart, 2020

Het plangebied bestaat daarmee uit (delen van) de percelen die kadastraal bekend staan als Gemeente Bakel en Milheeze, sectie A, nummers 2848, 4648, 4685 en 4809 (gedeeltelijk). De totale oppervlakte van het plangebied van onderhavig bestemmingsplan bedraagt circa 2,2 hectare. Daarvan is circa 2 hectare momenteel in agrarisch gebruik, behoort circa 1.130 m² tot de bestaande woonkavel van Paterslaan 12 en circa 870 m² tot de bestaande, te behouden groensingel rondom de sportvelden.

1.3 Vigerend bestemmingsplan

Toetsingskader

Ter plaatse van het plangebied vigeert het bestemmingsplan “Bakel, Milheeze en de Rips”, zoals vastgesteld op 5 juli 2012. De gronden zijn in dit bestemmingsplan bestemd als 'Agrarisch', 'Sport' en 'Wonen'. Binnen de bestemming 'Wonen' zijn, binnen het bouwvlak, alleen bestaande woningen toegestaan, tenzij het vervangende nieuwbouw betreft. De bestemming 'Agrarisch' laat uitsluitend agrarisch grondgebruik en daaraan verwante en ondergeschikte functies toe. De bouwmogelijkheden zijn beperkt tot bouwwerken, geen gebouwen zijn. Ter plaatse van de bestemming 'Sport' mogen de gronden enkel worden gebruikt ten behoeve van sportvoorzieningen en daaraan ondergeschikte voorzieningen. Gebouwen zijn uitsluitend binnen een bouwvlak toegestaan.

afbeelding "i_NL.IMRO.1652.BPPaterslaan-ON01_0002.png"

Uitsnede vigerend bestemmingsplan “Bakel, Milheeze en de Rips”. De rode contour toont de ligging van het plangebied voor onderhavig bestemmingsplan. Bron: ruimtelijkeplannen.nl, 2020.

Beoordeling

Het planvoornemen gaat uit van de realisatie van een woongebied met grondgebonden woningen, bijbehorende infrastructuur en groen- en watervoorzieningen. Deze ontwikkeling is niet mogelijk op basis van de in het plangebied geldende bestemmingen. Binnen de bestemming 'Wonen' is de bouw van aanvullende woningen niet mogelijk en de bestemmingen 'Agrarisch' en 'Sport' staan de bouw van woningen en de aanleg van wegen in het geheel niet toe.

Realisatie van het woningbouwplan is niet mogelijk op basis van het vigerende bestemmingsplan. Om het plan juridisch-planologisch mogelijk te maken dient een nieuw bestemmingsplan te worden opgesteld. Dit betreft het onderhavige bestemmingsplan "Paterslaan De Rips".

Conclusie

Geconcludeerd kan worden dat het voorliggende planvoornemen niet direct mogelijk is op basis van het vigerende bestemmingsplan. Door middel van onderhavig bestemmingsplan wordt de beoogde realisatie van nieuwe woningen met bijbehorende voorzieningen mogelijk gemaakt.

1.4 Leeswijzer

In hoofdstuk 2 wordt een beschrijving van de bestaande situatie in en om het plangebied gegeven. Daarnaast wordt in dit hoofdstuk ingegaan op de toekomstige situatie. In hoofdstuk 3 wordt getoetst aan de vigerende ruimtelijke beleidskaders. Hoofdstuk 4 gaat in op de geldende randvoorwaarden en planologisch relevante (milieu)aspecten voor het plan. In hoofdstuk 5 wordt ingegaan op de toelichting van de bestemmingsplanregels en de verbeelding. Ten slotte wordt in hoofdstuk 6 de economische uitvoerbaarheid van het plan inzichtelijk gemaakt en in hoofdstuk 7 wordt ingegaan op de resultaten van de planologische procedure.

Hoofdstuk 2 Beschrijving bestaande en beoogde situatie

2.1 Inleiding

Voor het formuleren van het beleid en het opstellen van het bestemmingsplan is het van belang dat de uitgangspunten van de huidige situatie en gewenste situatie van het plangebied goed in beeld worden gebracht. Het plangebied is om deze reden geïnventariseerd en geanalyseerd. In dit hoofdstuk wordt de huidige en beoogde situatie binnen het plangebied beschreven. Daarbij wordt mede ingegaan op de aspecten verkeer en parkeren.

2.2 Ontstaansgeschiedenis

Gemeente Gemert-Bakel

Het plangebied is gelegen in de gemeente Gemert-Bakel, een gemeente in het oosten van de provincie Noord-Brabant die in 1997 ontstaan is uit een fusie tussen de voormalige gemeentes Gemert en Bakel en Milheeze. Het dorp De Rips behoorde tot de laatstgenoemde gemeente. Per 1 januari 2019 telt de gemeente Gemert-Bakel 30.447 inwoners (Bron: CBS) en bestaat naast De Rips uit de dorpen Bakel, Gemert, Handel, Milheeze, De Mortel en Elsendorp.

De Rips

De geschiedenis van het dorp De Rips begint formeel 100 jaar geleden, wanneer in 1920 volgens een plan van de Heidemij het dorp werd gesticht met een rooms-katholieke kerk, een school en een aantal arbeiderswoningen aan de hoofdwegen. Aan de hand van de onderstaande kaartuitsnedes is, via stappen van 30 jaar, de ontwikkeling van De Rips en het plangebied te zien vanaf de stichting van het dorp in 1920 tot heden. Het plangebied bestond uit net ontgonnen voormalige heidegronden. De Paterslaan bestond uit niet meer dan een aanzet vanaf de huidige Burg. v.d. Wildenberglaan. Het huidige pand aan de Paterslaan 23 is in 1924 gereed gekomen als boerderij. In 1950 is te zien dat de Paterslaan geheel is doorgetrokken naar de Blaarpeelweg en dat het plangebied in gebruik is als weidegrond en akkerland. De woning aan de Paterslaan 12 komt ook uit deze periode en dateert van 1956. De bebouwing van het dorp is nog altijd geconcentreerd als lintbebouwing aan de hoofdwegen.

afbeelding "i_NL.IMRO.1652.BPPaterslaan-ON01_0003.png"

Kaartuitsnedes topografische kaarten van de periode 1920-2010 (bron: kadaster, 2019)

In 1980 is er, los van een gewijzigde parcellering, geen grote verandering waarneembaar in het plangebied. In het dorp zelf zijn wel enige wijzigingen opgetreden. De kerk en voorzieningen zijn vanaf de hoofdweg het dorp in verplaatst en vormen een nieuw dorpshart. Parallel aan de hoofwegen zijn nieuwe buurtwegen tot stand gekomen waarlangs aan beide zijden nieuwbouw is gerealiseerd. Deze ontwikkeling heeft zich in de jaren daarna doorgezet en in 2010 is te zien dat nagenoeg het gehele gebied gelegen tussen de hoofdwegen, de Blaarpeelweg en de Paterslaan tot de kern is gaan behoren. Het pand aan de Paterslaan 23 heeft de agrarische functie verloren en is omgezet naar een burgerwoning. Het plangebied is nagenoeg in zijn geheel in gebruik als akkerland, met uitzondering van de woning met bijbehorende gronden aan de Paterslaan 12 en de groensingel rondom het sportpark.

Op de onderstaande kaart en luchtfoto is de huidige situatie van het plangebied en het dorp De Rips weergegeven.

afbeelding "i_NL.IMRO.1652.BPPaterslaan-ON01_0004.png"

Kaartuitsnede topografische kaart 2019 (bron: kadaster, 2020)

afbeelding "i_NL.IMRO.1652.BPPaterslaan-ON01_0005.png"

Vogelvluchtfoto plangebied en omgeving (bron: StreetSmart, 2020)

2.3 Bestaande situatie plangebied

Ruimtelijke hoofdstructuur

Op het schaalniveau van De Rips en omgeving is duidelijk de orthogonale structuur herkenbaar in het landschap die voortkomt uit de geschiedenis van de heide- en veenontginningen (rasterverkaveling). Zowel de (hoofd)wegenstructuur als de agrarische percelen en de kern De Rips zelf schikken zich naar deze historische structuur. De kenmerkende blokvormige agrarische percelen zijn in de loop der jaren deels samengevoegd, maar de oorspronkelijke perceelsgrenzen zijn nog grotendeels herkenbaar in het landschap. Met uitzondering van de laatste twee tot drie decennia heeft ook de uitbreiding van de bebouwde kern op orthogonale wijze plaatsgevonden. De meest recente woonstraten wijken in geringe mate af van dit patroon.

Het dorp heeft aan de noord- en oostzijde een duidelijk herkenbare harde kernrand, gevormd door respectievelijk de Blaarpeelweg en de Paterslaan. Aan de zuid- en westzijde is sprake van een diffuse kernrand als gevolg van de lintbebouwing die zich in de loop der tijd langs de hoofdwegen heeft ontwikkeld.

Wanneer naar individuele kenmerkende elementen wordt gekeken valt nabij het plangebied het beeldbepalende pand aan de Paterslaan 23 op. Net als de Simonshoeve, op de kop van de Paterslaan (kruising met de Blaarpeelweg), betreft het een in traditionele stijl opgetrokken boerderijgebouw. In de kern is de door bos en bosschages omgeven kerk in wederopbouwarchitectuur als beeldbepalende structuur herkenbaar. Tenslotte vormt het veevoederbedrijf van Fransen Gerrits nabij de kruising (rotonde) van de historische hoofdwegen een pand dat beeldbepalend is voor De Rips. Als overige kenmerkende groenstructuren zijn de door houtsingel omgeven sportvelden, het bos nabij de brandweerkazerne en de omvangrijke bosgebieden ten zuidwesten van het dorp aanwijsbaar.

afbeelding "i_NL.IMRO.1652.BPPaterslaan-ON01_0006.png"

Kaart ruimtelijke hoofdstructuur, met de duidelijke herkenbare orthogonale structuur

afbeelding "i_NL.IMRO.1652.BPPaterslaan-ON01_0007.png"

afbeelding "i_NL.IMRO.1652.BPPaterslaan-ON01_0008.png"

Impressie van het plangebied in de huidige situatie

Bebouwingsstructuur

Het plangebied zelf is, met uitzondering van de bestaande woning aan de Paterslaan 12, volledig onbebouwd, maar grenst wel direct aan de bestaande kern van De Rips. De bebouwingstructuur van het aangrenzende woongebied wordt gekenmerkt door bouwstroken van vrijstaande en half-vrijstaande woningen in één tot twee bouwlagen en afgedekt met een kap. De woonkavels zijn overwegend 200 tot 600 m² groot. Gebouwen die buiten deze planmatige structuur van bouwstroken vallen zijn het beeldbepalende pand aan de Paterslaan 23 en in mindere mate de panden ter hoogte van de entree van de Paterslaan vanaf de hoofdweg. Het pand aan de Paterslaan 23 alsmede de nieuwbouwwoningen ten noorden daarvan zijn met de voorgevels op het plangebied georiënteerd. De woningen ten zuiden van Paterslaan 23 hebben een minder eenduidige oriëntatie. Deels is hier sprake van zijkanten gericht op het plangebied.

Eveneens afwijkend van de overheersende bebouwingstructuur zijn het kleinschalige bedrijventerrein ten noordwesten van het plangebied, waar de bebouwing als nagenoeg één gesloten massa overkomt, en het licht gebogen stratenpatroon van de woongebieden die in de afgelopen 25 jaar zijn gerealiseerd.

Kijkend naar de contactmomenten tussen het plangebied en het achterliggende deel van de bestaande woonbuurten, worden deze gevormd door de haaks op de Paterslaan staande woonstraten. Met uitzondering van de Leeuwerikstraat kennen deze straten geen duidelijk eindemarkering en is daarmee direct zicht op het plangebied mogelijk. De Leeuwerikstraat wordt beëindigd door middel van een laag groenelement, waardoor een zichtlijn naar het buitengebied bestaat.

Functionele structuur

Het plangebied kent, uitgezonderd de uiterste noord- en zuidrand, een agrarisch gebruik en maakt in dat opzicht onderdeel uit van een grotere akker die in oostelijke richting doorloopt. Ten westen van de Paterslaan is sprake van primair een woonfunctie. Als uitzondering daarop gelden de bedrijven ten noordwesten van het plangebied en de overgang tussen de bedrijven en het woongebied, gevormd door een aantal woningen met een bedrijf of beroep aan huis, waaronder een kapsalon. Ten noorden van het plangebied domineert de sportfunctie, bestaande uit voetbal- en tennisvelden. Zuidelijk van het plangebied gaat de woonfunctie over in een natuurfunctie ter hoogte van het bos nabij de brandweerkazerne.

Verder de wijk in is openbaar groen gelegen met daarbij een speelvoorziening. Voor het overige overheerst de verkeersfunctie in de openbare ruimte, bestaande uit woonstraten en ontsluitingswegen. De ontsluiting van dit deel van De Rips naar de hoofdwegen loopt primair aan de zuidzijde via de Paterslaan. Aan de noordzijde van de paterslaan is een secundaire wijkontsluiting aanwezig, uitgevoerd als eenrichtingsweg en daarmee niet in gebruik als toegangsweg tot de wijk. De historische wegen hebben met name een functie als wijkontsluitingsweg, terwijl de meer recent aangelegde woonstraten vooral functioneren als buurtontsluiting.

2.4 Beoogde situatie plangebied

2.4.1 Planvoornemen

Het planvoornemen gaat uit van de realisatie van een nieuw woongebied met bijbehorende voorzieningen aan de oostzijde van het bestaande dorp De Rips. Ten behoeve van het vervaardigen van een stedenbouwkundig plan, de inrichting van de openbare ruimte en de verkeerskundige opzet is door de gemeente een Programma van Eisen (PvE) opgesteld. Dit PvE vormt, samen met de uitgangspunten die uit de analyse en inventarisatie van het plangebied zijn voortgekomen, de leidraad voor de opzet van het planvoornemen.

Voor het opstellen van het PvE is het kadastrale perceel met nummer 4685 als initieel plangebied gehanteerd. De uitgangspunten voor wat betreft de totale hoeveelheid uitgeefbare grond en het aantal en type woningen zijn dan ook gebaseerd op de oppervlakte van dat betreffende perceel (circa 1,9 hectare). Voor de kadastrale percelen met nummers 2848 en 4648 (totaal circa 0,24 hectare) gelden afzonderlijke eisen met betrekking tot het aantal en het type te realiseren woningen. Waar dat het geval is, is dat onderstaand aangegeven. De overige uitgangspunten uit het PvE gelden voor het gehele plangebied, dus inclusief de kadastrale percelen met nummers 2848 en 4648.

Programma van Eisen

Stedenbouw

  • Hoeveelheid uitgeefbare grond: 11.000 m² (exclusief circa 1.800 m² uitgeefbaar percelen 2848 en 4648);
  • Aantal kavels: maximaal 40 (exclusief 3 nieuwe kavels en bestaande kavel Paterslaan 12 percelen 2848 en 4648);
  • Kavelgrootte: vanaf 200 m² (divers aanbod);
  • Typologie: vrijstaand, twee-onder-een-kap of aaneengebouwd (percelen 2848 en 4648 en percelen grenzend aan buitengebied: uitsluitend vrijstaand);
  • Nieuwe uitbreiding richting oost moet mogelijk zijn;
  • Maximaal twee lagen met kap;
  • Bij bestaande bouw aansluiten;
  • Sociale koop / vrije koop: 40/60 ratio (percelen 2848 en 4648: uitsluitend vrije koop);
  • Zelfbouw;
  • Aanleg in fases moet mogelijk zijn (Westkant eerst, daarna richting oost uitbreiden);
  • Aansluiten bij de standaardregels voor woningen;
  • Indien mogelijk herkenbaar maken of herstellen historische bebouwingsstructuur;
  • Indien mogelijk gebruik maken van landmarks of karakteristieke kenmerken;
  • Indien mogelijk toepassen zichtlijnen.

Openbare ruimte

  • Voldoen aan de groennorm van 75 m² per woning;
  • Waterberging op eigen terrein conform gemeentelijk watertakenplan;
  • Klimaat robuust ontwerpen; moet voldoen aan de waterbergingsnorm van 60 l/m²;
  • Rekening houden met waterstromen, waterberging op een logische plek aanleggen: het is een gebied dat te kampen heeft met wateroverlast;
  • Riolering: nieuwe ontwikkelingen hebben altijd een gescheiden riolering;
  • Mogelijk gebruik historische landschapspatronen;
  • Indien mogelijk herkenbaar maken historische groenstructuren;
  • Indien mogelijk verbinden bestaande groengebieden in relatie met nieuwe bebouwing.

Verkeer

  • Plangebied heeft snelheidsregime van 30 km/u, inrichting conform uitgangspunten CROW en HOOR;
  • 2 ontsluitingen van plangebied op bestaande infrastructuur;
  • Voorkomen van lange rechtstanden in verband met verkeersveiligheid (snelheid);
  • Profielbreedte biedt ruimte voor alle benodigde functies.
  • Voor parkeren moet worden voldaan aan de Nota Parkeernormen Gemert-Bakel 2017 (kencijfers en maatvoering);
  • Minimaal 1 parkeerplaats per woning op eigen bouwperceel.

Uitgangspunten analyse en inventarisatie

Op basis van de uitgevoerde analyse en inventarisatie van het plangebied gelden, aanvullend op en aansluitend bij het PvE, de volgende uitgangspunten:

  • In acht nemen orthogonale structuren van zowel de bebouwde als onbebouwde omgeving;
  • Rekening houden met historische structuren en elementen;
  • Behouden contact met buitengebied én bestaande kern (zichtrelaties), waaronder doorzicht vanuit Paterslaan 23;
  • Anticiperen op bestaande zijkantsituaties;
  • Voorgevels aan de kant van de Paterslaan richting de Paterslaan, met op hoekpercelen een tweezijdige oriëntatie van gevels;
  • Voortzetten van en aansluiten bij bestaande wegprofielen, bouwmassa's, bouwstijlen en typologieën;
  • Benadrukken Paterslaan als primaire ontsluitingsweg;
  • In acht nemen mogelijke belemmeringen vanuit omliggende functies (o.a. geluid- en lichthinder Sportpark De Blaarpeel, geluidhinder N277);
  • Aansluiting zoeken bij bestaande groenstructuren in de omgeving (met name aan de noord- en zuidzijde) bij de inrichting van de openbare ruimte en landschappelijke inpassing.

2.4.2 Stedenbouwkundig plan

Het op basis van de voornoemde uitgangspunten opgestelde stedenbouwkundige plan vormt het raamwerk voor de opzet van het onderhavige bestemmingsplan. De ruimtelijke hoofdopzet (uitgeefbare grond, infrastructuur, groen en water) is vertaald naar de verbeelding. Het stedenbouwkundige plan geeft tevens een aanzet tot de verkaveling van de uitgeefbare gronden, het profiel van de wegen en de inrichting van het openbaar groen. Met het oog op het behouden van voldoende flexibiliteit bij de realisatie van het woongebied zijn deze aspecten, met uitzondering van de landschappelijke inpassing, niet expliciet vastgelegd in de regels. De exacte invulling van de verkaveling en inrichting van de openbare ruimte is derhalve, binnen de gestelde kaders, vrij.

Ruimtelijke hoofdopzet

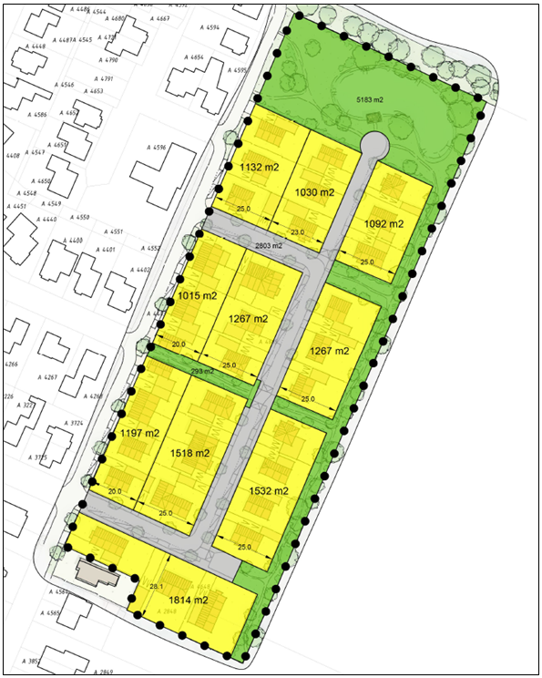
De ruimtelijke hoofdstructuur van het stedenbouwkundig plan wordt gekenmerkt door een orthogonale verkavelingsopzet, gedragen door een centrale ontsluitingslus en door groen omzoomd en dooraderd. De totale hoeveelheid uitgeefbare grond bedraagt circa 12.850 m², waarvan circa 1.800 m² op de kadastrale percelen met nummers 2848 en 4648. Er is circa 2.800 m² aan nieuwe infrastructuur voorzien. De hoeveelheid groen (exclusief de bestaande groensingel om het sportpark) bedraagt circa 5.450 m². In de ruimtelijke hoofdopzet ligt vast dat tussen de sportvelden en de woonkavels een afstand van minimaal 50 meter zit. Ook waarborgt de hoofdopzet een zichtrelatie tussen Paterslaan 23 en het buitengebied. De ruimtelijke hoofdopzet maakt het mogelijk om het woongebied gefaseerd te realiseren, te beginnen met de bouwstrook direct aan de Paterslaan, vervolgens de daar achter bouwstrook en de weg en als laatste de bouwstrook die grenst aan de groene rand aan de oostzijde. De woningen in de laatste bouwstrook liggen op ruime kavels en bestaan uit maximaal 1 tot 1½ bouwlaag met kap.

afbeelding "i_NL.IMRO.1652.BPPaterslaan-ON01_0009.png"

Ruimtelijke hoofdopzet stedenbouwkundig plan

Bebouwingsstructuur

Het stedenbouwkundig plan, zoals geaccordeerd door het college op 2 juni 2020, laat een mogelijke invulling van de ruimtelijke hoofdopzet zien in de vorm van een verkavelingsvoorstel. Daarbij is aansluiting gezocht bij de bestaande woningen aan de Paterslaan en het achterliggende woongebied. De woningen zijn met de voorgevels gericht op de Paterslaan en de nieuw aan te leggen wegen. Op hoeksituaties is sprake van een tweezijdige oriëntatie van de woningen. Door te variëren in de voorgevelrooilijnen wordt afwisseling in de straatwand bevorderd.

afbeelding "i_NL.IMRO.1652.BPPaterslaan-ON01_0010.png"

Uitsnede verkavelingsvoorstel

Ontsluitingsstructuur

De ontsluitingsstructuur van het woongebied gaat uit van 2 nieuwe aansluitingen op de Paterslaan voor zowel gemotoriseerd als langzaam verkeer. Er bevindt zich een aansluiting ter hoogte van Paterslaan 23 (teneinde een doorzicht te kunnen creëren) en een aansluiting ter hoogte van het punt waar de Lambertweg op de Paterslaan aansluit. Daarnaast zijn er extra ontsluitingen voor uitsluitend langzaam verkeer, uitkomend op de Paterslaan ter hoogte van Leeuwerikstraat en nabij de Korhoenstraat en een aansluiting op het groengebied ten zuidoosten van het plangebied.

De nieuwe wegenstructuur heeft een U-vorm, met aan de noordzijde een zijweg met een cul-de-sac, uitkomend in de groenzone aan de noordzijde. Het principeprofiel van de U-vorm bestaat uit een tweezijdig bebouwde weg met een totale profielbreedte van 10 meter. Binnen deze breedte is ruimte voor een rijbaan van 4,5 meter, een goot van 0,5 meter, een voetpad van 1,5 meter, 3 meter voor langsparkeren en/of een groenstrook met bomen en totaal 0,5 meter voor weg- en trottoirbanden. De zijweg is eveneens tweezijdig bebouwd, maar heeft een totale profielbreedte van 6,8 meter, bestaande uit 4,5 meter rijbaan, 2 meter voor langsparkeren en/of een groenstrook met bomen en totaal 0,3 meter voor wegbanden. De profielbreedte van de U-vorm biedt ruimte voor het aanbrengen van knikken in de rijbaan, ter voorkoming van lange rechtstanden.

afbeelding "i_NL.IMRO.1652.BPPaterslaan-ON01_0011.png"

Principeprofielen wegen

Groenstructuur

Uitgangspunt is het tot stand brengen van een robuuste en herkenbare groenstructuur, die door het hele plangebied waarneembaar is. Dit wordt bereikt door het realiseren van een groot groengebied aan de noordzijde van het plangebied, dat direct grenst aan de groensingel rondom het sportpark. Dit groengebied meet circa 50 bij 86 meter en biedt behalve voor groen- en speelvoorzieningen ook ruimte voor de benodigde waterberging (circa 1.850 m²). Met een totale oppervlakte aan groen van 5.476 m² wordt ruimschoots voldaan aan de minimale groennorm van 75 m². Er is uitgaande van maximaal 43 woningen minimaal 127 m² aan (nieuw) groen per woning aanwezig binnen het plangebied.

Vanuit het groengebied aan de noordzijde loopt, ter landschappelijke inpassing van het nieuwe woongebied, een circa 7 meter brede groenstrook aan de oostzijde van het plangebied naar het zuiden toe. Deze groenstrook verbindt het groengebied aan de noordzijde met het bestaande park ten zuidoosten van het plangebied en creëert daarmee een nieuwe wandelroute. Binnen de groenstrook worden op de erfgrens tevens hagen geplant als erfafscheiding van de aan de groenstrook grenzende achtertuinen. Het onderhoud van deze hagen geschiedt door de betreffende bewoners en wordt vastgelegd in de koopakte met een kettingbeding. Tussen de groenstrook en de Paterslaan loopt ter hoogte van de Leeuweriklaan een oost-west gerichte aansluitende groenstrook van circa 6 meter breed. Behalve deze hoofdgroenstructuur is binnen het plangebied tevens groen aanwezig tussen de parkeervakken langs de wegen.

2.5 Parkeren en verkeer

2.5.1 Parkeren

Toetsingskader

Met de inwerkingtreding van de "Reparatiewet BZK" op 29 november 2014 is het verplicht om het parkeren te reguleren middels de bestemmingsregeling. In de bestemmingsregeling kan worden opgenomen dat bij aanvraag om omgevingsvergunning (voor het bouwen en / of afwijken) dient te worden aangetoond dat wordt voldaan aan de van toepassing zijnde parkeernormen. In het kader van 'een goede ruimtelijke ordening' dient echter al bij vaststelling van een bestemmingsplan inzichtelijk te worden gemaakt dat redelijkerwijs in de aldus benodigde parkeerplaatsen feitelijk duurzaam kan worden voorzien (ECLI:NL:RVS:2017:1036, r.o. 5.3). Het aantal benodigde parkeerplaatsen wordt bepaald door het geldende parkeerbeleid.

Beoordeling 

Het aantal benodigde parkeerplaatsen hangt sterk af van de ligging en samenstelling van de gemeente. Er wordt daarom onderscheid gemaakt in de zogenaamde stedelijkheidsgraad van de gemeente. De gemeente Gemert-Bakel heeft in haar parkeerbeleidsnota geformuleerd dat voor een kern als De Rips de parkeerkencijfers van een 'weinig stedelijke' omgeving gehanteerd dient te worden voor ontwikkelingen in de kernen buiten Gemert of Bakel om. Daarnaast dient uitgegaan te worden van de minimale parkeerkencijfers, zoals beschreven in het parkeerbeleid van de gemeente Gemert-Bakel.

Voorliggend initiatief voorziet in de ontwikkeling van maximaal 43 grondgebonden koopwoningen in diverse typen. Ten aanzien van deze woningen geldt een parkeernorm van 1,8 parkeerplaatsen per aaneengebouwde woning, 2,1 parkeerplaatsen per twee-onder-een-kapwoning en 2,2 parkeerplaatsen per vrijstaande woning.

Aan de parkeerbehoefte wordt voldaan doordat in hoofdzaak op eigen terrein geparkeerd wordt. In de openbare ruimte zullen daarnaast een aantal langsparkeerplaatsen worden aangelegd. Hiervoor is voldoende ruimte aanwezig, zo blijkt uit het verkavelingsvoorstel zoals gepresenteerd in paragraaf 2.4.2.

Om te borgen dat bij de uiteindelijke uitvoering voorzien wordt in voldoende parkeerplaatsen overeenkomstig de parkeerbeleidsnota is in de regels van het bestemmingsplan, waarmee onderhavig planvoornemen juridisch-planologisch mogelijk wordt gemaakt, een dynamische parkeerregeling opgenomen.

Conclusie

Binnen het plangebied wordt voorzien in voldoende parkeergelegenheid waardoor voldaan wordt aan de gemeentelijke parkeernormen.

2.5.2 Verkeersgeneratie

Ten behoeve van het bepalen van de verkeersgeneratie die het plan met zich meebrengt en de wijze waarop het verkeer wordt afgewikkeld, is een verkeersparagraaf opgesteld. Deze is als Bijlage 1 bij de toelichting opgenomen. Uit het verkeersonderzoek is gebleken dat ten gevolge van het woningbouwplan geen verkeersproblemen te verwachten zijn.

In samenhang met de woningbouw zal de Paterslaan worden geherstructureerd. Deze herstructurering maakt echter geen onderdeel uit van het onderhavige bestemmingsplan. Voorts biedt het bestemmingsplan de kaders om binnen het plangebied wegen aan te leggen met een ruim voldoende profiel, aansluitend op de bestaande wegprofielen in de omgeving en berekend op het hedendaagse verkeersbeeld.

Het plangebied is per auto, fiets en te voet bereikbaar door middel van ontsluitingen op de Paterslaan.

Hoofdstuk 3 Beleidskader

3.1 Inleiding

De beleidscontext voor het plangebied wordt gevormd door landelijke, provinciale, en gemeentelijke beleidsrapportages. In dit hoofdstuk is het relevante beleid samengevat.

3.2 Rijksbeleid

3.2.1 Structuurvisie Infrastructuur en Ruimte (SVIR) 2012

Toetsingskader

Op 13 maart 2012 is de Structuurvisie Infrastructuur en Ruimte (SVIR) van kracht geworden. Deze structuurvisie vormt de uitwerking van de ambities van het Rijk, op basis van haar verantwoordelijkheden, in Rijksdoelen en daarmee samenhangende nationale belangen op het gebied van een samenhangend ruimtelijk en mobiliteitsbeleid. Het Rijk heeft tot doel Nederland concurrerend, bereikbaar, leefbaar en veilig te maken in een periode van economische conjunctuurschommelingen, klimaatverandering en toenemende regionale verschillen. Aanleiding voor het vaststellen van de visie is de constatering dat het voorheen geldende ruimtelijke Rijksbeleid onvoldoende bijdroeg aan het behalen van deze doelen, onder meer door het veroorzaken van bestuurlijke drukte, ingewikkelde regelgeving en een te sectorale blik op vraagstukken. Om dit te keren brengt het Rijk de ruimtelijke ordening zo dicht mogelijk bij diegene die het aangaat en laat het meer over aan gemeenten en provincies.

Het Rijk onderscheidt thans nog dertien nationale belangen; uitsluitend op basis van deze belangen intervenieert het Rijk in de ruimtelijke ordening. Een groot deel van deze belangen leidt tot het reserveren van ruimte voor functies. Dit betreft dan bijvoorbeeld het reserveren van ruimte voor waterberging, militaire activiteiten en de uitbreiding van het hoofdwegennet. Deze belangen zijn vastgelegd in het Besluit algemene regels ruimtelijke ordening (Barro) en de Regeling algemene regels ruimtelijke ordening (Rarro). Eén van de belangen die niet leidt tot een ruimtereservering is het belang van een 'zorgvuldige afweging en transparante besluitvorming bij alle ruimtelijke en infrastructurele besluiten'. In het kader van dit belang heeft het Rijk besloten om, ten behoeve van het verminderen van de bestuurlijke drukte en het neerleggen van verantwoordelijkheden bij decentrale overheden, de verstedelijkingsstrategie te wijzigen. Dit houdt in dat het bundelingsbeleid, verdichtingsbeleid, locatiebeleid voor bedrijven en voorzieningen, beleid voor basiskwaliteit, stedelijke netwerken, nationale landschappen en rijksbufferzones is afgeschaft en dat daar slechts één beleidslijn voor terug komt: de 'ladder voor duurzame verstedelijking'. Deze 'ladder' heeft tot doel het principe van vraaggericht programmeren en het principe van zorgvuldig ruimtegebruik bindend voor te schrijven bij de afwegingen van gemeenten en provincies. Dit belang is als procesvereiste vastgelegd in het Besluit ruimtelijke ordening (Bro).

Grondgedachte van de 'ladder' is dat een activiteit op meerdere locaties zou kunnen plaatsvinden en dat vervolgens de planologisch meest juiste locatie gekozen moet worden. Dat gaat uit van de activiteit. Hiermee wordt beoogd om de voorheen bestaande praktijk, waarbij in veel gevallen een bestemming wordt gezocht voor een bepaalde locatie (bv. herbestemmen van een voormalige vuilstortplaats), om te vormen.

Beoordeling

Voorliggend plangebied is niet gelegen in een gebied waarvoor van rijkswege een ruimtereservering geldt. Uitsluitend het nationale belang van een 'zorgvuldige afweging en transparante besluitvorming bij alle ruimtelijke en infrastructurele besluiten', als vervat in de 'ladder voor duurzame verstedelijking', is van toepassing op onderhavig plan. Aan dit belang wordt navolgend getoetst.

Conclusie

Het planvoornemen is passend binnen de Structuurvisie Infrastructuur en Ruimte van het Rijk.

3.2.2 Beleid en ministeriële regeling algemene regels ruimtelijke ordening (Barro, Rarro), 2012

Toetsingskader

Het Rijk heeft in de hiervoor genoemde SVIR vastgesteld dat voor een beperkt aantal onderwerpen de bevoegdheid om algemene regels te stellen zou moeten worden ingezet. De SVIR bepaalt welke kaderstellende uitspraken zodanig zijn geformuleerd dat deze bedoeld zijn om beperkingen te stellen aan de ruimtelijke besluitvormingsmogelijkheden op provinciaal en gemeentelijk niveau. Ten aanzien daarvan is een borging door middel van normstelling, gebaseerd op de Wet ruimtelijke ordening, gewenst. Die uitspraken onderscheiden zich in die zin dat van de provincies en de gemeenten wordt gevraagd om de inhoud daarvan te laten doorwerken in de ruimtelijke besluitvorming. Zij zijn dus concreet normstellend bedoeld en worden geacht direct of indirect door te werken tot op het niveau van de lokale besluitvorming, zoals de vaststelling van bestemmings- en wijzigingsplannen.

Het Besluit algemene regels ruimtelijke ordening (Barro) bevestigt in juridische zin die kaderstellende uitspraken. Op 30 december 2011 is het Barro in werking getreden met daarin een regeling voor een beperkt aantal onderwerpen. Op 1 oktober 2012 is het besluit aangevuld met regels voor de andere beleidskaders uit de SVIR en tevens uit het Nationaal Waterplan en het Derde Structuurschema Elektriciteitsvoorziening. Door de nationale belangen vooraf in bestemmingsplannen te borgen, wordt met het Barro bijgedragen aan versnelling van de besluitvorming bij ruimtelijke ontwikkelingen en vermindering van de bestuurlijke drukte. Een aantal onderwerpen is geregeld in de bij het Barro behorende Regeling algemene regels ruimtelijke ordening (Rarro).

Beoordeling

Het onderhavige plangebied is gelegen in het obstakelbeheergebied van vliegbasis De Peel / luitenant-generaal Bestkazerne, bestaande uit ondermeer het Inner Horizontal and Conical Surface (IHCS) en het Instrument Landing System (ILS). Het plangebied ligt daarbij binnen een deel van de IHCS. Ook ligt het plangebied binnen het radarverstoringsgebied van radarstations Herwijnen en Volkel. Zowel het obstakelbeheersgebied als de radarverstoringsgebieden zijn opgenomen in het Rarro, waarbij de IHCS als gebiedsaanduiding is opgenomen in de regels van dit bestemmingsplan. De ligging in dit gebied vormt geen belemmering, aangezien de maximaal toegestane bouwhoogtes (zijnde 65 meter boven N.A.P. als meest beperkende) niet gehaald worden.

Met betrekking tot de ligging van het plangebied binnen de radarverstoringsgebieden is geen regeling opgenomen in dit bestemmingsplan. Voor radarstation Herwijnen gaan ter plaatse van het plangebied slechts beperkingen uit naar de bouwhoogte van windturbines. Deze worden niet mogelijk gemaakt. In het radarverstoringsgebied van radarstation Volkel geldt ter hoogte van De Rips (gelegen op 14,8 kilometer van het radarstation) een maximale bouwhoogte van 103 meter voor alle bouwwerken. In het onderhavige plan wordt geen nieuwe bebouwing mogelijk gemaakt boven de ter plaatse geldende maximale hoogtemaat. Het initiatief heeft daarmee geen gevolgen voor het radarstation.

afbeelding "i_NL.IMRO.1652.BPPaterslaan-ON01_0012.png"

Ligging van het plangebied binnen het obstakelbeheersgebied van vliegbasis De Peel / luitenant-generaal Bestkazerne. De rode aanwijzer toont de ligging van het plangebied. Bron: ruimtelijkeplannen.nl, 2020.

afbeelding "i_NL.IMRO.1652.BPPaterslaan-ON01_0013.png"

Ligging van het plangebied binnen het radarverstoringsgebied van radarstations Herwijnen en Volkel. De rode aanwijzer toont de ligging van het plangebied. Bron: ruimtelijkeplannen.nl, 2020.

Voor het overige zijn er ten aanzien van het onderhavige plan geen regels uit het Barro en de Rarro van toepassing, aangezien er bij onderhavige ontwikkeling geen nationale belangen of nationaal aangewezen gebieden zijn gemoeid.

Conclusie

Geconcludeerd kan worden dat onderhavige ontwikkeling passend is binnen de regels zoals gesteld in het Barro en de Rarro.

3.2.3 Ladder voor duurzame verstedelijking (art. 3.1.6 lid 2 Bro), 2017

Toetsingskader

Op 1 oktober 2012 is art. 3.1.6, lid 2 toegevoegd aan het Besluit ruimtelijke ordening (Bro); dit artikel bevat de 'ladder voor duurzame verstedelijking'. Met de toevoeging van dit artikel in het Bro is beoogd vanuit een oogpunt van ruimtelijke ordening ongewenste leegstand te vermijden en zorgvuldig ruimtegebruik te stimuleren (ECLI:NL:RVS:2017:353, r.o. 18.5). Op 1 juli 2017 is een wijziging van art. 3.1.6, lid 2 Bro in werking getreden. Het Bro regelt thans dat 'de verantwoording van een juridisch verbindend ruimtelijk besluit van een decentrale overheid dat een nieuwe stedelijke ontwikkeling mogelijk maakt, een beschrijving dient te bevatten van de behoefte aan die ontwikkeling. Tevens is geregeld dat indien het ruimtelijk besluit die ontwikkeling mogelijk maakt buiten het bestaand stedelijk gebied, de verantwoording een motivering dient te bevatten waarom niet binnen het bestaand stedelijk gebied in die behoefte kan worden voorzien'. De definiëring van enkele van de in het artikel genoemde begrippen in art. 1.1.1 Bro laat onverlet dat de 'ladder voor duurzame verstedelijking' als een 'open norm' is te kwalificeren. Dit houdt in dat de norm inhoudelijk open is en onder verschillende omstandigheden nader ingevuld moet worden. Sinds de inwerkingtreding van het artikel heeft de Afdeling bestuursrechtspraak Raad van State (ABRvS) in haar jurisprudentie de norm veelvuldig ingevuld en daardoor verder begrensd. Op 28 juni 2017 heeft de ABRvS een zogenoemde 'overzichtsuitspraak' gedaan (ECLI:NL:RVS:2017:1724, r.o. 2 t/m 12.8), waarin de dan geldende en op basis van de voornoemde wijziging te behouden jurisprudentielijnen nader uiteen worden gezet. Op basis van deze jurisprudentielijnen kan de 'ladder voor duurzame verstedelijking' concreet worden toegepast.

Beoordeling

Toepassing van de 'ladder voor duurzame verstedelijking' houdt een antwoord op de volgende rechtsvragen in. Indien een rechtsvraag positief kan worden beantwoord, dient de 'ladder' verder te worden doorlopen. Indien een rechtsvraag negatief wordt beantwoord, dan is de 'ladder' niet (verder) van toepassing dan wel kan niet aan de 'ladder voor duurzame verstedelijking' worden voldaan.

  • a. Voorziet het onderhavige besluit in een stedelijke ontwikkeling?
  • b. Voorziet het onderhavige besluit in een nieuwe stedelijke ontwikkeling?
  • c. Is er sprake van een behoefte aan de voorziene ontwikkeling?
  • d. Is de voorziene ontwikkeling gelegen buiten bestaand stedelijk gebied?
  • e. Is het mogelijk om de voorziene ontwikkeling binnen bestaand stedelijk gebied te realiseren?

  • a. Voorziet het onderhavige besluit in een stedelijke ontwikkeling?

Uit de 'overzichtsuitspraak' van de ABRvS blijkt dat wanneer een ruimtelijk besluit voorziet in méér dan 11 woningen die, gelet op hun onderlinge afstand, als één woningbouwlocatie zijn aan te merken, deze ontwikkeling in beginsel als een stedelijke ontwikkeling dient te worden aangemerkt. Het onderhavige planvoornemen, dat uitgaat van een woningbouwlocatie met maximaal 43 woningen, dient te worden beschouwd als een stedelijke ontwikkeling.

  • b. Voorziet het onderhavige besluit in een nieuwe stedelijke ontwikkeling?

Bij de beantwoording van de vraag of een stedelijke ontwikkeling die een bestemmingsplan mogelijk maakt een nieuwe stedelijke ontwikkeling in de zin van artikel 3.1.6, tweede lid, van het Bro behelst, moet in onderlinge samenhang worden beoordeeld in hoeverre het plan, in vergelijking met het voorgaande bestemmingsplan, voorziet in een functiewijziging en welk planologische beslag op de ruimte het nieuwe plan mogelijk maakt in vergelijking met het voorgaande bestemmingsplan. Het vigerende planologische kader voorziet overwegend in een agrarische bestemming en daarnaast in het achtererf bij een bestaande woning en een sportbestemming. De functionele wijziging en het planologische beslag van de nieuwe beoogde situatie -een woongebied met maximaal 43 woningen- op de ruimte maakt dat het plan een nieuwe stedelijke ontwikkeling betreft.

  • c. Is er sprake van een behoefte aan de voorziene ontwikkeling?

Uit de 'overzichtsuitspraak' van de ABRvS blijkt dat, indien sprake is van een 'nieuwe stedelijke ontwikkeling', de behoefte aan de nieuwe stedelijke ontwikkeling in het ruimtelijk besluit dient te worden beschreven. Het kan hierbij zowel gaan om een kwantitatieve behoefte als een kwalitatieve behoefte. De beschrijving van de behoefte dient te worden gebaseerd op voldoende actuele, concrete en zo mogelijk cijfermatige gegevens. Het is niet in strijd met art. 3.1.6 lid 2 Bro als voor de onderbouwing van de behoefte in het ruimtelijk besluit wordt verwezen naar een of meer onderzoeksrapporten of beleidsdocumenten.

Ter plaatse van het plangebied wordt een woningbouwlocatie met maximaal 43 grondgebonden woningen ontwikkeld, in de typen vrijstaand, twee-onder-een-kap en aaneengebouwd. Ter bepaling van de actuele behoefte dient te worden gekeken of de voorziene woningen passen binnen de kwantitatieve woningbouwopgave voor de gemeente Gemert-Bakel, alsmede of de voorziene woningen passen binnen de kwalitatieve opgave.

Op basis van de provinciale 'bevolkings- en woningbehoefteprognose Noord-Brabant, Actualisering 2017' blijkt dat in de gemeente Gemert-Bakel een kwantitatieve behoefte bestaat aan circa 1.150 tot 1.430 woningen in de periode 2017-2029. Over geheel de regio gezien is in kwalitatief opzicht met name behoefte aan betaalbare woningen voor eenpersoonshuishoudens en nultredenwoningen (niet per definitie gelijkvloers). Hoewel hier in de provinciale cijfers niet op wordt ingegaan, is in kleinere kernen als De Rips echter vaak ook een significante vraag vanuit starters en doorstromers uit het eigen dorp aanwijsbaar.

In de 'Brabantse Agenda Wonen' (vastgesteld in september 2017) wordt geconstateerd dat provincie een flinke woningbouwopgave kent, met een sterk accent op de eerstkomende 10 tot 15 jaar. Tot 2030 moeten er nog 120.000 woningen bijgebouwd worden. Hierbij gaat het niet alleen om het wonen 'sec'; het voorzien in de behoefte van huishoudens aan voldoende en geschikte woonruimte. Meer en meer gaat het ook om de meerwaarde van het wonen als een van de drijvende krachten achter tal van sociaal-maatschappelijke en ruimtelijk-kwalitatieve (transitie) opgaven zoals leegstand, economische structuurversterking, mobiliteit en bereikbaarheid, duurzaamheid en energie, klimaatadaptatie, sociale veerkracht en erfgoed.

Met de Brabantse Agenda Wonen wil de provincie gemeenten en andere betrokken partijen uitnodigen om samen versneld de benodigde woningbouwopgave aan te pakken. Zorgvuldig ruimtegebruik en duurzame verstedelijking staan daarbij nog steeds centraal net als vraaggericht bouwen waarbij rekening gehouden wordt met de groeiende behoefte voor woningen in het middensegment en levensloopbestendige en nieuwe woonvormen.

Op basis van het voorgaande kan worden gesteld dat de kwantitatieve behoefte aan de 43 woningen is aangetoond en dat deze behoefte tevens is afgestemd op de regio (De Peel e.o.). Het aantal woningen past binnen de woningbouwafspraken en het woningtype ((middel)dure koop) sluit aan bij waar conform de gemeentelijke woonvisie behoefte aan is (zie paragraaf 3.4.2).

  • d. Is de voorziene ontwikkeling gelegen buiten bestaand stedelijk gebied?

De beantwoording van de vraag of een plangebied als een bestaand stedelijk gebied in de zin van artikel 3.1.6, tweede lid, van het Bro in samenhang met artikel 1.1.1, eerste lid, onder h, van het Bro, kan worden aangemerkt, hangt af van de omstandigheden van het geval, de specifieke ligging, de feitelijke situatie, het bestemmingsplan en de aard van de omgeving. Bij de beantwoording van deze vraag dient te worden beoordeeld of het voorgaande bestemmingsplan binnen het gebied reeds een stedenbouwkundig samenstel van bebouwing ten behoeve van wonen, dienstverlening, bedrijvigheid, detailhandel of horeca mogelijk maakt, of het gebied op grond van het voorgaande plan kan worden beschouwd als bij een bestaand stedenbouwkundig samenstel van bebouwing behorende openbare of sociaal culturele voorzieningen, stedelijk groen en infrastructuur.

De voorgenomen ontwikkeling is vrijwel geheel voorzien op agrarische gronden, zonder bouwmogelijkheden. Derhalve dient het planvoornemen als gelegen buiten bestaand stedelijk gebied te worden beschouwd. Het gebied is in de provinciale Interim omgevingsverordening aangeduid als 'Verstedelijking afweegbaar'. Bestemmingsplannen ter plaatse van deze aanduiding, kunnen voorzien in een stedelijke ontwikkeling.

  • e. Is het mogelijk om de voorziene ontwikkeling binnen bestaand stedelijk gebied te realiseren?

De bebouwde kom van De Rips is compact van opzet. Binnen de bebouwde kom is geen ruimte beschikbaar om te voorzien in de behoefte van 43 grondgebonden woningen.

Conclusie

Geconcludeerd kan worden dat de ontwikkeling van maximaal 43 woningen zowel voorziet in een kwantitatieve als een kwalitatieve woningbehoefte. Deze behoefte is afgestemd op de provinciale bevolkings- en woningbouwprognose en niet realiseerbaar binnen bestaand stedelijk gebied. Daarmee past het initiatief binnen de kaders van de ladder voor duurzame verstedelijking.

3.3 Provinciaal beleid

3.3.1 Structuurvisie Ruimtelijke Ordening - partiële herziening , 2014

Toetsingskader

De Structuurvisie Ruimtelijke Ordening (SVRO) is vastgesteld door Provinciale Staten op 1 oktober 2010 en geeft de hoofdlijnen van het provinciaal ruimtelijk beleid tot 2025 (met een doorkijk naar 2040). Belangrijke beleidslijnen in de SVRO zijn het principe van concentratie van verstedelijking, zorgvuldig ruimtegebruik, verantwoord omgaan met de natuurlijke basis, het streven naar robuuste en aaneengeschakelde natuurgebieden. Sinds de vaststelling in 2010 hebben Provinciale Staten diverse besluiten genomen die een verandering brengen in de provinciale rol en sturing, of van provinciaal beleid. Deze besluiten zijn vertaald in de partiële herziening van de structuurvisie in 2014, vastgesteld op 7 februari 2014 en in werking op 19 maart 2014.

De, met de partiële herziening ongewijzigde, provinciale sturingsfilosofie is gebaseerd op vijf rollen: ontwikkelen, ordenen, beschermen, regionaal samenwerken en stimuleren. Twee rollen zijn relevant voor onderhavig plan: de ordenende en de beschermende rol. De ordenende rol gaat uit van het behartigen van ruimtelijke belangen en keuzes. Deze zijn geordend in vier ruimtelijke structuren. De structuren geven een hoofdkoers aan: een ruimtelijk ontwikkelingsperspectief voor een combinatie van functies. Maar ook waar functies worden uitgesloten of welke randvoorwaarden de provincie aan functies stelt. Binnen de structuren is ruimte voor regionaal maatwerk. De vier onderscheidende structuren zijn: de groenblauwe structuur, het landelijk gebied, de stedelijke structuur en de infrastructuur. Het uitgangspunt van de beschermende rol is zorgvuldig ruimtegebruik. Bij ruimtelijke afwegingen betekent dat eerst gekeken wordt naar mogelijkheden voor intensivering of hergebruik op of binnen bestaand bebouwd gebied. De provincie wil nieuw stedelijk ruimtebeslag zoveel mogelijk voorkomen.

Beoordeling

Op de structurenkaart van de SVRO 2014 is het plangebied gelegen binnen de structuur 'Gemengd Landelijk gebied' met de aanduiding 'Zoekgebied verstedelijking'. In de kernen in het landelijk gebied met de bijbehorende zoekgebieden voor verstedelijking wordt de lokale behoefte voor verstedelijking opgevangen (wonen, werken en voorzieningen). De provincie vraagt gemeenten om in regionaal verband afspraken te maken over de verdeling van het programma voor wonen, werken en voorzieningen. De kernen in het landelijk gebied bouwen daarbij voor de eigen woningbehoefte volgens het principe van 'migratiesaldo-nul'. Daarbij vindt regionale afstemming plaats in de regionale agenda's voor wonen.

De aanduiding 'Zoekgebied verstedelijking' geeft aan dat het transformeren van buitengebied naar stedelijk gebied (wonen, werken, voorzieningen, stedelijk groen) afweegbaar is indien nodig om in de stedelijke ruimtebehoefte te voorzien. Daarvoor heeft de provincie een aantal toetsingskaders opgenomen. Het aansnijden van nieuwe ruimte voor verstedelijking is pas aan de orde, als gebleken is dat de bouwopgave voor wonen niet binnen bestaand bebouwd gebied kan worden gerealiseerd, ook niet in andere kernen binnen de betreffende gemeente, wat betreft wonen. Als toch nieuw ruimtebeslag nodig is, kan dit alleen daar waar, gelet op de ruimtelijke kwaliteiten binnen dat gebied, verantwoorde uitbreidingsmogelijkheden liggen. Ruimtelijke karakteristieken en kwaliteiten worden dus meer bepalend voor de wijze waarop de (economische) dynamiek in de landelijke regio's haar plek krijgt.

 

afbeelding "i_NL.IMRO.1652.BPPaterslaan-ON01_0014.png"

Uitsnede uit de structurenkaart van de SVRO - partiële herziening 2014. Het plangebied is met de rode indicator geduid. Bron: ruimtelijkeplannen.nl, 2020.

Met voorliggend planvoornemen worden maximaal 43 nieuwe grondgebonden gerealiseerd direct aansluitend aan de bestaande kern De Rips. Ruimte binnen de kern zelf is hiervoor niet aanwezig. De locatie is gezien de ligging als meest geschikt bevonden om over te gaan tot uitbreiding buiten bestaand stedelijk gebied. Regionale afstemming met betrekking tot het woningbouwprogramma wordt nader getoetst in paragraaf 3.3.3.

Conclusie

Het plan is passend binnen het beleid van de Structuurvisie Ruimtelijke Ordening van de provincie Noord-Brabant. De Interim Omgevingsverordening Noord-Brabant vormt het toetsingskader wanneer nieuw ruimtebeslag wordt gebruikt ten behoeve van woningbouw.

3.3.2 Omgevingsvisie 'De kwaliteit van Brabant, Visie op de leefomgeving'

Toetsingskader

De Omgevingsvisie Noord-Brabant 'De Kwaliteit van Brabant, Visie op de Brabantse leefomgeving', is vastgesteld door Provinciale Staten op 14 december 2018. Aan de hand van de Omgevingsvisie geven Provinciale Staten aan wat de belangrijkste ambities voor de fysieke leefomgeving voor de komende jaren zijn. De Omgevingsvisie geldt als opvolger van de strategische elementen van eerdere provinciale plannen, zoals de structuurvisie, het verkeers- en vervoersplan, het milieu-en waterplan en de natuurvisie. Voor wat betreft sectorale beleidsdoelen blijven de huidige plannen, waaronder de SVRO, vooralsnog gelden.

In de aankomende Omgevingswet staan de waarden veiligheid, gezondheid en duurzame omgevingskwaliteit centraal. De Brabantse Omgevingsvisie voegt daar ambities aan toe voor vier hoofdopgaven: de energietransitie, een klimaatproof Brabant, Brabant als slimme netwerkstad en een concurrerende, duurzame economie. Voor elk van deze opgaven geeft de Omgevingsvisie aan wat de ambities op lange termijn zijn, te weten wat is er nodig om Brabant in 2050 een gezonde, veilige en prettige leefomgeving te laten zijn. Ook is een concreet tussendoel geformuleerd voor het jaar 2030, om zo te kijken wat in dat jaar minimaal bereikt moet zijn om het lange termijndoel te kunnen halen. De Omgevingsvisie geeft ook aan op welke nieuwe manieren de provincie met betrokkenen wil samenwerken aan omgevingsvraagstukken en welke waarden daarbij centraal staan.

Beoordeling

Met de Omgevingsvisie Noord-Brabant kiest de provincie ervoor om haar rol te veranderen. Waar zij eerst concreet richting en sturing gaf aan de hand van min of meer concrete regels en uitgangspunten gaat het nu meer om het beoordelen van initiatieven in ruimer verband en gericht op het behalen van doelen voor de leefomgeving waarbij een belangrijke rol voor de gemeente is weggelegd. Hiermee kiest de provincie een blikveld dat enigszins boven het huidige initiatief uit stijgt. Het voorliggend initiatief is passend binnen de omgeving en zorgt voor een versterking van de kern De Rips. Dit past binnen de uitgangspunten van de Omgevingsvisie.

Conclusie

Het voornemen past binnen de kernwaarden zoals door de provincie Noord-Brabant zijn geformuleerd in haar Omgevingsvisie.

3.3.3 Interim Omgevingsverordening Noord-Brabant

Toetsingskader

In de Omgevingsvisie zijn de strategische doelen van het provinciale beleid voor de langere termijn aangegeven. Het beleid en de daartoe te treffen maatregelen zijn uitgewerkt in programma’s en waarden worden beschermd via een de omgevingsverordening. Per 25 oktober 2019 is de nieuwe Interim omgevingsverordening Noord-Brabant (Iov N-B) vastgesteld. Provincies zijn verplicht om een omgevingsverordening te hebben voordat de Omgevingswet per 2021 ingaat. Met een Interim omgevingsverordening zet de provincie Noord-Brabant een eerste stap op weg naar de definitieve omgevingsverordening.

De Interim omgevingsverordening bevat geen nieuwe regels, maar voegt bestaande regels uit zes bestaande verordeningen samen, waaronder de Verordening Noord-Brabant. Met de Interim omgevingsverordening zet de provincie ook een eerste stap om de regels beter te laten aansluiten bij de werkwijze van de Brabantse Omgevingsvisie en de Omgevingswet. De Interim omgevingsverordening zorgt ervoor dat de provincie en partijen waar ze mee samenwerkt ervaring kunnen opdoen met die nieuwe werkwijze waarbij er meer ruimte is om goede initiatieven van inwoners, ondernemers en andere overheden te ondersteunen en maatwerk toe te passen.

Beoordeling

Voorliggend plangebied is op de integrale plankaart van de Verordening ruimte Noord-Brabant gedeeltelijk gelegen binnen 'Gemengd landelijk gebied'. Op het plangebied liggen voorts de aanduidingen 'Verstedelijking afweegbaar', 'Beperkingen veehouderij' en 'Stalderingsgebied'.

afbeelding "i_NL.IMRO.1652.BPPaterslaan-ON01_0015.png"

Uitsnede kaartbeeld stedelijke ontwikkeling en erfgoed van de Verordening ruimte van de provincie Noord-Brabant. Het plangebied is aangeduid met de rode contour. Bron: ruimtelijkeplannen.nl, 2020.

afbeelding "i_NL.IMRO.1652.BPPaterslaan-ON01_0016.png"

Uitsnede kaartbeeld basiskaart Landelijk gebied van de Verordening ruimte van de provincie Noord-Brabant. Het plangebied is aangeduid met de rode contour. Bron: ruimtelijkeplannen.nl, 2020.

afbeelding "i_NL.IMRO.1652.BPPaterslaan-ON01_0017.png"

Uitsnede kaartbeeld specifieke gebieden voor agrarische ontwikkeling van de Verordening ruimte van de provincie Noord-Brabant. Het plangebied is aangeduid met de rode contour. Bron: ruimtelijkeplannen.nl, 2020.

Ten aanzien van onderhavig initiatief zijn er meerdere sporen die gevolgd moeten worden in het kader van toetsing aan de omgevingsverordening. Er moet ten eerste getoetst worden aan de geldende regels voor de van toepassing zijnde kaartlagen. Daarnaast moet worden voldaan aan de algemene regels voor de zorgplicht voor een goede omgevingskwaliteit van de ruimtelijke kwaliteit.

Artikel 3.43: afwijkende regels verstedelijking afweegbaar 

Toetsingskader 

In afwijking van artikel 3.42 Duurzame stedelijke ontwikkeling kan een bestemmingsplan, ter plaatse van 'Verstedelijking afweegbaar' voorzien in de nieuwvestiging van een duurzame stedelijke ontwikkeling als:

  • a. binnen 'Stedelijk Gebied' feitelijk of vanuit kwalitatieve overwegingen onvoldoende ruimte beschikbaar is;
  • b. transformatie van cultuurhistorisch waardevol of geschikt leegstaand vastgoed niet tot de mogelijkheden behoort;
  • c. de ontwikkeling past binnen de regionale afspraken, bedoeld in afdeling 5.4 Regionaal samenwerken;
  • d. de stedenbouwkundige- en landschappelijke inrichting rekening houdt met de omgevingskwaliteit en structuren in het gebied en de naaste omgeving waaronder een duurzame afronding van het 'Stedelijk Gebied'.

Beoordeling 

De nieuwbouw van maximaal 43 woningen betreft een stedelijke ontwikkeling. Dit is in beginsel niet mogelijk op deze locatie aangezien de locatie niet in 'Stedelijk Gebied' ligt. Ter plaatse is echter de aanduiding 'Verstedelijking afweegbaar' aanwezig, op basis waarvan ter plaatse wel een stedelijke ontwikkeling gerealiseerd kan worden. In onderhavig plan is sprake van een nieuw ruimtebeslag, er worden namelijk agrarische gronden herontwikkeld ten behoeve van de woningbouw. Het nieuwe woongebied zal direct grenzen aan het bestaand stedelijk gebied. De nieuwe woningen zullen geclusterd worden om te functioneren als een woonwijk.

Om het woongebied te bereiken zal nieuwe infrastructuur worden aangelegd, die direct aansluit op de bestaande wegen in de omgeving. Qua bebouwingstypologie zal aansluiting worden gezocht met de aangrenzende woningen. Ook qua bouwhoogte wordt aangesloten bij het aangrenzende stedelijke gebied. Ten behoeve van ecologische en landschappelijke verbindingen is, daar waar het plangebied grenst aan de open omgeving, voorzien in een groene geleding. Ten behoeve hiervan voorziet het bestemmingsplan in de aanleg van water, begroeiing en landschappelijke inpassing.

In paragraaf 3.2.3 van deze toelichting is in het kader van de Ladder voor duurzame verstedelijking aangetoond dat de beoogde nieuwbouw past binnen de regionale afspraken.

Conclusie 

Onderhavig bestemmingsplan voldoet aan de voorwaarden van artikel 3.43 en is daarmee in lijn met de Interim omgevingsverordening Noord-Brabant.

Artikel 3.51. Beperkingen veehouderij en Artikel 2.74: Stalderingsgebied

Toetsingskader 

Artikel 3.51 en artikel 2.74 beperken de uitbreidings- en wijzigingsmogelijkheden van veehouderijen.

Beoordeling 

Onderhavig bestemmingsplan ziet niet toe op veehouderijen of dierenverblijven.

Conclusie 

Het initiatief voldoet aan het toetsingskader van de Interim omgevingsverordening Noord-Brabant.

Artikel 3.5, 3.6, 3.7 en 3.8: Basisprincipes voor een evenwichtige toedeling van functies

Toetsingskader

In de basisprincipes voor een evenwichtige toedeling van functies is in artikel 3.5 opgenomen dat een bestemmingsplan bij de evenwichtige toedeling van functies invulling geeft aan een goede omgevingskwaliteit met een veilige, gezonde leefomgeving. Voor een goede omgevingskwaliteit en een veilige, gezonde leefomgeving wordt rekening gehouden met:

  • a. zorgvuldig ruimtegebruik;
  • b. de waarden in een gebied door toepassing van de lagenbenadering;
  • c. meerwaardecreatie.

Ad a) - Zorgvuldig ruimtegebruik:

  • 1. Zorgvuldig ruimtegebruik houdt in dat:
    • a. de toedeling van functies in beginsel plaatsvindt binnen bestaand ruimtebeslag voor bebouwing, behalve in de gevallen dat:
      • nieuwvestiging mogelijk is op grond van de bepalingen in dit hoofdstuk;
      • er feitelijk of vanuit kwalitatieve overwegingen onvoldoende ruimte is en uitbreiding, al dan niet gelijktijdig met de vestiging van een functie, op grond van de bepalingen in dit hoofdstuk is toegestaan;
    • b. bij stedelijke ontwikkeling toepassing is gegeven aan artikel 3.1.6, tweede lid, van het Besluit ruimtelijke ordening (ladder voor duurzame verstedelijking);
    • c. gebouwen, bijbehorende bouwwerken en andere permanente voorzieningen worden geconcentreerd binnen een bouwperceel.
  • 2. Onder bestaand ruimtebeslag voor bebouwing wordt verstaan bestaand stedelijk gebied of een bestaand bouwperceel.

Ad b) - Toepassing van de lagenbenadering:

  • 1. De toepassing van de lagenbenadering omvat het effect van de ontwikkeling op de lagen in onderlinge wisselwerking met elkaar en het actief benutten van de factor tijd.
  • 2. De lagenbenadering omvat de effecten op:
    • a. de ondergrond, zoals de bodem, het grondwater en archeologische waarden;
    • b. de netwerklaag, zoals infrastructuur, natuurnetwerk, energienetwerk, waterwegen waaronder een goede, multimodale afwikkeling van het personen- en goederenvervoer.
    • c. de bovenste laag zoals cultuurhistorische en landschappelijke waarden, de omvang van de functie en de bebouwing, de effecten op bestaande en toekomstige functies, de effecten op volksgezondheid, veiligheid en milieu.
  • 3. Door de factor tijd actief te benutten wordt rekening gehouden met de herkomstwaarde, vanuit het verleden, de (on)omkeerbaarheid van optredende effecten en de toekomstwaarde gelet op duurzaamheid en toekomstbestendigheid.

Ad c) - meerwaarderecreatie:

  • 1. Meerwaardecreatie omvat een evenwichtige benadering van de economische, ecologische en sociale aspecten die in een gebied en bij een ontwikkeling zijn betrokken, waaronder:
    • a. de mogelijkheid om opgaven en ontwikkelingen te combineren waardoor er meerwaarde ontstaat;
    • b. de bijdrage van een ontwikkeling aan andere opgaven en belangen dan die rechtstreeks met de ontwikkeling gemoeid zijn.
  • 2. De fysieke verbetering van de landschappelijke kwaliteit, bedoeld in artikel 3.9 Kwaliteitsverbetering landschap kan deel uitmaken van de meerwaardecreatie.

Beoordeling

Voorwaarden ad a:

  • a. De toedeling van functies dient in beginsel plaats te vinden binnen bestaand ruimtebeslag voor bebouwing. Binnen het bestaand stedelijk gebied van de kern De Rips is geen ruimte beschikbaar om de voorziene woningbouw te realiseren. Ook is er geen ruimte in het dorp aanwezig die geschikt is voor herstructurering. Een inbreidingslocatie elders in de gemeente Gemert-Bakel, maar buiten De Rips ligt niet voor de hand, aangezien door middel van onderhavig initiatief wordt voorzien in de lokale woonbehoefte. Inwoners van De Rips hebben een sterke binding met de kern waardoor de lokale woonbehoefte enkel kan worden ingevuld in De Rips. Daarmee wordt ook de leefbaarheid van de kern in stand gehouden. De betrokken gronden zijn aangewezen als 'Verstedelijking afweegbaar'. Afgewogen is dat de beoogde ontwikkeling op deze locatie aanvaardbaar is;
  • b. Bij een stedelijke ontwikkeling dient toepassing te worden gegeven aan de ladder voor duurzame verstedelijking. Hieraan is in paragraaf 3.2.3 getoetst;
  • c. Gebouwen, bijbehorende bouwwerken en andere permanente voorzieningen dienen te worden geconcentreerd binnen een bouwperceel. De begrenzing van de beoogde bouwvlakken en de bestemmingen zijn zodanig afgestemd dat hieraan toepassing wordt gegeven.

Voorwaarden ad b:

  • a. Toepassing van de lagenbenadering omvat de effecten op de ondergrond. In hoofdstuk 4 van onderhavige toelichting wordt ingegaan op deze effecten;
  • b. Toepassing van de lagenbenadering omvat de effecten op de netwerklaag. De beoogde woonwijk zal door middel van nieuwe infrastructuur worden verbonden met de rest van de kern De Rips. Aan de westzijde van het dorp is aan de Ripseweg een bushalte aanwezig. Ten aanzien van parkeren is in paragraaf 2.5 de parkeerbalans beschreven. Er wordt voorzien in voldoende parkeercapaciteit in het plangebied. Voor het overige heeft het planvoornemen geen effect op een natuurnetwerk, het energienetwerk en waterwegen. De afwikkeling van het verkeer is beschreven in paragraaf 2.5.
  • c. Toepassing van de lagenbenadering omvat de effecten op de bovenste laag. De effecten op het milieu zijn beschreven in hoofdstuk 4. Er wordt geen effect verwacht op de bovenste laag.

Voorwaarden ad c:

Er dient rekening te worden gehouden met meerwaardecreatie. Hiervoor geldt dat met onderhavig initiatief invulling wordt gegeven aan kwaliteitsverbetering door middel van een landschappelijk inpassingsplan. De gemeente Gemert-Bakel hanteert de 'Handreiking kwaliteitsverbetering van het landschap Gemert-Bakel' aldus vastgesteld op 20 februari 2018. Dit is een uitwerking van de 'Handreiking Kwaliteitsverbetering van het landschap, de rood-en-groenkoppeling' die gegeven is door de provincie Noord-Brabant. In deze gemeentelijke handreiking zijn methodieken uitgewerkt om invulling te geven aan het principe van kwaliteitsverbetering. Het toepassingsbereik van de gemeentelijke handreiking reikt echter niet tot de stedelijke ontwikkelingen die plaatsvinden in de 'Verstedelijking afweegbaar'. Binnen deze gebieden past de gemeente de provinciale handreiking toe.

Hieruit volgt dat voor stedelijke ontwikkelingen, waaronder de realisatie van een woningbouwlocatie, de bijdrage kwaliteitsverbetering zo groot is als 1% van de uitgifteprijs van de gronden. De bijdrage wordt geïnvesteerd in de landschappelijke inpassing van het woongebied. Voor het plangebied geldt dat de uitgifteprijs € 260,- per m² bedraagt. In het plangebied wordt 12.864 m² uitgegeven ten behoeve van de woonpercelen. Dat betekent een bijdrage van € 260,- x 12.864 m² x 1% = € 3.344.640,-.

Deze bijdrage wordt voor een gedeelte geïnvesteerd in het plangebied door middel van de aanleg en instandhouding van landschapselementen in het kader van landschappelijke inpassing. De planologische ruimte hiervoor wordt geboden in de bestemming 'Groen' en het bijbehorende landschappelijk inpassingsplan als opgenomen in de regels. In het inpassingsplan staat tevens beschreven wat de waarde van de aanleg en instandhouding c.q. beheer van de inpassing betreft. Doordat het plangebied echter niet voldoende ruimte biedt enerzijds en anderzijds vanuit landschapskwaliteit niet geschikt is om de gehele bijdrage kwaliteitsverbetering van het landschap te investeren in landschappelijke inpassing, wordt het restant van de bijdrage gestort in het gemeentelijk Groenfonds. Dit Groenfonds is opgericht ten behoeve van de realisatie van diverse landschapsprojecten in de gemeente zoals opgenomen in de Structuurvisie. Het bedrag dat gestort wordt in het Groenfonds bedraagt € 24.866,59.

Ten behoeve van het waarborgen van de landschappelijke inpassing is in de regels van dit bestemmingsplan ruimte voor vastgelegd binnen de bestemming 'Groen - Landschappelijke inpassing'. De landschappelijke inpassing is juridisch-planologisch geborgd met het bij de regels behorende landschappelijk inpassingsplan. De berekening kwaliteitsverbetering en het landschappelijk inpassingsplan zijn opgenomen als Bijlage 2 bij deze toelichting. Onderstaand is het landschappelijk inpassingsplan toegelicht.

Landschappelijk inpassingsplan

Het dorp de Rips is ontstaan als ontginningsdorp en kent daardoor een orthogonale opzet, zowel in het stratenpatroon in het dorp zelf als in de agrarische- en bospercelen in het buitengebied rondom het dorp. Deze orthogonale opzet is kenmerkend voor het dorp en vormt ook de basis voor de voorgenomen uitbreiding. Het landschappelijk inpassingsplan borduurt voort op deze opzet en verbindt de bestaande groenstructuren met elkaar tot een eenduidige groene dorpsrand.

Het plangebied grenst aan de westzijde aan de Paterslaan, waar ter hoogte van het plangebied nauwelijks straatbomen aanwezig zijn. Aan de oostzijde grenst het plan aan het agrarisch gebied. Aan de noordzijde grenst het plan aan de bestaande voetbalvelden, die omzoomt zijn door een bomenrij van inheemse bomen (voornamelijk eik, els en es). Aan de zuidzijde grenst het plan aan een groenzone die parallel gelegen is aan de Middenpeelweg/N277 en waar onder meer de brandweer gesitueerd is. Deze groenzone bestaat ook uit grotendeels inheemse struiken en bomen en er zijn enkele recreatieve routes aanwezig.

De landschappelijke inpassing verbindt de groenstructuren van de voetbalvelden en de zuidelijke groenzone met elkaar, waardoor een integrale groenstructuur ontstaat aan de oostzijde van het dorp. Een struinpad vormt de verbinding tussen het nieuwe parkje aan de Paterslaan en de bestaande paden ten zuiden van het plangebied. Hierdoor wordt het mogelijk een ommetje te lopen.

De basis van de landschappelijke inpassing bestaat uit een afwisselende bomenrij over de volle lengte van het plan. Deze rij is speels ontworpen, waarbij de bomen niet op een vaste afstand staan van elkaar en langs een basislijn 3 meter uit de kavelgrens worden aangeplant. Deze vormgeving zorgt voor een luchtige en landschappelijke uitstraling, die naadloos aansluit bij de aangrenzende groenstructuren die op eenzelfde manier zijn vormgegeven. De bomen zijn afwisselend geplant door vier inheemse boomsoorten te gebruiken, te weten zomereik (Quercus robur), zwarte els (Alnus glutinosa), kleinbladige linde (Tilia cordata), iep (Ulmus 'lobel') en veldesdoorn (Acer campestre). Naast een landschappelijke vorm komen deze soorten reeds al voor in de directe omgeving en bieden ze ook een ecologische meerwaarde.

De bomen staan in kruidenrijke zoom met bloemrijk grasland. In dit grasland wordt een struinpad gemaaid, zodat op een informele wijze een ommetje gemaakt kan worden. De kruidenrijke zoom wordt ingezaaid met een bloemrijk kruidenrijk mengsel voor armere zandgronden, met planten die een ecologische waarde bieden. Soorten die hier zeker in thuis horen zijn lupine, margriet, incarnaatklaver, boekweit, st Janskruid en knoopkruid.

Om de achtertuinen die aan de groenzone grenzen landschappelijk in te passen is achter deze tuinen een knip- en scheerheg van circa 1,0 meter breed en 1,5 meter hoog voorzien. Deze singel bestaat uit eenstijlige meidoorn (Crataegus monogyna), een soort die goed groeit op voedselarme zandgrond en bovendien een ecologische meerwaarde biedt voor vogels, insecten en vlinders. Samen met de bomenrij als overstaanders ontstaat hierdoor een robuuste maar luchtige groenstructuur op de rand van dorp en landschap.

Conclusie

Er wordt invulling gegeven aan een goede omgevingskwaliteit.

3.4 Gemeentelijk beleid

3.4.1 Structuurvisie+ (2011)

Toetsingskader

Op 29 juni 2011 heeft de gemeenteraad van Gemert-Bakel de Structuurvisie+ Gemert-Bakel 2011 - 2021 vastgesteld. De Structuurvisie+ is een instrument dat door het gemeentebestuur wordt gehanteerd om ontwikkelingen in de juiste richting te sturen. Het betreft geen statisch eindbeeld, maar een beoordelingskader voor wensen en ontwikkelingen. Het centrale streefbeeld hierbij betreft het duurzaam verbinden van mens, ruimte en middelen. Bovendien is het een document op hoofdlijnen, een nadere uitwerking van beleid vindt plaats in afzonderlijke nota's, zoals de woonvisie, visie bedrijventerreinen en de centrumvisie.

Op de kaart behorende bij de structuurvisie is opgenomen dat ter plaatse van het plangebied (rode bol) de gemeente ruimte biedt voor een stedelijke ontwikkeling. De locatie wordt in de visie ook concreet genoemd als woningbouwlocatie (als Uitbreiding De Rips).

Op het gebied van het thema wonen sorteert de gemeente voor op een mogelijke krimp van de bevolking door woningbehoefte en woningvoorraad op elkaar af te stemmen. Ingezet wordt op een realistisch woningbouwprogramma dat inspeelt op vraag en aanbod, de maatschappelijke- en woningbouwontwikkelingen. Dit programma wordt afgestemd binnen de regio. De gemeente stimuleert de bouw van levensloopbestendige woningen. Daarnaast wordt ingezet op een evenwichtig bouw- en toewijzingsbeleid en worden kleinschalige woonvoorzieningen gestimuleerd.

Beoordeling

Voorliggend bestemmingsplan maakt de ontwikkeling van maximaal 43 grondgebonden woningen mogelijk en vormt een concrete uitwerking van de structuurvisie. Door de flexibele opzet kan, naar gelang de behoefte, voorzien worden in een passend grondgebonden woningtype. De behoefte is daarbij afgestemd binnen het RRO.

Conclusie

Voorliggend planvoornemen is passend binnen de Structuurvisie+ van de gemeente Gemert-Bakel.

3.4.2 Woonvisie 2016 - 2020 (2015)

Toetsingskader

Op basis van gemeentelijk – en regionaal woononderzoek en maatschappelijke ontwikkelingen heeft de gemeente Gemert-Bakel haar woonvisie ontwikkeld.

De invoering van de Woningwet 2015 markeert de maatschappelijke consensus over het domein van de volkshuisvesting. De wet creëert duidelijkheid op de woningmarkt door heldere spelregels voor sociale huur. Woningcorporaties, gemeenten en huurders maken samen prestatieafspraken over de lokale woonopgave. Een verplichting tot het maken van prestatieafspraken tussen gemeente en woningbouwcorporatie geldt alleen als de gemeente een woonvisie heeft vastgesteld.

Voor heel Gemert Bakel geldt, dat gestreefd wordt naar een passend woonaanbod voor iedere generatie in een groene omgeving. Om dit te bereiken benoemt men in Gemert-Bakel de volgende speerpunten:

  • Passende en betaalbare woningen;
  • Adequate huisvesting doelgroepen;
  • Duurzaamheid;
  • Gezonde woonomgeving;
  • Samenwerking met ketenpartners sociaal domein.

Met name de eerste twee speerpunten zijn van belang voor een woningmarkt waarbij vraag en aanbod elkaar ontmoeten. De gemeente streeft ernaar voor iedere inwoner passende en betaalbare woningen te realiseren. Om de beschikbaarheid van betaalbare woningen voor ieder inkomen te waarborgen, moet bij het bepalen van de woningvoorraad rekening worden gehouden met de woonbehoefte, zoals deze uit onderzoek kan worden afgeleid. Daarnaast moeten nieuwe woningen in afstemming zijn met de bestaande voorraad. Er bestaat een grote vraag naar middeldure huur- en koopwoningen. In nieuwe plannen houdt de gemeente daar rekening mee.

Ten aanzien van duurzaamheid, een derde belangrijk speerpunt, kiest de gemeente voor het stimuleren van woningen die levensloopbestendig zijn en waar energiebesparing een voorname rol speelt.

Beoordeling

Het planvoornemen voorziet in maximaal 43 grondgebonden woningen. De opzet van het plan is flexibel zodat ingespeeld kan worden op de concrete marktbehoefte. Daarbij kan voorzien worden in woningen voor verschillende doelgroepen, in de prijsklasse koop middelduur tot duur. In het kader van duurzaamheid worden de woningen toekomstbestendig. Dat wil zeggen, CO2-neutraal met alle bouwtechnische maatregelen die daarbij horen.

Conclusie

Het plan is passend binnen de Woonvisie 2016 - 2020.

Hoofdstuk 4 Planologisch relevante (milieu)aspecten

4.1 Inleiding

Toetsing juncto art. 3.1.6 Bro

Met betrekking tot een (ontwerp-)bestemmingsplan staat in artikel 3.2 van de Algemene wet bestuursrecht vermeld: 'bij de voorbereiding van een besluit vergaart het bestuursorgaan de nodige kennis omtrent de relevante feiten en de af te wegen belangen'. Artikel 3.1.6 van het Besluit ruimtelijke ordening bepaalt dat rekening moet worden gehouden met de uitkomsten van het met toepassing van artikel 3.2 van de Algemene wet bestuursrecht verrichte onderzoek. Daarnaast moet ook worden getoetst aan het Besluit m.e.r. Ten behoeve van het onderhavige plan heeft onderzoek plaatsgevonden naar een aantal uitvoeringsaspecten.

4.2 Bodem

Toetsingskader

Op basis van art. 3.1.6, lid 1 onder f Bro geldt dat in een toelichting op een ruimtelijk besluit de inzichten over de uitvoerbaarheid van dat besluit worden neergelegd. Ten aanzien van het aspect bodemkwaliteit staat, op basis van vaste jurisprudentie van de Afdeling Bestuursrechtspraak Raad van State (ABRvS), voorop dat de vaststelling van de aanwezigheid van verontreinigingen in de bodem, de noodzaak van sanering van verontreinigde locaties en de wijze waarop deze saneringen moeten worden uitgevoerd, zijn geregeld in afzonderlijke wetgeving met eigen procedures. Dat doet er niet aan af dat het bevoegd gezag het ruimtelijk besluit pas kan nemen indien, voor zover redelijkerwijs valt in te zien, een eventuele bodemverontreiniging niet aan de uitvoerbaarheid in de weg staat (22 december 2010, ECLI:NL:RVS:2010:BO8297, r.o. 2.18.4; 27 juni 2012, ECLI:NL:RVS:2012:BW9569, r.o. 2.10.3). Daarbij geldt als uitgangspunt dat de bodem in principe geschikt dient te zijn voor de beoogde functie. De bodemkwaliteit mag geen onaanvaardbaar risico vormen voor de gebruikers van de bodem.

Beoordeling

Teneinde inzichtelijk te maken of de bodemkwaliteit geschikt is voor het beoogde gebruik, is door Milon in juni 2020 een verkennend bodemonderzoek uitgevoerd. De rapportage daarvan is als Bijlage 3 bij deze toelichting gevoegd. Onderstaand worden de belangrijkste bevindingen beschreven.

De locatie is onbebouwd en is in gebruik als weiland. De locatie is altijd gebruikt voor agrarische doeleinden. Voor zover bekend zijn op de onderzoekslocatie geen verdachte locaties aanwezig geweest en zijn geen potentieel bodembelastende activiteiten uitgevoerd. Gelet op het gebruik van de locatie, eerder onderzoek en de afwezigheid van bodembedreigende activiteiten op de locatie is de locatie onverdacht op de aanwezigheid van een noemenswaardige bodemverontreiniging. Derhalve is, conform de NEN 5740, de locatie onderzocht met de onderzoeksstrategie voor een grootschalige onverdachte locatie.

Tijdens de veldwerkzaamheden zijn in de boven- en ondergrond geen noemenswaardige bijmengingen waargenomen. Asbestverdacht materiaal is niet aangetroffen. In de onderstaande tabel zijn de analyseresultaten samengevat.

afbeelding "i_NL.IMRO.1652.BPPaterslaan-ON01_0018.png"

Het onderzoek heeft geleid tot een goed beeld van de bodemkwaliteit ter plaatse van de onderzoekslocatie. Ter plaatse zijn geen verhoogde gehalten in de grond aangetoond. In het grondwater zijn, naast enkele licht verhoogde gehalten, matig verhoogde concentraties barium en nikkel aangetoond. Na contact met de gemeente blijkt hier sprake te zijn van verhoogde achtergrondwaarden. Vervolgonderzoek wordt niet zinvol geacht. Op basis van de vastgestelde milieuhygiënische bodemkwaliteit wordt geacht dat geen belemmeringen aanwezig zijn voor het huidige en toekomstige gebruik van de locatie en de voorgenomen herontwikkeling van het terrein.

Algemeen wordt opgemerkt dat dit verkennend bodemonderzoek geen bewijsmiddel is zoals bedoeld in het Besluit bodemkwaliteit. Afhankelijk van de bestemming en toepassing bij afvoer van de grond kan een partijkeuring (AP04) noodzakelijk zijn.

Conclusie

Het aspect bodemkwaliteit vormt geen belemmering voor het onderhavige planvoornemen.

4.3 Waterhuishouding

Toetsingskader

In ruimtelijke plannen dient aandacht besteed te worden aan waterhuishoudkundige aspecten. Daarbij staan naast een duurzaam waterbeheer de integrale afweging en het creëren van maatwerk voorop. Water moet altijd bekeken worden in het licht van het watersysteem of stroomgebied waarin een stad of een dorp ligt. Een goede afstemming van waterbeleid en ruimtelijke ordening, ook in het direct aangrenzende gebied, is daarom noodzakelijk. De integratie van water in ruimtelijke plannen vindt plaats via de zogenaamde watertoets. Concreet betekent de watertoets, dat een plan een zogenaamde waterparagraaf dient te bevatten, die keuzes ten aanzien van de waterhuishoudkundige aspecten gemotiveerd beschrijft. Daarin dient een wateradvies van de waterbeheerder te worden meegenomen. De watertoets is wettelijk verankerd in artikel 3.1.6 lid 1, sub b Bro.

Beleid provincie Noord-Brabant

Vigerend is het Provinciale Milieu- en Waterplan 2016 – 2021 (PMWP) van 18 december 2015. Het PMWP is de structuurvisie voor onder andere het aspect water op grond van de Wet ruimtelijke ordening. Het plan bevat de verplichte onderdelen vanuit de Europese kaderrichtlijn Water. Behalve dat het PMWP de uitgangspunten aangeeft voor het waterbeleid van waterschappen en gemeenten, toetst de provincie aan de hand van dit plan ook of de plannen van de waterschappen passen in het provinciale beleid. Als algemene uitgangspunten zijn onder andere te noemen de scheiding van relatief schone en vuile waterstromen en het benutten van mogelijkheden voor infiltratie en/of conservering van hemelwater.

Beleid Waterschap Aa en Maas

Het plangebied is gelegen binnen het stroomgebied van waterschap Aa en Maas. De visie van waterschap Aa en Maas is vervat in het Waterbeheerplan 2016 – 2021 en kent een geldigheid vanaf 22 december 2015 tot en met 21 december 2021. Het waterschap laat zich bij het waterbeheer leiden door zijn missie: 'Het ontwikkelen, beheren en in stand houden van gezonde, robuuste en veerkrachtige watersystemen, die ruimte bieden aan een duurzaam gebruik voor mens, dier en plant in het gebied, waarbij de veiligheid is gewaarborgd en met oog voor economische aspecten'. De doelen op hoofdlijnen voor de periode 2016 – 2021 betreffen:

  • Via optimaal beheer en onderhoud de huidige dienstverlening in stand houden;
  • Zorgen voor een veilig en bewoonbaar beheergebied;
  • Zorgen voor voldoende water en een robuust watersysteem;
  • Zorgen voor een goede waterkwaliteit (schoon water);
  • Zorgen voor gezond en natuurlijk water.

De genoemde doelen zijn doorvertaald in diverse beleidsdocumenten, waaronder de keur. De waterschappen Aa en maas, Brabantse Delta en De Dommel hebben in de Noord-Brabantse Waterschapsbond (NBWB) besloten om de keuren te uniformeren en tegelijkertijd te dereguleren. Hierbij is aangehaakt bij het landelijke uniformeringsproces van de Unie van Waterschappen. Er is conform het nieuwe landelijke model een sterk gedereguleerde keur opgesteld, met bijbehorende algemene regels en beleidsregels. Deze zijn voor de drie waterschappen gelijkluidend. De nieuwe uniforme keuren zijn gezamenlijk in werking getreden op 1 maart 2015. In de nieuwe keur is opgenomen dat het in beginsel verboden is om zonder vergunning neerslag door toename van verhard oppervlak of door afkoppelen van bestaand oppervlak, tot afvoer naar een oppervlaktewaterlichaam te laten komen. Dit verbod is van toepassing tenzij:

  • a. het afkoppelen van verhard oppervlak maximaal 10.000 m2 is, of;
  • b. de toename van verhard oppervlak maximaal 2.000 m2 is, of;
  • c. de toename van verhard oppervlak bestaat uit een groen dak.
  • d. de toename aan verhard oppervlak tussen 2.000 m2 en 10.000 m2 is en compenserende maatregelen zijn getroffen om versnelde afvoer van hemelwater tegen te gaan, in de vorm van een voorziening met een minimale retentiecapaciteit conform de rekenregel:

Benodigde retentiecapaciteit (in m3) = toename verhard oppervlak (in m2) x gevoeligheidsfactor x 0,06

Beleid gemeente Gemert-Bakel

Het waterbeleid van de gemeente Gemert - Bakel is vast gesteld in het Gemeentelijk watertakenplan (GWTP). In het GWTP is duidelijk aangegeven wat de watereisen zijn voor nieuwe initiatieven binnen de gemeente grenzen:

  • de waterbergingsvoorziening moet 60 liter per m² verhard oppervlak probleemloos kunnen bergen.
  • de afvoer uit een voorziening mag maximaal 2 l/s/ha zijn (conform beleid van het waterschap). De voorziening moet binnen 5 dagen leeggelopen zijn.
  • de voorziening moet controleerbaar zijn op de werking (dus zichtbaar of toegankelijk).
  • de voorziening moet de mogelijkheid hebben tot reinigen, inspectie en onderhoud.
  • de bodem van de voorziening ligt boven de gemiddelde hoogste grondwaterstand (GHG).
  • de voorziening voor het hemelwater moet altijd zodanig ontworpen worden dat het bijdraagt aan het verminderen van piekafvoeren en niet leidt tot wateroverlast.
  • het aan te leggen systeem in een situatie waar meerdere woningen/bedrijven worden gerealiseerd, dient te worden getoetst op bui9 en bui10 +10% van de kennisbank riolering en extreme buien (stresstest).
  • de aanwezigheid van een overloopvoorziening (bij voorkeur bovengronds) voor de afvoer van water bij hevige buien als de voorziening vol is.

Beoordeling 

Ten behoeve van de beoogde woningbouw is door Econsultancy in januari 2020 een geohydrologisch onderzoek uitgevoerd. Doel van het onderzoek is het leveren van informatie, zodat op basis van de onderzoeksresultaten en de geohydrologische randvoorwaarden een gefundeerde afweging kan worden gemaakt omtrent de haalbaarheid en de toepasbaarheid van infiltratie, mede ten behoeve van de watertoets. Het rapport van het geohydrologisch onderzoek is als Bijlage 4 bij de toelichting opgenomen.

Op basis van de rekenregel van het waterschap en de mogelijkheden ter plaatse wordt een infiltratiesysteem in de vorm van een ondiepe berging in combinatie met grindpalen dan wel verticale filterbuizen geadviseerd. Regenwater dat versneld tot afstroming komt van het toekomstig verhard oppervlak kan daarbij bovengronds of verbuisd afstromen naar een bovengrondse (ondiepe)bergingsvoorziening (bijvoorbeeld wadi). De buffervoorziening dient boven de GHG aangelegd te worden zodat de buffercapaciteit tijdens perioden van hoge grondwaterstand niet verloren gaat.

In een bovengrondse voorziening kan het afstromende regenwater bij lichte bui intensiteiten infiltreren in de toplaag. De verwachting is dat het water bij hoge bui intensiteiten daarentegen niet snel genoeg zal kunnen infiltreren in een eventuele toekomstige bovengrondse voorziening (wadi), doordat de aanvoer de afvoer overtreft.

Bij hoge bui intensiteiten kan het water dat in de bovengrondse voorziening wordt gebufferd via de grindpalen of verticale filterbuizen infiltreren in de diepere ondergrond. Door het regenwater (vertraagd) te laten infiltreren naar de diepere zandlagen, wordt de lediging van het systeem gewaarborgd, zoals aangegeven op onderstaande figuur.

afbeelding "i_NL.IMRO.1652.BPPaterslaan-ON01_0019.png"

Voorbeeld hemelwatersysteem (bron: rainproof.nl)

Aan de hand van de resultaten van het geohydrologisch onderzoek en de door de gemeente gestelde uitgangspunten met betrekking tot het realiseren van waterbergende voorzieningen is door Econsultancy de watertoets doorlopen. Het rapport daarvan is als Bijlage 5 bij deze toelichting gevoegd.

In rapport is beschreven op welke wijze rekening is gehouden met de waterhuishoudkundige aspecten en het beleid van de waterbeheerders (waterschap Aa en Maas en de gemeente Gemert - Bakel).

De planlocatie is in gebruik als weiland en is voor zover bekend altijd onverhard geweest. Op basis van het af te koppelen verhard oppervlak en de bergingseis bedraagt de waterbergingsopgave voor het plangebied in totaal circa 745 m³.

In de toekomstige situatie zal het schone hemelwater niet direct op het vuilwater worden aangesloten maar separaat binnen het plangebied worden verwerkt. Dit betekent dat bij de verdere planuitwerking water expliciet en op evenwichtige wijze in beschouwing wordt genomen en dat hemelwater op een duurzame wijze wordt verwerkt. De ontwikkeling zal daarmee hydrologisch neutraal zijn.

Op basis van de ingeschatte GHG zullen de bergingsmogelijkheden ten opzichte van maaiveldniveau beperkt zijn. Daarom zal de wadi/buffer een verticale verbinding hebben naar diepere grondlagen, om infiltratie toch mogelijk te maken. Bij aanleg van een wadi/buffer van 0,5 meter diepte, een talud van 1 op 4 is, zonder waking, is minimaal circa 1.850 m² aan nodig om te voldoen aan de wateropgave van 745 m³.

Het vuilwater (zogenaamde droogweerafvoer; DWA) zal in de toekomstige situatie worden aangesloten op het bestaande rioleringsstelsel in de omgeving.

Op basis van de randvoorwaarden en uitgangspunten is de ontwikkeling in zowel ruimte als tijd waterneutraal uit te voeren. Er worden dan ook vanuit het oogpunt van de waterhuishouding geen belemmering verwacht ten aanzien van de bestemmingswijziging en de uitvoering van het plan.

Conclusie

Het aspect water is op voldoende wijze verankerd in het bestemmingsplan. In de regels van onderhavig bestemmingsplan is door middel van een voorwaardelijke verplichting opgenomen tot realisatie van een waterbergende voorziening van ten minste 745 m³.

4.4 Cultuurhistorie

Toetsingskader

In de toelichting van het bestemmingsplan dient een beschrijving te worden opgenomen hoe met de in het gebied aanwezige cultuurhistorische waarden en in de grond aanwezige of te verwachten monumenten rekening wordt gehouden (artikel 3.1.6, lid 5 Bro). De opsteller en vaststeller van het bestemmingsplan is daarmee dus verplicht om breder te kijken dan alleen naar het facet archeologie. Ook de facetten historische (steden)bouwkunde en historische geografie dienen te worden meegenomen in de belangenafweging. Hierbij gaat het om zowel beschermde als niet formeel beschermde objecten en structuren.

Beleid provincie

In de provincie Noord-Brabant dienen in het kader van het behoud van waardevolle cultuurhistorische elementen, ruimtelijke plannen te worden getoetst aan de provinciale cultuurhistorische Waardenkaart (CHW) uit 2010. Hierop staan de bepalende cultuurhistorische elementen aangegeven.

afbeelding "i_NL.IMRO.1652.BPPaterslaan-ON01_0020.png"

Uitsnede cultuurhistorische waardenkaart van de provincie Noord-Brabant. Het plangebied is geduid met een blauwe contour

Beleid gemeente Gemert-Bakel

De gemeente beschikt tevens over eigen cultuurhistorisch beleid, waarbij op de kaart 'Historische bebouwing' behalve rijks- en gemeentelijke monumenten en beeldbepalende panden ook de cultuurhistorische informatie is opgenomen uit de provinciale cultuurhistorische waardenkaart.

afbeelding "i_NL.IMRO.1652.BPPaterslaan-ON01_0021.png"

Uitsnede gemeentelijke kaart Historische bebouwing. Het plangebied is geduid met een blauwe contour

Beoordeling

Het plangebied is gelegen in de regio ‘Peelkern’, zoals aangegeven op de Cultuurhistorische Waardenkaart van de provincie Noord-Brabant. De regio Peelkern ontleent zijn cultuurhistorische betekenis in eerste instantie aan de veenwinning. De kanalen, wijken, ontginningsdorpen en wegen met beplanting geven een beeld van de grootschalige vervening die hier vanaf 1850 heeft plaatsgevonden. Op enkele plaatsen komen Peelbanen en veenputjes voor die wijzen op kleinschalige turfwinning. De grote landgoederen die omstreeks 1900 zijn gesticht zijn van cultuurhistorisch belang door de landhuizen, bijgebouwen en pachtboerderijen, parken en laanstructuren. In de regio ligt een groot deel van de Peel-Raamstelling.

De Rips is één van de ontginningsdorpen in de Peelkern. Het plan is op de schaal van de hele regio een kleinschalige ruimtelijke ontwikkeling die weinig specifieke aanknopingspunten biedt om invulling te geven aan het beleid voor de regio. Wel is bij de verkavelingsopzet rekening gehouden met de orthogonale verkaveling van het gebied. Voor het plangebied gelden vanuit de Cultuurhistorische Waardenkaart geen bepalende cultuurhistorische elementen.

Gezien de gemeentelijke kaart met historische bebouwing is binnen het plangebied geen sprake van monumenten of beeldbepalende panden. De voormalige boerderij uit 1924 aan de Paterslaan 23 betreft wel een beeldbepalend pand. In het plan is met dit pand rekening gehouden door het behouden van een zichtrelatie tussen dit pand en het buitengebied.

Conclusie

Het planvoornemen doet geen afbreuk aan cultuurhistorische waarden binnen of in de nabije omgeving van het plangebied.

4.5 Archeologie

Toetsingskader

In Europees verband is het zogenaamde 'Verdrag van Malta' tot stand gekomen. De uitgangspunten van dit verdrag dienen te worden vertaald in nationale wetgeving. In Nederland heeft deze vertaling plaatsgevonden in de Erfgoedwet, welke in werking is getreden op 1 juli 2016. Ten aanzien van het aspect 'archeologie' is in art. 9.1, lid 1 van de Erfgoedwet, welk artikel een deel van het overgangsrecht regelt, bepaalt dat tot het tijdstip waarop de Omgevingswet in werking treedt onder meer Hoofdstuk V, paragraaf 1 van de inmiddels vervallen Monumentenwet 1988 van toepassing blijft. In Hoofdstuk V, paragraaf 1 is vastgelegd dat een gemeente in de ruimtelijke besluitvorming (w.o. bestemmingsplannen en omgevingsvergunningen voor planologisch afwijken) rekening dient te houden met de in de grond aanwezige dan wel te verwachten monumenten (artt. 38a t/m 41 Monw 1988). Daartoe kan de gemeente in dat besluit regels stellen, bijvoorbeeld tot het doen van archeologisch onderzoek. Het al dan niet stellen van regels ten aanzien van archeologie dient te rusten op voldoende informatie over de archeologische situatie (ECLI:NL:RVS:2011:BU7102, r.o. 2.9.7). Deze informatie kan worden verkregen door gebiedsdekkende kaarten waarop archeologische verwachtingswaarden zichtbaar zijn. Op basis hiervan kan archeologisch beleid worden ontwikkeld.

Beleid gemeente Gemert-Bakel

Op 28 januari 2016 heeft de gemeenteraad het beleidsplan Archeologie en de Archeologiebeleidskaart 2015 vastgesteld. Dit beleid en de kaart vervangen na evaluatie het archeologisch beleid en de kaart van 2010. Met het beleidsplan beoogt de gemeente inzicht te geven in de achtergronden van het archeologiebeleid en de gemeentelijke archeologievisie voor de komende jaren te formuleren. Het geeft de lijn aan waarlangs het archeologiebeleid tot stand komt. Leidraad daarbij is dat archeologie een integraal onderdeel vormt bij de afwegingen betreffende de ruimtelijke ordening en daarbij transparant is voor burgers en investeerders.

afbeelding "i_NL.IMRO.1652.BPPaterslaan-ON01_0022.png"

Uitsnede archeologische beleidskaart Gemert-Bakel, met het plangebied aangeduid door middel van een blauwe contour

Beoordeling

het plangebied is blijkens de 'Archeologische beleidsadvieskaart' van de gemeente Gemert-Bakel gelegen in een gebied met een 'lage archeologische verwachting'. De beleidsmatige vertaling gaat uit van een archeologisch onderzoeksplicht wanneer het projectgebied MER- of Tracéwet-plichtig is. Hiervan is geen sprake. Archeologisch waarden komen derhalve niet in het geding.

Conclusie

Het aspect archeologie vormt geen belemmering voor het planvoornemen.

4.6 Ecologie

4.6.1 Natuurgebieden

Toetsingskader

De Wet natuurbescherming (Wnb) is een wet van 16 december 2015, houdende regels ter bescherming van de natuur. De Wet natuurbescherming is in werking getreden op 1 januari 2017 en vervangt daarmee het voorheen geldende wettelijke stelsel voor de natuurbescherming, zoals neergelegd in de Natuurbeschermingswet 1998, de Flora- en faunawet en de Boswet.

De wet regelt ten eerste de taken en bevoegdheden ten behoeve van de bescherming van natuurgebieden en planten- en diersoorten. Daarnaast bevat de wet onder meer bepalingen over de jacht en over houtopstanden. In de Wet natuurbescherming is de Europese regelgeving omtrent natuurbescherming, zoals vastgelegd in de Vogelrichtlijn (Richtlijn 2009/147/EG, 30 november 2009) en Habitatrichtlijn (Richtlijn 92/43/EEG, 21 mei 1992) als uitgangspunt genomen. De gebiedsbescherming van de Natura 2000-gebieden is geregeld in hoofdstuk 2 van de Wnb.

Beoordeling en conclusie

Het dichtstbij gelegen Natura 2000-gebied betreft het ‘Deurnsche Peel & Mariapeel', dat is gelegen op een afstand van circa 5,5 km. Natura 2000-gebieden en Beschermde Natuurmonumenten kunnen schade ondervinden wegens diverse aspecten, zoals verdroging, oppervlakteverlies, verontreiniging, versnippering, optische verstoring, verzuring en vermesting. Daar het plangebied niet grenst aan een Natura 2000-gebied of een beschermd natuurmonument, is van directe schade geen sprake. Op het aspect stikstofdepositie wordt navolgend ingegaan.

4.6.2 Stikstof

Toetsingskader

Het plangebied is gelegen op circa 5,5 kilometer afstand van het Natura 2000-gebied ‘Deurnsche Peel & Mariapeel’. Dit betreft een gebied dat beschermd is krachtens Europese regelgeving. De bescherming is opgenomen in de Wet natuurbescherming (gebiedsbescherming). Aangetoond dient te worden dat met zekerheid geen significant negatieve effecten op dit gebied optreden als gevolg van de onderhavige ontwikkeling. Alleen indien geen sprake is van een significant negatief effect kan een project doorgang vinden. Voor een groot aantal potentiële effecten kan worden beredeneerd dat geen sprake is van een significant negatief effect. Voor het aspect stikstofdepositie kan dit echter niet op voorhand worden gesteld. Derhalve dient aan de hand van een berekening met het programma AERIUS de exacte mate van stikstofdepositie te worden bepaald.

Beoordeling

De exacte mate van stikstof dient voor een bouwplan zowel bepaald te worden voor de gebruiksfase als de aanlegfase. Voor beide fases is daarom een onderzoek stikstofdepositie uitgevoerd. Rapportage daarvan is als Bijlage 6 bij deze toelichting gevoegd.

In dit stikstofdepositieonderzoek is voor de aanleg- en gebruiksfase van het plan aan de Paterslaan De Rips de te verwachten stikstofdepositie ter plaatse van de Natura 2000-gebieden berekend. Uit de berekening blijkt dat de stikstofdepositie op de stikstofgevoelige Natura 2000-gebieden niet hoger is dan 0,00 mol/ha/jaar. Er is geen sprake van vergunningplicht op grond van de Wet natuurbescherming.

Conclusie

Uit een AERIUS-berekening is gebleken dat als gevolg van de aanleg- en gebruiksfase er ten aanzien van stikstofdepositie geen negatieve effecten optreden als gevolg van het plan op Natura 2000-gebieden.

4.7 Flora en fauna

Toetsingskader

Het beschermingsregime betreffende soorten (flora en fauna) is opgenomen in hoofdstuk 3 van de Wnb. De verbodsbepalingen zijn hierbij afhankelijk gesteld van de soort (en daarmee de opname van die soort op de diverse lijsten) en de voorgenomen handelingen. Bovendien is een algemeen geldende zorgplicht opgenomen om handelingen achterwege te laten of maatregelen te treffen, om te voorkomen dat nadelige gevolgen ontstaan voor in het wild levende dieren en planten.

Conform de Wet natuurbescherming is de initiatiefnemer bij ruimtelijke ingrepen verplicht op de hoogte te zijn van mogelijke voorkomende beschermde soorten binnen het plangebied. Vanuit die kennis dienen plannen en projecten getoetst te worden aan eventuele strijdigheid met de verbodsbepalingen uit de Wnb. Conform vaste jurisprudentie kan een plan worden vastgesteld indien aannemelijk wordt gemaakt dat het aspect flora en fauna niet aan de uitvoerbaarheid van het plan in de weg staat.

Beoordeling

Gelet op het feit dat het plangebied mogelijk geschikte nest- en verblijfruimte biedt aan beschermde soorten, is door Veldbiologische Werken in december 2019 een quickscan Wet natuurbescherming uitgevoerd. Het rapport daarvan is als Bijlage 7 bij de toelichting opgenomen. De quickscan zag toe op het kadastrale perceel met nummer 4685 en de resultaten daarvan worden onderstaand behandeld.

Quickscan Wet natuurbescherming (perceel 4685)

Uit de bevindingen van het veldonderzoek, het literatuur- en bronnenonderzoek en toetsing van de resultaten van dit onderzoek aan de Wet natuurbescherming en de Verordening natuurbescherming Brabant, blijkt dat bij uitvoering van de ingreep geen negatieve effecten te verwachten zijn op beschermde soorten. Een ontheffing in het kader van de Wet natuurbescherming t.a.v. beschermde soorten is niet van toepassing.

Van andere beschermde soorten is aanwezigheid in het plangebied uitgesloten of zijn negatieve effecten uitgesloten.

In algemene zin moet de Zorgplicht wel in acht worden genomen. Deze Zorgplicht geldt met name ten aanzien van broedgevallen van alle vogelsoorten. Aangezien alle vogels tijdens het broeden zijn beschermd, kunnen werkzaamheden tijdens het broedseizoen leiden tot een overtreding van de Wet natuurbescherming. Waarbij wordt opgemerkt dat er geen vaste periode in het jaar voor het broedseizoen kan worden aangegeven. Het plangebied moet voorafgaand aan de werkzaamheden worden gecontroleerd op broedende vogels. En wordt gewerkt volgens de Wet natuurbescherming.

Zoogdieren als Vos, Ree en Egel kunnen incidenteel in het plangebied aanwezig zijn. Vanuit het oogpunt van Zorgplicht dient men hiermee rekening te houden.

Het plangebied is ongeschikt als leefgebied voor amfibieën. In de nabijheid (poelen ten zuiden van planlocatie) komt de beschermde Vinpootsalamander voor, alsmede een aantal algemene amfibieënsoorten. Geadviseerd wordt om het plangebied voor aanvang van de werkzaamheden af te schermen met een amfibieënscherm om incidentele aanwezigheid van amfibieën binnen de planlocatie te voorkomen. Plaatsing van een amfibieënscherm kan op twee momenten in het jaar, namelijk in de periode einde maart of in de periode begin augustus. De migratie van winterverblijf naar zomerverblijf of omgekeerd is dan ten einde. Aangezien het plangebied een hoger en droger terrein betreft is het moment van migratie van voortplantingsgebied naar overwinteringsgebied in dit geval het meest voor de hand liggend en heeft het plaatsen van amfibieënscherm begin augustus dus de voorkeur. De planlocatie dient na plaatsing van het ambifieënscherm te worden gecontroleerd op incidentele aanwezige amfibieën, deze dienen te worden teruggeplaatst in geschikt leefgebied.

Addendum (percelen 2848, 4648 en 4809)

De percelen met nummers 2848, 4648 en 4809 zijn niet bij de quickscan betrokken, aangezien deze niet tot het initiële plangebied behoorden. Voor perceel 4809 geldt dat hier ten gevolge van het planvoornemen geen ingrepen gaan plaatsvinden. Het betreft een deel van de te behouden groensingel rondom het sportpark. Perceel 4648 heeft een gelijksoortig gebruik als het onderzochte perceel 4685 (landbouwgrond), waardoor voor dit gedeelte dezelfde conclusie kan worden getrokken als in de quickscan, namelijk dat geen negatieve effecten te verwachten zijn op beschermde soorten.

Het perceel met nummer 2848 betreft de woonkavel van het bestaande pand aan de Paterslaan 12. Het deel van dit perceel met de huidige woning blijft ongewijzigd. Het meest oostelijke deel blijft eveneens ongewijzigd en gaat deel uitmaken van de landschappelijke inpassing van het nieuwe woongebied. Het tussengelegen gedeelte is overwegend in gebruik als tuin bij de bestaande woning en zal worden herverkaveld. Op dit gedeelte staan enkele bijgebouwen en bomen en struiken. Mogelijk is hier beschutte ruimte aanwezig die voor overwintering kan worden gebruikt door amfibieën uit de nabijgelegen poel. Teneinde te voorkomen dat amfibieën de komende winter (2020-2021) van deze potentiële overwinteringslocatie gebruik gaan maken, dienen losliggende takken en andere materialen voorafgaand te worden verwijderd (opschoning).

afbeelding "i_NL.IMRO.1652.BPPaterslaan-ON01_0023.png"

Luchtfoto met rood omkaderd de kadastrale percelen 2848 en 4648

Conclusie

Het aspect flora vormt geen belemmering voor het planvoornemen.

4.8 Wegverkeerslawaai

Toetsingskader

Op basis van artikel 76 van de Wet geluidhinder (Wgh) dienen bij de vaststelling van een bestemmingsplan, wijzigingsplan of uitwerkingsplan als bedoeld in art. 3.6 lid 1 van de Wet ruimtelijke ordening (Wro) de waarden als bedoeld in art. 82 t/m 85 van de Wgh in acht te worden genomen, indien dat plan gelegen is in een zone rondom een weg als bedoeld in art. 74 lid 1 Wgh en (het betreffende onderdeel van) dat plan mogelijkheden biedt voor:

  • de realisatie van woningen, andere geluidsgevoelige gebouwen en van geluidsgevoelige terreinen (functies zoals genoemd in art. 1 Wgh en art. 1.2 Bgh - het Besluit geluidhinder zoals gewijzigd op 4 april 2012);
  • de aanleg van een nieuwe weg en/of een reconstructie van een bestaande weg;
  • functiewijzigingen van een niet-geluidsgevoelige functie in een geluidsgevoelige functie (bijvoorbeeld via afwijkings- en wijzigingsbevoegdheid).

De onderzoekszone voor wegen zoals bedoeld in art. 74 lid 1 Wgh is afhankelijk van de hoeveelheid rijbanen. Onderstaande tabel geeft hier een overzicht van:

  Stedelijk   Buitenstedelijk  
Aantal rijstroken   Aantal meter aan weerszijden van de weg  
5 of meer   350 m   600 m  
3 of 4   350 m   400 m  
1 of 2   200 m   250 m  

Artikel 74 lid 2 Wgh regelt dat indien de bovengenoemde ontwikkelingen zijn gelegen binnen een als 'woonerf' aangeduid gebied of in een zone nabij wegen waarvoor een maximum snelheidsregime van 30 km/u geldt, de betreffende waarden niet in acht hoeven te worden genomen. Uit een akoestisch onderzoek moet blijken of, indien sprake is van een van de bovengenoemde ontwikkelingen binnen een zone als bedoeld in art. 74 lid 1 Wgh, deze binnen de waarden valt zoals deze voor diverse typen ontwikkelingen is vastgelegd in de Wgh. De grenswaarde voor de toelaatbare etmaalwaarde van de equivalente geluidbelasting van wegen binnen zones langs wegen is voor woningen 48 dB. In bijzondere gevallen is een hogere waarde mogelijk. Burgemeester en Wethouders zijn binnen de grenzen van de gemeente en onder voorwaarden bevoegd tot het vaststellen van een hogere waarde voor de ten hoogst toelaatbare geluidsbelasting.

Beoordeling

De dichtstbij het plangebied gelegen gezoneerde weg betreft de Burgemeester van de Wildenberglaan, alwaar een snelheidsregime geldt van 60 km/u. De geluidzone van deze weg reikt tot binnen de ontwikkellocatie. Om die reden is een akoestisch onderzoek wegverkeerslawaai uitgevoerd. Het rapport van het onderzoek is opgenomen als Bijlage 8 bij de toelichting.

Uit de onderzoekresultaten blijkt dat zonder het treffen van maatregelen de voorkeursgrenswaarde van 48 dB wordt overschreden in het uiterste zuidelijke gedeelte van het plangebied. Het betreft de strook tussen de plangrens en de rode lijn op de onderstaande afbeelding. Voorkomen dient te worden dat in deze strook geluidgevoelige objecten kunnen worden opgericht. Wanneer deze maatregelen niet worden getroffen, dan is een hogere waarde procedure ten aanzien van de N277 benodigd. Er zal dan een hogere waarde aangevraagd moeten worden voor aldaar te positioneren woningen (49 dB op de voorgevel op een hoogte van 7,5 meter boven het maaiveld).

afbeelding "i_NL.IMRO.1652.BPPaterslaan-ON01_0024.png"

In de regels van onderhavig bestemmingsplan wordt door middel van een waarborgende regeling uitgesloten dat ter plaatse van de betreffende strook (al dan niet vergunningvrije) geluidgevoelige objecten mogen worden opgericht. Het voeren van een hogere waardenprocedure is derhalve niet noodzakelijk.

Met betrekking tot de benodigde gevelwering kan worden vermeld dat de gecumuleerde geluidbelasting ten hoogste 57 dB bedraagt ter plaatse van de beoordelingspunten op de rand van de woonblokken die direct grenzen aan de Paterslaan. In de praktijk gaat het om de voorgevels van de woningen die evenwijdig zijn gelegen aan de Paterslaan. Voor deze geveldelen bedraagt de vereiste karakteristieke geluidwering Ga;k dan maximaal 57 - 33 = 24 dB. In de praktijk wordt een gevelwering van 24 dB bij nieuwbouw in vrijwel alle gevallen behaald. Daarbij geldt dat de berekende waarden gelden voor de grens van de woonblokken. De woningen zullen nog wat naar achter gerealiseerd worden, zie ook de verkavelingsschets. Een nader onderzoek naar de geluidwering van de gevels wordt niet noodzakelijk geacht.

Voor de overige beoordelingspunten geldt een maximale waarde van 53 dB (met uitzondering van een tweetal punten waar een waarde van 54 dB wordt berekend). In de praktijk zal op de gevels van de woningen binnen het plangebied overal sprake zijn van een geluidbelasting van 53 dB of lager, gezien aan de binnenkant van het plangebied extra afscherming gaat ontstaan door het intekenen van gebouwen.

De milieukwaliteit wordt geclassificeerd als ‘zeer goed’ tot ‘matig’. Met betrekking tot het woon- en leefklimaat kan gesteld worden dat de cumulatieve geluidbelasting (wegverkeer) een aanvaardbaar woon- en verblijfsklimaat niet in de weg staat.

Conclusie

Met inachtneming van de maatregelen uit het akoestische rapport vormt het aspect geluidhinder geen belemmering voor het planvoornemen.

4.9 Bedrijven en milieuzonering

Toetsingskader

Door het aanbrengen van een zone tussen bedrijvigheid en milieugevoelige bestemmingen (zoals woningbouw) kan de overlast ten gevolge van bedrijfsactiviteiten zo laag mogelijk gehouden worden. Zonering is met name van toepassing bij nieuwbouw van woningen en andere gevoelige functies in de directe omgeving van een bedrijf en bij vestiging van een nieuw bedrijf in de directe omgeving van gevoelige bestemmingen. Op basis van de VNG-brochure 'Bedrijven en Milieuzonering 2009' (hierna: VNG-brochure) wordt onder milieugevoelige functies verstaan: woningen, woongebieden, ziekenhuizen, scholen en verblijfsrecreatie. Sommige functies kunnen zowel milieubelastend als milieugevoelig zijn (bijvoorbeeld ziekenhuizen en scholen).

Beoordeling

Richtafstanden

De VNG-brochure onderscheidt twee omgevingstypen: rustige woonwijk/rustig buitengebied en gemengd gebied. Het plangebied ligt in een gebied dat kan worden gekenmerkt als rustige woonwijk. Richtafstanden gelden derhalve onverkort. Onderhavig bestemmingsplan maakt toevoeging van woningen mogelijk, waardoor ter plaatse gevoelige functies worden toegevoegd. Bij de beoordeling van een project voor de realisatie van deze functie moet enerzijds beoordeeld worden of de ontwikkeling geen gevolgen heeft voor de ontwikkelingsmogelijkheden van omliggende inrichtingen. Anderzijds moet getoetst worden of ten aanzien van de milieubelasting van een aanvaardbaar woon- en leefklimaat kan worden gegarandeerd.

In de directe nabijheid van het plangebied zijn twee inrichtingen aanwezig waaraan, op basis van de VNG-brochure 'Bedrijven en milieuzonering 2009', een richtafstand is verbonden:

  • Sportpark De Blaarpeel: voor een veldsportcomplex (met verlichting) geldt op basis van de VNG-brochure een aan te houden richtafstand van 50 meter (aspect geluid);
  • Bedrijfspercelen aan de Korhoenstraat: hier zijn bedrijven toegestaan tot maximaal milieucategorie 2, waaraan een aan te houden richtafstand is verbonden van 30 meter.

De beoogde woonfuncties zijn geprojecteerd op circa 40 meter van het sportpark en op circa 57 meter van de bedrijfsbestemming. De bedrijven vormen daarmee geen belemmering voor het planvoornemen en vice versa. Teneinde te voorkomen dat de nieuwe woningen hinder ondervinden van het sportpark en andersom, wordt de groensingel om het sportpark ter hoogte van het plangebied omgezet van de bestemming 'Sport' naar de bestemming 'Groen'. Hiermee is gewaarborgd dat een afstand van 50 meter kan worden gegarandeerd tussen de nieuwe woonbestemming en de sportbestemming. De in de VNG-brochure onderscheiden aspecten vormen daarmee geen belemmering.

Lichthinder: onderzoek

Het aspect lichthinder is niet opgenomen in de VNG-brochure, echter dient in het kader van een goede ruimtelijke ordening wel te worden beschouwd. In onderhavig geval is het plangebied gelegen op nabije afstand van de lichtmasten van sportpark De Blaarpeel. Derhalve is door Toine Adams Advies een onderzoek lichthinder uitgevoerd, waarvan het rapport als Bijlage 9 bij de toelichting is gevoegd.

Uit het onderzoek blijkt dat de aanwezige lichtuitstraling van een aantal sportveldschijnwerpers richting het te ontwikkelen gebied naar verwachting grensoverschrijdend zal zijn. Tijdens het oorspronkelijk ontwerp van de sportveldverlichting waren er richting het te ontwikkelen gebied geen beperkingen aanwezig waardoor er naar verwachting geen rekening gehouden is met het beperken van lichthinder in deze richting.

Als besloten wordt om woningen te bouwen op aangegeven gebied dient rekening gehouden te worden met het aanpassen van de veldverlichting enerzijds (aanpassen richthoeken, tilthoeken en mogelijk aanbrengen afscherming) en de positionering van de bebouwing, en vensters anderzijds. Daarnaast kunnen mogelijke oplossingen gevonden worden in het aanbrengen van blinde gevels en/of hoog opgaande begroeiing aan te brengen tussen de sportvelden en de bebouwing. Of dat de gegeven mogelijk oplossingen praktisch uitvoerbaar zijn is niet onderzocht.

Het aanpassen van de veldverlichting om lichthinder richting de nieuwbouwlocatie te voorkomen dient verder onderzocht te worden. Te denken valt aan het toepassen van nieuwe sportveldmasten en armaturen, afschermingen e.d. Hierbij wordt opgemerkt dat een dergelijke aanpassing naar verwachting zal leiden tot een complete aanpassing van de veldverlichting op basis van de aanname dat de bestaande verlichting redelijk wat jaren in gebruik is.

De mogelijkheid bestaat ook om op basis van de uiteindelijke definitieve verkaveling lichthindermetingen uit te voeren op relevante locaties. Aan de hand van deze meetresultaten kan vastgesteld worden in welke mate de verkaveling aangepast dient te worden.

Lichthinder: maatregelen

Naar aanleiding van het onderzoek lichthinder zullen maatregelen worden genomen met betrekking tot de veldverlichting op het sportpark. Hiertoe zal een inventarisatie plaatsvinden, waarna een programma van eisen wordt opgesteld. Aan de hand van een bijeenkomst worden de wensen van de betrokken verenigingen inzichtelijk gemaakt. Mede aan de hand van aanvullend lichthinderonderzoek wordt de uiteindelijke beoogde nieuwe lichtinstallatie door de gemeente gekeurd, waarna begonnen kan worden met de aanleg (voorjaar 2021).

Conclusie

Het aspect bedrijven en milieuzonering vormt geen belemmering, mits nader onderzoek plaatsvindt naar (maatregelen m.b.t.) de veldverlichting op sportpark De Blaarpeel.

4.10 Externe veiligheid

4.10.1 Inrichtingen en externe veiligheid

Toetsingskader

Het Besluit externe veiligheid inrichtingen (Bevi) is gericht aan het bevoegd gezag inzake de Wet milieubeheer en de Wet ruimtelijke ordening en heeft onder meer tot doel om bij nieuwe situaties toetsing aan de risiconormen te waarborgen. In de Regeling externe veiligheid inrichtingen (Revi) zijn o.a. standaardafstanden opgenomen waarbij wordt voldaan aan de grens- en richtwaarden voor het plaatsgebonden risico. Het Bevi is van toepassing op vergunningplichtige risicovolle bedrijven en de nabijgelegen al dan niet geprojecteerde (beperkt) kwetsbare objecten. In artikel 2, lid 1 van het Bevi is opgesomd wat wordt verstaan onder risicovolle bedrijven. In artikel 1 van het Bevi wordt toegelicht wat wordt verstaan onder (beperkt) kwetsbare objecten. Voor de toepassing van het Bevi, wordt een nieuw ruimtelijk besluit gezien als een nieuwe situatie.

afbeelding "i_NL.IMRO.1652.BPPaterslaan-ON01_0025.png"

Uitsnede van de risicokaart. Het plangebied is aangeduid met de blauwe ster. Bron: risicokaart.nl, 2020

Beoordeling

Om te bepalen of er in de directe omgeving bedrijven zijn gelegen waarop het Bevi van toepassing is, is de risicokaart geraadpleegd. De dichtstbijzijnde inrichting met een potentieel veiligheidsrisico betreft een bedrijf in dienstverlening t.b.v. de akker- en tuinbouw aan de Eiermijndreef 1a. De grens van de inrichting ligt op een afstand van circa 720 meter tot het plangebied. Er is geen sprake van een PR 10-6 risicocontour. Gelet op de ruime afstand van het plangebied tot de inrichting zijn er geen gevolgen wat betreft externe veiligheid inzake het plaatsgebonden risico en het groepsrisico. Voor het overige zijn er geen relevante inrichtingen met een potentieel veiligheidsrisico nabijer in de buurt van het plangebied.

Conclusie

Het aspect Bevi-inrichtingen is geen belemmering voor onderhavig initiatief.

4.10.2 Transport en externe veiligheid

Toetsingskader

Beoordeling van de risico's veroorzaakt door het vervoer van gevaarlijke stoffen over het spoor, het water en de weg dient plaats te vinden aan de hand van het Besluit externe veiligheid transportroutes (Bevt), als in werking per 1 april 2015. Bij het besluit horen grens- en richtwaarden voor het plaatsgebonden risico en richtlijnen voor de toepassing van de rekenmethodiek en de verantwoording van het groepsrisico. Bij nieuwe ruimtelijke ontwikkelingen langs transportassen die deel uitmaken van het Basisnet Weg, Water en/of Spoor kan de berekening van het plaatsgebonden risico achterwege blijven. Hiervoor gelden namelijk de afstanden die in bijlage I, II en III van de Regeling basisnet zijn opgenomen. Op deze afstanden mag het plaatsgebonden risico vanwege het vervoer van gevaarlijke stoffen niet meer bedragen dan 10-6 per jaar. Voor het Basisnet Weg geldt dat daar waar in de tabel van bijlage 2 van het Bevt de afstand '0' is vermeld het plaatsgebonden risico vanwege het vervoer op het midden van de weg niet meer mag bedragen dan 10-6 per jaar.

Beoordeling

Om te bepalen of er in de directe omgeving van het plangebied risicorelevante transportassen zijn gelegen is de risicokaart geraadpleegd. Hieruit blijkt dat het plangebied is gelegen op een afstand van circa 2,3 kilometer van een gedeelte van de N277/N270 waarover vervoer van gevaarlijke stoffen plaatsvindt. Voor deze weg geldt dat er op basis van de risicokaart geen sprake is van een risicocontour 10-6. Voor het groepsrisico bedraagt de overschrijdingsfactor van de oriëntatiewaarde minder dan 0,1 maal de oriënterende waarde. Gelet op de ruime afstand van de deze route tot het plangebied vormt deze derhalve geen belemmering voor onderhavig voornemen.

Conclusie

Het aspect transport en externe veiligheid is geen belemmering voor onderhavige ontwikkeling.

4.10.3 Buisleidingen en externe veiligheid

Toetsingskader

Beoordeling van de risico's veroorzaakt door het transport van gevaarlijke stoffen door buisleidingen geschiedt aan de hand van het Besluit externe veiligheid buisleidingen (Bevb), als in werking getreden per 1 januari 2011. Ten aanzien van het Bevb bestaat de noodzaak om een ruimtelijke reservering op te nemen voor het plaatsgebonden risico (PR) en een verantwoording van het groepsrisico (GR) van relevante buisleidingen. Binnen de PR 10-6 risicocontour mogen geen kwetsbare objecten aanwezig zijn en zo mogelijk ook geen beperkt kwetsbare objecten. Het verwachte aantal aanwezigen binnen het invloedsgebied van de buisleiding moet worden verantwoord. Dat invloedsgebied reikt bij brandbare vloeistoffen tot net buiten de 10-6 contour, voor leidingen met aardgas en chemicaliën moet dat per geval berekend worden.

Beoordeling

Om te beoordelen of er in de directe omgeving van het plangebied risicorelevante buisleidingen zijn gelegen is de risicokaart geraadpleegd. Uit de risicokaart blijkt dat de dichtstbijzijnde buisleiding is gelegen op een afstand van ruime 2 kilometer tot het plangebied. Het betreft een defensieleiding. Gelet op de ruime afstand voor de buisleiding tot het plangebied vormt de ligging van de buisleiding geen belemmering voor onderhavig voornemen.

Conclusie

Het aspect buisleidingen en externe veiligheid vormt geen belemmering voor onderhavig plan.

4.11 Luchtkwaliteit

Toetsingskader

In het kader van een planologische procedure dient te worden aangetoond dat voldaan wordt aan de wettelijke normen voor wat betreft luchtkwaliteit. Hierbij dient het effect op de luchtkwaliteit in de omgeving als gevolg van een nieuwe ontwikkeling, als ook de toetsing aan de 'Wet luchtkwaliteit' in beeld te worden gebracht.

De 'Wet luchtkwaliteit' van 15 november 2007, opgenomen in hoofdstuk 5, onder titel 5.2 van de Wet milieubeheer (Wm) gaat in op luchtkwaliteitseisen. In Bijlage 2 van de Wm zijn wettelijke grenswaarden vastgelegd van onder andere de stoffen stikstofdioxide (NO2), fijn stof (PM10), benzeen (C6H6), zwaveldioxide (SO2), lood (Pb) en koolmonoxide (CO). Voor PM10 geldt voor het jaargemiddelde een grenswaarde van 40 µg/m3 . Het 24-uursgemiddelde van 50 µg/m3 mag maximaal 35 dagen per kalenderjaar worden overschreden. Voor NO2 geldt voor het jaargemiddelde een grenswaarde van 40 µg/m3 . Het 24-uursgemiddelde van 200 µg/m3 mag maximaal 18 dagen per kalenderjaar worden overschreden.

De 'Wet luchtkwaliteit' voorziet onder meer in een gebiedsgerichte aanpak van de luchtkwaliteit via het Nationaal Samenwerkingsprogramma Luchtkwaliteit (NSL). Het Rijk, provincies en gemeenten werken in het NSL-programma samen aan maatregelen om de luchtkwaliteit te verbeteren tot de normen, ook in gebieden waar nu de normen voor luchtkwaliteit niet worden gehaald (overschrijdingsgebieden). De programma-aanpak zorgt voor een flexibele koppeling tussen ruimtelijke activiteiten en milieugevolgen.

Kort samengevat dienen projecten te worden beoordeeld op basis van de 'Wet luchtkwaliteit' c.q. artikel 5.16 van de Wet milieubeheer. Luchtkwaliteitseisen vormen onder de 'Wet luchtkwaliteit' geen belemmering voor vergunningverlening als:

  • er geen sprake is van een feitelijke of dreigende overschrijding van een grenswaarde;
  • een project, al dan niet per saldo, niet tot een verslechtering van de luchtkwaliteit leidt;
  • een project 'niet in betekenende mate' bijdraagt aan de luchtverontreiniging;
  • een project is opgenomen in een regionaal programma van maatregelen of in het NSL, dat op 1 augustus 2009 in werking is getreden.

In artikel 2 van het 'Besluit niet in betekenende mate bijdragen (luchtkwaliteitseisen)' is opgenomen dat een project 'niet in betekenende mate' bijdraagt aan de luchtkwaliteit als de zogenaamde '3% grens' niet wordt overschreden. Na vaststelling van het NSL op 1 augustus 2009 is deze grens gedefinieerd als 3% van de grenswaarde voor de jaargemiddelde concentratie fijn stof (PM10) of stikstofdioxide (NO2). Dit komt overeen met 1,2 microgram/m3 voor zowel PM10 als NO2.

In artikel 4 van het Besluit niet in betekenende mate bijdragen (luchtkwaliteitseisen) en de bijlagen van de 'Regeling niet in betekenende mate bijdragen (luchtkwaliteitseisen)' is voor bepaalde categorieën projecten met getalsmatige grenzen vastgesteld dat deze 'niet in betekenende mate' (NIBM) bijdragen aan de luchtverontreiniging. Deze mogen zonder toetsing aan de grenswaarden voor luchtkwaliteit uitgevoerd worden.

De wettelijke ondergrens voor onderzoek bedraagt:

  • 1500 woningen (netto) bij minimaal 1 ontsluitingsweg
  • 3000 woningen bij minimaal 2 ontsluitingswegen met een gelijkmatige verkeersverdeling
  • 100.000 m² bruto vloeroppervlakte bij minimaal 1 ontsluitingsweg
  • 200.000 m² bruto vloeroppervlakte bij minimaal 2 ontsluitingswegen met een gelijkmatige verkeersverdeling.

Beoordeling

Onderhavige ontwikkeling betreft de realisatie van maximaal 43 grondgebonden woningen op een voorheen onbebouwde locatie. Gesteld kan worden dat dit plan in verhouding tot de wettelijke ondergrens voor onderzoek, gelegen op de bouw van 1500 woningen, niet in betekenende mate (NIBM) bijdraagt aan het verslechteren van de luchtkwaliteit.

In het kader van een goede ruimtelijke ordening is een indicatie van de luchtkwaliteit ter plaatse van het plangebied gegeven. Dit is gedaan aan de hand van de NSL-monitoringstool 2018 (http://www.nsl-monitoring.nl/viewer/) die bij het Nationaal Samenwerkingsprogramma Luchtkwaliteit hoort. De dichtstbijzijnde maatgevende weg is de Burgemeester van de Wildenberglaan op circa 80 meter van het plangebied. Uit de NSL-monitoringstool blijkt dat in 2020 de jaargemiddelde concentraties stikstofdioxide en fijnstof langs deze weg ruimschoots onder de grenswaarden lagen. Hierdoor is er ter plaatse van het plangebied sprake van een aanvaardbaar woon- en leefklimaat.

Conclusie

Geconcludeerd kan worden dat het aspect luchtkwaliteit geen belemmering vormt voor de onderhavige ontwikkeling. Binnen het plangebied is sprake van een goed woon- en leefklimaat.

4.12 Kabels en leidingen

Toetsingskader

De hierna volgende leidingen zijn planologisch relevant in verband met onderhoud, voor zover zij geen deel uitmaken van een inrichting zoals bedoeld in de Wet milieubeheer.1 

  • a. hoogspanningsverbindingen van 50 kV en hoger;
  • b. buisleidingen voor transport van aardgas met een uitwendige diameter van meer dan 50 mm en een druk van meer dan 16 bar;
  • c. buisleidingen voor transport van aardolieproducten met een uitwendige diameter van meer dan 70 mm en een druk van meer dan 16 bar;
  • d. buisleidingen met een diameter van 400 mm of meer buiten de bebouwde kom;
  • e. buisleidingen voor transport van andere stoffen dan aardgas en aardolieproducten, die risico's met zich meebrengen voor mens en/of leefomgeving wanneer deze leidingen beschadigd raken.2 s

Beoordeling

Ter plaatse van het plangebied zijn geen planologisch relevante kabels en leidingen aanwezig. Indien nodig zal in een later stadium van onderhavig project een KLIC-melding worden uitgevoerd.

Conclusie

Geconcludeerd kan worden dat het aspect kabels en leidingen geen belemmering vormt voor de onderhavige ontwikkeling.

4.13 Geurhinder en veehouderijen

Toetsingskader

Voor veehouderijen is het beleid ten aanzien van het aspect geur vastgelegd in de Wet geurhinder en veehouderij (Wgv) die op 1 januari 2007 in werking is getreden. Bij nieuwe planologische projecten in het kader van de Wet ruimtelijke ordening dient te worden gekeken naar de aanvaardbaarheid van deze plannen in verband met omliggende geurbronnen, de zogenaamde omgekeerde werking. In de wet zijn normen bepaald die de maximale geurbelasting op een gevoelig object bepalen. Als de geuremissie van een dier niet bekend is (geen geuremissiefactoren vastgesteld), stelt de wet minimumafstanden tussen veehouderij en geurgevoelig object. Als die geuremissie wel bekend is, dan moet de geurbelasting worden berekend met contouren. De emissie van geurstoffen uit een veehouderijbedrijf wordt uitgedrukt in geureenheden (OUÅ of OUÅ/S). Hiervoor zijn emissiefactoren vastgelegd in de Regeling geurhinder en veehouderij. De berekende geurbelasting wordt getoetst aan de norm (de maximale belasting die het bedrijf mag veroorzaken). Gemeenten mogen, binnen bepaalde bandbreedten, van deze wettelijke normen afwijken als er een gebiedsvisie is opgesteld en een geurverordening is vastgesteld. De gemeente Gemert-Bakel beschikt in dit verband over een eigen Geurverordening, waarin de normen ten aanzien van geurhinder en veehouderijen zijn vervat.

Beoordeling

Ten aanzien van de voorgrondbelasting kan worden gesteld dat, aangezien zich geen veehouderijen bevinden in de directe omgeving van het plangebied, de woningen ruim buiten de geurcontouren van veehouderijen zijn gelegen. De meeste nabije veehouderij bevindt zich op een afstand van 370 meter.

afbeelding "i_NL.IMRO.1652.BPPaterslaan-ON01_0026.png"

Uitsnede kaart achtergrondbelasting juni 2014 Gemert-Bakel. Binnen de blauwe contour is het plangebied gelegen.

Ten aanzien van de achtergrondbelasting blijkt uit de gemeentelijke kaartinformatie dat de achtergrondbelasting ter plaatse van het plangebied maximaal 13 OUE/m³ bedraagt. Conform de bij de kaart behorende gemeentelijke “Beleidsregel ruimtelijke ontwikkelingen en geurhinder gemeente Gemert-Bakel 2013” is in de kern De Rips vanaf 13 OUE/m³ sprake van een onvoldoende geursituatie. Het plangebied ligt met circa 200 meter op ruime afstand van de grens met het gebied waar sprake is van een achtergrondbelasting van meer dan 13 OUE/m³. Een waarde van 13 OUE/m³ staat gelijk aan een voldoende situatie (toetswaarde).

Conclusie

Het aspect geurhinder vormt geen belemmering voor het planvoornemen.

4.14 Milieueffectrapportage en vormvrije m.e.r.-beoordeling

Toetsingskader

Behalve aan de uitvoeringsaspecten bedoeld in de Awb en het Bro dient ook te worden getoetst aan de Wet milieubeheer en het Besluit m.e.r of er sprake is van een mogelijke verplichting tot het opstellen van een milieueffectrapportage. Een milieueffectrapportage (MER), en de bijbehorende procedure (m.e.r.), is een hulpmiddel om de belangen van het milieu volwaardig te betrekken bij de besluitvorming omtrent plannen en projecten. Het gaat hierbij wel enkel om plannen en projecten die kunnen leiden tot initiatieven waarmee het milieu mogelijk nadelig kan worden beïnvloed. Als uitgangspunt geldt voor plannen de onderstaande criteria om te beoordelen of een MER noodzakelijk is:

  • 1. Plannen die kaderstellend zijn voor toekomstige m.e.r.- (beoordelings)plichtige besluiten (boven de grenswaarden uit de C- of D-lijst van het Besluit m.e.r.);
  • 2. Plannen waarvoor een passende beoordeling nodig is in verband met een mogelijk significant negatief effect op Natura 2000 gebieden;
  • 3. Plannen en activiteiten die o.g.v. een provinciale milieuverordening zijn aangewezen als MER-plichtig.

Per 1 april 2011 is het Besluit m.e.r gewijzigd. De belangrijkste aanleidingen hiervoor zijn de modernisering van de m.e.r wetgeving in 2010 en de uitspraak van het Europese Hof van 15 oktober 2009 (HvJ EG 15 oktober 2009, zaak C-255/08 – Commissie vs. Nederland). Deze wijziging heeft gevolgen voor eerstgenoemd criteria om te beoordelen of een MER noodzakelijk is. Uit deze uitspraak volgt dat de omvang van een project niet het enige criterium mag zijn om wel of geen me.r.(-beoordeling) uit te voeren. Ook als een project onder de drempelwaarde uit de C- of D-lijst blijft, kan een project belangrijke nadelige gevolgen hebben, als het bijvoorbeeld in of nabij een kwetsbaar natuurgebied ligt. Gemeenten en provincies moeten daarom per 1 april van 2011 ook bij 'kleine projecten' (projecten onder de drempelwaarden van de C- of D-lijst) beoordelen of een m.e.r.(-beoordeling) nodig is. Dit wordt de 'vormvrije m.e.r.-beoordeling' genoemd. Deze beoordeling houdt in dat er bekeken moet worden of er bij het initiatief sprake is van dusdanig bijzondere omstandigheden of milieueffecten dat er toch een MER moet worden opgesteld. Hierbij wordt gekeken naar de selectiecriteria uit bijlage III bij de m.e.r.-richtlijn (2011/92/EU), welke o.a. de omvang van het project, de cumulatie met andere projecten en het gebruik van natuurlijke hulpbronnen betreffen.

Op 7 juli 2017 is opnieuw een wijziging van het Besluit m.e.r. in werking getreden. Eén van de belangrijkste gevolgen van deze wetswijziging is dat het bevoegd gezag dient te beoordelen of het noodzakelijk is om een milieueffectrapportage op te stellen.

Beoordeling

Met het onderhavige planvoornemen is er sprake van de nieuwbouw van woningen. Dit betreft geen activiteit die voorkomt op de C-lijst. Wat betreft het eerste criterium geldt er derhalve geen plicht tot het opstellen van een MER. De activiteit komt wel voor op de D-lijst, namelijk onder categorie D 11.2, de aanleg, wijziging of uitbreiding van een stedelijk ontwikkelingsproject met inbegrip van de bouw van winkelcentra of parkeerterreinen. De grenswaarde betreft hier gevallen waarin de activiteit betrekking heeft op o.a. een oppervlakte van 100 hectare of meer of een aaneengesloten gebied en 2.000 of meer woningen omvat. Het initiatief heeft betrekking op de realisatie van maximaal 43 woningen. Geconcludeerd kan worden dat de ontwikkeling ver beneden de drempelwaarde uit de D-lijst ligt zoals opgenomen in het Besluit m.e.r. Er geldt derhalve geen verplichting tot het uitvoeren van een formele m.e.r.-beoordeling, waardoor enkel een vormvrije m.e.r.-beoordeling resteert. Door middel van de toetsing aan de overige milieuaspecten in dit hoofdstuk heeft een vormvrije m.e.r.-beoordeling plaatsgevonden. Hieruit zijn geen belangrijke nadelige milieugevolgen gebleken, waaruit bovendien geconcludeerd kan worden dat er geen noodzaak is tot het opstellen van een MER.

De onderhavige vormvrije m.e.r.-beoordeling is tevens opgenomen in de door het bevoegd gezag beoordeelde aanmeldnotitie vormvrije m.e.r.-beoordeling. Besloten is dat de noodzaak tot het opstellen van een milieueffectrapportage ontbreekt.

Ten aanzien van het tweede criterium inzake een mogelijke MER-plicht, geldt dat er bij onderhavige situatie geen sprake is van een plan waarvoor een passende beoordeling nodig is in verband met een mogelijk significant negatief effect op Natura 2000-gebieden. Onderhavige ontwikkeling heeft met zekerheid geen mogelijk significant effect op de Natura 2000-gebieden.

Ten aanzien van het derde criterium geldt dat onderhavige activiteit niet is gelegen in een gebied waar de Provinciale milieuverordening geldt.

Conclusie

Zoals beschreven is er bij onderhavig project geen sprake van een verplichting tot het opstellen van een MER en het doorlopen van de m.e.r.-procedure op grond van het Besluit m.e.r. of de Provinciale milieuverordening. Uit de vormvrije m.e.r.-beoordeling volgt dat er geen sprake is van belangrijke nadelige milieugevolgen. Er is dus voldaan aan de wettelijke verplichtingen hieromtrent.

Hoofdstuk 5 Juridische plantoelichting

5.1 Inleiding

Dit hoofdstuk bespreekt de wijze waarop het ruimtelijk en functioneel beleid voor het plangebied in het bestemmingsplan is vertaald. Bij het opstellen van de juridische regeling heeft het uitgangspunt centraal gestaan dat er een regeling geboden wordt die de ontwikkeling van het plangebied mogelijk maakt.

5.2 Opbouw van de regels

Het bestemmingsplan bestaat uit regels en een verbeelding, vergezeld van een toelichting. De regels en de verbeelding vormen het juridisch bindende deel van het bestemmingsplan. De regels zijn zodanig opgesteld dat wordt aangesloten bij de binnen de gemeente Gemert-Bakel gehanteerde bestemmingsplansystematiek voor nieuwbouw van woningen.

De verbeelding heeft de rol van visualisering van de bestemmingen. De verbeelding omvat de gronden die voor de ontwikkeling van het plan van belang zijn. De keuze van de bestemmingen en de situering van de bestemmingsvlakken is gebaseerd op de huidige ruimtelijke situatie en de gewenste functies. Voorts sluit de opzet van de verbeelding aan op de Standaard Vergelijkbare Bestemmingsplannen 2012 (SVBP 2012).

De regels regelen hoe de betreffende gronden mogen worden gebruikt en bebouwd. De bestemmingen zijn zo opgenomen dat voldoende rechtszekerheid bestaat voor omwonenden en andere gebruikers van het gebied en de omliggende gebieden. De regels bestaan uit vier hoofdstukken, te weten:

  • inleidende regels;
  • bestemmingsregels;
  • algemene regels;
  • overgangs- en slotregels.

In de toelichting wordt gemotiveerd waarom sprake is van een goede ruimtelijke ordening. Ondanks het feit dat de toelichting geen onderdeel uitmaakt van het juridisch plangedeelte, fungeert de toelichting wel als interpretatiekader voor de uitleg van de regels, indien hierover interpretatieverschillen blijken te bestaan.

5.3 Regels

5.3.1 Hoofdstuk 1 'Inleidende regels'

Artikel 1: Begrippen

In dit artikel worden begrippen gedefinieerd, die in de regels worden gehanteerd. Bij de toetsing aan het bestemmingsplan moet worden uitgegaan van de in dit artikel aan de betreffende begrippen toegekende betekenis. Voor sommige begrippen worden in de SVBP2012 standaard omschrijvingen gegeven. Deze zijn overgenomen.

Artikel 2: Wijze van meten

In dit artikel wordt aangegeven hoe de hoogte en andere maten, die bij het bouwen in acht genomen dienen te worden, gemeten moeten worden. Ten aanzien van de wijze van meten op de verbeelding geldt steeds dat het hart van een lijn moet worden aangehouden.

5.3.2 Hoofdstuk 2 'Bestemmingsregels'

Het stramien voor de bestemmingsplanregels is vastgelegd in de SVBP 2012. De regels van een bestemming worden als volgt opgebouwd en benoemd:

  • bestemmingsomschrijving;
  • bouwregels;
  • nadere eisen;
  • afwijken van de bouwregels;
  • specifieke gebruiksregels;
  • afwijken van de gebruiksregels;
  • omgevingsvergunning voor het uitvoeren van werk, geen bouwwerk zijnde, of van werkzaamheden;
  • omgevingsvergunning voor het slopen van een bouwwerk;
  • wijzigingsbevoegdheid.

Artikel 3: Groen

De groene ruimte aan de noordzijde van het plangebied alsmede de centraal gelegen groenstrook zijn bestemd als 'Groen'. Hier is ruimte voor groen- en speelvoorzieningen, alsmede ruimte voor eventuele retentie van water. Parkeerplaatsen en wegen of woonstraten zijn binnen deze bestemming niet toegestaan, ontsluitingen en paden wel. De bouwregels bieden onder voorwaarden de mogelijkheid om bouwwerken van openbaar nut en bouwwerken, geen gebouwen zijnde, te realiseren.

Artikel 4: Groen - Landschappelijke inpassing

De groenstrook aan de oostzijde van het plangebied, alwaar de landschappelijke inpassing van het nieuwe woongebied is voorzien, krijgt deze specifieke bestemming. De gebruiks- en bouwregels zijn beperkter dan die van de reguliere groenbestemming, teneinde de landschappelijke inpassing conform het in de bijlage gevoegde landschappelijke inpassingsplan te kunnen realiseren en in stand houden.

Artikel 5: Verkeer - Verblijfsgebied

De overige openbare ruimte is voorzien van deze bestemming. Deze gronden zijn bedoeld voor wegen met hoofdzakelijk een verblijfsfunctie en parkeervoorzieningen. Binnen de bestemming zijn naast de verkeersfuncties ook andere voorzieningen toegestaan, zoals groenvoorzieningen, water en waterhuishoudkundige voorzieningen, nutsvoorzieningen, straatmeubilair, speelvoorzieningen en kunstobjecten. De bouwregels bieden onder voorwaarden de mogelijkheid om bouwwerken van openbaar nut en bouwwerken, geen gebouwen zijnde, te realiseren.

Artikel 6: Wonen

De beoogde woningen binnen het plangebied hebben de bestemming 'Wonen'. Door middel van een bouwvlak is de plaats van het hoofdgebouw en de bijbehorende bouwwwerken geregeld. Tevens zijn aanduidingen opgenomen met betrekking tot de maximaal toegestane bouwhoogte en de bebouwingstypologie. In de regels is het maximum aantal woningen geborgd. Bouwwerken van openbaar nut en bouwwerken, geen gebouwen zijnde mogen zowel binnen als buiten het bouwvlak worden gerealiseerd. Aan de zuidzijde van het plangebied is de aanduiding 'specifieke vorm van wonen uitgesloten - erf' opgenomen, waaraan een regeling is gekoppeld die waarborgt dat aldaar geen geluidgevoelige objecten mogen worden gerealiseerd. Deze eis komt voort uit de resultaten van het akoestisch onderzoek wegverkeerslawaai. Een voorwaardelijke verplichting is opgenomen ter waarborging van de realisatie en instandhouding van de landschappelijke inpassing.

5.3.3 Hoofdstuk 3 'Algemene regels'

Artikel 7: Anti-dubbeltelregel

In dit artikel wordt geregeld dat voor gronden die eenmaal in aanmerking zijn genomen bij het toestaan van een bouwplan waaraan uitvoering is gegeven of alsnog kan worden gegeven, de beoordeling van latere bouwplannen buiten beschouwing blijven.

Artikel 8: Algemene bouwregels

In dit artikel is onder meer opgenomen dat in afwijking van de bestemmingsregels de bouwgrens, gevellijn of bestemmingsgrens onder voorwaarden mag worden overschreden door tot gebouwen behorende ondergeschikte bouwdelen.

Artikel 9: Algemene gebruiksregels

In dit artikel zijn onder andere regels opgenomen voor het gebruik van gronden, gebouwen en bouwwerken in strijd met de bestemming.

Artikel 10: Algemene aanduidingsregels

De ligging van het gebied in de Inner Horizontal en Conical Surface is binnen dit artikel geregeld.

Artikel 11: Algemene afwijkingsregels

Op basis van dit artikel kan het bevoegd gezag bij een omgevingsvergunning afwijken van de onderdelen die in dit artikel zijn opgesomd.

Artikel 12: Algemene wijzigingsregels

Op basis van dit artikel zijn burgemeester en wethouders bevoegd onder voorwaarden de in het bestemmingsplan opgenomen plaats, richting en/of afmetingen van bestemmingsgrenzen te wijzigen ten behoeve van de praktische uitvoering van het plan.

Artikel 13: Overige regels

De overige regels omvatten waarborgende regelingen voor de aanleg en instandhouding van voldoende ruimte voor parkeren en waterberging.

5.3.4 Hoofdstuk 4 'Overgangs- en slotregels'

Dit hoofdstuk omvat twee artikelen:

Artikel 14: Overgangsrecht

Dit artikel betreft het overgangsrecht met betrekking tot gebruik van onbebouwde gronden en bouwwerken dat afwijkt van het bestemmingsplan op het moment dat dit rechtskracht verkrijgt. Dit gebruik mag worden voortgezet. Wijziging van het afwijkend gebruik is slechts toegestaan indien de afwijking hierdoor wordt verkleind. Daarnaast zijn overgangsregels opgenomen ten aanzien van het bouwen. Een bouwwerk dat afwijkt van de bouwregels van het bestemmingsplan op het moment dat dit rechtskracht verkrijgt, mag gedeeltelijk worden vernieuwd of veranderd, of na een calamiteit geheel worden vernieuwd of veranderd. De afwijking mag daarbij naar aard en omvang niet worden vergroot. Daarvan mag eenmalig bij een omgevingsvergunning worden afgeweken tot maximaal 10% van de inhoud van het bouwwerk. Het overgangsrecht is niet van toepassing op bouwwerken die reeds in strijd waren met het voorgaande geldende bestemmingsplan.

Artikel 15: Slotregel

Als laatste wordt de slotregel opgenomen, ook zoals voorgeschreven in het Besluit ruimtelijke ordening (Bro). Deze regel geeft aan hoe het plan kan worden aangehaald.

Hoofdstuk 6 Economische uitvoerbaarheid

6.1 Inleiding

In dit hoofdstuk wordt de economische uitvoerbaarheid beschreven. Indien het bestemmingsplan voorziet in de uitvoering van werken door de gemeente moet de financieel-economische uitvoerbaarheid hiervan worden aangetoond. Er wordt nader ingegaan op de grondexploitatie en de koppeling met het exploitatieplan.

6.2 Kostenverhaal

Toetsingskader

De Wet ruimtelijke ordening maakt het vaststellen van een exploitatieplan verplicht voor een aantal bouwactiviteiten wanneer de bouw planologisch mogelijk wordt gemaakt in een bestemmingsplan of een projectafwijkingsbesluit. De bouwplannen waarbij een exploitatieplan verplicht is staan in artikel 6.2.1 van het Besluit ruimtelijke ordening (Bro):

  • de bouw van een of meer woningen;
  • de bouw van een of meer andere hoofdgebouwen;
  • de uitbreiding van een hoofdgebouw met ten minste 1.000 m² of met een of meer woningen;
  • de verbouwing van een of meer aangesloten gebouwen die voor andere doeleinden in gebruik of ingericht waren, voor woondoeleinden, mits ten minste 10 woningen worden gerealiseerd;
  • de verbouwing van een of meer aaneengesloten gebouwen die voor andere doeleinden in gebruik of ingericht waren, voor detailhandel, dienstverlening, kantoor of horecadoeleinden, mits de cumulatieve oppervlakte van de nieuwe functies ten minste 1.000 m² bedraagt;
  • de bouw van kassen met een oppervlakte van ten minste 1.000 m².

Beoordeling en conclusie

De gemeente Gemert-Bakel is zelf deels eigenaar van de gronden in het plangebied. Gemaakte kosten ten behoeve van de grondexploitatie zullen worden verdisconteerd in de uitgifteprijs van de bouwkavels. Voor de gronden die in eigendom zijn van anderen zullen de afspraken over kostenverhaal door middel van een anterieure overeenkomst worden geregeld.

Hoofdstuk 7 Maatschappelijke uitvoerbaarheid

In het bestemmingsplanproces bestaan diverse mogelijkheden tot communicatie. De voor dit voorliggende bestemmingsplan relevante communicatie wordt in dit hoofdstuk belicht.

7.1 Vooroverleg

Artikel 3.1.1 van het Besluit op de ruimtelijke ordening (Bro) geeft aan dat bij de voorbereiding van een bestemmingsplan burgemeester en wethouders overleg met de besturen van bij het plan betrokken waterschappen plegen. Waar nodig plegen zij tevens overleg met besturen van andere gemeenten, met de provincie, de inspecteur voor de ruimtelijke ordening en met eventuele andere diensten van Rijk en provincie die belast zijn met de behartiging van belangen die in het plan in het geding zijn. Daarnaast heeft de gemeente de mogelijkheid om een voorontwerp van het bestemmingsplan ter inzage te leggen voor een inspraakperiode van zes weken. Dit inspraakmoment maakt geen onderdeel uit van de ‘formele’ procedure uit de Wet ruimtelijke ordening (Wro).

Op het voorontwerp bestemmingsplan zijn vooroverlegreacties ontvangen van de volgende instanties:

  • Provincie Noord-Brabant (29 oktober 2020): de provincie geeft aan dat het voorontwerp bestemming geen aanleiding geeft tot het maken van opmerkingen;
  • Waterschap De Dommel (10 november 2020): de reactie van het waterschap ziet toe op de volgende onderwerpen:
    • 1. Waterberging borgen: verzocht wordt om de waterbergingsopgave collectief te borgen in het bestemmingsplan in plaats van per kavel.
      Naar aanleiding van deze opmerking zijn de regels van het bestemmingsplan aangepast;
    • 2. Uitvoerbaarheid waterberging: verzocht wordt om de werking van de wadi nader te onderbouwen.
      De werking van de wadi is nader toegelicht aan het waterschap. De opmerking heeft niet geleid tot aanpassing van het bestemmingsplan;
    • 3. Watervergunning: aangezien het plan voorziet in een verhardingstoename groter dan 10.000 m² is sprake van een vergunningsplicht.
      De vergunningsaanvraag is geen direct onderdeel van de watertoets en het bestemmingsplan maar benodigd bij de verdere planuitwerking. Derhalve leidt deze opmerking niet tot aanpassing van het bestemmingsplan;
    • 4. Legger: verzocht wordt om een actueel kaartje van de legger op te nemen in de watertoets.
      De watertoets is aangepast conform het verzoek van het waterschap.

De vooroverlegreacties zijn in hun volledigheid opgenomen in Bijlage 10.

7.2 Inspraak

De resultaten van de inspraak zullen te zijner tijd worden verwerkt in onderhavige toelichting. Voorafgaand aan de planvorming heeft reeds informele informatievoorziening plaatsgevonden, waarbij de omwonenden opmerkingen hebben kunnen geven en ideeën hebben kunnen aandragen omtrent de plannen. Het voorliggende stedenbouwkundige plan betreft een uitwerking van het voorkeursmodel van de omwonenden.

7.3 Tervisielegging

De vaststellingsprocedure van het bestemmingsplan vindt plaats volgens artikel 3.8 van de Wet ruimtelijke ordening. Het plan wordt in dit kader ter visie gelegd gedurende een periode van zes weken. Gedurende deze periode wordt een ieder in de gelegenheid gesteld zijn zienswijzen kenbaar te maken tegen het plan. De eventueel ingebrachte zienswijzen worden behandeld in een zienswijzenota. Hierin zullen tevens de eventuele wijzigingen ten opzichte van het ontwerp worden verwoord. De resultaten van de tervisielegging zullen te zijner tijd worden verwerkt in onderhavige toelichting.