direct naar inhoud van Toelichting
Plan: Binderseind 50, Gemert
Status: ontwerp
Plantype: bestemmingsplan
IMRO-idn: NL.IMRO.1652.BPBinderseind50-ON01

Toelichting

Hoofdstuk 1 Inleiding

1.1 Aanleiding en doel

Initiatiefnemer is voornemens om op de hoek Binderseind / Churchilllaan 24 appartementen te realiseren. De bestaande bebouwing wordt gesloopt voor de nieuwbouw in de vorm van twee bouwblokken.

Het planvoornemen past niet in het geldende bestemmingsplan 'Centrumgebied Gemert 2012' (zie paragraaf 1.3). Om de realisatie van de appartementen mogelijk te maken is dit bestemmingsplan opgesteld.

afbeelding "i_NL.IMRO.1652.BPBinderseind50-ON01_0001.jpg"

Figuur 1.1 (globaal) Aanzicht planvoornemen (bron: EH architecten)

1.2 Ligging plangebied

De ontwikkeling vindt plaats in het zuiden van het centrum van Gemert. Het plangebied is gelegen op de hoek Binderseind 50-52 en de Churchilllaan 4. De locatie is kadastraal bekend als gemeente Gemert sectie M, perceelnummers 1593, 1594, 1761, 1762, 2636, 3649, (gedeeltelijk) 3651 en (gedeeltelijk) 5837. Het plangebied heeft een oppervlakte van circa 2.400 m2. In figuur 1.2 is de ligging van het plangebied binnen Gemert weergegeven. In figuur 1.3 is het plangebied aangeduid.

afbeelding "i_NL.IMRO.1652.BPBinderseind50-ON01_0002.jpg"

Figuur 1.2. Ligging plangebied

afbeelding "i_NL.IMRO.1652.BPBinderseind50-ON01_0003.jpg"

Figuur 1.3. Begrenzing plangebied

1.3 Geldend bestemmingsplan

Het plangebied is momenteel juridisch-planologisch geregeld in het bestemmingsplan 'Centrumgebied Gemert 2012'. Dit bestemmingsplan is door de gemeenteraad van Gemert-Bakel vastgesteld op 5 juli 2012. Op een deel van het plangebied is het bestemmingsplan 'Klooster Nazareth' van toepassing. Dit bestemmingsplan is door de gemeenteraad van Gemert-Bakel vastgesteld op 31 mei 2016. Tevens is het paraplubestemmingsplan 'Parkeren' (vastgesteld op 23 januari 2018) van toepassing.

Het plangebied heeft volgens het geldende bestemmingsplan 'Centrumgebied Gemert 2012' de volgende bestemmingen en aanduidingen:

  • enkelbestemmingen 'Horeca', 'Verkeer - Verblijfsgebied' en 'Wonen';
  • dubbelbestemming 'Waarde - Archeologie 1' en 'Waarde - Archeologie 3';
  • bouwvlak;
  • bouwaanduiding 'specifieke bouwaanduiding – beeldbepalend pand'.

Volgens het bestemmingsplan 'Klooster Nazareth' geldt ter plaatse de bestemming 'Maatschappelijk', de dubbelbestemming 'Waarde - Archeologie 5' en deels een bouwvlak.

Binnen de enkelbestemming 'Horeca' zijn op de begane grondlaag horecabedrijven toegestaan. Op de verdiepingen boven de begane grondlaag is wonen toegestaan. Binnen de bestemming 'Wonen' is één vrijstaande woning toegestaan. De gronden met de bestemming 'Verkeer - Verblijfsgebied' zijn bestemd voor onder andere verkeersvoorzieningen. Binnen de enkelbestemming 'Maatschappelijk' zijn maatschappelijke voorzieningen toegestaan en tevens ondergeschikte functies zoals parkeervoorzieningen.

Ter plaatse van de dubbelbestemmingen 'Waarde - Archeologie 1', 'Waarde - Archeologie 3' en 'Waarde - Archeologie 5' zijn de gronden mede bestemd voor de bescherming en het behoud van de op en/of in deze gronden voorkomende archeologische waarden. Ter plaatse van de bouwaanduiding 'specifieke bouwaanduiding - beeldbepalend pand' geldt een verbod op het geheel of gedeeltelijk slopen van een pand. Rondom de bestaande bebouwing is een bouwvlak opgenomen waarbinnen bouwwerken zijn toegestaan.

De beoogde transformatie is in strijd met de bouw- en gebruiksregels van het geldende bestemmingsplan. Een bouwvlak ter plaatse van de beoogde woningen ontbreekt deels. Binnen de horeca bestemming is de functie wonen op de verdiepingen weliswaar toegestaan, maar de beoogde ontwikkeling ziet tevens op wonen op de begane grond. Binnen de bestemming 'Maatschappelijk' is parkeren reeds toegestaan. Omdat dit deel uitmaakt van de ontwikkeling, is dit echter onderdeel van het plangebied.

Voor het uitvoeren van werkzaamheden aan een beeldbepalend pand is een omgevingsvergunning vereist. Om de beoogde ontwikkeling mogelijk te maken wordt een omgevingsvergunning aangevraagd. Middels voorliggende bestemmingsplan wordt aangetoond dat met het planvoornemen sprake is van een goede ruimtelijke ordening.

afbeelding "i_NL.IMRO.1652.BPBinderseind50-ON01_0004.jpg"

Figuur 1.4. Uitsnede verbeelding bestemmingsplannen (Bron: www.ruimtelijkeplannen.nl)

1.4 Leeswijzer

De toelichting op het bestemmingsplan heeft de volgende opzet.

  • In hoofdstuk 2 wordt het planvoornemen toegelicht. Direct daaropvolgend is aangegeven op welke wijze de nieuwe situatie planologisch-juridisch is geregeld in voorliggend bestemmingsplan.
  • In hoofdstuk 3 is de voorgenomen ontwikkeling getoetst aan vastgesteld en voorgenomen beleid van verschillende overheden.
  • In hoofdstuk 4 is het plan getoetst aan sectorale wetgeving en aspecten.
  • In hoofdstuk 5, 6 en 7 wordt ingegaan op de financiële, juridische en maatschappelijke uitvoerbaarheid.

Hoofdstuk 2 Planbeschrijving

2.1 Huidige situatie

Het plangebied ligt op de hoek Binderseind en Churchilllaan. Binnen het plangebied is de voormalige discotheek Axis gelegen. Binnen het plangebied zijn twee bouwdelen te onderscheiden: één gericht op Binderseind en één parallel aan de Churchilllaan. Dit in verval geraakte pand staat al geruime tijd leeg. In het oostelijke deel van het plangebied is de woning Churchilllaan 10 gelegen. Tussen deze woning en het naastgelegen schoolplein zijn de gronden reeds ingericht als parkeerterrein.

De bebouwing aan Binderseind kenmerkt zich door één- en tweelagige bebouwingen met kap in een overwegende ambachtelijke architectuur. De hoogten en dichtheid nemen richting het zuiden af. De bebouwing aan de zuidzijde van de Churchilllaan is van een latere periode en kenmerkt zich door vrijstaande woningen in overwegend één laag met kap op relatief grote percelen. De aansluitende bebouwing aan de noordzijde van de laan ligt op enige afstand van het plangebied en bestaat uit een schoolgebouw in twee bouwlagen.

afbeelding "i_NL.IMRO.1652.BPBinderseind50-ON01_0005.jpg"

Figuur 2.1 Zicht op plangebied gezien vanaf Binderseind (bron: google.streetview)

afbeelding "i_NL.IMRO.1652.BPBinderseind50-ON01_0006.jpg"

Figuur 2.2 Zicht vanaf de Churchilllaan (bron: google.streetview)

2.2 Toekomstige situatie

De beoogde ontwikkeling betreft de realisatie van 24 koopappartementen. De bestaande bebouwing van de discotheek en de woning wordt gesloopt ten behoeve van deze nieuwbouw. De kloostermuur (geen onderdeel van het plangebied) blijft behouden.

Woningbouwprogramma:

het woningbouwprogramma bestaat uit appartementen in de categorieën:

  • betaalbare koop, 14;
  • middeldure koop (laag), 4; en,
  • middeldure koop (hoog), 6.

Van deze appartementen hebben 18 appartementen een bruto vloeroppervlakte van 66 m2 of kleiner. 6 appartementen hebben een woonoppervlakte van 75 m2. Voor de doelgroepen wordt gedacht aan starters, ouderen en alleenstaanden.

Het plan bestaat uit twee woonblokken.

Blok aan Binderseind:

Geïnspireerd op het te slopen gebouw met klokgevel is hier een eenduidige hoofdmassa bedacht met één laag met kap met een goothoogte van circa 4,5 m en een nok van circa 10,6 meter. Het blok heeft een langskap aan Binderseind en is voorzien van een klokgevel dat verwijst naar de oude klokgevel, onderdeel van het te slopen complex.

Materialen, kleur en detaillering zijn eveneens gebaseerd op de oorspronkelijke bebouwing en harmoniseert met de bestaande traditionele dorpse bebouwing. Pleisterwerk, keramische dakpannen en eenvoudige gootdetailleringen.

Blok aan de Churchilllaan:

Dit blok is een voortzetting van het blok aan Binderseind. Hier is sprake van een subtiele schaalvergroting. Dit blok bestaat dan ook uit een geheel van twee blokken dat met een verspringing een overgang maakt naar de grotere korrelgrootte van het naastgelegen schoolgebouw. De maat tussen dit blok en het schoolgebouw draagt bij aan deze kwalitatieve overgang.

Ook dit blok is voorzien van een langskap, en klokgevel. Materialisering, kleur en detaillering sluit aan bij het blok aan Binderseind.

Rond de bebouwing wordt permanent openbaar groen gerealiseerd. Er is geen sprake van privétuinen. Het openbaar groen is voor voetgangers bereikbaar via wandelpaden. De noordzijde wordt ingericht als parkeerterrein, aansluitend op het reeds gerealiseerde parkeerterrein, zie geel gemarkeerd in figuur 2.3. De woningen zijn bereikbaar via de achterzijde.

afbeelding "i_NL.IMRO.1652.BPBinderseind50-ON01_0007.jpg"

Figuur 2.3 Globale inrichtingstekening planvoornemen (bron: EH architecten)

afbeelding "i_NL.IMRO.1652.BPBinderseind50-ON01_0008.jpg"

Figuur 2.4 (globaal) Aanzicht planvoornemen gezien vanaf Churchilllaan (bron: EH architecten)

afbeelding "i_NL.IMRO.1652.BPBinderseind50-ON01_0009.jpg"

Figuur 2.4 (globaal) Gevelaanzicht achterzijde en linker kopgevel (bron: EH architecten)

afbeelding "i_NL.IMRO.1652.BPBinderseind50-ON01_0010.jpg"

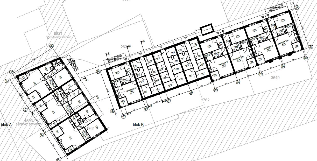
Figuur 2.5 (Globale) Plattegrond begane grond (bron: EH architecten)

Binderseind maakt onderdeel uit van de hoofdgroenstructuur conform de Groene kaart Gemert-Bakel. De huidige bomen rond het plangebied hebben een beschermd karakter. Deze hebben echter een beperkte kwaliteit vanwege onder andere de beperkte (ondergrondse) groeiruimte. De bomen worden verwijderd en vervangen binnen de nieuwe inrichting. Met de realisatie van een groene inrichting aan de straatzijde wordt de hoofdgroenstructuur bovendien versterkt. Aan de zijde van de Churchilllaan wordt de groenstrook deels als wadi ingericht, ten behoeve van de opvang van hemelwater. De exacte invulling van het groen vindt in een later stadium, in overleg met de gemeente plaats.

afbeelding "i_NL.IMRO.1652.BPBinderseind50-ON01_0011.jpg"

Figuur 2.6 Overzicht waardevolle bomen en groenstructuren (bron: https://gemertbakel.cobra360.nl/?@groenekaart)

afbeelding "i_NL.IMRO.1652.BPBinderseind50-ON01_0012.png"

Figuur 2.7 Aanwezige bomen rond het plangebied

Op het naastgelegen schoolterrein staat een beukenboom met expliciet beschermde status. De projectie van de boomkroon en waarschijnlijk ook de kwetsbare wortelzone strekt zich uit over het plangebied. Deze beukenboom staat op ruim 25 meter van de beoogde bebouwing. De bebouwing en de boom/schoolplein worden van elkaar gescheiden door een bestaande parkeerplaats. Het planvoornemen heeft dan ook geen negatieve invloed op deze waardevolle boom.

Daarnaast heeft het pand Binderseind 46, ten noorden van het plangebied, aan de achterkant een (niet beschermde) boom staan die met zijn kroon tot over het plangebied reikt. Tussen deze boom en de beoogde bebouwing ligt een pad. De kroon van de boom blijft buiten bereik van de nieuwbouw. Het planvoornemen heeft dan ook geen negatieve invloed op deze boom.

afbeelding "i_NL.IMRO.1652.BPBinderseind50-ON01_0013.png"

Figuur 2.8 Waardevolle boom op het schoolplein

Hoofdstuk 3 Beleidskader

3.1 Inleiding

Door de verschillende overheden is beleid geformuleerd ten aanzien van ruimtelijke ontwikkelingen. Paragraaf 3.2 behandelt het rijksbeleid. Het provinciaal beleid is opgenomen in paragraaf 3.3. Tot slot wordt in paragraaf 3.4 de beoogde ontwikkeling getoetst aan het gemeentelijk beleid.

3.2 Rijksbeleid

3.2.1 Nationale Omgevingsvisie (2020)

De Nationale Omgevingsvisie, kortweg NOVI, loopt vooruit op de inwerkingtreding van de Omgevingswet en vervangt op Rijksniveau de Structuurvisie Infrastructuur en Ruimte. Uitgangspunt in de nieuwe aanpak is dat ingrepen in de leefomgeving niet los van elkaar plaatsvinden, maar in samenhang. Zo kunnen in gebieden betere, meer geïntegreerde keuzes worden gemaakt.

Aan de hand van een toekomstperspectief op 2050 brengt de NOVI de langetermijnvisie van het Rijk in beeld. Op nationale belangen wil het Rijk sturen en richting geven. Dit komt samen in vier prioriteiten:

  • a. Ruimte voor klimaatadaptatie en energietransitie
  • b. Duurzaam economisch groeipotentieel
  • c. Sterke en gezonde steden en regio's
  • d. Toekomstbestendige ontwikkeling van het landelijk gebied

De druk op de fysieke leefomgeving in Nederland is zo groot, dat belangen soms botsen. Het streven is combinaties te maken en win-win situaties te creëren, maar dit is niet altijd mogelijk. Soms zijn er scherpe keuzes nodig en moeten belangen worden afgewogen. Hiertoe gebruikt de NOVI drie afwegingsprincipes:

  • a. Combinaties van functies gaan voor enkelvoudige functies: in het verleden is scheiding van functies vaak te rigide gehanteerd. Met de NOVI wordt gezocht naar maximale combinatiemogelijkheden tussen functies, gericht op een efficiënt en zorgvuldig gebruik van onze ruimte;
  • b. Kenmerken en identiteit van een gebied staan centraal: wat de optimale balans is tussen bescherming en ontwikkeling, tussen concurrentiekracht en leefbaarheid, verschilt van gebied tot gebied. Sommige opgaven en belangen wegen in het ene gebied zwaarder dan in het andere;
  • c. Afwentelen wordt voorkomen: het is van belang dat onze leefomgeving zoveel mogelijk voorziet in mogelijkheden en behoeften van de huidige generatie van inwoners zonder dat dit ten koste gaat van die van toekomstige generaties.

Toetsing

De NOVI wordt gekenmerkt door een hoog abstractie- en schaalniveau. Eén van de nationale belangen die relevant is voor het voorliggende bestemmingsplan is een zorgvuldige afweging en transparante besluitvorming. Hier wordt aan voldaan. Voor het overige is geen concreet beleid op nationaal niveau geformuleerd dat van belang is voor het voorliggend bestemmingsplan. De in de NOVI genoemde nationale belangen worden door de voorgenomen ontwikkelingen niet geschaad.

3.2.2 Besluit algemene regels ruimtelijke ordening

Dit beleidsdocument bevat regels die doorwerken naar lagere overheden. Dit betekent dat de regels uit het Barro ook geïmplementeerd moeten worden in provinciale en gemeentelijke ruimtelijke plannen. Evenals de NOVI wordt het Barro gekenmerkt door een hoog abstractie- en schaalniveau. Het Barro bevat regels voor bijvoorbeeld de mainportontwikkeling van Rotterdam, het kustfundament en defensie.

Toetsing

Op het plangebied zijn geen voorwaarden van toepassing op basis van het Barro.

3.2.3 De ladder voor duurzame verstedelijking

De ladder is als procesvereiste opgenomen in het Besluit ruimtelijke ordening (Bro). In de Ladder voor duurzame verstedelijking is opgenomen dat de toelichting van een bestemmingsplan dat een nieuwe stedelijke ontwikkeling mogelijk maakt, een beschrijving bevat van de behoefte aan de voorgenomen stedelijke ontwikkeling. Indien blijkt dat de stedelijke ontwikkeling niet binnen het bestaand stedelijk gebied kan worden voorzien, moet in de toelichting worden gemotiveerd waarom niet binnenstedelijk in de behoefte kan worden voorzien.

Toetsing

Het toevoegen van meer dan 11 woningen wordt gezien als stedelijke ontwikkeling. Het geldende bestemmingsplan is vertrekpunt bij de beoordeling of sprake is van een stedelijke ontwikkeling. In dit geval is wonen op de verdiepingen binnen de bestemming horeca al mogelijk. De totale oppervlakte van het bouwvlak is circa 1.450 m2. Hierbinnen zijn circa 10 appartementen mogelijk.

Ook geldt een woonbestemming waarbinnen één woning mogelijk is. Planologisch zijn circa 11 woningen toegestaan, feitelijk worden 24 woningen toegevoegd. Per saldo is sprake van een stedelijke ontwikkeling binnen bestaand stedelijk gebied. Daarom is hierna de behoefte beschreven.

Beschrijving behoefte

De relevante regio voor wonen is De Peel binnen de regio Zuidoost-Brabant.

afbeelding "i_NL.IMRO.1652.BPBinderseind50-ON01_0014.jpg"

Figuur 3.1 Woonregio's (Bron: Brabantse Agenda Wonen, september 2017)

De woningbehoefte in de gemeente Gemert-Bakel blijkt uit diverse onderzoeken.

Bevolkings- en woningbehoefteprognose Noord-Brabant, Actualisering 2020

Doordat het aantal huishoudens de komende jaren nog sterk toeneemt, zijn er ook meer huizen nodig. Naar verwachting is in 2050 zo'n 43% van alle huishoudens een éénpersoonshuishouden. Vooral het aantal oudere alleenstaanden van 75 jaar en ouder neemt sterk toe. Vergeleken met de vorige prognose uit 2017 ligt de groei van de Brabantse bevolking duidelijk hoger. De indicatie voor de gemeente Gemert-Bakel is 1.280 woningen in de periode 2020-2030. De tabel in figuur 3.2 is richtinggevend voor het maken van nieuwe regionale afspraken. Versnelling van de woningbouw en (vervolgens) vasthouden van het bouwtempo is een belangrijke doelstelling van de Brabantse Agenda Wonen.

afbeelding "i_NL.IMRO.1652.BPBinderseind50-ON01_0015.png"

Figuur 3.2 Indicatie toename woningvoorraad

Brabantse Agenda Wonen Voortgangsrapportage 2020/2021

In de Brabantse Agenda Wonen Voortgangsrapportage staat dat er in de regio Zuidoost Brabant in de periode 2020-2030 nog 44.000 woningen nodig zijn en er slechts harde plancapaciteit is voor 25.550 woningen.

afbeelding "i_NL.IMRO.1652.BPBinderseind50-ON01_0016.png"

Figuur 3.3 Woningbouwcapaciteit en opgaven

Binnen deze regio zijn de Woonafspraken De Peel gemaakt. Deze woonafspraken zijn nu in uitvoering en vormen de leidraad waarlangs gewerkt wordt. Plannen worden onderling gedeeld en er vindt afstemming plaats over de woningbouw. De afspraken gaan o.a. over afstemming van uitbreidingslocaties, niet-traditionele woonvormen en de huisvesting van specifieke doelgroepen, waaronder arbeidsmigranten en doelgroepen die 'claims' leggen op Wmo-budget.

In de gemeentelijke woonvisie is aangegeven dat Gemert-Bakel op basis van de provinciale prognose 2017 in de periode 2020-2030 1.040 woningen kan bijbouwen (op basis van de prognose uit 2020 gaat het om een behoefte aan 1.280 woningen). De totale plancapaciteit is daarmee 170% van de gegeven prognoseruimte. Van de totale plancapaciteit vallen 282 woningen onder harde plancapaciteit, deze zijn niet meer beïnvloedbaar. Dit is 27% van de prognoseruimte. Overige woningen vallen onder plannen die nog beïnvloedbaar zijn, deze plannen zijn nog “zacht”.

afbeelding "i_NL.IMRO.1652.BPBinderseind50-ON01_0017.png"

Figuur 3.4 Plancapaciteit

De beoogde ontwikkeling is een van de bekende zachte plannen, die invulling moeten geven aan de grote kwantitatieve woningbehoefte.

Kwalitatieve behoefte

De kwalitatieve woningbehoefte is beschreven in de gemeentelijke woonvisie Gemert-Bakel 2020-2024 (vastgesteld op 9 juli 2020). Ook zijn twee verordeningen vastgesteld waarin regels zijn opgenomen voor sociale woningbouw en middenhuur.

Met het planvoornemen wordt betaalbare en middeldure koop mogelijk gemaakt. Door het grote aandeel betaalbare koop (14 van de 24 woningen) is, in overleg met de gemeente, het toevoegen van woningen voor de verhuur niet noodzakelijk. Betaalbare koop kan zorgen voor een doorstroom vanuit de sociale woningbouw en middenhuur.

Conclusie

Er zijn nog onvoldoende harde plannen en er is sprake van een grote woningbehoefte. In het plan worden appartementen mogelijk gemaakt. Herinvulling van een leegstaande locatie binnen Gemert draagt bovendien bij aan de leefbaarheid binnen het stedelijk gebied.

3.3 Provinciaal beleid

3.3.1 Omgevingsvisie Noord-Brabant

In de Omgevingsvisie Noord-Brabant is het provinciaal beleid ten aanzien van de ruimtelijke ontwikkelingen in de provincie Noord-Brabant op hoofdlijnen uiteengezet voor de periode tot 2050. Naast een beeld van het Noord-Brabant van nu is een beeld geschetst van het welvarend, verbonden, klimaatproof en vernieuwend Noord-Brabant van 2050. Hieruit zijn vier hoofdopgaven onderscheiden die nauw met elkaar samenhangen:

  • Werken aan de Brabantse energietransitie
  • Werken aan een klimaatproof Brabant
  • Werken aan de slimme netwerkstad
  • Werken aan een concurrerende, duurzame economie

Samen met andere partijen zoals gemeenten en bedrijven wil de provincie uitvoering geven aan projecten die passen binnen deze opgaven. Van belang is dat het in de toekomst ook goed wonen, werken en verblijven blijft. Werken aan een goede omgevingskwaliteit zowel in de bebouwde als in de onbebouwde omgeving is het uitgangspunt.

Toetsing

Bij ruimtelijke ontwikkelingen ligt het accent op de herstructurering en het beheer van het bestaand (cultuurhistorisch waardevol) bebouwd en onbebouwd gebied om zorgvuldig ruimtegebruik te bevorderen. De initiatiefnemer wenst appartementen binnen het bestaand bebouwd gebied te realiseren. Deze transformatie van het cultuurhistorisch waardevolle pand is noodzakelijk om deze waarden voor de toekomst in stand te kunnen houden. De beoogde ontwikkeling speelt in op een goede omgevingskwaliteit en een duurzame economie. Hierdoor kan gesteld worden dat de beoogde ontwikkeling in lijn is met de Omgevingsvisie Noord-Brabant.

3.3.2 Interim omgevingsverordening Noord-Brabant

Gedeputeerde Staten van Noord-Brabant hebben op 25 oktober 2019 de Interim omgevingsverordening Noord-Brabant (hierna: Iov N-B) vastgesteld. Deze verordening is per 5 november 2019 in werking getreden.

Voorafgaand op de inwerkingtreding van de Omgevingswet moet de provincie haar regelsysteem aanpassen. Straks heeft de provincie nog maar één verordening waarin alle regels zijn opgenomen over de fysieke leefomgeving. De Iov N-B is een eerste stap op weg naar de definitieve omgevingsverordening. Hierin worden de bestaande verordeningen over de fysieke leefomgeving samengevoegd tot één Interim omgevingsverordening, waaronder de huidige Verordening ruimte.

De Iov N-B is beleidsneutraal van karakter. Dat betekent dat er geen nieuwe beleidswijzigingen zijn doorgevoerd, behalve als deze voortvloeien uit vastgesteld beleid, zoals de omgevingsvisie. In beginsel zijn de huidige regels met het huidige beschermingsniveau gehandhaafd.

In hoofdstuk 3 van Iov N-B zijn de instructieregels opgenomen die gemeenten moeten toepassen in hun bestemmingsplannen. Hierin staan de regels die nu nog zijn opgenomen in de Verordening ruimte. Vooruitlopend op de Omgevingswet richten de instructieregels zich op een evenwichtige toedeling van functies (in plaats van het bestemmen van ontwikkelingen). Dit betekent dat de regels ook vanuit functies (van gebieden) zijn opgebouwd. Daarnaast richten de regels zich op een goede omgevingskwaliteit, inclusief een veilige en gezonde leefomgeving (in plaats van een goede ruimtelijke kwaliteit). Tevens zijn een aantal algemene basisprincipes opgenomen.

Toetsing

In de Iov N-B zijn regels voor ontwikkelingen gekoppeld aan werkgebieden (structuren) en aanduidingen. Het plangebied ligt binnen het werkgebied 'stedelijk gebied'.

De ontwikkeling betreft de toevoeging van woningen binnen het werkgebied 'stedelijk gebied'. De toedeling van functies vindt plaats binnen bestaand ruimtebeslag. De ontwikkeling past daarmee binnen de uitgangspunten van de Interim omgevingsverordening Noord-Brabant.

3.3.3 Brabantse Agenda Wonen

In het kader van een duurzaam verstedelijkingsbeleid en in lijn met (de principes van) de 'Ladder voor duurzame verstedelijking' is het van belang de mogelijkheden om het woningbouwprogramma in te zetten op binnenstedelijke (transformatie)locaties en voor het herbestemmen van leegstaand vastgoed optimaal te benutten. Of, zoals in het 'Bestuursakkoord Noord-Brabant 2015-2019' verwoord: “herbestemmen wordt meer en meer het nieuwe bouwen”. Vaak wordt in het licht van de transformatieopgaven gekeken naar wonen als nieuwe bestemming. Omdat er in veel andere vastgoedmarkten (per saldo) niet veel meer hoeft te worden toegevoegd aan vierkante meters of zelfs sprake is van krimp. Veelal zal het dan ook gaan om het transformeren van locaties naar een tweede leven, waarin wonen de boventoon voert. Hierbij zijn vooral de eerstkomende jaren (tot 2030) cruciaal. Urgentie is geboden. Samenhangend met de nog altijd flinke groei van het aantal huishoudens zal in deze periode immers het leeuwendeel van de benodigde woonruimte moeten worden gerealiseerd. Zoals uit onze actuele bevolkings- en woningbehoefteprognose blijkt, zal van de ca. 160 duizend toe te voegen woningen tot 2050, liefst driekwart (120 duizend woningen) voor 2030 moeten worden gerealiseerd. Na 2030 neemt de groei van de woningbehoefte sterk af.

Toetsing

Uit de Brabantse Agenda Wonen blijkt dat de provincie in lijn met de uitgangspunten van de ladder voor duurzame verstedelijking ruim baan wil geven bij herontwikkeling. Er moeten snel meer woningen worden gebouwd. Plannen voor herbestemming van leegstaande locaties of plannen voor inbreiding krijgen voorrang op uitbreidingslocaties. De herbestemming van de leegstaande horecalocatie op de hoek Binderseind / Churchilllaan tot een locatie met woningen speelt hier op in. Het planvoornemen past zodoende binnen de uitgangspunten van de Brabantse Agenda Wonen.

3.4 Gemeentelijk beleid

3.4.1 Structuurvisie Plus Gemert-Bakel 2011-2021

De structuurvisie is een instrument, dat door het gemeentebestuur wordt gehanteerd om veranderingen in de juiste richting te sturen. De structuurvisie is geen statisch eindbeeld, maar een beoordelingskader voor wensen en ontwikkelingen. Het doel is uiteindelijk oplossingen te creëren voor de vraagstukken die spelen in de gemeente op het gebied van wonen, werken, landbouw, recreëren, welzijn en natuur. De gewenste ontwikkelingen uit deze visie zijn als volgt samen te vatten: De gemeente streeft naar het duurzaam verbinden van mens, ruimte en middelen. Het plangebied is in de structuurvisie aangewezen als ontwikkellocatie. De locatie is gelegen binnen het stedelijk gebied van Gemert.

De beoogde ontwikkeling raakt de volgende thema's uit de structuurvisie:

  • Archeologie en cultuurhistorie
  • Wonen

afbeelding "i_NL.IMRO.1652.BPBinderseind50-ON01_0018.png"

Figuur 3.4.1 Uitsnede structuurvisiekaart

Toetsing

Met het herstel en de herontwikkeling van een beeldbepalende locatie in de oorspronkelijke stijl wordt het cultuurhistorisch potentieel van de locatie benut zonder de identiteit aan te tasten. Daarnaast voorziet deze ontwikkeling in de woningbouwbehoefte en wonen in het centrum. Het toepassen van appartementen voor een specifieke doelgroep sluit aan bij de uitgangspunten van het thema wonen uit de structuurvisie.

3.4.2 Bestemmingsplan Centrumgebied Gemert 2012

Op 5 juli 2012 heeft de gemeenteraad van Gemert-Bakel het bestemmingsplan 'Centrumgebied Gemert 2012' vastgesteld en op 19 juni 2013 onherroepelijk. Het plangebied heeft volgens dit bestemmingsplan onder andere de bestemming 'Horeca' en 'specifieke bouwaanduiding - beeldbepalend pand', zie ook paragraaf 1.3.

In de regels van het bestemmingsplan is een verbodsbepaling opgenomen om zonder of in afwijking van een omgevingsvergunning van burgemeester en wethouders overeenkomstig het bepaalde in de Monumentenwet over te gaan tot geheel of gedeeltelijke uitvoering van werken of werkzaamheden aan een pand ter plaatse van de aanduiding 'specifieke bouwaanduiding – beeldbepalend pand'.

Toetsing

De transformatie van het plangebied is in strijd met de bouw- en gebruiksregels van het geldende bestemmingsplan. Het toevoegen van woningen past niet binnen de geldende bestemming 'Horeca'. Voor het uitvoeren van werkzaamheden aan een beeldbepalend pand is een omgevingsvergunning vereist. Daarnaast is, zoals in paragraaf 1.3 is omschreven, een deel van het plangebied gelegen in bestemmingsplan 'Klooster Nazareth'. Om de beoogde ontwikkeling mogelijk te maken wordt dit bestemmingsplan opgesteld.

3.4.3 Nota Parkeernormen Gemert-Bakel 2017

Met de Nota Parkeernormen biedt de gemeente een toetsingskader voor het bepalen van de parkeerbehoefte van ruimtelijke plannen en ontwikkelingen in de gemeente Gemert-Bakel om daarmee de bereikbaarheid en leefbaarheid te waarborgen. Met behulp van dit toetsingskader moet worden voorkomen dat als gevolg van ruimtelijke ontwikkelingen of wijzigingen parkeerproblemen in de openbare ruimte ontstaan.

Om deze doelstelling te halen wordt uitgegaan van de volgende uitgangspunten:

  • 1. De parkeernormen moeten een positieve invloed hebben op de leefbaarheid en bereikbaarheid van de gemeente Gemert-Bakel;
  • 2. Elke initiatiefnemer van (bouw)plannen is verantwoordelijk voor het aanleveren van een berekening voor zijn eigen parkeeropgave en het realiseren van de eigen parkeeroplossing;
  • 3. Een bouwinitiatief of wijziging van een functie van een locatie mag geen parkeerproblemen in de openbare ruimte veroorzaken of vergroten;
  • 4. Er bestaat de mogelijkheid om maatwerk te leveren.

Op 5 juli 2018 heeft de gemeenteraad van Gemert-Bakel het bestemmingsplan 'Paraplubestemmingsplan Parkeren Gemert-Bakel' vastgesteld. De parkeernormen uit de nota zijn vertaald in dit bestemmingsplan en dienen toegepast te worden bij het verlenen van een omgevingsvergunning in afwijking van het ter plaatse geldende bestemmingsplan.

Toetsing

De toetsing aan de gemeentelijke parkeernormen vindt plaats in paragraaf 4.2. Hieruit blijkt met de beoogde ontwikkeling voldoende parkeerplaatsen gerealiseerd worden en aan de behoefte wordt voldaan. De algemene parkeerregeling uit het paraplubestemmingsplan wordt overgenomen in de regels van dit bestemmingsplan.

3.4.4 Woonvisie Gemert-Bakel 2020-2024

De gemeente heeft een actuele woonvisie met bijbehorend uitvoeringsprogramma, zodat er gezorgd kan worden voor een goed functionerende woningmarkt en er prestatieafspraken gemaakt kunnen worden met Goed Wonen Gemert. De woonvisie 2020-2024 gaat vooral over de woningbouwaantallen en verdeling per doelgroepen.

Deze woonvisie dient daarmee als basis voor afspraken met Goed Wonen (prestatieafspraken) en ontwikkelaars (exploitatieovereenkomsten).

Tegelijk met de vaststelling van de woonvisie zijn ook de Verordening middenhuur en de Verordening sociale huur en koop vastgesteld. Deze instrumenten geven de gemeente de mogelijkheid om binnen een exploitatieovereenkomst de locatie en aantallen af te dwingen bij een ontwikkelaar wanneer anterieur hierover geen of onvoldoende afspraken kunnen worden gemaakt.

De verwachting is dat het aantal huishoudens de komende jaren toeneemt. Dat betekent dat er noodzaak is om woningen aan onze voorraad toe te voegen. De groei dient circa 120 woningen per jaar te zijn om ‘gaten’ in de verkoop te voorkomen. Op dit moment is er voldoende harde en zachte plancapaciteit om de groei tot 2040 op te vangen. Hierbij is het wel zaak om de woningen voor de juiste doelgroepen te bouwen.

Het aantal kwetsbare groepen op de woningmarkt is de afgelopen jaren toegenomen, denk aan mensen met een zorgvraag, lage inkomens en eenoudergezinnen. Belangrijk is dat er een flexibel woonconcept wordt gecreëerd dat ook voor deze doelgroepen ingezet kan worden.

De gemeente wil betaalbare woningen voor iedere doelgroep en zet in op:

Starters/jongeren

Voor beide groepen zal meer aanbod moeten komen in de middenhuur (tussen 750 en 1000 euro /mnd) en betaalbare koop. In alle kernen wil de gemeente meer experimenteren met tijdelijke woonvormen en gemengde woonvormen, voor bijvoorbeeld jongeren en ouderen aansluitend bij de provinciale lijn nieuwe woonvormen en zelfbouw.


Ouderen

Ook onder ouderen is de behoefte het grootst naar grondgebonden koopwoningen, maar is er ook een vraag naar koopappartementen (betaalbaar en middelduur). Er is behoefte aan meer nultredenwoningen, zoals bungalows. Ook hier wordt ingezet op de segmenten middenkoop en middenhuur. En door tevens levensloopbestendig te bouwen, zodat deze woningen tegelijkertijd ook voor de jongeren beschikbaar zijn. Gemengd wonen van doelgroepen wordt niet als een belemmering gezien, maar als een kans, zeker in de kleine kernen.


Gezinnen

Op dit moment ziet de gemeente een groot aanbod in het dure segment > €350.000. Veel gezinnen zijn juist op zoek naar de middeldure huizen € 275.000 – € 350.000. Om deze groep goed te faciliteren zal ook deze categorie de komende jaren extra aandacht krijgen.

Toetsing

De ontwikkeling voorziet in de realisatie van appartementen. Dit betreffen woningen in de categorie koop, waarvan het grootste aandeel betaalbare koop (14 van de 24 woningen). De behoefte van met name alleenstaanden, ouderen en starters wordt hiermee ingevuld. Herinvulling van de voormalige discotheek wordt overigens beschouwd als een project met een strategisch belang voor de gemeente.

3.4.5 Groennorm Gemert-Bakel

De gemeente Gemert-Bakel heeft de ambitie een groene gemeente te willen zijn. Het streven is om een goede balans te vinden tussen ruimte, economie en leefbaarheid. De te respecteren uitgangspunten zijn cultuurhistorie, natuurvriendelijkheid en duurzaamheid. Bij nieuwe ontwikkelingen wil de gemeente de kwaliteit en de kwantiteit van het ruimtebeslag garanderen en waarborgen. Bij initiatieven met het toevoegen van woningen wordt als tegenprestatie 75 m2 extra groen per woning verwacht. Deze groennorm van 75 m2 dient als richtgetal voor een benodigde hoeveelheid recreatief groen in stedelijk gebied. De groennorm wordt toegepast voor alle initiatieven die een uitbreiding van het bestand aan woningen en appartementen tot doel hebben. De toepassing van de groennorm is uitgewerkt in 'Uitwerking groennorm Gemert-Bakel'.

Per wooneenheid dient 'fysiek' 75 m2 groen met de eigenschap 'permanent openbaar toegankelijk' gerealiseerd te worden. Dit heeft vergaande consequenties voor de wijze van vormgeving en inrichting van het groen. Het te realiseren groen heeft door deze kwalificatie een blijvend, tenminste (semi-) openbaar karakter. Het groen hoeft niet per definitie eigendom van de gemeente te zijn (of te worden). Indien niet voorzien kan worden in de tegenprestatie is het mogelijk om een bedrag te storten in het Groenfonds. De mogelijkheid om geld te storten in het fonds dient als uitweg voor het geval dat een (gehele of gedeeltelijke) fysieke invulling van de groennorm onlogisch of onmogelijk is. Dit op basis van het beleid en afspraken tussen de gemeente en de initiatiefnemer.

Als de directe leefomgeving rondom een initiatieflocatie beschikt over voldoende groen, dan is het niet nodig om van het inbreidingsinitiatief een volwaardige fysieke invulling van de groennorm ter plekke van het initiatief te eisen. Een geschikt groen- of uitloopgebied is permanent (24/7) openbaar toegankelijk, kan bestaan uit recreatief ontsloten parken, groenzones, speelterreinen en trapveldjes. Ook het buitengebied kan geschikt zijn voor het maken van 'ommetjes' via openbare routes of zandpaden. De werkelijke loopafstand van 300 m (enkele afstand) naar omliggend groen of het buitengebied wordt als norm gehanteerd.

Toetsing

De beoogde ontwikkeling betreft de realisatie van 24 appartementen op een herstructureringslocatie. Dit betekent dat conform de groennorm 1.800 m2 extra groen gerealiseerd moet worden. Binnen het plangebied wordt 652 m2 aan fysiek groen gerealiseerd. Voor de overige 1.800 m2 - 652 m2 = 1.148 m2 is binnen het plangebied geen ruimte.

Op 300 meter afstand van het plangebied heeft initiatiefnemer openbaar groen in eigendom, kasteelcomplex Gemert. Van dit openbaar groen wordt 1.148 m2 openbaar toegankelijk ten behoeve van onderhavige ontwikkeling. Daarmee wordt aan de groennorm voldaan.

afbeelding "i_NL.IMRO.1652.BPBinderseind50-ON01_0019.jpg"

Figuur 3.5 Kasteeltuin, oppervlakte openbaar groen ten behoeve van onderhavige ontwikkeling

Ook is het plangebied op circa 300 meter gelegen van het buitengebied. In combinatie met de kasteeltuin zijn zodoende voldoende routes voor het maken van 'ommetjes' aanwezig.

Hoofdstuk 4 Omgevingsaspecten

4.1 Waterhuishouding

Beleid

Waterschap Aa en Maas

In het gebied van het project is waterschap Aa en Maas de waterbeheerder. In het Waterbeheerplan beschrijft het waterschap haar strategische keuzes, de doelen voor het waterbeheer en de financiële consequenties daarvan. Het waterbeheer is gericht op het duurzaam beheren van het watersysteem, waarbij uitgegaan wordt van een watersysteembenadering. In het 'Waterbeheerplan 2016-2021 Werken met water, Voor nu en later' beschrijft het waterschap de hoofdlijnen van haar beleid uitgewerkt in verschillende thema's. Het huidige waterbeheerplan beschrijft de plannen voor de periode 2016 – 2021. De langetermijnstrategie uit het voorgaande beheerplan wordt voortgezet voor de verschillende thema's, zoals waterkwaliteitsverbetering, vermindering van de kans op wateroverlast en verdrogingsbestrijding.

Middels de Keur van Waterschap Aa en Maas is bepaald bij welke ontwikkelingen mitigerende maatregen getroffen moeten worden. De Keur schrijft voor dat voor een toename van minder dan 500 m² verhard oppervlak geen mitigerende maatregelen nodig zijn. Deze mitigerende maatregelen zijn wel van toepassing bij elke toename van het verhard oppervlak, indien de locatie is gelegen in een

keurbeschermingsgebied.

Gemeentelijk Watertakenplan

Op 14 december 2018 heeft de gemeenteraad van de gemeente Gemert-Bakel het nieuwe Gemeentelijk Watertakenplan (GWTP) vastgesteld. Dit wordt gebruikt om nu en in de toekomst aan de gemeentelijke zorgplichten te kunnen voldoen en als toetsingskader voor nieuwe ontwikkelingen. Bij ruimtelijke ontwikkelingen dient rekening te worden gehouden met dit waterbeleid.

Het veranderende klimaat en de verstedelijking brengen grote uitdagingen met zich mee. Regenbuien worden steeds extremer en komen vaker voor, met veel overlast en schade tot gevolg. Ook het vasthouden van het gewenste grondwaterpeil wordt moeilijker tijdens extreem lange droge of natte perioden. Omdat het aantal warme dagen toeneemt wordt hittestress ook een probleem, vooral in een bebouwde omgeving met weinig groen en veel verharding.

De zorg voor riolering draagt bij aan een gezonde leefomgeving. In het GWTP zijn de gemeente zorgplichten voor afvalwater, hemelwater (regenwater) en grondwater uitgewerkt. De kans op overlast dient hierbij te worden beperkt tot maatschappelijk aanvaardbare normen. Er dient rekening gehouden te worden met de verwerking van extreme neerslaghoeveelheden. Hemelwater moet zo lokaal mogelijk verwerkt worden. Dat betekent het volgende:

  • regenwater gebruiken daar waar het valt;
  • de inrichting van de openbare ruimte benutten voor de opvang van overtollig hemelwater;
  • streven naar efficiënte en robuuste (collectieve) voorzieningen;
  • communiceren met inwoners over de gezamenlijke verantwoordelijkheid die er is om wateroverlast te voorkomen.

Bij nieuwe ontwikkelingen moet rekening gehouden worden met het volgende:

  • 1. Waterbergingsvoorziening binnen een ontwikkeling;;
  • 2. Opnemen gebruiksregel waterbergingsvoorziening in bestemmingsplan;
  • 3. Aandachtspunten rondom lozing op de riolering;
  • 4. Aandachtspunten rondom aansluiting op de riolering.

Waterbergingsvoorziening binnen een ontwikkeling

Voor de waterberging die binnen een ontwikkeling wordt gerealiseerd gelden een aantal eisen. Eén van deze eisen is dat de waterbergingsvoorziening moet 60 liter met m2 verhard oppervlak probleemloos kunnen bergen. Daarnaast mag de afvoer uit een voorziening maximaal 2 l/s/ha zijn en moet binnen 5 dagen leeggelopen zijn.

Opnemen gebruiksregel waterbergingsvoorziening in bestemmingsplan

Voor (ver)nieuwbouw neemt de gemeente Gemert-Bakel bij bestemmingsplanwijzigingen een voorwaardelijke gebruiksregel in het bestemmingsplan op waarin de realisatie en instandhouding van een minimale hoeveelheid waterberging wordt voorgeschreven. Dit compenseert de versnelde afvoer van hemelwater naar de openbare ruimte of riolering vanaf verhard oppervlak. Alleen voor inbreidingslocaties is het mogelijk om af te wijken van deze gebruiksregel, als het redelijkerwijs niet mogelijk is om de vereiste waterberging binnen het plangebied te realiseren. Daarbij moet aangetoond worden dat de kans op wateroverlast niet toeneemt door het plan.

Aandachtspunten rondom lozing op de riolering

Om een doelmatige werking te kunnen garanderen hanteert de gemeente de volgende beleidsregels:

  • Al het huishoudelijk afvalwater op de vrijverval- en drukriolering wordt geaccepteerd.
  • Bestaande bedrijfsafvalwaterlozingen op de vrijvervalriolering worden geaccepteerd.
  • Bij nieuwe bedrijfsafvalwaterlozingen wordt getoetst of de voorziene nieuwe situatie de doelmatige werking van zuivering en transportsysteem belemmert (in hoeveelheid en in samenstelling).
  • Nieuwe (of bestaande) aansluitingen van bedrijven die de waterketen onevenredig zwaar belasten kunnen worden geweigerd.
  • Elk (bestaand én nieuw) bedrijf krijgt toestemming voor maximaal één aansluiting op de drukriolering.
  • Elk (bestaand én nieuw) bedrijf mag maximaal 0,5 m3 per uur afvalwater op de drukriolering lozen.
  • Bij een aanbod groter dan 0,5 m3 per uur dient het afvalwater op eigen terrein te worden gebufferd. Wanneer buffering niet mogelijk is, wordt onderzocht of de capaciteit van de drukriolering kan worden vergroot. De voortkomende uitvoeringskosten hiervan zijn voor de perceeleigenaar, van huisaansluiting tot lozingspunt in de vrijvervalriolering.
  • Lozing van hemelwater op drukriolering is niet toegestaan.

Aandachtspunten rondom aansluiting op de riolering

Voor het realiseren van de aansluiting op de gemeentelijke riolering moet rekening gehouden worden met een aantal voorwaarden. Zo dient het vuilwater en (de overstort van) regenwater gescheiden te worden aangeboden op de perceelgrens. Daarnaast gelden nog een aantal technische eisen voor de rioolaansluiting.

Onderzoek

De beoogde ontwikkeling betreft de realisatie van 24 appartementen. Er is sprake van een wijziging van het verharde oppervlak. Een beschrijving op welke wijze rekening is gehouden met de waterhuishoudkundige aspecten en het beleid van de waterbeheerders is dan ook noodzakelijk.

Om invulling te geven aan de waterparagraaf en de waterbelangen te waarborgen, dient in deze situatie de watertoets-procedure te worden doorlopen. Deze is doorlopen en de watertoets is bijgevoegd als bijlage 1 bij deze toelichting. In het kort worden de volgende waterhuishoudkundige maatregelen getroffen:

  • In de toekomstige situatie wordt het schone hemelwater niet op het vuilwater aangesloten maar separaat verwerkt.
  • Aan de zijde van de Churchilllaan wordt een wadi aangelegd.
  • Aangesloten wordt op de wadi binnen het naastgelegen plan 7th Heaven Klooster en Nazarath.
  • In een situatie waarbij in een korte tijd meer regen valt dan 60 mm kan overtollig water overstorten richting de rondom liggende wegen.
  • Het vuilwater wordt aangesloten op het bestaande rioleringsstelsel.
  • Tijdens de bouw wordt geen gebruik gemaakt van uitlogende materialen.
  • Voor de bestrijding van onkruid wordt geen gebruik gemaakt van onkruidwerende middelden.

De ontwikkeling binnen het plangebied is civieltechnisch uitgewerkt en opgenomen in bijlage 2. Voorzien wordt in een verhard oppervlak van 1.559 m2 (bebouwing: 688 m2 en verharding/bestrating: 871 m2). Op basis van het berekende verhard oppervlak bedraagt de waterbergingsopgave 94 m3 (1.559m2 x 0,06m). Een wadi met een bergingscapaciteit van 49 m3 wordt gerealiseerd binnen de groenstrook aan de zijde van de Churchilllaan. Onder de parkeervoorziening worden infiltratiekratten met een bergingscapaciteit van 46 m3 gerealiseerd. Met een totale bergingscapaciteit van 95 m3 binnen het plangebied wordt aan de begringsopgave voldaan. De beoogde ontwikkeling heeft geen negatieve effecten voor de waterhuishoudkundige situatie.

Conclusie

Het aspect waterhuishouding vormt geen belemmering voor de geplande ontwikkeling.

4.2 Verkeersaspecten

Beleid en normstelling

Op het gebied van verkeer en vervoer bestaat geen specifieke wetgeving die relevant is voor de voorgenomen activiteit. Wel dient in het kader van het ruimtelijk plan dat de activiteit mogelijk maakt, te worden onderbouwd dat het geheel voldoet aan een goede ruimtelijke ordening. Dit houdt onder meer in dat er voldoende parkeergelegenheid aanwezig dient te zijn en de eventuele verkeerstoename niet leidt tot knelpunten in de verkeersafwikkeling. De parkeerbehoefte wordt berekend op basis van de gemeentelijke parkeernormen (Nota Parkeernormen Gemert-Bakel 2017). Conform dit beleid wordt de bovenkant van de bandbreedte aangehouden. Voor het te hanteren kencijfer / parkeernorm wordt een ligging in het 'centrum' aangehouden, de gemeente heeft een 'matig stedelijk karakter' op basis van de adressendichtheid.

Onderzoek

Ontsluiting

Het plangebied wordt ontsloten via Binderseind en de Churchilllaan. De West-Om is bereikbaar vanaf Binderseind in noordelijke richting via het Ridderplein, Kerkstraat en Ruijschenberghstraat. Richting het zuiden is in het verlengde van Binderseind via de Oudestraat de Zuid-Om bereikbaar. De parkeerplaatsen zijn bereikbaar via een bestaande toerit aan de Churchilllaan, direct ten oosten van het plangebied. Voetgangers bereiken het plangebied via voetpaden aan Binderseind en de Churchilllaan en kunnen de woningen bereiken via paden aan de achterzijde van de woningen.

Parkeren

Op basis van het beoogde programma is de parkeerbehoefte berekend volgens de gemeentelijke parkeernormen (Nota Parkeernormen Gemert-Bakel 2017). Binnen het plangebied worden koop appartementen gerealiseerd. Voor kleine appartementen met een woonoppervlakte tot 100m2 bvo (bruto vloeroppervlakte) binnen het centrum geldt een parkeernorm van 1,3 parkeerplaatsen per woning. Voor grote appartementen (met een woonoppervlakte vanaf 100m2 bvo) geldt een parkeernorm van 1,6 parkeerplaatsen per woning. Deze parkeernormen zijn inclusief 0,3 parkeerplaatsen voor bezoekers. De ontwikkeling bestaat uit 24 appartementen, allen kleiner dan 100 m2, zie paragraaf 2.2.

oppervlakte   aantal   parkeernorm   parkeerbehoefte  
appartementen, woonoppervlakte tot 100 m2 bvo   24   1,3   32  
appartementen, woonoppervlakte vanaf 100 m2 bvo   0   1,6   0  
te vervallen parkeerplaatsen Binderseind   -   -   4  
Totaal       36  

De totale parkeerbehoefte bedraagt daarmee 36 parkeerplaatsen. Binnen het plangebied is voldoende ruimte om te voorzien in de parkeerbehoefte. Hier zijn in totaal 66 parkeerplaatsen aanwezig, 38 bestaande en 28 nieuwe parkeerplaatsen.

In de huidige situatie zijn reeds 38 openbaar toegankelijke parkeerplaatsen gerealiseerd, zie geel omlijnd in figuur 2.3. Deze parkeerplaatsen blijven openbaar toegankelijk. Voor twee openbare parkeerplaatsen worden laadplaatsen voor electrische auto gerealiseerd. 30 parkeerplaatsen zijn gerealiseerd ten behoeve van het plan 7th Heaven, ten noorden van het plangebied. De overige 8 parkeerplaatsen zijn ten behoeve van onderhavige ontwikkeling.

Direct ten noorden van de nieuwbouw en aansluitend op de bestaande parkeerplaats worden 28 nieuwe parkeerplaatsen gerealiseerd (figuur 4.2.1). Van deze parkeerplaatsen zijn 2 parkeerplaatsen gelegen op grond van de gemeente. Deze blijven echter openbaar toegankelijk en sluiten aan op de reeds aanwezige parkeerplaatsen binnen dit kadastrale perceel. Met de aanwezigheid van 28+8=36 parkeerplaatsen wordt voldaan aan de parkeerbehoefte.

afbeelding "i_NL.IMRO.1652.BPBinderseind50-ON01_0020.png"

Figuur 4.2.1 Parkeerplaatsen binnen plangebied

Verkeersgeneratie

Met kencijfers van CROW publicatie 381 kan voor verschillende functies de verkeersgeneratie bepaald worden. De kencijfers zijn gerelateerd aan de ligging van de planontwikkeling en de mate van stedelijkheid van het gebied. De betreffende ontwikkeling is gelegen in het gebied “centrum”. Deze gebiedsindeling is afkomstig van Nota Parkeernormen Gemert-Bakel 2017. Voor de mate van stedelijkheid kan het gebied op basis van de adressendichtheid gekarakteriseerd worden als 'matig stedelijk'. Op basis van het autobezit binnen de gemeente Gemert-Bakel in vergelijking met die in andere gemeenten met eenzelfde stedelijkheidsgraad, kan worden uitgegaan van het gemiddelde van de door het CROW gegeven bandbreedte. De gemiddelde verkeersgeneratie voor betaalbare koop bedraagt 4,3 mvt/etmaal. De gemiddelde verkeersgeneratie voor middeldure koop (laag en hoog) bedraagt 5,1 mvt/etmaal per woning. In tabel 4.2.1 is de verkeersgeneratie van de ontwikkeling berekend.

Tabel 4.2.1 Verkeersgeneratie

functie   CROW categorie   aantal   kencijfer   mvt/etmaal  
betaalbare koop   Koop, appartement, goedkoop   14   4,3   60,2  
middeldure koop (laag)   Koop, appartement, midden   4   5,1   20,4  
middeldure koop (hoog)   Koop, appartement, midden   6   5,1   30,6  
Totaal         112  

Uit tabel 4.2.1 blijkt dat voor de totale ontwikkeling de verkeersgeneratie 112 mvt/etmaal bedraagt.

Verkeersafwikkeling

Om de verkeersafwikkeling op het omliggende verkeersnetwerk te bepalen dient gekeken te worden naar het werkdaggemiddelde. Voor de 24 appartementen kan met een omrekenfactor van 1,11 de gemiddelde werkdagintensiteit bepaald worden. Met een weekdaggemiddelde van 112 mvt/etmaal bedraagt de werkdaggemiddelde intensiteit 125 mvt/etmaal. Verdeeld over de dag zal de verkeerstoename niet tot knelpunten leiden en zal het ook vrij snel opgaan in het heersende verkeersbeeld.

Conclusie

Ten aanzien van de verkeersaspecten zijn er geen belemmeringen voor de beoogde ontwikkeling.

4.3 Archeologie

Beleid en normstelling

Het cultureel erfgoed van Nederland wordt beschermt met de Erfgoedwet. Om te voorkomen dat de archeologische informatie ongezien verloren gaat, is het noodzakelijk dat gemeenten in het ruimtelijk beleid waarborgen voor de omgang met dit bodemarchief. Dit is een uitvloeisel van het Verdrag van Malta dan in 1992 door Nederland werd ondertekend. Gemeenten moeten bij het vaststellen van bestemmingsplannen rekening houden met de eventuele aanwezigheid van archeologische waarden. Hieronder vallen zowel reeds bekende archeologisch waardevolle gebieden als gebieden waarvoor een (verhoogde) archeologische verwachting geldt. Deze waarden krijgen een archeologische (mede)bestemming, die wordt vermeld in de toelichting van het bestemmingsplan, wordt begrensd in de verbeelding (plankaart) en wordt voorzien van regels die gekoppeld zijn aan een vergunningstelsel.

Archeologiebeleid Gemert-Bakel

Op basis van de huidige wetgeving zijn de gemeenten in Nederland verantwoordelijk voor het behoud van het archeologisch bodemarchief. Omdat ruimtelijke ingrepen gevolgen kunnen hebben voor dit bodemarchief, moeten gemeenten bij de besluitvorming archeologie als volwaardige factor meenemen in de belangenafweging. Om dit op een verantwoorde en transparante wijze te kunnen doen is gemeentelijk archeologiebeleid wenselijk. De gemeente beschikt over een vastgestelde beleidsplan archeologie.

Onderzoek

Het beleidsplan archeologie van de gemeente is vertaald in de diverse bestemmingsplannen, zo ook in het voor het plangebied geldende bestemmingsplan 'Centrumgebied Gemert 2012'. Hierin is voor het plangebied de dubbelbestemming 'Waarde - Archeologie 1' opgenomen. Voor een smalle strook aan de oostzijde van het plangebied geldt de dubbelbestemming 'Waarde - Archeologie 3', zie paragraaf 1.3. Binnen de dubbelbestemming 'Waarde - Archeologie 1' mogen alleen bouwwerken gebouwd worden tot een oppervlakte van maximaal 250 m2 of een oppervlakte van meer dan 250 m2, mits niet dieper dan 0,40 meter. Binnen de dubbelbestemmingen 'Waarde - Archeologie 3' en 'Waarde - Archeologie 5' geldt een oppervlakte van maximaal 2.500 m2.

Het beoogde planvoornemen voorziet in bodemingrepen groter dan 250 m2 en dieper dan 0,40 meter. Een archeologisch onderzoek wordt noodzakelijk geacht. Binnen het plangebied heeft inventariserend veldonderzoek, bureauonderzoek en karterend booronderzoek plaats gevonden, zie bijlage 3. Dit onderzoek is aangepast op basis van de adviezen in het selectiebesluit (bijlage 4). Op basis van dit onderzoek is archeologisch vervolgonderzoek in de vorm van proefsleuven noodzakelijk. Hiervoor is een programma van eisen opgesteld dat ter goedkeuring aan het bevoegd gezag wordt voorgelegd (bijlage 5). Het proefsleuvenonderzoek wordt uitgevoerd voorafgaand aan de sloop van de ondergrondse delen van de bestaande bebouwing. Het plangebied kan zodoende nog niet vrijgegeven worden voor het aspect archeologie. De dubbelbestemming 'Waarde - Archeologie 1' blijft behouden. Na het proefsleuvenonderzoek kan het plangebied worden vrijgegeven. Vanwege de waarde die de gemeente heeft toegekend en het plangebied en gevolg gevend aan het selectiebesluit is gekozen om de dubbelbestemming 'Waarde - Archeologie 1' op te nemen voor het hele plangebied.

In alle gevallen blijft onverminderd van kracht dat indien bij toekomstig graafwerk archeologische vondsten worden gedaan of archeologische grondsporen worden aangetroffen, deze direct gemeld dienen te worden bij de minister conform de Erfgoedwet 2016, artikel 5.10 & 5.11.

Conclusie

Het aspect archeologie vormt geen belemmering voor de voorgenomen ontwikkeling. De archeologische dubbelbestemmingen blijven behouden.

4.4 Cultuurhistorie

Beleid en normstelling

Goede ruimtelijke ordening betekent dat er een integrale afweging plaatsvindt van alle belangen die effect hebben op de kwaliteit van de ruimte. Een van die belangen is de cultuurhistorie. Per 1 januari 2012 is in het kader van de modernisering van de monumentenzorg (MOMO) in het Besluit ruimtelijke ordening van het rijk opgenomen dat gemeenten bij het maken van bestemmingsplannen rekening moeten houden met cultuurhistorische waarden. Hiertoe dient middels bestudering van kaarten bepaald te worden of binnen (de invloedsfeer van het plangebied) Rijksmonumenten (historische gebouwen, sluizen, tuinbeelden en grafstenen), Archeologische Rijksmonumenten, Werelderfgoederen en beschermde stads- en dorpsgezichten aanwezig zijn. Ook het voorkomen van gebieden met landschappelijke waarden en beschermde natuurgebieden (Natura 2000-gebieden, Wetlands, Beschermde Natuurmonumenten, Nationale Parken, Nationale Landschappen en de Ecologische Hoofdstructuur dient bepaald te worden.

Onderzoek

Binnen het plangebied is geen monumentale bebouwing gelegen. Wel is het pand aan het Binderseind aangemerkt als beeldbepalend pand. Het plangebied maakt tevens onderdeel uit van de historische lintbebouwing van het Binderseind waaraan diverse monumentale panden zijn gelegen. Het Binderseind en de Churchilllaan zijn, volgens de provinciale cultuurhistorische waardenkaart, tevens aangemerkt als historische weg van hoge waarde. De nieuwe bebouwing aan het Binderseind en het beoogde bouwblok nabij de Churchilllaan zijn gericht op deze wegen en houden de cultuurhistorische waarden in tact. Gezien de vervallen status van het beeldbepalende pand wordt nieuwbouw in gelijke stijl verkozen boven renovatie. De toe te passen materialen, kleuren en detaillering van de nieuwe bebouwing, zoals de kenmerkende klokgevel, zijn gebaseerd op de oorspronkelijke bebouwing en harmoniseert met de bestaande traditionele dorpse bebouwing.

Conclusie

Ten aanzien van het aspect cultuurhistorie zijn er geen belemmeringen voor de beoogde ontwikkeling.

4.5 Bodemkwaliteit

Beleid en normstelling

Op grond van artikel 3.1.6 van het Bro dient in verband met de uitvoerbaarheid van een plan rekening te worden gehouden met de bodemgesteldheid in het plangebied. Bij functiewijzigingen dient te worden bekeken of de bodemkwaliteit voldoende is voor de beoogde functie en moet worden vastgesteld of er sprake is van een saneringsnoodzaak. In de Wet bodembescherming is bepaald dat indien de desbetreffende bodemkwaliteit niet voldoet aan de norm voor de beoogde functie, de grond zodanig dient te worden gesaneerd dat zij kan worden gebruikt door de desbetreffende functie (functiegericht saneren). Voor een nieuw geval van bodemverontreiniging geldt, in tegenstelling tot oude gevallen (voor 1987), dat niet functiegericht maar in beginsel volledig moet worden gesaneerd. Nieuwe bestemmingen dienen bij voorkeur te worden gerealiseerd op bodem die geschikt is voor het beoogde gebruik.

Onderzoek

Om de bodemkwaliteit van het plangebied te bepalen is een verkennend bodemonderzoek noodzakelijk conform NEN 5740. Daarnaast is verkennend onderzoek asbest in bodem conform NEN 5707 noodzakelijk. De resultaten van het bodemonderzoek zijn bijgevoegd in bijlage 6.

De verdachte laag is licht verontreinigd met cadmium, koper, kwik, lood, zink en PAK. De ondergrond is analytisch niet verontreinigd. Het grondwater is licht verontreinigd met barium, xylenen en naftaleen. Gelet op de aard en mate van verontreiniging bestaat er geen reden voor een nader onderzoek.

Er zijn op het maaiveld geen asbestverdachte materialen aangetroffen. In de bodem zijn zintuiglijk in de fractie > 20 mm geen asbestverdachte materialen aangetroffen. Analytisch is in mengmonster ASB-MM3, in de fractie < 20 mm, 21 mg/kg d.s. asbest aangetoond. Dit gehalte ligt onder de helft van de interventiewaarde. In de overige mengmonsters is in de fractie < 20 mm geen asbest aangetoond. Op basis van de onderzoeksresultaten wordt gesteld dat er geen aanleiding bestaat tot het uitvoeren van een nader onderzoek asbest in bodem. In geval van grondwerkzaamheden op de locatie behoeven er ten aanzien van asbest geen specifieke maatregelen te worden getroffen.

Op basis van de vastgestelde milieuhygiënische bodemkwaliteit wordt geacht dat geen belemmeringen aanwezig zijn voor de wijziging van de bestemming in Wonen. Voor het aanvragen van een Omgevingsvergunning activiteit Bouwen is het noodzakelijk om aanvullend een verkennend bodemonderzoek conform NEN5740 uit te voeren. Het bodemonderzoek dient uitgevoerd te worden ná sloop en vóór nieuwbouw.

Conclusie

De bodemkwaliteit vormt geen belemmering voor de beoogde bestemmingswijziging. Voorafgaand aan de bouw wordt een verkennend bodemonderzoek uitgevoerd.

4.6 Wegverkeerslawaai

Beleid en normstelling

Langs alle wegen - met uitzondering van 30 km/uur-wegen en woonerven - bevinden zich op grond van de Wet geluidhinder (Wgh) geluidzones waarbinnen de geluidhinder vanwege de weg getoetst moet worden. De breedte van de geluidzone is afhankelijk van het aantal rijstroken en van binnen- of buitenstedelijke ligging. De geluidbelasting wordt berekend aan de hand van de Europese dosismaat Lden (L day evening night). Deze dosismaat wordt weergegeven in dB. Deze waarde vertegenwoordigt het gemiddelde geluidsniveau over een etmaal.

Nieuwe situaties

Voor de geluidbelasting aan de buitengevels van woningen en andere geluidgevoelige bestemmingen binnen de wettelijke geluidzone van een weg geldt een voorkeursgrenswaarde van 48 dB. In bepaalde gevallen is vaststelling van een hogere waarde mogelijk. Deze hogere grenswaarde mag de maximaal toelaatbare hogere waarde niet te boven gaan. De maximale ontheffingswaarde in onderhavige situaties bedraagt 63 dB (binnenstedelijk gelegen woning).

Aftrek ex artikel 110g Wgh

De in de Wgh genoemde grenswaarden aan de buitengevels ten aanzien van wegverkeerslawaai betreffen waarden inclusief aftrek op basis van artikel 110g Wgh. Dit artikel houdt in dat voor het wegverkeer een aftrek mag worden gehanteerd welke anticipeert op het stiller worden van het wegverkeer in de toekomst door innovatieve maatregelen aan de voertuigen. De toegestane aftrek bedraagt: 5 dB voor wegen waarvoor de representatief te achten snelheid van lichte motorvoertuigen minder dan 70 km/u bedraagt. Voor wegen met een representatief te achten snelheid van 70 km/u of meer is de hoogte van de aftrek afhankelijk van de geluidbelasting exclusief aftrek. Bij een geluidbelasting van 56 dB en 57 dB mag een aftrek toegepast worden van respectievelijk 3 dB en 4 dB. Bij overige geluidbelastingen wordt een aftrek van 2 dB toegepast. De aftrek mag alleen worden toegepast bij toetsing van de geluidbelastingen aan de normstellingen uit de Wgh. In voorliggend onderzoek is gebruik gemaakt van een aftrek van 5 dB.

Onderzoek

Binnen het plangebied worden geluidgevoelige functies gerealiseerd, namelijk 24 woningen. De geluidgevoelige functies zijn niet gelegen binnen de geluidzones van gezoneerde wegen conform de Wet geluidhinder. Op de wegen in de omgeving van het plangebied geldt een snelheidsregime van 30 km/u. De bebouwing wordt bovendien gerealiseerd in de huidige rooilijn van Bindereind en enkele meters achter de huidige rooilijn van de Churchilllaan. Een akoestisch onderzoek wegverkeerslawaai is volgens de Wet geluidhinder niet noodzakelijk. In het kader van een goede ruimtelijke ordening is het noodzakelijk een binnenniveau van maximaal 33 dB te realiseren. Dit betreft een uitvoeringsaspect dat bij de aanvraag omgevingsvergunning voor bouwen wordt uitgewerkt. Met de toepassing van de nieuwste bouw- en isolatietechnieken wordt verwacht dat aan het noodzakelijke binnenniveau kan worden voldaan.

Conclusie

De gewenste woningen kunnen gerealiseerd worden binnen de randvoorwaarden van de Wet geluidhinder. Er is sprake van een aanvaardbaar akoestisch woon- en leefklimaat.

4.7 Milieuhinder en bedrijven

Beleid en normstelling

In het kader van een goede ruimtelijke ordening is het van belang dat bij de aanwezigheid van bedrijven in de omgeving van milieugevoelige functies zoals woningen:

  • een goed woon- en leefmilieu kan worden gegarandeerd ter plaatse van de woningen;
  • rekening wordt gehouden met de bedrijfsvoering en milieuruimte van de eventueel in de omgeving aanwezige bedrijven/inrichtingen.

Om in de bestemmingsregeling de belangenafweging tussen bedrijvigheid en woningen in voldoende mate mee te nemen, wordt in dit plan gebruikgemaakt van de VNG-publicatie Bedrijven en milieuzonering (editie 2009). In deze publicatie is een lijst opgenomen waarin de meest voorkomende bedrijven en bedrijfsactiviteiten zijn gerangschikt naar mate van milieubelasting. Voor elke bedrijfsactiviteit is de maximale richtafstand ten opzichte van milieugevoelige functies aangegeven op grond waarvan de categorie-indeling heeft plaatsgevonden.

Voor de beoordeling is het van belang om te weten of het gebied getypeerd kan worden als een rustige woonwijk of een gemengd gebied. Een gemengd gebied wordt als volgt getypeerd: “Een gebied met een matige tot sterke functiemenging. Direct naast woningen komen andere functies voor, zoals winkels, horeca en kleine bedrijven".

Onderzoek

In de beoogde situatie worden 24 woningen gerealiseerd. Hiermee wordt een milieugevoelige functie opgericht en moet worden getoetst aan de richtafstanden zoals vermeld in de VNG-brochure. Het plangebied is gelegen binnen het centrum van Gemert, met diverse verschillende functies in de directe omgeving. De omgeving van het plangebied wordt daardoor getypeerd als 'gemengd gebied' waardoor met 1 afstandsstap kan worden afgeweken van de richtafstanden van de VNG-publicatie Bedrijven en milieuzonering. In de omgeving van het plangebied liggen bedrijven die een mogelijke invloed kunnen hebben op de ontwikkeling.

Zo bevindt zich direct ten oosten van het plangebied de bestemming 'Maatschappelijk'. Hier is een basisschool gelegen. Volgens de VNG-brochure valt een basisschool onder milieucategorie 2 met een richtafstand van 10 meter in gemengd gebied. De werkelijke afstand tussen terreingrens van de basisschool en het plangebied bedraagt ruim 15 meter. Hiermee wordt aan de richtafstand voldaan.

Ten westen van het plangebied liggen enkele detailhandelsbestemmingen. Hier mag detailhandel alleen op de begane grondlaag gerealiseerd worden. Hier is onder andere een fietsenwinkel gevestigd. Volgens de VNG-brochure valt dit onder milieucategorie 1 met een richtafstand van 0 meter in gemengd gebied. De werkelijke afstand tussen de bebouwing en de woninggevel bedraagt, vanwege de tussengelegen Binderseind, minimaal 20 meter. Hiermee wordt ruim aan de richtafstand voldaan.

Aan Binderseind 49 ligt een horecabestemming. Hier is een cafetaria gevestigd. Volgens de VNG-brochure valt dit onder milieucategorie 2 met een richtafstand van 10 meter in gemengd gebied. De werkelijke afstand tussen de bebouwing en het plangebied bedraagt circa 50 meter. Hiermee wordt ruim aan de richtafstand voldaan.

Conclusie

Er wordt aan de richtafstanden voldaan. Als gevolg van de beoogde ontwikkeling worden geen bedrijven belemmerd en ter plaatse van het plangebied is sprake van een aanvaardbaar woon- en leefklimaat.

4.8 Luchtkwaliteit

Beleid en normstelling

De gevolgen voor de luchtkwaliteit worden beoordeeld op basis van de Wet ruimtelijke ordening, de Wet milieubeheer luchtkwaliteitseisen (ook wel Wet luchtkwaliteit genoemd, Wlk), de AMvB 'Niet in betekenende mate' (het Besluit NIBM) en de ministeriële regeling NIBM. Er dient, ook na realisatie van het planvoornemen, sprake te zijn van een goede ruimtelijke ordening. Daarbij moet voldaan worden aan de geldende grenswaarden en luchtkwaliteitseisen.

Het toetsingskader voor luchtkwaliteit wordt gevormd door hoofdstuk 5, titel 5.2 van de Wet milieubeheer. Dit onderdeel van de Wet milieubeheer (Wm) bevat grenswaarden voor zwaveldioxide, stikstofdioxide en stikstofoxiden, fijn stof, lood, koolmonoxide en benzeen. Hierbij zijn in de ruimtelijke ordeningspraktijk langs wegen vooral de grenswaarden voor stikstofdioxide (jaargemiddelde) en fijn stof (jaar- en daggemiddelde) van belang. De grenswaarden van de laatstgenoemde stoffen zijn in tabel 4.1. weergegeven.

Tabel 4.1. Grenswaarden maatgevende stoffen Wm

stof   toetsing van   grenswaarde  
stikstofdioxide (NO2))   jaargemiddelde concentratie   40 µg/m³  
fijn stof (PM10)   jaargemiddelde concentratie   40 µg/m³  
  24-uurgemiddelde concentratie   max. 35 keer p.j. meer dan 50 µg/m³  
Fijn stof (PM2,5)   jaargemiddelde concentratie   25 µg/m³  

NIBM

In het Besluit niet in betekenende mate bijdragen (luchtkwaliteitseisen) is bepaald in welke gevallen een project vanwege de gevolgen voor de luchtkwaliteit niet aan de grenswaarden hoeft te worden getoetst. Hierbij worden 2 situaties onderscheiden:

  • een project heeft een toename van minder dan 3% van de jaargemiddelde concentratie NO2 en PM10 (= 1,2 µg/m³);
  • een project valt in een categorie die is vrijgesteld aan toetsing aan de grenswaarden; deze categorieën betreffen onder andere woningbouw met niet meer dan 1.500 woningen aan één ontsluitingsweg of kantoorlocaties met maximaal 100.000 m2 bvo bij één ontsluitingsweg.

Onderzoek

In paragraaf 4.2 is de verkeersgeneratie berekend. Ten gevolge van de ontwikkeling zal de verkeersgeneratie circa 112 motorvoertuigen per etmaal bedragen. De ontwikkeling valt daarmee binnen de categorie 'Niet in betekenende Mate' zoals bedoeld in het Besluit niet in betekenende mate bijdragen (luchtkwaliteitseisen). Het plan draagt daarmee niet in betekenende mate bij aan de luchtkwaliteit. Nader onderzoek is daarom niet noodzakelijk.

afbeelding "i_NL.IMRO.1652.BPBinderseind50-ON01_0021.jpg"

Figuur 4.8.1 Uitsnede NIBM-tool

In het kader van een goede ruimtelijke ordening is een indicatie van de luchtkwaliteit ter plaatse van het plangebied gegeven. Dit is gedaan aan de hand van de NSL-monitoringstool 2020 (http://www.nsl-monitoring.nl/viewer/) die bij het Nationaal Samenwerkingsprogramma Luchtkwaliteit hoort. De dichtstbijzijnde maatgevende weg betreft de Zuid-Om, op ruim 550 meter ten zuiden van het plangebied. Uit de NSL-monitoringstool blijkt dat in de prognose voor 2020 de jaargemiddelde concentraties stikstofdioxide en fijn stof langs deze weg ruimschoots onder de grenswaarden lagen. De concentraties luchtverontreinigende stoffen bedroegen in de prognose voor 2020; 20,6 µg/m³ voor NO2, 18,4 µg/m³ voor PM10 en 11,4 µg/m³ voor PM2,5. Het aantal overschrijdingsdagen van de 24-uur gemiddelde concentratie PM10 bedroeg 6,5 dagen. Hierdoor is er ter plaatste van het plangebied sprake van een aanvaardbaar woon- en leefklimaat.

afbeelding "i_NL.IMRO.1652.BPBinderseind50-ON01_0022.jpg"

Figuur 4.8.2 Uitsnede NSL tool

Toetsing aan het Besluit gevoelige bestemmingen (luchtkwaliteitseisen) is niet noodzakelijk. Omdat een woning geen gevoelige bestemming is zoals bedoelt in het Besluit gevoelige bestemmingen vormt dit aspect geen belemmering voor de ontwikkeling.

Conclusie

Er wordt geconcludeerd dat het aspect luchtkwaliteit de uitvoering van het plan niet belemmert. Uit het oogpunt van luchtkwaliteit is sprake van een aanvaardbaar woon- en leefmilieu ter plaatse.

4.9 Gezondheid

Beleid en normstelling

De gemeente Gemert-Bakel heeft in 2017 het beleid "Toetsen Volksgezondheid bij procedures voor veehouderijen" vastgesteld. Indien er een pluimveehouderij binnen 1 kilometer van beoogde woningbouw is gelegen moet worden bepaald op welke afstand de adviesnorm van 30 EU/m3 wordt overschreden. Afhankelijk van dit onderzoek moet er advies gevraagd worden bij de GGD.

Onderzoek

Van belang zijn de afstand van het plangebied tot de pluimveehouderij en de totale uitstoot van fijn stof van de pluimveehouderij. In figuur 4.9.1 is de afstand van de pluimveehouderij tot het plangebied weergegeven. De pluimveehouderij is op een afstand van circa 1.133 meter van het plangebied gelegen. Op basis van de vigerende omgevingsvergunning milieu van de pluimveehouderij gelegen aan De Kampen 12 wordt 1.260 kg/jaar fijn stof (PM10) per jaar uitgestoten.

afbeelding "i_NL.IMRO.1652.BPBinderseind50-ON01_0023.png"

Figuur 4.9.1 Afstand pluimveehouderij (De Kampen 12) tot plangebied welke blauw omkaderd is (bron: Basisviewer Rho)

afbeelding "i_NL.IMRO.1652.BPBinderseind50-ON01_0024.png"

Figuur 4.9.2 Relatie bronsterkte fijn stof en aan te houden afstand (vleeskuikens)

Uit figuur 4.9.2 blijkt dat vanaf een afstand van 217 meter vanaf de pluimveehouderij voldaan wordt aan de adviesgrenswaarde van de Gezondheidsraad van 30 EU/m3. Er wordt ruimschoots aan deze afstand voldaan.

Conclusie

Het aspect gezondheid vormt geen belemmering voor de beoogde ontwikkeling.

4.10 Geur

Beleid en normstelling

Het toetsingskader voor het geuronderzoek wordt gevormd door de Wet geurhinder en veehouderij. Het bevoegd gezag, het college van burgemeester en wethouders van Gemert-Bakel, heeft een geurverordening opgesteld.

De Wet geurhinder en veehouderij heeft tot doel het beschermen van mens en milieu tegen de negatieve effecten van geurbelasting, onder andere als gevolg van emissies door veehouderijen. Met de in de Wet geurhinder en veehouderij opgenomen grenswaarden moet rekening gehouden worden bij nieuwe ruimtelijke ontwikkelingen. In de Wet geurhinder en veehouderij zijn in artikel 3 grenswaarden opgenomen voor de geurbelasting van die veehouderij op een geurgevoelig object. Hierbij wordt onderscheid gemaakt tussen de ligging binnen of buiten concentratiegebieden en de bebouwde kom.

Onderzoek

afbeelding "i_NL.IMRO.1652.BPBinderseind50-ON01_0025.png"

Figuur 4.10.1 Uitsnede Gemeentelijke normstelling behorende bij Geurverordening en geurbeleid 2013 met het plangebied zwart omlijnd

De geurbelasting van een individuele veehouderij wordt 'voorgrondbelasting' genoemd. De maximaal toegestane geurbelasting van veehouderijen op geurgevoelige objecten is afhankelijk van de ligging (concentratiegebied of geen concentratiegebied en binnen of buiten de bebouwde kom). Uit de Verordening geurhinder en veehouderij gemeente Gemert-Bakel 2013 blijkt dat het plangebied in 'overige kernen' is gelegen. In de Verordening is bepaald dat de maximale waarde voor de geurbelasting van een veehouderij op een geurgevoelig object voor 'overige kernen' 2,0 Ou is. Naast geurnormen stelt de Wgv ook eisen aan de (vaste) afstanden van veehouderijen tot geurgevoelige objecten. De afstanden gelden voor dieren waarvoor in de Rgv geen omrekeningsfactoren zijn vastgesteld, zoals melkrundvee, vrouwelijk jongvee en paarden. De minimaal aan te houden afstand bedraagt 50 meter tot een geurgevoelig object buiten de bebouwde kom en 100 meter tot een geurgevoelig object binnen de bebouwde kom. Deze afstanden gelden ongeacht het aantal dieren dat er gehouden wordt en worden gemeten vanaf het dichtstbijzijnde emissiepunt van een stal waarin de betreffende dieren worden gehouden. De geldende wettelijke afstanden zijn 100 meter in de bebouwde kom. Hier wordt aan voldaan. De dichtstbijzijnde veehouderij bevindt zich aan De Hoef 1a op circa 680 meter afstand. De geurbelasting van alle veehouderijen samen op enige locatie wordt 'achtergrondbelasting' genoemd. De Wgv kent geen normen voor de achtergrondbelasting of de mogelijkheid dergelijke normen te stellen. De achtergrondbelasting die optreedt of op kan treden is dan ook een gevolg van de aanwezige veehouderijen en de individuele geurbelasting. Zoals eerder beschreven is de dichtstbijzijnde veehouderij op minimaal 680 meter gelegen van het plangebied. Andere veehouderijen zijn op nog grotere afstand gelegen.

Conclusie

Het aspect geur vormt geen belemmering voor de beoogde ontwikkeling.

4.11 Externe veiligheid

Beleid en normstelling

Bij ruimtelijke plannen wordt ten aanzien van externe veiligheid naar verschillende aspecten gekeken, namelijk:

  • bedrijven waar opslag, gebruik en/of productie van gevaarlijke stoffen plaatsvindt;
  • vervoer van gevaarlijke stoffen over wegen, spoor, water of leidingen.

Ten aanzien van deze aspecten moeten de risico's waaraan burgers in hun leefomgeving worden blootgesteld tot een aanvaardbaar minimum worden beperkt.

In het externe veiligheidsbeleid wordt onderscheid gemaakt in het plaatsgebonden risico (PR) en het groepsrisico (GR).

  • Het PR is de kans per jaar dat een persoon op een bepaalde plaats overlijdt als rechtstreeks gevolg van een ongeval met gevaarlijke stoffen, indien hij onafgebroken en onbeschermd op die plaats zou verblijven. Het PR wordt weergegeven met risicocontouren rondom een inrichting of langs een vervoersas.
  • Het GR drukt de kans per jaar uit dat een groep mensen van minimaal een bepaalde omvang overlijdt als rechtstreeks gevolg van een ongeval met gevaarlijke stoffen. Voor het GR geldt een oriëntatiewaarde. De gemeente heeft een verantwoordingsplicht als het GR toeneemt en/of de oriëntatiewaarde overschrijdt.

Risicorelevante inrichtingen

Relevant is het Besluit externe veiligheid inrichtingen (Bevi). Op basis van het Bevi geldt voor het PR een grenswaarde voor kwetsbare objecten en een richtwaarde voor beperkt kwetsbare objecten. Beide liggen op een niveau van 10-6 per jaar. Bij de vaststelling van een ruimtelijke onderbouwing of bestemmingsplan moet aan deze normen worden voldaan, ongeacht of het een bestaande of nieuwe situatie betreft.

Het Bevi bevat geen norm voor het GR; wel geldt op basis van het Bevi een verantwoordingsplicht ten aanzien van het GR in het invloedsgebied van de inrichting. De in het externe veiligheidsbeleid gehanteerde norm voor het GR geldt daarbij als oriëntatiewaarde.

Vervoer van gevaarlijke stoffen over water, wegen en spoorwegen

Relevant is de circulaire Risiconormering Vervoer Gevaarlijke Stoffen (circulaire RVGS) en in de toekomst ook het Besluit Transportroutes Externe Veiligheid (BTEV). Op basis van de circulaire RVGS geldt het volgende:

  • Voor bestaande situaties gelden ter plaatse van kwetsbare en beperkt kwetsbare objecten de grenswaarde voor het PR van 10-5 per jaar en de streefwaarde van 10-6 per jaar.
  • In nieuwe situaties geldt ter plaatse van kwetsbare objecten de grenswaarde voor het PR van 10-6 per jaar. Voor beperkt kwetsbare objecten geldt deze waarde als een richtwaarde.
  • Bij een overschrijding van de oriëntatiewaarde voor het GR of een toename van het GR geldt een verantwoordingsplicht. Deze verantwoordingsplicht geldt zowel in bestaande als nieuwe situaties. De circulaire vermeldt dat op een afstand van 200 m vanaf het tracé in principe geen beperkingen hoeven te worden gesteld aan het ruimtegebruik.

Vooruitlopend op het BTEV zijn in de circulaire RVGS veiligheidsafstanden opgenomen uit het Basisnet Weg en het Basisnet Water. In het BTEV worden tevens plasbrandaandachtsgebieden benoemd voor transportroutes. Aan de hand van de Basisnetten wordt al geanticipeerd op de beperkingen voor ruimtelijke ontwikkelingen die samenhangen met deze plasbrandaandachtsgebieden.

Buisleidingen 

Relevant is het Besluit externe veiligheid buisleidingen (Bevb). In dat Besluit wordt aangesloten bij de risicobenadering uit het Besluit externe veiligheid inrichtingen (Bevi) zodat ook voor buisleidingen normen voor het PR en het GR gelden. Op grond van het Bevb dient bij ontwikkelingen inzicht te worden gegeven in de afstand tot het plaatsgebonden risico en de hoogte van het groepsrisico als gevolg van het transport van gevaarlijke stoffen door buisleidingen.

Onderzoek

afbeelding "i_NL.IMRO.1652.BPBinderseind50-ON01_0026.png"

Figuur 4.10.1 Fragment risicokaart met relevante inrichtingen en transportroutes (bron: risicokaart)

Overeenkomstig de professionele risicokaart waarin relevante risicobronnen getoond worden, zijn er in de omgeving van het plangebied geen risicovolle inrichtingen te vinden (figuur 4.10.1). Ook vindt er geen transport van gevaarlijke stoffen plaats via de weg, het spoor of het water.

Ten noordwesten van het plangebied bevindt zich de buisleiding Z-542-08 met een diameter van 6 inch en een werkdruk van 40 bar. Het invloedsgebied bedraagt hiermee 70 meter. De afstand tussen de buisleiding en plangebied bedraagt circa 820 meter. Het plangebied bevindt zich niet in het invloedsgebied. Nader onderzoek is niet noodzakelijk.

Ten zuiden bevindt zich een LPG-tankstation op circa 676 meter. Het invloedsgebied van het tankstation bedraagt 150 meter. Het plangebied bevindt zich niet in het invloedsgebied of effectafstand.

De brandweer zal opstellen op Binderseind of Churchilllaan en de rest te voet af moeten leggen. Op de hoek Binderseind/ Churchilllaan ligt een brandkraam. Bij de uitvoering wordt er rekening mee gehouden dat deze brandkraan behouden blijft.

Conclusie

Het plangebied ligt niet binnen het invloedsgebied van een risicovolle inrichting of transport van gevaarlijke stoffen. Het aspect externe veiligheid vormt dan ook geen belemmering voor de beoogde ontwikkeling.

4.12 Ecologie

Beleid en normstelling

Met de Wet natuurbescherming (hierna: Wnb) zijn alle bepalingen met betrekking tot de bescherming van natuurgebieden en dier- en plantensoorten samengebracht in één wet. De Wnb implementeert diverse Europeesrechtelijke regelgeving, zoals de Vogelrichtlijn en de Habitatrichtlijn in de Nederlandse wetgeving.

Gebiedsbescherming 

De Wnb kent diverse soorten natuurgebieden, te weten:

  • Natura-2000 gebieden;
  • Natuurnetwerk Nederland (NNN).

Natura-2000 gebieden

De Minister van Economische Zaken (EZ) wijst gebieden aan die deel uitmaken van het Europese netwerk van natuurgebieden: Natura 2000. Een dergelijk besluit bevat de instandhoudingsdoelstellingen voor de leefgebieden van vogelsoorten (Vogelrichtlijn) en de instandhoudingsdoelstellingen voor de natuurlijke habitats en habitats van soorten (Habitatrichtlijn). Een bestemmingsplan dat afzonderlijk of in combinatie met andere plannen of projecten significante gevolgen kan hebben voor een Natura 2000-gebied, kan uitsluitend vastgesteld worden indien uit een passende beoordeling de zekerheid is verkregen dat het plan, onderscheidenlijk het project de natuurlijke kenmerken van het gebied niet zal aantasten. Indien deze zekerheid niet is verkregen, kan het plan worden vastgesteld, indien wordt voldaan aan de volgende drie voorwaarden:

  • alternatieve oplossingen zijn niet voor handen;
  • het plan is nodig om dwingende redenen van groot openbaar belang, met inbegrip van redenen van sociale of economische aard, en;
  • de nodige compenserende maatregelen worden getroffen om te waarborgen dat de algehele samenhang van het Natura 2000-netwerk bewaard blijft.

De bescherming van deze gebieden heeft externe werking, zodat ook ingrepen die buiten deze gebieden plaatsvinden verstoring kunnen veroorzaken en moeten worden getoetst op het effect van de ingreep op soorten en habitats.

Natuurnetwerk Nederland (NNN)

Gebieden die deel uitmaken van het Natuurnetwerk Nederland (NNN) worden aangewezen in de provinciale verordening. Voor dit soort gebieden geldt het 'nee, tenzij' principe, wat inhoudt dat binnen deze gebieden in beginsel geen nieuwe ruimtelijke ontwikkelingen mogen plaatsvinden.

Soortenbescherming 

In de Wnb wordt een onderscheid gemaakt tussen:

  • soorten die worden beschermd in de Vogelrichtlijn;
  • soorten die worden beschermd in de Habitatrichtlijn;
  • overige soorten.

De Wnb bevat onder andere verbodsbepalingen ten aanzien van het opzettelijk vernielen of beschadigen van nesten, eieren en rustplaatsen van vogels als bedoeld in artikel 1 van de Vogelrichtlijn. Gedeputeerde Staten (hierna: GS) kunnen hiervan ontheffing verlenen en bij verordening kunnen Provinciale Staten (hierna: PS) vrijstelling verlenen van dit verbod. De voorwaarden waaraan voldaan moet worden om ontheffing of vrijstelling te kunnen verlenen zijn opgenomen in de Wnb en vloeien direct voort uit de Vogelrichtlijn. Verder is het verboden in het wild levende dieren van soorten, genoemd in bijlage IV, onderdeel a, bij de Habitatrichtlijn, bijlage II bij het Verdrag van Bern of bijlage I bij het Verdrag van Bonn, in hun natuurlijk verspreidingsgebied opzettelijk te doden of te vangen of te verstoren. GS kunnen hiervan ontheffing verlenen en bij verordening kunnen PS vrijstelling verlenen van dit verbod. De gronden voor verlening van ontheffing of vrijstelling zijn opgenomen in de Wnb en vloeien direct voort uit de Habitatrichtlijn.

Ten slotte is een verbodsbepaling opgenomen voor overige soorten. Deze soorten zijn opgenomen in de bijlage onder de onderdelen A en B bij de Wnb. De provincie kan ontheffing verlenen van deze verboden. Verder kan bij provinciale verordening vrijstelling worden verleend van de verboden. De noodzaak tot ontheffing of vrijstelling kan hierbij ook verband houden met handelingen in het kader van de ruimtelijke inrichting of ontwikkeling van gebieden.

Onderzoek

Gebiedsbescherming

Het plangebied vormt geen onderdeel van een natuur- of groengebied met een beschermde status, zoals Natura 2000. Het plangebied maakt ook geen deel uit van het Natuur Netwerk Nederland (NNN). De afstand tot het dichtstbijzijnde Natura 2000-gebied Deurnsche Peel & Mariapeel bedraagt circa 12 kilometer. De afstand tot het meest dichtstbijzijnde NNN bedraagt circa 300 meter. Directe effecten zoals areaalverlies en versnippering kunnen hierdoor worden uitgesloten. Gezien de grote afstand tot natuurgebieden kunnen ook effecten zoals verstoring en verandering van de waterhuishouding worden uitgesloten.

Voor de berekening van stikstofdepositie op stikstofgevoelige gebieden wordt onderscheidt gemaakt in de gebruiksfase (bijlage 9) en in de realisatiefase (bijlage 10). Voor de gebruiksfase en de realisatiefase is een AERIUS-berekening uitgevoerd om negatieve effecten op Natura 2000 uit te sluiten. De conclusie is verwerkt in een memo (bijlage 8).Uit de berekeningen blijkt dat geen sprake is van rekenresultaten die hoger zijn dan 0,00 mol N/ha/jr voor de gebruiksfase van de ontwikkeling.

Soortenbescherming

Het planvoornemen betreft de sloop van een gedeelte van de huidige bebouwing en de realisatie van nieuwbouw op deze locatie. Het andere gedeelte van de bebouwing wordt gerenoveerd. Het is dan ook niet uitgesloten dat deze locatie ongeschikt als verblijfsplaats voor beschermde soorten is. Aan de hand van een quickscan flora en fauna wordt bepaald of de ontwikkeling mogelijk van invloed is op beschermde plant- en diersoorten. Dit onderzoek is als bijlage 7 toegevoegd.

Uit het onderzoek blijkt dat het plangebied geschikt is voor de aanwezigheid van, en de ontwikkeling mogelijk verstorend is voor algemene broedvogels, jaarrond beschermde broedvogels, verblijfplaatsen van vleermuizen, voor grondgebonden zoogdieren en minimaal voor amfibieën.

Op basis van de quickscan dient voor uitvoering van de plannen middels aanvullend veldonderzoek duidelijkheid te worden verkregen omtrent de aan- of afwezigheid van nestlocaties van de huismus en gierzwaluw, en verblijfplaatsen van de gewone dwergvleermuis, ruige dwergvleermuis, laatvlieger en gewone grootoorvleermuis.

Ten aanzien van algemene broedvogels kunnen overtredingen worden voorkomen door rekening te houden met het broedseizoen of door voorafgaand aan de werkzaamheden een controle op broedgevallen uit te voeren. De nesten mogen worden weggenomen wanneer deze op dat moment niet in gebruik zijn.

Voor beschermde soorten behorend tot de overige soortgroepen zijn overtredingen ten aanzien van de Wet natuurbescherming wegens het ontbreken van geschikt habitat, het ontbreken van sporen en/of vanwege een vrijstelling bij ruimtelijke ontwikkeling niet aan de orde. Wel dient rekening te worden gehouden met de algemene zorgplicht ten aanzien van algemene grondgebonden zoogdieren en amfibieënsoorten.

Ten aanzien van beschermde gebieden of houtopstanden worden geen bezwaren verwacht.

Het benodigde aanvullend veldonderzoek is uitgevoerd en opgenomen als bijlage 7. Er zijn geen vaste rust- en verblijfplaatsen van huismussen, gierzwaluwen en vleermuizen geconstateerd in de bebouwing op de onderzoekslocatie waar sloop- en nieuwbouwwerkzaamheden of renovatiewerkzaamheden worden uitgevoerd. Eventuele vaste rust- en verblijfplaatsen van huismussen, gierzwaluwen en vleermuizen in de nabije bebouwing zullen, gezien de onderlinge afstand en de aard van de werkzaamheden, geen negatieve effecten ondervinden van de voorgenomen werkzaamheden op de onderzoekslocatie. Tevens worden er door de voorgenomen werkzaamheden geen essentiële foerageergebieden of vliegroutes van vleermuizen aangetast.

Er zijn twee broedlocaties van de kauwen op de onderzoekslocatie aangetroffen in de schoorstenen van de bebouwing. Het werken buiten het broedseizoen en het eventueel weghalen van nesten of het afschermen van de schoorstenen buiten het broedseizoen is voldoende om overtreding van de Wet natuurbescherming te voorkomen.

Met inachtneming van te nemen maatregelen voor broedvogels vormt het aspect soortenbescherming geen belemmering voor de beoogde werkzaamheden en ontwikkeling.

Conclusie

De voorgenomen ontwikkeling leidt niet tot significante effecten op beschermde natuurgebieden of beschermde soorten. Het aspect ecologie vormt dan ook geen belemmering voor de voorliggende ontwikkeling.

4.13 Kabels en leidingen

Beleid en normstelling

Planologisch relevante leidingen en hoogspanningsverbindingen dienen te worden gewaarborgd. Tevens dient rond dergelijke leidingen rekening te worden gehouden met zones waarbinnen mogelijke beperkingen gelden. Planologisch relevante leidingen zijn leidingen waarin de navolgende producten worden vervoerd:

  • a. gas, olie, olieproducten, chemische producten, vaste stoffen/goederen;
  • b. aardgas met een diameter groter of gelijk aan 18 inch;
  • c. defensiebrandstoffen;
  • d. warmte en afvalwater, ruwwater of halffabricaat voor de drink- en industriewatervoorziening met een diameter groter of gelijk aan 18 inch.

De Wet informatie-uitwisseling ondergrondse netten (WION) verplicht gravers (ook wel grondroerders genoemd) tot het melden van elke ‘mechanische grondroering’ bij het Kadaster. Doel van de wet is gevaar of economische schade door beschadiging van ondergrondse kabels of leidingen (water-, elektriciteit- en gasleidingen, telefoonlijnen en olie- en gasleidingen) te voorkomen. De wet heeft de (vrijblijvende) zelfregulering zoals die bestond in de vorm van het Kabels en Leidingen Informatie Centrum (KLIC) vervangen.

Onderzoek en conclusie

In en nabij het plangebied zijn geen planologisch relevante leidingen, hoogspanningslijnen, straalpaden of telecomverbindingen aanwezig. Met eventueel aanwezige overige planologisch gezien niet-relevante leidingen (zoals rioolleidingen, leidingen nutsvoorzieningen, drainageleidingen) in of nabij het plangebied hoeft in het bestemmingsplan geen rekening te worden gehouden. Voor deze leidingen zal nog wel een melding bij het kadaster worden gedaan.

4.14 Duurzaamheid, energie en klimaatadaptatie

Beleid en normstelling

Het Bouwbesluit stelt eisen aan energiezuinigheid van nieuwe gebouwen. De maat voor energiezuinigheid heet Energie Prestatie Coëfficiënt (EPC). Hierbij kan op verschillende manieren omgegaan worden met energie zuinigheid.

Onderzoek en conclusie

Voor alle nieuwbouw geldt dat aanvragen van de omgevingsvergunning vanaf 1 januari 2021 moeten voldoen aan de eisen voor bijna energieneutrale gebouwen (BENG). Per 1 juli 2018 is het daarnaast verplicht gasloos te bouwen. De nieuwbouw zal hieraan voldoen.

4.15 Vormvrije m.e.r.-beoordeling

Beleid en normstelling
In onderdeel C en D van de bijlage bij het Besluit m.e.r. is aangegeven welke activiteiten in het kader van het omgevingsvergunning planmer-plichtig, projectmer-plichtig of mer-beoordelingsplichtig zijn. Voor deze activiteiten zijn in het Besluit m.e.r. drempelwaarden opgenomen. Daarnaast dient het bevoegd gezag bij de betreffende activiteiten die niet aan de bijbehorende drempelwaarden voldoen, na te gaan of sprake kan zijn van belangrijke nadelige gevolgen voor het milieu, gelet op de omstandigheden als bedoeld in bijlage III van de EEG-richtlijn milieueffectbeoordeling. Deze omstandigheden betreffen:

  • de kenmerken van de projecten;
  • de plaats van de projecten;
  • de kenmerken van de potentiële effecten.

Sinds 7 juli 2017 is een aanpassing van het Besluit m.e.r. in werking getreden. Hierin is geregeld dat ook voor projecten die zijn opgenomen in bijlage D, maar beneden de drempelwaarden vallen, een besluit moet worden genomen of een milieueffectrapportage nodig is. In dat kader wordt afgewogen of het plan, ondanks dat het ruim onder de drempelwaarde blijft, mogelijk toch belangrijke negatieve milieueffecten heeft, op basis van de eerder genoemde omstandigheden. Dit is een 'vormvrije' mer-beoordeling.

Toetsing en conclusie

De beoogde ontwikkeling betreft de realisatie van 24 wooneenheden.

In het Besluit milieueffectrapportage is opgenomen dat de aanleg, wijziging of uitbreiding van een stedelijk ontwikkelingsproject m.e.r.-beoordelingsplichtig is in gevallen waarin de activiteit betrekking heeft op 'een oppervlakte van 100 hectare of meer' of 'een aaneengesloten gebied en 2000 of meer woningen omvat' (Besluit milieueffectrapportage, Bijlage onderdeel D11.2). De beoogde ontwikkeling betreft de realisatie van 24 appartementen. Hiermee blijft de ontwikkeling ruim onder de drempelwaarde. Gezien de transformatie van de huidige locatie is geen sprake van verstening of urbanisering van een gebied. Van een stedelijk ontwikkelingsproject is dan ook geen sprake.

Een zogenaamde 'vormvrije m.e.r.-beoordeling' is dan ook niet noodzakelijk. Gelet op de kenmerken van het plan zoals het kleinschalige karakter in vergelijking met de drempelwaarden uit het Besluit m.e.r., de plaats van het plan en de kenmerken van de potentiële effecten zullen geen belangrijke negatieve milieugevolgen optreden.

Voor dit bestemmingsplan is dan ook geen uitgebreide plan-of project m.e.r.-beoordelingsprocedure noodzakelijk conform het Besluit m.e.r.

Conclusie

Een besluit op mer-beoordeling is niet noodzakelijk.

Hoofdstuk 5 Financiële uitvoerbaarheid

Volgens artikel 6.12 van de Wro dient tegelijk met de vaststelling van een bestemmingsplan een exploitatieplan worden vastgesteld voor de gronden waarop een bij algemene maatregel van bestuur aangewezen bouwplan is voorgenomen, tenzij het verhaal van kosten van de grondexploitatie anderszins verzekerd is.

Het plangebied is eigendom van de initiatiefnemer. De kosten van deze ontwikkeling zijn derhalve volledig voor rekening van de initiatiefnemer. Met de gemeente Gemert-Bakel wordt een anterieure overeenkomst gesloten.

Hoofdstuk 6 Juridische uitvoerbaarheid

6.1 Wettelijk kader

In de Wro en het Besluit ruimtelijke ordening (Bro) is geregeld dat alle nieuwe ruimtelijke plannen, waaronder bestemmingsplannen, digitaal moeten worden vervaardigd, met inachtneming van de daartoe wettelijk verplicht gestelde ruimtelijke ordeningsstandaarden (thans SVBP2012, IMRO2012, STRI2012). Op die wijze zijn bestemmingsplannen onderling vergelijkbaar en ook digitaal uitwisselbaar. Ook de Wet algemene bepalingen omgevingsrecht (Wabo) is van belang voor bestemmingsplannen.

6.2 Opzet van de bestemmingsregeling

Ten aanzien van de opzet van de bestemmingsregeling is het volgende van belang.

Verbeelding

Eisen aan de verbeelding

Belangrijke eis is dat het bestemmingsplan dient te voldoen aan de eis van rechtszekerheid. Dit betekent dat een bestemmingsregeling duidelijk en voor één uitleg vatbaar dient te zijn. In aansluiting hierop en in relatie tot de digitale verplichting verdient het de voorkeur zoveel mogelijk onderdelen van de regeling op de verbeelding zichtbaar te maken en de regels zo transparant mogelijk te houden.

Op de verbeelding wordt met bestemmingen en aanduidingen aangegeven welk gebruik is toegestaan en of er ten behoeve van die bestemmingen mag worden gebouwd. De bestemmingen worden door middel van hoofdletters aangeduid, zoals 'W' voor 'Wonen'. Met aanduidingen kan het gebruik nader worden gespecificeerd en het bouwen worden gereguleerd. Een veel voorkomende bouwaanduiding is die voor de maximum goot- en bouwhoogte van hoofdgebouwen; deze worden aangegeven door middel van een matrix. Naast enkelbestemmingen die met een kleur worden aangeduid, zijn er dubbelbestemmingen die op de verbeelding herkenbaar zijn aan arceringen.

De gehanteerde bestemming

Voor het plangebied is een woonbestemming opgenomen. Voor deze bestemmingsregeling is aangesloten bij het bestemmingsplan 'stedelijk gebied'. Naast deze enkelbestemming komen de dubbelbestemmingen 'Waarde - Archeologie 1' en 'Waarde - Archeologie 3' te vervallen, omdat de locatie is vrijgegeven op verstoring van de aanwezigheid van archeologische sporen, zie paragraaf 4.3.

Regels

Op grond van SVBP2012 hebben de hoofdstukken waarin de regels zijn opgenomen, de volgende vaste volgorde.

  • In Hoofdstuk 1 worden in de regels gehanteerde begrippen, voor zover nodig, gedefinieerd en wordt de wijze van meten bepaald.
  • In Hoofdstuk 2 worden in alfabetische volgorde van de naam van de bestemmingen de regels gegeven waarmee die bestemmingen zoals die op de verbeelding voorkomen, nader worden omschreven.
  • Hoofdstuk 3 bevat een aantal regels die voor alle bestemmingen gelden, zoals een anti-dubbeltelbepaling.
  • Hoofdstuk 4 bevat het overgangsrecht voor bestaand gebruik en bestaande bebouwing en de titel van het plan.

Ook bij de opstelling van een bestemmingsbepaling (hoofdstuk 2 van de regels) moet een vaste volgorde gebruikt worden: Een bestemmingsregel behoeft niet alle voorgeschreven elementen te bevatten. Dit is afhankelijk van de aard van de bestemming. Alle bestemmingen bevatten wel een bestemmingsomschrijving en bouwregels.

Voorts is in het Bro een aantal bepalingen opgenomen waaraan de regels van het bestemmingsplan moeten voldoen. Het gaat hierbij om een aantal begrippen, regels ten aanzien van het overgangsrecht en de anti-dubbeltelbepaling.

6.3 Toelichting op de gehanteerde bestemmingen

Groen (Artikel 3)

De voor 'Groen' aangewezen gronden zijn bestemd voor de inrichting van het terrein, de wegen en paden en een moestuin. Uitsluitend ten behoeve van de moestuin is bebouwing toegestaan. Binnen deze bestemming zijn tevens voorwaarden opgenomen ter bescherming van de monumentale muur.

Wonen (Artikel 5)

De voor 'Wonen' aangewezen gronden zijn bestemd voor het wonen met aan-huis-gebonden beroepen, kleinschalige beroeps- en bedrijfsmatige activiteiten. Woningen, van het type patio, zijn uitsluitend toegestaan binnen het bouwvlak en de aangeven maatvoeringen. Binnen deze bestemming zijn tevens voorwaarden opgenomen ter bescherming van de monumentale muur.

6.4 Toelichting op de algemene regels

Deze algemene regels bestaan uit een aantal algemene, niet aan specifieke bestemmingen gekoppelde, bepalingen.

Anti-dubbeltelregel (Artikel 7)

Deze bepaling is ingevolge artikel 3.2.4 van het Bro vast voorgeschreven. Doel van deze bepaling is te voorkomen dat er meer wordt gebouwd dan het bestemmingsplan beoogt, bijvoorbeeld als (onderdelen van) percelen van eigenaar wisselen. De anti-dubbeltelbepaling voorkomt dat het overgedragen erf nog eens in de beoordeling van de bouwmogelijkheden op het oorspronkelijk deel erf kan worden betrokken.

Algemene bouwregels (Artikel 8)

Dit artikel bevat één lid, namelijk 'overschrijding bouwgrenzen' (lid : Dit is een regeling voor beperkte en ondergeschikte overschrijding van de grenzen van bouwvlakken. Deze bouwvlakken zijn op de verbeelding aangeduid met een dikke lijn.

Algemene afwijkingsregels (Artikel 10)

Voor ondergeschikte afwijkingen van de bestemmingsplanbepalingen (de bouwregels) is een algemene afwijkingsregel opgenomen.

Overige regels (Artikel 13)

Dit artikel bevat twee bepalingen, namelijk een parkeerregeling en een regeling voor waterberging. In een (toenemend) aantal gevallen wordt in de regels van bestemmingsplannen verwezen naar een (andere) wettelijke regeling of wordt een procedure, begrip en/of functie uit die andere regeling van toepassing verklaard. Ook in de begripsbepalingen komen die verwijzingen voor. Op grond van jurisprudentie mag een bestemmingsplan slechts volgens de vereiste procedure van de Wro worden gewijzigd. Het impliciet wijzigen van een bestemmingsplan door wijzigingen in wetgeving in de bepalingen waarnaar wordt verwezen is niet toegestaan. Het is dan ook nodig dat verwijzingen naar toepasbare wettelijke regelingen worden gefixeerd, namelijk naar de tekst ervan zoals die op het moment van vaststelling van het plan gold. Uit praktische overwegingen is er voor gekozen in dit hoofdstuk van de regels een artikel hiervoor op te nemen, waarin is bepaald dat alle wettelijke regelingen waarnaar in de regels wordt verwezen, gelden zoals deze luidden op het moment van vaststelling van het plan. Hierdoor hoeft niet meer telkens te worden verwezen naar publicaties in het Staatsblad. De parkeerregeling is gelijk aan degene opgenomen in de Parapluherziening Parkeren Gemert-Bakel zoals vastgesteld op 23 januari 2018.

6.5 Toelichting op de overgangs- en slotbepalingen

In artikel 14 is het overgangsrecht ten aanzien van het gebruik en het bouwen in strijd met het plan geregeld. In lid 14.1 is de in artikel 3.2.1 Bro voorgeschreven bepaling omtrent het overgangsrecht voor bouwwerken opgenomen. In lid 14.2 is de in artikel 3.2.2 Bro voorgeschreven bepaling omtrent het overgangsrecht voor gebruik opgenomen. Artikel 15 bevat de slotregel.

Hoofdstuk 7 Maatschappelijke uitvoerbaarheid

7.1 Vooroverleg ex artikel 3.1.1 Bro

Op grond van artikel 3.1.1. van het Besluit op de ruimtelijke ordening (Bro) dient bij de voorbereiding van een bestemmingsplan overleg plaats te vinden met de besturen van betrokken gemeenten en waterschappen en met die diensten van provincie en Rijk die betrokken zijn bij de zorg voor de ruimtelijke ordening of belast zijn met de behartiging van belangen welke in het plan in het geding zijn. De resultaten van het vooroverleg worden verwerkt in onderstaande paragraaf.

7.2 Omgevingsdialoog

De gemeente Gemert-Bakel stelt de omgevingsdialoog verplicht. In dat kader heeft op 14 september 2021 een bijeenkomst voor omwonenden plaats gevonden. Tijdens deze presentatie c.q. informatiebijeenkomst hebben bewoners de mogelijkheid gehad te reageren op het planvoornemen. Het gehele verslag van deze bijeenkomst is als bijlage aan dit bestemmingsplan toegevoegd, zie bijlage 12.

7.3 Zienswijzen

Met de terinzagelegging van het ontwerpbestemmingsplan (voor de duur van zes weken) wordt de formele vaststellingsprocedure gestart. Gedurende deze periode kan iedereen op het ontwerp bestemmingsplan een schriftelijke of mondelinge zienswijze indienen. De zienswijzen worden samengevat en voorzien van beantwoording. Deze zienswijzen zullen worden beoordeeld op het feit of, en zo ja, in hoeverre het ontwerp aanpassing behoeft. Vervolgens zal het college van B&W de gemeenteraad voorstellen het bestemmingsplan al dan niet gewijzigd vast te stellen.

7.4 Beroep

Na vaststelling wordt het bestemmingsplan voor de tweede maal zes weken ter visie gelegd. Gedurende deze periode kunnen belanghebbenden tegen het vaststellingsbesluit beroep instellen bij de Afdeling Bestuursrechtspraak van de Raad van State. Indien geen beroep wordt ingesteld, is het plan na deze beroepstermijn onherroepelijk en treedt het plan in werking.